f1up Опубліковано: 18 червня 2019 Поділитись Опубліковано: 18 червня 2019 Итак , процесс пошел. Выбор, осмысление и осознание, а чего,собственно, нам надо, находится здесь https://www.stroimdom.com.ua/forum/showthread.php?t=200553&page=2 1 Посилання на коментар Поділитися на інших сайтах More sharing options...
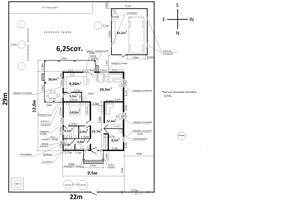
f1up Опубліковано: 18 червня 2019 Автор Поділитись Опубліковано: 18 червня 2019 Окончательно утвержденный вариант дома выглядит так.Терасса и гараж пока только предусматриваются ввиду ограниченности бюджета 4 Посилання на коментар Поділитися на інших сайтах More sharing options...
f1up Опубліковано: 18 червня 2019 Автор Поділитись Опубліковано: 18 червня 2019 Фундамент залит и отстоялся.Мелкозаглубленная лента с бетонными сваями и несъемной опалубкой. 2 Посилання на коментар Поділитися на інших сайтах More sharing options...
f1up Опубліковано: 18 червня 2019 Автор Поділитись Опубліковано: 18 червня 2019 Домокомплект изготовлен и ждет-недождется быть вывезенным и собранным 1 Посилання на коментар Поділитися на інших сайтах More sharing options...
ROS_SUMY Опубліковано: 25 липня 2019 Поділитись Опубліковано: 25 липня 2019 Подпишусь и с удовольствием понаблюдаю 1 Посилання на коментар Поділитися на інших сайтах More sharing options...
f1up Опубліковано: 27 липня 2019 Автор Поділитись Опубліковано: 27 липня 2019 Старт был сильным.За два дня стены уже стояли 4 Посилання на коментар Поділитися на інших сайтах More sharing options...
f1up Опубліковано: 27 липня 2019 Автор Поділитись Опубліковано: 27 липня 2019 Далее чуть медленнее(не хватило леса), но через две пару тройку недель смонтировали СИП перекрытия и частично внутренние каркасные перегородки.Теперь можно походить и ощутить площадь в натуре.Да,господа,дом -это вещь!Ощущения внутри потрясающие!Ходишь,ходишь,представляешь,думаешь.Вот оно все такое недостроенное,но блин,в душе птички поют.Вокруг,кстати тоже.И кода едешь туда из Киева, то чувствуешь, что едешь уже ДОМОЙ! 13 Посилання на коментар Поділитися на інших сайтах More sharing options...
f1up Опубліковано: 11 серпня 2019 Автор Поділитись Опубліковано: 11 серпня 2019 Итак,дело близится к завершению программы минимум - закрыть дом,т.е стены крыша,окна-двери.Последние смонтируют к концу недели. 4 Посилання на коментар Поділитися на інших сайтах More sharing options...
f1up Опубліковано: 11 серпня 2019 Автор Поділитись Опубліковано: 11 серпня 2019 В ближайших планах получить многострадальный стройпаспорт(обещали в понедельник),смонтировать утеплитель пенопласт 10см на фасад,чтобы защитить ОСБ на зиму, ну и начать эпопею с РЭС.До этого электричество давал добрый сосед.Не знаю пока,что лучше,пройти весь путь самому или не париться и заплатить кому-нибудь за услуги.Судя по пути стройпаспорта, чиновники ну очень не торопятся исполнять свои обязанности. 2 Посилання на коментар Поділитися на інших сайтах More sharing options...
ЩербачОК Опубліковано: 11 серпня 2019 Поділитись Опубліковано: 11 серпня 2019 Хороший у вас початок. Вітаю. Підпишуся і з Вашого дозволу в особисті згодом постукаюсь, бо цікавлюся будинком аналогічного розміру. Посилання на коментар Поділитися на інших сайтах More sharing options...
f1up Опубліковано: 30 серпня 2019 Автор Поділитись Опубліковано: 30 серпня 2019 Господа,дом накрыт,окна-двери стоят.В общем,программа минимум выполнена.Во вторник начнут фасадные работы.Также в ближайших планах было собственноручное обустройство крыльца, но незапланированный визит в больницу отодвинул этот увлекательный процесс на месяц. Кстати ,стройпаспорт получен бесплатно(отчет тут https://www.stroimdom.com.ua/forum/showthread.php?t=85812&page=300 ). Повідомлення про початок будівництва подано лично в Печерский ЦНАП(Суворова 13).Там справа от стойки сидит милая девушка,которая совершенно бесплатно и с неподдельным участием помогает заполнить Повідомлення на ее же бланке. Теперь жду смс от них. А пока пойду в Киевоблэнерго,отнесу в единое окно документы и посмотрим,что будет дальше. 6 Посилання на коментар Поділитися на інших сайтах More sharing options...
f1up Опубліковано: 30 серпня 2019 Автор Поділитись Опубліковано: 30 серпня 2019 Да,еще нужно бурьяны покосить... Посилання на коментар Поділитися на інших сайтах More sharing options...
razzil Опубліковано: 30 серпня 2019 Поділитись Опубліковано: 30 серпня 2019 Давайте стоимость. Тут так принято, все ждут)) 3 Посилання на коментар Поділитися на інших сайтах More sharing options...
f1up Опубліковано: 4 вересня 2019 Автор Поділитись Опубліковано: 4 вересня 2019 Итак,по бюджету: 1.Фундамент - 55 700грн Мелкозаглубленный, ленточно-столбчатый, утепленный (несъемная пенополистирольная опалубка). Мелкозаглубленная фундаментная лента на железобетонных сваях. Глубина 1200 мм., арматура 10мм., диаметр сваи 200 мм., бетон П3 Б15. 2.Черновой пол первого этажа(стяжка) - 61 300грн Стяжка первого этажа под тёплый пол: гидроизоляция(еврорубероид 4мм). Армировочная сетка 100х100х3мм, бетонная подушка П3Б15; 3.Основные инженерные сети первого этажа - 14 000грн Базовая разводка под черновым полом первого этажа (канализация, ввод воды и канал ввода электрики) 4.Домокомплект - 385 000грн ОСП - 3 влагостойкая (Egger) Пенополистирол NEOPOR Клей однокомпонентный полиуретановый Lesson (Англия) Внешние стены – СИП панели 160 мм; Внутренние перегородки – каркасные (с одной стороны зашиты ОСП); Перекрытие – СИП панели 200 мм; Обустройство крыши – холодная стропильная; Соединительный брус: сухой, строганный, калиброванный, полный комплект крепежных элементов (в соответствии со спецификацией) 5.Сборка Домокомплекта - 68 400грн Собственные строительные бригады, лицензированные строительные работы 6.Окна + Входная группа - 59 400грн Металопластиковые окна: 2х камерный стеклопакет; 5-ти камерный профиль ALUPLAST Delux, доставка; фурнитура Roto (Германия). 7.Устройство мягкой кровли с работой - 111 800грн (изначально было 90000грн) Комплект кровельных матерриалов (битумная черепица Docke Цюрих Вагаси) ИТОГО: 754800грн. На тот момент доллар менял по курсу 26 , следовательно вышло 29030$. К слову сказать битумку в комм.предложении изначально посчитали самую дешевую из линейки,а когда коснулись,то решили доплатить 21800грн за ту,что понравилась,она,конечно же была дороже... Справедливости ради ,нужно отметить,что косяков было не так уж и много.Например,промахнулись на 10см с выходом для унитаза(оказался внутри каркасной перегородки).Но обещали переделать.И после монтажа окон, некоторые окна и балконная дверь потребовали более тщательной регулировки. К тому же некоторые уплотнители после монтажа стеклопакетов ,мягко говоря ,проложены неэстетично.Тоже доделают. И на финал - вишня на торте.Терасная дверь открывается ручкой с двух сторон!.В одноэтажном доме.!Заходи кто хош!Ладно,распилят четырехгранник и будет открываться-закрываться только изнутри. А так ,работать с нашим подрядчиком было достаточно комфортно. Завтра фасадчики начинают утеплять-защищать фасад Неопором 100мм с сеткой и шпаклеванием.Т.е. будет подготовка под барашек на следующую весну. Добавлено через 8 минут Вчера подал документы на подключение электричества в Киевоблэнерго на Стеценко1.Все культурно: талончик, кондиционер, 30мин ожидания, заявление, копии док-тов, милая девушка с красивым именем Роксолана, Дякую-будьласка, до побачення!Ждем недели 3. Заключаем договор, розробляють ТУ, оплачиваем розробку (5100грн, при эл.отоплении) и запрошенные 15кВт (1867грн за кВт), покупаем счетчик, делаем контур заземления у лицензированной фирмы(берем бумагу), ждем, подключают. Обещают за 2-3 месяца.Поглядим. 17 Посилання на коментар Поділитися на інших сайтах More sharing options...
f1up Опубліковано: 25 вересня 2019 Автор Поділитись Опубліковано: 25 вересня 2019 Фасад подготовлен под штукатурку.На днях в Леруа узнали про мозаичную штукатурку и захотелось её. Condor Mozaic Putz. Натуральный камень.На нее до конца месяца акция.Цена хорошая 9 Посилання на коментар Поділитися на інших сайтах More sharing options...
AlexDS85 Опубліковано: 11 жовтня 2019 Поділитись Опубліковано: 11 жовтня 2019 Я теж вибираю фірму що може побудувати будинок з СІП панелей.. ви можете сказати як називається організація в якої ви замовляли збірку домокомплекту? Дякую Посилання на коментар Поділитися на інших сайтах More sharing options...
f1up Опубліковано: 15 жовтня 2019 Автор Поділитись Опубліковано: 15 жовтня 2019 Ответил в личку 1 Посилання на коментар Поділитися на інших сайтах More sharing options...
f1up Опубліковано: 18 жовтня 2019 Автор Поділитись Опубліковано: 18 жовтня 2019 На днях снимал ленту с окон, обрезал лишнюю пену и обнаружил такие вот деревянные проставки.Кое-где пластмассовые, а местами деревянные.Кроме того, подставочный профиль(так,по-моему,который непосредственно под окном) не на всю ширину оконного проема.Это косяк монтажников или так должно быть? Посилання на коментар Поділитися на інших сайтах More sharing options...
digor_ua Опубліковано: 19 жовтня 2019 Поділитись Опубліковано: 19 жовтня 2019 На днях снимал ленту с окон, обрезал лишнюю пену и обнаружил такие вот деревянные проставки.Кое-где пластмассовые, а местами деревянные.Кроме того, подставочный профиль(так,по-моему,который непосредственно под окном) не на всю ширину оконного проема.Это косяк монтажников или так должно быть? это нормально забейте они просто по другому не умеют :D 2 Посилання на коментар Поділитися на інших сайтах More sharing options...
f1up Опубліковано: 22 жовтня 2019 Автор Поділитись Опубліковано: 22 жовтня 2019 На днях сделал вот такое крыльцо.Я не волшебник,я только учусь.Поэтому процесс был небыстрым. Покрасили Pinotex Classic Lazur Калужница.В два слоя расход 1л. На пол хотели постелить доску из ДПК, но выяснилось,что ее нужно стелить на лаги тоже из ДПК.А мои деревянные уже были смонтированы.Переделывать не буду, постелю термососну.Но уже весной. Не обошлось без ошибок и косячков..Ну то такэ... 1 Посилання на коментар Поділитися на інших сайтах More sharing options...
Игорь UA Опубліковано: 22 жовтня 2019 Поділитись Опубліковано: 22 жовтня 2019 На днях снимал ленту с окон, обрезал лишнюю пену и обнаружил такие вот деревянные проставки.Кое-где пластмассовые, а местами деревянные.Кроме того, подставочный профиль(так,по-моему,который непосредственно под окном) не на всю ширину оконного проема.Это косяк монтажников или так должно быть? Они так выставляют окна. Расклинивают их. Я у себя деревянные бруски вытянул и запенил . Посилання на коментар Поділитися на інших сайтах More sharing options...
f1up Опубліковано: 22 жовтня 2019 Автор Поділитись Опубліковано: 22 жовтня 2019 Ой как нужно изучать технологию и контролировать установщиков!Я,к сожалению,изучил уже после установки.Нашлись косяки и экономия.Креплений меньше,чем нужно, уплотнители были проложены криво(исправили), балконная дверь плохо закрывалась(сам доработал ). Сейчас прохожу герметиком по швам: снаружи и внутри.Сделаю - выложу. Посилання на коментар Поділитися на інших сайтах More sharing options...
Агидель Опубліковано: 28 жовтня 2019 Поділитись Опубліковано: 28 жовтня 2019 Спасибо, очень интересная тема. Но надеялась на чудо - что вдруг получается дешевле, ну типа садовый домик. Не получается, и домик пока не светит.) Буду читать с интересом всё равно. Посилання на коментар Поділитися на інших сайтах More sharing options...
f1up Опубліковано: 28 жовтня 2019 Автор Поділитись Опубліковано: 28 жовтня 2019 (змінено) Пару дней назад сделали мне классический септик(первый колодец с дном,второй дренирующий), под ключ.Т.е Приехали,сделали,уехали.Пользуйтесь на здоровье.Прошелся по форуму,почитал.Решил работать с Валерием, который Valerazaz. Созвонились,пообщались, обговорили нюансы, составили смету, обещали справиться за день.Все устроило. И довольно оперативно назначили время копки. Немного удивило, что парни работают без экскаватора, но как позже оказалось, против их лопат и глазомера экскаватор курит в сторонке.В общем, в день икс, приехал партнер Валерия Василий с напарником и не прошло и двух часов, как обе ямы были готовы.Причем идеально круглые и в глубину ровно столько,сколько нужно. Да здравствуют пара крепких рук и зорких глаз в деле сохранения вашего ландшафта! К этому времени подлетел бодрый ЗИЛ с мерседесовским сердцем и манипулятором, ловко опустил по два кольца+горловины в ямки(на раствор,конечно же), и также бодро улетел. Единственное,что не вышло под ключ, так это дополнительный уголок на 15град.Дело в том,что изначально септик планировался прямо напротив выхода трубы из дома, просто прямой трубой на расстоянии 6м от дома.Но, пообщавшись с соседом напротив,выяснили, что до его скважины метров 15.И решили разместить колодцы в углу участка, уже в 28м от скважины. Что в итоге увеличило расстояние до септика до 11м,плюс уголок 45град.,что в свою очередь немного увеличило общую стоимость.А пофакту уже обнаружилось, что 45град. маловато.Нужно еще 15. Вот я и поездил часок по окрестным строительным магазинам, и, таки нашел оранжевый весь 15градусный угол. И вот, что вышло: труба из дома - уголок 45град - 3м трубы - уголок 15град - 6м трубы - вход в горловину первого колодца. А выход на перелив получился ровно под крышкой. Поэтому будут полноценно работать по два кольца. Далее - дело техники.Проливка,засыпка,рассчет,большое спасибо,нехай добре працює! В общем,приятно работать с профессионалами.Парни - молодцы! Люки на зиму решили не ставить(в смету включены) шоб не вкрали. А весной уже установлю вместе с трубой вентиляции и фановой трубой в доме, которую мои подрядчики почему-то не предусмотрели. Теперь жду электичества.Пока полтора месяца. Змінено 28 жовтня 2019 користувачем f1up 8 Посилання на коментар Поділитися на інших сайтах More sharing options...
StNick Опубліковано: 29 жовтня 2019 Поділитись Опубліковано: 29 жовтня 2019 сколько и каких колец в первом и втором ? фотки организации и подключения труб к кольцам и между кольцами покажете? Посилання на коментар Поділитися на інших сайтах More sharing options...
Рекомендовані повідомлення
Створіть акаунт або увійдіть у нього для коментування
Ви маєте бути користувачем, щоб залишити коментар
Створити акаунт
Зареєструйтеся для отримання акаунта. Це просто!
Зареєструвати акаунтУвійти
Вже зареєстровані? Увійдіть тут.
Увійти зараз