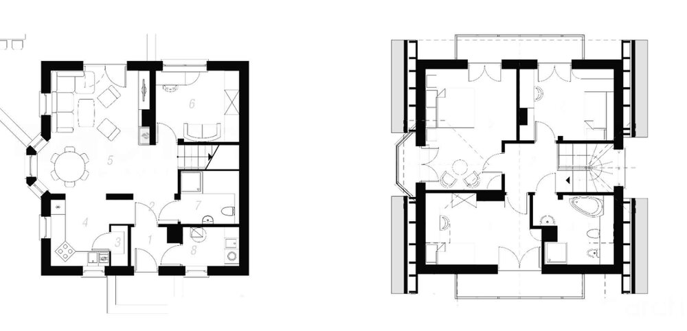
Васюня Опубліковано: 2 серпня 2019 Поділитись Опубліковано: 2 серпня 2019 Всем привет. Набросали с женой эскиз будущего дома (на картинке). Прошу оценить главное: это вообще реализуемо? Размер пятна дома 10х10. Планиру увеличить длину до 11-12м, но ширину увеличить нельзя. Материал стен планируется газобетон 40см и утепление минватой с последующим оштукатуриванием. Перекрытия - плита. Крыша пока не понятно, а равно и фундамент - это после консультации с профильным спецом и проекта. 1. Интересно как там с плитами перекрытия (лягут ли при таком дизайне) 2. Несущие стены: возможна ли такая планировка с учетом необходимости в несущих стенах? 3. Смогу ли вентиляцию правильно организовать? 4. Вопрос относительно строительства: участок очень маленький: 14х28. Строительство на дальней стороне. На ближней старый дачный домик, который хочется сохранить на время стройки. Т.о. для подъезда техники и хранения стройматериалов остается катастрофически мало места: в сущности отрезок метров 5 (ширина)х10. Сможет ли там работать кран и уложить плиты перекрытия? 5. Ваши замечания/предложения? Заранее благодарен. Посилання на коментар Поділитися на інших сайтах More sharing options...
Васюня Опубліковано: 2 серпня 2019 Автор Поділитись Опубліковано: 2 серпня 2019 Всем привет. Набросали с женой эскиз будущего дома (на картинке). Прошу оценить главное: это вообще реализуемо? Размер пятна дома 10х10. Планиру увеличить длину до 11-12м, но ширину увеличить нельзя. Материал стен планируется газобетон 40см и утепление минватой с последующим оштукатуриванием. Перекрытия - плита. Крыша пока не понятно, а равно и фундамент - это после консультации с профильным спецом и проекта. 1. Интересно как там с плитами перекрытия (лягут ли при таком дизайне) 2. Несущие стены: возможна ли такая планировка с учетом необходимости в несущих стенах? 3. Смогу ли вентиляцию правильно организовать? 4. Вопрос относительно строительства: участок очень маленький: 14х28. Строительство на дальней стороне. На ближней старый дачный домик, который хочется сохранить на время стройки. Т.о. для подъезда техники и хранения стройматериалов остается катастрофически мало места: в сущности отрезок метров 5 (ширина)х10. Сможет ли там работать кран и уложить плиты перекрытия? 5. Ваши замечания/предложения? Заранее благодарен. Посилання на коментар Поділитися на інших сайтах More sharing options...
galproekt Опубліковано: 3 серпня 2019 Поділитись Опубліковано: 3 серпня 2019 Применение панелей, определение с конструктивной схемой (несущие стены), организация вентиляции (дымовентканалы с учетом конструктивной схемы) - все решаемо на основе данного эскиза. 1 Посилання на коментар Поділитися на інших сайтах More sharing options...
OlegArh Опубліковано: 3 серпня 2019 Поділитись Опубліковано: 3 серпня 2019 Всем привет. Набросали с женой эскиз будущего дома (на картинке). Прошу оценить главное: это вообще реализуемо? Размер пятна дома 10х10. Ось, десь туточки знаходив 10х10. Може знадобиться. 2 Посилання на коментар Поділитися на інших сайтах More sharing options...
vadimv Опубліковано: 3 серпня 2019 Поділитись Опубліковано: 3 серпня 2019 Набросали с женой эскиз будущего дома (на картинке).У вас большая цыганская семья, что нужно 5 комнат (4 спальни+кабинет)? 5. Ваши замечания/предложения?Сократить число комнат до 4. Взять хотя бы приведенную планировку за основу. 1 Посилання на коментар Поділитися на інших сайтах More sharing options...
Васюня Опубліковано: 3 серпня 2019 Автор Поділитись Опубліковано: 3 серпня 2019 У вас большая цыганская семья, что нужно 5 комнат (4 спальни+кабинет)? Сократить число комнат до 4. Взять хотя бы приведенную планировку за основу. Нас всего трое, но мы хотим стать циганской семьёй) Идея такая: когда все вырастут и разъедутся, второй этаж снесем законсервируем. 1 Посилання на коментар Поділитися на інших сайтах More sharing options...
teonit Опубліковано: 4 серпня 2019 Поділитись Опубліковано: 4 серпня 2019 Всегда рисуйте перегородки в реальную толщину. Тоненькие линии на этапе эскиза потом превращаются в толстенные стены, и комнаты потом получаются слишком узкими. Даже на эскизе - расставляйте мебель сразу же, как закончили рисовать стены. 3 санузла - это перебор. P.S. Для простоты - вырежьте из бумаги мебель в масштабе - это позволит вам ее не перерисовывать каждый раз, а просто накладывать сверху на планировку. P.P.S. Начните с типовых проектов - их тысячи, на любой вкус. 3 Посилання на коментар Поділитися на інших сайтах More sharing options...
Технолог Опубліковано: 4 серпня 2019 Поділитись Опубліковано: 4 серпня 2019 необходимость в двух террасах? Посилання на коментар Поділитися на інших сайтах More sharing options...
galproekt Опубліковано: 5 серпня 2019 Поділитись Опубліковано: 5 серпня 2019 Ось, десь туточки знаходив 10х10. Може знадобиться. А дозвольте поцікавитись, звідки у Вас ці ескізи? Посилання на коментар Поділитися на інших сайтах More sharing options...
galproekt Опубліковано: 5 серпня 2019 Поділитись Опубліковано: 5 серпня 2019 Готов разработать проект для строительства на основе Ваших эскизов. При разработке проекта можно предусмотреть все Ваши пожелания. 1 Посилання на коментар Поділитися на інших сайтах More sharing options...
Васюня Опубліковано: 5 серпня 2019 Автор Поділитись Опубліковано: 5 серпня 2019 необходимость в двух террасах? Если честно я уже и сам сомневаюсь. Участок (и дом) с фасадом на юго-запад и там не будет тени деревьев (ещё очень долго). Поэтому подумал, что неплохо бы иметь обеденный стол за домом для жарких дней. Соответственно основная терраса перед домом для не жарких дней тскзть Добавлено через 3 минуты P.P.S. Начните с типовых проектов - их тысячи, на любой вкус. Спасибо за рекомендации. Типовые мне не очень подходят (много уже смотрел): нужно 2 практически глухих стены из-за особенностей соседской застройки. Посилання на коментар Поділитися на інших сайтах More sharing options...
DimaF Опубліковано: 5 серпня 2019 Поділитись Опубліковано: 5 серпня 2019 Слишком много комнат с площадью 10-12 квадратов. Капсульный отель какой то получится. Санузлов много, на один меньше можно. 2 Посилання на коментар Поділитися на інших сайтах More sharing options...
OlegArh Опубліковано: 5 серпня 2019 Поділитись Опубліковано: 5 серпня 2019 А дозвольте поцікавитись, звідки у Вас ці ескізи?А Ви з якою метою цiкавитесь? Посилання на коментар Поділитися на інших сайтах More sharing options...
galproekt Опубліковано: 5 серпня 2019 Поділитись Опубліковано: 5 серпня 2019 А Ви з якою метою цiкавитесь? Та впізнав свій почерк, а для кого це робив не можу згадати. Поки що. Посилання на коментар Поділитися на інших сайтах More sharing options...
OlegArh Опубліковано: 5 серпня 2019 Поділитись Опубліковано: 5 серпня 2019 Та впізнав свій почерк, а для кого це робив не можу згадати. Поки що.Я ж писав, що десь тут знаходив. Може дата щось пiдкаже - в мене файл датований сiчнем 2014 р. Посилання на коментар Поділитися на інших сайтах More sharing options...
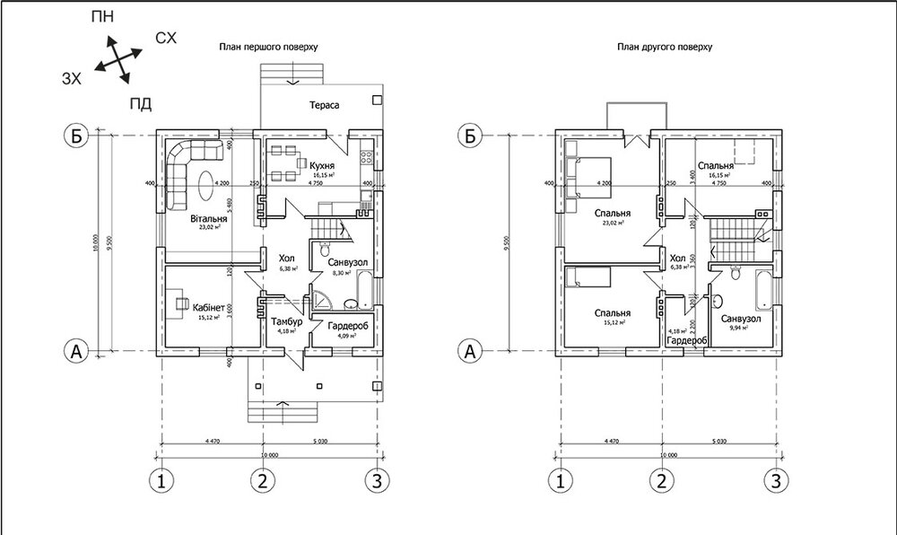
Sерджио Опубліковано: 1 вересня 2019 Поділитись Опубліковано: 1 вересня 2019 Полностью согласен со стенами с реальной толщиной и мебелью в масштабе. Второе. Как по мне - крайне неудачное расположение спальни на первом этаже возле тамбура, а котельни с санузлом где-то в глубине. Я бы это менял местами, соответственно двигая санузел на втором этаже. Меньше канализации надо будет вести. Все остальное - ну тут каждому своё, хотя дом великоват. Имхо. Посилання на коментар Поділитися на інших сайтах More sharing options...
Юдин Денис Опубліковано: 2 вересня 2019 Поділитись Опубліковано: 2 вересня 2019 При разработке планировки нужно учитывать стороны света и солнце-хождение, т.е. где у Вас север-юг. дневную зону (гостиная-столовая) лучше располагать на солнечную сторону (юг, юго-запад), хоз.помещения, котельная, гараж-север, северо-восток. В самой планировке смущает количество санузлов (многовато как на такой небольшой домик), и вход в котельную через сан узел-не совсем удобно... Так же при размещении дома на участке нужно учитывать противопожарные нормы, 2 метра- маловато для противопожарного разрыва, и машина не проедет в случае чего, поэтому ширину дома лучше уменьшить, 9х9м будет норм, и как раз плиты можно будет положить, 9-метров-макс.длинна пустотных плит перекрытия. В прицепе более удачный пример планировки Посилання на коментар Поділитися на інших сайтах More sharing options...
vadimv Опубліковано: 2 вересня 2019 Поділитись Опубліковано: 2 вересня 2019 В прицепе более удачный пример планировкиА если еще и поубирать лишние балконы с эркерами, то получится вот так: 2 Посилання на коментар Поділитися на інших сайтах More sharing options...
Юдин Денис Опубліковано: 2 вересня 2019 Поділитись Опубліковано: 2 вересня 2019 А если еще и поубирать лишние балконы с эркерами, то получится вот так: балконы заменить на французские, а эркер чем плох? в интенрьере очень даже красиво будет смотреться Посилання на коментар Поділитися на інших сайтах More sharing options...
teonit Опубліковано: 2 вересня 2019 Поділитись Опубліковано: 2 вересня 2019 а эркер чем плох? в интенрьере очень даже красиво будет смотреться Эркер на плане красиво смотрится. Но вживую часто превращается в дот с узкими бойницами. 2 Посилання на коментар Поділитися на інших сайтах More sharing options...
Юдин Денис Опубліковано: 3 вересня 2019 Поділитись Опубліковано: 3 вересня 2019 (змінено) Эркер на плане красиво смотрится. Но вживую часто превращается в дот с узкими бойницами. Я считаю что эркер не плохо смотрится в живую, как снаружи так и внутри дома, этакий дизайнерский ход) но на узком участке, пожалуй от него можно отказаться... В прицепе приведены примеры реализации проекта с эркером и без Змінено 3 вересня 2019 користувачем Юдин Денис Посилання на коментар Поділитися на інших сайтах More sharing options...
vadimv Опубліковано: 3 вересня 2019 Поділитись Опубліковано: 3 вересня 2019 Я считаю что эркер не плохо смотрится в живую, как снаружи так и внутри дома, этакий дизайнерский ход) но на узком участке, пожалуй от него можно отказаться... В прицепе приведены примеры реализации проекта с эркером и безОно конечно дело вкуса, но лично я бы не стал ради этого так усложнять крышу и создавать потенциально проблемный узел в плаге тепло- и гидроизоляции. На кой бес мне этот стресс за мои же деньги... 1 Посилання на коментар Поділитися на інших сайтах More sharing options...
Юдин Денис Опубліковано: 3 вересня 2019 Поділитись Опубліковано: 3 вересня 2019 Оно конечно дело вкуса, но лично я бы не стал ради этого так усложнять крышу и создавать потенциально проблемный узел в плаге тепло- и гидроизоляции. На кой бес мне этот стресс за мои же деньги... Следуя Вашей логике, все должны жить в одинаковых квадратных коробках, с двускатными крышами...а как же эстетические ценности? Ведь если дом красивый то он продастся быстрее, и стоить он будет дороже чем не красивый дом, и жить в нем будет приятнее. И на самом деле никаких проблемных узлов я тут не вижу, пол террасы над эркером утепляется, вода с нее отводится, и люкарня на крыше тоже ничего сложного....если конечно все делать по уму, а не как попало "на хлопский розум"... Посилання на коментар Поділитися на інших сайтах More sharing options...
vadimv Опубліковано: 3 вересня 2019 Поділитись Опубліковано: 3 вересня 2019 все должны жить в одинаковых квадратных коробках, с двускатными крышами...Просто удивительно, откуда люди из фразы "дело вкуса, но лично я бы" делают такие выводы за всех. а как же эстетические ценности?На десятом месте после безопасности, беспроблемности, удобства и т.п. и т.д. если дом красивый то он продастся быстрееЯ не понял, вы для себя дом строите или на продажу, для других? Хотя да, вы наверно на продажу. жить в нем будет приятнееНе, ну если вам приятнее жить в красивом доме, который обошелся в полтора раза дороже и в котором протекает потолок над эркером - то вопросов нет, живите. И на самом деле никаких проблемных узлов я тут не вижу, пол террасы над эркером утепляется, вода с нее отводится, и люкарня на крыше тоже ничего сложного....если конечно все делать по уму, а не как попало "на хлопский розум"...Конечно, у нас в стране все делается по уму, вы же знаете... Например, мой сосед регулярно лазит по крыше вокруг трубы, даже специальную лестницу сделал. У меня такой лестницы нет, за неимением такой трубы. Каждый выбирает игрушки по своему возрасту. 2 Посилання на коментар Поділитися на інших сайтах More sharing options...
Рекомендовані повідомлення
Створіть акаунт або увійдіть у нього для коментування
Ви маєте бути користувачем, щоб залишити коментар
Створити акаунт
Зареєструйтеся для отримання акаунта. Це просто!
Зареєструвати акаунтУвійти
Вже зареєстровані? Увійдіть тут.
Увійти зараз