Yaroslav-x777 Опубліковано: 17 вересня 2019 Поділитись Опубліковано: 17 вересня 2019 Добрий день! Потібно виморувати два димоходи з вентеляційними каналами, перший під під ТТ котел + електро, другий під відкритий класичний камін фото з проекту додається, для каміна, і вентканалів залитий окремий фундамент висотою 40-50см: - на якому етапі будувати димоходи з вентеляційними каналами? (плити перекриття не заважають, перекриття між 1 і 2 поверхом де знаходяться вентканали будуть заливатися окремо) зразу з перестінками, коли готова коробка, перед установкою кровлі і т.д.? - зараз мурую перегородки внутрішні, чи потрібно з ними зв'язувати димохід? - під ТТ котел хочу установити нержавійочу трубу марка сталі 321 товщиною 1мм, норм? чи може щось інше запропонуєте? - на якій висоті встановити лючок для конденсата? лючок для догляду? низ самої труби? - як і до чого кріпити саму нерж. трубу для тт котла в димоході? - як засунути нерж. трубу в димохід з цегляної кладки якщо висота димохода від нуля 9.5метра? - якого діаметру має бути труба для котла (загальна площа 180 кв.м., думаю ТТ котел на кВт 20-25 вистачить)? - вентканали і димохід з якої цегли мурувати? (закуплена повнотіла М125 Корсунь на перегородки можна з неї, а через дах і вище клінкерною)? - чи потрібна труба для каміна, може обійтися цегляною кладкою з гарно затертими швами? - якого діаметру (може є якись стандарт) мають бути труби (я так розумію пластикові?) для внтеляційних каналів с/у, кухня? - на якому етапі мурувати камін? Дякую за розуміння буду вдячний за відповіді, хто пройшов уже цей етап або спеціалісти які в цьому розбираються точно щось знають, будинок будую собі потрібно мати уяву як це робити, надіюсь перший і останній Посилання на коментар Поділитися на інших сайтах More sharing options...
SON Опубліковано: 18 вересня 2019 Поділитись Опубліковано: 18 вересня 2019 - на якому етапі будувати димоходи з вентеляційними каналами? Вместе со стенами. - зараз мурую перегородки внутрішні, чи потрібно з ними зв'язувати димохід? Вопрос риторический. Дым/вентканалы как правило это каналы в самих стенах, либо т.н. приставные. Связка по умолчанию. - під ТТ котел хочу установити нержавійочу трубу марка сталі 321 товщиною 1мм, норм? чи може щось інше запропонуєте? Срок службы дымохода должен равняться сроку службы дома. Делайте из кирпича, либо тот же кирпичный загильзовать керамической трубой. - на якій висоті встановити лючок для конденсата? лючок для догляду? низ самої труби? По нормам ревизия для чистки 25 см ниже от входа в дымканал. Для удобства собирания сажи можно сделать и у пола. Лючков для конденсата нет в нормативных документах. Его придумали продаваны нержи. - як і до чого кріпити саму нерж. трубу для тт котла в димоході? Закрепить не проблема - хомутами со шпилькой-шурупом. Как потом ее поменять.:D - якого діаметру має бути труба для котла (загальна площа 180 кв.м., думаю ТТ котел на кВт 20-25 вистачить)? Ф160мм для круглой трубы. По кирпичу 1*1/2 кирпича 270*140 мм. - вентканали і димохід з якої цегли мурувати? (закуплена повнотіла М125 Корсунь на перегородки можна з неї, а через дах і вище клінкерною)? Совершенно в дырочку. При одном условии, что кирпич нормального качества. - чи потрібна труба для каміна, може обійтися цегляною кладкою з гарно затертими швами? Более 200 лет как-то ж обходились без железных труб. - якого діаметру (може є якись стандарт) мають бути труби (я так розумію пластикові?) для внтеляційних каналів с/у, кухня? 140*140 мм (1/2*1/2 кирпича) размер внутри. Забудьте про пластик. https://www.stroimdom.com.ua/forum/showthread.php?t=97956 - на якому етапі мурувати камін? Важно сделать на этапе стройки дымоход. Камин можно доделать и через 10 лет. Камин открытый или закрытая топка? Возможно будет полезно почитать. www.ventkanal.ru/dh.html По малюнку. Оголовки труб в зоне ЗВП. 2 Посилання на коментар Поділитися на інших сайтах More sharing options...
Yaroslav-x777 Опубліковано: 19 вересня 2019 Автор Поділитись Опубліковано: 19 вересня 2019 Делайте из кирпича, либо тот же кирпичный загильзовать керамической трубой. Дякую за детальні відповіді Я спочатку думав і хотів цегляний димохід для тт котла загільзувати керамічною трубою як кажуть назавжди і забутися, але по ціні кусається) З цегли мається на увазі просто цегляна шахта без будь яких труб всередині? наскільки це краще чи наоборот в порівнянні з трубами, тяга, безпека, довговічність? Посилання на коментар Поділитися на інших сайтах More sharing options...
Yaroslav-x777 Опубліковано: 19 вересня 2019 Автор Поділитись Опубліковано: 19 вересня 2019 Совершенно в дырочку. При одном условии, что кирпич нормального качества. На експертизу не здавав але на вигляд наче якісний, не б'ється, дзвенить і геометрія більш менш (на фото). Посилання на коментар Поділитися на інших сайтах More sharing options...
SON Опубліковано: 19 вересня 2019 Поділитись Опубліковано: 19 вересня 2019 Я спочатку думав і хотів цегляний димохід для тт котла загільзувати керамічною трубою як кажуть назавжди і забутися, але по ціні кусається) Гляньте керамику КерамТех (Новоград-Волынский). Их официальный сайт, что-то не получилось найти. keramtech.stroimdom.com.ua/gallery/ З цегли мається на увазі просто цегляна шахта без будь яких труб всередині? Да. Аккуратная кладка без соплей/наплывов на жаропрочный раствор (либо глина + песок), плюс швабровка каналов изнутри. Тут есть место человеческому фактору - зависит от совести строителей. Выше кровли клинкер. наскільки це краще чи наоборот в порівнянні з трубами, тяга, безпека, довговічність? Кирпичная шахта загильзованная керамической трубой с заливкой зазора теплоемким раствором практически вечный дымоход. Обычный кирпичный тож не особо уступает. Что будет с нержой после возгорания сажи и сколько она прослужит точно никто не скажет. Противопожарные нормы при проходе перекрытий, стропилки и кровли касаются всех дымоходов. ...на вигляд наче якісний, не б'ється, дзвенить і геометрія більш менш Ну так есть из чего выбрать. Который без дефектов пустить на дымоходы, остальное пойдет на простенки, там один хрен все заштукатурится. Будет время, можете тут почитать примерно с 41-42 стр. Там даж с фотками. https://www.stroimdom.com.ua/forum/showthread.php?t=4846&page=43 1 Посилання на коментар Поділитися на інших сайтах More sharing options...
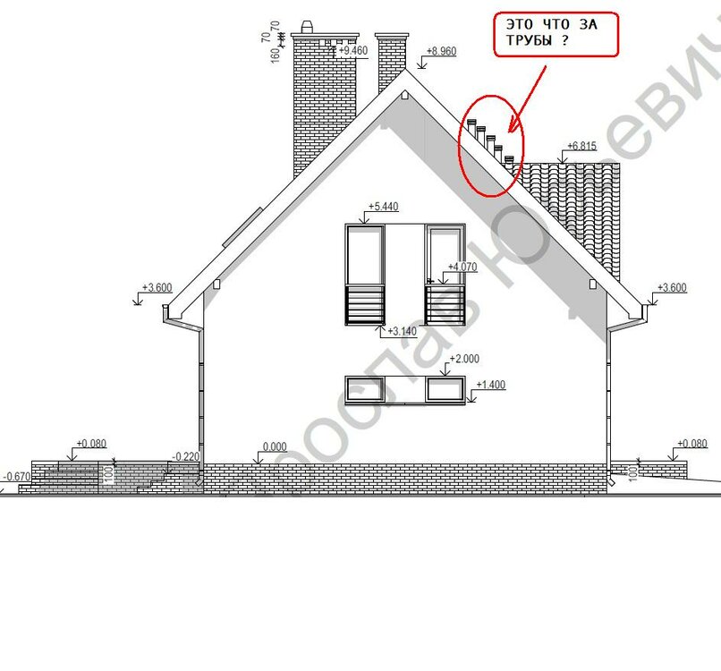
Yaroslav-x777 Опубліковано: 19 вересня 2019 Автор Поділитись Опубліковано: 19 вересня 2019 Допис від Yaroslav-x777 - якого діаметру (може є якись стандарт) мають бути труби (я так розумію пластикові?) для внтеляційних каналів с/у, кухня? 140*140 мм (1/2*1/2 кирпича) размер внутри. Забудьте про пластик. Вентеляційні канали маються на увазі не ці що йдуть разом з димоходом каміна і котла вище даху, а в перегородках (розмір для них в цегляній кладці 140х140), вони по проекту виходять на дах якоюсь трубою з ковпачком, додаю фото. Посилання на коментар Поділитися на інших сайтах More sharing options...
Yaroslav-x777 Опубліковано: 19 вересня 2019 Автор Поділитись Опубліковано: 19 вересня 2019 Камин открытый или закрытая топка? Возможно будет полезно почитать. www.ventkanal.ru/dh.html - Камін відкритий - Почитав, інформативно (ще раз переконався що на камін труба не потрібна тільки шахта з цегли), дякую Добавлено через 26 минут По малюнку. Оголовки труб в зоне ЗВП. Мініатюри долучень Уже писав і вказував на фото, це фанова і вентеляційні (витяжки с/у 1 і 2 поверху, кухні) труби які йдуть в цегляних перегородках і виходять на дах передньої сторони будинку. Повторюсь якщо хто знає якого діаметру потрібні ці труби, пластикові чи які інші, закладати труби тільки через чердак чи і в цегляні отвори/шахту в перегородці? Посилання на коментар Поділитися на інших сайтах More sharing options...
SON Опубліковано: 19 вересня 2019 Поділитись Опубліковано: 19 вересня 2019 Вентеляційні канали маються на увазі не ці що йдуть разом з димоходом каміна і котла вище даху, а в перегородках (розмір для них в цегляній кладці 140х140), вони по проекту виходять на дах якоюсь трубою з ковпачком, додаю фото. Выше за эти трубы и спрашивал. Они все находятся в зоне ветрового подпора. Если для фановой и трубы для кухонного зонта который с моторчиком, сие фиолетово, то в остальных каналах при определенном направлении ветра будет обратная тяга. Фановая выводится пластиковой трубой в общей шахте и является продолжением канализационного стояка и равна его диаметру. Все остальное можно делать из кирпича, тока разобраться с высотой на крыше. Возможно в проекте на с/у забиты вентиляторы, тогда все згидно малюнку. 1 Посилання на коментар Поділитися на інших сайтах More sharing options...
Yaroslav-x777 Опубліковано: 19 вересня 2019 Автор Поділитись Опубліковано: 19 вересня 2019 Фановая выводится пластиковой трубой в общей шахте и является продолжением канализационного стояка и равна его диаметру. Все остальное можно делать из кирпича, тока разобраться с высотой на крыше. - Фанова зрозуміло, 110 рижа каналізаційна труба на дах і зверху ковпак щось на подобі такого kievdah.com.ua/bitumnaya-cherepitsa/komplektatsiya-bitumnoy-cherepicy/standart-110-uteplrnnyy.html?gclid=Cj0KCQjwzozsBRCNARIsAEM9kBPaXTViWs9A99RmGGQoGn80uhHNJhs1yiScp0cBRPqaa2uXoHD75_gaAi9eEALw_wcB - З с/у і кухні витяжка не можу зрозуміти з цегли мурувати до чердака я так розумію поки перестінки, а потім трубою на дах і ковпак? чи трубою від початку вентеляційних отворів у цегляній кладці/перестінках (в моєму випадку починаються на висоті 2.50м) і на дах з ковпаком? чи труба взагалі не потрібна? в проекті на малюнку труба з ковпаком виходить на дах Посилання на коментар Поділитися на інших сайтах More sharing options...
Yaroslav-x777 Опубліковано: 19 вересня 2019 Автор Поділитись Опубліковано: 19 вересня 2019 Кирпичная шахта загильзованная керамической трубой с заливкой зазора теплоемким раствором практически вечный дымоход. Тепер склоняюся до варіанта з керамічною трубою всередині цегляного димохода тепер два запитання: - монтувати керамічну трубу разом/паралельно з кладкою цегляної шахти/димохода (условно, поклав метр кладки димохода заклав і зафіксував трубу і т.д.)? - простір між керамічної трубою і димоходом можна залишити пустим чи бажано все таки заповнити, якщо так то чим краще? - Труба від котла повинна йти на 90 градусів у верх і на певній відстані на 90 градусів заходити в димохід чи краще від котла на 45 градусів до димохода, прямою трубою в димохід і в трубу зайти на 90 градусів? - котел буде твердотопливний (длительного горения) по висоті вони є різні 1.30 - 2 метри (ще не знаю який в мене буде), на якій висоті зайти трубою від котла в димохід (читав що не менше як 50см має бути від котла, відповідно якщо котел 2м то на 2.50)? - Шахта має починатися від труби - 25см ревізія лючок, чи від 0.00 незалежно на які відстанні входить труба? Фото додаю, дякую Посилання на коментар Поділитися на інших сайтах More sharing options...
SON Опубліковано: 19 вересня 2019 Поділитись Опубліковано: 19 вересня 2019 (змінено) - Фанова зрозуміло, 110 рижа каналізаційна труба на дах і зверху ковпак щось на подобі такого Я Вам по секрету скажу, на оголовке фановой трубы такой колпак обмерзнет напрочь до полной закупорки. - З с/у і кухні витяжка Это понятно. Давайте сначала - газ на кухне будет? Вентиляторы в с/у в проекте есть? Добавлено через 8 минут тепер два запитання: - монтувати керамічну трубу разом/паралельно з кладкою цегляної шахти/димохода (условно, поклав метр кладки димохода заклав і зафіксував трубу і т.д.)? - простір між керамічної трубою і димоходом можна залишити пустим чи бажано все таки заповнити, якщо так то чим краще? - Труба від котла повинна йти на 90 градусів у верх і на певній відстані на 90 градусів заходити в димохід чи краще від котла на 45 градусів до димохода, прямою трубою в димохід і в трубу зайти на 90 градусів? - котел буде твердотопливний (длительного горения) по висоті вони є різні 1.30 - 2 метри (ще не знаю який в мене буде), на якій висоті зайти трубою від котла в димохід (читав що не менше як 50см має бути від котла, відповідно якщо котел 2м то на 2.50)? - Шахта має починатися від труби - 25см ревізія лючок, чи від 0.00 незалежно на які відстанні входить труба? Фото додаю, дякую В 5 сообщении в конце я давал ссылочку, там есть почти все ответы (с фотками) на аналогичные вопросы. Выберите время, спокойно прочтите/осмыслите, за пару дней вся инфа уляжется в голове. Просто прочитать гораздо быстрее, чем стучать по клаве на пару страниц. Змінено 19 вересня 2019 користувачем SON 1 Посилання на коментар Поділитися на інших сайтах More sharing options...
Yaroslav-x777 Опубліковано: 20 вересня 2019 Автор Поділитись Опубліковано: 20 вересня 2019 Я Вам по секрету скажу, на оголовке фановой трубы такой колпак обмерзнет напрочь до полной закупорки. Ок, альтернатива є? Добавлено через 2 минуты Давайте сначала - газ на кухне будет? Ні, тільки електро плита. Добавлено через 4 минуты Вентиляторы в с/у в проекте есть? В проекті тільки є де і на якій відстані мурувати димоходи і вентеляцію в стінах, більше нічого. Добавлено через 5 минут Кирпичная шахта загильзованная керамической трубой с заливкой зазора теплоемким раствором "теплоемким раствором" - Що порекомендуєте? Посилання на коментар Поділитися на інших сайтах More sharing options...
Yaroslav-x777 Опубліковано: 20 вересня 2019 Автор Поділитись Опубліковано: 20 вересня 2019 В 5 сообщении в конце я давал ссылочку, там есть почти все ответы (с фотками) на аналогичные вопросы. Так годиться? Посилання на коментар Поділитися на інших сайтах More sharing options...
SON Опубліковано: 20 вересня 2019 Поділитись Опубліковано: 20 вересня 2019 Ок, альтернатива є? Конечно есть. Оставляете срез трубы открытым и фсьо. Ні, тільки електро плита. Знач газовщики кровь пить не будут. В проекті тільки є де і на якій відстані мурувати димоходи і вентеляцію в стінах, більше нічого. Т.е. вентиляция естественная. При таком раскладе оголовки вентканалов нужно выводить из зоны ветрового подпора, (дотачивать по высоте). Это могут быть утепленные пластиковые трубы, что есть не совсем хорошо, либо кирпичная утепленная шахта. Либо смириться с обратной тягой при определенном направлении ветра. "теплоемким раствором" - Що порекомендуєте? На выбор. Известь+песок. Цемент+песок примерно 1:12 (тощий раствор). Тупо засыпать песком. Добавлено через 47 секунд Так годиться? На досуге помиркуйте на счет организации притока. Вытяжных каналов много, они все хотят кушать, без притока они сами решат кому тянуть-кому подавать воздух. 1 Посилання на коментар Поділитися на інших сайтах More sharing options...
NEX-HELP Опубліковано: 20 вересня 2019 Поділитись Опубліковано: 20 вересня 2019 Тепер склоняюся до варіанта з керамічною трубою всередині цегляного димохода тепер два запитання: - монтувати керамічну трубу разом/паралельно з кладкою цегляної шахти/димохода (условно, поклав метр кладки димохода заклав і зафіксував трубу і т.д.)? - простір між керамічної трубою і димоходом можна залишити пустим чи бажано все таки заповнити, якщо так то чим краще? - Труба від котла повинна йти на 90 градусів у верх і на певній відстані на 90 градусів заходити в димохід чи краще від котла на 45 градусів до димохода, прямою трубою в димохід і в трубу зайти на 90 градусів? - котел буде твердотопливний (длительного горения) по висоті вони є різні 1.30 - 2 метри (ще не знаю який в мене буде), на якій висоті зайти трубою від котла в димохід (читав що не менше як 50см має бути від котла, відповідно якщо котел 2м то на 2.50)? - Шахта має починатися від труби - 25см ревізія лючок, чи від 0.00 незалежно на які відстанні входить труба? Фото додаю, дякую К дымоходу нужно отнестись с "уважением", монтаж делать добротно и с качественного материала,что бы потом Ваша экономия не стала проблемой. Где то на одной из веток по этой же теме,человек писал сравнение готового комплекта дымохода(Шидель) и у соседа,который бегал,искал с "языком на плечах" хороший материал. В итоге,разница оказалась между Шидель и собранного из чего попало,составила 20%. Так он ещё не посчитал время и горючее которое потратил при поиске материала. Суть этого примера как он пишет,что лучше "потерять" 1000у.е.на хороший дымоход сегодня при стройке, чем потом с проблемой дымохода и потерей "крыши"в 20000у.е. и с доп-проблемами. Если у Вас котел длительного горения,то Вы конечно будете ставить его в эконом-режим,тогда нужно утепление трубы и желательно керамическую,что бы хорошо работал дымоход с котлом. На фото пример; котел с подключением к дымоходу с внутренней подачей воздуха к потребителю (нижнему подключению котла) 1 Посилання на коментар Поділитися на інших сайтах More sharing options...
SON Опубліковано: 20 вересня 2019 Поділитись Опубліковано: 20 вересня 2019 На фото пример; котел с подключением к дымоходу с внутренней подачей воздуха к потребителю (нижнему подключению котла) А то, что канал подачи воздуха будет выхолаживаться зимой до состояния ниже точки росы, продаваны не озвучивают, или такая мысль вовсе не посещает их светлые головы? 1 Посилання на коментар Поділитися на інших сайтах More sharing options...
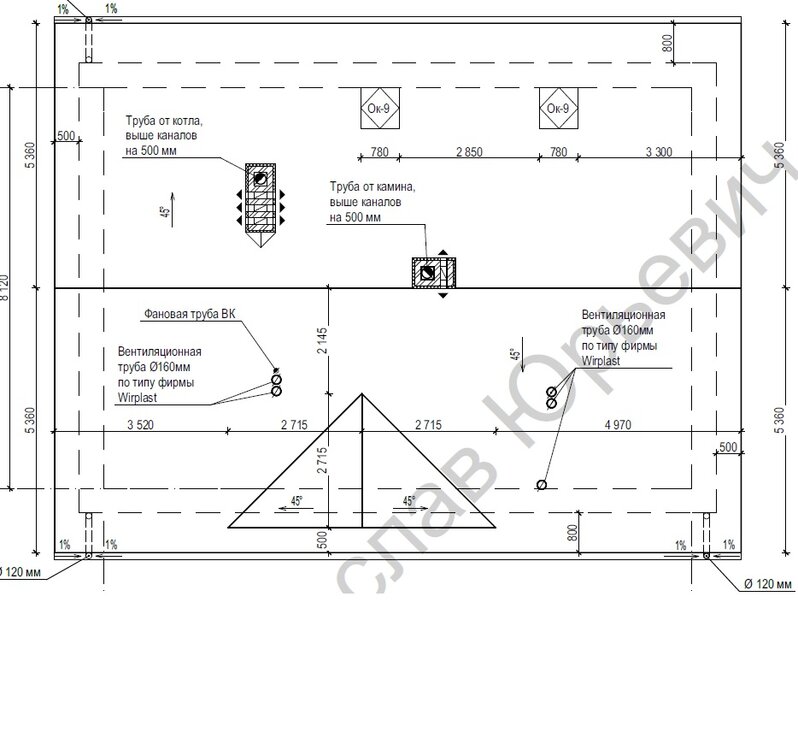
Yaroslav-x777 Опубліковано: 20 вересня 2019 Автор Поділитись Опубліковано: 20 вересня 2019 Суть этого примера как он пишет,что лучше "потерять" 1000у.е.на хороший дымоход сегодня при стройке, чем потом с проблемой дымохода и потерей "крыши"в 20000у.е. и с доп-проблемами. Если у Вас котел длительного горения,то Вы конечно будете ставить его в эконом-режим,тогда нужно утепление трубы и желательно керамическую,что бы хорошо работал дымоход с котлом. На фото пример; котел с подключением к дымоходу с внутренней подачей воздуха к потребителю (нижнему подключению котла) З цим я згідний, що краще на етапі будівництва зробити нехай трохи дорожче, але якісно, ох потім ці переделки Є така приказка " Скупий платить двічі" А як вам такий варіант керамічну трубу обмотати ну скажімо якоюсь вогнетривкою мінеральною ватою 50 мм, а остальні пустоти засипати піском? Хотя не буде що і засипати шахта 270х270, а труба 160 + вата по 50 з двох сторін = 260мм Добавлено через 23 минуты З димоходом котла майже зрозуміло, а як бути з димоходом каміна? Те що буде цегляний димохід без труби (1поверх з шамотної цегли) з гарно затертими швами, швабровка наче називається і на вогнетривкій суміші це ясно, знову залишаються ті самі питання що на якому рівні має бути: - Отвір чи вхід в димохід? (Десь читав що на висоті 1.80 - 2 метра від нуля)? - Шахту на якому рівні починати мурувати? - конденсатосборник я так розумію що не потрібний для цегляного димаря якщо труб немає? - Ревізія/чистка також не зрозуміло якщо потрібна то де? Повторюсь камін буде класичний відкритий, цегляна шахта димохода також буде як і для ТТ котла 270х270 Посилання на коментар Поділитися на інших сайтах More sharing options...
Yaroslav-x777 Опубліковано: 21 вересня 2019 Автор Поділитись Опубліковано: 21 вересня 2019 Така труба vents-shop.com.ua/ventilyacionnye-koroba/plastikovye-vozduhovody/kruglyy/ в діаметрі 150 підійде для вентеляційних каналів с/у і витяжки кухні, якщо закласти в цегляну перегородку і вийти на дах в чердаку утепливши мін ватою? Посилання на коментар Поділитися на інших сайтах More sharing options...
SON Опубліковано: 21 вересня 2019 Поділитись Опубліковано: 21 вересня 2019 А як вам такий варіант керамічну трубу обмотати ну скажімо якоюсь вогнетривкою мінеральною ватою 50 мм, а остальні пустоти засипати піском? Это аналог Шиделевского конструктора. Они делают таксать универсальный набор на все случаи жизни. Вариант с утеплением гильзы хорош для каркасного (деревянного) дома, где дохрена сгораемых конструкций, в т. ч. и сами стены/простенки, и вопрос пожарной безопасности стоит не на последнем месте. Также годится если дымоход расположен в наружной стене или вообще стоит отдельно на улице. При засыпке/заливке зазора имеем дополнительный съем тепла с дымохода, которое остается в доме, а не вылетает в трубу. - Отвір чи вхід в димохід? (Десь читав що на висоті 1.80 - 2 метра від нуля)? - Шахту на якому рівні починати мурувати? Если нет окончательного решения по камину, можно начать канал на уровне 80-100 см от пола. Потом продолбить дырку в канал на нужной высоте по-моему проблемы особой нет. Можно обсудить этот момент заранее с тем, кто будет делать камин. Тогда будет понимание требований к дымоходу, и вопрос по высотам/врезкам решится на этапе возведения стен. - конденсатосборник я так розумію що не потрібний для цегляного димаря якщо труб немає? У Вас дымоходы во внутренних стенах. Если сложите из кирпича, ждать конденсат будете долго. Если вообще дождетесь. Повторюсь камін буде класичний відкритий, цегляна шахта димохода також буде як і для ТТ котла 270х270 Размер дымохода для открытого камина жестко связан с размерами самого портала. 270*270 это довольно таки большой дымоход. И поговорка, "шо занадто-то не здраво", тут может иметь место. Т.е. нужно начать с размеров топки, тогда вырисуется дымоход и необходимость подвода воздуха с улицы. Добавлено через 3 минуты Така труба в діаметрі 150 підійде для вентеляційних каналів с/у і витяжки кухні, якщо закласти в цегляну перегородку і вийти на дах в чердаку утепливши мін ватою? Зачем Вам пластиковая труба в вентканалах? Есть желание получить конденсат? Сделайте кирпичные каналы до самой кровли, дальше, если нет желания гнать кирпичную шахту над крышей, перейдите на пластик/металл, ессно утепленный. Ежли созреете на третью шахту, подскажу как лучше сделать ее "теплой", и шоб не шибко отличалась по виду от остальных двух, которые будут из клинкерного кирпича. 1 Посилання на коментар Поділитися на інших сайтах More sharing options...
Yaroslav-x777 Опубліковано: 21 вересня 2019 Автор Поділитись Опубліковано: 21 вересня 2019 Размер дымохода для открытого камина жестко связан с размерами самого портала. 270*270 это довольно таки большой дымоход. И поговорка, "шо занадто-то не здраво", тут может иметь место. Т.е. нужно начать с размеров топки, тогда вырисуется дымоход и необходимость подвода воздуха с улицы. Виходячи з цієї таблиці Элементы камина Площать помещения, м2 12 15 20 25 30 40 Ширина портала 50 60 70 80 90 100 Высота портала 42 49 56 63 70 77 Глубина топливника 30 32 35 38 40 42 Высота задней стенки топливника 36 36 36 36 36 36 Ширина задней стенки топливника 30 40 45 50 60 70 Высота дымосборника 57 60 63 66 70 80 Сечение дымохода с шероховатыми стенками 14х27 14х27 27х27 27х27 27х40 27х40 Сечение дымохода с гладкими стенками 14х24 14х27 14х27 27х27 27х27 27х27 fireplace.su/kakimi-dolzhny-byt-razmery-kamina.html?fbclid=IwAR2R_dZSPrkXZk1lC20kb0lPRLMesKj2oH2Te00Imk00Fa9rzWxJds6RhDQ а в мене на 25м.кв. шаха має бути все таки 270х270 що скажете? Добавлено через 2 минуты Это аналог Шиделевского конструктора. Они делают таксать универсальный набор на все случаи жизни. Вариант с утеплением гильзы хорош для каркасного (деревянного) дома, где дохрена сгораемых конструкций, в т. ч. и сами стены/простенки, и вопрос пожарной безопасности стоит не на последнем месте. Также годится если дымоход расположен в наружной стене или вообще стоит отдельно на улице. При засыпке/заливке зазора имеем дополнительный съем тепла с дымохода, которое остается в доме, а не вылетает в трубу. Зрозумів, зазор кругом труби засиплю піском, швидко, дешево і надійно Добавлено через 4 минуты Если нет окончательного решения по камину, можно начать канал на уровне 80-100 см от пола. Потом продолбить дырку в канал на нужной высоте по-моему проблемы особой нет. Можно обсудить этот момент заранее с тем, кто будет делать камин. Тогда будет понимание требований к дымоходу, и вопрос по высотам/врезкам решится на этапе возведения стен. Так і зроблю, вижену з перестінком 80см від землі, а дальше шахтою. Рішення по каміну ще не має, а перестінки уже буквально на днях потрібно зводити ну і відповідно димохід. Посилання на коментар Поділитися на інших сайтах More sharing options...
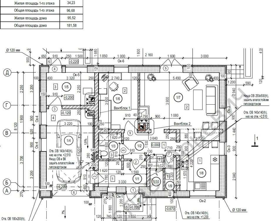
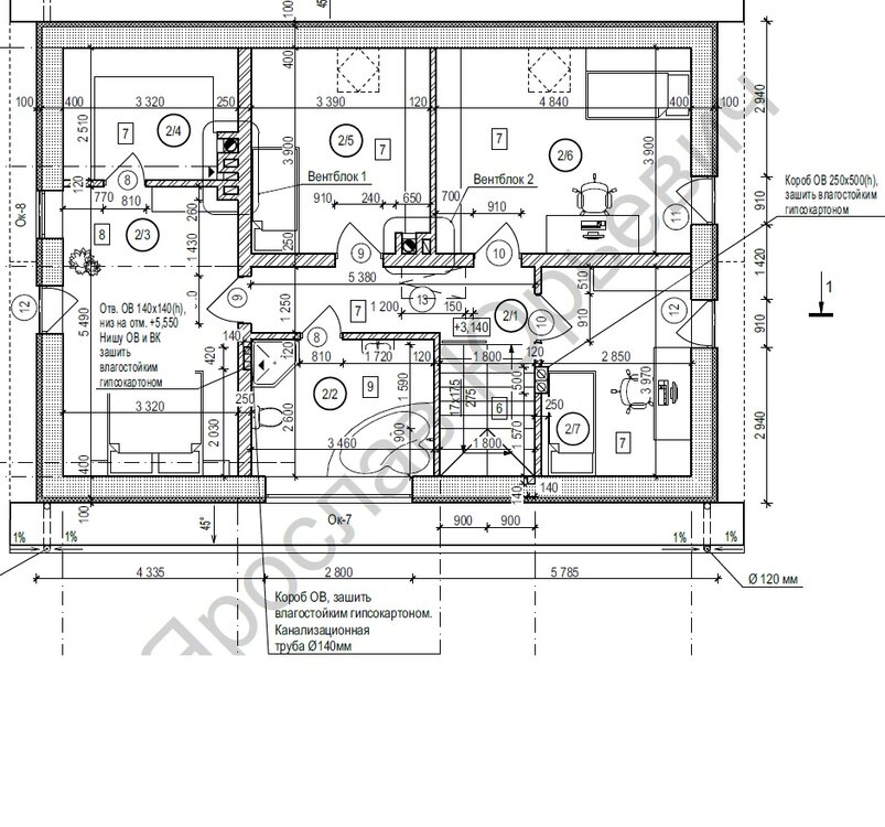
Yaroslav-x777 Опубліковано: 21 вересня 2019 Автор Поділитись Опубліковано: 21 вересня 2019 Зачем Вам пластиковая труба в вентканалах? Есть желание получить конденсат? Сделайте кирпичные каналы до самой кровли, дальше, если нет желания гнать кирпичную шахту над крышей, перейдите на пластик/металл, ессно утепленный. Великого бажання отримати конденсату немає По проекту не виходить зробити цегляний канал до кровлі (виділив на фото), на 1 поверсі перегородка 250мм, на 2 пов. в пів кирпича 120мм., як бути? може це в проекті помилка на 2 також 250мм має бути перестінок Посилання на коментар Поділитися на інших сайтах More sharing options...
Yaroslav-x777 Опубліковано: 21 вересня 2019 Автор Поділитись Опубліковано: 21 вересня 2019 - Ревізія/чистка також не зрозуміло якщо потрібна то де? Ще не зрозуміло Посилання на коментар Поділитися на інших сайтах More sharing options...
SON Опубліковано: 21 вересня 2019 Поділитись Опубліковано: 21 вересня 2019 По проекту не виходить зробити цегляний канал до кровлі (виділив на фото), на 1 поверсі перегородка 250мм, на 2 пов. в пів кирпича 120мм., як бути? може це в проекті помилка на 2 також 250мм має бути перестінок В проекте на 1 этаже простенок в 1 кирпич. При такой толщине сделать кирпичный канал 140*140 не получится, потому там ниши и забиты пластиковые трубы, и одна сторона канала зашивается гипсокартоном. Если позволяет фундамент можно сделать под каналы выступ стены в 1,5 кирпича, сам простенок остается в 1 кирпич. Можно подумать над вариантом монолитных вентканалов без утолщения простенка, используя пластиковую трубу в качестве съемной опалубки. В этом разе макс. диаметр канала получится 100-110мм, но т.к. газа нет, никто за это дрючить не будет. Виходячи з цієї таблиці Самое интересное, что ни слова о высоте дымохода. Дайте электронку, можно в личку, сброшу pdf файл, там более понятно и без заморочек. Как тут выложить пдф я не знаю. 1 Посилання на коментар Поділитися на інших сайтах More sharing options...
Yaroslav-x777 Опубліковано: 22 вересня 2019 Автор Поділитись Опубліковано: 22 вересня 2019 В проекте на 1 этаже простенок в 1 кирпич. При такой толщине сделать кирпичный канал 140*140 не получится, потому там ниши и забиты пластиковые трубы, и одна сторона канала зашивается гипсокартоном. Если позволяет фундамент можно сделать под каналы выступ стены в 1,5 кирпича, сам простенок остается в 1 кирпич. Можно подумать над вариантом монолитных вентканалов без утолщения простенка, используя пластиковую трубу в качестве съемной опалубки. В этом разе макс. диаметр канала получится 100-110мм, но т.к. газа нет, никто за это дрючить не будет. Самое интересное, что ни слова о высоте дымохода. Дайте электронку, можно в личку, сброшу pdf файл, там более понятно и без заморочек. Как тут выложить пдф я не знаю. Висота димохада для каміна така сама як і для котла 9.5 метра E-mail: senych@ukr.net Посилання на коментар Поділитися на інших сайтах More sharing options...
SON Опубліковано: 23 вересня 2019 Поділитись Опубліковано: 23 вересня 2019 Отправил. ...... 1 Посилання на коментар Поділитися на інших сайтах More sharing options...
Рекомендовані повідомлення
Створіть акаунт або увійдіть у нього для коментування
Ви маєте бути користувачем, щоб залишити коментар
Створити акаунт
Зареєструйтеся для отримання акаунта. Це просто!
Зареєструвати акаунтУвійти
Вже зареєстровані? Увійдіть тут.
Увійти зараз