igor_d70 Опубліковано: 21 вересня 2019 Поділитись Опубліковано: 21 вересня 2019 В общем я хотел для резервного отопления сделать в доме небольшую печь встроенную в систему воздушного отопления. Отсюда возникла идея воздушного контура в печи, правильнее даже сказать воздушно рубашки. Схематически это выглядит как облицовка печи вторым слоем кирпича с воздушным зазором. Но несколько приглашенных печников сказали одно и тоже - такая конструкция греть не будет. Вернее они не гарантируют что она будет греть так как никогда такого не делали. Для меня не понятно почему они так говорят ведь собственно печь никак не изменяется, просто нагретый на ее стенках воздух централизовано отводится и распределяется Вот и решил узнать что думают о этому поводу форумные специалисты. PS В принципе я понимаю что такая конструкция в общем повторяет облицовку каминных топок. И даже наверно буду делать именно так если не получу каких то внятных пояснений по интересующему вопросу. Просто у меня некоторое предубеждение против железных/чугунных топок. Мне кажется что металл от жара перегревается и будет перекаливать воздух в контуре с неприятными органолептиескими последствиями (специфический запах, сухость слизистых и пр) Посилання на коментар Поділитися на інших сайтах More sharing options...
vovova Опубліковано: 22 вересня 2019 Поділитись Опубліковано: 22 вересня 2019 Небольшая печь и воздушное отопление - это взаимоисключающие понятия. Правильно Вам печники говорят. В чугунном камине температура теплосъемной поверхности на несколько сот градусов больше и толщина стенки меньше и теплопроводность в сотню раз больше. Вот и считайте. Посилання на коментар Поділитися на інших сайтах More sharing options...
igor_d70 Опубліковано: 22 вересня 2019 Автор Поділитись Опубліковано: 22 вересня 2019 Небольшая печь и воздушное отопление - это взаимоисключающие понятия. Правильно Вам печники говорят. В чугунном камине температура теплосъемной поверхности на несколько сот градусов больше и толщина стенки меньше и теплопроводность в сотню раз больше. Вот и считайте. Но ведь такая печь без воздушного контура никаких возражений ни у кого не вызывает. Ведь я просто скопировал стандартный проект. А насчет топки так это меня и смущает, слишком горячая поверхность будет "пережигать" воздух Одним из аргументов в пользу кирпичной топки является как раз более мягкий режим нагрева воздуха Посилання на коментар Поділитися на інших сайтах More sharing options...
vovova Опубліковано: 22 вересня 2019 Поділитись Опубліковано: 22 вересня 2019 Что значит "пережигать" воздух? Где Вы это нахватались? Пережигаться может только пыль в воздухе, которая садиться на раскалённую поверхность. Посмотрите на тепловентиляторы. Там спираль покруче накаляется. . Печь приятней по простой причине: низкотемпературное инфракрасное излучение. А чтобы заменить его воздушным подогревом, не потеряв приятные ощущения, надо быть гениальным инженером. Это как зимнее солнце через стекло автомобиля приятно ласкает лицо. И никакая дуйка автоотопителя не заменит это ощущение. 1 Посилання на коментар Поділитися на інших сайтах More sharing options...
igor_d70 Опубліковано: 22 вересня 2019 Автор Поділитись Опубліковано: 22 вересня 2019 Что значит "пережигать" воздух? Где Вы это нахватались? Пережигаться может только пыль в воздухе, которая садиться на раскалённую поверхность. Посмотрите на тепловентиляторы. Там спираль покруче накаляется. . . Я это и имею ввиду, я далек от мысли что воздух в доме будет такой же чистоты как в операционной. У тепловентиляторов своя специфика, они используются в экстренных случаях когда не до комфорта, было бы тепло. Печь приятней по простой причине: низкотемпературное инфракрасное излучение. А чтобы заменить его воздушным подогревом, не потеряв приятные ощущения, надо быть гениальным инженером. Это как зимнее солнце через стекло автомобиля приятно ласкает лицо. И никакая дуйка автоотопителя не заменит это ощущение. Возможно, не спорю. Но меня интересует теплопродукция. От топки идут два пути потери тепла 1 - в помещение через стенки, 2 - наружу через дымоход. Я не вижу причин для того что бы появление воздушной рубашки вокруг печи увеличило расход тепла через дымоход. Посилання на коментар Поділитися на інших сайтах More sharing options...
vovova Опубліковано: 23 вересня 2019 Поділитись Опубліковано: 23 вересня 2019 Возможно, не спорю. Но меня интересует теплопродукция. От топки идут два пути потери тепла 1 - в помещение через стенки, 2 - наружу через дымоход. Я не вижу причин для того что бы появление воздушной рубашки вокруг печи увеличило расход тепла через дымоход. Я понял Вас. Давайте на пальцах объясню. Допустим: печь имеет 3квадрата обогреваемых поверхностей, которые нагреваются до 70 градусов. По грубым подсчётам только излучением она отдаёт тепло мощностью 2.5кВт. А вот, если мы хотим этоже тепло чисто на воздух пересчитать, то нам понадобится за час прогнать кубов 300, что бы снять тоже тепло. Если мы не сможем этого сделать, то рубашка будет работать, как теплоизолятор. И лишнее тепло будет улетать в трубу. Цифры приблизительные, но порядок такой же. Точнее можете рассчитать, используя формулы количества тепла, прилагая массы и теплоемкость воздуха. 2 Посилання на коментар Поділитися на інших сайтах More sharing options...
igor_d70 Опубліковано: 23 вересня 2019 Автор Поділитись Опубліковано: 23 вересня 2019 Угу Теперь понял. Спасибо Посилання на коментар Поділитися на інших сайтах More sharing options...
igor_d70 Опубліковано: 27 вересня 2019 Автор Поділитись Опубліковано: 27 вересня 2019 А никто не может подсказать какова максимальная температура воздуха прошедшего вокруг металлической топки? Посилання на коментар Поділитися на інших сайтах More sharing options...
normal Опубліковано: 27 вересня 2019 Поділитись Опубліковано: 27 вересня 2019 Она зависит от многих факторов, вот примерно 1 Посилання на коментар Поділитися на інших сайтах More sharing options...
termOS Опубліковано: 20 жовтня 2019 Поділитись Опубліковано: 20 жовтня 2019 А никто не может подсказать какова максимальная температура воздуха прошедшего вокруг металлической топки? В моей (банной) печи,встроенный (2"нерж.)теплообменник.При включении нагнет.вентилятора(120 м3/ч.) принудительной конвекции воздуха,(при t* в парной 25*-35*)на выходе получаю поток t*=210*-215*C А насчет топки так это меня и смущает, слишком горячая поверхность будет "пережигать" воздух Теплообменник,расположен в камере дожига (где Т* 600*-800*С)При этом,на выхлопе никаких посторонних запахов нет. 1 Посилання на коментар Поділитися на інших сайтах More sharing options...
termOS Опубліковано: 17 листопада 2019 Поділитись Опубліковано: 17 листопада 2019 Печь приятней по простой причине: низкотемпературное инфракрасное излучение. А чтобы заменить его воздушным подогревом, не потеряв приятные ощущения, надо быть гениальным инженером. Это как зимнее солнце через стекло автомобиля приятно ласкает лицо. И никакая дуйка автоотопителя не заменит это ощущение. Никаких гениальных инженерных решений не нужно.Нужно не заменить ,а конвертировать энергию воздушного Т.П./ в ИКИ ограждающих конструкций (желательно теплоёмких) Посилання на коментар Поділитися на інших сайтах More sharing options...
igor_d70 Опубліковано: 17 листопада 2019 Автор Поділитись Опубліковано: 17 листопада 2019 Никаких гениальных инженерных решений не нужно.Нужно не заменить ,а конвертировать энергию воздушного Т.П./ в ИКИ ограждающих конструкций (желательно теплоёмких) А можно подробнее что вы имеете ввиду? Посилання на коментар Поділитися на інших сайтах More sharing options...
termOS Опубліковано: 18 листопада 2019 Поділитись Опубліковано: 18 листопада 2019 А можно подробнее что вы имеете ввиду? К примеру- гипокауст.(это не про Вашу печь) Существует много конструкций гипокауста, которые объединяет общий принцип – продукты горения и нагреваемый воздух разделены теплоаккумулирующей перегородкой. Подробнее - гуглите. 1 Посилання на коментар Поділитися на інших сайтах More sharing options...
vovova Опубліковано: 18 листопада 2019 Поділитись Опубліковано: 18 листопада 2019 Никаких гениальных инженерных решений не нужно.Нужно не заменить ,а конвертировать энергию воздушного Т.П./ в ИКИ ограждающих конструкций (желательно теплоёмких) ТСу необходимо наоборот - имея нагретую печь, передать тепло по воздуху в отдаленные помещения. Посилання на коментар Поділитися на інших сайтах More sharing options...
termOS Опубліковано: 18 листопада 2019 Поділитись Опубліковано: 18 листопада 2019 ТСу необходимо наоборот - имея нагретую печь... У ТСа, вообще-то, пока нет никакой печи... Из первого поста: В общем я хотел для резервного отопления сделать в доме небольшую печь встроенную в систему воздушного отопления. ..., передать тепло по воздуху в отдаленные помещения. Может,я не внимательно читал, но где у ТСа про ...помещения,...объёмы, етс? Добавлено через 5 минут Небольшая печь и воздушное отопление - это взаимоисключающие понятия. Небольшая печь-это какая? И почему в.о.- не совместимо с ней? 1 Посилання на коментар Поділитися на інших сайтах More sharing options...
vovova Опубліковано: 18 листопада 2019 Поділитись Опубліковано: 18 листопада 2019 У ТСа, вообще-то, пока нет никакой печи... Может,я не внимательно читал, но где у ТСа про ...помещения,...объёмы, етс? Небольшая печь-это какая? А давайте у него спросим. igor_d70, скажите, какой размер печи вы планировали, и какие помещения планировали ей отопить? Как утеплены эти помещения? Какова площадь. Может Вам теплопотери уже известны, или мощность отопления уже прикинули?... 1 Посилання на коментар Поділитися на інших сайтах More sharing options...
igor_d70 Опубліковано: 18 листопада 2019 Автор Поділитись Опубліковано: 18 листопада 2019 Дом 80 квадратов из газоблока d400 40 см, потолок 15 см минеральной ваты, окна двухкамерный стеклопакет с энергостеклом Теплопотери предположительные считал, но сейчас цифры же не помню, рассчитывал где то кВт на 11 Есть конечно некоторые особенности строения, но не думаю что они сильно повлияют. Место под печь зарезервировано метр на метр, в центре дома. Задумывалось не как постоянное отопление, а как резерв максимум на несколько дней на случай перебоев с электрикой 1 Посилання на коментар Поділитися на інших сайтах More sharing options...
termOS Опубліковано: 19 листопада 2019 Поділитись Опубліковано: 19 листопада 2019 Дом 80 квадратов из газоблока d400 40 см, потолок 15 см минеральной ваты, окна двухкамерный стеклопакет с энергостеклом Очень скудная инфа. для объективного расчёта... Имхо- 150 мм.минваты (если холодный чердак) маловато будет. Место под печь зарезервировано метр на метр, в центре дома. Задумывалось не как постоянное отопление, а как резерв максимум на несколько дней на случай перебоев с электрикой При такой задумке,К.П. сооружают в комплексе с внутренними стенами /дым. каналами (из кирпича) В Вашем случае, (как полумера)-это М.П. типа булерьян,или Rocket stove К.П. с кирпичной рубашкой,не вариант- по причинам, указанным VOVOVAном. Есть,конечно вариант и с К.П.., но это очень "заморочно" 1 Посилання на коментар Поділитися на інших сайтах More sharing options...
igor_d70 Опубліковано: 3 грудня 2019 Автор Поділитись Опубліковано: 3 грудня 2019 В общем прикидочно посчитал я расход воздуха из расчета 8кВт теплопродукции и разницы температуры 50 град (для кирпичной кладки) Получилось около 600 куб м/ч Освежил в памяти расход канальников аналогичной мощности - где-то в два раза больше (надеюсь это максимум в характеристиках указывают бо если будет так дуть из решеток это капец) Посчитал скорость на решетках при таком расходе (600) - 0.4 м/с, фактически норма, чуть больше В общем я так понимаю что кирпичная печь будет работать как отопитель Посилання на коментар Поділитися на інших сайтах More sharing options...
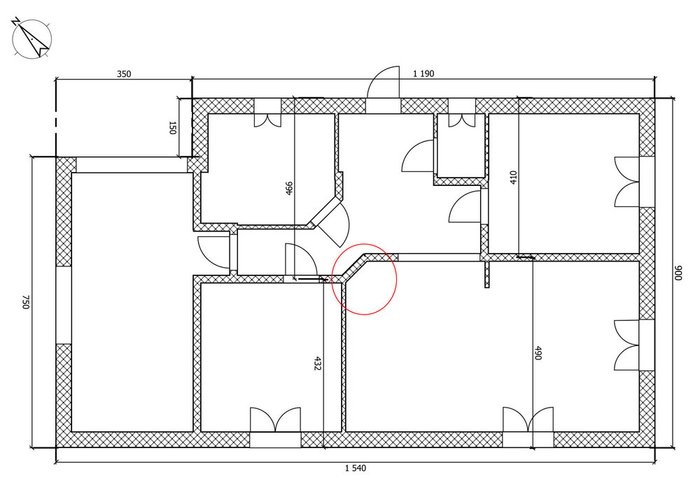
вогнистый владимир Опубліковано: 3 грудня 2019 Поділитись Опубліковано: 3 грудня 2019 При такой задумке,К.П. сооружают в комплексе с внутренними стенами /дым. каналами (из кирпича) Верно. В общем я так понимаю что кирпичная печь будет работать как отопитель Планировку - дайте. Посилання на коментар Поділитися на інших сайтах More sharing options...
igor_d70 Опубліковано: 3 грудня 2019 Автор Поділитись Опубліковано: 3 грудня 2019 Верно. Планировку - дайте. Место печки в красном круге Посилання на коментар Поділитися на інших сайтах More sharing options...
вогнистый владимир Опубліковано: 3 грудня 2019 Поділитись Опубліковано: 3 грудня 2019 есто печки в красном круге Нормальная планировка под щиток в простенок . Топка / подовая печь - аля камин./ в холле. 1 Посилання на коментар Поділитися на інших сайтах More sharing options...
igor_d70 Опубліковано: 18 грудня 2019 Автор Поділитись Опубліковано: 18 грудня 2019 Купил все таки чугунную топку Теперь новый вопрос Хотел делать трубу из черного металла 2мм, стандарт который продается как дымоходная, но продавцы в магазине каминов отговаривают. Говорят покупай нержавейку, черная труба и двух сезонов не простоит. А нержавейка у них 0.5мм. Как по мне лучше 2 миллиметра чем половина. Опять в расстройстве Посилання на коментар Поділитися на інших сайтах More sharing options...
normal Опубліковано: 19 грудня 2019 Поділитись Опубліковано: 19 грудня 2019 Черная не дымоходная, она предназначена для подключения топки к дымоходу, т.е. первые несколько метров идут из черной трубы, а в перекрытии, чердаке и над кровлей утепленная нержавейка 1 Посилання на коментар Поділитися на інших сайтах More sharing options...
usanin_n Опубліковано: 22 грудня 2019 Поділитись Опубліковано: 22 грудня 2019 Купил все таки чугунную топку продавцы в магазине каминов отговаривают. Говорят покупай нержавейку, черная труба и двух сезонов не простоит. А нержавейка у них 0.5мм. Какую топку купили? Какой бренд? Какая модель? продавцы в магазине каминов отговаривают Что это за продавцы? Какой магазин по каминам? Посилання на коментар Поділитися на інших сайтах More sharing options...
Рекомендовані повідомлення
Створіть акаунт або увійдіть у нього для коментування
Ви маєте бути користувачем, щоб залишити коментар
Створити акаунт
Зареєструйтеся для отримання акаунта. Це просто!
Зареєструвати акаунтУвійти
Вже зареєстровані? Увійдіть тут.
Увійти зараз