carolgs Опубліковано: 16 червня 2020 Поділитись Опубліковано: 16 червня 2020 Шановна будівельна спільното! Прошу вашої поради. Підійшли до етапу плит перекриття. Проект у нас є, але, наскільки я заглибилась у тему, то мені здається, що розкладка плит там якась дивна. Впадають в око такі моменти: 1. Опирання на три сторони, хоча плити - ПК. 2. Плита перекриває повністю ганок і лягає на несучі стіни. 3. Незрозумілий вузол опирання в зоні сходів. Яким я бачу вирішення цих проблем: 1. Зменшити ширину плити, щоб уникнути опирання на поздовжню сторону. 2. Взяти плити інших розмірів плюс залити монолітну ділянку. 3. Покласти на дві несучі внутрішні стіни двутавр або швеллер і сперти на нього плити. Такі варіанти можливі? Посилання на коментар Поділитися на інших сайтах More sharing options...
Drosselbeere Опубліковано: 16 червня 2020 Поділитись Опубліковано: 16 червня 2020 Підійшли до етапу плит перекриття. Проект у нас є, але, наскільки я заглибилась у тему, то мені здається, що розкладка плит там якась дивна. ИМХО схему перекрытия делал или студент или человек вообще далекий от работы пустотных плит перекрытий. вы можете выложить план 1 и 2 этажа, только лучшего качества, помогу с раскладкой )))) 2 Посилання на коментар Поділитися на інших сайтах More sharing options...
tansss Опубліковано: 16 червня 2020 Поділитись Опубліковано: 16 червня 2020 Нужно строить СТРОГО ПО ПРОЕКТУ!!!!! Так здесь модно заявлять??? А вот не спроси ТС... как бы оно - по проекту!? Посилання на коментар Поділитися на інших сайтах More sharing options...
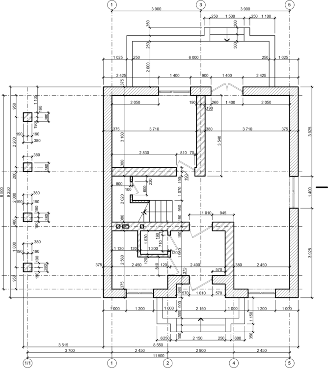
carolgs Опубліковано: 16 червня 2020 Автор Поділитись Опубліковано: 16 червня 2020 Викладаю плани, сподіваюсь, що більш якісні. Була би дуже вдячна. Посилання на коментар Поділитися на інших сайтах More sharing options...
carolgs Опубліковано: 16 червня 2020 Автор Поділитись Опубліковано: 16 червня 2020 Нужно строить СТРОГО ПО ПРОЕКТУ!!!!! Так здесь модно заявлять??? А вот не спроси ТС... как бы оно - по проекту!? Та я й сама бачу, що не те щось. А архітектор зник ще торік... Звернутись до нього не можу. Посилання на коментар Поділитися на інших сайтах More sharing options...
tansss Опубліковано: 16 червня 2020 Поділитись Опубліковано: 16 червня 2020 помогу с раскладкой )))) УУУУУУУУУ-УХ! С удовольствием посмотрю на раскладку... Или может там и долить из ригелей кое что придётся!? Посилання на коментар Поділитися на інших сайтах More sharing options...
carolgs Опубліковано: 16 червня 2020 Автор Поділитись Опубліковано: 16 червня 2020 Якось я не так зберегла картинки. Зараз інакше спробую. Посилання на коментар Поділитися на інших сайтах More sharing options...
carolgs Опубліковано: 16 червня 2020 Автор Поділитись Опубліковано: 16 червня 2020 А от і веселі картинки Посилання на коментар Поділитися на інших сайтах More sharing options...
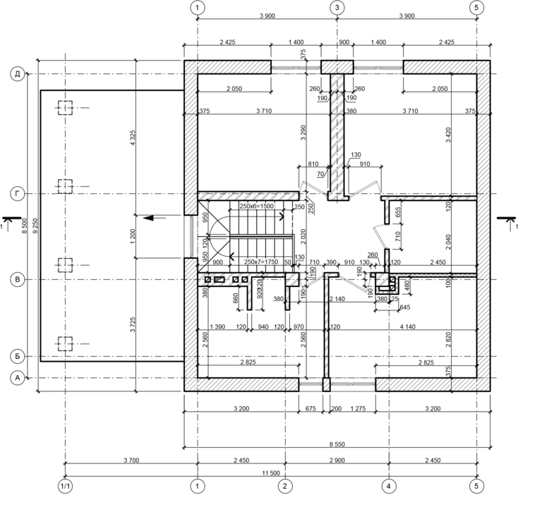
Drosselbeere Опубліковано: 16 червня 2020 Поділитись Опубліковано: 16 червня 2020 А от і веселі картинки Выложите план или схему армапояса. Идеально бы увидеть схему фундамента 1 Посилання на коментар Поділитися на інших сайтах More sharing options...
carolgs Опубліковано: 16 червня 2020 Автор Поділитись Опубліковано: 16 червня 2020 (змінено) Вот схема армопояса. Конструктивно - 4 нитки арматуры Ф12, углы связаны правильно, по схемам. Высота - 200 мм, толщина - 235 мм по внешнему контуру, 380 мм - по внутреннему. Схемы фундамента нет. Есть только разрез, но мы немного отошли от проекта. В итоге получилась утепленная ЭППС (4см) лента в земле шириной 46 см и высотой 90 см на песчано-щебневой подушке (10+10 см). Армировалась 6-ю нитками арматуры Ф12 (три снизу, три сверху). Дальше - монолитный цоколь шириной 40 см и высотой 45 см. Армировался 4-мя нитками арматуры Ф10. Змінено 16 червня 2020 користувачем carolgs Посилання на коментар Поділитися на інших сайтах More sharing options...
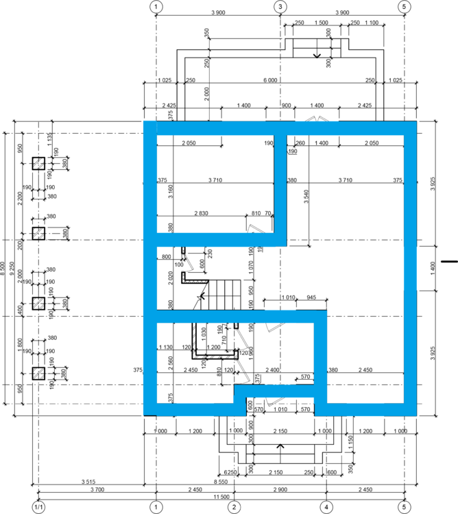
Drosselbeere Опубліковано: 16 червня 2020 Поділитись Опубліковано: 16 червня 2020 Схемы фундамента нет. Есть только разрез, но мы немного отошли от проекта. печально. а вот с монолитным поясом и вообще с перекрытием есть два проблемных места 1 Посилання на коментар Поділитися на інших сайтах More sharing options...
carolgs Опубліковано: 16 червня 2020 Автор Поділитись Опубліковано: 16 червня 2020 (змінено) Я думала над лестничным пролетом пустить какую-то железную балку (швеллер), чтобы в нее можно было вложить концы плит. А крыльцо в любом случае доливать монолитом придется. Вот только не пойму, как именно. Поскольку на вентканалы опирать плиты нельзя, то в этой части только продольно класть нужно. Тогда там полноценно лишь одна плита ложится, можно максимальную ширину взять - 1,5 м. А остальной кусок весь замонолитить. Или маленькую плиту можно положить одним концом на крыльцо? Но там полного опирания не будет. Подозреваю, что нельзя так делать. Да и плит такой ширины нет, разве что индивидуально заказывать. Змінено 16 червня 2020 користувачем carolgs Посилання на коментар Поділитися на інших сайтах More sharing options...
Drosselbeere Опубліковано: 16 червня 2020 Поділитись Опубліковано: 16 червня 2020 Я думала над лестничным пролетом пустить какую-то железную балку (швеллер), чтобы в нее можно было вложить концы плит. А крыльцо в любом случае доливать монолитом придется. Вот только не пойму, как именно. Поскольку на вентканалы опирать плиты нельзя, то в этой части только продольно класть нужно. Тогда там полноценно лишь одна плита ложится, можно максимальную ширину взять - 1,5 м. А остальной кусок весь замонолитить. Или маленькую плиту можно положить одним концом на крыльцо? Но там полного опирания не будет. Подозреваю, что нельзя так делать. Да и плит такой ширины нет, разве что индивидуально заказывать. со швелером вы правильно все думаете, но там надо проверить что бы мон пояс его нес, что касаеться остального смотрите схему. растояния между плитами 50-70 мм можно заполнить просто бетоном без армирования, будет своего рода шпонка, МД 160-180 мм достаточно сделать один каркас плоский например из 12А400 продольной и конечно вертикальных из 8А400 шаг например 200 мм. Плиты практически все не стандарные согласно типовых серий, но на сегодня это не проблема, как правило все равно все делают под заказ, а если же использовать плиты ПБ то у них модуль(градация) 100 мм по длине. единственно рекомендую проверить размеры помещений, что бы не попасть с опирание плит. ПС. расмотрите монолитное переркрытие, пролеты у вас не большие ))))схема плит Model (1).pdf 1 Посилання на коментар Поділитися на інших сайтах More sharing options...
carolgs Опубліковано: 16 червня 2020 Автор Поділитись Опубліковано: 16 червня 2020 Швеллер, получается, опирается на то место, где дверной проем. Не опасно? А если его чуть дальше положить, и не нужно будет тогда поперечно плиту докладывать? Получается, что опирание плит на вентканалы приходится. Не рекомендуют же? Посилання на коментар Поділитися на інших сайтах More sharing options...
Drosselbeere Опубліковано: 16 червня 2020 Поділитись Опубліковано: 16 червня 2020 Швеллер, получается, опирается на то место, где дверной проем. Не опасно? надо проверить расчетом да и проем можно всегда усилить или место опирания А если его чуть дальше положить, и не нужно будет тогда поперечно плиту докладывать? ширина проема 2 м, а это доборные плиты, больше нагрузка на швелер + опирается лестница. Получается, что опирание плит на вентканалы приходится. Не рекомендуют же? у вас вент каналы начинаются или в монолитном поясе или под ним, вообще не вижу проблемы, главное сделать заделку нормально, устройство прохода нанала в уровне плиты. 1 Посилання на коментар Поділитися на інших сайтах More sharing options...
carolgs Опубліковано: 16 червня 2020 Автор Поділитись Опубліковано: 16 червня 2020 Спасибо огромное за помощь и советы! Буду осмысливать информацию. Посилання на коментар Поділитися на інших сайтах More sharing options...
wertexan Опубліковано: 17 червня 2020 Поділитись Опубліковано: 17 червня 2020 Без фундамента (исходим что он продуман) есть возможные ограничения по укладке плит. Я бы некоторых случаях поменял направление опирания. Но тогда что с перемычками? А что с перемычкой над окном, куда должны опереться самые длинные панели? У ЛК раз уж нет балки можно попробовать всунуть панели в швеллер №27. Под швеллер распределяющую плиту и желательно прочие косынки. По несущей швеллера №27 при таких пролетах вполне прокатит. Но если страшно, то можно воткнуть 2 шт сварив их вместе. На другой заодно удобно будет опереть марш. 1 Посилання на коментар Поділитися на інших сайтах More sharing options...
Dendnepr Опубліковано: 17 червня 2020 Поділитись Опубліковано: 17 червня 2020 я понимаю, что армопояс готов? и швеллер под плиты опирать на него? тогда высота помещений будет еще выше и нужно поднимать весь пояс на высоту швеллера? или предлагается "зарубить"швеллер в пояс? хотя перечитал еще раз. "вложить" плиты в пояс. это надо очень аккуратено. както закрепить швеллер к поясу, чтоб не"подвинуть" его при заведении в него плиты. как вариант-именно этот кусок делать монолит. 1 Посилання на коментар Поділитися на інших сайтах More sharing options...
carolgs Опубліковано: 17 червня 2020 Автор Поділитись Опубліковано: 17 червня 2020 А что с перемычкой над окном, куда должны опереться самые длинные панели? Перемычка стандартная из U-блоков (375), армирована 4-мя прутками 12-й арматуры. Зона опирания - на фото видно. Ряд газоблока под перемычкой армирован 8-й арматурой. Посилання на коментар Поділитися на інших сайтах More sharing options...
wertexan Опубліковано: 17 червня 2020 Поділитись Опубліковано: 17 червня 2020 я понимаю, что армопояс готов? и швеллер под плиты опирать на него? тогда высота помещений будет еще выше и нужно поднимать весь пояс на высоту швеллера? или предлагается "зарубить"швеллер в пояс? хотя перечитал еще раз. "вложить" плиты в пояс. это надо очень аккуратено. както закрепить швеллер к поясу, чтоб не"подвинуть" его при заведении в него плиты. как вариант-именно этот кусок делать монолит. Со швеллером я так делал пару раз. Швеллер(а) не снизу а в уровне плит. Удобно если сварить пару швеллеров стенками (можно с зазором) что дополнительно обезопасит от опрокидывания. И тогда на нижнюю полку швеллера можно опереть плиты перекрытия. Есть ограничения по длине плит ибо ширина опирания всего порядка 100мм. Если приварить к опорной распределяющей плите, то и опрокидывания особо не будет и не очень сильно сдвигает (а плиту можно дополнительно заанкерить). В данном случае не опирать её над дверными проемами. Добавлено через 3 минуты Перемычка стандартная из U-блоков (375), армирована 4-мя прутками 12-й арматуры. Зона опирания - на фото видно. Ряд газоблока под перемычкой армирован 8-й арматурой. Блок какой высоты? 1 Посилання на коментар Поділитися на інших сайтах More sharing options...
carolgs Опубліковано: 17 червня 2020 Автор Поділитись Опубліковано: 17 червня 2020 "вложить" плиты в пояс. это надо очень аккуратено. както закрепить швеллер к поясу, чтоб не"подвинуть" его при заведении в него плиты Да, именно вкладывать хотела. Армопояс залит, швеллер и плиты сверху него. Это вообще практикуется? Есть же какие-то решения для того, чтобы закрепить? Внутренняя несущая 380 мм. На фото еще без армопояса. Посилання на коментар Поділитися на інших сайтах More sharing options...
carolgs Опубліковано: 17 червня 2020 Автор Поділитись Опубліковано: 17 червня 2020 Блок какой высоты? Блок высотой 200 мм. А опорная плита - это как? Посилання на коментар Поділитися на інших сайтах More sharing options...
Dendnepr Опубліковано: 17 червня 2020 Поділитись Опубліковано: 17 червня 2020 Да, именно вкладывать хотела. Армопояс залит, швеллер и плиты сверху него. Это вообще практикуется? Есть же какие-то решения для того, чтобы закрепить? Внутренняя несущая 380 мм. На фото еще без армопояса. да. ранее описали, что это возможно. аккуратно только. и чтоб опирание было побольше. 1 Посилання на коментар Поділитися на інших сайтах More sharing options...
wertexan Опубліковано: 17 червня 2020 Поділитись Опубліковано: 17 червня 2020 По окну хватает несущей без особого запаса. Опорная плита: берете лист металла толщиной 8…10 мм. Вырезаете 2 листа скажем 380х400. Устанавливаете сверху на листы швеллер, привариваете. Желательно ввариваете косынки, Это увеличит жёсткость всей конструкции и распределит нагрузку. Ставите это дело на стены на тонкий слой раствора. Если предусмотрели заранее отверстия в опорных плитах крепите к стенам/армопоясу но так чтобы не мешало панелям. 2 Посилання на коментар Поділитися на інших сайтах More sharing options...
carolgs Опубліковано: 17 червня 2020 Автор Поділитись Опубліковано: 17 червня 2020 можно попробовать всунуть панели в швеллер №27. Под швеллер распределяющую плиту и желательно прочие косынки. По несущей швеллера №27 при таких пролетах вполне прокатит. Но если страшно, то можно воткнуть 2 шт сварив их вместе. На другой заодно удобно будет опереть марш. Я посмотрела - у 27-го швеллера полочки 95 мм снаружи, а внутри и того меньше. Это они стандартные такие? Страшновато как-то. Будет ли там держаться? Посилання на коментар Поділитися на інших сайтах More sharing options...
Рекомендовані повідомлення
Створіть акаунт або увійдіть у нього для коментування
Ви маєте бути користувачем, щоб залишити коментар
Створити акаунт
Зареєструйтеся для отримання акаунта. Це просто!
Зареєструвати акаунтУвійти
Вже зареєстровані? Увійдіть тут.
Увійти зараз