Популярне повідомлення Татьяна5 Опубліковано: 25 липня 2020 Популярне повідомлення Поділитись Опубліковано: 25 липня 2020 Доброе утро, новый домик . Он будет черепашкой - с вальмовой крышей, проект - чуток измененная "Черепашка в Малютянке" от 2015 года (кто помнит). И утро начинается с воды и процесса ее получения , Аквабазис зашел на работы. Дали будэ, планы, размеры, детали и фото как и из чего, а сегодня - просто День Рождения нового дома , с чем меня можно и поздравить 50 Посилання на коментар Поділитися на інших сайтах More sharing options...
Технолог Опубліковано: 25 липня 2020 Поділитись Опубліковано: 25 липня 2020 участок какой-то великий... Посилання на коментар Поділитися на інших сайтах More sharing options...
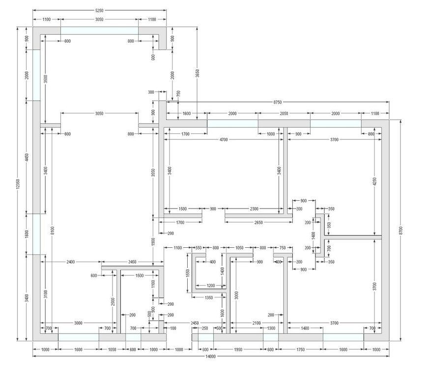
Татьяна5 Опубліковано: 25 липня 2020 Автор Поділитись Опубліковано: 25 липня 2020 8,15 соток, прямоугольник, фасад 28 метров, глубина почти 30. Квадратик 1 Посилання на коментар Поділитися на інших сайтах More sharing options...
batrasvt Опубліковано: 25 липня 2020 Поділитись Опубліковано: 25 липня 2020 8,15 соток, прямоугольник, фасад 28 метров, глубина почти 30. Квадратик[ Обожаю все предыдущие Черепашки С захватом буду следить За новой Черепашкой 4 Посилання на коментар Поділитися на інших сайтах More sharing options...
Сарочка Опубліковано: 26 липня 2020 Поділитись Опубліковано: 26 липня 2020 8,15 соток, прямоугольник, фасад 28 метров, глубина почти 30. Квадратик Прекрасный размер! 1 Посилання на коментар Поділитися на інших сайтах More sharing options...
Татьяна5 Опубліковано: 29 липня 2020 Автор Поділитись Опубліковано: 29 липня 2020 Все по классике - вчера был активный день - копка, вывоз грунта, установка колец приямка скважины (2 шт по 1,5 и оголовок), копка, вывоз грунта и установка колец канализации (2 шурфа по 3 кольца 1,5м, оголовки), подготовка пятна застройки под дом и засыпку песчаной подушки под монолитную плиту фундамента. Глубина котлована около 60 см. Начали в 9, окончили в 21.00. Суммарно переместили 27 камазов грунта и суглинков. Сегодня засыпка речными песком П.С. тема наоборот , пока и без планировки, и без деталей по планам и материалам 11 Посилання на коментар Поділитися на інших сайтах More sharing options...
Татьяна5 Опубліковано: 3 серпня 2020 Автор Поділитись Опубліковано: 3 серпня 2020 Семь 30ти тонников речного песка благополучно ссыпались Добавлено через 1 минуту А потом приехал ДжиСиБи Мелкую кучку на 5 тонн сложил рядом, на первый ряд и армопояса Копнул траншею от скважины до дом Добавлено через 46 секунд И долго и усердно все ровнял и трамбовал 15 Посилання на коментар Поділитися на інших сайтах More sharing options...
tansss Опубліковано: 7 серпня 2020 Поділитись Опубліковано: 7 серпня 2020 Татьяна, поскольку вы используете фермы для черепашек решил поделиться скромным опытом Может приггггадддится, а может и нет! https://www.stroimdom.com.ua/forum/showthread.php?p=5144843#post5144843 2 Посилання на коментар Поділитися на інших сайтах More sharing options...
Татьяна5 Опубліковано: 11 серпня 2020 Автор Поділитись Опубліковано: 11 серпня 2020 Проект Черепашка 2020. 3 отдельные спальни, 1 санузел с ванной и душевой кабиной + ум и унитаз, 1 санузел с ум и унитазом, прихожая, котельная-постирочная, большая гостиная с крытой отапливаемой террасой, кухня-студия (легко становится отдельным помещением) 9 Посилання на коментар Поділитися на інших сайтах More sharing options...
Татьяна5 Опубліковано: 11 серпня 2020 Автор Поділитись Опубліковано: 11 серпня 2020 По идее, завтра заливаемся 10 Посилання на коментар Поділитися на інших сайтах More sharing options...
Татьяна5 Опубліковано: 11 серпня 2020 Автор Поділитись Опубліковано: 11 серпня 2020 Спроектирована и заказана крыша 10 Посилання на коментар Поділитися на інших сайтах More sharing options...
alekssell Опубліковано: 11 серпня 2020 Поділитись Опубліковано: 11 серпня 2020 Проект Черепашка 2020. 3 отдельные спальни, 1 санузел с ванной и душевой кабиной + ум и унитаз, 1 санузел с ум и унитазом, прихожая, котельная-постирочная, большая гостиная с крытой отапливаемой террасой, кухня-студия (легко становится отдельным помещением) Мне нравится, напоминает мою собственную, видно удовлетворяет мои предпочтения в размерах ) 1 Посилання на коментар Поділитися на інших сайтах More sharing options...
Татьяна5 Опубліковано: 12 серпня 2020 Автор Поділитись Опубліковано: 12 серпня 2020 Залились P4B25W6, Ковальская 15 Посилання на коментар Поділитися на інших сайтах More sharing options...
Татьяна5 Опубліковано: 27 серпня 2020 Автор Поділитись Опубліковано: 27 серпня 2020 Фактически окончена коробка, осталось два дня работы на доложить внутренние стены. Замеряли окна. На неделе закажу. Они будут красными. 7 Посилання на коментар Поділитися на інших сайтах More sharing options...
tansss Опубліковано: 27 серпня 2020 Поділитись Опубліковано: 27 серпня 2020 Фактически окончена коробка, осталось два дня работы на доложить внутренние стены. Замеряли окна. На неделе закажу. Они будут красными. Достаточно необычная техника изготовления У-блока... Посилання на коментар Поділитися на інших сайтах More sharing options...
Татьяна5 Опубліковано: 27 серпня 2020 Автор Поділитись Опубліковано: 27 серпня 2020 Достаточно необычная техника изготовления У-блока... Вполне стандартная для дома с утеплением 100 мм и установкой окон заподлецо с гб Посилання на коментар Поділитися на інших сайтах More sharing options...
tansss Опубліковано: 27 серпня 2020 Поділитись Опубліковано: 27 серпня 2020 Вполне стандартная для дома с утеплением 100 мм и установкой окон заподлецо с гб Я не про конструкцию...Показалось!? Что они клееные? Посилання на коментар Поділитися на інших сайтах More sharing options...
Татьяна5 Опубліковано: 27 серпня 2020 Автор Поділитись Опубліковано: 27 серпня 2020 Я не про конструкцию...Показалось!? Что они клееные? Терехова совсем не любите? Клееные. На клей-пену 1 Посилання на коментар Поділитися на інших сайтах More sharing options...
tansss Опубліковано: 27 серпня 2020 Поділитись Опубліковано: 27 серпня 2020 Терехова совсем не любите? Клееные. На клей-пену Терехов тут не причём он же не изображён на 100доллароваой купюре! Мне просто интересно по трудозатратам/организации их изготовления. Купить готовые/выпиливать самому/клеить (если клеить то из стандартных или самопильных элементов). По стоимости - готовые с завода кАнечьно самое простое но и самае да-ра-го-е! А вот пилить VS клеить - интересно!!!??? Посилання на коментар Поділитися на інших сайтах More sharing options...
Татьяна5 Опубліковано: 27 серпня 2020 Автор Поділитись Опубліковано: 27 серпня 2020 Я все время покупала готовые с завода. Пока в этом году не пошел полный трэшак с их качеством. У моих станок с пилами для нарезки ГБ. Режут за 5 секунд хоть 1 см толщины. Изготовление 100 шт = 1 день. Делает один человек. Кстати, на внутренние стены над дверями тоже перешли на такие "опалубки". Гб режется слайсами по 2 см. Если внутренняя стена 200 мм - шикардосно выходит. 2 Посилання на коментар Поділитися на інших сайтах More sharing options...
tansss Опубліковано: 27 серпня 2020 Поділитись Опубліковано: 27 серпня 2020 У моих станок с пилами для нарезки ГБ Ленточный? тады чё сразу не У-шку пилить? Мы пилим цепной с хитрой шиной +/-40 шт день, но цельные. Это важно при вставке утеплителя внутрь... Посилання на коментар Поділитися на інших сайтах More sharing options...
Татьяна5 Опубліковано: 27 серпня 2020 Автор Поділитись Опубліковано: 27 серпня 2020 Ленточный? тады чё сразу не У-шку пилить? Потому, что хочу так [YOUTUBE]watch?v=F0hdtsKVst0[YOUTUBE] Посилання на коментар Поділитися на інших сайтах More sharing options...
tansss Опубліковано: 27 серпня 2020 Поділитись Опубліковано: 27 серпня 2020 Потому, что хочу так АргУмент! Посилання на коментар Поділитися на інших сайтах More sharing options...
Татьяна5 Опубліковано: 27 серпня 2020 Автор Поділитись Опубліковано: 27 серпня 2020 Это важно при вставке утеплителя внутрь... А в чем момент? Посилання на коментар Поділитися на інших сайтах More sharing options...
tansss Опубліковано: 27 серпня 2020 Поділитись Опубліковано: 27 серпня 2020 А в чем момент? Этот "момент" проявляется только на перемычках! Если между наружной стенкой У-шки и бетоном вставить утеплитель то бывает сдвиг этой самой стенки вниз и волосяная трещинка! по линии склеивания. А цельнопильный - держит! Добавлено через 3 минуты Вот если клеить так чтоб нижняя полка была на всю ширину У-шки а стенки - на неё, от это бы сработало! 2 Посилання на коментар Поділитися на інших сайтах More sharing options...
Рекомендовані повідомлення
Створіть акаунт або увійдіть у нього для коментування
Ви маєте бути користувачем, щоб залишити коментар
Створити акаунт
Зареєструйтеся для отримання акаунта. Це просто!
Зареєструвати акаунтУвійти
Вже зареєстровані? Увійдіть тут.
Увійти зараз