Избранная Опубліковано: 1 квітня 2021 Поділитись Опубліковано: 1 квітня 2021 Всем здравствуйте! После долгих раздумий, просмотров, обсуждений - сошлись на 2-х этажном доме и такой планировке. Дом 10600*7200, терраса 10600*2500. Изначально был интересен мансардный этаж, поскольку нашли визуализацию, которая понравилась. Но после долгих чтений форума решено сделать полноценный второй этаж. Рисовать не умею, чтобы сделать визуализацию дома. Будет четырехскатная вальмовая крыша. Газобетон 600*400*200, плотность 400 В чем нужна помощь: 1. Вентиляция в ванной - как и где ее организовать? 2. Первый этаж - внутренняя несущая стена слева от лестницы. Так как там будут сходиться плиты перекрытия - делать ее из 400 или 300? 3. Окно в кухне-гостинной, выходящее на север. С северной стороны у нас планируется сад. Двери там точно не будет. Стоит ли делать его в рост человека? 4. Террасе быть. На западной стороне вдоль всей стены как на фото визуализации. Смущает, что западная сторона. Но, если там будет терраса - не нужно будет дополнительно делать крыльцо. 5. Справа от дома хотим оставить 4 или 5 метров для 2 машин (одна за другой). По времени чаще всего там будет находиться только одна машина. В ближайшее время гараж не планируется. Через пару лет возможно отстроим гараж на 1 авто. Поэтому и не знаем сколько лучше оставить места - 4 или 5 метров между домом и забором (планируем примыкание гаража к передней части забора. 6. Вопрос по ванным комнатам: чтобы закрепить две инсталяции (унитаз и биде) - какая должна быть стена за ними? Были мысли душ и инсталяции поменять местами (на первом этаже), но переживаю, что их можно вырвать со стены 100 мм. Ваши мнения? 7. Есть мысль сделать небольшую кладовую для мелочей, толи внутри, толи со двора. Если будет со двора - будут там жить шины. Соответственно стена между ванной и кладовой будет толще - минимум 200, понятно, что утеплена со стороны кладовой. Вопрос нужно ли заливать фундамент там в уголке (юго-запад) под 200ый газобетон? 8. Второй этаж - несущая стена для постройки крыши. Как лучше сделать? 9. Поскольку передний план дома должен симметрично выглядеть, как поступить с окнами в ванных комнатах? Мы не ходим их сильно уменьшать в размерах. Может ваши мнения будут интересней. 10. Если в кухне-гостинной 2 проветриваемых окна, достаточно ли будет вентиляцию с вытяжки над плитой вывести на задний фасад дома? Я вытяжкой пользуюсь постоянно. Посилання на коментар Поділитися на інших сайтах More sharing options...
vadimv Опубліковано: 2 квітня 2021 Поділитись Опубліковано: 2 квітня 2021 5. Справа от дома хотим оставить 4 или 5 метров для 2 машин (одна за другой). По времени чаще всего там будет находиться только одна машина. В ближайшее время гараж не планируется. Через пару лет возможно отстроим гараж на 1 авто. Поэтому и не знаем сколько лучше оставить места - 4 или 5 метров между домом и забором (планируем примыкание гаража к передней части забора.Нарисуйте гараж на плане участка, из описания не совсем понятно, где вы его собираетесь делать. Посилання на коментар Поділитися на інших сайтах More sharing options...
Избранная Опубліковано: 2 квітня 2021 Автор Поділитись Опубліковано: 2 квітня 2021 Нарисуйте гараж на плане участка, из описания не совсем понятно, где вы его собираетесь делать. нарисовала. справа один-единственный сосед к слову, между забором и домом соседа 2 метра Как можно потом использовать 1 метр между гаражом и забором соседа? Посилання на коментар Поділитися на інших сайтах More sharing options...
vadimv Опубліковано: 2 квітня 2021 Поділитись Опубліковано: 2 квітня 2021 Как можно потом использовать 1 метр между гаражом и забором соседа?Например, малину посадить. Если нужно будет что-то подремонтировать с этого метра на стене гаража - малину можно срезать под корень, чтобы не мешала. Потом отрастет. планируем примыкание гаража к передней части забораКак по мне, так лучше сделать гараж дальше от улицы (как вы нарисовали во втором варианте), а между гаражом и воротами сделать навес. И можно будет две машины загонять - одну в гараж, вторую под навес. 1 Посилання на коментар Поділитися на інших сайтах More sharing options...
HELUZ FAMILY Опубліковано: 7 квітня 2021 Поділитись Опубліковано: 7 квітня 2021 1. Вентиляция в ванной - как и где ее организовать? 2. Первый этаж - внутренняя несущая стена слева от лестницы. Так как там будут сходиться плиты перекрытия - делать ее из 400 или 300? А вы не хотите с прорабом пообщаться, примерно такой дом закончили в прошлом году в Крыжановке. Толковый прораб,он может разложить вам план по коробке, по вашим задумкам исходя из многолетнего опыта и по вент-каналам и по центральной несущей и по другим узлам коробки. Посилання на коментар Поділитися на інших сайтах More sharing options...
Избранная Опубліковано: 8 квітня 2021 Автор Поділитись Опубліковано: 8 квітня 2021 А вы не хотите с прорабом пообщаться, примерно такой дом закончили в прошлом году в Крыжановке. Толковый прораб,он может разложить вам план по коробке, по вашим задумкам исходя из многолетнего опыта и по вент-каналам и по центральной несущей и по другим узлам коробки. Спасибо, если можно сбросьте, пожалуйста, координаты. Посилання на коментар Поділитися на інших сайтах More sharing options...
ontoshko Опубліковано: 8 квітня 2021 Поділитись Опубліковано: 8 квітня 2021 Вам точно потрібен двоповерховий будинок? 10 на 7 мінус сходи, мінус зручність розміщення приміщень. Мінус вартість сходів і зручність їх експлуатації. 2 Посилання на коментар Поділитися на інших сайтах More sharing options...
Музей Опубліковано: 8 квітня 2021 Поділитись Опубліковано: 8 квітня 2021 4. Террасе быть. На западной стороне вдоль всей стены как на фото визуализации. Смущает, что западная сторона. Но, если там будет терраса - не нужно будет дополнительно делать крыльцо. Я бы повернула террасу на север. Это позволит сделать её шире, спрятаться от ослепляющего заходящего солнца и любоваться садом, а не соседским забором. 1 Посилання на коментар Поділитися на інших сайтах More sharing options...
Dendnepr Опубліковано: 9 квітня 2021 Поділитись Опубліковано: 9 квітня 2021 Поддержу. Терасса на улицу, - как-то не то. Посилання на коментар Поділитися на інших сайтах More sharing options...
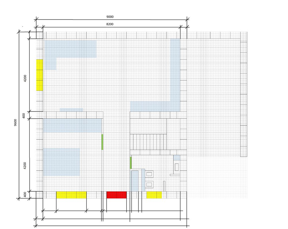
Избранная Опубліковано: 13 квітня 2021 Автор Поділитись Опубліковано: 13 квітня 2021 Вам точно потрібен двоповерховий будинок? 10 на 7 мінус сходи, мінус зручність розміщення приміщень. Мінус вартість сходів і зручність їх експлуатації. сім'я: 2 дорослих, 2 дітей (навчаються в школі, до закінчення ще досить довго). Одноповерхові будинки нам не зовсім подобаються. Малювала, але так, щоб нам було комфортно - малюється тільки 2 кімнати). І кухня в мене там геть погано розташовується. Ми вже мінімум рік перемальовуємо проекти. докладаю останній варіант. але скоріше за все будемо будувати саме такий як в 1 пості. Які саме мінуси Ви бачите в розміщенні приміщень? Про сходи. Ми вирахували, що саме такі розміри і з площадкою - буде самий зручний для нас усіх варіант Посилання на коментар Поділитися на інших сайтах More sharing options...
Избранная Опубліковано: 13 квітня 2021 Автор Поділитись Опубліковано: 13 квітня 2021 Я бы повернула террасу на север. Это позволит сделать её шире, спрятаться от ослепляющего заходящего солнца и любоваться садом, а не соседским забором. Поддержу. Терасса на улицу, - как-то не то. Хотим посадить там деревья перед террасой, возможно так сгладится вечернее солнце. Если террасу перенести на север, то нужно будет делать отдельно крыльцо для входа, что не очень удобно. Тогда имеет смысл перерисовать снова планировку и сделать дом вдоль забора соседа. Была такая планировка, что с террасой на север, но муж не хочет((( Поэтому пришлось перерисовать весь дом. По поводу соседей и езды - там тупик у нас. проезда нет. а вторая сторона от проезда выезжает на другую дорогу (у них улица уже застроена). Посилання на коментар Поділитися на інших сайтах More sharing options...
Избранная Опубліковано: 13 квітня 2021 Автор Поділитись Опубліковано: 13 квітня 2021 На выходных катались и увидели дом, который похож на наш планируемый. Я немного приспустила крышу террасы. И мы думали сделать крышу с коньком, здесь четырехскатная Посилання на коментар Поділитися на інших сайтах More sharing options...
vadimv Опубліковано: 14 квітня 2021 Поділитись Опубліковано: 14 квітня 2021 Была такая планировка, что с террасой на север, но муж не хочет((Судя по картинкам, у вас там даже не северная сторона, а северо-восточная. Как по мне, так это идеальное место для посиделок в прохладной тени дома жарким летним днем. С видом на участок, а не на забор, на солнцепеке. 2 Посилання на коментар Поділитися на інших сайтах More sharing options...
Рекомендовані повідомлення
Створіть акаунт або увійдіть у нього для коментування
Ви маєте бути користувачем, щоб залишити коментар
Створити акаунт
Зареєструйтеся для отримання акаунта. Це просто!
Зареєструвати акаунтУвійти
Вже зареєстровані? Увійдіть тут.
Увійти зараз