i.may Опубліковано: 11 лютого 2024 Поділитись Опубліковано: 11 лютого 2024 57 хвилин тому, Nikolay Cherednichenko сказав: пралка і електрокотел і бойлер в коморі Ок. Можливо скомпанується добре... 57 хвилин тому, Nikolay Cherednichenko сказав: "Перекривається прохід до туалету"-то як? Яке планується перекриття і яка буде розкладка? Посилання на коментар Поділитися на інших сайтах More sharing options...
Nikolay Cherednichenko Опубліковано: 11 лютого 2024 Автор Поділитись Опубліковано: 11 лютого 2024 3 минуты назад, i.may сказал: Ок. Можливо скомпанується добре... Яке планується перекриття і яка буде розкладка? та не буду я його будувати))) я давно вже вибрав собі варіант (вище в темі обговорювали вже) Посилання на коментар Поділитися на інших сайтах More sharing options...
i.may Опубліковано: 11 лютого 2024 Поділитись Опубліковано: 11 лютого 2024 53 хвилини тому, Nikolay Cherednichenko сказав: та не буду я його будувати))) Але ж фантазія має бути викінчена!? Конструкція перекриття незрозуміла... Посилання на коментар Поділитися на інших сайтах More sharing options...
Nikolay Cherednichenko Опубліковано: 11 лютого 2024 Автор Поділитись Опубліковано: 11 лютого 2024 (змінено) 52 минуты назад, i.may сказал: Але ж фантазія має бути викінчена!? Конструкція перекриття незрозуміла... ой, в мене дуже "викінчена" фантазія))) іноді навіть brazzers відпочивають))) Чесно, я то на швидку намалював і не думав на той рахунок взагалі. хай дах буде такий, а балки перекриття можете розставити на власний розсуд))))) Змінено 11 лютого 2024 користувачем Nikolay Cherednichenko Посилання на коментар Поділитися на інших сайтах More sharing options...
i.may Опубліковано: 11 лютого 2024 Поділитись Опубліковано: 11 лютого 2024 7 хвилин тому, Nikolay Cherednichenko сказав: хай дах буде такий Нє, не то. Мені не зрозуміло як покласти балки/плити тощо на несучки. Тобто рішення власне перекриття. Посилання на коментар Поділитися на інших сайтах More sharing options...
Nikolay Cherednichenko Опубліковано: 11 лютого 2024 Автор Поділитись Опубліковано: 11 лютого 2024 13 минут назад, i.may сказал: Нє, не то. Мені не зрозуміло як покласти балки/плити тощо на несучки. Тобто рішення власне перекриття. в неділю ото так мене мучаєте))) так пайдьот?)) Посилання на коментар Поділитися на інших сайтах More sharing options...
i.may Опубліковано: 11 лютого 2024 Поділитись Опубліковано: 11 лютого 2024 (змінено) 10 хвилин тому, Nikolay Cherednichenko сказав: так пайдьот?)) Мабуть. Власне цікавило розв'язання ЦЬОГО вузла, з отвором під стелю.... Змінено 11 лютого 2024 користувачем i.may Посилання на коментар Поділитися на інших сайтах More sharing options...
Nikolay Cherednichenko Опубліковано: 11 лютого 2024 Автор Поділитись Опубліковано: 11 лютого 2024 7 минут назад, i.may сказал: Мабуть. Власне цікавило розв'язання ЦЬОГО вузла, з отвором під стелю.... Не буде там отвору під стелю. Я його там не бачу. Армопояс там Посилання на коментар Поділитися на інших сайтах More sharing options...
Nikolay Cherednichenko Опубліковано: 1 березня 2024 Автор Поділитись Опубліковано: 1 березня 2024 В сусідній гілці побачив людина виклала свій проект, витратив трохи часу і переробив його під себе...і чорт його побери-він мені чомусь сподобався (нічого з цим не можу поробити 😁)! Посилання на коментар Поділитися на інших сайтах More sharing options...
volkoff Опубліковано: 3 березня 2024 Поділитись Опубліковано: 3 березня 2024 В 01.03.2024 в 11:00, Nikolay Cherednichenko сказал: В сусідній гілці побачив людина виклала свій проект, витратив трохи часу і переробив його під себе...і чорт його побери-він мені чомусь сподобався (нічого з цим не можу поробити 😁) Ну, про лiжко, я вам друге порекомендую, а дитину-дiвчинку, якщо ви будете "купувати в капустi оптом" то, назвете Кариною ).. Бачу у вас "розширяеться" коробка-квадратура, "апетит приходит во время еди" ).. (так, цей проект кращiй) Гляньте в ЛС, я вам написав. Посилання на коментар Поділитися на інших сайтах More sharing options...
Nikolay Cherednichenko Опубліковано: 4 березня 2024 Автор Поділитись Опубліковано: 4 березня 2024 15 часов назад, volkoff сказал: Бачу у вас "розширяеться" коробка-квадратура, "апетит приходит во время еди" ).. (так, цей проект кращiй) В мене тільки губа росте))) те що ви бачите-ще нічого не значить))) я просто пофантазував-хоббі в мене таке)) 2 Посилання на коментар Поділитися на інших сайтах More sharing options...
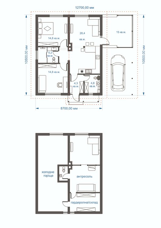
Sерджио Опубліковано: 5 березня 2024 Поділитись Опубліковано: 5 березня 2024 В 01.03.2024 в 11:00, Nikolay Cherednichenko сказал: В сусідній гілці побачив людина виклала свій проект, витратив трохи часу і переробив його під себе...і чорт його побери-він мені чомусь сподобався (нічого з цим не можу поробити 😁)! О, цей вже нічого так. Притомне розташування санвузлів )))))) але ж входу в комору з гаража немає )))) А загалом - досить непогано, як на мене. Посилання на коментар Поділитися на інших сайтах More sharing options...
Nikolay Cherednichenko Опубліковано: 5 березня 2024 Автор Поділитись Опубліковано: 5 березня 2024 43 минуты назад, Sерджио сказал: Притомне розташування санвузлів )))))) то мені довго не давало спати))) 44 минуты назад, Sерджио сказал: але ж входу в комору з гаража немає )))) я навіть не знаю як я то зможу пережити)) 1 Посилання на коментар Поділитися на інших сайтах More sharing options...
Gumich Опубліковано: 3 травня 2024 Поділитись Опубліковано: 3 травня 2024 В 11.02.2024 в 12:07, i.may сказал: Нє, не то. Мені не зрозуміло як покласти балки/плити тощо на несучки. Тобто рішення власне перекриття. Підкажіть яку програму використовуєте для проектування? Посилання на коментар Поділитися на інших сайтах More sharing options...
Nikolay Cherednichenko Опубліковано: 5 травня 2024 Автор Поділитись Опубліковано: 5 травня 2024 (змінено) В 03.05.2024 в 11:28, Gumich сказал: Підкажіть яку програму використовуєте для проектування? Corel Draw (просто малюю ескізи) Змінено 5 травня 2024 користувачем Nikolay Cherednichenko Посилання на коментар Поділитися на інших сайтах More sharing options...
Nikolay Cherednichenko Опубліковано: 4 серпня 2024 Автор Поділитись Опубліковано: 4 серпня 2024 Може комусь цікаво буде... але ось ще нафантазував дядько Микола (то є я🤪). По кайфу (мені💕) На антресольку буде проста драбина підкотна (то чисто для гостей- постійно використовуватись не буде), можна взагалі все зробити холодним горіщем і не паритись з тим другим світлом. Посилання на коментар Поділитися на інших сайтах More sharing options...
vadimv Опубліковано: 4 серпня 2024 Поділитись Опубліковано: 4 серпня 2024 3 хвилини тому, Nikolay Cherednichenko сказав: Може комусь цікаво буде... але ось ще нафантазував дядько Микола (то є я🤪). По кайфу (мені💕) То що, розберемо? ) 0. Вже навіс замість гаража - це прогрес ) 1. Вхідні двері відкриваються не в той бік. 2. Так само не в той бік відкриваються двері з вітальні на терасу. 3. Чомусь немає душа в санвузлі при вході (місця вистачає). 4. Чомусь немає каміну у вітальні (між вітальнею і спальнею). 5. Кухню можна дещо зменшити (велика відстань між мийкою/холодильником і барною стійкою), не вистачає вікна в бік машини і мийки під вікном (замість плити). Горище немає сенсу розглядати ) 1 Посилання на коментар Поділитися на інших сайтах More sharing options...
Nikolay Cherednichenko Опубліковано: 4 серпня 2024 Автор Поділитись Опубліковано: 4 серпня 2024 2 часа назад, vadimv сказал: То що, розберемо? ) 0. Вже навіс замість гаража - це прогрес ) 1. Вхідні двері відкриваються не в той бік. 2. Так само не в той бік відкриваються двері з вітальні на терасу. 3. Чомусь немає душа в санвузлі при вході (місця вистачає). 4. Чомусь немає каміну у вітальні (між вітальнею і спальнею). 5. Кухню можна дещо зменшити (велика відстань між мийкою/холодильником і барною стійкою), не вистачає вікна в бік машини і мийки під вікном (замість плити). Горище немає сенсу розглядати ) 0. Так, зрозумів що гараж то скоріше розкіш чим необхідність (навіс повністю закриє основні потреби) 1,2. Ви праві, варто змінити 3. Привході тех.приміщення (бойлерна,котельня, тощо) унітаз там для форс-мажорних ситуацій 4.камін є але я ще не до кінця продумав чи то буде топка вбудована в стіну чи окремо стоячий камінофен (димохідканал і вентканал в центрі) 5. За вікно з кухні думав-і мабуть так і варто зробити. Мийка прямо поряд з холодильником. Що ви мали на увазі про горіще? Лишити як є (половина горіще/половина друге світло), чи взагалі замутити наклонні стелі і в кімнатах (південна сторона)? Посилання на коментар Поділитися на інших сайтах More sharing options...
vadimv Опубліковано: 4 серпня 2024 Поділитись Опубліковано: 4 серпня 2024 (змінено) 13 хвилин тому, Nikolay Cherednichenko сказав: 4.камін є але я ще не до кінця продумав чи то буде топка вбудована в стіну чи окремо стоячий камінофен (димохідканал і вентканал в центрі) У наших знайомих був камін, вбудований у стіну - він грів одночасно вітальню і спальню (задня стінка була облицьована керамічною плиткою). 13 хвилин тому, Nikolay Cherednichenko сказав: 5. За вікно з кухні думав-і мабуть так і варто зробити. Мийка прямо поряд з холодильником. У нас було навпаки - плита ближче до холодильника, а мийка під вікном (між плитою і барною стійкою). 13 хвилин тому, Nikolay Cherednichenko сказав: Що ви мали на увазі про горіще? Лишити як є (половина горіще/половина друге світло), чи взагалі замутити наклонні стелі і в кімнатах (південна сторона)? З власного досвіду - я на мансарду витратив багато часу і трохи грошей - воно того не варте, бо взимку там занадто холодно, а влітку занадто жарко. Краще зробити просто одноповерховий будинок з холодним горищем. Змінено 4 серпня 2024 користувачем vadimv 1 Посилання на коментар Поділитися на інших сайтах More sharing options...
Nikolay Cherednichenko Опубліковано: 4 серпня 2024 Автор Поділитись Опубліковано: 4 серпня 2024 (змінено) 15 минут назад, vadimv сказал: У наших знайомих був камін, вбудований у стіну - він грів одночасно вітальню і спальню (задня стінка була облицьована керамічною плиткою). Я про це думав, але в тілі центральної несучої стіни яка виконана з повнотілої цегли (взагалі всі веутрішні стіни з цегли для теплової інерційності, контур огороджуючий з газіку або ракушняку) 15 минут назад, vadimv сказал: У нас було навпаки - плита ближче до холодильника, а мийка під вікном (між плитою і барною стійкою). Ну в мене логіка така- дістав,помив,нарізав,вариш. Тому і таке розташування.😁 15 минут назад, vadimv сказал: З власного досвіду - я на мансарду витратив багато часу і трохи грошей - воно того не варте, бо взимку там занадто холодно, а влітку занадто жарко. Краще зробити просто одноповерховий будинок з холодним горищем. А як же простенька, примітивна антресоль для гостей? А як же стиль лофт без другого світла і масивних стропильних затяжок?😝 Холодне горище там є...але небагато))) Змінено 4 серпня 2024 користувачем Nikolay Cherednichenko Посилання на коментар Поділитися на інших сайтах More sharing options...
Nikolay Cherednichenko Опубліковано: 5 серпня 2024 Автор Поділитись Опубліковано: 5 серпня 2024 В 04.08.2024 в 13:31, vadimv сказал: У наших знайомих був камін, вбудований у стіну - він грів одночасно вітальню і спальню (задня стінка була облицьована керамічною плиткою). У нас було навпаки - плита ближче до холодильника, а мийка під вікном (між плитою і барною стійкою). З власного досвіду - я на мансарду витратив багато часу і трохи грошей - воно того не варте, бо взимку там занадто холодно, а влітку занадто жарко. Краще зробити просто одноповерховий будинок з холодним горищем. трохи підправив по вашим зауваженням... Посилання на коментар Поділитися на інших сайтах More sharing options...
vadimv Опубліковано: 5 серпня 2024 Поділитись Опубліковано: 5 серпня 2024 3 години тому, Nikolay Cherednichenko сказав: трохи підправив по вашим зауваженням... Уявіть, що ви вийшли з машини під навісом і пішли в будинок. А потім щось згадали і пішли назад до машини. Оминаючи відкриті вхідні двері ) 2 1 Посилання на коментар Поділитися на інших сайтах More sharing options...
Nikolay Cherednichenko Опубліковано: 6 серпня 2024 Автор Поділитись Опубліковано: 6 серпня 2024 9 часов назад, vadimv сказал: Уявіть, що ви вийшли з машини під навісом і пішли в будинок. А потім щось згадали і пішли назад до машини. Оминаючи відкриті вхідні двері ) можна я їх закрию?😄 Посилання на коментар Поділитися на інших сайтах More sharing options...
Alvalk Опубліковано: 6 серпня 2024 Поділитись Опубліковано: 6 серпня 2024 (змінено) 1 час назад, Nikolay Cherednichenko сказал: можна я їх закрию?😄 Можна навіть зовсім їх не ставити і ходити через терасу. Але зручніше буде перевісити їх на іншій бік. У вас широкий ганок, а відчинені двері розділяють його на 2 частини. В чому сенс? Змінено 6 серпня 2024 користувачем Alvalk 2 Посилання на коментар Поділитися на інших сайтах More sharing options...
Nikolay Cherednichenko Опубліковано: 6 серпня 2024 Автор Поділитись Опубліковано: 6 серпня 2024 (змінено) 40 минут назад, Alvalk сказал: Можна навіть зовсім їх не ставити і ходити через терасу. Але зручніше буде перевісити їх на іншій бік. У вас широкий ганок, а відчинені двері розділяють його на 2 частини. В чому сенс? а я х.з. в чому сенс))) під праву руку ставив двері Змінено 6 серпня 2024 користувачем Nikolay Cherednichenko Посилання на коментар Поділитися на інших сайтах More sharing options...
Рекомендовані повідомлення