akterra Опубліковано: 28 грудня 2009 Поділитись Опубліковано: 28 грудня 2009 Пересмотрев n-е количество готовых проектов, посетив дома друзей и опросив так сказать практиков, родился следующий проект. Бета версия его уже отдана на тюнинг архитектору, но пока еще есть время для исправления ошибок Итого основные критерии: Дом для семьи из 4-5 человек, 2х машин и одной кошки Реализация проекта до 2х лет Материалы - технологии - реализации - Без цокольного этажа - Материал стен газобетон толщиной 400 мм - Материал перекрытия облегченные ЖБ плиты (размеры просчитаны под них) - Отопление - основное газ/резерв электричество - Принцип отопления - теплые полы План первого этажа (ссылка на изображение устарела) План второго этажа (ссылка на изображение устарела) Готов ловить тапки Посилання на коментар Поділитися на інших сайтах More sharing options...
akterra Опубліковано: 28 грудня 2009 Автор Поділитись Опубліковано: 28 грудня 2009 Сразу есть вопрос. Места под вентканалы, канализацию и камин продуманы и вписаны между плитами перекрытия. Несколько непонятно, что делать с канализацией кухни. Там два источника мойка и посудомоечная машина и это нужно вывести в район санузла. Ничего более разумного как заложить эту трубу под черновой пол (плиту) не придумал. Но такое расположение встречается довольно часто. Как это реализуется ? Была мысль эту трубу из нержавейки заказать Если уж замуровывать, то навечно... Посилання на коментар Поділитися на інших сайтах More sharing options...
Zhenis Опубліковано: 29 грудня 2009 Поділитись Опубліковано: 29 грудня 2009 Сразу есть вопрос. Места под вентканалы, канализацию и камин продуманы и вписаны между плитами перекрытия. Несколько непонятно, что делать с канализацией кухни. Там два источника мойка и посудомоечная машина и это нужно вывести в район санузла. Ничего более разумного как заложить эту трубу под черновой пол (плиту) не придумал. Но такое расположение встречается довольно часто. Как это реализуется ? Была мысль эту трубу из нержавейки заказать Если уж замуровывать, то навечно... В Вашем варианте-делать фундамент УШП-утепленная шведская плита.Вся канализация,водоводы и трубы теплого пола вмуровываются на стадии заливки фундамента.Он же и будет Вашим черновым полом.Сверху настелите линолеум или ламинат и все! 1 Посилання на коментар Поділитися на інших сайтах More sharing options...
akterra Опубліковано: 29 грудня 2009 Автор Поділитись Опубліковано: 29 грудня 2009 В Вашем варианте-делать фундамент УШП-утепленная шведская плита.Вся канализация,водоводы и трубы теплого пола вмуровываются на стадии заливки фундамента.Он же и будет Вашим черновым полом.Сверху настелите линолеум или ламинат и все! Спасибо. Идея интересная, но есть ряд но. 1. Залив теплые полы на этапе фундамента нет никакой уверенности, что строители их не угробят пока будет возводиться дом. 2. По поводу самой технологии масса споров особенно в плане низкого фундамента и гигроскопичности газоблока (хотя скорее всего это решаемо) Пока склоняюсь к варианту - лента ниже уровня промерзания + 50 см выше уровня. щебень + песок + трамбовка гидроизолирующая пленка 15-20 см. плита чернового пола с армированием Дальше возводятся стены и выгоняется коробка. Уже на этапе отделки по помещениям на пол наносится слой гидроизоляции два слоя ЕПС по 5 см каждый армирующая сетка на высоте 1-2 см от ЕПС монтируются трубы теплых полов и водоснабжения. заливается стяжка 7 - 9 см Выступающая часть фундамента и отмостка гидроизолируются и утепляются 5 см ЕПС. Плюсы/мимнусы с моей точки зрения по сравнению со шведской плитой - Меньшая инерционность теплых полов (она и в этом случае большая) а при наших перепадах температуры - 20 + 5 за три дня это существенно - Возможность реализации системы отопления поэтапно с проверкой системы и приемом ее в рабочем виде. т.е сделали - запустили - проверили - получили деньги Вариант сделали а работает или нет увидели через год меня например настораживает - Не уверен, что под Киевом есть реализации подобной технологии. Например кирпичный дом 500 м. с отоплением только теплыми полами есть у моих друзей. Второй год эксплуатации - полет нормальный. Вот такие вот соображения. PS. Кто то подскажет как сказать спасибо Посилання на коментар Поділитися на інших сайтах More sharing options...
ИНОЙ Опубліковано: 29 грудня 2009 Поділитись Опубліковано: 29 грудня 2009 А не хочеться ли вам поменять местами санузел и лестницу на первом этаже, Весь этаж как-то смотриться, как один длинный корридор. Между столовой и гостинной какой-то кусок стены. Обозначьте место где у вас котлы (стоят, висят) Сколько же у вас получилось вент каналов? 1 Посилання на коментар Поділитися на інших сайтах More sharing options...
Zhenis Опубліковано: 29 грудня 2009 Поділитись Опубліковано: 29 грудня 2009 Спасибо. Идея интересная, но есть ряд но. 1. Залив теплые полы на этапе фундамента нет никакой уверенности, что строители их не угробят пока будет возводиться дом. 2. По поводу самой технологии масса споров особенно в плане низкого фундамента и гигроскопичности газоблока (хотя скорее всего это решаемо) Пока склоняюсь к варианту - лента ниже уровня промерзания + 50 см выше уровня. щебень + песок + трамбовка гидроизолирующая пленка 15-20 см. плита чернового пола с армированием Дальше возводятся стены и выгоняется коробка. Уже на этапе отделки по помещениям на пол наносится слой гидроизоляции два слоя ЕПС по 5 см каждый армирующая сетка на высоте 1-2 см от ЕПС монтируются трубы теплых полов и водоснабжения. заливается стяжка 7 - 9 см Выступающая часть фундамента и отмостка гидроизолируются и утепляются 5 см ЕПС. Плюсы/мимнусы с моей точки зрения по сравнению со шведской плитой - Меньшая инерционность теплых полов (она и в этом случае большая) а при наших перепадах температуры - 20 + 5 за три дня это существенно - Возможность реализации системы отопления поэтапно с проверкой системы и приемом ее в рабочем виде. т.е сделали - запустили - проверили - получили деньги Вариант сделали а работает или нет увидели через год меня например настораживает - Не уверен, что под Киевом есть реализации подобной технологии. Например кирпичный дом 500 м. с отоплением только теплыми полами есть у моих друзей. Второй год эксплуатации - полет нормальный. Вот такие вот соображения. PS. Кто то подскажет как сказать спасибо www.forumhouse.ru/forum25/thread38540.html Здесь очень много тем по данной системе. Посилання на коментар Поділитися на інших сайтах More sharing options...
akterra Опубліковано: 29 грудня 2009 Автор Поділитись Опубліковано: 29 грудня 2009 А не хочеться ли вам поменять местами санузел и лестницу на первом этаже, Весь этаж как-то смотриться, как один длинный корридор. Между столовой и гостинной какой-то кусок стены. Обозначьте место где у вас котлы (стоят, висят) Сколько же у вас получилось вент каналов? Поправил схему первого этажа с обозначением вентканалов, стояков и камина. По поводу котла уже вижу, что, что то нужно делать с одним окном. Предполагается использовать турбо котел с выхлопом-забором воздуха на боковую стенку. Ориентировочно где я нарисовал. На противоположной стенке хочу расположить все отопительно водоснабжающее оборудование. По вентканалам: (обозначены на схеме синим) Два вентканала из гаража Один из топочной (может быть два, пока не решил) Два из кухни (один естественный другой под вытяжку) Один из санузла Стояк санузловой + фановая труба один (на схеме зеленым) Камин и труба камина (на схеме красным) По поводу поменять местами санузел и лестницу с точки зрения дизайна идея классная (я так вначале и рисовал) , но пропадает окошко в санузел и нужно что-то изобретать с перекрытиями (скорее всего делать монолитное перекрытие) так как плиты положить не на что. Кусок стены торчащий между столовой и гостиной как раз по этой причине. На него опираются плиты перекрытия. Естественно , что это как то будет обыграно по дизайну (ниши, подсветки и т.д.) дабы он не бросался в глаза. Теоретически можно заменить колонной и балкой, но мне кажется лучше от этого не станет По поводу длинного коридора, надеюсь, что он еще и широкий что бы после отделки не казаться просто коридором. На стенке санузла выходящей в него можно изобразить, что то высокохудожественное Посилання на коментар Поділитися на інших сайтах More sharing options...
akterra Опубліковано: 29 грудня 2009 Автор Поділитись Опубліковано: 29 грудня 2009 www.forumhouse.ru/forum25/thread38540.html Здесь очень много тем по данной системе. Сегодня после Вашего совета нагуглил этот сайт, зарегился и активно просвещаюсь. Часть инфы в моих комментах оттуда. Спасибо, интересный ресурс. Посилання на коментар Поділитися на інших сайтах More sharing options...
akterra Опубліковано: 29 грудня 2009 Автор Поділитись Опубліковано: 29 грудня 2009 to ИНОЙ По поводу торчащей стенки есть еще идея заменить ее балкой из стенки, но это нужно будет пообщаться с архитектором, возможно ли такое с точки зрения конструкции. Мне как теоретику кажется, что возможно Посилання на коментар Поділитися на інших сайтах More sharing options...
ИНОЙ Опубліковано: 29 грудня 2009 Поділитись Опубліковано: 29 грудня 2009 Лучше не надо будет торчать эта консоль, Может лучше сместить с\у на ширину перекрытия внутрь гостинной. Есть предложение убрать дверь из топочной к санузлу, Представьте вы бегаете зимой туда-сюда, а кто-то идет в тапочках в туалет. Так-же вытяжки в гараже сместить (если возможно) поближе к топочной. Ну и как-то стены у вас разбросаны по разным осям. Хаос получаеться. 1 Посилання на коментар Поділитися на інших сайтах More sharing options...
akterra Опубліковано: 29 грудня 2009 Автор Поділитись Опубліковано: 29 грудня 2009 По поводу стояков с вентканалами лучше видно как они выходят со стороны крыши (ссылка на изображение устарела) Насчет консоли пока размышляю. А вот дверь в топочную нужна. И температура там планируется выше уличной. Кроме отопления, водоснабжения хочу там разместить свои поделки для умного дома (сервер, контроллеры и другую управляющую часть) А вот исполнительную электрическую разместить под лестничной площадкой. Зимой дверь на улицу из топочной использовать не предполагается. Она сделана по просьбе супруги для удобного доступа к грядкам с цветами и хозинвентарю в гараже. Ну и , что бы руки после огорода помыть без долгих путешествий. Стены специально разместил не на одной линии. Если делать все перпендикулярно слишком скучно выглядит. Хотя лишних углов старался не рисовать Посилання на коментар Поділитися на інших сайтах More sharing options...
akterra Опубліковано: 29 грудня 2009 Автор Поділитись Опубліковано: 29 грудня 2009 Вот несколько изображений, как это выглядит снаружи. К сожалению пока без декораций и отделки (ссылка на изображение устарела) (ссылка на изображение устарела) (ссылка на изображение устарела) Посилання на коментар Поділитися на інших сайтах More sharing options...
ИНОЙ Опубліковано: 29 грудня 2009 Поділитись Опубліковано: 29 грудня 2009 Проект ваш имеет право на осуществление. Ну что могу сказать удачи вам в ваших начинаниях. Совет: Слушайте архитектора и всё согласовывайте с ним. Ну и как я говорю всем перед началом стройки: Куда вы ввязываетесь. Подумайте может не надо. 1 Посилання на коментар Поділитися на інших сайтах More sharing options...
akterra Опубліковано: 29 грудня 2009 Автор Поділитись Опубліковано: 29 грудня 2009 to Иной На самом деле строительство дома для меня это один из жизненых этапов (например как воспитание сына или посадка дерева ) и я ввязываюсь в него не от неизбежности (например жить негде или детей на природу некуда вывезти). Это как в старом анекдоте когда мужик исповедуется батюшке какой он правильный и задает вопрос - "Правильно ли я живу". Батюшка ему отвечает "правильно, вот только вопрос - зачем ?". И я и моя супруга выросли в частных домах. И как говорится наверное пришло время и самим , что то сделать. Причем желательно до пенсии Собственно говоря первые шаги уже сделаны, участок соответствующий запросам приобретен, бумажные оргвопросы решаются. В принципе отступать поздно Посилання на коментар Поділитися на інших сайтах More sharing options...
SkydanceR Опубліковано: 30 грудня 2009 Поділитись Опубліковано: 30 грудня 2009 Очень Ваш первый этаж похож на одного "Поляка", надо только гараж "воткнуть" вместо гардеробной -углом. Да, и в нем над столовой второй свет, чего можно и не делать. Может что-нибудь для своего проекта в нем найдете. 1 Посилання на коментар Поділитися на інших сайтах More sharing options...
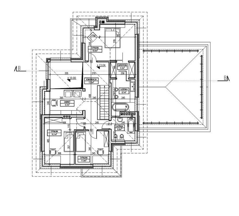
akterra Опубліковано: 30 грудня 2009 Автор Поділитись Опубліковано: 30 грудня 2009 Может что-нибудь для своего проекта в нем найдете. Спасибо, уже нашел. Очень интересной показалась идея расположения спальни на втором этаже. Сегодня перерисую план, покажу, что получилось. Посилання на коментар Поділитися на інших сайтах More sharing options...
InSAn Опубліковано: 30 грудня 2009 Поділитись Опубліковано: 30 грудня 2009 Окна с гостинной на террасу лучше убрать: угол из ГБ будет слабый - придется ЖБ-колону делать - мостик холода. Аналогично и со столовой, и со вторым этажем. ИМХО. 1 Посилання на коментар Поділитися на інших сайтах More sharing options...
akterra Опубліковано: 30 грудня 2009 Автор Поділитись Опубліковано: 30 грудня 2009 Окна с гостинной на террасу лучше убрать Спасибо. Замечание в тему. Из гостиной и на втором этаже окна убрал. Со стороны столовой убрал окно и нарисовал двойную террасную дверь. На эту стенку нагрузка должна быть поменьше плита перекрытия лежит на поперечной стене. Кстати сразу вопрос - как в наших условиях ведут себя остекленные террасные двери (используются летом). На картинках выглядят очень привлекательно. А как в жизни ? Сильно ли от них тянет холодом зимой ? Естественно если это нормальные качественные двери. Посилання на коментар Поділитися на інших сайтах More sharing options...
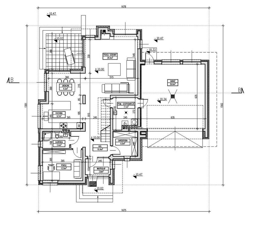
akterra Опубліковано: 30 грудня 2009 Автор Поділитись Опубліковано: 30 грудня 2009 После обработки замечаний и пожеланий вырисовалась вот такая картинка. Изменения от первоначальной схемы следующие: Первый этаж Топочная - убрано второе окно Санузел - на 10 см смещена стенка в сторону гостинной Гостиная - убрано окно на террасу Столовая - убрано окно на террасу и заменена дверь на двухстворчатую террасную Столовая - выступающая часть несущей стены перенесена в гостинную к камину Второй этаж Вместо холла и гардеробной большая спальня с видом на сосны Немного увеличен кабинет Появился центральный холл. В целом - явные изменения в лучшую сторону. За , что всем участникам - большое спасибо (ссылка на изображение устарела) (ссылка на изображение устарела) Посилання на коментар Поділитися на інших сайтах More sharing options...
Danshow Опубліковано: 30 грудня 2009 Поділитись Опубліковано: 30 грудня 2009 А можете паказать, как лягут плиты перекрытий? Посилання на коментар Поділитися на інших сайтах More sharing options...
akterra Опубліковано: 31 грудня 2009 Автор Поділитись Опубліковано: 31 грудня 2009 А можете паказать, как лягут плиты перекрытий? Выкладываю картинку с раскладкой плит. Плиты используются стандартные (по ГОСТ ) Единственная плита, которая имеет нестандартный размер по ширине 85 см (над камином) предполагаю или заказать такой или изготовить из ПК-31 путем отрезания продольно нескольких пустот. Нагрузки на нее особой не вижу поэтому такой вариант наверное может иметь место. Небольшие изменения по размерам +- сантиметры будут при последующем проектировании узлов примыкания. Части плит граничащие с наружной стеной будут теплоизолироваться ЕПС и 10 см газобетоном. Плиты балкона и перекрытие также предполагается разделить 5 см ЕПС Перед лестницей будет балка (сейчас она не видна) (ссылка на изображение устарела) Посилання на коментар Поділитися на інших сайтах More sharing options...
InSAn Опубліковано: 31 грудня 2009 Поділитись Опубліковано: 31 грудня 2009 Сюрприз: а как Вы несущую стену второго этажа на пустотки (на гараже поставите)? 1 Посилання на коментар Поділитися на інших сайтах More sharing options...
Hans Опубліковано: 31 грудня 2009 Поділитись Опубліковано: 31 грудня 2009 1. укажи не схеме размеры вент каналов и их назначение. 2. как организован приток свежего воздуха? 3. выхлоп в котельной так делать нельзя. есть требования по подводу газа и выхлопа. ЕМНИП 0.5м по горизонтали от окна. под окном ввод газа делать нельзя. 4. зачем в котельной дверь на улицу? вы ж не углем топить будете. Посилання на коментар Поділитися на інших сайтах More sharing options...
akterra Опубліковано: 31 грудня 2009 Автор Поділитись Опубліковано: 31 грудня 2009 (змінено) Мда... Неакуратненько получается По нагрузке получается: 10 блоков х 14 рядов х 25 кг - окна = ~ 2800 кг Пока имеем - 460 кг на метр плиты Стандартная нагрузка на плиты перекрытия 800-1250 кг/м2 + оконные перемычки + армопояс + опирание крыши одним словом держаться может и будет , но недолго... А какие могут быть варианты ? Вдоль стенок без проблем отлить бетонные столбики. Под несущей стеной (второго этажа) тоже можно отлить бетонное основание (снаружи оно спрячется под крышу гаража и его можно нормально утеплить) А как Вам такая крамольная мысль - положить под эту стену еще одну плиту перекрытия ? Из примеров - вот такой домик www.archon.com.ua/proekt_doma/WILLA_ALEKSANDRA/m4715c3bd1cda6 В нем один угол дома похоже висит над двойным гаражем Змінено 31 грудня 2009 користувачем akterra Посилання на коментар Поділитися на інших сайтах More sharing options...
akterra Опубліковано: 31 грудня 2009 Автор Поділитись Опубліковано: 31 грудня 2009 1. укажи не схеме размеры вент каналов и их назначение. 2. как организован приток свежего воздуха? 3. выхлоп в котельной так делать нельзя. есть требования по подводу газа и выхлопа. ЕМНИП 0.5м по горизонтали от окна. под окном ввод газа делать нельзя. 4. зачем в котельной дверь на улицу? вы ж не углем топить будете. 1. Размеры вентканалов сейчас указать не смогу (это кусок хлеба специалистов к которым я пойду со своими рисунками ) По предварительному расположению и назначению мысли следующие: 1 - Вентканал топочной (под углом уходит в общий стояк) 2,3 - Вентканалы гаража 4 - Вентканал вытяжки 5 - Вентканал естественной вентиляции кухни 6 - Вентканал санузла По идее еще можно сделать вентканал в гостинную (вдруг камин дымить будет) 2. По поводу притока свежего воздуха смотрел на системы вентиляции, но пока склоняюсь к банальным вентилируемым окнам 3. Это уже поправил, второе окошко убрано. Стена - 2 м, думаю у газовщиков радикальных возражений возникнуть не должно. 4. Для садово - огородных шастаний между складом хозинвентаря (гаражом) и посадками. Посилання на коментар Поділитися на інших сайтах More sharing options...
Рекомендовані повідомлення
Створіть акаунт або увійдіть у нього для коментування
Ви маєте бути користувачем, щоб залишити коментар
Створити акаунт
Зареєструйтеся для отримання акаунта. Це просто!
Зареєструвати акаунтУвійти
Вже зареєстровані? Увійдіть тут.
Увійти зараз