george2007 Опубліковано: 30 вересня 2007 Поділитись Опубліковано: 30 вересня 2007 Купили участок 10 соток ширина 16м.(фасад) длина 66. Место очень нравится.Может ли кто - то посоветовать проект дома без гаража 250м2? хелп ми. Посилання на коментар Поділитися на інших сайтах More sharing options...
КиевлянинЪ Опубліковано: 1 жовтня 2007 Поділитись Опубліковано: 1 жовтня 2007 вот это может подойдётmagasinhus_03_167.pdf Посилання на коментар Поділитися на інших сайтах More sharing options...
Irokez Опубліковано: 1 жовтня 2007 Поділитись Опубліковано: 1 жовтня 2007 Аналогичная задача - в процессе покупка участка 18 сот. 13 м фасад. По-моему участок Очень узкий. Есть вопрос о максимальном размере дома ( по фасаду) и необходимых отступах от границ участка. Рассматриваю 2 варианта от Архона: Дом под Агавой и Дом в фуксиях. найти можно на сайте Архона www.archon.com.ua Посилання на коментар Поділитися на інших сайтах More sharing options...
Татьяна5 Опубліковано: 1 жовтня 2007 Поділитись Опубліковано: 1 жовтня 2007 Люди, капец, 13 м фасада, а участок - 18 соток ??? это ж как на нем жить? Посилання на коментар Поділитися на інших сайтах More sharing options...
Irokez Опубліковано: 1 жовтня 2007 Поділитись Опубліковано: 1 жовтня 2007 А как жить в хрущевке где спальня 3 х 3 м кухня 1,2 х 2,2м ??? А на участке можно и спать провдоль P.S. я сюда за помощью пришел, а не для того чтобы меня жалели. Посилання на коментар Поділитися на інших сайтах More sharing options...
Павлухан Опубліковано: 1 жовтня 2007 Поділитись Опубліковано: 1 жовтня 2007 P.S. я сюда за помощью пришел, а не для того чтобы меня жалели у меня есть русский журнал красивые дома , там есть описание дома для узкого участка , дом супер красивый ( на мой вкус ) и ширина его где то 6-7 м, домик конечно не бюджетный , но можно на базе его планировки и фасада придумать что для себя, постараюсь отсканировать Посилання на коментар Поділитися на інших сайтах More sharing options...
Татьяна5 Опубліковано: 1 жовтня 2007 Поділитись Опубліковано: 1 жовтня 2007 А как жить в хрущевке где спальня 3 х 3 м кухня 1,2 х 2,2м ??? А на участке можно и спать провдоль P.S. я сюда за помощью пришел, а не для того чтобы меня жалели. Ну так дома строят для того, что бы ЖИТЬ комфортно. С фасадом 13 м это очень сомнительно. Извините, если обидела чем-то Просто, ИМХО, если есть деньги на 18 соток, я так понимаю, участок из не дорогих, может лучше искать 12 соток, но с хорошим фасадом, минимум 22-25 м. Посилання на коментар Поділитися на інших сайтах More sharing options...
КиевлянинЪ Опубліковано: 1 жовтня 2007 Поділитись Опубліковано: 1 жовтня 2007 Нормальная ширина 16 м я целую улицу видел с такими размерами участка и всё красиво дома у всех полноценные правда немного друг друга затеняют Посилання на коментар Поділитися на інших сайтах More sharing options...
Irokez Опубліковано: 1 жовтня 2007 Поділитись Опубліковано: 1 жовтня 2007 А как жить в хрущевке где спальня 3 х 3 м кухня 1,2 х 2,2м ??? А на участке можно и спать провдоль P.S. я сюда за помощью пришел, а не для того чтобы меня жалели. Ну так дома строят для того, что бы ЖИТЬ комфортно. С фасадом 13 м это очень сомнительно. Извините, если обидела чем-то Просто, ИМХО, если есть деньги на 18 соток, я так понимаю, участок из не дорогих, может лучше искать 12 соток, но с хорошим фасадом, минимум 22-25 м. не обидели, я понимаю что участок узкий, но условия следующие: 1. участок с домом (стареньким) таким чтобы можно было бы прожить 3 года без вложений в него средств. 2. на участке газ, вода, свет. 3. Участок в пределе 25 км от Киева с хорошей транспортной развязкой и альтернативой авто ( электричка). 4. Цена в пределах разумного. 5. Кредит. по цене и по условию проживания до постройки нового дома -вот и основные ограничения. а то что участок узкий - не проблемма - строить буду в глубине участка. Планы не амбициозные - 100 - 120 м.кв. "бюджетный вариант" Посилання на коментар Поділитися на інших сайтах More sharing options...
IrinaLMF Опубліковано: 1 жовтня 2007 Поділитись Опубліковано: 1 жовтня 2007 А как жить в хрущевке где спальня 3 х 3 м кухня 1,2 х 2,2м ??? А на участке можно и спать провдоль P.S. я сюда за помощью пришел, а не для того чтобы меня жалели. Ну так дома строят для того, что бы ЖИТЬ комфортно. С фасадом 13 м это очень сомнительно. Извините, если обидела чем-то Просто, ИМХО, если есть деньги на 18 соток, я так понимаю, участок из не дорогих, может лучше искать 12 соток, но с хорошим фасадом, минимум 22-25 м. не обидели, я понимаю что участок узкий, но условия следующие: 1. участок с домом (стареньким) таким чтобы можно было бы прожить 3 года без вложений в него средств. 2. на участке газ, вода, свет. 3. Участок в пределе 25 км от Киева с хорошей транспортной развязкой и альтернативой авто ( электричка). 4. Цена в пределах разумного. 5. Кредит. по цене и по условию проживания до постройки нового дома -вот и основные ограничения. а то что участок узкий - не проблемма - строить буду в глубине участка. Планы не амбициозные - 100 - 120 м.кв. "бюджетный вариант" На мой взгляд все проблемы решаемы. Если Вас не устраевает только этот аспект - покупайте и стройтесь! Домик станет вот и все... и все же 18 сот, можно как-то и сад вместить и гараж... Посилання на коментар Поділитися на інших сайтах More sharing options...
sevlad Опубліковано: 1 жовтня 2007 Поділитись Опубліковано: 1 жовтня 2007 Аналогичная задача - в процессе покупка участка 18 сот. 13 м фасад. По-моему участок Очень узкий. Есть вопрос о максимальном размере дома ( по фасаду) и необходимых отступах от границ участка. Соседи есть с двух сторон? Дома в убоих уже построены? Можно рисунок с размерами участков (вашего и соседей) и уже существующих построек? Я ничего не путаю, почти 140м в длинну? Посилання на коментар Поділитися на інших сайтах More sharing options...
sevlad Опубліковано: 1 жовтня 2007 Поділитись Опубліковано: 1 жовтня 2007 Купили участок 10 соток ширина 16м.(фасад) длина 66. Место очень нравится.Может ли кто - то посоветовать проект дома без гаража 250м2? хелп ми. Хороших проектов шириной 10м - полно. Еще требования будут? а то линков перебор может получиться. Посилання на коментар Поділитися на інших сайтах More sharing options...
XamGelo Опубліковано: 1 жовтня 2007 Поділитись Опубліковано: 1 жовтня 2007 sevlad +1 :-D По всем нормам дом 10м шириной прекрасно помещается, вот тому у кого 13 м фасад - потяжелее будет Посилання на коментар Поділитися на інших сайтах More sharing options...
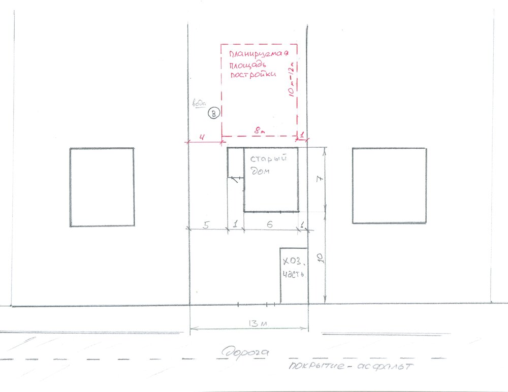
Irokez Опубліковано: 1 жовтня 2007 Поділитись Опубліковано: 1 жовтня 2007 Соседи есть с двух сторон? Дома в убоих уже построены? Можно рисунок с размерами участков (вашего и соседей) и уже существующих построек? Я ничего не путаю, почти 140м в длинну? соседи построены, дом в жилой части села. рисунок сделаю завтра, а пока диспозиция следующая: -от фасадной границы участка до дома 8 - 10м. - дом 7х7м. - перед домом хоз блок 3х6м., одной стеной по границе участка - соседские дома на уровне с домом на моем уч-ке. расстояние между ними 6м. с одной стороны и 10 с другой. рассматриваю возможность постройки дома за старым, с последующим демонтажем старого и постройкой на его месте гаража/навеса для авто. Так же решается вопрос о шуме с улицы - до нового дома от проезжей части будет около 17м. , планирую зеленую зону. Посилання на коментар Поділитися на інших сайтах More sharing options...
Chiara Опубліковано: 1 жовтня 2007 Поділитись Опубліковано: 1 жовтня 2007 P.S. я сюда за помощью пришел, а не для того чтобы меня жалели. www.bautipps.de/hausdatenbank/detail.asp?h=1264 я так понимаю, что вопрос с участком решенный? ИМХО стоит брать( даже если кредит) только если разница в цене драматическая У меня тоже участок 14м, но значительно короче. Мне, с одной строны легче, у меня сад.уч-к, можно оставить 1,5 м до соседского забора. Такую длину оч.сложно будет освоить. Разве что, действительно, заняться садоводством и огородничеством См. ветку Элины в "эксплуатации участка" Посилання на коментар Поділитися на інших сайтах More sharing options...
george2007 Опубліковано: 1 жовтня 2007 Автор Поділитись Опубліковано: 1 жовтня 2007 спасибо всем.У меня участок в дачном кооперативе 16м. шириной если строить дом 10 х14 какой отступ должен быть от соседского забора? Посилання на коментар Поділитися на інших сайтах More sharing options...
Chiara Опубліковано: 1 жовтня 2007 Поділитись Опубліковано: 1 жовтня 2007 спасибо всем.У меня участок в дачном кооперативе 16м. шириной если строить дом 10 х14 какой отступ должен быть от соседского забора? посмотрите устав сад.товарищества. у нас 1,5м., еще можно взять расписку у соседа, что он не против. Да, еще: при расст. меньше, чем 1,5м сток дождевых вод д.б на собственный участок. Посилання на коментар Поділитися на інших сайтах More sharing options...
КиевлянинЪ Опубліковано: 1 жовтня 2007 Поділитись Опубліковано: 1 жовтня 2007 P.S. я сюда за помощью пришел, а не для того чтобы меня жалели. www.bautipps.de/hausdatenbank/detail.asp?h=1264 я так понимаю, что вопрос с участком решенный? ИМХО стоит брать( даже если кредит) только если разница в цене драматическая У меня тоже участок 14м, но значительно короче. Мне, с одной строны легче, у меня сад.уч-к, можно оставить 1,5 м до соседского забора. Такую длину оч.сложно будет освоить. Разве что, действительно, заняться садоводством и огородничеством См. ветку Элины в "эксплуатации участка" Задача 250 м.кв. а не 100 А что если сделать 3 этажа Посилання на коментар Поділитися на інших сайтах More sharing options...
XamGelo Опубліковано: 1 жовтня 2007 Поділитись Опубліковано: 1 жовтня 2007 См (ссылка устарела) При ширине участка 16 и дома 10 остается только обеспечить чтобы осадки не попадали на территорию соседа Конечно при условии если уже стоящие дома не находятся оба в метре от вашей межи, так как тогда возникнет проблема с инсоляцией и пожарными нормативами Конечно, чтобы получить 250 квм общей площади дом о 2-х этажах придется сделать несколько длиннее чем 14 м, пожалуй около 16 Посилання на коментар Поділитися на інших сайтах More sharing options...
sevlad Опубліковано: 2 жовтня 2007 Поділитись Опубліковано: 2 жовтня 2007 Задача 250 м.кв. а не 100 А что если сделать 3 этажа У меня 10х16,5 ;) Как раз 250 и выходит. Внутрений размер 9,2х15,7 = 144 - 2 кап.стены (9,2 * 0,6) = 139 * 2 = 278кв.м. Чтото там еще выкидывается на внутрение переходоки, утопленое крыльцо,... 250 "в чистоте" останеться. Посилання на коментар Поділитися на інших сайтах More sharing options...
sevlad Опубліковано: 2 жовтня 2007 Поділитись Опубліковано: 2 жовтня 2007 соседи построены, дом в жилой части села. рисунок сделаю завтра, а пока диспозиция следующая: -от фасадной границы участка до дома 8 - 10м. - дом 7х7м. - перед домом хоз блок 3х6м., одной стеной по границе участка - соседские дома на уровне с домом на моем уч-ке. расстояние между ними 6м. с одной стороны и 10 с другой. рассматриваю возможность постройки дома за старым, с последующим демонтажем старого и постройкой на его месте гаража/навеса для авто. Так же решается вопрос о шуме с улицы - до нового дома от проезжей части будет около 17м. , планирую зеленую зону. 1. Раз соседи построились, предлагаю строить дом в глубине участка, на 6-8-10м дальше, чем любая существующая кап. постройка с соседей, даже если полчить 30-40м от дороги - ихмо ничего страшного, зато шумоизоляция класная. На это участке переддомом - алея, сад, озеро (бассейн и т.д.). 2. Предлагаю подойти в любому из соседей и полюбовно договориться о том что его не будут волновать осадки с твоей крыши. Как показывает практика реальной застройки сел - стоительство "на меже" с глухой стоной от соседа - это норма вещей. Это вполне реально, при п.1 (вода поливающая его сад - 99% пофигу). После п.1 и п2. я бы выбирал проект шириной 9м(мин 8м) и длинной метров 15 и больше с одной полностью глухой стеной (окна санузлов / лестицы можно не считать). И строил его на растоянии 0,7-0,8м от одной из границ участка. При этом получишь дом "комфорной" ширины без особых проблем по планировке, и с другой стороны "комфортные" 3м на проезда чего угодно в глубь участка. Пожарные нормы по уму для абсолютно глухих стен - никого волновать не будут, главное обеспечить свободный проезд с 3-х других сторон. зы. В случае смены хозяина участка на менее сговорчивого по осадкам - забор-стена 4-4,5м (выше свеса крыши) и бассейн с искуственым освешением вдоль дома. Фотку недавно выкладывали. Но это так, на екстреный случай. Посилання на коментар Поділитися на інших сайтах More sharing options...
Irokez Опубліковано: 2 жовтня 2007 Поділитись Опубліковано: 2 жовтня 2007 sevlad - я так и задумывал, строить дом 8 х 12 м. за существующим. с отступом от границы участка 1м. схематическое изображение прилагаю: ( качество не ахти получилось) Посилання на коментар Поділитися на інших сайтах More sharing options...
sevlad Опубліковано: 2 жовтня 2007 Поділитись Опубліковано: 2 жовтня 2007 sevlad - я так и задумывал, строить дом 8 х 12 м. за существующим. с отступом от границы участка 1м. схематическое изображение прилагаю: ( качество не ахти получилось) Отступи еще вглубь метров 5-7 (что бы видель только сад чужой, а они - твой. На месте старого дома (возможно использовав его фундамент) - я бы озеро-бассейн делал. Ну и дом смотрел бы подлинее-побольше ) Вот тебе вариант дома myhome.com.ua/katalog.php?ss=2&id_k=17, уменьшишь его по ширине на метр + отзеркалишь, и будет то что нужно Посилання на коментар Поділитися на інших сайтах More sharing options...
Irokez Опубліковано: 2 жовтня 2007 Поділитись Опубліковано: 2 жовтня 2007 Ну и дом смотрел бы подлинее-побольше ) Вот тебе вариант дома myhome.com.ua/katalog.php?ss=2&id_k=17, уменьшишь его по ширине на метр + отзеркалишь, и будет то что нужно я вот этот смотрел archon.com.ua/index.php?act=33&rodzaj=rzuty&sid=m3f26270817525&lang=ua в отзеркаленом виде, и вместо гаража комната. На втором этаже три комнаты вместо двух - т.е. убрать перегородку между комнатами. Гараж предполагается отдельностоящим, с подвалом. а по поводу бассейна - это я подумаю в ходе демонтажа старого здания, но это не скоро.. Посилання на коментар Поділитися на інших сайтах More sharing options...
sevlad Опубліковано: 2 жовтня 2007 Поділитись Опубліковано: 2 жовтня 2007 я вот этот смотрел archon.com.ua/index.php?act=33&rodzaj=rzuty&sid=m3f26270817525&lang=ua в отзеркаленом виде Убрать еркер таки проще чем уменьшить на метр весь дом. Но этот польский проект не переделывается под плиты. Или "усиленый" вариант Теривы, или просто бетоный монолит, причем с весьма толстый Посилання на коментар Поділитися на інших сайтах More sharing options...
Рекомендовані повідомлення
Створіть акаунт або увійдіть у нього для коментування
Ви маєте бути користувачем, щоб залишити коментар
Створити акаунт
Зареєструйтеся для отримання акаунта. Це просто!
Зареєструвати акаунтУвійти
Вже зареєстровані? Увійдіть тут.
Увійти зараз