гребеник роман Опубліковано: 16 червня 2010 Автор Поділитись Опубліковано: 16 червня 2010 правильно хотят делать, кладка будет качественнее Уже делают.Бригада-не нахвалюсь,работают быстро и качественно. Посилання на коментар Поділитися на інших сайтах More sharing options...
Raider--2 Опубліковано: 17 червня 2010 Поділитись Опубліковано: 17 червня 2010 сегодня привезли строительные леса 78 м\кв,довольно не плохие. Считаем что даже по нормальной цене,за метр по 50 коп в сутки, воскресенье не считают. Посилання на коментар Поділитися на інших сайтах More sharing options...
Raider--2 Опубліковано: 9 липня 2010 Поділитись Опубліковано: 9 липня 2010 идём потихоньку но уверенно,вчера перекрыли первый этаж скоро дело дойдет до крыши. кран 130гр. час +100 подача. камаз 9м 120гр час. Посилання на коментар Поділитися на інших сайтах More sharing options...
eeeeee Опубліковано: 15 вересня 2010 Поділитись Опубліковано: 15 вересня 2010 Приветствую, у меня такой же проект только строюсь в РБ только я к нему решил прикрутить подвал под весь дом пока все на этапе нулевого этажа пару вопросов 1. плиты перекрытия нормально ложаться? много ли монолитных участков? 2. какая толщина стены в размерах кирпич-воздух-блок. пока над этим вопросом размышляю. хотел штукатурить, но глянул на кладку оч понравилось 3. заполнитель будет в стене меду кирпичем и блоком? 4. размеры эркера не изменяли? тоже хотел добавить туда пару окон ) и на кухню тоже на глухую стенку как и у вас Посилання на коментар Поділитися на інших сайтах More sharing options...
ХХХХ Опубліковано: 16 вересня 2010 Поділитись Опубліковано: 16 вересня 2010 Как вам кирпич СБК? Он из Ромён или Харькова? Цена? Спасибо. Посилання на коментар Поділитися на інших сайтах More sharing options...
Raider--2 Опубліковано: 17 вересня 2010 Поділитись Опубліковано: 17 вересня 2010 Как вам кирпич СБК? Он из Ромён или Харькова? Цена? Спасибо. Мы брали роменский,я скажу нормальный, в любом кирпиче есть свои изъяны. по цене 2.85 за штуку у дилера, на заводе дороже. 1 Посилання на коментар Поділитися на інших сайтах More sharing options...
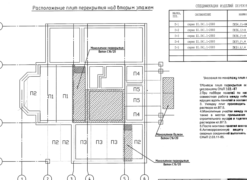
Raider--2 Опубліковано: 17 вересня 2010 Поділитись Опубліковано: 17 вересня 2010 Приветствую, у меня такой же проект только строюсь в РБ только я к нему решил прикрутить подвал под весь дом пока все на этапе нулевого этажа пару вопросов 1. плиты перекрытия нормально ложаться? много ли монолитных участков? 2. какая толщина стены в размерах кирпич-воздух-блок. пока над этим вопросом размышляю. хотел штукатурить, но глянул на кладку оч понравилось 3. заполнитель будет в стене меду кирпичем и блоком? 4. размеры эркера не изменяли? тоже хотел добавить туда пару окон ) и на кухню тоже на глухую стенку как и у вас плиты ложатся нормально.у нас их пошло 25 штук разного размера 4 участка монолита незначительных. и то 2 можно было избежать. толщина стены кирпич 12- блок АЕРОК-37 воздух-5 ,утеплителя нет. размера эркера не изменяли и так нормально. там ещё на кухне два выхода один в хол а другой в зал с эркером так мы его заложили так практичней и выход на летнюю террасу делали с кухни. Посилання на коментар Поділитися на інших сайтах More sharing options...
eeeeee Опубліковано: 18 вересня 2010 Поділитись Опубліковано: 18 вересня 2010 планирую такой же бутерброд, только блок 30 а в пустоту - пеноизол плиты на передние колоны уже положили? не могу понять что под них делать, монолитную балку лить чтоль, между колонами можно фото побольше - хочется посмотреть на прогресс ) Посилання на коментар Поділитися на інших сайтах More sharing options...
Raider--2 Опубліковано: 19 вересня 2010 Поділитись Опубліковано: 19 вересня 2010 планирую такой же бутерброд, только блок 30 а в пустоту - пеноизол плиты на передние колоны уже положили? не могу понять что под них делать, монолитную балку лить чтоль, между колонами можно фото побольше - хочется посмотреть на прогресс ) спереди на колоны мы клали несущие перемычки а на них плиту 1.5/5.7 завтра сделаю более точное фото. Посилання на коментар Поділитися на інших сайтах More sharing options...
гребеник роман Опубліковано: 19 вересня 2010 Автор Поділитись Опубліковано: 19 вересня 2010 Как вам кирпич СБК? Он из Ромён или Харькова? Цена? Спасибо. В феврале брали по 2,65,а недостающий добирали по 2,85 1 Посилання на коментар Поділитися на інших сайтах More sharing options...
Александр! Опубліковано: 19 вересня 2010 Поділитись Опубліковано: 19 вересня 2010 МОЛОДЦЫ, ХОРОШИЙ ТЕМП СТРОИТЕЛЬСТВА И КРАСИВО ПОЛУЧАЕТСЯ!!!!!!! 1 Посилання на коментар Поділитися на інших сайтах More sharing options...
eeeeee Опубліковано: 20 вересня 2010 Поділитись Опубліковано: 20 вересня 2010 спасибо за фото, вы главное не пропадайте хоть начал представлять что мне предстоит дальше у вас перекрытие плитами в проекте было просчитано? у меня есть предложенный расчет, но думаю у вас получше. Я приложу свой, если не сложно - выложите свою версию, спасибо Посилання на коментар Поділитися на інших сайтах More sharing options...
eeeeee Опубліковано: 20 вересня 2010 Поділитись Опубліковано: 20 вересня 2010 подскажите еще по стенам, сколько кирпича и блоков ушло сколько заказывать? крышу чем планируете крыть? Посилання на коментар Поділитися на інших сайтах More sharing options...
гребеник роман Опубліковано: 20 вересня 2010 Автор Поділитись Опубліковано: 20 вересня 2010 МОЛОДЦЫ, ХОРОШИЙ ТЕМП СТРОИТЕЛЬСТВА И КРАСИВО ПОЛУЧАЕТСЯ!!!!!!! Спасибо.Для постройки двух домов темп средний,не успеваем зарабатывать!Заказали сегодня блоки для забора (ссылка устарела) мониторим окна. Посилання на коментар Поділитися на інших сайтах More sharing options...
гребеник роман Опубліковано: 20 вересня 2010 Автор Поділитись Опубліковано: 20 вересня 2010 подскажите еще по стенам, сколько кирпича и блоков ушло сколько заказывать? крышу чем планируете крыть? Кирпича ушло:чернового-20тыс.шт.,блока Аэрок Березаньского-50м3,облицовочного кирпича СБК роменский-желтый-10тыс.шт,коричневый-1440шт.Крыша у нас куплена еще в январе месяце-композитивная черепица Метробонд. Посилання на коментар Поділитися на інших сайтах More sharing options...
гребеник роман Опубліковано: 20 вересня 2010 Автор Поділитись Опубліковано: 20 вересня 2010 спасибо за фото, вы главное не пропадайте хоть начал представлять что мне предстоит дальше у вас перекрытие плитами в проекте было просчитано? у меня есть предложенный расчет, но думаю у вас получше. Я приложу свой, если не сложно - выложите свою версию, спасибо У нас "архитектор"(ругательное слово)был никакой-просчитано все было абы как.Раскладку мы делали и додумовывали сами. Плиты на дом: ПК36.12 745грн-6шт. ПК36.15 928грн-7шт. ПК54.12 1134грн-2шт. ПК54.15 1416грн-4шт. ПК57.15 1526грн-1шт Итого 20 плит,не 25 как брат писал-ошибка. Посилання на коментар Поділитися на інших сайтах More sharing options...
гребеник роман Опубліковано: 20 вересня 2010 Автор Поділитись Опубліковано: 20 вересня 2010 Да еще было 4 небольших монолитных участка. Посилання на коментар Поділитися на інших сайтах More sharing options...
eeeeee Опубліковано: 20 вересня 2010 Поділитись Опубліковано: 20 вересня 2010 высоту 1го этажа случайно не увеличили? по фото вроде метра 3, так? (могу ошибаться) Посилання на коментар Поділитися на інших сайтах More sharing options...
vrmsumy Опубліковано: 21 вересня 2010 Поділитись Опубліковано: 21 вересня 2010 Спасибо.Для постройки двух домов темп средний,не успеваем зарабатывать!Заказали сегодня блоки для забора (ссылка устарела) мониторим окна. мы себе окна 3 раза заказывали на Интернационалистов 21 (с торца Светланы). Могу сказать одно - окна заводские Рехау, 3 стекла, сделаны отлично. По цене получалось трижды на момент покупки дешевле на 100-200 грн на окне (понятное дело, что сначала прозвонили с десяток контор). На сегодня мне кажется, что ребята самые нежадные дилеры завода. 1 Посилання на коментар Поділитися на інших сайтах More sharing options...
Raider--2 Опубліковано: 21 вересня 2010 Поділитись Опубліковано: 21 вересня 2010 высоту 1го этажа случайно не увеличили? по фото вроде метра 3, так? (могу ошибаться) всё верно,высота первого 3 метра. второго 2,7-2,6 метра. Посилання на коментар Поділитися на інших сайтах More sharing options...
Raider--2 Опубліковано: 21 вересня 2010 Поділитись Опубліковано: 21 вересня 2010 мы себе окна 3 раза заказывали на Интернационалистов 21 (с торца Светланы). Могу сказать одно - окна заводские Рехау, 3 стекла, сделаны отлично. По цене получалось трижды на момент покупки дешевле на 100-200 грн на окне (понятное дело, что сначала прозвонили с десяток контор). На сегодня мне кажется, что ребята самые нежадные дилеры завода. спасибо за информацию,и если можно дайте пожалуйста тел: Посилання на коментар Поділитися на інших сайтах More sharing options...
vrmsumy Опубліковано: 22 вересня 2010 Поділитись Опубліковано: 22 вересня 2010 спасибо за информацию,и если можно дайте пожалуйста тел: 65-78-00, офис в магазине бытовой химии (он у них там уже несколько лет, думаю из-за небольшой накрутки на цене окон). Еще они делали москитки в подарок (получалось, что по цене действительно подарок) 1 Посилання на коментар Поділитися на інших сайтах More sharing options...
Raider--2 Опубліковано: 25 вересня 2010 Поділитись Опубліковано: 25 вересня 2010 65-78-00, офис в магазине бытовой химии (он у них там уже несколько лет, думаю из-за небольшой накрутки на цене окон). Еще они делали москитки в подарок (получалось, что по цене действительно подарок) не подошло. цены завышены. Посилання на коментар Поділитися на інших сайтах More sharing options...
Raider--2 Опубліковано: 2 жовтня 2010 Поділитись Опубліковано: 2 жовтня 2010 вот ещё фото нашего строительства, теперь уже крыши. Посилання на коментар Поділитися на інших сайтах More sharing options...
Raider--2 Опубліковано: 16 жовтня 2010 Поділитись Опубліковано: 16 жовтня 2010 Вот дело дошло и до забора,залили фундамент разметили что и как, Посилання на коментар Поділитися на інших сайтах More sharing options...
Рекомендовані повідомлення
Створіть акаунт або увійдіть у нього для коментування
Ви маєте бути користувачем, щоб залишити коментар
Створити акаунт
Зареєструйтеся для отримання акаунта. Це просто!
Зареєструвати акаунтУвійти
Вже зареєстровані? Увійдіть тут.
Увійти зараз