71134 Опубліковано: 25 лютого 2011 Поділитись Опубліковано: 25 лютого 2011 Александр добрый день. Подскажите пожалуйста, сейчас у вас в неотапливаемом доме без утеплителя сколько градусов? Для себя все никак не могу определиться, газобетон утеплять или нет. Зима почти прошла с морозами, как ваше мнение, газобетон теплый? Посилання на коментар Поділитися на інших сайтах More sharing options...
KUKUSHKA Опубліковано: 25 лютого 2011 Поділитись Опубліковано: 25 лютого 2011 Классно, только телевизоров много Посилання на коментар Поділитися на інших сайтах More sharing options...
AlexandrK Опубліковано: 25 лютого 2011 Автор Поділитись Опубліковано: 25 лютого 2011 Александр добрый день. Подскажите пожалуйста, сейчас у вас в неотапливаемом доме без утеплителя сколько градусов? Для себя все никак не могу определиться, газобетон утеплять или нет. Зима почти прошла с морозами, как ваше мнение, газобетон теплый? Не замерял, но думаю, что в районе нуля. Морозы большие сейчас стоят, а в дом уже воду подвели. Поэтому в цокольном этаже, в комнате где вода заходит, стоит ведерко с водой (типа термометр) и электрообогреватель маслянный. По неотапливаемому дому тяжело определить надоли еще его утеплять. Думаю что основные потери тепла все же не через стены будут, а возможно через окна. В некоторых комнатах у меня большую площадь занимают именно оконные проемы. Дай Бог к следующей зиме уже в доме жить будем, вот тогда и оценим как тепло сохраняется 1 Посилання на коментар Поділитися на інших сайтах More sharing options...
AlexandrK Опубліковано: 26 лютого 2011 Автор Поділитись Опубліковано: 26 лютого 2011 Классно, только телевизоров много Многовато, но максимум один еще можно сократить Посилання на коментар Поділитися на інших сайтах More sharing options...
AlexandrK Опубліковано: 2 березня 2011 Автор Поділитись Опубліковано: 2 березня 2011 А вот так дизайнеры вместе с нами накрутили потолки Посилання на коментар Поділитися на інших сайтах More sharing options...
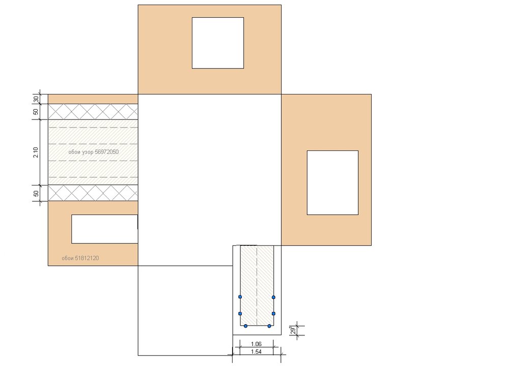
AlexandrK Опубліковано: 4 березня 2011 Автор Поділитись Опубліковано: 4 березня 2011 А это у дизайнеров называется "Развертки". В какой комнате какие обои будут Посилання на коментар Поділитися на інших сайтах More sharing options...
voglya Опубліковано: 4 березня 2011 Поділитись Опубліковано: 4 березня 2011 А в спальне на потолке над окном, там где ниша под карниз, не хотите лампочек? Мне нравится как они драпировку штор подсвечивают... 1 Посилання на коментар Поділитися на інших сайтах More sharing options...
AlexandrK Опубліковано: 4 березня 2011 Автор Поділитись Опубліковано: 4 березня 2011 А в спальне на потолке над окном, там где ниша под карниз, не хотите лампочек? Мне нравится как они драпировку штор подсвечивают... У детей так и сделали, а у себя только над одним окном. Сильно перегружать спальню светом не хочется. Еще время есть, будем думать. Спасибо Посилання на коментар Поділитися на інших сайтах More sharing options...
AlexandrK Опубліковано: 7 березня 2011 Автор Поділитись Опубліковано: 7 березня 2011 Купили два светильника для наружного освещения над дверьми в топочную и кладовую. Немного потеплеет и будем ставить Посилання на коментар Поділитися на інших сайтах More sharing options...
AlexandrK Опубліковано: 11 березня 2011 Автор Поділитись Опубліковано: 11 березня 2011 Решили с дизайнерами дом делать в легком классическом стиле. Второй этаж (спальни) более современные. Сегодня выложу первые работы по комнатам Посилання на коментар Поділитися на інших сайтах More sharing options...
voglya Опубліковано: 11 березня 2011 Поділитись Опубліковано: 11 березня 2011 Это очень личное, поэтому очень шепотом: не нравятся многоярусные, навороченные потолки. Они мне кажутся устаревшими, таким себе анахронизмом:D. Под рукой нет картинки, буду дома - могу показать :D. Мое мнение не навязываю, Боже упаси... 3 Посилання на коментар Поділитися на інших сайтах More sharing options...
AlexandrK Опубліковано: 11 березня 2011 Автор Поділитись Опубліковано: 11 березня 2011 Гдето может Вы и правы, но давайте глянем как оно в 3D получается. Первая комната старшего сына 2 Посилання на коментар Поділитися на інших сайтах More sharing options...
voglya Опубліковано: 11 березня 2011 Поділитись Опубліковано: 11 березня 2011 А картинок-то я еще и не вставляла.... никогда...сори...разберусь! Ага, муж тоже ноет: а давай где-то натяжные сделаем (еще проект не сделан и старый дом не снесен), разрешила - в ванной:D Посилання на коментар Поділитися на інших сайтах More sharing options...
AlexandrK Опубліковано: 15 березня 2011 Автор Поділитись Опубліковано: 15 березня 2011 А это варианты нашей спальни. Есть небольшие замечания по шкафу и шторам, а так как по мне, то очень даже неплохо 3 Посилання на коментар Поділитися на інших сайтах More sharing options...
valya_bes Опубліковано: 15 березня 2011 Поділитись Опубліковано: 15 березня 2011 А это варианты нашей спальни. Есть небольшие замечания по шкафу и шторам, а так как по мне, то очень даже неплохо Всегда с удовольствием захожу в Вашу ветку, обязательно порадуете чем-нибудь интересным. Ваши фото помогли мне решить спорный вопрос в расстановке мебели у нас в комнате, пойду покручу картинки. 1 Посилання на коментар Поділитися на інших сайтах More sharing options...
AlexandrK Опубліковано: 15 березня 2011 Автор Поділитись Опубліковано: 15 березня 2011 Всегда с удовольствием захожу в Вашу ветку, обязательно порадуете чем-нибудь интересным. Ваши фото помогли мне решить спорный вопрос в расстановке мебели у нас в комнате, пойду покручу картинки. Рад, что моя информация может быть полезной Посилання на коментар Поділитися на інших сайтах More sharing options...
AlexandrK Опубліковано: 17 березня 2011 Автор Поділитись Опубліковано: 17 березня 2011 Это спальня старшего. К ней само больше замечаний. Потолки несколько раз посмотрели и они уже не нравятся (сбываются предсказания voglya ) будем переделывать. ТВ в этой комнате не будет. Рисунок на шкафу ну совсем не нравится, сделаем чтото попроще, но поприятней 2 Посилання на коментар Поділитися на інших сайтах More sharing options...
ol4ik Опубліковано: 17 березня 2011 Поділитись Опубліковано: 17 березня 2011 Это спальня старшего. К ней само больше замечаний.ТВ в этой комнате не будет. Александр а что старший телик не смотрит? Полы классные... 1 Посилання на коментар Поділитися на інших сайтах More sharing options...
voglya Опубліковано: 17 березня 2011 Поділитись Опубліковано: 17 березня 2011 Это спальня старшего. К ней само больше замечаний. Потолки несколько раз посмотрели и они уже не нравятся (сбываются предсказания voglya ) будем переделывать. ТВ в этой комнате не будет. Рисунок на шкафу ну совсем не нравится, сделаем чтото попроще, но поприятней Ну, про потолки Вы знаете:D.. А как я люблю светлые стены и темную столярку - не передать словами :D (правда, нравится!!) Вот интересно, дизайнеры пробовали выращивать комнатные растения в глубине комнаты? Там, наверное, кроме как замеокулькас ничего не выживет Посилання на коментар Поділитися на інших сайтах More sharing options...
AlexandrK Опубліковано: 17 березня 2011 Автор Поділитись Опубліковано: 17 березня 2011 Александр а что старший телик не смотрит? Полы классные... Я ошибся, это комната младшего. Телевизор то смотрит, но ему в комнату наверное лучше магнитолу поставить. А вот пол всеже перкетный будет 1 Посилання на коментар Поділитися на інших сайтах More sharing options...
AlexandrK Опубліковано: 18 березня 2011 Автор Поділитись Опубліковано: 18 березня 2011 Ну, про потолки Вы знаете:D.. А как я люблю светлые стены и темную столярку - не передать словами :D (правда, нравится!!) Вот интересно, дизайнеры пробовали выращивать комнатные растения в глубине комнаты? Там, наверное, кроме как замеокулькас ничего не выживет Если комнаты светлые то вырастут. Но я не растениях пока не заморачиваюсь. Супруга моя спец по цветам, пусть думает какие и куда Посилання на коментар Поділитися на інших сайтах More sharing options...
гребеник роман Опубліковано: 18 березня 2011 Поділитись Опубліковано: 18 березня 2011 Это спальня старшего. К ней само больше замечаний. Потолки несколько раз посмотрели и они уже не нравятся (сбываются предсказания voglya ) будем переделывать. ТВ в этой комнате не будет. Рисунок на шкафу ну совсем не нравится, сделаем чтото попроще, но поприятней Мне кажется надо в качестве спального места ребенку кровать полноценную.а не диван.Сами сталкиваемся с складыванием-раскладыванием повседневно-невеселое занятие Посилання на коментар Поділитися на інших сайтах More sharing options...
AlexandrK Опубліковано: 18 березня 2011 Автор Поділитись Опубліковано: 18 березня 2011 Мне кажется надо в качестве спального места ребенку кровать полноценную.а не диван.Сами сталкиваемся с складыванием-раскладыванием повседневно-невеселое занятие Младшему ребенку в этом году 21 годик исполнится В дом наотрез отказывается переезжать, хочет в квартире остаться. Поэтому поживем - посмотрим. Конечно кровать практичней, если постоянно проживать, а так... время покажет Посилання на коментар Поділитися на інших сайтах More sharing options...
гребеник роман Опубліковано: 18 березня 2011 Поділитись Опубліковано: 18 березня 2011 Младшему ребенку в этом году 21 годик исполнится В дом наотрез отказывается переезжать, хочет в квартире остаться. Поэтому поживем - посмотрим. Конечно кровать практичней, если постоянно проживать, а так... время покажет Ну если набегами тогда да,а если приживется в доме.Хотя 21 это не 11-справится сам Посилання на коментар Поділитися на інших сайтах More sharing options...
ol4ik Опубліковано: 18 березня 2011 Поділитись Опубліковано: 18 березня 2011 Младшему ребенку в этом году 21 годик исполнится В дом наотрез отказывается переезжать, хочет в квартире остаться. Поэтому поживем - посмотрим. Конечно кровать практичней, если постоянно проживать, а так... время покажет Красавчик. ...Самостоятельный....А так иредка приедит к маме с папой и на диванчике переночует... Посилання на коментар Поділитися на інших сайтах More sharing options...
Рекомендовані повідомлення
Створіть акаунт або увійдіть у нього для коментування
Ви маєте бути користувачем, щоб залишити коментар
Створити акаунт
Зареєструйтеся для отримання акаунта. Це просто!
Зареєструвати акаунтУвійти
Вже зареєстровані? Увійдіть тут.
Увійти зараз