B.S.V. Опубліковано: 9 квітня 2021 Поділитись Опубліковано: 9 квітня 2021 В самую тютельку. Это заготовка. Заказчик не довез один котел и электрик тормозит с работой. А 2 лишних крана зечем поставил? Или кранов, как и розеток, много не бывает ? Посилання на коментар Поділитися на інших сайтах More sharing options...
Сергей 31 Опубліковано: 9 квітня 2021 Автор Поділитись Опубліковано: 9 квітня 2021 А 2 лишних крана зечем поставил? Ремонтопригодность. Посилання на коментар Поділитися на інших сайтах More sharing options...
B.S.V. Опубліковано: 9 квітня 2021 Поділитись Опубліковано: 9 квітня 2021 Ремонтопригодность. Полутора метров медной трубы ? Посилання на коментар Поділитися на інших сайтах More sharing options...
Сергей 31 Опубліковано: 9 квітня 2021 Автор Поділитись Опубліковано: 9 квітня 2021 Полутора метров медной трубы ? Фотку увеличь. Посилання на коментар Поділитися на інших сайтах More sharing options...
B.S.V. Опубліковано: 9 квітня 2021 Поділитись Опубліковано: 9 квітня 2021 Фотку увеличь. Да, действительно больше 2,6 метра. Посилання на коментар Поділитися на інших сайтах More sharing options...
-electron- Опубліковано: 9 квітня 2021 Поділитись Опубліковано: 9 квітня 2021 А 2 лишних крана зечем поставил? Или кранов, как и розеток, много не бывает ? 2 роки назад ремонтував розморожені теплі підлоги. Будинок під продаж будувався, а покупець взимку не включив котел..... 3 поверхи. Всюди підлоги плюс є батареї. Кранів аж цілих 2. Подача і обратка котла. Для любого ремонту зливаємо воду. Добре якщо ремонт на 3. А якщо на першому то зливати й заповнювати треба багато. Наскільки я бачу. Пара кранів перекриває колектор підлог інша пара колектор батарей. Траси підключаться потім через трійники які вріжуться в ці труби. 1 Посилання на коментар Поділитися на інших сайтах More sharing options...
B.S.V. Опубліковано: 9 квітня 2021 Поділитись Опубліковано: 9 квітня 2021 Траси підключаться потім через трійники які вріжуться в ці труби. Якщо труби потім будуть розрізатися, то так. Та нащо було це "ваяти" якщо потім переробляти. Але мені здається, що підключення може бути в праву сторону колектора радіаторів опалення, там зараз пусто. Задумів не знаємо, тому спір некоректний. Посилання на коментар Поділитися на інших сайтах More sharing options...
Сергей 31 Опубліковано: 9 квітня 2021 Автор Поділитись Опубліковано: 9 квітня 2021 Траси підключаться потім через трійники які вріжуться в ці труби. Правильно, вся котельная слева, газовый и электрокотлы уже висят и обвязаны. Жду приезда ТТ. Посилання на коментар Поділитися на інших сайтах More sharing options...
-electron- Опубліковано: 10 квітня 2021 Поділитись Опубліковано: 10 квітня 2021 Якщо труби потім будуть розрізатися, то так. Та нащо було це "ваяти" якщо потім переробляти. То як в анекдоті: Пан має час та натхнення 1 Посилання на коментар Поділитися на інших сайтах More sharing options...
B.S.V. Опубліковано: 20 квітня 2021 Поділитись Опубліковано: 20 квітня 2021 Перед Великднем, треба трохи прибратися. Розпочав з сортування НЗ міді по діаметрам. Всіх з наступаючими святами! Слава Україні! 4 Посилання на коментар Поділитися на інших сайтах More sharing options...
Сергей 31 Опубліковано: 21 квітня 2021 Автор Поділитись Опубліковано: 21 квітня 2021 Домик начал. Инструмент сантехника: лопата, нивелир, столик для документов, термос -3шт. 3 Посилання на коментар Поділитися на інших сайтах More sharing options...
ts3 Опубліковано: 21 квітня 2021 Поділитись Опубліковано: 21 квітня 2021 Домик начал. Инструмент сантехника: лопата, нивелир, столик для документов, термос -3шт. PPSU гильзы уже не те... ))) Посилання на коментар Поділитися на інших сайтах More sharing options...
B.S.V. Опубліковано: 21 квітня 2021 Поділитись Опубліковано: 21 квітня 2021 Домик начал. Инструмент сантехника: лопата, нивелир, столик для документов, термос -3шт. А гильзы под проход каналии и воды есть ? Или как всегда забыли. Посилання на коментар Поділитися на інших сайтах More sharing options...
Сергей 31 Опубліковано: 21 квітня 2021 Автор Поділитись Опубліковано: 21 квітня 2021 А гильзы под проход каналии и воды есть ? Или как всегда забыли. Все по взрослому, с уклонами, в разделе ВК лист отдельные есть с указанием всех закладных. 2 Посилання на коментар Поділитися на інших сайтах More sharing options...
Сергей 31 Опубліковано: 21 квітня 2021 Автор Поділитись Опубліковано: 21 квітня 2021 Пару дней назад вот такой не часто встречающийся агрегатит приключился. Посилання на коментар Поділитися на інших сайтах More sharing options...
B.S.V. Опубліковано: 21 квітня 2021 Поділитись Опубліковано: 21 квітня 2021 Все по взрослому, с уклонами, в разделе ВК лист отдельные есть с указанием всех закладных. И это приятно, что этому стали уделять внимание Добавлено через 1 минуту Пару дней назад вот такой не часто встречающийся агрегатит приключился. Ты знаешь, у меня складывается впечатление, что их наверное на одном каком-то заводе льют. Только лейби разные ставять. Посилання на коментар Поділитися на інших сайтах More sharing options...
Vito black Опубліковано: 21 квітня 2021 Поділитись Опубліковано: 21 квітня 2021 Все по взрослому, с уклонами, в разделе ВК лист отдельные есть с указанием всех закладных. Я только задание дал на гильзы кто делает опалубку. Уже залили с гильзами ленту 1 Посилання на коментар Поділитися на інших сайтах More sharing options...
Сергей 31 Опубліковано: 21 квітня 2021 Автор Поділитись Опубліковано: 21 квітня 2021 Ты знаешь, у меня складывается впечатление, что их наверное на одном каком-то заводе льют. Только лейби разные ставять. Наверное, но цены ставят с разницей в 10 раз? Посилання на коментар Поділитися на інших сайтах More sharing options...
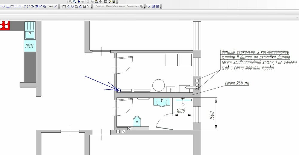
Vito black Опубліковано: 21 квітня 2021 Поділитись Опубліковано: 21 квітня 2021 в разделе ВК лист отдельные есть с указанием всех закладных. В Черновцах нет много денег, раздел ОВК -нет. Все буду чертить и считать сам. По котельне - газ + электро котел, косвеник (напольный или настенный). Воду планирую вывести в этот угол (вода - городская). Посоветуйте (не шарю в водоочистных девайсах). Если городская вода - после очистки, нужно учитывать ещё стену под что-то, кроме водоподготовки в СО? Посилання на коментар Поділитися на інших сайтах More sharing options...
Сергей 31 Опубліковано: 21 квітня 2021 Автор Поділитись Опубліковано: 21 квітня 2021 На водоочистку нужно оставить 1м/п стены, можно в угол скомпоновать. Последовательность: фильтр, водоочистка, фильтр. Предусмотреть слив водоочистки он напорный, розетку. Бойлер косвенник легко становится под котлами и экономит место в котельной. 1 Посилання на коментар Поділитися на інших сайтах More sharing options...
Николай_serv Опубліковано: 25 квітня 2021 Поділитись Опубліковано: 25 квітня 2021 ... Бойлер косвенник легко становится под котлами и экономит место в котельной. а потім сервісант кляне монтажників за такий монтаж, бо до котла треба підходити не тільки щоби на кнопочку княпнуть, а ще й покрутити щось всередині, або у розш. бак щось качнути. 2 Посилання на коментар Поділитися на інших сайтах More sharing options...
Сергей 31 Опубліковано: 25 квітня 2021 Автор Поділитись Опубліковано: 25 квітня 2021 а потім сервісант кляне монтажників за такий монтаж, бо до котла треба підходити не тільки щоби на кнопочку княпнуть, а ще й покрутити щось всередині, або у розш. бак щось качнути. (потім сервісант кляне монтажників), такое может возникнуть от незнания заказчиком вопроса. Котельщик должен свою работу по котельной сдавать не заказчику, а сервисанту, который принимает его работу или нет. Если у котельщика есть сомнения, то до начала работ по котельной он должен согласовать с сервисом все вопросы. Если нет с заказчиком других договоренностей то сначала: Пуск котла и системы отопления, гарантийка по котлу на руки заказчику и после этого денюжка за работу по котельной. Посилання на коментар Поділитися на інших сайтах More sharing options...
Сергей 31 Опубліковано: 27 квітня 2021 Автор Поділитись Опубліковано: 27 квітня 2021 ............... 2 Посилання на коментар Поділитися на інших сайтах More sharing options...
Dendnepr Опубліковано: 28 квітня 2021 Поділитись Опубліковано: 28 квітня 2021 (потім сервісант кляне монтажників), такое может возникнуть от незнания заказчиком вопроса. Котельщик должен свою работу по котельной сдавать не заказчику, а сервисанту, который принимает его работу или нет. Если у котельщика есть сомнения, то до начала работ по котельной он должен согласовать с сервисом все вопросы. Если нет с заказчиком других договоренностей то сначала: Пуск котла и системы отопления, гарантийка по котлу на руки заказчику и после этого денюжка за работу по котельной. Так сервисмен разве принимает работу по критерию "удобство обслуживания"? Если все подключения сделаны правильно, но при этом возле котла, как под капотом Бугатти - разве это причина отказа в приемке и запуске? Единственное, неудобство обслуживания может сказаться на продолжительности и стоимости этого обслуживания. Посилання на коментар Поділитися на інших сайтах More sharing options...
Сергей 31 Опубліковано: 28 квітня 2021 Автор Поділитись Опубліковано: 28 квітня 2021 Так сервисмен разве принимает работу по критерию "удобство обслуживания"? Если все подключения сделаны правильно, но при этом возле котла, как под капотом Бугатти - разве это причина отказа в приемке и запуске? Единственное, неудобство обслуживания может сказаться на продолжительности и стоимости этого обслуживания. Однажды, мне на подобный вопрос ответил один главный севисант: "(не знаю какой дебил приедет на ввод котла в эксплуатацию). Посилання на коментар Поділитися на інших сайтах More sharing options...
Рекомендовані повідомлення
Створіть акаунт або увійдіть у нього для коментування
Ви маєте бути користувачем, щоб залишити коментар
Створити акаунт
Зареєструйтеся для отримання акаунта. Це просто!
Зареєструвати акаунтУвійти
Вже зареєстровані? Увійдіть тут.
Увійти зараз