Oxkon Опубліковано: 5 серпня 2010 Поділитись Опубліковано: 5 серпня 2010 Сразу прошу прощения у спецов за вопросы, т.к. в электричестве "некопенгаген":) , а вопросы задаю, т.к. больно уж любопытная;) Исходные данные: Сруб, планируется проводка в нем открытым способом, в кабельканалах (видимые места) гофрорукав (скрытые места). Проводка осуществляется кабелем ВВГнг. Кроме обычных розеток-выключателей планируется подключение электроконвекторов, бойлера, стиралки и варочной поверхности электрической. Электрик настаивает на установке 10 штук Дифреле 1Р на 25 А на каждую точку повышенного энергопотребления. Имеет ли это смысл? Или достаточно 1-2 УЗО? Причем 1 узо на счетчике уже есть. От счетчика (который на гараже) идет кабельная линия на щиток в доме. Посилання на коментар Поділитися на інших сайтах More sharing options...
Oxkon Опубліковано: 5 серпня 2010 Автор Поділитись Опубліковано: 5 серпня 2010 Сразу прошу прощения у спецов за вопросы, т.к. в электричестве "некопенгаген":) , а вопросы задаю, т.к. больно уж любопытная;) Исходные данные: Сруб, планируется проводка в нем открытым способом, в кабельканалах (видимые места) гофрорукав (скрытые места). Проводка осуществляется кабелем ВВГнг. Кроме обычных розеток-выключателей планируется подключение электроконвекторов, бойлера, стиралки и варочной поверхности электрической. Электрик настаивает на установке 10 штук Дифреле 1Р на 25 А на каждую точку повышенного энергопотребления. Имеет ли это смысл? Или достаточно 1-2 УЗО? Причем 1 узо на счетчике уже есть. От счетчика (который на гараже) идет кабельная линия на щиток в доме. Посилання на коментар Поділитися на інших сайтах More sharing options...
sanykrimea Опубліковано: 5 серпня 2010 Поділитись Опубліковано: 5 серпня 2010 Такое количество УЗО необходимо при системе заземления ТТ. То есть, контур заземления не связан с N. В этом случае защита от поражения электрическим током обеспечивается только УЗО. Система ТТ применяется в крайнем случае - если невозможна система TN-C-S. В системе заземления TN-C-S допускается не устанавливать УЗО на линии питания стационарных электроприёмников - при пробое на заземлённый корпус образуется К.З. - его отлично видит автоматический выключатель. Узнайте, какая система заземления у Вас. Посилання на коментар Поділитися на інших сайтах More sharing options...
Oxkon Опубліковано: 5 серпня 2010 Автор Поділитись Опубліковано: 5 серпня 2010 Такое количество УЗО необходимо при системе заземления ТТ. То есть, контур заземления не связан с N. В этом случае защита от поражения электрическим током обеспечивается только УЗО. Система ТТ применяется в крайнем случае - если невозможна система TN-C-S. В системе заземления TN-C-S допускается не устанавливать УЗО на линии питания стационарных электроприёмников - при пробое на заземлённый корпус образуется К.З. - его отлично видит автоматический выключатель. Узнайте, какая система заземления у Вас. Спасибо, как узнать, какая система заземления у нас? Где это должно быть видно? Система заземления выбирается при электрофикации дома или это уже существующая данность? Извините за глупые вопросы... Посилання на коментар Поділитися на інших сайтах More sharing options...
sanykrimea Опубліковано: 5 серпня 2010 Поділитись Опубліковано: 5 серпня 2010 Должно быть видно в вводном щитке. Шина N (ноль) и шина РЕ (заземление) связаны между собой перемычкой. Если есть возможность -выложите фото. Система выбирается по условиям электробезопасности. Как правило - TN. Посилання на коментар Поділитися на інших сайтах More sharing options...
Oxkon Опубліковано: 5 серпня 2010 Автор Поділитись Опубліковано: 5 серпня 2010 Должно быть видно в вводном щитке. Шина N (ноль) и шина РЕ (заземление) связаны между собой перемычкой. Если есть возможность -выложите фото. Система выбирается по условиям электробезопасности. Как правило - TN. Выложу фото сегодня вечером. Спасибо. Посилання на коментар Поділитися на інших сайтах More sharing options...
Vladdi Опубліковано: 5 серпня 2010 Поділитись Опубліковано: 5 серпня 2010 Если контур заземления специально не строился - по внешнему виду и наличию перемычки я бы не решился на однозначный совет. Тем более по защите. Из собственной практики: многие "электрики" используют обе шины и N и РЕ для включения нулевых выводов - в щитках ковыряться неудобно, места мало, лепят провода куда удобнее. Теоретически, ничего страшного при некоторых определенных условиях, но лучше контур все же сделать правильно. Посилання на коментар Поділитися на інших сайтах More sharing options...
sanykrimea Опубліковано: 5 серпня 2010 Поділитись Опубліковано: 5 серпня 2010 Если контур заземления специально не строился - по внешнему виду и наличию перемычки я бы не решился на однозначный совет. Тем более по защите. Из собственной практики: многие "электрики" используют обе шины и N и РЕ для включения нулевых выводов - в щитках ковыряться неудобно, места мало, лепят провода куда удобнее. Теоретически, ничего страшного при некоторых определенных условиях, но лучше контур все же сделать правильно. Вряд ли "электрики" влепят N отходящий на шину ТТ - напряжение упадёт. Вечером посмотрим. Посилання на коментар Поділитися на інших сайтах More sharing options...
snickers Опубліковано: 5 серпня 2010 Поділитись Опубліковано: 5 серпня 2010 Такое количество УЗО необходимо при системе заземления ТТ. То есть, контур заземления не связан с N. В этом случае защита от поражения электрическим током обеспечивается только УЗО. Какая-то странная теория. Ну поставьте двух/трехступенчатую дифф.защиту. Одно УЗО есть в столбе, влепите еще два на 63А последовательно, будет трехступенчатое. Причем это к десяти штукам на 25А. Это делается для удобства, удобство это проявится только в аварийной ситуации, которые не имеют права случаться часто. Кроме того фраза "1P 25A" наталкивает на мысль, что речь идет о дифф.автомате, а не об УЗО. Посилання на коментар Поділитися на інших сайтах More sharing options...
Oxkon Опубліковано: 6 серпня 2010 Автор Поділитись Опубліковано: 6 серпня 2010 Вчера дома не было интернета, поэтому выкладываю фото только сейчас. И надеюсь на помощь в определении системы заземления Посилання на коментар Поділитися на інших сайтах More sharing options...
snickers Опубліковано: 6 серпня 2010 Поділитись Опубліковано: 6 серпня 2010 И надеюсь на помощь в определении системы заземления .................. TN-C-S Посилання на коментар Поділитися на інших сайтах More sharing options...
Oxkon Опубліковано: 6 серпня 2010 Автор Поділитись Опубліковано: 6 серпня 2010 .................. TN-C-S Это значит, что потребности в установке 10 УЗО нет? Посилання на коментар Поділитися на інших сайтах More sharing options...
snickers Опубліковано: 6 серпня 2010 Поділитись Опубліковано: 6 серпня 2010 Это значит, что потребности в установке 10 УЗО нет? Что Вы подразумеваете по словом "потребность"? Если то, что требуют делать обязательно правила, то все что нужно, Вам уже поставили во вводной ящик. Можете наколбасить 16А ИЭКов на каждую линию и все. Все остальное - некий компромисс между безопасностью/удобством/надежностью/ценой, что лично Вы выберете - это уже Ваше персональное дело. 1 Посилання на коментар Поділитися на інших сайтах More sharing options...
Oxkon Опубліковано: 6 серпня 2010 Автор Поділитись Опубліковано: 6 серпня 2010 Что Вы подразумеваете по словом "потребность"? Если то, что требуют делать обязательно правила, то все что нужно, Вам уже поставили во вводной ящик. Можете наколбасить 16А ИЭКов на каждую линию и все. Все остальное - некий компромисс между безопасностью/удобством/надежностью/ценой, что лично Вы выберете - это уже Ваше персональное дело. Кабы я знала, что выбрать..... Мне предложено было установка 10 УЗО. Они довольно дорогие, стала консультироваться, обязательно ли это. Если это непременное условие с точки зрения БЕЗОПАСНОСТИ людей и дома - вопросов нет и я пойду на эти траты. А если есть альтернативный, но такой же безопасный способ электрофикации, но без использования такого количества УЗО, то я готова его использовать. В ходе обсуждения тут темы я поняла, что такой способ есть и буду его теперь обсуждать со своим электриком (или найду другого, если этот не будет склонен изменить схему электромонтажа) Посилання на коментар Поділитися на інших сайтах More sharing options...
Шарманщик Опубліковано: 6 серпня 2010 Поділитись Опубліковано: 6 серпня 2010 Что Вы подразумеваете по словом "потребность"? Если то, что требуют делать обязательно правила, то все что нужно, Вам уже поставили во вводной ящик. Можете наколбасить 16А ИЭКов на каждую линию и все. Все остальное - некий компромисс между безопасностью/удобством/надежностью/ценой, что лично Вы выберете - это уже Ваше персональное дело. Простите, что влез, но обращаю внимание отвечающих, что вопрос задает дама, которая честно сказала не старте, что не очень опытна в подобных делах....:D Разрешите пояснить - наличие ДА(дифавтомата) на линиях питания розеток и мощных потребителей - стиралка, микроволновка, водонагреватель, духовка, электроплита и т.д.- очень полезная опция - в случае проблемы с одним из них сработает ДА только конкретной линии, всем остальным можно будет спокойно пользоваться... В Вашем случае - одно УЗО на входе, для всех, при неисправности какой либо фиговины, будет обесточен весь дом, что не очень удобно - кто из нас сразу найдет фонарь и спички, когда отключают свет??? Вот и рекомендуют спецы- потратить чуток больше денег - ДА на 25А у Моэллера сейчас стоит 120-140 грн - т.е.10 шт - это 150 у.е. ну не супер огромные денежки - а вот удобства существования- куча здоровая... Прочитал Ваш пост - добавляю - полезность и незаменимость ДА, с точки зрения безопасности Вашего дома - ну просто нет с чем сравнить - столько раз обсуждалось на форуме, нет смысла повторять - просто прочитайте в разделе про Электричество. А простыми словами - Ежели используете ДА Ваш дом никогда и никого не ударит током - представляете? И не гоните ТАКОГО электрика - он спец и судя по всему достойный, ежели отказывает даме, несмотря на угрозу замены - он МАСТЕР!!! Посилання на коментар Поділитися на інших сайтах More sharing options...
Oxkon Опубліковано: 6 серпня 2010 Автор Поділитись Опубліковано: 6 серпня 2010 ДА на 25А у Моэллера сейчас стоит 120-140 грн - т.е.10 шт - это 150 у.е. ну не супер огромные денежки - а вот удобства существования- куча здоровая... Где можно купить такие УЗО за эту цену, дадите ли явки-пароли? И не гоните ТАКОГО электрика - он спец и судя по всему достойный, ежели отказывает даме, несмотря на угрозу замены - он МАСТЕР!!! Не буду гнать Посилання на коментар Поділитися на інших сайтах More sharing options...
kravchuk14 Опубліковано: 6 серпня 2010 Поділитись Опубліковано: 6 серпня 2010 Где можно купить такие УЗО за эту цену, дадите ли явки-пароли? Не буду гнать Простыми словами и еще проще: Есть супер у вас устройство на входе УЗО - оно обеспечит отключение питания если кого-то "попробует ударить током" неисправная стиралка, варочная поверхность, компьютер. Но при этом у вас при этом пропадет напряжение везде!!! Но никого не убьет А вот электрик предлагает подключить вам далее на каждый провод еще по такому же устройству. В таком случае если стиралка "попытается ударить током" то выключится этот Диф Автомат, а вот свет, компьютер будет работать как ни вчем не бывало. Т.е. никого не убьет, но свет будет гореть и так далее. Чего бы я сделал, чтобы защититься и не париться: 1 Не ставить ничего, ведь УЗО на входе уже есть - пусть работает себе оно (если денег нет совсем) ВАМ НЕ ПОДХОДИТ 2 Разбить всю проводку на несколько групп и на них установить уже УЗО (или Диф Автомат, что в данном контексте аналогично). Например: - свет - Ванная - все розетки -.... Расскажите о ваших помещениях, что о схеме знаете, сфоткайте проводку - прикинем к носу ПС: Суть разбития усложняет монтаж в ящике, в котором может и не очень то с местом. Именно поэтому и морозится ваш электрик. Для тети я бы тоже ее укатал - купи 10 штук и все тут, деньги то не мои. А вот для себя я бы разработал бы схему и не покупал бы 10 штук, оптимизировал бы так сказать, деньги то мои ППС: китайские паленые дешевые узо 10 шт хуже 2-х европейских дорогих установленных в схему по уму Посилання на коментар Поділитися на інших сайтах More sharing options...
Uvex Опубліковано: 6 серпня 2010 Поділитись Опубліковано: 6 серпня 2010 Вот и рекомендуют спецы- потратить чуток больше денег - ДА на 25А у Моэллера сейчас стоит 120-140 грн - т.е.10 шт - это 150 у.е. ну не супер огромные денежки - а вот удобства существования- куча здоровая... А можно с этого места подробнее? Я смотрел Хагер, Сименс - диф. автоматы по 400 грн. Неужели Моэллер настолько дешевле? Можно явки в студию? 1 Посилання на коментар Поділитися на інших сайтах More sharing options...
stars Опубліковано: 6 серпня 2010 Поділитись Опубліковано: 6 серпня 2010 можно взять ДА Schneider Electric серии домовой, для дома вполне достаточно, будет стоит прим. 260 грн и закрыть им каждую важную линию: ванную, кухню розетки и не переживать более ни о чем, есть еще вариант Schrack, не дороже мёллера будет Посилання на коментар Поділитися на інших сайтах More sharing options...
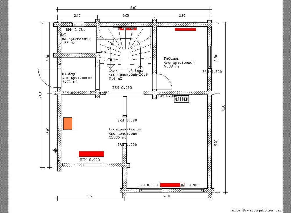
Oxkon Опубліковано: 6 серпня 2010 Автор Поділитись Опубліковано: 6 серпня 2010 Места нет в этом ящике, он на улице. В доме установлен еще один ящик, только для автоматов. Воможно их (ящиков) будет два: на первом и втором этаже. Проводку я не могу сфотографировать, ее еще нет. Мне был выдан список необходимых материалов и будут приступать к проводке после того, как я все куплю. Прикладываю примерную схему основных точек электропотребления. Все остальное- обычные розетки и выключатели. Красные прямоугольники - электроконвекторы. Оранжевый - эл. варочная поверхность Синий - бойлер Зеленый - стиралка Посилання на коментар Поділитися на інших сайтах More sharing options...
stars Опубліковано: 6 серпня 2010 Поділитись Опубліковано: 6 серпня 2010 Думаю, что стоит все-таки поставить 2 небольших эл. щитка на каждый этаж вместо 1-го огромного, из практики скажу, что делая себе и знакомым электропроводку разбивали на группы в зависимости от типа нагрузки (ванная отдельно, розетки на кухне отдельно, плита отдельно, розетки в комнатах группировали по предполагаемой мощности потребителей и удобству, бойлеры и пр. тоже отдельно) и мощности нагрузки. Вот эти группы закрывали ДА, свет не обязательно, можно поставить по 1-му 16А на этаж или вообще 1 на 16А (смотря какие по мощности будете светильники использовать). Зачем изобретать велосипед и усложнять то, что может быть просто. По поводу материалов, могу помочь, есть все от кабеля до лампочки, все кроме ИЕКа и подобного, цены будут интересные Посилання на коментар Поділитися на інших сайтах More sharing options...
Електрик J Опубліковано: 6 серпня 2010 Поділитись Опубліковано: 6 серпня 2010 Диференциальный автомат Moeller PFL6-25/1N/C003 (шт.)=22,50 у.е. :beer:Прайс_лист Moeller.xls Посилання на коментар Поділитися на інших сайтах More sharing options...
Konstruktor Опубліковано: 6 серпня 2010 Поділитись Опубліковано: 6 серпня 2010 Диференциальный автомат Moeller PFL6-25/1N/C003 (шт.)=22,50 у.е. :beer: А можно контакты, а то мне со скидками сделали в районе 230грн. Да и ждал 2 недели. Еще вопрос честный меоллер или с рынка? Посилання на коментар Поділитися на інших сайтах More sharing options...
Електрик J Опубліковано: 6 серпня 2010 Поділитись Опубліковано: 6 серпня 2010 А можно контакты, а то мне со скидками сделали в районе 230грн. Да и ждал 2 недели. Еще вопрос честный меоллер или с рынка? 1. Пишите заказ. 09492 шесть сорок4 2семь 2. То что в прайсе поддерживаем постоянно. если по специфики то можно и пару месяцев ждать. Все кормяться с одного склада. 3. Что значит честный? Вообще он сейчас ребрендинг переживает (в связи со сменой собственника) на EATON (Франция) осюда и разные слухи. Поддельный не встречал. На рынки сами поставляем. Посилання на коментар Поділитися на інших сайтах More sharing options...
Konstruktor Опубліковано: 6 серпня 2010 Поділитись Опубліковано: 6 серпня 2010 1. Пишите заказ. 09492 шесть сорок4 2семь 2. То что в прайсе поддерживаем постоянно. если по специфики то можно и пару месяцев ждать. Все кормяться с одного склада. 3. Что значит честный? Вообще он сейчас ребрендинг переживает (в связи со сменой собственника) на EATON (Франция) осюда и разные слухи. Поддельный не встречал. На рынки сами поставляем. Можно почту и мыло в личку? Будут заказы, буду обращаться. Посилання на коментар Поділитися на інших сайтах More sharing options...
Рекомендовані повідомлення
Створіть акаунт або увійдіть у нього для коментування
Ви маєте бути користувачем, щоб залишити коментар
Створити акаунт
Зареєструйтеся для отримання акаунта. Це просто!
Зареєструвати акаунтУвійти
Вже зареєстровані? Увійдіть тут.
Увійти зараз