КОРН Опубліковано: 10 листопада 2011 Поділитись Опубліковано: 10 листопада 2011 Вы не указали шаг стропил. Кроме того, не понял, как трактовать "в нижней трети длины стропила опираются на чердачное деревянное перекрытие". Условия: вес кровли примерно 0.02т/м2. Снег тоже для 5-го снегового 0.179т/м2. Но для вашего угла есть вариант нарузки, когда на 1 пролет 0.135т/м2 а на другой 0.224т/м2. К-т ответственности 0.95. Предположим, что стропила имеют пролет 3.5м. Тогда шаг между осями стропил должен быть не более 0.7м. А вот коньковой балки критически мало. При грузовой зоне на него 3.5м суммарная нагрузка будет в районе 0.697т/м. Предположим пролет 3.4м. Тогда сечение 150х100 (2 сорт) перегружено почти в 2 раза! Если точно, то в 1.952. Я сейчас не буду читать лекцию о запасах по нагрузке или по прочности в строительстве, вспоминать, что по "ДБН В.1.2-2:2006 СНББ. Навантаження і впливи. Норми проектування" по сравнению со "СНиП 2.01.07-85 Нагрузки и воздействия" рассчетные снеговые нагрузки увеличены раза в полтора. Это правда вкупе с измененной методикой рассчета нагрузок вообще. Короче коньковую балку я бы усилял. Как? Надо подумать. Не хотелось бы засорять эту тему постами о своей крыше, но, так как вы любезно согласились помочь... Шаг стропил 0,6 м (под утеплитель) "Опирается на чердачное перекрытие" значит крайние балки чердачного перекрытия уложены вплотную к стропилам, как прогоны. Чердачное перекрытие находится выше армопояса на 60 см. Мне трудно представить как на металлочерепице может задерживаться снег. А если я под коньковый прогон добавлю маленькие распор затяжки на стропила? Этот узел станет прочнее? Посилання на коментар Поділитися на інших сайтах More sharing options...
КОРН Опубліковано: 10 листопада 2011 Поділитись Опубліковано: 10 листопада 2011 Ну если у Макса есть зазоры по бокам от конькового прогона и есть выворот, то можно наростить прогон с 2х сторон, т.к. он уже составной. Хотя, на сколько я помню конструкцию, возможно под коньком пустить лежень на балки перекрытия и устроить подпоры от конька на него. Ни то ни другое нельзя, к сожалению. Посилання на коментар Поділитися на інших сайтах More sharing options...
КОРН Опубліковано: 10 листопада 2011 Поділитись Опубліковано: 10 листопада 2011 Макс, что сразу могу сказать - в мауэрлатах ничего не пилится ;) Мауэрлат должен быть цельным и с горизонтальной верхней полкой. При любой стропилке (распорной и безраспорной) Он служит горизонтальным основанием для пятки стропила, и не должен позволять соскальзывать стропилу вниз. Ну и заодно нельзя ослаблять мауэрлат пропилами. НО. Для твоей крыши с ее размерами и уклоном - это не смертельно ;) Но на всякий случай проверь крепление стропил к коньковому прогону и крепление их в районе мауэрлата на предмет соскальзывания. Если стропила скреплены бантиной вверху, то можеь спать спокойно Да, я так и думал Прикол в том, что я неправильно расположил мауэрлат, т.е. шпильки под него. Я его сдвинул к наружному краю стены. Чтобы уменьшить его высоту в месте опирания стропил я сделал пропилы на 5 см на ширину стропилины, опять же сделав горизонтальное основание под пятку. Потом еще и расклинил их в этой щели. Нижняя часть стропилины оказалась как-бы зажата в мауэрлате+прибита. Вот крепление в коньке меня немного настораживает. Не доверяю я скобам. Надо будет сделать по верху маленькие затяжечки.;) Посилання на коментар Поділитися на інших сайтах More sharing options...
Игореха Опубліковано: 10 листопада 2011 Автор Поділитись Опубліковано: 10 листопада 2011 Да, я так и думал Прикол в том, что я неправильно расположил мауэрлат, т.е. шпильки под него. Я его сдвинул к наружному краю стены. Чтобы уменьшить его высоту в месте опирания стропил я сделал пропилы на 5 см на ширину стропилины, опять же сделав горизонтальное основание под пятку. Потом еще и расклинил их в этой щели. Нижняя часть стропилины оказалась как-бы зажата в мауэрлате+прибита. Вот крепление в коньке меня немного настораживает. Не доверяю я скобам. Надо будет сделать по верху маленькие затяжечки.;) На сколько жестко закреплены стропила на мауэрлат? Как бы ты им не обеспечил распор на стены... Посилання на коментар Поділитися на інших сайтах More sharing options...
MWer Опубліковано: 10 листопада 2011 Поділитись Опубліковано: 10 листопада 2011 ... 5. Сразу ответ на следующий пост: для обрешетки консоль 1м очень злая. Я бы на краю кровли поставил еще 1 стропилину оперев ее на консоль прогона и мауэрлата (сечение мауэрлата надо проверить). Сечение стропилины может быть меньше, если опорная зона на него меньше, чем у средних. Так будет лучше всего - 1м консоли для обрешетки ой как много! ... Выводить прогоны не предлагаю. (Цитата от КОРН) И ранее по тексту как истина предполагаемое: прогоны выведенные наружу для поддержки свесов - вред!? Понимаете ли вы (КОРН, Игореха), что прогоны наружу - это обязательно? И нет никаких равных по полезности вариантов? Я бы на метровом пролете вылета поставил две стропилины, для надежной опоры не только свеса, но и его подшивки... Посилання на коментар Поділитися на інших сайтах More sharing options...
wertexan Опубліковано: 10 листопада 2011 Поділитись Опубліковано: 10 листопада 2011 Н Мне трудно представить как на металлочерепице может задерживаться снег. Может снег задерживаться. Не вседа, правда, такое бывает, но вполне держится. (Цитата от КОРН) И ранее по тексту как истина предполагаемое: прогоны выведенные наружу для поддержки свесов - вред!? Понимаете ли вы (КОРН, Игореха), что прогоны наружу - это обязательно? И нет никаких равных по полезности вариантов? Я бы на метровом пролете вылета поставил две стропилины, для надежной опоры не только свеса, но и его подшивки... Варианты есть. Не фонтан, но имеют право на жизнь. Например сделать "лесенку", связав поперечными балочками стропило свеса и ближайшее внутреннее стропило с другой стороны фронтона и оперев эти балочки на фронтон. Иногда приходилось так делать, когда заказчик не хотел делать короба, чтоб спрятать консоли коньковой балки и мауэрлата. А 1 раз вообще было бы нелепо — делал крышу для одного костела в Винницкой области. Там размеры были такие, что стропила приходилось опирать на 3 (вместе с коньковой) балки (прогона) из 24 двутавра и выводить по фронтону кучу (5) коробов для закрытия консолей или делать визуально массивный свес не получалось. Пришлось "лесенку" делать. Вот для примера: Сразу оговорюсь. Теперь кое-что я бы делал иначе. 1 Посилання на коментар Поділитися на інших сайтах More sharing options...
MWer Опубліковано: 10 листопада 2011 Поділитись Опубліковано: 10 листопада 2011 Я написал:"равных по полезности". А так, они есть конечно, но дороже или хуже. Или и то, и другое вместе. Посилання на коментар Поділитися на інших сайтах More sharing options...
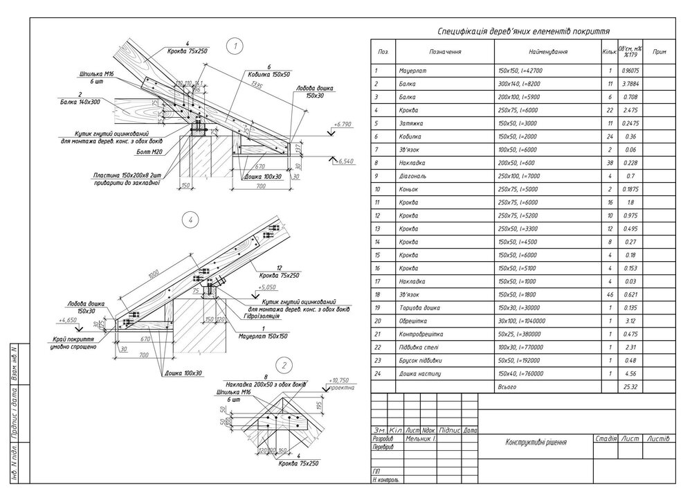
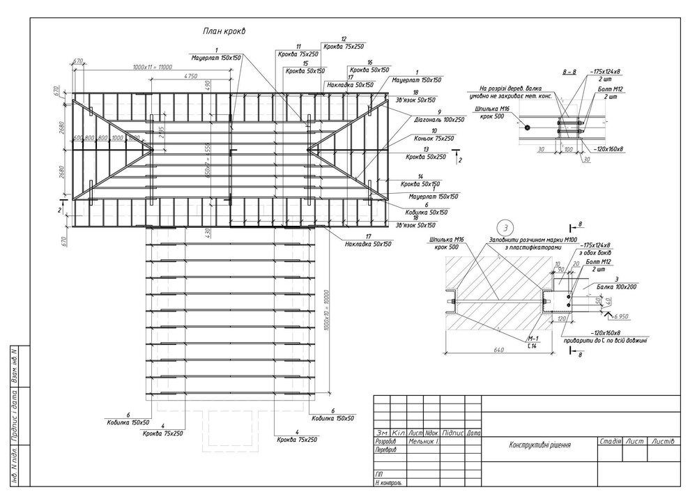
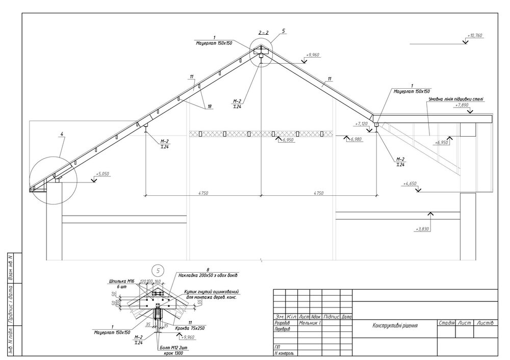
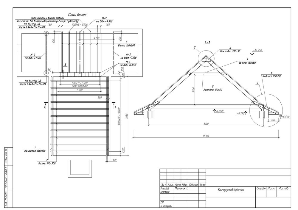
Игореха Опубліковано: 5 грудня 2011 Автор Поділитись Опубліковано: 5 грудня 2011 Наконец-то я добрался до кровли Материал завез. Мауэрлаты выставил. Дальше надо смонтировать прогоны и коньковый брус. И вот тут делема... На картинке - моя конструкция фронтона. Подскажите, практически, как более правильно и надежно осуществить крепление прогонов к фронтонам, дабы избежать воздействия больших горизонтальных усилий на фронтоны от конструкции кровли? Посилання на коментар Поділитися на інших сайтах More sharing options...
Игореха Опубліковано: 10 грудня 2011 Автор Поділитись Опубліковано: 10 грудня 2011 Ну раз никто не поделился идеями по поводу узла крепления прогонов к фронтонам, пришлось изобрести этот узел самому:D Дабы не дублировать сообщение, просто дам ссылку на сообщение в своей ветке - может кому еще пригодится ;) www.stroimdom.com.ua/forum/showpost.php?p=1305517&postcount=548 Посилання на коментар Поділитися на інших сайтах More sharing options...
Игореха Опубліковано: 10 грудня 2011 Автор Поділитись Опубліковано: 10 грудня 2011 Теперь у меня еще делема - как устроить консоль свеса кровли за фронтоном, чтобы ее не обломало под нагрузкой. Со свесом кровли под мауэрлатами все выходит красиво вроде. Довольно мощные кобылки решат эту задачу, а вот с фронтонами - задача. От крайней стропилины до края обрешетки за фронтоном - около 1 метра. обрешетка из доски 30ки. Выпускать прогоны за фронтон не хочу принципиально. И выглядит пошло и очень громоздко. Опирать консоль (обрешетку) на фронтон вроде как неправильно. Вот думаю может подбить под обрешетку доску параллельно стропилам и опереть эту доску на фронтон через слой гидроизоляции, обеспечив свободное ее скольжение по стене фронтона? Тем самым уменьшу свободный провис консоли за фронтоном до 50см. Кто что может сказать по поводу такой конструкции свеса? Посилання на коментар Поділитися на інших сайтах More sharing options...
Игореха Опубліковано: 14 грудня 2011 Автор Поділитись Опубліковано: 14 грудня 2011 Похоже все крышники ушли на покой до нового строительного сезона:D Ну да ладно. А крыша потихоньку начинает расти. Как я решил задачу построения ровной стропильной системы - смотереть тут www.stroimdom.com.ua/forum/showpost.php?p=1312625&postcount=562 может кому будет полезно Ну а вопрос по всесам за фронтонами пока остается открытым. Посилання на коментар Поділитися на інших сайтах More sharing options...
Mentor Опубліковано: 15 грудня 2011 Поділитись Опубліковано: 15 грудня 2011 Ну а вопрос по всесам за фронтонами пока остается открытым. Вариант такой предложу. Нагрузка от свеса распределяется поперечинами на стену фронтона - частота и кол-во поперечин зависит от веса кровли. Надеюсь помог 1 Посилання на коментар Поділитися на інших сайтах More sharing options...
Игореха Опубліковано: 15 грудня 2011 Автор Поділитись Опубліковано: 15 грудня 2011 Вариант такой предложу. Нагрузка от свеса распределяется поперечинами на стену фронтона - частота и кол-во поперечин зависит от веса кровли. Надеюсь помог Да, спасибо! Сегодня я и сам почти пришел к похожему варианту. Вот только коньковый прогон у меня не будет выходить за фронтон, т.к. он находится под стропилами фактически. Я выпущу меньший прогон, закрепленный по верху конькового прогона. Вот с теми коротышами, перпендикулярно стропилам еще в раздумиях. В таком виде как на картинке, их однозначно надо нагружать на фронтон, т.к. они фиксируются одним торцом перпендикулярно крайним стропилам, а хотелось бы уменьшить зависимость этих прогончиков от фронтона и сделать что-то типа консоли, но для этого уже необходимо задействовать как минимум 2 крайних стропильных ноги, а зарезать стропила естественно не хочется, да и неправильно это. Но двигаюсь именно в этом направлении сейчас. Буду еще думать, как соорудить эти узлы и уменьшить связь с фронтоном. Посилання на коментар Поділитися на інших сайтах More sharing options...
Mentor Опубліковано: 15 грудня 2011 Поділитись Опубліковано: 15 грудня 2011 Буду еще думать, как соорудить эти узлы и уменьшить связь с фронтоном. С чем связано предубеждение по поводу фронтона? Предложеный мной вариант очень устойчивый, кроме того позволяет легко обшить свесы, в то время как выпуски мауэрлата и прогонов создают проблемы с обшивкой (их нужно либо обшивать и тем самым "утяжелять" конфигурацию свеса, либо оставлять открытыми и как-то обыгрывать, тонировать обрабатывать и т.п... Но дело ваше....тут каждый "сходит с ума по своему":beer: Посилання на коментар Поділитися на інших сайтах More sharing options...
Игореха Опубліковано: 15 грудня 2011 Автор Поділитись Опубліковано: 15 грудня 2011 (змінено) С чем связано предубеждение по поводу фронтона? Предложеный мной вариант очень устойчивый, кроме того позволяет легко обшить свесы, в то время как выпуски мауэрлата и прогонов создают проблемы с обшивкой (их нужно либо обшивать и тем самым "утяжелять" конфигурацию свеса, либо оставлять открытыми и как-то обыгрывать, тонировать обрабатывать и т.п... Но дело ваше....тут каждый "сходит с ума по своему":beer: По поводу выпуска прогонов, я и сам выше писал - не хочу я их выпускать за фронтон по многим причинам. Тяжелей конструкция, мне не нравится внешний вид обшитых прогонов, более толстый пирог свеса и т.п. Поэтому и хочу типа консоли - более "воздушная" крыша и меньше возни и головняка с подшивкой. А делать самому, так что ищу пути упрощения Просто на картинке тоже есть вынос конькового прогона за фронтон, вот и от него хочу уйти. А вот по поводу предубеждения... таки оно есть Ну просто не люблю я связывать кирпич и дерево. Разные материалы, разные коэффициенты, дерево будет "играть" по кирпичному фронтону. Поэтому хочу именно минимизировать зависимость одного от другого. Так что ваш совет вполне дельный и более того мне самому нравится такой вариант. Но все же хочу доработать эту конструкцию с учетом своих фобий:D И уверен что у меня это должно получиться, но пока еще не знаю как. Но т.к. на разных этапах стройки я уже много ноу-хау придумал, то верю в то, что придумаю еще одно;) Змінено 15 грудня 2011 користувачем Игореха Посилання на коментар Поділитися на інших сайтах More sharing options...
wertexan Опубліковано: 15 грудня 2011 Поділитись Опубліковано: 15 грудня 2011 Вариант такой предложу. Нагрузка от свеса распределяется поперечинами на стену фронтона - частота и кол-во поперечин зависит от веса кровли. Надеюсь помог Выше я уже давал чертежи с таким примером. Посилання на коментар Поділитися на інших сайтах More sharing options...
Игореха Опубліковано: 16 грудня 2011 Автор Поділитись Опубліковано: 16 грудня 2011 Выше я уже давал чертежи с таким примером. Да, да, точно - было! Просто тогда для меня этот вариант казался совсем неприемлемым, а поэтому я его потом выпустил из виду Было, про лесенку. И заказчик похоже такой же вредный как и я:D Вижу, что видимо без опирания на фронтон не выйдет... А что если... рядом с крайней стропилиной поставить еще одну, т.е. сделать пару. И немного запилиться в стропила сверху на уровне прогонов. И сделать замок с этими коротенькими прогончиками, которые будут выходить за фронтон, дабы задействовать не только крайнее стропило, а еще и второе и будет консоль без опирания на фронтон... Идея вроде бредовая, но очень хочется ее просчитать Посилання на коментар Поділитися на інших сайтах More sharing options...
Gribll Опубліковано: 16 грудня 2011 Поділитись Опубліковано: 16 грудня 2011 Прочитавши вашу тему Игорьоха вирішив взяти таке саме січення прогону,конькового бруса і стропил з огляду на те що будинок тоже 10на10 з прольотом прогону ві д фронтону до центральної стіни 4.5м.Але тим не менш проживаючи в будинку 10 на 13 який був збудований майже 30 років тому накритий цпч із стропилами 120*70 з прольтом між стропилами в один метр без конькового бруса і прогоном 140*120 з двома підпорними брусами такогож січення дивом дивуешся адже така стропильна система взагалі по вищезгаданим розрахункам не мала право на життя і всеж таки простояла стільки років як таке можливо? Посилання на коментар Поділитися на інших сайтах More sharing options...
Gribll Опубліковано: 16 грудня 2011 Поділитись Опубліковано: 16 грудня 2011 Прочитавши вашу тему Игорьоха вирішив взяти таке саме січення прогону,конькового бруса і стропил з огляду на те що будинок тоже 10на10 з прольотом прогону ві д фронтону до центральної стіни 4.5м.Але тим не менш проживаючи в будинку 10 на 13 який був збудований майже 30 років тому накритий цпч із стропилами 120*70 з прольтом між стропилами в один метр без конькового бруса і прогоном 140*120 з двома підпорними брусами такогож січення дивом дивуешся адже така стропильна система взагалі по вищезгаданим розрахункам не мала право на життя і всеж таки простояла стільки років як таке можливо? Посилання на коментар Поділитися на інших сайтах More sharing options...
Игореха Опубліковано: 17 грудня 2011 Автор Поділитись Опубліковано: 17 грудня 2011 Прочитавши вашу тему Игорьоха вирішив взяти таке саме січення прогону,конькового бруса і стропил з огляду на те що будинок тоже 10на10 з прольотом прогону ві д фронтону до центральної стіни 4.5м.Але тим не менш проживаючи в будинку 10 на 13 який був збудований майже 30 років тому накритий цпч із стропилами 120*70 з прольтом між стропилами в один метр без конькового бруса і прогоном 140*120 з двома підпорними брусами такогож січення дивом дивуешся адже така стропильна система взагалі по вищезгаданим розрахункам не мала право на життя і всеж таки простояла стільки років як таке можливо? Меня тоже начинают последнее время озадачивать многие стропилки, которые приходится видеть. Понимаешь что их особо не считали. Но объяснение этому очень простое. Вопервых, когда считают стропилку, то делают запас по прочности. Вовторых стропилку считают на определенный прогиб, как правило 1/250. Но это не говорит о том, что если нагрузка будет выше расчетной, или если ее вообще не считали и стропилка вышла на меньшую нагрузочную способность, то она под весом непременно должна рухнуть. НЕт - просто прогиб стропилки будет больше расчетного, не 1/250, а 1/150 например. Будет "китайская крыша" Естественно, по нормальному считается еще и разрушающая нагрузка, но она в 2-3-4 раза превышает нормальную. Ну и самое основное. Какая составляющая из всех нагрузок самая основная и большая? ;) Правильно - снеговая! Она обычно перевешивает все остальные нагрузки в сумме, во всяком случае для нашего снегового пояса. по разным источникам 180-210 кг/м2. Я выше где-то писал... Вы давно последний раз видели на скатной крыше слой льда, толщиною 30 см? А слой очень плотного снега, который тает во всей своей массе единовременно, толщиной 40 см? Ну или может видели просто 70 с линшим см обычного снега на крыше? ;) :D Так вот, собственно, просто ниодна из крыш возможно не проходила теста на максимальную снеговую нагрузку. Но это не говорит о том, что раз в 70 лет не выпадет снег, который упомянут в справочниках ;) Хотя, честно говоря, мне куажется порою, что справочники отстали от жизни на несколько столетий, либо информацию брали не из реальных условий, а по расчетам количества выпадающих осадков, без учета таяния, сметания ветром и т.п. Это конечно правильный подход, но в реальной жизни эти условия вряд-ли встречаются. Но тем не менее, лучше крышу просчитать, чтобы потом не было мучительно больно.... Я с высоты своей крыши, сейчас очень хорошо вижу крыши соседских домов. И что вы думаете? То что раньше с земли казалось ровным и идеальным, при детальном рассмотрении (а с крыши очень хорошо на глаз видно "прямые" линии коньков соседских) оказалось совсем не таким. Я с трудом представляю чтобы мой коньковый прогон просел на 8-15 см. А такие просадки - сплошь и рядом. 1 Посилання на коментар Поділитися на інших сайтах More sharing options...
Gribll Опубліковано: 17 грудня 2011 Поділитись Опубліковано: 17 грудня 2011 Так провисання прогонів не особливо радуе ,а якщо для прикладу зробити ще й жиле приміщення тріщини стелі будуть напевно постійними спутниками такого даху. Посилання на коментар Поділитися на інших сайтах More sharing options...
Игореха Опубліковано: 17 грудня 2011 Автор Поділитись Опубліковано: 17 грудня 2011 Так провисання прогонів не особливо радуе ,а якщо для прикладу зробити ще й жиле приміщення тріщини стелі будуть напевно постійними спутниками такого даху. То-то и оно Но ведь крыши-то стоят:D Кстати, сечение стропил у меня несколько избыточное. Считал. Достаточно было бы при моих пролетах и среднем прогоне 150*50 или чуть меньше. Брал 200*50 с расчетом на утеплитель. Пока не актуально, но может решусь со временем сделать эксплуатируемый чердак - площадь и размеры позволяют. Да и прогиб стропил будет еще меньше. ПС Ну а в принципе - просматривайте мою тему о стройке. Я там в основном отписываюсь о хронологии возведения своей крыши Посилання на коментар Поділитися на інших сайтах More sharing options...
Игореха Опубліковано: 17 грудня 2011 Автор Поділитись Опубліковано: 17 грудня 2011 И еще. Пока решал трудности с проектом стропилки, пересмотрел кучу информации и фотографий крыш в процессе изготовления. Кто-нибудь может подсказать, каков потаенный смысл выпуска неотторцованных досок/кобылок/стропил за свес и за фронтоны? Порою этот частокол отличается по длине на 1-1,5 метра? Нет, я конечно понимаю, что если изначально стоит задача очень-очень быстро набить доски и выставить стропила хоть как нибудь и получить премию за быстроту и кубатуру прибитого материала - не вопрос. Но ведь потом с этим гемороем тоже надо развлекаться, подрезать... Или может спецы заверят меня в том, что на весу, на высоте 8-10 метров можно потом под шнур очень точно отторцевать доски? Почему то я уверен, что если доски отторцевать заранее, ровно по лекалу, не на весу, а на верстаке, и потом их прибить уже под натянутый шнур, или ровную закрепленную рейку, то точность будет ни чем не хуже ;) Собственно собираюсь таким образом крепить кобылки, и возможно обрешетку свесоф вронтона тоже. Ужа даже изобрел способ как выставлять отторцованные кобылки по 2м шнурам, не свисая вниз головою с 8 метровой высоты над свесами Посилання на коментар Поділитися на інших сайтах More sharing options...
MWer Опубліковано: 17 грудня 2011 Поділитись Опубліковано: 17 грудня 2011 ... Собственно собираюсь таким образом крепить кобылки, и возможно обрешетку свесоф вронтона тоже. Ужа даже изобрел способ как выставлять отторцованные кобылки по 2м шнурам, не свисая вниз головою с 8 метровой высоты над свесами Кобылки, да. Лучше выставлять по двум шнурам, уже заранее обрезанные по шаблону. В зависимости от конструкции карнизного свеса, можно выставлять все по шнуру, или частично по шнуру, частично по смонтированным элементам окончания ската. А вот обрешетку на фронтонном свесе обрезают после монтажа ее потому что это удобнее (быстрее, проще). И так проще подогнать диагонали ската. 1 Посилання на коментар Поділитися на інших сайтах More sharing options...
Игореха Опубліковано: 17 грудня 2011 Автор Поділитись Опубліковано: 17 грудня 2011 Собираюсь делать так Сначала отторцую все кобылки, сложу их рядом одна к одной и прочерчу одну сплошную линию сверху кобылок. Т.е. эта линия будет находиться на одном и томже расстоянии от торцов всех кобылок. Ну а дальше по схемке. 1 Посилання на коментар Поділитися на інших сайтах More sharing options...
Рекомендовані повідомлення
Створіть акаунт або увійдіть у нього для коментування
Ви маєте бути користувачем, щоб залишити коментар
Створити акаунт
Зареєструйтеся для отримання акаунта. Це просто!
Зареєструвати акаунтУвійти
Вже зареєстровані? Увійдіть тут.
Увійти зараз