traffic1 Опубліковано: 20 грудня 2010 Поділитись Опубліковано: 20 грудня 2010 Добрый день, требуются специалисты на систему отопления и канализации в доме Васильковский район, с Варовычи. дом 2 етажа и цоколь. 220 м2. наружные стены пеноблок 30см. внутренние перегородки кирпич есть проект где есть соответствующая секция по отоплению и канализации. нужно будет реализовать котловую, развести отопление по первому этажу и сделать вывод на второй и в цоколь (если нужно будет) также нужен будет септик из трех емкостей, и реализация канализации из ванной на первом этаже и кухни предварительно будет использоватся электрокотел и тт котел (как альтернатива) (возможны изменения по рекомендации специалиста) интересуют не столько цены на работы сколько стоимость всей работы и материалов. всю информацию для точной оценки предоставлю, можно встретится в Киеве или на объекте обсудить детали от потенциального исполнителя ожидаю практические рекомендации по улучшению проекта, полный список материалов и его количество, которое понадобится в процессе работы ну и стоимость работ и сроки. Посилання на коментар Поділитися на інших сайтах More sharing options...
lastandr Опубліковано: 20 грудня 2010 Поділитись Опубліковано: 20 грудня 2010 Добрый вечер,успешно решаем все вышеперечисленные задачи, инженер по системам ОВК поможет в выборе оптимального варианта, расценки в файле сантехника.xls Посилання на коментар Поділитися на інших сайтах More sharing options...
murava Опубліковано: 20 грудня 2010 Поділитись Опубліковано: 20 грудня 2010 Вы бы проект выложили на всеобщее обозрение.... Посилання на коментар Поділитися на інших сайтах More sharing options...
traffic1 Опубліковано: 20 грудня 2010 Автор Поділитись Опубліковано: 20 грудня 2010 Вы бы проект выложили на всеобщее обозрение.... выкладываю файлы проекта для предварительной оценки стоимости работ, списка и стоимости материалов еще раз подчеркну что делать нужно будет только первый этаж полностью в цоколе только котельную а на второй этаж только вывести возможность дальнейшей разводки отопления, канализации Посилання на коментар Поділитися на інших сайтах More sharing options...
Korni Опубліковано: 20 грудня 2010 Поділитись Опубліковано: 20 грудня 2010 Здравствуй, Архетон. Посилання на коментар Поділитися на інших сайтах More sharing options...
stroy-life Опубліковано: 20 грудня 2010 Поділитись Опубліковано: 20 грудня 2010 Добрый день, требуются специалисты на систему отопления и канализации в доме Васильковский район, с Варовычи. дом 2 етажа и цоколь. 220 м2. наружные стены пеноблок 30см. внутренние перегородки кирпич есть проект где есть соответствующая секция по отоплению и канализации. нужно будет реализовать котловую, развести отопление по первому этажу и сделать вывод на второй и в цоколь (если нужно будет) также нужен будет септик из трех емкостей, и реализация канализации из ванной на первом этаже и кухни предварительно будет использоватся электрокотел и тт котел (как альтернатива) (возможны изменения по рекомендации специалиста) интересуют не столько цены на работы сколько стоимость всей работы и материалов. всю информацию для точной оценки предоставлю, можно встретится в Киеве или на объекте обсудить детали от потенциального исполнителя ожидаю практические рекомендации по улучшению проекта, полный список материалов и его количество, которое понадобится в процессе работы ну и стоимость работ и сроки. Опять , яже вам пишу, поможем во всем 0972286088 Если не договоримся с работой помогу вам с консультацией Посилання на коментар Поділитися на інших сайтах More sharing options...
murava Опубліковано: 21 грудня 2010 Поділитись Опубліковано: 21 грудня 2010 выкладываю файлы проекта для предварительной оценки стоимости работ, списка и стоимости материалов .... У Вас в проекте есть спецификация - она и есть список. Или Вы деньги платили за набор бумажек и за штамп разрешения на строительство? По списку корелирует стоимость, несколько радиаторов можно отбросить. Котельную надо допилить по месту, но скорее всего , если будет навесник, то ничего там особо не изменится. Поставьте приоритеты, что Вы хотите получить: работу согласно проекту, самую низкую цену или что-то иное? 1 Посилання на коментар Поділитися на інших сайтах More sharing options...
traffic1 Опубліковано: 21 грудня 2010 Автор Поділитись Опубліковано: 21 грудня 2010 У Вас в проекте есть спецификация - она и есть список. Или Вы деньги платили за набор бумажек и за штамп разрешения на строительство? По списку корелирует стоимость, несколько радиаторов можно отбросить. Котельную надо допилить по месту, но скорее всего , если будет навесник, то ничего там особо не изменится. Поставьте приоритеты, что Вы хотите получить: работу согласно проекту, самую низкую цену или что-то иное? вы правы, есть спецификация. но тот список для меня реально как набор бумажек. мне нужно понимать - что и сколько покупать, какое лучше я не стремлюсь економить - я считаю что на электрике, отоплении, канализации как раз нельзя экономить - опасно для жизни но и деньгами не разбрасываюсь. знаю что в проектах далеко не всегда все так как надо. всегда есть возможность что-то улучшить. и не обязательно за счет увеличения стоимости я хочу получить хорошую надежную систему за разумные деньги Посилання на коментар Поділитися на інших сайтах More sharing options...
murava Опубліковано: 21 грудня 2010 Поділитись Опубліковано: 21 грудня 2010 я хочу получить хорошую надежную систему за разумные деньги Укажите сумму разумных денег - и все встанет на свои места как по комплектации, так и по исполнению. Ибо если начать "делать все лучше и лучше", то Вам прийдется брать кредит. Посилання на коментар Поділитися на інших сайтах More sharing options...
traffic1 Опубліковано: 21 грудня 2010 Автор Поділитись Опубліковано: 21 грудня 2010 Укажите сумму разумных денег - и все встанет на свои места как по комплектации, так и по исполнению. Ибо если начать "делать все лучше и лучше", то Вам прийдется брать кредит. простите, я недавно на форуме но уже успел заметить что вы очень авторитетный специалист. и мне вдвойне удивительно слышать от вас "укажите сумму денег" мне кажется так говорят когда каждый раз стоимость работ или товара зависит от того во что одет покупатель или на чем приехал Посилання на коментар Поділитися на інших сайтах More sharing options...
murava Опубліковано: 21 грудня 2010 Поділитись Опубліковано: 21 грудня 2010 простите, я недавно на форуме но уже успел заметить что вы очень авторитетный специалист. и мне вдвойне удивительно слышать от вас "укажите сумму денег" мне кажется так говорят когда каждый раз стоимость работ или товара зависит от того во что одет покупатель или на чем приехал Да нет, специалист из меня неважный... Вы задали очень туманную ориентировку "я хочу получить хорошую надежную систему за разумные деньги". Это сродни "я хочу купить хорошую машину за разумные деньги". Дык вот, идя в салон за вожделенной машиной, Вы имеете бюджет на покупку, который Вы не превысите при всем своем желании по простой причине - у Вас нет на это денег, у Вас есть денег только вот на это - и баста. Прося у исполнителя построить Вам надежную систему, Вы не задали ни критериев надежности, ни пожеланий по построению, ни требований по управлению - вообще ничего. В принципе, Вы и не обязаны как заказчик, задавать эти параметры - но тогда укажите сколько денег Вы согласны потратить, и будем считать, что у Вашего исполнителя достаточно знаний, умений и честности (не положить половину в карман) - построить Вам оптимальное сочетание железа за Ваш бюджет. В противном случае Вы пойдете по стандартному пути - получили смету, трижды поменяли, пять раз поторговались, дважды поменяли исполнителя, потратили вагон времени на согласование - и все равно пришли к бюджету. Смысл? Цените время - это очень дорогой ресурс. Если не цените время монтажника, то цените хотя бы свое. Посилання на коментар Поділитися на інших сайтах More sharing options...
traffic1 Опубліковано: 21 грудня 2010 Автор Поділитись Опубліковано: 21 грудня 2010 Цените время - это очень дорогой ресурс. Если не цените время монтажника, то цените хотя бы свое. вот как раз время я и ценю. поэтому и пользуюсь форумом на счет автомобиля немного не согласен. это если я покупаю таврию - то конечно выбора нет - есть 30тыс грн и все. и тут как не крути а если я покупаю авто уже в районе 20 тыс уе то выбор гораздо больше и если мне в салоне обьяснят - что лучше подкопить еще пять (подождать пару месяцев) и получить что-то более надежное и лучше - то я соглашусь я не утверждаю что так делают все. говорю за себя поэтому и пользуюсь форумом объявляю тендеры на работы. кто-то скажет "напишите сколько денег дадите - мы вам все сделаем в соответствии с бюджетом" кто-то кажет "это будет стоить сто тыщ мильйонов - но у нас опыт сто лет, мы вам сделаем все просто на высшем уровне, купим самые классные (читай дорогие) материалы, и все будет в шоколаде" а кто-то "есть несколько вариантов - вот такой - самый бюджетный, он будет работать но есть такие минусы - вот такой с такими материалами и такой реализацией - стоит столько -то , плюсы минусы такие то а есть вот такой - стоит дороже но вот плюсы которые покрывают дороговизну" как думаете с кем я буду работать ? Посилання на коментар Поділитися на інших сайтах More sharing options...
murava Опубліковано: 21 грудня 2010 Поділитись Опубліковано: 21 грудня 2010 как думаете с кем я буду работать ? Я не знаю с кем именно Вы будете работать, но без четких параметров с формулировкой "хочу хорошее за недорого" Вы рискуете получить "что-то за немного денег" либо "блюдо по вкусу повара".... Не делайте тайн мадридского двора, покажите бюджет. Если не можете или не знаете требований - тогда скажите просто - " просто собираю предложения". И Вам проще, и людям легче. 2 Посилання на коментар Поділитися на інших сайтах More sharing options...
traffic1 Опубліковано: 21 грудня 2010 Автор Поділитись Опубліковано: 21 грудня 2010 Я не знаю с кем именно Вы будете работать, но без четких параметров с формулировкой "хочу хорошее за недорого" Вы рискуете получить "что-то за немного денег" либо "блюдо по вкусу повара".... Не делайте тайн мадридского двора, покажите бюджет. Если не можете или не знаете требований - тогда скажите просто - " просто собираю предложения". И Вам проще, и людям легче. а я не делаю тайн - если бы я знал какой бюджет я бы так и создал тему - кто сделает за столько-то вот это я совсем не разбираюсь в тех вещах которые хочу получить и для меня фраза "стоимость точки 50 грн" не говорит ни о чем в первом сообщении я написал - все детали для расчетов предоставлю люди которые хотят получить заказ сразу спрашивают то чего им не хватает для точной оценки Посилання на коментар Поділитися на інших сайтах More sharing options...
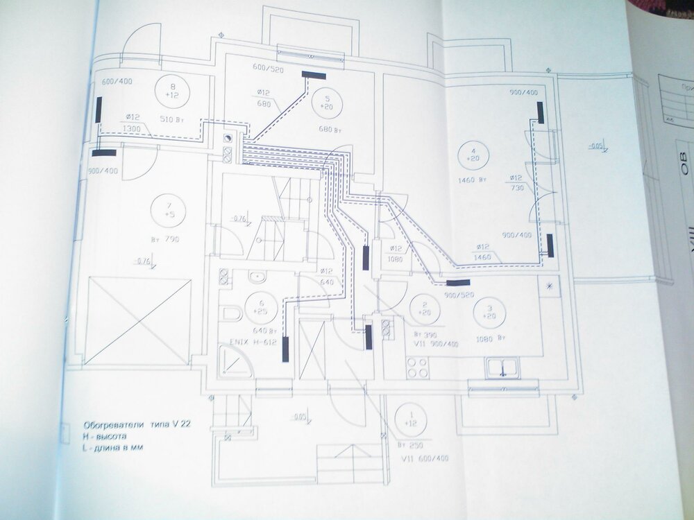
traffic1 Опубліковано: 21 грудня 2010 Автор Поділитись Опубліковано: 21 грудня 2010 Форумчане запросили план с размерами кроме спецификаций - вот выкладываю план . это я понимаю конструктив Посилання на коментар Поділитися на інших сайтах More sharing options...
murava Опубліковано: 21 грудня 2010 Поділитись Опубліковано: 21 грудня 2010 .... люди которые хотят получить заказ сразу спрашивают то чего им не хватает для точной оценки Для точной оценки Вы не предоставили ничего вообще Вообще-то, я его, заказ, получить не жаждю ну совсем никак (если это Вам откровение, конечно) : делать систему по кусочкам, по этажам не улыбается совсем. Я пытался сэкономить Вам время, силы и ресурсы. Но Вы упорно идете своей, отличной от здравого смысла, дорогой. Ступайте "Можно завести лошадь в воду, но нельзя заставить ее пить". Посилання на коментар Поділитися на інших сайтах More sharing options...
traffic1 Опубліковано: 21 грудня 2010 Автор Поділитись Опубліковано: 21 грудня 2010 Для точной оценки Вы не предоставили ничего вообще Вообще-то, я его, заказ, получить не жаждю ну совсем никак (если это Вам откровение, конечно) : делать систему по кусочкам, по этажам не улыбается совсем. Я пытался сэкономить Вам время, силы и ресурсы. Но Вы упорно идете своей, отличной от здравого смысла, дорогой. Ступайте "Можно завести лошадь в воду, но нельзя заставить ее пить". ну вы сразу дали понять что вы не хотите получить заказ так как не спросили "ничего вообще" для точной оценки я уверен что вы завалены заказами на много лет в перед. может когда-нибуть удастся получить от вас хотя бы платную консультацию - очень ценю людей с репутацией кто хочет тот спрашивает и уточняет. это рынок спасибо за заботу о моем времени Посилання на коментар Поділитися на інших сайтах More sharing options...
murava Опубліковано: 21 грудня 2010 Поділитись Опубліковано: 21 грудня 2010 Не обижайтесь - это не имеет смысла. За консультациями - всегда пожалуйста, и даже бесплатно. Аська и скайп в профиле. Посилання на коментар Поділитися на інших сайтах More sharing options...
traffic1 Опубліковано: 22 грудня 2010 Автор Поділитись Опубліковано: 22 грудня 2010 небольшие коррективы к тендеру - можно рассматривать газовый котел для отопления так как появилась вероятность провести газ Посилання на коментар Поділитися на інших сайтах More sharing options...
Теплотехник Опубліковано: 23 грудня 2010 Поділитись Опубліковано: 23 грудня 2010 выкладываю файлы проекта для предварительной оценки стоимости работ, списка и стоимости материалов еще раз подчеркну что делать нужно будет только первый этаж полностью в цоколе только котельную а на второй этаж только вывести возможность дальнейшей разводки отопления, канализации Если исполнение будет отличаться от проекта, нужно всё пересчитывать, иначе не найдёте крайнего... Почему будет делаться только первый этаж? Вы сами знаете чего хотите? Какие материалы, какое исполнение? Нужно от чего то отталкиваться, либо от Ваших пожеланий, либо от бюджета... Посилання на коментар Поділитися на інших сайтах More sharing options...
traffic1 Опубліковано: 23 грудня 2010 Автор Поділитись Опубліковано: 23 грудня 2010 Если исполнение будет отличаться от проекта, нужно всё пересчитывать, иначе не найдёте крайнего... Почему будет делаться только первый этаж? Вы сами знаете чего хотите? Какие материалы, какое исполнение? Нужно от чего то отталкиваться, либо от Ваших пожеланий, либо от бюджета... все кто присылает реальные предложения предлагаю просчет с учетом изменений, которые они рекомендуют первый этаж чтобы заселится в дом быстрее я сам знаю чего хочу. а вот какие материалы и какое исполнение - должен специалист сказать и предложить хороший специалист всегда предлагает несколько вариантов с обьяснениями плюсов и минусов каждого Посилання на коментар Поділитися на інших сайтах More sharing options...
murava Опубліковано: 23 грудня 2010 Поділитись Опубліковано: 23 грудня 2010 я сам знаю чего хочу...... ... я совсем не разбираюсь в тех вещах которые хочу получить... У меня эти Ваши заявки, помноженные на любовь к возможным подрядчикам, вызывают натуральный разрыв шаблона "Вы, Исаак Моисеевич, либо шапочку снимите, либо трусы наденьте..." (с) 4 Посилання на коментар Поділитися на інших сайтах More sharing options...
vladf Опубліковано: 24 грудня 2010 Поділитись Опубліковано: 24 грудня 2010 можно пять копеек вставлю как закончивший строительство собственного дома: Уважаемый Traffic, не менее уважаемые метры от тепловодотехники(Мурава и Теплотехник) просто хотят пообщаться и возможно дать дельный совет. Скажу сразу, я действовал аналогичным образом как и Вы-искал кто, сколько и за что назовет общую смету, и так и получилось-приехал Специалист, на месте сделал все замеры, просчитал все необходимые материалы(проекта никакого у меня не было) за 4-5 дней, согласовали бюджет и сделали за пару недель всю систему, проверили, после чего залили полы/заделали дырки и все! На мой дом в 270 м2, вся система с работой и материалами(трубы пластиковые немецкие, котел Иммергаз 28 кВт турбо, радиаторы 8 шт итальянские вроде, трубы для теплых полов и тд, вышло около 10 тыс уе. Не знаю много это или мало, но Вам для ориентира может пригодиться. А бюджет свой подрядчику, имхо открывать не стоит, пример с машиной очень правильный-есть у меня 50 тыс на машину,но это не значит что я должен все 50 потратить на нее, можно ведь и за 35-40 купить достойную машину которая ничем не хуже чем машина за 50, а вот продавец точно будет наровить продать ту что подороже. Удачного Вам строительства. 1 Посилання на коментар Поділитися на інших сайтах More sharing options...
Теплотехник Опубліковано: 24 грудня 2010 Поділитись Опубліковано: 24 грудня 2010 можно пять копеек вставлю как закончивший строительство собственного дома: Уважаемый Traffic.... Удачного Вам строительства. Вот о том же и речь. Нужно понять что человек хочет, как он это видит и здесь Вы можете получить бесплатные, но иногда очень ценные консультации... Если вам это незачем, то просто приглашаете к себе по очереди специалистов, собираете сметы, потом делаете выбор... А бюджет свой подрядчику, имхо открывать не стоит, пример с машиной очень правильный-есть у меня 50 тыс на машину,но это не значит что я должен все 50 потратить на нее, можно ведь и за 35-40 купить достойную машину которая ничем не хуже чем машина за 50, а вот продавец точно будет наровить продать ту что подороже. Я готов с Вами не согласиться... Здесь как с адвокатом, либо ты доверяешся целиком и полностью, либо никакого толку не будет... В любом случае всё всегда упирается в деньги... ИМХО... А если Заказчик сориентирует по сумме, то, я лично, стараюсь в данную сумму втиснуть максимально лучшую комплектацию... 50 и 40 тыс, из вашего примера - это разница 20 %... Вы либо покупаете авто за 50 (если Вы их планировали потратить), либо покупаете за 40, и продолжаете мечтать об авто за 50 тыс...;) Посилання на коментар Поділитися на інших сайтах More sharing options...
traffic1 Опубліковано: 24 грудня 2010 Автор Поділитись Опубліковано: 24 грудня 2010 можно пять копеек вставлю как закончивший строительство собственного дома: Уважаемый Traffic, не менее уважаемые метры от тепловодотехники(Мурава и Теплотехник) просто хотят пообщаться и возможно дать дельный совет. Скажу сразу, я действовал аналогичным образом как и Вы-искал кто, сколько и за что назовет общую смету, и так и получилось-приехал Специалист, на месте сделал все замеры, просчитал все необходимые материалы(проекта никакого у меня не было) за 4-5 дней, согласовали бюджет и сделали за пару недель всю систему, спасибо за ориентир ко мне точно так-же приехали несколько форумчан, посмотрели, поспрашивали, пообщались, предложили варианты, объяснили что лучше не делать и тд. некоторые по телефону все уточнили, спросили, некоторые в личке. в общем то что я и ожидал. некоторые уже просчитали. сейчас жду от остальных просчетов. и соглашусь с вами - не вижу смысла говорить бюджет продавцу. это лишает его мотивации просчитать все трезво и более реально ,с учетом того что у него есть конкуренты. второй момент - когда я создавал пост я даже порядок цен себе не представлял. поэтому если бы я сказал какую-то сумму это был бы неверный ориентир для расчетов. бюджет можно говорить когда делается коробка, крыша - там все понятно относительно - и конкретные роботы, и их средне рыночная стоимость - и смета будет отличатся только изза аппетита исполнителей с отоплением, электричеством и канализацией ситуация совершенно другая. можно сделать рабочую бюджетную систему за N денег, можно сделать систему надежную за 2N а можно сделать систему супер надежную и супер удобную в пользовании и поддержке за N*N денег причем если заказчик совсем начинающий в этих вопросах (как я) то сумму N он тоже не знает. и задача специалиста , как по мне, сообщить ему о возможных вариантах и помочь выбрать решение по его потребностям и возможностям. Посилання на коментар Поділитися на інших сайтах More sharing options...
Рекомендовані повідомлення
Створіть акаунт або увійдіть у нього для коментування
Ви маєте бути користувачем, щоб залишити коментар
Створити акаунт
Зареєструйтеся для отримання акаунта. Це просто!
Зареєструвати акаунтУвійти
Вже зареєстровані? Увійдіть тут.
Увійти зараз