Крышник Опубліковано: 24 лютого 2011 Поділитись Опубліковано: 24 лютого 2011 на счет того что сам не знаю чего хочу это точно про меня, я четко представлял свой дом, мысленно жил в нем, пока не начал его ориентировать по сторонам света, во многом благодаря вашей ветке про пассивный дом вот тут то и все началось точнее выявилось все мое незнание Алееек,звыняйте шо вмЭшуюсь в Ваш творческий процесс дезориентации Вашего дома,согласно разным феншуЯм,но мне кааааца(С)Райкин,шо Вы стали жертвой экспансии прогрессивных сил и борьбы хорошего с правильным! Бойтесь данайцев(а равно манайцев/нанайцев/малайцев/зайцев) дары приносящих(С) П.С.Не на какие посты не намекаю,только передаю свою импрессию от Вашей темы 1 Посилання на коментар Поділитися на інших сайтах More sharing options...
aleeck Опубліковано: 24 лютого 2011 Автор Поділитись Опубліковано: 24 лютого 2011 поправил немного если в постирочной находится только газовый котел грязи не будет? Посилання на коментар Поділитися на інших сайтах More sharing options...
АрхиКет Опубліковано: 24 лютого 2011 Поділитись Опубліковано: 24 лютого 2011 Не знаю, пригодиться ли, но по поводу постирочной и неудобства таскания тяжёлых корзин с бельём со второго этажа на первый - иногда в стены монтируют шахты, которые ведут со второго этажа в постирочную на первом... такой себе "мусоропровод" для белья... на западе применяют, у нас очень редко... Посилання на коментар Поділитися на інших сайтах More sharing options...
aleeck Опубліковано: 24 лютого 2011 Автор Поділитись Опубліковано: 24 лютого 2011 ....процесс дезориентации Вашего дома,согласно разным феншуЯм,.: спасибо за намек ваше мнение мне очень важно и авторитет ваш уважаю. фэншуй я уже проходил много в нем хорошего. но от него у меня голова болит, особенно когда услышал - фЭн-шуй меняется меня эта фраза расплющилавдребезги дом стоит а ты вместо того чтобы жить в нем постоянно при деле то дверь в красный покрасить то ванна не достаточно синяя Посилання на коментар Поділитися на інших сайтах More sharing options...
aleeck Опубліковано: 24 лютого 2011 Автор Поділитись Опубліковано: 24 лютого 2011 Не знаю, пригодиться ли, но по поводу постирочной и неудобства таскания тяжёлых корзин с бельём со второго этажа на первый - иногда в стены монтируют шахты, которые ведут со второго этажа в постирочную на первом... такой себе "мусоропровод" для белья... на западе применяют, у нас очень редко... у меня для этого даже местечко припасено (поднялся по лестнице и справа) а вверх это уже технологии или грубая сила Посилання на коментар Поділитися на інших сайтах More sharing options...
Ernst Опубліковано: 24 лютого 2011 Поділитись Опубліковано: 24 лютого 2011 Алееек,звыняйте шо вмЭшуюсь в Ваш творческий процесс дезориентации Вашего дома,согласно разным феншуЯм,но мне кааааца(С)Райкин,шо Вы стали жертвой экспансии прогрессивных сил и борьбы хорошего с правильным! Бойтесь данайцев(а равно манайцев/нанайцев/малайцев/зайцев) дары приносящих(С) П.С.Не на какие посты не намекаю,только передаю свою импрессию от Вашей темы дары не приношу. Попросили "лично" - ответила. Когда не спрашивают - не влажу со своими мыслями в чужой огород! ... в отличие от некоторых... Посилання на коментар Поділитися на інших сайтах More sharing options...
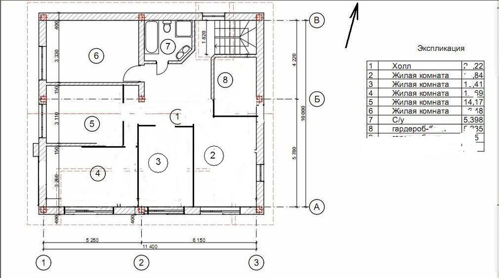
Grimm777 Опубліковано: 24 лютого 2011 Поділитись Опубліковано: 24 лютого 2011 Этот вариант понравился больше. Но, не нравятся мне Ваши окна. Есть простой метод для подбора окон в помещении - соотношение площади остекления и площади пола комнаты должно быть в пределах от 1:5 до 1:8 (в зависимости от сторон света). Удачи Посилання на коментар Поділитися на інших сайтах More sharing options...
Крышник Опубліковано: 24 лютого 2011 Поділитись Опубліковано: 24 лютого 2011 Когда не спрашивают - не влажу со своими мыслями в чужой огород! ... в отличие от некоторых... ????? имел ввиду исключительно этот пост www.stroimdom.com.ua/forum/showpost.php?p=825918&postcount=4 Посилання на коментар Поділитися на інших сайтах More sharing options...
aleeck Опубліковано: 24 лютого 2011 Автор Поділитись Опубліковано: 24 лютого 2011 (змінено) П.С.Не на какие посты не намекаю,только передаю свою импрессию от Вашей темы это намек на камушек в огород Татьяны? если да то зря вы так в правильной инсоляции Татьяна разбирается наверно лучше всех в восточной европе! ИМХО дом ее мне не очень нравится, и не должен это же её дом, что русскому хорошо немцу ..сами понимаете. и не могут у нас всех дома быть одинаковые люди мы разные. у неё велики, окна без штор и гамак в библиотеке, а я курю, ем жареное мясо и езжу на дизельном пикапе, но она профи, ответы которые я от неё получил меня устроили на 95,5% четко, грамотно, без пафоса, одним словом специалист Таня СПАСИБО Змінено 24 лютого 2011 користувачем aleeck 1 Посилання на коментар Поділитися на інших сайтах More sharing options...
Ernst Опубліковано: 24 лютого 2011 Поділитись Опубліковано: 24 лютого 2011 ????? имел ввиду исключительно этот пост www.stroimdom.com.ua/forum/showpost.php?p=825918&postcount=4 извините.... после 10 сообщений с моими замечаниями ВАш пост выглядел как-то однозначно в меня пальцем тыкающим... если ошиблась - простите, не хотела Вас обидеть! Посилання на коментар Поділитися на інших сайтах More sharing options...
aleeck Опубліковано: 24 лютого 2011 Автор Поділитись Опубліковано: 24 лютого 2011 Этот вариант понравился больше. Но, не нравятся мне Ваши окна. Есть простой метод для подбора окон в помещении - соотношение площади остекления и площади пола комнаты должно быть в пределах от 1:5 до 1:8 (в зависимости от сторон света). Удачи помоему советская норма говорила 1/6 площади стен Посилання на коментар Поділитися на інших сайтах More sharing options...
aleeck Опубліковано: 24 лютого 2011 Автор Поділитись Опубліковано: 24 лютого 2011 ????? имел ввиду исключительно этот пост www.stroimdom.com.ua/forum/showpost.php?p=825918&postcount=4 малатцца выкрутился а Татьяну просил и искренне благодарен за внимание надеюсь Татьяна загляните сюда еще 1 Посилання на коментар Поділитися на інших сайтах More sharing options...
Ernst Опубліковано: 24 лютого 2011 Поділитись Опубліковано: 24 лютого 2011 помоему советская норма говорила 1/6 площади стен советская норма говорила 1/6 площади пола... но это только для достаточной инсоляции (то-есть получения дневного света. А если говорить о необходимости теплопритоков в зимнее время - то тут совсем другие правила. Посилання на коментар Поділитися на інших сайтах More sharing options...
Крышник Опубліковано: 24 лютого 2011 Поділитись Опубліковано: 24 лютого 2011 малатцца выкрутился а Татьяну просил и искренне благодарен за внимание надеюсь Татьяна загляните суда еще Согласен,возможно это неоднозначно получилось,но передал исключительно свои ощущения,начиная от своего поста и заканчивая последним.....на ночь на философию потянуло....чем больше я даю советов и чем больше читаю другие(тут я исключаю чисто технические советы,которых и сам прошу),чем больше читаю темок типа "а пАсАветуйте мне",тем больше убеждаюсь,что это не надо делать,в смысле советовать,тот кому советуют только путается и разброд/шатания в мыслЯх,внося туда чуждое/вредное ему самому,а тот кто советует убеждается в старой даосской мудрости:"Кто людям помогает,тот тратит время зря!"(С)Шапокляк. Посилання на коментар Поділитися на інших сайтах More sharing options...
aleeck Опубліковано: 24 лютого 2011 Автор Поділитись Опубліковано: 24 лютого 2011 советская норма говорила 1/6 площади пола... но это только для достаточной инсоляции (то-есть получения дневного света. именно это и хотел сказать Посилання на коментар Поділитися на інших сайтах More sharing options...
aleeck Опубліковано: 24 лютого 2011 Автор Поділитись Опубліковано: 24 лютого 2011 чем больше читаю темок типа "а пАсАветуйте мне",тем больше убеждаюсь,что это не надо делать,в смысле советовать,тот кому советуют только путается и разброд/шатания в мыслЯх,внося туда чуждое/вредное ему самому,а тот кто советует убеждается в старой даосской мудрости:"Кто людям помогает,тот тратит время зря!"(С)Шапокляк. если чистА пАсАветовть то да а если есть вопрос и это не празный интерес, а пойск!? то пригодится любой особенно грамотный совет. Когда концепции совпадают (у просящего и дающего совет) или тема "торкнула" толк будет. если нет слова на ветер Посилання на коментар Поділитися на інших сайтах More sharing options...
Ernst Опубліковано: 25 лютого 2011 Поділитись Опубліковано: 25 лютого 2011 именно это и хотел сказать правильно. Если говорить ТОЛЬКО об инсоляции - то допускаются и окна на чистый север... а вот с точки зрения оптимизирования кол. теплопритоков-теплопотерь - ни как... Посилання на коментар Поділитися на інших сайтах More sharing options...
TravelSvit Опубліковано: 28 березня 2011 Поділитись Опубліковано: 28 березня 2011 Если говорить ТОЛЬКО об инсоляции - то допускаются и окна на чистый север... а вот с точки зрения оптимизирования кол. теплопритоков-теплопотерь - ни как... Прочитал эту ветку и ветку о Вашем доме. Согласен, ориентация окон на юг уменьшает потребление энергии на отопление в холодное время. Но как быть летом (вспоминаю жаркое лето 2010), когда солнце через большие окна на юг будет очень сильно прогревать дом (если не планировать дом именно как Ваш с террасами и т.п. над окнами, которые препятствуют проникновению лучей летом)? Допустим, южная сторона будет просто вертикальная. Как сделать, чтоб в доме летом не было жарко без использования кондиционеров?? Думаю, роллеты спасут, а есть ли еще другие дополнительные и недорогие решения? П.С. а односкатную крышу с уклоном в градусов 20 лучше ориентировать на север? Посилання на коментар Поділитися на інших сайтах More sharing options...
Olga_Flower Опубліковано: 28 березня 2011 Поділитись Опубліковано: 28 березня 2011 Прочитал эту ветку и ветку о Вашем доме. Согласен, ориентация окон на юг уменьшает потребление энергии на отопление в холодное время. Но как быть летом (вспоминаю жаркое лето 2010), когда солнце через большие окна на юг будет очень сильно прогревать дом (если не планировать дом именно как Ваш с террасами и т.п. над окнами, которые препятствуют проникновению лучей летом)? Допустим, южная сторона будет просто вертикальная. Как сделать, чтоб в доме летом не было жарко без использования кондиционеров?? Думаю, роллеты спасут, а есть ли еще другие дополнительные и недорогие решения? П.С. а односкатную крышу с уклоном в градусов 20 лучше ориентировать на север? У меня в доме довольно большие окна. Зимой солнечный свет попадает в них очень хорошо и ощутимо нагревает помещения (дом сейчас не отапливается). При минусовой на улице в доме в солнечную погоду плюс. Летом солнце намного выше относительно горизонта и света попадает в разы меньше, чем зимой. В целом при жаре под сорок в доме температура ни разу не поднялась выше 30 и долго держалась в нормальных пределах 23-25 градусов. Как итог - в нашем климате размещение окон на южную сторону очень и очень целесообразно! Посилання на коментар Поділитися на інших сайтах More sharing options...
TravelSvit Опубліковано: 28 березня 2011 Поділитись Опубліковано: 28 березня 2011 Летом солнце намного выше относительно горизонта и света попадает в разы меньше, чем зимой. В целом при жаре под сорок в доме температура ни разу не поднялась выше 30 и долго держалась в нормальных пределах 23-25 градусов. Даже на втором этаже? Сейчас живу в доме, на окнах роллеты. Если их летом не опускать, то комнаты на втором очень нагреваются. Посилання на коментар Поділитися на інших сайтах More sharing options...
Olga_Flower Опубліковано: 28 березня 2011 Поділитись Опубліковано: 28 березня 2011 Даже на втором этаже? Сейчас живу в доме, на окнах роллеты. Если их летом не опускать, то комнаты на втором очень нагреваются. У меня один этаж, неэксплуатируемый проветриваемый чердак и кирпичные стены 50 см толщиной Посилання на коментар Поділитися на інших сайтах More sharing options...
Zak Опубліковано: 28 березня 2011 Поділитись Опубліковано: 28 березня 2011 Как сделать, чтоб в доме летом не было жарко без использования кондиционеров?? Думаю, роллеты спасут, а есть ли еще другие дополнительные и недорогие решения? Из недорогих методов: козырьки над окнами, грамотно рассадить деревья/виноград на участке. Из остальных: холодные/теплые стены, грунтовый телообменник. Посилання на коментар Поділитися на інших сайтах More sharing options...
vvasylenko Опубліковано: 28 березня 2011 Поділитись Опубліковано: 28 березня 2011 Прочитал эту ветку и ветку о Вашем доме. Согласен, ориентация окон на юг уменьшает потребление энергии на отопление в холодное время. Но как быть летом (вспоминаю жаркое лето 2010), когда солнце через большие окна на юг будет очень сильно прогревать дом (если не планировать дом именно как Ваш с террасами и т.п. над окнами, которые препятствуют проникновению лучей летом)? Допустим, южная сторона будет просто вертикальная. Как сделать, чтоб в доме летом не было жарко без использования кондиционеров?? Думаю, роллеты спасут, а есть ли еще другие дополнительные и недорогие решения? П.С. а односкатную крышу с уклоном в градусов 20 лучше ориентировать на север? не экономьте на свесе крыши, тогда летом тень от них будет падать на нижний откос окна снаружи. 3 Посилання на коментар Поділитися на інших сайтах More sharing options...
SanderEA Опубліковано: 4 квітня 2011 Поділитись Опубліковано: 4 квітня 2011 Всю тему не чита, только первую страницу. Попробуйте поменять тамбу+детская вместо спальни. Таким образом вход будет с востока, детская и спальня с юга. Если не поместится по ширине, то я бы расширил дом и уменьшил его длину. Посилання на коментар Поділитися на інших сайтах More sharing options...
Ernst Опубліковано: 6 квітня 2011 Поділитись Опубліковано: 6 квітня 2011 Прочитал эту ветку и ветку о Вашем доме. Согласен, ориентация окон на юг уменьшает потребление энергии на отопление в холодное время. Но как быть летом (вспоминаю жаркое лето 2010), когда солнце через большие окна на юг будет очень сильно прогревать дом (если не планировать дом именно как Ваш с террасами и т.п. над окнами, которые препятствуют проникновению лучей летом)? Допустим, южная сторона будет просто вертикальная. Как сделать, чтоб в доме летом не было жарко без использования кондиционеров?? Думаю, роллеты спасут, а есть ли еще другие дополнительные и недорогие решения? доп. недорогие решения - это наружная солнцезащита : а тут есть варианты, но не много: террасы, балконы, арх.выступы, свесы кровли (как например, тут: www.ernst.kiev.ua/Typ_2_ru.html) роллеты, ставни. Из недорогих - наверное ставни самые дешевые... но минус - в том, что если Вы их закрыли - то среди бела дня даже свет прийдется включать! Но и холод сохраните внутри... конечно - выступы и навесы -всегда лучше - и перегрева нет, и вид - прекрасный , и светло! Посилання на коментар Поділитися на інших сайтах More sharing options...
Рекомендовані повідомлення
Створіть акаунт або увійдіть у нього для коментування
Ви маєте бути користувачем, щоб залишити коментар
Створити акаунт
Зареєструйтеся для отримання акаунта. Це просто!
Зареєструвати акаунтУвійти
Вже зареєстровані? Увійдіть тут.
Увійти зараз