K_Serega Опубліковано: 4 лютого 2011 Поділитись Опубліковано: 4 лютого 2011 (змінено) Здравствуйте, уважаемые форумчане. Пришло наверное время начать описание своей стройки. По мере её продвижения буду выкладывать фотографии процесса и надеюсь на конструктивную критику, советы и посильную помощь форума Проект придуман был мной совместно с женой долгими зимними вечерами, в том числе при некоторой помощи форума во время обсуждения в ветке про проекты здесь. Собственно вот то, что у нас получилось в итоге. Перспектива: Этажные планы: Змінено 4 лютого 2011 користувачем K_Serega 1 Посилання на коментар Поділитися на інших сайтах More sharing options...
K_Serega Опубліковано: 4 лютого 2011 Автор Поділитись Опубліковано: 4 лютого 2011 Еще задолго до начала строительства мы с женой хотели купить дом, пересмотрели множество вариантов и все как-то нам не подходили, к тому же на ту суммы которой располагали можно было купить только дом 70-х - 80 -х годов постройки не в лучшем состоянии (кредит принципиально не рассматривался). Все чаще посещала меня мысль о постройке дома, но жена была против - говорила, что это трудно, сложно, мы ничего об этом не знаем. Но у меня эта мысль засела в голове очень прочно и заняла практически все моё свободное да и рабочее (надеюсь директор этоге не читает) время. Еще более меня убедил в возможности самостоительного строительства (ссылка устарела) отчет о стройке (он был первым из тех которые я прочитал). Ну и в процессе дальнейшего поиска информации что-то (в судьбу не верю) привело меня на Stroimdom. Посилання на коментар Поділитися на інших сайтах More sharing options...
K_Serega Опубліковано: 4 лютого 2011 Автор Поділитись Опубліковано: 4 лютого 2011 Участок начали искать весной 2009 года. Требованиями к участку были: У жены: Близость инфраструктуры (школа, детский сад, магазины, рынок, транспортная развязка), наличие соседей (хотябы в ближайшей перспективе). У меня: Наличие комуникаций, размер участка (хотябы 10 соток). Под мои требования подходило много участков и цена устраивала, но Лена (жена) после всех просмотров отвечала категорическим НЕТ. И вот к концу лета 2009 года попался нам участок, который понравился нам обоим (возможно решающим стало, то что находится он возле родного для моей жены квартала Южный, в 500 метрах от квартиры где живут её родители). Мы решили долго не думать и на следующий день уже были у нотариуса оформлять куплю-продажу. Цена участка 15000$ (в 2007-2008 соседние участки покупались за 25-35-40 т.$) так, что благодаря кризису свершилось хоть что -то полезное. Размер 40 м х 25 м (10 соток) Ровный (практически) - перепад по высоте 40 см Комуникации - как сказал продавец "Электричество вдоль участка, газ и вода в начале улицы", но к этому я еще вернусь попозже:D:D На карте собственно это здесь: Посилання на коментар Поділитися на інших сайтах More sharing options...
AНДРЮША Опубліковано: 4 лютого 2011 Поділитись Опубліковано: 4 лютого 2011 Наверное сейчас уже поздно говорить по проекту, но все же...Сейчас живу в доме с подобной террасой, на первом этаже практически отсутствует дневной свет. Летом хорошо, не жарко, но постоянно включенное освещение напрягает. Комната примыкающая к гаражу (что там у вас?) постоянно будет темная. В другой комнате сделайте окно побольше (то что выходит на торец). А террасой мы не пользуемся. Посидеть с кофе или бокалом водки - это таскать снизу по лестнице, лучше выйти из кухни на улицу. Раньше стояла аналоговая антена, так был повод выйти покрутить ее. С проведением кабельного ТВ и этот повод отпал. Посилання на коментар Поділитися на інших сайтах More sharing options...
K_Serega Опубліковано: 4 лютого 2011 Автор Поділитись Опубліковано: 4 лютого 2011 Сначала планировали начать стройку весной 2011, а за 2010 год успеть подсобрать денег, нарисовать проект, оформить все разрешения. Но решили все-таки залить фундамент и оставить его до весны. Говорят начало - половина дела, так было и у меня. С чего начинать? вопрос который тревожил меня с весны, воды нет, света нет, на участке колючки в мой рост, ни инструмент ни материалы складывать некуда. Потом купил и привез на участок железный дачный домик для складывания инструментов (последующие события, правда, заставили усомнится в верности такого решения) и легкоуносимых стройматериалов, а так же емкость где-то на 1,5 куба для хранения воды, которую раньше использовали для проверки насосов, обрела своё новое предназначение . Электричество подключали в нашем гараже, который находится в гаражном кооперативе напротив участка в 150 м. с помощью такой-вот переноски C колючками вышло все сложнее, попытался косить их тримером, эффекта ноль, менял и леску толще и даже проволоку стальную ставил. Пришлось принимать радикальные меры - БУЛЬДОЗЕР (как раз по соседству работал), заодно выровнял небольшие неровности участка. Посилання на коментар Поділитися на інших сайтах More sharing options...
K_Serega Опубліковано: 4 лютого 2011 Автор Поділитись Опубліковано: 4 лютого 2011 Наверное сейчас уже поздно говорить по проекту, но все же...Сейчас живу в доме с подобной террасой, на первом этаже практически отсутствует дневной свет. Летом хорошо, не жарко, но постоянно включенное освещение напрягает. Комната примыкающая к гаражу (что там у вас?) постоянно будет темная. В другой комнате сделайте окно побольше (то что выходит на торец). А террасой мы не пользуемся. Посидеть с кофе или бокалом водки - это таскать снизу по лестнице, лучше выйти из кухни на улицу. Раньше стояла аналоговая антена, так был повод выйти покрутить ее. С проведением кабельного ТВ и этот повод отпал. Спасибо за комментарий, в проекте на первом этаже находится кухня - примыкает к терассе, зал - с противоположной стороны, туалет+душ - маленькая комната с торца, маленькая комната примыкающая к терассе - топочная. По поводу терассы буду её строить после строительства основного дома. так-что буду еще думать по поводу размеров. В топочной, собственно свет и не нужен, а в кухне есть еще одно окно на южной стороне. Комната, которая выходит на торец - это туалет-душ, так-что маленького окна в самый раз (если вообще оно там нужно). PS Перечитал ваш пост - терасса на первом этаже, на втором ничего нет - это архитектор так крышу изобразил зачем-то (наверное думал, что так красивее) Посилання на коментар Поділитися на інших сайтах More sharing options...
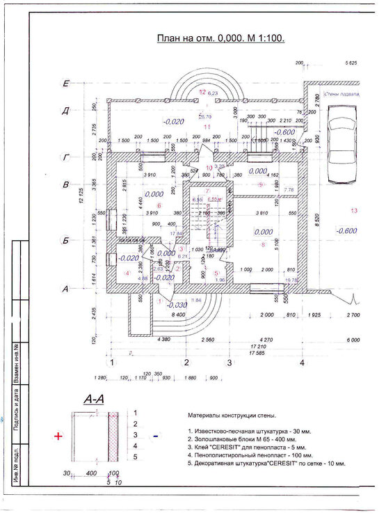
K_Serega Опубліковано: 4 лютого 2011 Автор Поділитись Опубліковано: 4 лютого 2011 Вот фотографии поэтажных планов с названиями комнат, а то без названий, действительно, не понятно. 1 Посилання на коментар Поділитися на інших сайтах More sharing options...
K_Serega Опубліковано: 4 лютого 2011 Автор Поділитись Опубліковано: 4 лютого 2011 Ну вот, вроде бы для начала все готово, осталось уйти в отпуск и приступать. Итак 30,07,2010 первый день моего отпуска - занимаемся разметкой, на 31 договорился с экскаваторщиком по поводу копки первого этапа и на 1,08 второго 1 этап - копка транщей под фундамент гаража - ширина ковша 35 см (стена гаража в пол-шлакоблока) глубина 80 см. 2 этап - копка траншей под дом - ширина ковша 48 см (другой экскаватор) глубина 1 м Чистим траншеи и подсыпаем щебнем и песком. Помощник :) Да-а, "чистим траншеи и подсыпаем щебнем и песком" - поместилось в одну строку, а когда этот процесс происходит в самый жаркий период, самого жаркого за последние годы лета...... Всвязи с нереальной жарой, решил начинать работать до восхода солнца. Итак распорядок дня 4-00 - Подьем 4-20 - Начало работ 13-00 - 17-00 Отдых 17-00 - 21-30 - Работа уже с помощниками (Жена и тесть) Восход солнца Посилання на коментар Поділитися на інших сайтах More sharing options...
Dron Опубліковано: 4 лютого 2011 Поділитись Опубліковано: 4 лютого 2011 Сергей, где участок? Вольный или нет? Хотя там гаражи только через дорогу. Значит это через дорогу от Вольного, между гаражами и лесополосой? Весной в бой? Мой телефон у тебя должен быть. Если что спрашивай, помогу и подскажу что знаю. Техника, краны (не джакомини ), песок, шлак и тд. не знаю дешевле или нет чем у других, но себе беру, дешевле не слышал. Посилання на коментар Поділитися на інших сайтах More sharing options...
K_Serega Опубліковано: 5 лютого 2011 Автор Поділитись Опубліковано: 5 лютого 2011 Через дорогу от Вольного, между гаражами и кольцом троллейбуса. Весны не дождусь уже, не терпится в бой. Спасибо за помощь, как что-то потребуется, свяжусь с Вами. Как у Вас, кстати, с отоплением - все закончили, все работает? Посилання на коментар Поділитися на інших сайтах More sharing options...
Dron Опубліковано: 5 лютого 2011 Поділитись Опубліковано: 5 лютого 2011 Как у Вас, кстати, с отоплением - все закончили, все работает? Обогреваюсь теплыми полами, вся система полностью не готова, поэтому и не запускаю. ТП работает отлично. Посилання на коментар Поділитися на інших сайтах More sharing options...
K_Serega Опубліковано: 5 лютого 2011 Автор Поділитись Опубліковано: 5 лютого 2011 Жена, посмотрев на меня 2 первых дня :eek:, решила уйти с работы (на которую она вышла из декрета месяц тому назад, и которая по большому счету не особо ей нравилась) и помогать мне и морально и особенно физически (далее будет видно, что без её помощи справится было бы не просто сложно, но и скорее всего невозможно). Итак, вдвоём работа пошла намного веселее и через несколько дней траншеи были готовы к вязке арматуры, которую накануне и привезли. Начинать вязку арматуры запланировали на субботу, так как на субботу получалось подтянуть резервистов (мои родители) для помощи в этом нелегком деле. В тот день когда привозили арматуру, соседи, которые тоже строятся сообщили, что у других соседей предыдущей ночью украли пачку арматуры (честно говоря не представляю как это можно было сделать, так как прочувствовал её вес при разгрузке, но так как на улице никто пока не живет возможно использовали грузовой автомобиль), поэтому решили не рисковать и остатся на ночь на стройке. Не знаю услышали бы мы, как кто-то ворует нашу арматуру, если бы это произошло, так как после тяжелого физического труда и пары литров живого пива на брата мы с тестем спали как убитые. Посилання на коментар Поділитися на інших сайтах More sharing options...
K_Serega Опубліковано: 5 лютого 2011 Автор Поділитись Опубліковано: 5 лютого 2011 Ну вот наступила суббота и появилось куча помощников Так как практических навыков в вязке арматуры особо не было ни у кого, то решили вязать прямо в траншеях (позже сосед подсказал, что можно было связать наверху частями, а потом опустить в траншеи и посвязывать между собой). Основная роль, в этом нелегком процессе, легла на плечи жены. а мы с тестем занимались резкой и изгибанием арматуры использовали для этого 1/2" трубу Вязка заняла 2 дня, и вот собственно результат Посилання на коментар Поділитися на інших сайтах More sharing options...
Roma_rio Опубліковано: 5 лютого 2011 Поділитись Опубліковано: 5 лютого 2011 Каркасы связаны не правильно Посилання на коментар Поділитися на інших сайтах More sharing options...
K_Serega Опубліковано: 5 лютого 2011 Автор Поділитись Опубліковано: 5 лютого 2011 Очень интересует мнение форумчан о качестве вязки арматурных каркасов (на фото), и о количестве арматуры в фундаменте. 4 ветки арматуры ф12 в нижней части, 3 нитки ф12 арматуры в верхей части и вертикальная арматура ф10 через каждые ~ 40 см. Посилання на коментар Поділитися на інших сайтах More sharing options...
K_Serega Опубліковано: 5 лютого 2011 Автор Поділитись Опубліковано: 5 лютого 2011 Каркасы связаны не правильно А как правильно? Точнее, что, конкретно, не правильно? Посилання на коментар Поділитися на інших сайтах More sharing options...
Roma_rio Опубліковано: 5 лютого 2011 Поділитись Опубліковано: 5 лютого 2011 Первое что бросилось в глаза, это поперечная арматура внутри а не снаружиКаркас.bmp Посилання на коментар Поділитися на інших сайтах More sharing options...
K_Serega Опубліковано: 5 лютого 2011 Автор Поділитись Опубліковано: 5 лютого 2011 насколько я понимаю, смысл поперечной арматуры - удерживать продольную, которая и является рабочей, и по моему нет разницы где она находится внутри или снаружи. Или я не прав? Посилання на коментар Поділитися на інших сайтах More sharing options...
Roma_rio Опубліковано: 5 лютого 2011 Поділитись Опубліковано: 5 лютого 2011 А вы у присутствующих на форуме конструкторов спросите они вам подробно все расскажут)) Посилання на коментар Поділитися на інших сайтах More sharing options...
Roma_rio Опубліковано: 5 лютого 2011 Поділитись Опубліковано: 5 лютого 2011 А по поводу удерживать, когда она будет стоять снаружи - тогда и будет удерживать Посилання на коментар Поділитися на інших сайтах More sharing options...
Андрей Валерьевич Опубліковано: 5 лютого 2011 Поділитись Опубліковано: 5 лютого 2011 Привет землякам! Строюсь на Видном. Себе рыл 50 см ширину и теперь сильно жалею! Сделал бы 70 и спал бы спокойно! Почитай ''советы конструктора'' Посилання на коментар Поділитися на інших сайтах More sharing options...
Dron Опубліковано: 5 лютого 2011 Поділитись Опубліковано: 5 лютого 2011 Привет землякам! Строюсь на Видном. Себе рыл 50 см ширину и теперь сильно жалею! Сделал бы 70 и спал бы спокойно! Почитай ''советы конструктора'' Привет земляк. Почему жалеешь? Я себе на ФБС 4 поставил и не жалею ни грамма. Посилання на коментар Поділитися на інших сайтах More sharing options...
aleeck Опубліковано: 5 лютого 2011 Поділитись Опубліковано: 5 лютого 2011 есть ошибки в вязке арматуры, но после пожара и ... насос, вы все уже залили? Посилання на коментар Поділитися на інших сайтах More sharing options...
K_Serega Опубліковано: 5 лютого 2011 Автор Поділитись Опубліковано: 5 лютого 2011 О, смотрю луганчане подтянулись. Кто нибудь может сказать конкретно что не правильно и чем грозит, все завалится?, меня надо спасать? А если серьезно , да действительно во всех тех картах продольная арматура изображена внутри, но нигде я неашел, чтобы это было прописано как обязательное требование с пометкой по другому категорически не правильно. Если есть под рукой ссылка на нормативный документ где это указано буду очень благодарен. Посилання на коментар Поділитися на інших сайтах More sharing options...
K_Serega Опубліковано: 5 лютого 2011 Автор Поділитись Опубліковано: 5 лютого 2011 По поводу ширины, когда считал, то при ширие 50 см и стенах из шлакоблока давление на грунт получалось 0.8 кг/см2, а теперь решил делать стены из газоблока, так что получится еще меньше. Посилання на коментар Поділитися на інших сайтах More sharing options...
Рекомендовані повідомлення
Створіть акаунт або увійдіть у нього для коментування
Ви маєте бути користувачем, щоб залишити коментар
Створити акаунт
Зареєструйтеся для отримання акаунта. Це просто!
Зареєструвати акаунтУвійти
Вже зареєстровані? Увійдіть тут.
Увійти зараз