SIV Опубліковано: 7 квітня 2008 Поділитись Опубліковано: 7 квітня 2008 Участок вузький. Ширина 20 м, довжина 50 м. Північ чітко зверху відносно креслень. Матеріал зовнішніх стін цегла 25 см + утеплювач 100 мм + штукатурка, внутрішні стіни першого поверху 25 см другого поверху 12 см. Хто що скаже про такий проект для пороживання двох дорослих і двох дітей. Розмір хотілось поменше, але по функціональності вишло так як є. Посилання на коментар Поділитися на інших сайтах More sharing options...
Lexx Опубліковано: 7 квітня 2008 Поділитись Опубліковано: 7 квітня 2008 Вдале планування, відразу подобається. Зауваження, хоч вони майже притянуті за вузо: 1. Варто відокремити топкову від туалету, бажано ще й окремі входи. 2. Краще трохи прибрати двери та перегородки між кухнею та вітальнею (гостинна). 3. Внутрішні стіни першого поверху, якщо на них не спирається перекриття, можна робити тонкішими. 4. В дитячих спальнях, на мій погляд, краще не робити балкони, а збільшити кімнати. 5. Хол другого поверху начебто завеликий. Посилання на коментар Поділитися на інших сайтах More sharing options...
SIV Опубліковано: 8 квітня 2008 Автор Поділитись Опубліковано: 8 квітня 2008 А чому більше ніхто нічого не каже, невже нема, що сказати, а може проект всім подобається. Погода вже нормальна для будівництва а з проектом ще не визначився до кінця. Адже як кажуть одна голова добре а "декілька з форуму Строим дом" ліпше :D Посилання на коментар Поділитися на інших сайтах More sharing options...
Ольга В Опубліковано: 8 квітня 2008 Поділитись Опубліковано: 8 квітня 2008 Мне нравятся фасады, но не нравятся планировки. Может еще какой-нибудь проект предложите для обсуждения. Посилання на коментар Поділитися на інших сайтах More sharing options...
XamGelo Опубліковано: 8 квітня 2008 Поділитись Опубліковано: 8 квітня 2008 Санузел с котельной совмещать нельзя если котельная газовая. Даже трубы газовые через СУ нельзя тянуть Лестницу , если только в семье не все левши надо развернуть (ПОДЪЕМ ПРОТИВ ЧАСОВЙ СТРЕЛКИ) Блок кухня-столовая гостиная не нравится изза большого количества ломаных линий Посилання на коментар Поділитися на інших сайтах More sharing options...
george2007 Опубліковано: 9 квітня 2008 Поділитись Опубліковано: 9 квітня 2008 Я бы постаралась выкрутить еще один с.у. на втором этаже (например частично за счет холла и второго санузла) и однозначно как то соединила кухню с гостиной Посилання на коментар Поділитися на інших сайтах More sharing options...
SIV Опубліковано: 14 квітня 2008 Автор Поділитись Опубліковано: 14 квітня 2008 А якщо такий проект. Між гостинною і сходами камін і акваріум. На другому поверсі зліва і зправа від камінного димоходу поручні балкону з якого видно всю гостинну. Під гаражем господарські примішення, підвал і майстерня. Посилання на коментар Поділитися на інших сайтах More sharing options...
foksa Опубліковано: 14 квітня 2008 Поділитись Опубліковано: 14 квітня 2008 другий варіант подобається більше. P.S. Де саме у Львові плануєте будувати? Посилання на коментар Поділитися на інших сайтах More sharing options...
SIV Опубліковано: 14 квітня 2008 Автор Поділитись Опубліковано: 14 квітня 2008 другий варіант подобається більше. P.S. Де саме у Львові плануєте будувати? 1 км за Винниками, с.Підгірне Посилання на коментар Поділитися на інших сайтах More sharing options...
Jurij_st Опубліковано: 15 квітня 2008 Поділитись Опубліковано: 15 квітня 2008 А якщо такий проект. Між гостинною і сходами камін і акваріум. На другому поверсі зліва і зправа від камінного димоходу поручні балкону з якого видно всю гостинну. Під гаражем господарські примішення, підвал і майстерня. Проект класний !! А малюєш в Арконі? Якщо так? І тобі нешкода-- скинь в личку файл *.аср трішки пограюся Дякую! Посилання на коментар Поділитися на інших сайтах More sharing options...
SIV Опубліковано: 15 квітня 2008 Автор Поділитись Опубліковано: 15 квітня 2008 Проект класний !! А малюєш в Арконі? Якщо так? І тобі нешкода-- скинь в личку файл *.аср трішки пограюся Дякую! Давай емейл, тільки з умовою всі свої результати мені, може щось буде цікаве. Посилання на коментар Поділитися на інших сайтах More sharing options...
Jurij_st Опубліковано: 15 квітня 2008 Поділитись Опубліковано: 15 квітня 2008 Давай емейл, тільки з умовою всі свої результати мені, може щось буде цікаве. Jurij_st@bigmir.net А доречі, як там Львів)? Я іноді за ним сумую, прожив там 7 років8-) Посилання на коментар Поділитися на інших сайтах More sharing options...
Евгений_1972 Опубліковано: 18 квітня 2008 Поділитись Опубліковано: 18 квітня 2008 Добрый день! А почему бы Вам на втором этаже в свободном торце (над ванной) не сделать санузел, а то одного для такого дома будет маловато. Посилання на коментар Поділитися на інших сайтах More sharing options...
Евгений_1972 Опубліковано: 18 квітня 2008 Поділитись Опубліковано: 18 квітня 2008 Да, кстати, забыл спросить у Вас, а где топочная? Посилання на коментар Поділитися на інших сайтах More sharing options...
SIV Опубліковано: 18 квітня 2008 Автор Поділитись Опубліковано: 18 квітня 2008 Да, кстати, забыл спросить у Вас, а где топочная? На першому поверсі в ванній. Посилання на коментар Поділитися на інших сайтах More sharing options...
Ugushka Опубліковано: 18 квітня 2008 Поділитись Опубліковано: 18 квітня 2008 НАеврное, правильно понять ,сколько человек какого возраста будут прожживать в данном доме. Какие помещения Вам нужны (колдько спален, нужны ли кабинет, игровая, комната для гостей или родителей), а потом формировать проект для обсуждения. Вы выложилидва разных проекта, сравнивать их между собой, не понимая, для кого-чего они предназначены тяжковато Кроме того, каков бюджет стройки - эконом, страндарт, ВИП? Первый вариант более экономный, рассчитанный на большее число проживающих. Второй - небюджетный, слишком большой зал+второй свет - безполезная площадь, требующая колоссальных затрат на обогрев. Топочную из ванной срочно вынести Посилання на коментар Поділитися на інших сайтах More sharing options...
SIV Опубліковано: 18 квітня 2008 Автор Поділитись Опубліковано: 18 квітня 2008 НАеврное, правильно понять ,сколько человек какого возраста будут прожживать в данном доме. На даний час будуть жити двлє дорослих і двоє дітей. Вы выложилидва разных проекта, сравнивать их между собой, не понимая, для кого-чего они предназначены тяжковато. Ми зупинились на другому проекті. Кроме того, каков бюджет стройки - эконом, страндарт, ВИП? Бюджет економ-стандарт Первый вариант более экономный, рассчитанный на большее число проживающих. Второй - небюджетный, слишком большой зал+второй свет - безполезная площадь, требующая колоссальных затрат на обогрев. І в чому ж більша економія першого проекту. Загальна площа 1 пов. в 1 проекті 106 м.кв. в другому 91 м.кв. (без гаража). Загальна площа 2 пов. в 1 проекті 106 м.кв. в другому 116 м.кв. (без "второй свет"), причому в другому проекті на другому поверсі між ванною і спальнею буде відкрита бібліотека з робочим (компьютерним столом). Такщо по площах вони практично ідентичні, але 2 проект більш функціональний і візуально всередині НАБАГАТО гарніший (маю 3D візуалізацію обидвох проектів. Кількість кімнат в обидвох проектах однакова. Обєм фундамента, площа перекриття і площа даху в 2 проекті менші. А чому це зал завеликий, просто на кресленні вказана площа разом з прихожою-коридором-сходами, площа самого залу 30 м.кв. Для обігріву додатково передбачена піч-камін, ну люблю я з дитинства і печі і каміни, а дивитись вечорами на вогонь та ще й бокалом коньяку можна вічно. Топочную из ванной срочно вынести Поясніть чому, проектант твердо сказав що згідно норм проектування можна. P.S. Мама працює в проектному інституті, такщо по любому питанню я консультувався і консультуюсь з спеціалістами-професіоналами (безкоштовно) багато раз. Посилання на коментар Поділитися на інших сайтах More sharing options...
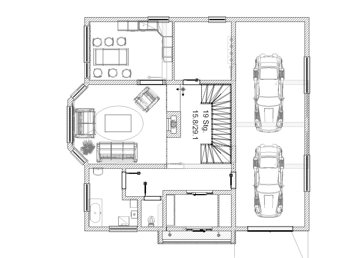
Jurij_st Опубліковано: 18 квітня 2008 Поділитись Опубліковано: 18 квітня 2008 А як такий 1 поверх? Посилання на коментар Поділитися на інших сайтах More sharing options...
SIV Опубліковано: 18 квітня 2008 Автор Поділитись Опубліковано: 18 квітня 2008 А як такий 1 поверх? 1. Кухня столова потрібна велика, і прохід в гостинну треба щоб не бігати по кругу. 2. В цьому варіанті треба 2 далеко рознесені стояки каналізації і води. Вентканалів треба 3 шт.В моєму варіанті все в одному місці. Посилання на коментар Поділитися на інших сайтах More sharing options...
Jurij_st Опубліковано: 18 квітня 2008 Поділитись Опубліковано: 18 квітня 2008 1. Кухня столова потрібна велика, і прохід в гостинну треба щоб не бігати по кругу. 2. В цьому варіанті треба 2 далеко рознесені стояки каналізації і води. Вентканалів треба 3 шт.В моєму варіанті все в одному місці. Можливо і так, але всерывно, якось воно нетак коли біля кухні туалет, а до того ж його видно із гостинної, це мені знову нагадує квартири-- коли хтось сидить на кухні, а тут в туалеті... Посилання на коментар Поділитися на інших сайтах More sharing options...
SIV Опубліковано: 18 квітня 2008 Автор Поділитись Опубліковано: 18 квітня 2008 Можливо і так Я спочатку так само проектував так щоб подобалось і тільки пізніше зрозумів і навчився проектувати ще й раціонально. Посилання на коментар Поділитися на інших сайтах More sharing options...
Jurij_st Опубліковано: 18 квітня 2008 Поділитись Опубліковано: 18 квітня 2008 Я спочатку так само проектував так щоб подобалось і тільки пізніше зрозумів і навчився проектувати ще й раціонально. навчусь і я несвяті ж горшки ліплять Посилання на коментар Поділитися на інших сайтах More sharing options...
Ugushka Опубліковано: 18 квітня 2008 Поділитись Опубліковано: 18 квітня 2008 Ми зупинились на другому проекті. Бюджет економ-стандарт Теперь понятнее. Я думала, что там - второй свет. Как-то дверей нет Я просто поделюсь ощущениями по части "что мне не очень понравилось": 1. Спальни над гаражом. Думаю, что шумновато и не совсем приятно по части запахов, особенно, если это будут детские. Кроме того, гараж "паровозиком" - это неудобно. Понимаю, что участок вытянут. Но, возможно, есть проекты для вытянутых участков с гаражом иной конструкции. Я бы поискала 2. Я бы предпочла санузел для взрослых иметь отдельный. Пусть даже, немного в ущерб библиотеке. 3. На втором этаже аппендикс коридора можно перегородить под кладовую. Вообще с кладовыми у вас не совсем продумано. Гардеробные комнаты - это одно, а место под пылесосы нужно тоже иметь Поясніть чому, проектант твердо сказав що згідно норм проектування можна. Наверное, можно. Для топочных существует отпределенный метраж. Если он соблюден - разрешат делать так. В принципе, моя логика основана не на нормах, а на собственных жизненных ощущениях: 1. В топочную удобнее делать отдельный вход. Это позволит приглашать наладчиков-ремонтников через отдельную дверь, а не через весь дом. 2. Топочную можно обложить дешевым кафелем, поддерживать в ней чистоту технического помещения, не бояться, что дети полезут к котлу. Кроме того, котел будет портить "эстетику" ванной, как ни крути 3. Возможно, со временем, экономические факторы заставят сменить газовый котел на твердотопливный. Отдельная топочная позволит это сделать намного менее болезненно. Посилання на коментар Поділитися на інших сайтах More sharing options...
Евгений_1972 Опубліковано: 18 квітня 2008 Поділитись Опубліковано: 18 квітня 2008 Добрый день! Мне по нескольким причинам понравился первый вариант: 1.Там где у Вас планируется открытая библиотека я планирую сделать санузел на втором этаже, удобно и функционально, т.к. коммуникации не нужно будет разводить по всему дому. 2.Гараж на две машины мне не нужен, хватит одного гаража+навес, к тому же гараж на две машины вагончиком не удобен, поэтому дальнюю часть гаража можно занять отдельной топочной со входом с улицы, а так же сделать небольшую парилку со входом с санузла. 3.Т.к. вход у меня с юга, то мне лучше кабинет (детскую комнату для уроков) выходящую на юго-запад, чем на север. Посилання на коментар Поділитися на інших сайтах More sharing options...
Jurij_st Опубліковано: 18 квітня 2008 Поділитись Опубліковано: 18 квітня 2008 А які норми проектування топочної м2--скільки у мене вийшло 6,2 Посилання на коментар Поділитися на інших сайтах More sharing options...
Рекомендовані повідомлення
Створіть акаунт або увійдіть у нього для коментування
Ви маєте бути користувачем, щоб залишити коментар
Створити акаунт
Зареєструйтеся для отримання акаунта. Це просто!
Зареєструвати акаунтУвійти
Вже зареєстровані? Увійдіть тут.
Увійти зараз