Alder78 Опубліковано: 22 травня 2011 Поділитись Опубліковано: 22 травня 2011 Вот нарисовали планировку дома, которая нам нравится. Дом двухэтажный из пеноблока или пенобетона, перекрытия деревянные. Размер дома 9х11м. Дом для семьи из 4 человек (двое взрослых и двое детей). Какие будут комментарии, замечания, пожелания? Посилання на коментар Поділитися на інших сайтах More sharing options...
Artyomovets Опубліковано: 22 травня 2011 Поділитись Опубліковано: 22 травня 2011 окно в котельной - обязательно. лестница никакие двери не перегораживает? камин. думайте где. мне кажется или стены на 2-м этаже никак не связаны со стенами 1-го этажа? еще бы размеры увидеть... Посилання на коментар Поділитися на інших сайтах More sharing options...
Alder78 Опубліковано: 22 травня 2011 Автор Поділитись Опубліковано: 22 травня 2011 спасибо. окно добавим, камина не будет. по поводу лестницы- какая площадь нужна для хорошей лестницы? Посилання на коментар Поділитися на інших сайтах More sharing options...
Artyomovets Опубліковано: 22 травня 2011 Поділитись Опубліковано: 22 травня 2011 спасибо. окно добавим, камина не будет. по поводу лестницы- какая площадь нужна для хорошей лестницы? насчет камина - зря... проектируйте его. построите позже. по лестнице - сичтайте высоту этажа, ширину и высоту ступенек. тогда все встанет на свои места. главное - чтоб потом не получилось, что ступеньки по 40-50 см высотой надо делать... Посилання на коментар Поділитися на інших сайтах More sharing options...
Alder78 Опубліковано: 22 травня 2011 Автор Поділитись Опубліковано: 22 травня 2011 Высота этажа 3м, а какие нормы высоты и ширины ступенек? Посилання на коментар Поділитися на інших сайтах More sharing options...
Artyomovets Опубліковано: 22 травня 2011 Поділитись Опубліковано: 22 травня 2011 Высота этажа 3м, а какие нормы высоты и ширины ступенек? нормы - лучше у профессионалов узнать комфорт, вроде, 180 мм высота и 300 мм ширина Посилання на коментар Поділитися на інших сайтах More sharing options...
Tarras Опубліковано: 22 травня 2011 Поділитись Опубліковано: 22 травня 2011 Высота этажа 3м, а какие нормы высоты и ширины ступенек? Максимально комфортними сходини вважаються 150мм висота та 300мм ширина. Є спец стандарти з врахуванням норм та комфорту. Ширина сходової клітини оптимальна 2100мм (1000мм на кожен марш, мін. 100мм між маршами по пож.нормах). 2 Посилання на коментар Поділитися на інших сайтах More sharing options...
вторик Опубліковано: 23 травня 2011 Поділитись Опубліковано: 23 травня 2011 ищите диаграмму зависимости ширины к высоте ступенек. или формулу. в сети есть Посилання на коментар Поділитися на інших сайтах More sharing options...
Alder78 Опубліковано: 23 травня 2011 Автор Поділитись Опубліковано: 23 травня 2011 место под лестницу 2-2,5 на 3 метра. Специалисты, подскажите, поместится лестница или нет? высота потолка 3 метра Посилання на коментар Поділитися на інших сайтах More sharing options...
Artyomovets Опубліковано: 23 травня 2011 Поділитись Опубліковано: 23 травня 2011 место под лестницу 2-2,5 на 3 метра. Специалисты, подскажите, поместится лестница или нет? высота потолка 3 метра вы покажите все размеры на вашем плане - будет ясно Посилання на коментар Поділитися на інших сайтах More sharing options...
Alder78 Опубліковано: 23 травня 2011 Автор Поділитись Опубліковано: 23 травня 2011 попробую нарисовать и вечером выставить размеры. а по расположению комнат будут замечания или все ок? строимся первый раз, поэтому вопросов выше крыши Посилання на коментар Поділитися на інших сайтах More sharing options...
IBM Опубліковано: 23 травня 2011 Поділитись Опубліковано: 23 травня 2011 примерно так при заданной ширине 3м... Посилання на коментар Поділитися на інших сайтах More sharing options...
OlegArh Опубліковано: 23 травня 2011 Поділитись Опубліковано: 23 травня 2011 (змінено) ошибка... Змінено 23 травня 2011 користувачем OlegArh Посилання на коментар Поділитися на інших сайтах More sharing options...
Rudirena Опубліковано: 23 травня 2011 Поділитись Опубліковано: 23 травня 2011 У Вас очень похож проект на наш только с зеркальным отражением. Кухня у Вас какае-то маленькая получается. Мы например отказались от кладовки, так как очень много забирает и так у небольшой кухни. Мы немного изменили проект. Если интересно можете посмотреть у меня в ветке планировку (правда там нет с изминениями, если будет интересно кину на почту). 1 Посилання на коментар Поділитися на інших сайтах More sharing options...
Alder78 Опубліковано: 24 травня 2011 Автор Поділитись Опубліковано: 24 травня 2011 Большое спасибо!!! Посилання на коментар Поділитися на інших сайтах More sharing options...
ДОКС Опубліковано: 24 травня 2011 Поділитись Опубліковано: 24 травня 2011 .................................................. 3 Посилання на коментар Поділитися на інших сайтах More sharing options...
Tarras Опубліковано: 24 травня 2011 Поділитись Опубліковано: 24 травня 2011 .................................................. Те що я мав на увазы! Посилання на коментар Поділитися на інших сайтах More sharing options...
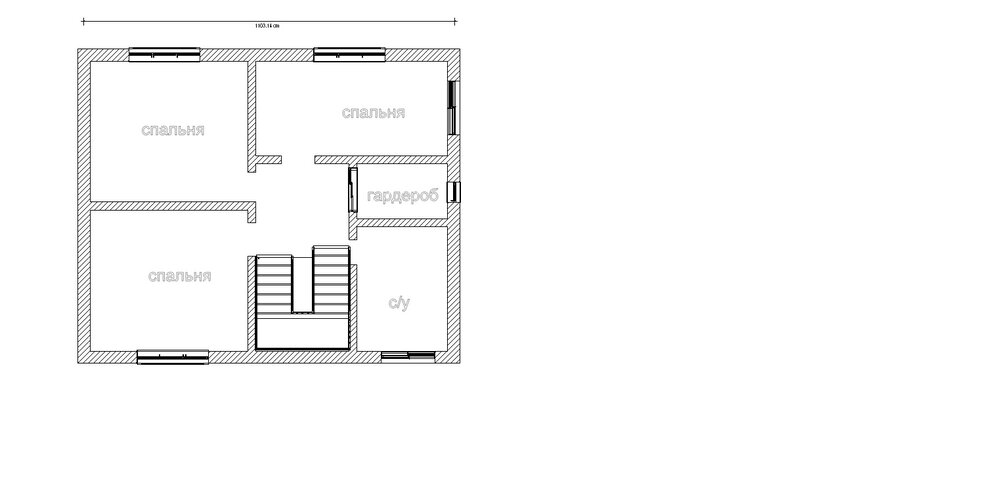
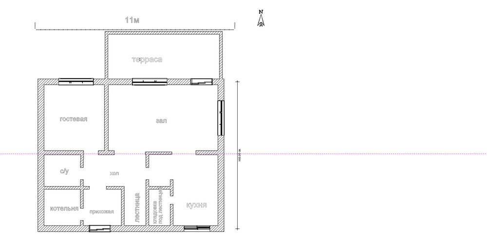
Alder78 Опубліковано: 25 травня 2011 Автор Поділитись Опубліковано: 25 травня 2011 Осознав, что в строительстве разбираемся мало, решили обратиться за помощью к архитектору, чему несказанно рады. и вот что получилось Посилання на коментар Поділитися на інших сайтах More sharing options...
Artyomovets Опубліковано: 25 травня 2011 Поділитись Опубліковано: 25 травня 2011 размеры топочной мне как-то маловаты кажутся... 5м2 вроде требуют по минимуму? а что делал архитектор? только поэтажные планы или полный проект? Посилання на коментар Поділитися на інших сайтах More sharing options...
Alder78 Опубліковано: 25 травня 2011 Автор Поділитись Опубліковано: 25 травня 2011 рабочий проект в полном объеме Посилання на коментар Поділитися на інших сайтах More sharing options...
Artyomovets Опубліковано: 25 травня 2011 Поділитись Опубліковано: 25 травня 2011 рабочий проект в полном объеме за 2 дня? в общем... в личке вопрос Посилання на коментар Поділитися на інших сайтах More sharing options...
Alder78 Опубліковано: 25 травня 2011 Автор Поділитись Опубліковано: 25 травня 2011 проект еще не готов, это только часть Посилання на коментар Поділитися на інших сайтах More sharing options...
Rudirena Опубліковано: 25 травня 2011 Поділитись Опубліковано: 25 травня 2011 Хочу обратить внимание, если Вы разместите рядышком кухню с сан узлом у вас будет 2 преимущества, не нужно будет из санузлов тянуть к вент. каналам трубы, проще и дешевле прокладывать канализацию. Конечно это не значительные затраты, но копейка копейку бережет Посилання на коментар Поділитися на інших сайтах More sharing options...
Rudirena Опубліковано: 25 травня 2011 Поділитись Опубліковано: 25 травня 2011 У Вас на 2ом этаже придется от венканалов тянуть трубу к сан узлу, это все потом нужно чем то зашивать, это все дополнительные затраты. Посилання на коментар Поділитися на інших сайтах More sharing options...
Levandr Опубліковано: 25 травня 2011 Поділитись Опубліковано: 25 травня 2011 место под лестницу 2-2,5 на 3 метра. Специалисты, подскажите, поместится лестница или нет? высота потолка 3 метра сделайте 4 забежных ступени Посилання на коментар Поділитися на інших сайтах More sharing options...
Рекомендовані повідомлення
Створіть акаунт або увійдіть у нього для коментування
Ви маєте бути користувачем, щоб залишити коментар
Створити акаунт
Зареєструйтеся для отримання акаунта. Це просто!
Зареєструвати акаунтУвійти
Вже зареєстровані? Увійдіть тут.
Увійти зараз