SON Опубліковано: 17 березня 2012 Поділитись Опубліковано: 17 березня 2012 3. "Димоходный канал" под камин обяз гильзовка нержавейкой, не уверен, что канал у вас из огнестойкого кирпича. А можно прокомментировать эти два момента, зачем обязательно гильзовать, и зачем делать дымоход из огнеупорного кирпича? Посилання на коментар Поділитися на інших сайтах More sharing options...
REYDER Опубліковано: 17 березня 2012 Поділитись Опубліковано: 17 березня 2012 или - или Посилання на коментар Поділитися на інших сайтах More sharing options...
NAVIN Опубліковано: 17 березня 2012 Поділитись Опубліковано: 17 березня 2012 1. не имеет смысла тянуть так далеко, сделайте вытяжку через стену. Два клапана достаточно чтобы не промерзало? Может есть "готовые решения"? Фан конечно лучше сделать, но если нету возможности ставьте вакуумный клапан. Дом еще в проекте, сделаю. 2. Вам проще через стену на улицу. Через котельную ничего тянуть нельзя! Опять-же вопрос промерзания? Вы о котельной задумайтесь. Вы уверенны что там установите газ котел? Не уверен, но если что наверно буду расчитывать на турбированый с дымоходом в стену 3. "Димоходный канал" под камин обяз гильзовка нержавейкой, не уверен, что канал у вас из огнестойкого кирпича. Ясно 4. Котельня - вентканал да, надо. Но она у вас маловата и нету окна. По кубатуре - нормально(около 9м3), а про окно... вроде не обязательно оно, или ошибаюсь? Посмотрите требования к котельным. А если будет турбированный котел то коаксиальный дымоход можно вывести через стену. 7. Фановая труба делается канализационной трубой + крышный выход. каналы естественной вентиляции лучше делать в строительных конструкциях, об этом есть рекомендация в ДБН. Спасибо Посилання на коментар Поділитися на інших сайтах More sharing options...
SON Опубліковано: 17 березня 2012 Поділитись Опубліковано: 17 березня 2012 или - или Дымоход из огнеупорного кирпича - это для тех у кого барабаны от Страдивари, а нержавейку продавцы втуливают куда нужно и не нужно. Посилання на коментар Поділитися на інших сайтах More sharing options...
REYDER Опубліковано: 17 березня 2012 Поділитись Опубліковано: 17 березня 2012 Дымоход из огнеупорного кирпича - это для тех у кого барабаны от Страдивари, а нержавейку продавцы втуливают куда нужно и не нужно. эта тема обссусоливалась в теме Печи и Камины Посилання на коментар Поділитися на інших сайтах More sharing options...
NAVIN Опубліковано: 19 березня 2012 Поділитись Опубліковано: 19 березня 2012 или сделать шаху 270*140 и всунуть в шахту 2 пластиковые трубы Ф110мм. Подскажите еще как их(вент и фан) "разводить" над крышей, в смысле одну ниже другую выше(на сколько выше и какую) или можно вывести вместе на одной высоте? Не затянет запахи? Посилання на коментар Поділитися на інших сайтах More sharing options...
SON Опубліковано: 19 березня 2012 Поділитись Опубліковано: 19 березня 2012 Подскажите еще как их(вент и фан) "разводить" над крышей, в смысле одну ниже другую выше(на сколько выше и какую) или можно вывести вместе на одной высоте? Не затянет запахи? Фановая выше вентканалов . 1 Посилання на коментар Поділитися на інших сайтах More sharing options...
NAVIN Опубліковано: 19 березня 2012 Поділитись Опубліковано: 19 березня 2012 Фановая выше вентканалов . Достаточно на столько? Посилання на коментар Поділитися на інших сайтах More sharing options...
SON Опубліковано: 19 березня 2012 Поділитись Опубліковано: 19 березня 2012 При трубе в/к 100 сделайте побольше 40-50 см. 1 Посилання на коментар Поділитися на інших сайтах More sharing options...
REYDER Опубліковано: 19 березня 2012 Поділитись Опубліковано: 19 березня 2012 (змінено) Не буду повторяться, а процитирую ответ умного человека: СНиП 2.04.01-85 (2000) Внутренний водопровод и канализация: 17.18. Сети бытовой и производственной канализации, отводящие сточные воды в наружную канализационную сеть, должны вентилироваться через стояки, вытяжная часть которых выводится через кровлю или сборную вентиляционную шахту здания на высоту, м: от плоской неэксплуатируемой кровли .......... 0,3 " скатной кровли ........................................... 0,5 " эксплуатируемой кровли ............................ 3 " обреза сборной вентиляционной шахты ..... 0,1 Выводимые выше кровли вытяжные части канализационных стояков следует размещать от открываемых окон и балконов на расстоянии не менее 4 м (по горизонтали). Флюгарки на вентиляционных стояках предусматривать не требуется. 17.19. Не допускается соединять вытяжную часть канализационных стояков с вентиляционными системами и дымоходами. 17.20. Диаметр вытяжной части канализационного стояка должен быть равен диаметру сточной части стояка. Допускается объединять поверху одной вытяжной частью...... 17.21. При расходах сточных вод по канализационному стояку свыше указанных в табл. 8 следует предусматривать устройство дополнительного вентиляционного стояка, присоединяемого к канализационному стояку через один этаж. Диаметр дополнительного вентиляционного стояка следует принимать на один размер меньше диаметра канализационного стояка. Присоединение дополнительного вентиляционного стояка к канализационному следует предусматривать снизу ниже последнего нижнего прибора или сверху — к направленному вверх отростку косого тройника, устанавливаемого на канализационном стояке выше бортов санитарно-технических приборов или ревизий, расположенных на данном этаже. Свод правил по проектированию и монтажу трубопроводов из полипропилена СП 40-101-96: 4.13 При невозможности устройства вытяжной части и невентилируемого канализационного стояка допускается применение вентиляционного клапана (приложение Б). ...... Рекомендую ознакомиться, хотя бы поверхностно, со статьёй "физика работы системы канализации (и СНиП) " физика работы системы канализации (и СНиП).pdf Змінено 19 березня 2012 користувачем REYDER 2 Посилання на коментар Поділитися на інших сайтах More sharing options...
krasotkalee Опубліковано: 15 травня 2012 Поділитись Опубліковано: 15 травня 2012 Здравствуйте! Прочитала тему. Тоже нуждаюсь в совете как сделать вентиляцию. Исходные данные : домик старенький, высоты потолков 2,7м, есть дымоход, в кухне площадью 9м2 с двумя окнами планируется газовая плита и газовый котёл с закрытой камерой сгорания. В с/у площадью 7м2 тоже есть окно и в углу находится дымоход от старой печки. Прочитала, что для газовой плиты должен быть приток и естественная вентиляция. Есть мысль сделать вентканал рядом с дымоходом кирпичом или трубой. Но не знаю как соединить с кухней чтобы была тяга. Помогите, пожалуйста. Посилання на коментар Поділитися на інших сайтах More sharing options...
SON Опубліковано: 15 травня 2012 Поділитись Опубліковано: 15 травня 2012 (змінено) У Вас один или два дымохода? П.С. Уже сам понял, что один. :D Киньте трубу от дымохода в кухню, Ф125мм. с учетом потолков 2,7м. думаю в коридорчике см. 15 высоты можно украсть, зашив трубу за дополнительный потолок или короб, а можно и так оставить. В с/у пробейте отверстие в сам дымоход повыше, ну и ессно все это дело обкультурить вентрешетками, тока москитки из них выбросьте. Дверные полотна в кухню и в с/у подрезать снизу, шоб была щель 1,5-2 см. Если в кухне будет тянуть хуже, "подожмете" сечение вентрешетки в с/у. Змінено 15 травня 2012 користувачем SON 1 Посилання на коментар Поділитися на інших сайтах More sharing options...
krasotkalee Опубліковано: 15 травня 2012 Поділитись Опубліковано: 15 травня 2012 Спасибо за совет SON! А если дверей в кухне не будет, то тяга будет? И что значит ""подожмете" сечение вентрешетки в с/у"? Посилання на коментар Поділитися на інших сайтах More sharing options...
SON Опубліковано: 15 травня 2012 Поділитись Опубліковано: 15 травня 2012 Спасибо за совет SON! А если дверей в кухне не будет, то тяга будет? И что значит ""подожмете" сечение вентрешетки в с/у"? Подрез дверного полотна делается для того, чтоб воздуху было кудой "попасть" в кухню, без двери у него (воздуха) не будет вообще никакого препятствия. Но если дверь в кухню не поставить,( т.е. хотите арку) то при варке/жарке запахи будут попадать в комнату. Решать конечно Вам.:D "Поджать", значит уменьшить проходное сечение вентрешетки. Тут или "играться" (подбирать) с размерами самой пластмасски, или можно поставить изначально большую и потом заклеить часть листком бумаги или скотчем с внутренней стороны. Если знаете внутренний размер дымохода, поделите его в соотношении напр. 40/60 и подберите соотв. вентрешетки, бОльшую поставив в кухне. Дымоход конечно же должен быть в рабочем состоянии. 1 Посилання на коментар Поділитися на інших сайтах More sharing options...
krasotkalee Опубліковано: 15 травня 2012 Поділитись Опубліковано: 15 травня 2012 Спасибо SON. Будем ставить дверь в кухне. А если дымоход будет нерабочим или оставим его для камина или печки, то сделать вентканал трубой и рядом с дымоходом вывести на крышу? Посилання на коментар Поділитися на інших сайтах More sharing options...
SON Опубліковано: 15 травня 2012 Поділитись Опубліковано: 15 травня 2012 А если дымоход будет нерабочим или оставим его для камина или печки, То что дымоход не рабочий маловероятно, все таки старая постройка, но проверить не мешает, да и почистить впрочем тож. Оставлять его в качестве дымохода или задействовать под в/к решайте сами. Камин реально можно будет поставить или в спальне, или в коридорчике, (с/у однозначно отпадает) чего по понятным причинам Вы делать вряд-ли будете. Если у Вас кухня 9м2, то площадь остальных помещений я так понимаю нарисована более-менее в масштабе. Ну и куда Вы все это (печь или камин) собираетесь впихнуть? :D Без обид. Да и с камином не все так просто, как кажется на первый взгляд, и как той же печкой отопить весь дом. Ну шо я Вам скажу, используйте дымоход под вентиляцию, а надумаетесь строить камин, тогда и вентканалы достроите. Свое мнение я никоим образом не навязываю, просто еще раз подумайте и взвесьте все "за" и "против", Вам в этом доме жить. 1 Посилання на коментар Поділитися на інших сайтах More sharing options...
krasotkalee Опубліковано: 15 травня 2012 Поділитись Опубліковано: 15 травня 2012 Спасибо, Вы правы - для спальни 14 м2 камин даже с закрытой топкой будет слишком велик! Правда там еще стоит старая печка, думали "осовременить", да и хотелось оставить альтернативный источник отопления... вот и посещала такая мысля А отопление планируем газовым котлом, теплый пол и теплые стены. Ещё раз спасибо за советы и терпение. Посилання на коментар Поділитися на інших сайтах More sharing options...
SON Опубліковано: 15 травня 2012 Поділитись Опубліковано: 15 травня 2012 Правда там еще стоит старая печка, думали "осовременить", да и хотелось оставить альтернативный источник отопления... вот и посещала такая мысля Вот тут мона чуть стоп, :D чего ж сразу не сказали и не нарисовали печку. Если выбрасывать печку не собираетесь, (пральна мыслите :D) то тайм-аут до завтра. 1 Посилання на коментар Поділитися на інших сайтах More sharing options...
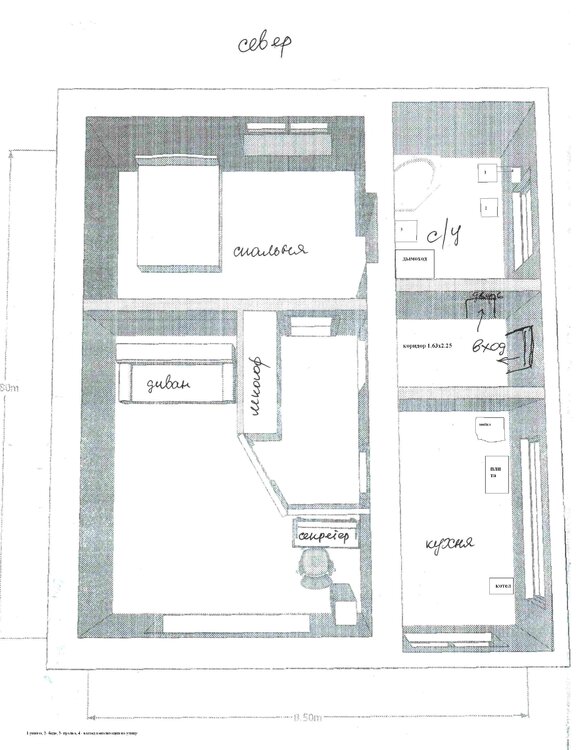
krasotkalee Опубліковано: 16 травня 2012 Поділитись Опубліковано: 16 травня 2012 (змінено) SON, ну коль так, то печка-плита находится на плане в нише в спальне Правда как она соединяется с дымоходом, находящимся за стеной в другом помещении( в с/у) для меня загадка Змінено 16 травня 2012 користувачем krasotkalee вложение Посилання на коментар Поділитися на інших сайтах More sharing options...
SON Опубліковано: 16 травня 2012 Поділитись Опубліковано: 16 травня 2012 Если будете оставлять печку, соотв. и дымоход под нее, то можно к дымоходу достроить вентканалы из кирпича, 140*140 мм. 2 штуки, т.е . в 1/2 кирпича. Тем более, что есть возможность их опереть на стену. На малюнках думаю поймете. Тока не знаю, что у Вас там по перекрытию, чердаку и кровле. Посилання на коментар Поділитися на інших сайтах More sharing options...
krasotkalee Опубліковано: 16 травня 2012 Поділитись Опубліковано: 16 травня 2012 Поняла. Перекрытие не знаю какое, крыша- шифер, чердак не утеплённый, на полу чердака глина с опилками.Только может вентканалы пристроить со стороны с/у и опереть их к одной стороне дымохода , а не со стороны спальни? Или это слабовато будет? Посилання на коментар Поділитися на інших сайтах More sharing options...
SON Опубліковано: 16 травня 2012 Поділитись Опубліковано: 16 травня 2012 Только может вентканалы пристроить со стороны с/у и опереть их к одной стороне дымохода , а не со стороны спальни? Или это слабовато будет? "Опереть" в данном контексте нужно понимать так,что опорой для вентканалов будет являться центральная стена, она у Вас минимум в 1 кирпич толщиной. Если толщина простенков позволяет, то можно ставить и на них. Ессно новую кладку нужно "привязать" к кладке дымохода. Или я Вас неправильно понял? :D 1 Посилання на коментар Поділитися на інших сайтах More sharing options...
krasotkalee Опубліковано: 17 травня 2012 Поділитись Опубліковано: 17 травня 2012 Правильно поняли Эта стена, к которой Вы пририсовали в/к толщиной в 2 ракушки, где-то 80 см, а дымоход - из кирпича, толщины не знаю, наверное, стандартно, хотя не буду утверждать Просто мне показалось, что к дымоходу будет проще "привязать" и не надо пробивать несущую стену, ту что между спальней и с/у, а только простенки между коридором и кухней Посилання на коментар Поділитися на інших сайтах More sharing options...
SON Опубліковано: 17 травня 2012 Поділитись Опубліковано: 17 травня 2012 Просто мне показалось, что к дымоходу будет проще "привязать" и не надо пробивать несущую стену, ту что между спальней и с/у, а только простенки между коридором и кухней Мы видимо говорим о разном. :D Если будете достраивать вентшахту, то ничего пробивать не нужно, надо только раскопать глину на перекрытии, чтоб добраться до верхнего среза стены, и на нее ложить шахту. Единственное, что придется пробурить, так это два отверстия в потолке с/у и кухни для вывода труб идущих от вентшахты. 1 Посилання на коментар Поділитися на інших сайтах More sharing options...
krasotkalee Опубліковано: 17 травня 2012 Поділитись Опубліковано: 17 травня 2012 Ото я "село без сільради" Теперь дошло, что эта вся конструкция будет на чердаке располагаться Тогда последний вопрос (уж больно понравилось с вами общаться, Вы - чуткий и терпеливый А труба имеет поворот к потолку коленом 90 градусов или надо делать плавный поворот 2х45 или какую-то гофрированную трубу? И в отверстия нужно предусмотреть какие-то вытяжные вентиляторы для ускорения? Посилання на коментар Поділитися на інших сайтах More sharing options...
Рекомендовані повідомлення
Створіть акаунт або увійдіть у нього для коментування
Ви маєте бути користувачем, щоб залишити коментар
Створити акаунт
Зареєструйтеся для отримання акаунта. Це просто!
Зареєструвати акаунтУвійти
Вже зареєстровані? Увійдіть тут.
Увійти зараз