Скрипка Александр Опубліковано: 25 лютого 2012 Автор Поділитись Опубліковано: 25 лютого 2012 Очень понравился план дома со второго варианта!!!! А вы на каком остановились? Но с фасадом надо что-то делать ведь это дом жилой, он должен быть домашним, а не напоминать офис........ подумайте и не в обиду..... План поменялся .на мой взгляд в лучшую сторону ,в рабочие дни выложу (не могу победить домашний макинтош),если интересно могу планировки в почту сбросить про фасад ... ну не знаю, как по мне -он жилой ,частично штукатурка,частично кирпич ... 1 Посилання на коментар Поділитися на інших сайтах More sharing options...
lud_mila Опубліковано: 25 лютого 2012 Поділитись Опубліковано: 25 лютого 2012 Вам и вашей семье нравиться. - и это главное!!!! Новые планы выкладывайте обязательно и в теме, будет интерсно не только мне. 9 Посилання на коментар Поділитися на інших сайтах More sharing options...
buffalolion Опубліковано: 26 лютого 2012 Поділитись Опубліковано: 26 лютого 2012 тут много критики касательно внешнего вида дома только потому, что единицы делают внешнюю отделку дома полностью поддерживая стилистику. если полностью воплотитепроектную картинку фасада - будет ооочень красиво. 1 Посилання на коментар Поділитися на інших сайтах More sharing options...
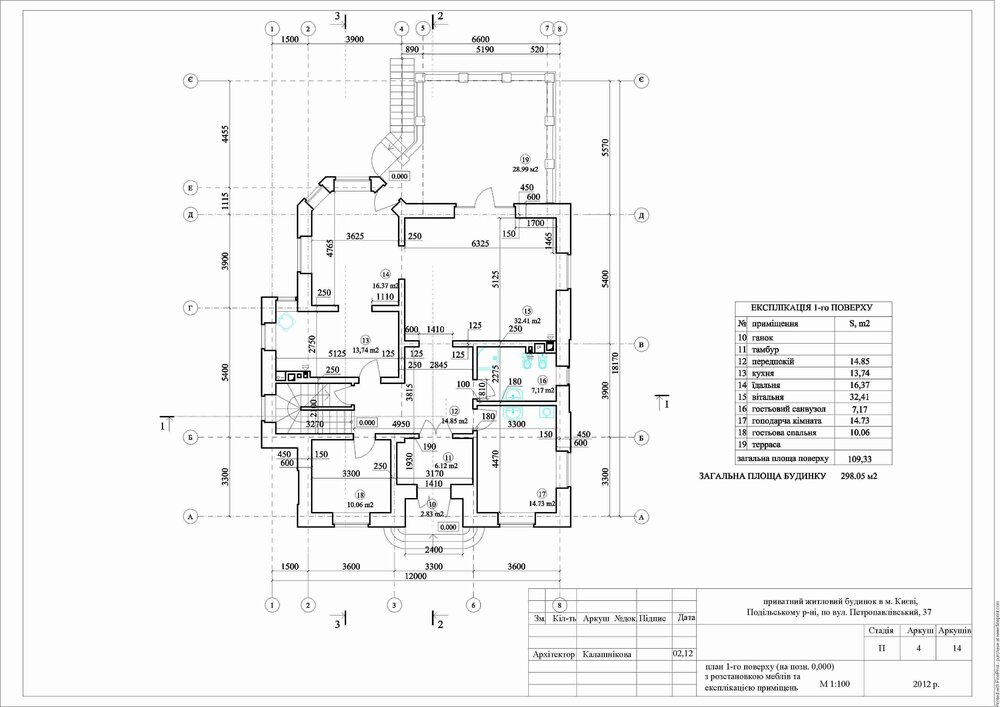
Скрипка Александр Опубліковано: 27 лютого 2012 Автор Поділитись Опубліковано: 27 лютого 2012 остановились вот на этом варианте... Посилання на коментар Поділитися на інших сайтах More sharing options...
lud_mila Опубліковано: 27 лютого 2012 Поділитись Опубліковано: 27 лютого 2012 уж больно мне хочется увидеть вашу новую планиррвку, но у меня почему-то не грузятся фото.... Посилання на коментар Поділитися на інших сайтах More sharing options...
Скрипка Александр Опубліковано: 18 липня 2012 Автор Поділитись Опубліковано: 18 липня 2012 Ну вроде началось .. в субботу начали копать . Не без приключений ( у трактора по дороге на участок лопнуло колесо ) но чувак опытный : позвонил камазисту, который вывозил землю, тот приехал он ему ковш в кузов закинул , приподнялся ,и на двух колесах прикатил. Как он заползал на трех лапках и ковше в ворота ,ширина которых сантиметров на 20 больше самого трактора ,отдельная история . Пока машины возили землю тракторист нашел новое колесо , по виду правда хоже чем старое ,собрал его минут за 15 ..я в детстве колесо от велика собирал дольше.. и уже бодренько так начал раскатывать по участку . Копали два дня -вынули 600 кубов , часть вывезли ,часть оставили на участке . Последние три дня хлопцы ровняют основание , с помощью нивелира , лопат и тележек ... Сегодня завезли опалубку , и трамбовочную машинку ... немного фото.. 1 Посилання на коментар Поділитися на інших сайтах More sharing options...
Скрипка Александр Опубліковано: 23 липня 2012 Автор Поділитись Опубліковано: 23 липня 2012 продолжаем..в пятницу завезли арматуру, кран ставить негде поэтому разгружать пришлось вручную все 14 тонн. До этого выставили опалубку ,уложили мембрану . Теперь вязка , думаю дней 10 уйдет ... На участке рос ствол ореха грецкого, метра с три высотой ,очень хотелось его оставить и в последствии вырезать тотем , но на получилось , теперь ствол лежит ... можно ли из него соорудить что нибудь полезное, может стол , и лавочку вырезать из цельного?? Посилання на коментар Поділитися на інших сайтах More sharing options...
Скрипка Александр Опубліковано: 23 серпня 2012 Автор Поділитись Опубліковано: 23 серпня 2012 тихо сам ссобой я веду беседу со времени последнего сообщения сделали контур заземления и молниеотовода , родили сына,залили плиту , поставили и связали армутуру на стены цоколя, сегодня закончим выставлять горизонтальную опалубку (ну вот всяком случае должны закончить). 7 Посилання на коментар Поділитися на інших сайтах More sharing options...
Lukreciya Опубліковано: 23 серпня 2012 Поділитись Опубліковано: 23 серпня 2012 родили сына,залили плиту основательно Вы подошли к процессу!! осталось посадить дерево, ну и мелочевка всякая.) Посилання на коментар Поділитися на інших сайтах More sharing options...
ol4ik Опубліковано: 26 серпня 2012 Поділитись Опубліковано: 26 серпня 2012 родили сына, Саш, Желаем Вашему малышу рости здоровеньким и счастливеньким на радость маме и папе в новом доме!!!! ЗЫ:А что это за черные щиты вокруг цоколя? Посилання на коментар Поділитися на інших сайтах More sharing options...
Koskos Опубліковано: 26 серпня 2012 Поділитись Опубліковано: 26 серпня 2012 масштабно выглядит... Посилання на коментар Поділитися на інших сайтах More sharing options...
Надежда Опубліковано: 26 серпня 2012 Поділитись Опубліковано: 26 серпня 2012 , поставили и связали армутуру на стены цоколя У меня по проекту не было арматуры в монолитных стенах цоколя. Прораб, которого хотела нанять на строительство дома, возмущался и требовал арматуру. По итогу строила без ....прораба и без ....арматуры Посилання на коментар Поділитися на інших сайтах More sharing options...
Скрипка Александр Опубліковано: 26 серпня 2012 Автор Поділитись Опубліковано: 26 серпня 2012 У меня по проекту не было арматуры в монолитных стенах цоколя. Прораб, которого хотела нанять на строительство дома, возмущался и требовал арматуру. По итогу строила без ....прораба и без ....арматуры у меня по проекту есть,там склон достаточно приличный , многие говорят что столько арматуры не надо , но в случае большого киздеца , эти мнения не пришьешь к претензиям ... а у конструктра есть лицензия и под своим проектом он ставит свою подпись. Добавлено через 3 минуты Саш, Желаем Вашему малышу рости здоровеньким и счастливеньким на радость маме и папе в новом доме!!!! ЗЫ:А что это за черные щиты вокруг цоколя? Щиты .. опалубку выставляют на вертикальные стены , пресловутая" Фанера ламинированая Тополь (Китай)":) 1 Посилання на коментар Поділитися на інших сайтах More sharing options...
ol4ik Опубліковано: 26 серпня 2012 Поділитись Опубліковано: 26 серпня 2012 А Вы что весь дом будете лить из опалубки? Или я что то не так поняла? Посилання на коментар Поділитися на інших сайтах More sharing options...
Скрипка Александр Опубліковано: 26 серпня 2012 Автор Поділитись Опубліковано: 26 серпня 2012 А Вы что весь дом будете лить из опалубки? Или я что то не так поняла? это цоколь ,он весь будет отливаться т.к практически весь под землей , на первом и втором этаже из ,опалубки только несущие колонны , стены из ракушки. Посилання на коментар Поділитися на інших сайтах More sharing options...
Скрипка Александр Опубліковано: 30 серпня 2012 Автор Поділитись Опубліковано: 30 серпня 2012 сегодня съездил в Киевгаз на Киквидзе, очень приятное впечатление осталось .. и ценами тоже не напугали .. посмотрим что в итоге получится Посилання на коментар Поділитися на інших сайтах More sharing options...
mspacer Опубліковано: 30 серпня 2012 Поділитись Опубліковано: 30 серпня 2012 Судя по фото подбетонку не лили. Какая использовалась мембрана (производитель, цена) и выдержала ли без повреждений процесс укладки арматуры? Посилання на коментар Поділитися на інших сайтах More sharing options...
Скрипка Александр Опубліковано: 30 серпня 2012 Автор Поділитись Опубліковано: 30 серпня 2012 Судя по фото подбетонку не лили. Какая использовалась мембрана (производитель, цена) и выдержала ли без повреждений процесс укладки арматуры? какая то из эпицентра , что то совсем недорогое 0,5 толщиной , пленка выдержала спокойно ни одного разрыва 1 Посилання на коментар Поділитися на інших сайтах More sharing options...
РуководителЪ Опубліковано: 3 вересня 2012 Поділитись Опубліковано: 3 вересня 2012 Достаточно хороший проект. Не хватает гаража (ИМХО). Чуток настораживают оттенки Среднеземноморья, витающие и над этим домом. Пугают аналогиями с домом Доктора в процессе строительства. пысы: на когда планируете заливать стены цоколя? Посилання на коментар Поділитися на інших сайтах More sharing options...
Скрипка Александр Опубліковано: 3 вересня 2012 Автор Поділитись Опубліковано: 3 вересня 2012 стены заливаем завтра ,сегодня перерисовали второй этаж, увеличили площадь гостевой комнаты ,и одного су ,за счет уменьшения холла. 1 Посилання на коментар Поділитися на інших сайтах More sharing options...
РуководителЪ Опубліковано: 3 вересня 2012 Поділитись Опубліковано: 3 вересня 2012 стены заливаем завтра... Удачи в завтрашней заливке. Посилання на коментар Поділитися на інших сайтах More sharing options...
Скрипка Александр Опубліковано: 5 вересня 2012 Автор Поділитись Опубліковано: 5 вересня 2012 вчерашнее утро началось рано , в 7 00 бетононасос со стрелой уже был на участке , в 8 10 пришла первая машина , и бетон пошел . Т.К стены в трех уровнях заливали частями ,сначала нижний уровень , пока там бетон застывал заливали колонны , потом верхний уровень , и потом средний, нелегко хлопцам было бегать с бензиновыми вибраторами по лесам .. но справились . Не обошлось без небольшого прорыва , способ ликвидации очень похож на аварийное заделывание течи в подлодке . Доски, балки, домкраты, ведра , течь остановлена Вечером после заливки пришел спец с молотком Шмидта(спасибо Пропеллеру) проверить прочность бетона залитого месяц назад в плиту , как и ожидалось марка не соответствует заявленной прорабом , в итоге у меня на счету образовался депозит 17 000 грн. ну и фото Посилання на коментар Поділитися на інших сайтах More sharing options...
bora-b Опубліковано: 5 вересня 2012 Поділитись Опубліковано: 5 вересня 2012 в итоге у меня на счету образовался депозит 17 000 грн. Даже не знаю, поздравлять Вас или сочуствовать. "Деполюди" на сегодня звучит, как ругательное слово. Посилання на коментар Поділитися на інших сайтах More sharing options...
РуководителЪ Опубліковано: 5 вересня 2012 Поділитись Опубліковано: 5 вересня 2012 в итоге у меня на счету образовался депозит 17 000 грн. Депозит-это замечательно Но совсем понятно: от кого депозит нарисовался? От подрядчика или от поставщика бетона? Посилання на коментар Поділитися на інших сайтах More sharing options...
ДОКС Опубліковано: 5 вересня 2012 Поділитись Опубліковано: 5 вересня 2012 как и ожидалось марка не соответствует заявленной прорабом то есть - именно прораб "заявлял" марку бетона? или всё таки ГАП и ГИП? Посилання на коментар Поділитися на інших сайтах More sharing options...
Рекомендовані повідомлення
Створіть акаунт або увійдіть у нього для коментування
Ви маєте бути користувачем, щоб залишити коментар
Створити акаунт
Зареєструйтеся для отримання акаунта. Це просто!
Зареєструвати акаунтУвійти
Вже зареєстровані? Увійдіть тут.
Увійти зараз