Перейти до публікації
Пошук в
  • Додатково...
Шукати результати, які містять...
Шукати результати в...

Красивые дома

Aleks_inc

Рекомендовані повідомлення

Когда то, на форуме уже мелькала эта визуализация. Мне понравилась :).

 

Мене завжди цікавило навіщо архітектори роблять візуалізацію своїх проектів з верхьої точки? Вони хочуть зрозуміти чи сподобається богу запропонований проект?

Посилання на коментар
Поділитися на інших сайтах

Архитектор Андрей Тигунцев (Andrey Tiguntsev) представил потрясающий проект House on the Bay. Этот стеклянный дом был разработан специально для семьи из трех человек и возведен в Иркутской области, Россия. В очередной раз мы можем убедиться в том, что при грамотном проектировании даже абсолютная прозрачность не помеха приватности и комфорту.

SxoLbw6TOuE.jpg.ce0bb852f0d4ca41d29bf97f88b23340.jpg

hB1G1Tsz2OE.jpg.a7db04fae0d2570a081af381d25c648d.jpg

bL1ejmcS2K8.jpg.9d44e431496c50890c0343da6d2e0e81.jpg

mWyk9IsMC68.jpg.8aa5e2ab27144c2bef4c5d9735b1b333.jpg

1643621957_nvgh-LpjqF4(1).jpg.db356fdf5a7645b5f79eebfed136d230.jpg

PrNxJj7_9BY.jpg.79dfff042a1d8be21cabda52ed7105f6.jpg

uKrTIw1pcPc.jpg.32a4609c014247e53a52e16f6dff6685.jpg

2003647303_uIkIyv-59wc(1).jpg.25d43ab2a0a3eb629cc68af00f159d6e.jpg

1428492350_Q6eWw81Mfwc(1).jpg.952c803b10b4b56e8bc5c9f5d912c426.jpg

  • Лайк 2
Посилання на коментар
Поділитися на інших сайтах

Мене завжди цікавило навіщо архітектори роблять візуалізацію своїх проектів з верхьої точки? Вони хочуть зрозуміти чи сподобається богу запропонований проект?

ні, то для розуміння того, як буде виглядати покрівля)))

Посилання на коментар
Поділитися на інших сайтах

KseniaTannet, Понравился проект "Полукруг" чем навеяно?)

 

Добавлено через 1 минуту

По секрету- на сайте моем посмотрите- поймете о чем я

Посилання на коментар
Поділитися на інших сайтах

www.trulia.com/property/photos/3077716680-1356-South-Appomattox-Republic-MO-65738#item-0

 

Продаж готових будинків.

Не скільки цікавить "дизайн" як співвідношення комфортність/вартість у порівнянні з нашою реальністю.

Посилання на коментар
Поділитися на інших сайтах

Сейчас очень класная архитектура в Японии, из-за недостатка места он делают невозможное

_____________________________

С уважением Ксения. Сайт- tannet.com.ua/

1380379950_.thumb.jpg.2c906bca5d82e03775613c34e48a9788.jpg

1938081245_casanautica.thumb.jpg.703dd1bbce6f69e9d004bee71bd446ec.jpg

796818235_6.thumb.jpg.5b7519f9bd52df2a561dd1b506010d40.jpg

  • Лайк 1
Посилання на коментар
Поділитися на інших сайтах

Если Вы думаете ,что идея дома навеяна Вашим сайтом ,Вы ошибаетесь)

 

Ни в коем случае:)Мне интересно- как у Вас появились Такие идеи. И что для Вас радиусные кровли

Посилання на коментар
Поділитися на інших сайтах

Примерно такие же мотивы- плюс- оказались гораздо экономичней- во всех смыслах. Пришлось запатентовать)
Посилання на коментар
Поділитися на інших сайтах

Наверное технология выполнения данной крыши запатентована , но не сама идея полукруга.

Я смотрела сайт , очень интересные решения)

Посилання на коментар
Поділитися на інших сайтах

Не важно. В любом случае- именно Вас это не касается- в смысле каких бы то ни было ограничений. Я с симпатией отношусь к Вашим проектам :beer:

 

Добавлено через 37 секунд

За комплимант- спасибо)

Посилання на коментар
Поділитися на інших сайтах

Прикольные дома с полукруглыми крышами , смотрится класно:)

 

а где в них водосточка? а то представил на последней фотке потеки воды после дождя эдак в Мариуполе или Авдеевке Ж-):o

Посилання на коментар
Поділитися на інших сайтах

а где в них водосточка? а то представил на последней фотке потеки воды после дождя эдак в Мариуполе или Авдеевке Ж-):o

 

:) Она есть.

%C1%E5%E7%FB%EC%FF%ED%ED%FB%E9-1.jpg

Жестяная судя по всему. Обычно в таких домах делают скрытую водосточку, в колоннах или в других элементах. Но тут жесть в прямом смысле слова.

 

Ну и в этом доме водосточка вообще не нужна, как пример красивого дома из бетона.

Slit-House-9.jpg

1304365454-03-northeast.thumb.jpg.cbb0685ebe32a21fec106bee4e4a83d7.jpg

1304365464-01-southeast.thumb.jpg.ab25acdd91b62caf9c40a56dbb47b069.jpg

1304365481-04-southeast-facade.thumb.jpg.a6a8760c842268937c55fa75a22323a3.jpg

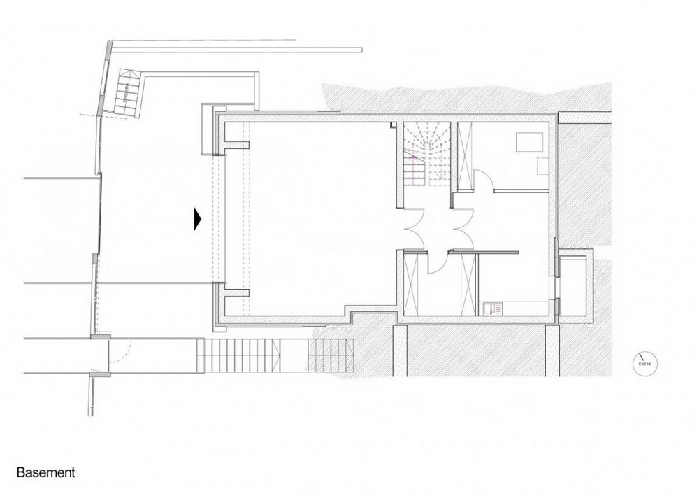
1304365546-basement-plan.thumb.jpg.f0ab1be7718e12a345e261db24091595.jpg

Змінено користувачем DVIJOK
  • Лайк 1
Посилання на коментар
Поділитися на інших сайтах

:) Она есть.

%C1%E5%E7%FB%EC%FF%ED%ED%FB%E9-1.jpg

Жестяная судя по всему. Обычно в таких домах делают скрытую водосточку, в колоннах или в других элементах. Но тут жесть в прямом смысле слова.

 

Ну и в этом доме водосточка вообще не нужна, как пример красивого дома из бетона.

Slit-House-9.jpg

Очень интересный дом, а где это и кто проектировал?

Посилання на коментар
Поділитися на інших сайтах

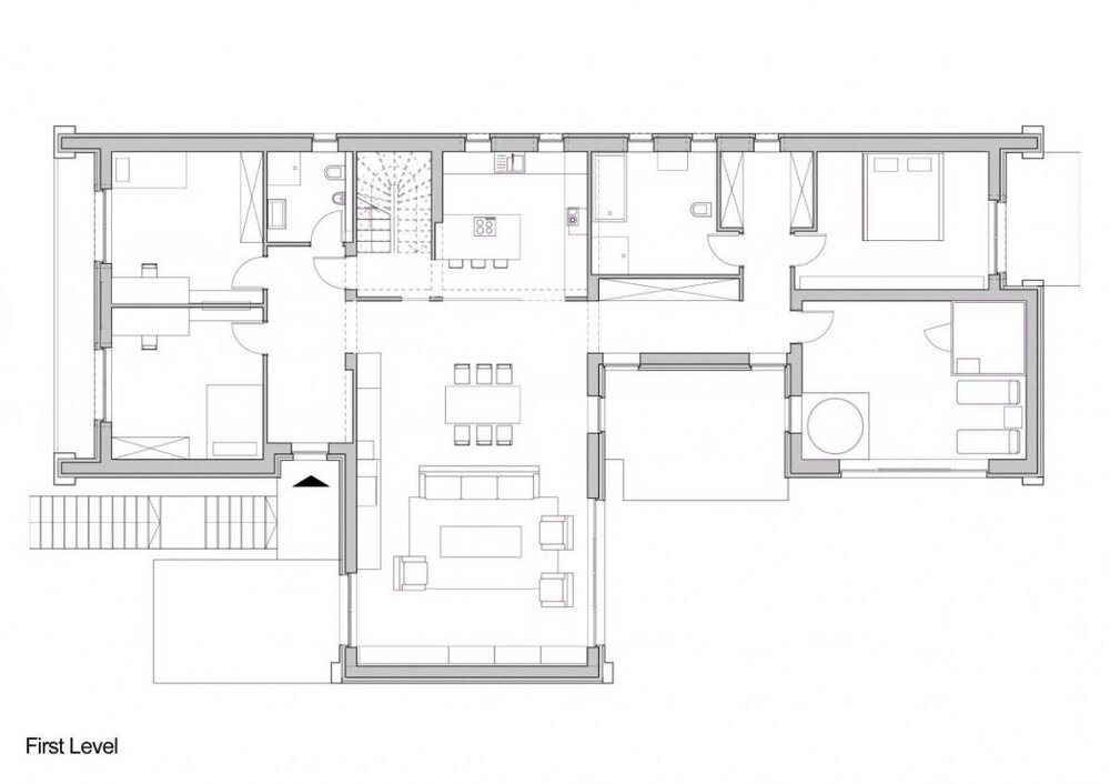
Расположенный на склоне холма с захватывающим видом на залив, дом состоит из трёх слоёв-уровней, каждый из которых смещается относительно предыдущего на шесть градусов. Переменная ориентация является ответом на различные ограничения, существующие на участке.

На первом этаже размещён гараж, комната для отдыха и одна спальня, на втором – общая зона с боковым бассейном, наверху – четыре спальни.

На крыше дома установлены солнечные батареи (общая мощность 4,2 кВт), есть большой резервуар для сбора дождевой воды и солнечные водонагреватели. Большие карнизы позволяют организовать в доме естественную вентиляцию.

Gordons-Bay-House-1.jpg.23e423ef8f7d8e28bc82a097f4af261d.jpg

Gordons-Bay-House-2.jpg.7ada38b411f37509525e916b64c9428d.jpg

Gordons-Bay-House-3.jpg.f3958d8327a5a71221e85920d8cbfb42.jpg

Gordons-Bay-House-4.thumb.jpg.47a8a938178cf0005955bba98b731448.jpg

Gordons-Bay-House-5.jpg.162076d5b8a9baa0c6a1302bb4e59f25.jpg

Gordons-Bay-House-6.jpg.e6416d55b9a461035dfec95ec6a82cf6.jpg

Gordons-Bay-House-8.thumb.jpg.d8e7bf131c5b3a9fd6779811f4b40e97.jpg

Gordons-Bay-House-9.jpg.731f349b3692132baf93fdcc2820142b.jpg

Gordons-Bay-House-11.thumb.jpg.9eb907062a8e9ade15f3f97bea165135.jpg

Gordons-Bay-House-13.jpg.60e1f28330da1c30429c35e95e5dba62.jpg

Gordons-Bay-House-15.thumb.jpg.82d5b818fb20d47a349c406b97acd926.jpg

Посилання на коментар
Поділитися на інших сайтах

Этот современный дом построен надавно на окраине одного из венгерских провинциальных городков.

Дом построен на участке с небольшим перепадом рельефа и эта особенность использована архитекторами по максимуму – со стороны входа он двухэтажный, а со стороны поля, расположенного за домом – одноэтажный.

Задачей архитекторов было совместить простоту, функционализм и традиции. В результате получился дом с простым синтаксисом и функциональной, хорошо зонированной планировкой. В наружной отделке использованы композитные листы.

R-House-1.thumb.jpg.95a34f02989b2759977b0833291ff94e.jpg

R-House-3.thumb.jpg.0e2de0c287353beda54de9c818baf570.jpg

R-House-5.thumb.jpg.0edc5fa07db6c0159ec07e4c2b5f8b95.jpg

R-House-7.thumb.jpg.99270eafdfb56156a363839a4adafaab.jpg

R-House-8.thumb.jpg.8c8fd46646a8c1ddfc43560855a15a53.jpg

R-House-9.thumb.jpg.74eeacbb1a511f4b92b3eba756c8ccc0.jpg

R-House-13.thumb.jpg.1b430b2175b634b6ac4915dbb056f2cf.jpg

R-House-14.thumb.jpg.03f62eea0591609459003a40f8fb0dc7.jpg

R-House-19.thumb.jpg.738c0b1b3ec4d17d55357b63ec54247d.jpg

R-House-20.thumb.jpg.48f677a0286a3c023c5148aba2ec7804.jpg

R-House-21.thumb.jpg.a152404a519fd92801704ad89bc4b310.jpg

R-House-22.thumb.jpg.97fafde1ef7be2755f86ef7559b7d1f0.jpg

R-House-23.thumb.jpg.4969cdcbbf80ebefadda5abf0f070428.jpg

R-House-24.thumb.jpg.067134b146425d24519b35687a9a14e6.jpg

R-House-25.thumb.jpg.2ad719f7a8f428d909e8162efd6075e1.jpg

Посилання на коментар
Поділитися на інших сайтах

Будинок, проект якого має назву “Anti Patio” створений компанією Drozdov&Partners і знаходиться в Харкові на переулку Дегтярному. Терасована ділянка розташована на східному схилі пагорба, з характерною для пентхауcа панорамою на 10-15 км.

 

Композиція з трьох контейнерів (по 60 м2 кожен) розмістилася на 2-х природних терасах. «Гостьовий контейнер» зайняв нижню. «Спальний контейнер» сперся на схил і «контейнер спільної зони» стоїть на верхній терасі. Через максимальне використання скла, відкривається вид з «села» в мегаполіс, з його димками і феєрверками. Проект реалізовано ще в 2003-2004 роках. Складно повірити, що щось подібне може бути в Україні. Живуть же люди!

1379146063_antipatio03(1).jpg.e917d4f339aeb53730ef7da3bf71e493.jpg

antipatio02.jpg.d6ded1c5f98b73daa047b6994a61f7e3.jpg

antipatio01.jpg.ae713343383311bdc35d8a1332d66e3a.jpg

antipatio04.jpg.87f32948d87c01add8a9093631bac156.jpg

antipatio06.jpg.5d5c61d157e4035ab1335db478e8ebc4.jpg

antipatio07.jpg.0236bfda51832d9013d6193fe762803c.jpg

antipatio08.jpg.a4af6873634ee300c576dcc6b457dbb3.jpg

antipatio09.jpg.70b9fbc1c03d34a6c922766c4206025d.jpg

antipatio10.jpg.182bc2e13da7da584bb137154645bbb3.jpg

antipatio11.jpg.68b11a0965a850dd8bfff935f9625084.jpg

antipatio14.jpg.2d71e87966acf2a7d13736125daa85bf.jpg

  • Лайк 4
Посилання на коментар
Поділитися на інших сайтах

месторасположение: ул.минская, г.харьков

функция: односемейный жилой дом

площадь: 671 м2

статус: реализован (2003-2006)

авторы: олег дроздов, александр поминчук, александр струлев

 

композиция состоит из двух блоков – блока гаража с гостевыми помещениями и блок основного дома. зависший на спускающемся к яру склоне кубический объем основного дома обращен к зеленому массиву. внутреннее пространство имеет форму квадрата, в центре которого расположено патио «зимнего сада», создающего трехслойную композицию. между «слоем» гостиной и «слоем» бассейна расположился «слой» тропического сада.

 

drozdov-partners.com/projects/54

n40qcr3.thumb.jpg.f690e36ff9c33546b8c45fa04c2a54ac.jpg

nfendm6.thumb.jpg.22daa49c2c32f41f725adf7607d99cf3.jpg

nvzwu8g.thumb.jpg.27f8b8cd4749f3caeb96e5b35ae9d19e.jpg

n2aypyz.thumb.jpg.db7bf286dca104aceca6d4725fcaf3ca.jpg

n9wlddu.thumb.jpg.b440923cab91c0d4a7780a7eceb67cce.jpg

Посилання на коментар
Поділитися на інших сайтах

а какой стиль нужен?

 

Дом привычной формы очертания (не кубик, не шарик, не дуга, не полусфера, не пирамида, не бункер, не свечка). А то начатая Вами тема перекосилась в сторону соревнования по современному бзику

  • Лайк 1
Посилання на коментар
Поділитися на інших сайтах

Створіть акаунт або увійдіть у нього для коментування

Ви маєте бути користувачем, щоб залишити коментар

Створити акаунт

Зареєструйтеся для отримання акаунта. Це просто!

Зареєструвати акаунт

Увійти

Вже зареєстровані? Увійдіть тут.

Увійти зараз
×
×
  • Створити...