Archist Опубліковано: 4 грудня 2011 Поділитись Опубліковано: 4 грудня 2011 Как и обещал вылаживаю измененную планировку по первому этажу, а также планировку второго этажа. ... Следующие планировки пожалуйста выкладывайте, а не вылаживайте (так поменьше лажи получается) По планировкам у меня предложение только одно: верните ширину дома 12 м (как в первом варианте), а длину чуть уменьшите. Это положительно скажется на пропорциях комнат, а то сейчас они слишком кишковатые. С лестницей не вижу больших проблем если сделать разные марши (первый длиннее, а второй короче). Посилання на коментар Поділитися на інших сайтах More sharing options...
-PVA- Опубліковано: 4 грудня 2011 Автор Поділитись Опубліковано: 4 грудня 2011 Уважаемые форумчане, есть еще один глобальный вопрос: мы хотим в доме погреб. Т.к. гараж и кладовка будут неотапливаемыми, то под ними мы хотим еще и погреб. Один знакомый архитектор сказал, что в нашем случае целесообразнее погреб строить отдельно от фундамента, т.е. не привязывать стены погреба и фундамент. Действительно ли это так? Ниже предлагаю эскиз примерного расположения погреба. Не уверен, что правильно нарисовал лестницу, поэтому учтите, что стрелка показывает спуск вниз в погреб с кладовой. Очень интересно услышать советы бывалых и знающих людей. Заранее спасибо. Посилання на коментар Поділитися на інших сайтах More sharing options...
Александр2008_111 Опубліковано: 5 грудня 2011 Поділитись Опубліковано: 5 грудня 2011 Можна, тільки стіни погреба і покриття повинні бути монолітними (армовані). Таким чином стіни утримуватимуть тиск від грунту під основним фундаментом, а покриття слугуватиме диском жорсткості. 1 Посилання на коментар Поділитися на інших сайтах More sharing options...
ПЛАСТИК Опубліковано: 5 грудня 2011 Поділитись Опубліковано: 5 грудня 2011 все двери, которые выходят на балкон будут скорее всего полностью стеклянными, про окно - не думал, а что без окна никак? Какая необходимость в окне? Представьте жилье где Вы сейчас живете без окон, ну а в место них двери на балкон. Пусть даже полностью остекленные. А может сделать два с/у на втором этаже, т.е. для родительской спальни сделать отдельный с/у (разделив имеющийся примерно на две части, сейчас там 7,5 м2, получим примерно по 3,75м2 каждый. Будет ли этого достаточно? В принципе, так было б правильно, при таком наборе помещений на втором этаже. Но Ваши 7.5 метров, если делить пополам, по ширине будет по 1.3м что несколько маловато, хотя возможно. Выше предлагалось немного изменить пропорции дома, чтоб избавиться от длинных и узких помещений. Думаю стоит попробовать. Посилання на коментар Поділитися на інших сайтах More sharing options...
-PVA- Опубліковано: 5 грудня 2011 Автор Поділитись Опубліковано: 5 грудня 2011 Можна, тільки стіни погреба і покриття повинні бути монолітними (армовані). Таким чином стіни утримуватимуть тиск від грунту під основним фундаментом, а покриття слугуватиме диском жорсткості. Олександр, дякую що приєдналися до обговорення. Таким чином і знайдемо рішення для мого варіанту. То якщо можливо зробити стіни погрібу - які будут переходити в фундамент - то я вважаю такий варіант найкращим, тому що коли я думав як робити цей погріб окремо від фундаменту, то в мене виникли деякі питання, а саме: якщо ми спочатку робимо фундамент, а потім окремо вириваємо яму для погрібу - то можливо нам будет недостатньо простору для того, щоб якісно зробити гідроізоляцію стін погрібу, тому що між стінами погрібу і фундаментом дому залишиться близько 1 м, тому варіант коли погруб буде монолітом з фундаментов - більше підходить (хоча це лише мої, непрофесійні, роздуми). Посилання на коментар Поділитися на інших сайтах More sharing options...
-PVA- Опубліковано: 5 грудня 2011 Автор Поділитись Опубліковано: 5 грудня 2011 Представьте жилье где Вы сейчас живете без окон, ну а в место них двери на балкон. Пусть даже полностью остекленные. Ну, немного не согласен, хотя сомнения Вы посеяли , но вот единственно чем я располагаю это кратинки похожих вариантов с балконами, вот они: 1.bmp 4.bmp 5.bmp Вот насмотревшись таких картинок я и принял решение о дверях на балкон без окон , может в этих картинках что не так? В принципе, так было б правильно, при таком наборе помещений на втором этаже. Но Ваши 7.5 метров, если делить пополам, по ширине будет по 1.3м что несколько маловато, хотя возможно. Выше предлагалось немного изменить пропорции дома, чтоб избавиться от длинных и узких помещений. Думаю стоит попробовать. Мда, идея с расширением дома уже довольно явно появляется на горизонте, наверно скорее всего так и сделаем, а т.е. расширим дом с 10 м до 11м, а может и до 12 м. Будем посмотреть. Посилання на коментар Поділитися на інших сайтах More sharing options...
ПЛАСТИК Опубліковано: 5 грудня 2011 Поділитись Опубліковано: 5 грудня 2011 Вот насмотревшись таких картинок я и принял решение о дверях на балкон без окон , может в этих картинках что не так? Мансардные окна, Вы за окна, я так понял, не считаете Посилання на коментар Поділитися на інших сайтах More sharing options...
seyvalter Опубліковано: 5 грудня 2011 Поділитись Опубліковано: 5 грудня 2011 А віщо балкон з дитячої? щоб дитина перед сном на перекур виходила чи що? Скільки проектував будинків з балконами - практично всі потім використовують їх для складування банок-склянок сі т.д. Балкон краде площу кімнати за рахунок влаштування лишнього проходу, і головне- НАВІЩО ВІН якщо є двір? ИМХО... Посилання на коментар Поділитися на інших сайтах More sharing options...
Artyomovets Опубліковано: 5 грудня 2011 Поділитись Опубліковано: 5 грудня 2011 балкон может быть оправдан, когда он исполняет функцию навеса над входом. 1 Посилання на коментар Поділитися на інших сайтах More sharing options...
-PVA- Опубліковано: 5 грудня 2011 Автор Поділитись Опубліковано: 5 грудня 2011 Мансардные окна, Вы за окна, я так понял, не считаете Ну, не то, чтобы не считал но во внимание точно не взял спасибо за внимательность. Но, все же у нас без окна получается только комната, которая посередине, возможно стоит подумать о окне только для данной комнаты? Хотя у нас также ходят идеи о том, чтобы комнату посередине сделать вообще без двери на балкон, т.е. оставить вместо двери окно. Двери на балкон будут только из крайних комнат. Посилання на коментар Поділитися на інших сайтах More sharing options...
ПЛАСТИК Опубліковано: 5 грудня 2011 Поділитись Опубліковано: 5 грудня 2011 Но, все же у нас без окна получается только комната, которая посередине, возможно стоит подумать о окне только для данной комнаты? Хотя у нас также ходят идеи о том, чтобы комнату посередине сделать вообще без двери на балкон, т.е. оставить вместо двери окно. Двери на балкон будут только из крайних комнат. Ну так я же изначально, только о этой комнате и говорил Незнаю даже что хуже: дверь на балкон из комнаты но без окна, или балкон под окном без возможности на него выйти из комнаты:D Посилання на коментар Поділитися на інших сайтах More sharing options...
-PVA- Опубліковано: 5 грудня 2011 Автор Поділитись Опубліковано: 5 грудня 2011 балкон может быть оправдан, когда он исполняет функцию навеса над входом. В точку! Действительно балкон в данном случае будет выполнять функцию навеса - это раз, а два - он будет выполнять декоративную функцию, а т.е. это радость жильцов от созерцания сего выпендрежа под названием балкон . Посилання на коментар Поділитися на інших сайтах More sharing options...
-PVA- Опубліковано: 5 грудня 2011 Автор Поділитись Опубліковано: 5 грудня 2011 Ну так я же изначально, только о этой комнате и говорил Незнаю даже что хуже: дверь на балкон из комнаты но без окна, или балкон под окном без возможности на него выйти из комнаты:D :D:D:D Улыбнуло, хотя если честно, то вот я например не вижу сильно большой разницы между окном от пола и полностью стеклянной дверью на балкон. В чем весь смак отличия окна от двери (при условии одинаковых размеров)? Посилання на коментар Поділитися на інших сайтах More sharing options...
Archist Опубліковано: 5 грудня 2011 Поділитись Опубліковано: 5 грудня 2011 :D:D:D Улыбнуло, хотя если честно, то вот я например не вижу сильно большой разницы между окном от пола и полностью стеклянной дверью на балкон. В чем весь смак отличия окна от двери (при условии одинаковых размеров)? Во-первых дверь будет тупо дороже. Во-вторых окно еще и для проветривания (и микропроветривания) используется. Посилання на коментар Поділитися на інших сайтах More sharing options...
Мечты сбываются Опубліковано: 5 грудня 2011 Поділитись Опубліковано: 5 грудня 2011 Как и обещал вылаживаю измененную планировку по первому этажу, а также планировку второго этажа. [ATTACH]149895[/ATTACH] По первому этажу в основном изменений нет, только немного увеличили топочную по совету форумчан. [ATTACH]149896[/ATTACH] По второму этажу думаю все понятно, но есть некоторые моменты, которые я оговорю: 1. комната для хобби №28 - данная комната будет располагаться над гаражом, и она будет в чердачном пространстве, т.е. крыша над гаражом будет ниже, чем крыша дома (т.е. конек крыши будет ниже), и вот как раз в этом пространстве гаражного чердака и будет находиться комната для различных занятий типа: возможно это будет мастерская по дереву, возможно это будет спортзал, возможно там будет стоять швейная машина и т.д., эта комната нужна нам, т.к. мы с супругой любим всякие самоделки 2. балкон - планируется один общий на три комнаты, т.е. комнаты №23, 24, 25 будут иметь с южной стороны не окна, а двери, которые будут вести на балкон. Форма балкона будет почти как на эскизе, т.е. это будет похоже на полуовал с кованными перилами. Балкон будет выполнять косвенную функцию защитного экрана от летнего полуденного солнца. 3. С/у №26 - вход с родительской спальни в с/у пока под вопросом, мы думаем стоит ли иметь отдельный вход, если основной вход в с/у будет совсем рядышком, поэтому эта дверь пока под вопросом. Если у Вас, уважаемые форумчане, есть идеи по моим планировкам - милости просим отписываться тут же, будем очень Вам признательны за новые идеи и мысли. Заранее спасибо. Комната для хобби находится в правильном месте. Балкон. Вы должны в первую очередь ответить себе - нужен ли он Вам...так как его обустройство встанет в копеечку, а пользоваться Вы им будете редко...ну разве, что если Вы заядлый курильщик и без сигареты не видите себя ни минуты... Если Вы посмотрите мою ветку с проектом (www.stroimdom.com.ua/forum/showthread.php?p=1298821#post1298821)...который уже финализирован,...то увидите, что в начале с/у был в родительской спальне...но взвесив все за и против, конкретно по моему проекту...я отказался от этого в сторону одного достаточно большого с/у общего и думаю это правильно! Просмотрев проект - думаю Вы также много найдёте интересных варианций...так как я этот проект просто "родил", если так можно сказать...после долгих дебатов и обсуждений сдесь на форуме, с архитектором и т.д. На 2-м этаже обязательно должно быть 3 детских??? почему спрашиваю...потому что сам точно также вначале планировал...а потом переделал и очень доволен, что переделал... Сколько детей у Вас сейчас, их пол и возраст? Напишите, исходя из этого можно 2-й этаж кардинально переделать и сделать более удобным и логичным...)) :drinks: Если что пишите...буду рад поделиться своими мыслями. Посилання на коментар Поділитися на інших сайтах More sharing options...
Ernst Опубліковано: 5 грудня 2011 Поділитись Опубліковано: 5 грудня 2011 могу ли я расчитывать на Ваше почтение и советы по тому, как улучшить имеющиеся наработки? Моя темка находиться здесь: www.stroimdom.com.ua/forum/showthread.php?p=1299498#post1299498 Как и обещал вылаживаю измененную планировку по первому этажу, а также планировку второго этажа. Ну во-первых для того, чтобы дать более-менее связные комментарии, хорошо было бы увидеть генплан участка, застройку близлежащих участков (в первую очередь, для того, чтобы понять, почему форма дома выбрана именно такой - вытянутой с севера на юг - с точки зрения энергосбережения - более выгодной была бы форма вытянутая с востока на запад (чтобы южная сторона была по-длиннее...). Кроме того - хотелось бы увидеть разрезы и фасады дома - так как сейчас еще не понятно, какую форму3 получает весь дом. Если Вы претендуете на создание энерговыгодной планировки, то балконы как пробивание теплового барьера (с выходом плиты перекрытия в наружу - это неприемлемое решение (они должны стоять на собственных опорах) желательно делать также тепловой барьер (деформационный шов и слой утепления) между домом и холодным гаражем, Вы же гараж отапливать не собираетесь? или как?... в связи с этим тоже не совсем понятно какова будет комната хобби? много вопросов... 2 Посилання на коментар Поділитися на інших сайтах More sharing options...
-PVA- Опубліковано: 6 грудня 2011 Автор Поділитись Опубліковано: 6 грудня 2011 Ну во-первых для того, чтобы дать более-менее связные комментарии, хорошо было бы увидеть генплан участка, застройку близлежащих участков (в первую очередь, для того, чтобы понять, почему форма дома выбрана именно такой - вытянутой с севера на юг - с точки зрения энергосбережения - более выгодной была бы форма вытянутая с востока на запад (чтобы южная сторона была по-длиннее...). Мда, получается что дом вытянут с севера на юг, хотя изначально мы проектировали дом в виде квадрата (понимаем, что идеальным вариантов был бы шар но вот следующий после шара - это куб, вот поэтому мы выбрали квадрат в основании), т.е. 10м х 10м, причем сам дом (10х10) разделен таким образом, что с северной стороны мы расположили всякие хоз. помещения, с южной стороны - жилые комнаты), потом с северной стороны мы еще дополнительно присоеденили хоз.блок (т.е. гараж с кладовкой и комната-хобби), причем гараж с кладовкой планируються необогреваемыми, а комната-хобби - обогреваемой, но не постоянно, возможно там будем держать температуру на уровне +15...+18С. Ниже прилагаю примерный эскиз того, как будет распределяться температура в помещениях (это я так представляю себе, прошу не судить строго ). Ниже привожу снимок со спутника с контуром участка, а также контур участка из держ. акта: Также у меня в альбоме есть фото, сделанные на участке. Если нужны какие-то конкретно - могу выложить тут же в ветке. Кроме того - хотелось бы увидеть разрезы и фасады дома - так как сейчас еще не понятно, какую форму3 получает весь дом. К сожалению пока ни фасадов, ни разрезов нет. Если Вы претендуете на создание энерговыгодной планировки, то балконы как пробивание теплового барьера (с выходом плиты перекрытия в наружу - это неприемлемое решение (они должны стоять на собственных опорах) По балкону с Вами согласен на 100%, тут будем думать что делать: или балкон отдельно от конструкции дома (чтобы он не был тепловым мостиком), или делаем полную изоляцию этой самой балконной плиты, т.е. со всех сторон её изоляцией, например пенопласт 50 мм. желательно делать также тепловой барьер (деформационный шов и слой утепления) между домом и холодным гаражем, Вы же гараж отапливать не собираетесь? или как?... в связи с этим тоже не совсем понятно какова будет комната хобби? Гараж не собираемся отапливать. Комнату хобби - собираемся , но особых требований к высокой температуре нет, скорее всего это будет на уровне +15...+18 С. А вот довольно интересно Ваше рассуждение о тепловом барьере между домом и гаражом, над этим пока вообще не думали, хотя сейчас я вижу возможные тепловые мостики от гаража в дом. Нужно будет поискать, что представляет из себя этот барьер. Пока не готов обсуждать. Но, в любом случае спасибо за Ваши идеи, которые привнесли и открыли новые вопросы, ну а вопросы - и ответы на них до начала стройки - это очень хорошо (тут как в народной мудрости: семь раз отмерь...) , еще раз спасибо. Посилання на коментар Поділитися на інших сайтах More sharing options...
-PVA- Опубліковано: 12 грудня 2011 Автор Поділитись Опубліковано: 12 грудня 2011 Татьяна, подскажите пожалуйста какие материалы стен лучше использавать с глинянной штукатуркой и излучающими стенами: 1. газобетон на клею (375-400мм) + глянянная штукатурка + излучающие стены 2. ракушняк на растворе (375-400мм) + глянянная штукатурка + излучающие стены 3. керамический блок на растворе (375-400мм) + глянянная штукатурка + излучающие стены Дополнительной специальной изоляции снаружи - не будет, возможно только специальная изолирующая наружная штукатурка. В данном случае волнует тот момент, что если использовать ракушняк или газобетон, то при насыщении глинянной штукатурки влагой будут также насыщаться и сами стены (т.е. ракушняк или газобетон), так вот не будет ли это негативно сказываться? (знаю, что оба этих материала не любят лишнее увлажнение). Посилання на коментар Поділитися на інших сайтах More sharing options...
-PVA- Опубліковано: 14 грудня 2011 Автор Поділитись Опубліковано: 14 грудня 2011 Здравствуйте, уважаемые форумчане! Прокоментируете пожалуйста вариант крыши, в данном случае интересуют следующие моменты: 1. сложность исполнения; 2. бюджетная ориентировочная стоимость (материалы + работы); 3. обслуживание (стоимость, практичность); 4. другие возможные проблемы/идеи/замечания/советы. Крыша планируется с утеплителем 200-300 мм. Материал кровли - битумная черипица. Заранее спасибо за ответы. Посилання на коментар Поділитися на інших сайтах More sharing options...
-PVA- Опубліковано: 15 грудня 2011 Автор Поділитись Опубліковано: 15 грудня 2011 А также, уважаемые форумчане, выкладываю планировки этажей (для понимания всей картины): 1 этаж: 2 этаж (мансардный): Заранее спасибо за комментарии. Посилання на коментар Поділитися на інших сайтах More sharing options...
Маниша Опубліковано: 18 грудня 2011 Поділитись Опубліковано: 18 грудня 2011 1. Гардеробная, которая была под номером 3 переведенна в топочную, правда я не уверен, что будет достаточно площади, т.к. согласно норм на 30кВт мощности котла вроде нужно около 7,5 м2, а на данный момент получается только чуть болье 6м2. По нормам топочная на один прибор 30кВт ндолжна быть не менее 9 м3(кубических) и окно не менее определенного размера(сходу не вспомню). Так что умножайте свои 6м2 на высоту - и думаю, что однозначно поместитесь. 2 Посилання на коментар Поділитися на інших сайтах More sharing options...
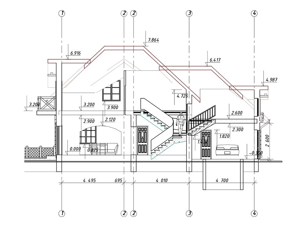
Ernst Опубліковано: 4 січня 2012 Поділитись Опубліковано: 4 січня 2012 Прокоментируете пожалуйста вариант крыши, в данном случае интересуют следующие моменты: 1. сложность исполнения; 2. бюджетная ориентировочная стоимость (материалы + работы); 3. обслуживание (стоимость, практичность); 4. другие возможные проблемы/идеи/замечания/советы. Крыша планируется с утеплителем 200-300 мм. Материал кровли - битумная черипица. Каждый внутренний угол на крыше - это удорожание крыши сейчас и проблема в будущем. Внутренние углы обычно начинают протекать при плохом исполнении - через 2-3 года - при качественном - через 10.... но все равно - их лучше избегать. К тому же наличие внутренних углов на крыше уменьшает энерговыгодность формы здания. 1 Посилання на коментар Поділитися на інших сайтах More sharing options...
Ernst Опубліковано: 4 січня 2012 Поділитись Опубліковано: 4 січня 2012 Мда, получается что дом вытянут с севера на юг, хотя изначально мы проектировали дом в виде квадрата (понимаем, что идеальным вариантов был бы шар но вот следующий после шара - это куб, вот поэтому мы выбрали квадрат в основании), т.е. 10м х 10м, причем сам дом (10х10) разделен таким образом, что с северной стороны мы расположили всякие хоз. помещения, с южной стороны - жилые комнаты), потом с северной стороны мы еще дополнительно присоеденили хоз.блок (т.е. гараж с кладовкой и комната-хобби), причем гараж с кладовкой планируються необогреваемыми, а комната-хобби - обогреваемой, но не постоянно, возможно там будем держать температуру на уровне +15...+18С. Ниже прилагаю примерный эскиз того, как будет распределяться температура в помещениях (это я так представляю себе, прошу не судить строго ). принципиально - мысль правильная - но основной смысл энерговыгодного здания - в том, чтобы "брать" бесплатную солнечную энергиию - "заводить" ее с помощью архитектуры в дом - и использовать внутри. Для этого необходимо сделать южный фасад максимально остекленным - так как именно через него эта солнечная энергия может "войти" в дом. А север - желательно делать вообще глухим (зачем ВАм такое огромное окно в гараже? и может и мастерскую не стоит остеклять с севера? Описанная ВАми разнича температур может возникнуть только если юг будет действительно - как теплица полностью остеклен. А с севера - тепловых притоков через окна не бывает. следовательно - желательно не иметь там остекления - так как - это только тепловые потери. 1 Посилання на коментар Поділитися на інших сайтах More sharing options...
Ernst Опубліковано: 4 січня 2012 Поділитись Опубліковано: 4 січня 2012 Татьяна, подскажите пожалуйста какие материалы стен лучше использавать с глинянной штукатуркой и излучающими стенами: 1. газобетон на клею (375-400мм) + глянянная штукатурка + излучающие стены 2. ракушняк на растворе (375-400мм) + глянянная штукатурка + излучающие стены 3. керамический блок на растворе (375-400мм) + глянянная штукатурка + излучающие стены Дополнительной специальной изоляции снаружи - не будет, возможно только специальная изолирующая наружная штукатурка. В данном случае волнует тот момент, что если использовать ракушняк или газобетон, то при насыщении глинянной штукатурки влагой будут также насыщаться и сами стены (т.е. ракушняк или газобетон), так вот не будет ли это негативно сказываться? (знаю, что оба этих материала не любят лишнее увлажнение). а почему не будет дополнительного утепления снаружи? Зачем тогда утепление на крыше 200-300 мм??? все ограждающие конструкции дома должны иметь почти одинаковую теплопроводность (крыша - на 10-20 % больше). Но не в 2-3 раза больше! такие перепады череваты смещением точки росы в местах соединения разных конструкций ... соответственно - выпадением росы и ростом грибков, в наихудшем случае. если в любом случае не хотите брать наилучший вариант - полнотелый кирпич + наружное утепление - тогда - берите керамблоки. 1 Посилання на коментар Поділитися на інших сайтах More sharing options...
-PVA- Опубліковано: 5 січня 2012 Автор Поділитись Опубліковано: 5 січня 2012 Татьяна, большое спасибо за Ваши ответы и комментарии, ниже представляю Вам свои: Каждый внутренний угол на крыше - это удорожание крыши сейчас и проблема в будущем. Внутренние углы обычно начинают протекать при плохом исполнении - через 2-3 года - при качественном - через 10.... но все равно - их лучше избегать. К тому же наличие внутренних углов на крыше уменьшает энерговыгодность формы здания. Я понимаю недостатки такой крыши, но к сожалению такой вариант (с всякими голубятнями и внутренними углами) нам очень сильно нравиться визуально, поэтому мы сознательно идем на удорожание ради нашего эстетического удовлетворения. К гидроизоляции внутренних углов подойдем очень и очень серьезно. Интересно провести опрос среди владельцев схожих крыш на наличие протечек. Вот уже и создал - www.stroimdom.com.ua/forum/showthread.php?t=85752 ...Для этого необходимо сделать южный фасад максимально остекленным... Поможет ли нам увеличение окон на эжной стороне дома например с ширины 1,5м до 2,0м при равной высоте? Или это очень не значительное увеличение и смысла в нем существенного нет (с точки зрения увеличения пропускной способности окон)? ...А север - желательно делать вообще глухим (зачем ВАм такое огромное окно в гараже? и может и мастерскую не стоит остеклять с севера? В гараже обязательно сделаем маленькие окна, возможно это будут стеклянные блоки, ну или очень маленькие окна. Они главным образом нужны для того, чтобы был хоть какой-то искуственный свет, любоваться окружающим видом через окна в гараже никто не будет. ...и может и мастерскую не стоит остеклять с севера? А вот про мастерскую - то в данном случае окно стоит на север не принципиально, тут рассположение продиктованно моими ощущениями, хотя я даже и объяснить не могу толком зачем оно на север Описанная ВАми разнича температур может возникнуть только если юг будет действительно - как теплица полностью остеклен. Эта разница температур показанна при условии исскуственного отопления, т.е. расспределение температур при учете центрального отопления. а почему не будет дополнительного утепления снаружи? Зачем тогда утепление на крыше 200-300 мм??? все ограждающие конструкции дома должны иметь почти одинаковую теплопроводность (крыша - на 10-20 % больше). Но не в 2-3 раза больше! такие перепады череваты смещением точки росы в местах соединения разных конструкций ... соответственно - выпадением росы и ростом грибков, в наихудшем случае. если в любом случае не хотите брать наилучший вариант - полнотелый кирпич + наружное утепление - тогда - берите керамблоки. Не будет доп. изоляции на наружных стенах, т.к. думаю, что газобетона в 400 мм + специальной наружной теплоизолиующей штукатурки будет достаточно (я так думаю, но расчетов пока не делал, позже сделаю и размещу здесь). Кроме этого мне не нравиться когда стена с наружной стороны как-бы пустотелая (ну это если на ней изоляция и вот при постукивании по изоляции есть чувство пустотелости), хотя это только мое личное субъективное ощущение, думаю нужно с ним бороться и принимать более рациональные решения 200 мм мин. ваты на крыше - т.к. крыша сама по себе является плохим теплоизолятором, и поэтому думаю нужно изолировать. Не уверен про то, что разница будет составлять 2-3 раза, опять же таки - нужны расчеты (позже сделаю). Керамоблоки также интересны для меня, но цена по сравнению с газоблоком довольно кусючая , но мы пока думаем. Посилання на коментар Поділитися на інших сайтах More sharing options...
Рекомендовані повідомлення
Створіть акаунт або увійдіть у нього для коментування
Ви маєте бути користувачем, щоб залишити коментар
Створити акаунт
Зареєструйтеся для отримання акаунта. Це просто!
Зареєструвати акаунтУвійти
Вже зареєстровані? Увійдіть тут.
Увійти зараз