Cvetikraa Опубліковано: 30 вересня 2011 Автор Поділитись Опубліковано: 30 вересня 2011 Вообще планировка мне нравится, а Вы не пробовали чуток уменьшить кухню для того что бы минимализировать этот угол, а дверь из кухни сделать в гостинную, так и еду гостям удобно носить. Я вот вообще эту стенку в своей планировке убрала, а по середине поставила стол и получилась гостинная-столовая, мне кажется что и Вам приятней будет когда Вы на кухне, а семья в гостинной и между Вами нет стены, но это мое личное пожелание было раз уж мы собрались строиться, то и кухню сделать "неквартирного" варианта, если рассматриваете такой дизайн, то попробуйте!Удачи! Дверь между гостинной и кухней - для меня очень важно, я очень люблю готовить, и запахи, который могут быть приятны или неизбежны для кухни, для остальной квартиры неприемлимы, например запах жаренных котлет, или подгоревшая сковорода. И никакая вытяжка не способна справиться с распространением запаха по квартире через открытые двери. Проверено на своей квартире. Но поскольку это дело вкуса, то и выбирает каждый сам для себя, и нельзя сказать - как правильно. А на счет уменьшения кухни - то нехочу уменьшать ни на метр Это личное. Сейчас у меня кухня 8 м2, очень много техники, которую я опять таки люблю использовать постоянно, и ничего не влазит. А при наличии троих дверей из кухни - уменьшать, то особо и некуда. А небольшая столовая от этого будет только уютнее Посилання на коментар Поділитися на інших сайтах More sharing options...
Cvetikraa Опубліковано: 30 вересня 2011 Автор Поділитись Опубліковано: 30 вересня 2011 А муж меня наоборот убедил сделать, красный дом, черная крыша и былая подшивка и некоторые элементы на фасаде, типа ярко! А фотографии есть? Очень интересно, как это выглядит Посилання на коментар Поділитися на інших сайтах More sharing options...
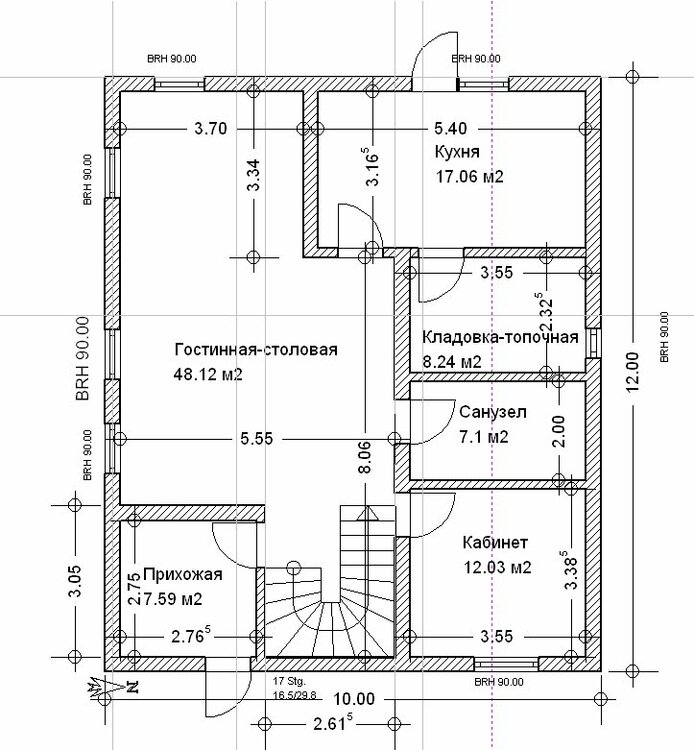
Телесистемы Опубліковано: 4 жовтня 2011 Поділитись Опубліковано: 4 жовтня 2011 Отапливать планируем газ + твердотопливный котел. простите, а куда вы планируете поместить твердотопливный котел? в котельную размером 6 квадратов? а топливо пыльное, грязное как туда думаете носить? через прихожую, гостинную, кухню..?у вас за сезон все углы будут оббиты и двери поцарапаны, и пол ,возможно,тоже. Посилання на коментар Поділитися на інших сайтах More sharing options...
aleks.recluse Опубліковано: 4 жовтня 2011 Поділитись Опубліковано: 4 жовтня 2011 простите, а куда вы планируете поместить твердотопливный котел? в котельную размером 6 квадратов? а топливо пыльное, грязное как туда думаете носить? через прихожую, гостинную, кухню..?у вас за сезон все углы будут оббиты и двери поцарапаны, и пол ,возможно,тоже. Носить можно через кухню. а почему ТТ не поместиться в 6 м2 ? там сам ТТ порядка 1-1,2 + расстояние до газовой горелки 2 м ... вроде все получается Посилання на коментар Поділитися на інших сайтах More sharing options...
flacon Опубліковано: 4 жовтня 2011 Поділитись Опубліковано: 4 жовтня 2011 Дверь между гостинной и кухней - для меня очень важно, я очень люблю готовить В таком случае стоит подумать о том, где что вы будете в кухне располагать, с учетом что на двух длинных стенах либо две двери, либо дверь и окно... Посилання на коментар Поділитися на інших сайтах More sharing options...
Cvetikraa Опубліковано: 4 жовтня 2011 Автор Поділитись Опубліковано: 4 жовтня 2011 В таком случае стоит подумать о том, где что вы будете в кухне располагать, с учетом что на двух длинных стенах либо две двери, либо дверь и окно... Ну, мне кажется, что длинные стены - достаточно длинные: 5,5 метров, и разместить на них можно тоже много, тем более что окно - не помеха ни рабочей поверхности, ни посудомойке, ни кухонному мягкому уголку (как для примера, что может быть под окном). А носить тт предполагается через кухню, дверь как раз напротив, носить совсем не далеко, да и то задумано как резерв, основная ставка делается на газ. Посилання на коментар Поділитися на інших сайтах More sharing options...
Телесистемы Опубліковано: 5 жовтня 2011 Поділитись Опубліковано: 5 жовтня 2011 а почему ТТ не поместиться в 6 м2 ? там сам ТТ порядка 1-1,2 + расстояние до газовой горелки 2 м ... вроде все получается обычно у тт котлов спереди выгреб золы, по бокам прочистки теплообменника, сзади присоединение дымохода. поэтому необходимо обеспечить свободное пространство минимум 0,5 м с каждой стороны, т.е. для 18-20квт котла занимаемая площадь примерно 2х2 метра , плюс добавьте сюда обвязку котла, а если еще и учесть ,что в этой же котельной будет газовый котел, бойлер, то кладовая тут уже совсем никак не вяжется. А носить тт предполагается через кухню, дверь как раз напротив, носить совсем не далеко, да и то задумано как резерв, основная ставка делается на газ. в морозы за сутки на вашу площадь необходимо порядка 100 кг топлива, мне просто интересно как вы себе представляете заносить в котельную.. да, еще небольшое замечание: дверь в котельную по нормам размещения газовых приборов должна открываться наружу. в общем ,советую увеличить котельную-кладовую за счет с/у - на первом этаже он всеравно гостевой. а лучше было бы еще "поиграться" расположением, дверь в санузел прямо из гостинной в двух метрах от диванчика с гостями не очень феншуйно.)) входные двери на кухне переместить напротив внутренних, а окно на кухне убрать на другую стену и увеличить, для 17 квадратов такого окошка как у вас очень мало. и в прихожей добавить окно, или делать входную дверь со стеклом. . 3 Посилання на коментар Поділитися на інших сайтах More sharing options...
Cvetikraa Опубліковано: 5 жовтня 2011 Автор Поділитись Опубліковано: 5 жовтня 2011 обычно у тт котлов спереди выгреб золы, по бокам прочистки теплообменника, сзади присоединение дымохода. поэтому необходимо обеспечить свободное пространство минимум 0,5 м с каждой стороны, т.е. для 18-20квт котла занимаемая площадь примерно 2х2 метра , плюс добавьте сюда обвязку котла, а если еще и учесть ,что в этой же котельной будет газовый котел, бойлер, то кладовая тут уже совсем никак не вяжется. Да, я уже думаю над тем, чтобы увеличить плащадь этого помещения за счет уменьшения кабинета, ведь вход в кабинет можно расположить и под верхней частью лестницы. Ну наверное где-то так, а на счет дверей - то я еще буду думать... А газовый котел, из практики родителей, занимает совсем мало места, особенно если это новые модели котолов. Посилання на коментар Поділитися на інших сайтах More sharing options...
Artyomovets Опубліковано: 5 жовтня 2011 Поділитись Опубліковано: 5 жовтня 2011 что вы в кладовке с двумя котлами хранить собрались? как по мне - для продуктов там некомильфо атмосферка будет. т.е. выход из кухни - не совсем оправдан. 1 Посилання на коментар Поділитися на інших сайтах More sharing options...
Телесистемы Опубліковано: 5 жовтня 2011 Поділитись Опубліковано: 5 жовтня 2011 А газовый котел, из практики родителей, занимает совсем мало места, особенно если это новые модели котолов. еще бойлер, возможно гидроаккумулятор,система очистки воды.. у меня в котельной еще и постирочная - там тепло, сухо - зимой все быстро сохнет. 1 Посилання на коментар Поділитися на інших сайтах More sharing options...
Cvetikraa Опубліковано: 5 жовтня 2011 Автор Поділитись Опубліковано: 5 жовтня 2011 еще бойлер, возможно гидроаккумулятор,система очистки воды.. у меня в котельной еще и постирочная - там тепло, сухо - зимой все быстро сохнет. что вы в кладовке с двумя котлами хранить собрались? как по мне - для продуктов там некомильфо атмосферка будет. т.е. выход из кухни - не совсем оправдан. Мда.. над этим я и не подумала. продукты - и топочная.. И ванну можно действительно не делать большую, а стиральную машину убрать в топочную.. Пошла думать, все таки кладовку и топочную лучше бы разделить... Посилання на коментар Поділитися на інших сайтах More sharing options...
Телесистемы Опубліковано: 5 жовтня 2011 Поділитись Опубліковано: 5 жовтня 2011 имхо, в гостевом санузле для душкабины, умывальника и унитаза/писсуара вполне достаточно 4м2 Посилання на коментар Поділитися на інших сайтах More sharing options...
Cvetikraa Опубліковано: 5 жовтня 2011 Автор Поділитись Опубліковано: 5 жовтня 2011 еще бойлер, возможно гидроаккумулятор,система очистки воды.. у меня в котельной еще и постирочная - там тепло, сухо - зимой все быстро сохнет. А твердотопливный котел будет сочетаться с постирочной-сушилкой? Посилання на коментар Поділитися на інших сайтах More sharing options...
Телесистемы Опубліковано: 5 жовтня 2011 Поділитись Опубліковано: 5 жовтня 2011 А твердотопливный котел будет сочетаться с постирочной-сушилкой? если как не основной, то вполне, только дымоход (если он закрытый) гильзуйте чтобы конденсат не тек 1 Посилання на коментар Поділитися на інших сайтах More sharing options...
Artyomovets Опубліковано: 5 жовтня 2011 Поділитись Опубліковано: 5 жовтня 2011 стиралку ставьте там, где и сушить будете. у ТТ котла топливо от которого пыль. как ни крути. поэтому, может на 2-м этаже? Посилання на коментар Поділитися на інших сайтах More sharing options...
Cvetikraa Опубліковано: 5 жовтня 2011 Автор Поділитись Опубліковано: 5 жовтня 2011 стиралку ставьте там, где и сушить будете. у ТТ котла топливо от которого пыль. как ни крути. поэтому, может на 2-м этаже? Вообще, сушить, наверное, будет удобнее на чердаке. А где поставить стиральную машину с корзиной для белья, то уже не проблема, не так много места и занимает. Топочной в 6 м2 для сушки белья может быть и мало, особенно когда надо будет постирать 2-3 комплекта постельного белья. По задумке, чердак планировался холодный, и использоваться как большой склад всего неиспользуемого. У кого-то есть опыт сушки белья на чердаке? Посилання на коментар Поділитися на інших сайтах More sharing options...
OlaR Опубліковано: 5 жовтня 2011 Поділитись Опубліковано: 5 жовтня 2011 У кого-то есть опыт сушки белья на чердаке? А главное его, мокрого, таскания туда да по чердачной леснице. ;) Посилання на коментар Поділитися на інших сайтах More sharing options...
Телесистемы Опубліковано: 5 жовтня 2011 Поділитись Опубліковано: 5 жовтня 2011 У кого-то есть опыт сушки белья на чердаке? почему-то сразу вспомнился Карлсон и его самое доброе в мире приведение:D раз в год поднимаюсь к себе на чердак(чаще просто нет ни малейшего желания), предварительно надеваю робу - пыли там с палец толщиной на стропилах , а еще в базальтовой вате. 1 Посилання на коментар Поділитися на інших сайтах More sharing options...
Artyomovets Опубліковано: 5 жовтня 2011 Поділитись Опубліковано: 5 жовтня 2011 раз в год поднимаюсь к себе на чердак(чаще просто нет ни малейшего желания), предварительно надеваю робу - пыли там с палец толщиной на стропилах , а еще в базальтовой вате. я вот тоже про пыль подумал... кстати, у вас чердак холодный? как утеплен? и как быть с утеплением люка на холодный чердак? Посилання на коментар Поділитися на інших сайтах More sharing options...
Телесистемы Опубліковано: 5 жовтня 2011 Поділитись Опубліковано: 5 жовтня 2011 я вот тоже про пыль подумал... да пыли там немеряно. у меня там тоже всякий хлам хранится, так когда иногда возникает необходимость его достать, то его пылесосить сразу необходимо долго и упорно. кстати, у вас чердак холодный? как утеплен? и как быть с утеплением люка на холодный чердак? у меня холодный чердак, утеплен по перекрытию базальтовой ватой (роквул) 5+15 см. люк , деревянный, индивидуальной конструкции точно так же утеплен. тяжелый, женщина, наверное не поднимет 1 Посилання на коментар Поділитися на інших сайтах More sharing options...
Ivirina Опубліковано: 5 жовтня 2011 Поділитись Опубліковано: 5 жовтня 2011 купите стиралку с сушкой два в одном. и вопрос куда повесить два комплекта белья отпадет. Никуда! на гладьную доску и в шкаф)))) теперь вопрос куда поставить гладильную доску :D Посилання на коментар Поділитися на інших сайтах More sharing options...
Artyomovets Опубліковано: 5 жовтня 2011 Поділитись Опубліковано: 5 жовтня 2011 люк , деревянный, индивидуальной конструкции точно так же утеплен. тяжелый, женщина, наверное не поднимет т.е. просто на люк сверху наклеили вату? ок, спс. Посилання на коментар Поділитися на інших сайтах More sharing options...
Cvetikraa Опубліковано: 5 жовтня 2011 Автор Поділитись Опубліковано: 5 жовтня 2011 купите стиралку с сушкой два в одном. и вопрос куда повесить два комплекта белья отпадет. Никуда! на гладьную доску и в шкаф)))) теперь вопрос куда поставить гладильную доску :D Сейчас у меня такая стиралка, сушила в ней всего несколько раз когда купила, результат мне не понравился, нет ощущения свежести от высушенного белья, как после улицы. Да и когда просто дома на обычной веревочной сушилке высохнет - и то лучше. Так что буду искать место сушилке. Посилання на коментар Поділитися на інших сайтах More sharing options...
Artyomovets Опубліковано: 5 жовтня 2011 Поділитись Опубліковано: 5 жовтня 2011 Сейчас у меня такая стиралка, сушила в ней всего несколько раз когда купила, результат мне не понравился, нет ощущения свежести от высушенного белья, как после улицы. Да и когда просто дома на обычной веревочной сушилке высохнет - и то лучше. Так что буду искать место сушилке. поддержу. после сушки белье не гладится без обильного отпаривания. лучше стиралку с очень сильным отжимом. тогда белье можно сразу под утюг. Посилання на коментар Поділитися на інших сайтах More sharing options...
flacon Опубліковано: 5 жовтня 2011 Поділитись Опубліковано: 5 жовтня 2011 лучше стиралку с очень сильным отжимом. тогда белье можно сразу под утюг. А половину в мусор. Посилання на коментар Поділитися на інших сайтах More sharing options...
Рекомендовані повідомлення
Створіть акаунт або увійдіть у нього для коментування
Ви маєте бути користувачем, щоб залишити коментар
Створити акаунт
Зареєструйтеся для отримання акаунта. Це просто!
Зареєструвати акаунтУвійти
Вже зареєстровані? Увійдіть тут.
Увійти зараз