Телесистемы Опубліковано: 4 жовтня 2011 Поділитись Опубліковано: 4 жовтня 2011 первый раз вижу гостинная на втором этаже))) хорошо хоть не на чердаке ) даже не знаю чем навеяно решение кухню такой проходной сделать. пришел с улицы сразу на кухню. вышел из спальни опять на кухню. вышел из туалета и опять на кухне. может люди покушать любят.. Посилання на коментар Поділитися на інших сайтах More sharing options...
Николай_Житомир Опубліковано: 4 жовтня 2011 Поділитись Опубліковано: 4 жовтня 2011 с одной стороны вроде как все понятно, но если частые клиенты то может тогда стоит вообще эту "гостиную-приемную" сделать где то отдельно. может лучше перепланировать рядом стоящий домик? Зачем вам энергетика чужих людей? неохота вести канализацию для гостевого туалета в другие домики и соответственно греть их постоянно,чтоб не замерзло. А в скворечник на улице как то не то. Гораздо интересней котельная на втором этаже бо на крышу запланированы солнечные коллекторы (вполне возможно самодельные) И соответственно обвязка, бойлер, вентиляц. оборудование и пр прям просяться тоже на 2й этаж. Одна из причин почему я еще второй этаж не вывесил, это пока он уж очень концептуальный получаеться. Пока на уровне идеи - что туда вынести, а как скрестить ежа с ужом и чтоб светло, и удобно непонятно. Пока, я думаю туда гостинно-приемную комнату для чайной церемонии, тренажерный закуток, котельно вентиляц. комнату, переход в мастерскую в старом домике, место изготовления форм смолами/гипсом, с/у. Посилання на коментар Поділитися на інших сайтах More sharing options...
Николай_Житомир Опубліковано: 4 жовтня 2011 Поділитись Опубліковано: 4 жовтня 2011 Если уж такое больше кол-во посетителей возможно у Вас за день, то зачем вообще Вы затеяли прием клиентов на дому? Это же проходной двор какой то получается! Да потому что не нравиться мне видеть семью так мало . Не хочу чтоб ребенок и жена папу видели с 19.30 до 21.30 и утром с 6.00 до 8.00. Хочу быть больше дома с семьей. Посилання на коментар Поділитися на інших сайтах More sharing options...
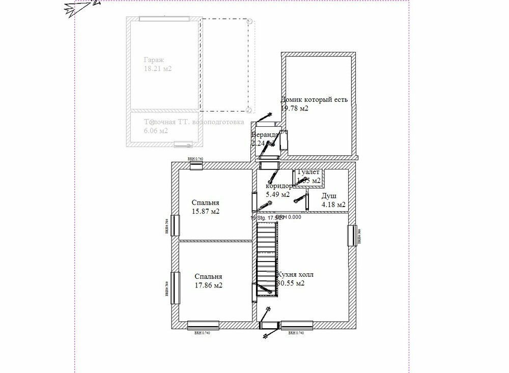
Николай_Житомир Опубліковано: 4 жовтня 2011 Поділитись Опубліковано: 4 жовтня 2011 В общем видится мне что не самый удачный вариант Вы накреативили, пробуйте еще, не бойтесь экспериментировать. А еще лучше загляните в каталоги, посмотрите как это люди делают. Не стесняйтесь задавать вопросы архитекторам, и перестаньте ради бога оправдывать свою "концептуальную разработку". Так я и расскызываю о вводных из которых это и появилось. А теперь вопрос как улучшить низ кухни? не крута ли лестница в прихожей (высота потолка ок 2.55) Посилання на коментар Поділитися на інших сайтах More sharing options...
Artyomovets Опубліковано: 4 жовтня 2011 Поділитись Опубліковано: 4 жовтня 2011 высота потолка ок 2.55 это где? на первом этаже? вы точно хотите хрущевку в 21 веке построить! 1 Посилання на коментар Поділитися на інших сайтах More sharing options...
Николай_Житомир Опубліковано: 4 жовтня 2011 Поділитись Опубліковано: 4 жовтня 2011 это где? на первом этаже? вы точно хотите хрущевку в 21 веке построить! Спасибо, Ну в общем ближе к брежневке. ставим 2.7 Посилання на коментар Поділитися на інших сайтах More sharing options...
vickov Опубліковано: 5 жовтня 2011 Поділитись Опубліковано: 5 жовтня 2011 Это классичкская планировка, как раз из тех, которые не только обсуждать, но даже рассмотреть желания нет. Если автору все нравится, то пусть строится. Ну я еще понимаю гостинная проходная, совмещенная гостинная с кухней - проходная, но проходная кухня с кучей дверей - это нечто. Хотя, где-то я это встречал. О, вспомнил, в общаге, где кухня на несколько блоков. Там такая движуха!!! Посилання на коментар Поділитися на інших сайтах More sharing options...
АлександрAlfli Опубліковано: 5 жовтня 2011 Поділитись Опубліковано: 5 жовтня 2011 Здравствуте! Если Вы все же решили принимать клиентов дома. Нужно сделать это удобным для Вас и для клиентов. Удобно, чтобы клиент приходил к Вам в кабинет, но чтобы не нарушать рабочую атмосферу в кабинете (распихивать нужные бумаги по полкам, которые достаточно уютно устроились на столе)) ) Так что для приема клиентов нужно объединить: чайная для приема гостей либо гостиная, в ходе встречи с дорогими гостями Вам нужно показать им результаты своего труда и нужно чтобы все необходимые материалы для презентации были под рукой, значит рядом должен быть кабинет и выход к т.н. производственому цеху )) мастерская и т. п. . Так же если прием деловых гостей ведется на втором этаже.. выход на второй этаж следовало бы осуществлять из прихожей в состав которой входит входная дверь, гардеробная зона, лестница, двери ведущие в жилую часть здания и возможно лестница в подвал, если таков планируется либо кладовая под лестницей. Если на втором этаже планируется т.н. чайная комната тогда на первом этаже следует предусмотреть столовую для семьи. Если гостиная (основная столовая) все же будет на втором этаже, кухню так же нужно устраивать на втором этаже. В чайную же комнату можно предусмотреть кухонный лифт. Есть дома с кухней в подвале, есть всякие варианты.. но в них зачастую кушть готовит повор а накрывает на стол домработница)) 1 Посилання на коментар Поділитися на інших сайтах More sharing options...
Игореха Опубліковано: 5 жовтня 2011 Поділитись Опубліковано: 5 жовтня 2011 Мдяаа... тяжковато для осмысления. Вы попробуйте сначала концепцию построить правильную. Причем не только со своей колокольни, а сесть за круглый стол со всем семейством и спросить у каждого: а как ты смотришь на то, что какие-то левые (а оно так и есть) люди будут ходить на второй этаж, или в другую приватную территорию, которая призвана быть домашним очагом, зоной уюта и комфорта? Я дома привык расслабляться, отдыхать и чувствовать комфорт. Может я хочу на полу поваляться, или в носу поковыряться, или громко попукать:D Шучу, но в своем доме имею полное право и не хочу при этом смущаться и смущать чужих людей. У вас почему-то все с ног на голову.. гостинная вверху, вместо кухни получился относительно большой проходной двор с 5!!! дверьми на 17 квадратов. Да вы сами там поубиваетесь и порасшибаете лбы снуя в этом лабиринте из дверей. Я вижу это так. "Бизнесовую" зону надо отделить от "домашней", причем сделать это на первом этаже. Их можно соединить одной единственной дверью, причем не проходной. Если вы не хотите выносить из дома бизнесовую зону, то максимум - одна связующая дверь, без возможности/необходимости шастания левых людей по приватной территории. В помещении, пусть даже холле, площадью 17 квадратов не должно быть более 3х дверей. Это не аксиома и не формула, и наверное этого нету в СНИПах. Но так подсказывает здравый смысл ;) Второй этаж - однозначно приватная территория, только для семьи. Даже близкие друзья и гости туда допускаются в случае крайней необходимости - это когда гостей много и всех на ночлег негде разместить на гостевой территории. Вместо некоторых дверей используйте арки - визуально расширяют смежные небольшие помещения, да и меньше створок дверных об которые будете шишки набивать. Для площади вашей коробки, раздельный санузел - неоправданная роскошь, которая заставляет вас же кромсать и без того маленькие помещения. Может имеет смысл расширить дом хотя бы на 1-2 метра? Лестница - очень крута. Это трап. Если ваши гости и смиряться с этим недостатком, посещая вас раз в месяц, то сами вы задолбаетесь очень быстро. Лично я бы на вашем месте не стал исправлять этот проект, а хорошо продумал бы концепцию, набор необходимых помещений, их функциональность, и нарисовал бы новый проектик, т.к. переделывать этот более проблемно. Как говорится в бородатом анекдоте - проще перезачать 1 Посилання на коментар Поділитися на інших сайтах More sharing options...
Николай_Житомир Опубліковано: 8 жовтня 2011 Поділитись Опубліковано: 8 жовтня 2011 Спасибо всем прочитавшим, засели всем семейством за переделку планчика. Посилання на коментар Поділитися на інших сайтах More sharing options...
Николай_Житомир Опубліковано: 8 жовтня 2011 Поділитись Опубліковано: 8 жовтня 2011 Яся решила таки выпросила триммер. Довольная.8) Обработал целину фрезой, посеяли сидерат (горчицу). В следующем году перекопаем сидерат, сверху чОрную агроткань и вперед за свежей вкуснятиной. Посилання на коментар Поділитися на інших сайтах More sharing options...
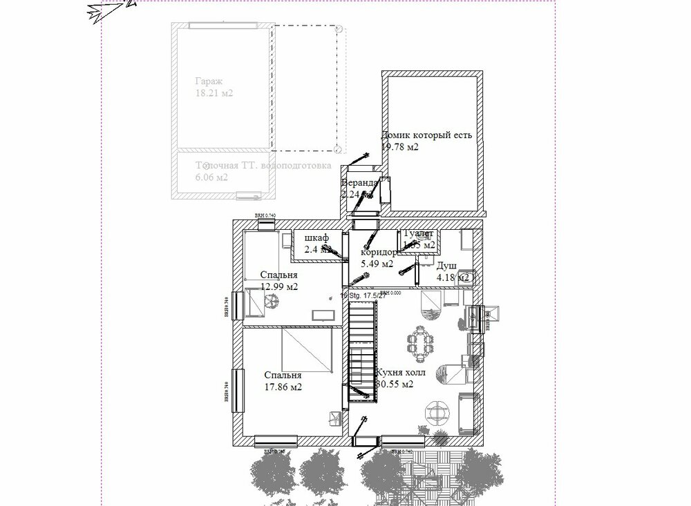
Николай_Житомир Опубліковано: 8 жовтня 2011 Поділитись Опубліковано: 8 жовтня 2011 Перерисован план 1 этаж. Прошу высказывайтесь. Посилання на коментар Поділитися на інших сайтах More sharing options...
Artyomovets Опубліковано: 8 жовтня 2011 Поділитись Опубліковано: 8 жовтня 2011 любите вы двери все в одно место запихнуть. по сути: зачем тамбур, если есть веранда? зачем разделяете санузел? подвиньте все влево так, чтобы вход получился в теперешний коридор помещение 17.86 - какого предназначения? там просто стол как в кухне. лестница гда начинается? если не от корридора - то дверь так как-то неуместна Посилання на коментар Поділитися на інших сайтах More sharing options...
Николай_Житомир Опубліковано: 8 жовтня 2011 Поділитись Опубліковано: 8 жовтня 2011 любите вы двери все в одно место запихнуть. по сути: зачем тамбур, если есть веранда? зачем разделяете санузел? подвиньте все влево так, чтобы вход получился в теперешний коридор помещение 17.86 - какого предназначения? там просто стол как в кухне. лестница гда начинается? если не от корридора - то дверь так как-то неуместна Веранда это уже стоит как часть уже стоящего домика. Пока новый фундамент не устоиться - соединение старого и нового нежесткое и не теплое ну примерно щель закрытая сверху доской. В тамбуре шкаф для верхней одежды, что не висит на вешалке в веранде. передвинуть влево - участок и так узкий так что увеличение дома от него мало что оставит. 17,86-спальня лестница начинаеться от коридора и проходит над дверью. Посилання на коментар Поділитися на інших сайтах More sharing options...
Николай_Житомир Опубліковано: 8 жовтня 2011 Поділитись Опубліковано: 8 жовтня 2011 про раздельный с/у. Ароматы от унитаза могут нарушить ход утренней чистки зубов. Да и ждать /бежать наверх если занят не надо. Там еще возле унитаза маленька угловая раковина будет. На 2м этаже с/у совмещенный. Посилання на коментар Поділитися на інших сайтах More sharing options...
Игореха Опубліковано: 8 жовтня 2011 Поділитись Опубліковано: 8 жовтня 2011 (змінено) В некоторых моментах стало чуть лучше. Некоторые остались такими-же, но в профиль Давайте иначе. Подпишите на плане первого этажа все помещения и их назначение, чтобы было понятно от чего плясать. Сразу скажу, что почти половина дверей у вас расположена очень-очень неудачно, если не сказать неправильно ;) Нельзя двери располагать так, чтобы при открывании они били полбу того кто нечаянно оказался в коридоре возле двери. Некомфортно двери располагать так, чтобы они открывались навстречу друг другу. И лбы порасшибаете и двери поразбиваете. Подпишите помещения - попробуем помочь ПС Как не крутил - хреново оно все выходит... Вопрос расположения входной двери принципиален и решен? Ее еще можно двигать, или это неприкосновенный элемент. Для ваших габаритов раздельный санузел - геморой. Либо не выйдет ни нормального туалета, ни нормальной ванной, либо надо очень ужимать площадь смежных помещений. Какие максимальновозможное ширина и длина коробки дома? И да. Я может пропустил, но вроде у вас не планируется цокольного этажа. Напомните, как вы собираетесь реализовывать топочную и прочие подсобные помещения. Это же не квартира ;) Змінено 8 жовтня 2011 користувачем Игореха Посилання на коментар Поділитися на інших сайтах More sharing options...
Игореха Опубліковано: 10 жовтня 2011 Поділитись Опубліковано: 10 жовтня 2011 Как не крутил, но чтобы нормально воплотить все эти ваши хотелки, надо добавить хотя бы 30см в ширине и около 1 метра в длину. Иначе это получается малосемейная общага ;) 1 Посилання на коментар Поділитися на інших сайтах More sharing options...
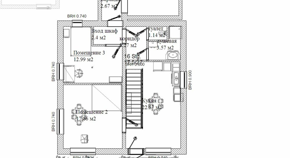
Николай_Житомир Опубліковано: 14 жовтня 2011 Поділитись Опубліковано: 14 жовтня 2011 Вопрос расположения входной двери принципиален и решен? Ее еще можно двигать, или это неприкосновенный элемент. Для ваших габаритов раздельный санузел - геморой. Либо не выйдет ни нормального туалета, ни нормальной ванной, либо надо очень ужимать площадь смежных помещений. Какие максимальновозможное ширина и длина коробки дома? И да. Я может пропустил, но вроде у вас не планируется цокольного этажа. Напомните, как вы собираетесь реализовывать топочную и прочие подсобные помещения. Это же не квартира ;) Спасибо за внимательный взгляд . Длину увеличивать не хотелось бы, тк. деревья. Даж лучше сократить. Ширину тож можно, но имея ввиду существующий домик. Входную дверь двигать не стоит она приходиться в веранду существующего домика. Топочную для ТТ и водоподготовку планируеться сделать в комнате в гараже, а так же в одном из помещений 2го этажа (бойлер косв нагрева, газ. котел и УПС ) вот как то так Посилання на коментар Поділитися на інших сайтах More sharing options...
Игореха Опубліковано: 14 жовтня 2011 Поділитись Опубліковано: 14 жовтня 2011 Спасибо за внимательный взгляд . Длину увеличивать не хотелось бы, тк. деревья. Даж лучше сократить. Ширину тож можно, но имея ввиду существующий домик. Входную дверь двигать не стоит она приходиться в веранду существующего домика. Топочную для ТТ и водоподготовку планируеться сделать в комнате в гараже, а так же в одном из помещений 2го этажа (бойлер косв нагрева, газ. котел и УПС ) вот как то так Это уже гораздо лучше Я так понимаю, что первая спальня - это таки не спальня? ;) Ну и лестница пока сама по себе живет. Посилання на коментар Поділитися на інших сайтах More sharing options...
Николай_Житомир Опубліковано: 15 жовтня 2011 Поділитись Опубліковано: 15 жовтня 2011 Это уже гораздо лучше Я так понимаю, что первая спальня - это таки не спальня? ;) Ну и лестница пока сама по себе живет. Ну в общем ее назначение будет меняться - сначала первая комната для обживания, потом жизнь покажет. А что значит про лестницу саму по себе? Посилання на коментар Поділитися на інших сайтах More sharing options...
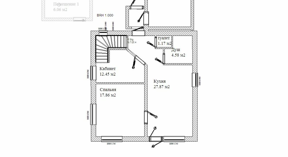
Игореха Опубліковано: 15 жовтня 2011 Поділитись Опубліковано: 15 жовтня 2011 Ну в общем ее назначение будет меняться - сначала первая комната для обживания, потом жизнь покажет. А что значит про лестницу саму по себе? Ну даже в том варианте что есть, начало лестничного марша упирается в дверь практически. Как вы в кухню заходить думаете? Перепрыгивать через первую ступеньку? ;) Ну и общий вид помещения, не очень широкого, да еще и с одномаршевой лестницей вдоль длинной стены будет не очень. Еще подумайте про перекрытия ;) С таким расположением лестницы вдоль несущей стены у вас появится много дополнительного головняка. Да и помещения второго этажа с парвой стороны не очень получатся, из-за лестничного проема. А попробуйте ее развернуть на 90 вдоль верхней короткой стены и сделать двумаршевой с забежными ступенями, дабы уменьшить ее габариты не ухудшая удобство подъема. 1 Посилання на коментар Поділитися на інших сайтах More sharing options...
Николай_Житомир Опубліковано: 16 жовтня 2011 Поділитись Опубліковано: 16 жовтня 2011 Лестница развернута, но размеры прежние, не увеличенные т. е хотелось бы вписаться в 8*8 Посилання на коментар Поділитися на інших сайтах More sharing options...
Яся_Zt Опубліковано: 16 жовтня 2011 Автор Поділитись Опубліковано: 16 жовтня 2011 Основные требования - что бы было удобно под себя, минимум "наворотов", т.к. клад пока не нашел, надежность, простота, относительная легкость строительных этапов, т.к. большую часть работ планирую делать сам... ну и еще несколько мелких моментов. Вот так и мы. Посилання на коментар Поділитися на інших сайтах More sharing options...
Игореха Опубліковано: 16 жовтня 2011 Поділитись Опубліковано: 16 жовтня 2011 Лестница развернута, но размеры прежние, не увеличенные т. е хотелось бы вписаться в 8*8 Хмм.. интересный поворот. Яимел ввиду оставить ее в том же помещении, но развернуть вправо под ту стенку где ванная/туалет. Но в данном случае тоже не плохой вариант. Единственное что крадет сильно полезный объем кабинета. Подумайте еще над вариантом - развернуть как я написал выше, но второй марш не вправо относительно первого разворачивать, а влево, используя часть туалета или ванной. Правда у вас не так много места, чтобы использовать несимметричные марши, поэтому с этим могуть быть проблемы, в плане размещения второго марша в полезном объеме туалета/ванной. Вот если бы они были совмещенными, то этот впрос решился бы легче Посилання на коментар Поділитися на інших сайтах More sharing options...
Яся_Zt Опубліковано: 16 жовтня 2011 Автор Поділитись Опубліковано: 16 жовтня 2011 Хмм.. интересный поворот. Единственное что крадет сильно полезный объем кабинета. Подумайте еще над вариантом - развернуть как я написал выше, но второй марш не вправо относительно первого разворачивать, а влево, используя часть туалета или ванной. Ну для кабинета это не критично, т.к в помещении такой формы музе летаеться лучше. Ок. Подумаем. Посилання на коментар Поділитися на інших сайтах More sharing options...
Рекомендовані повідомлення
Створіть акаунт або увійдіть у нього для коментування
Ви маєте бути користувачем, щоб залишити коментар
Створити акаунт
Зареєструйтеся для отримання акаунта. Це просто!
Зареєструвати акаунтУвійти
Вже зареєстровані? Увійдіть тут.
Увійти зараз