Мечты сбываются Опубліковано: 11 жовтня 2011 Поділитись Опубліковано: 11 жовтня 2011 (змінено) Всем здравствуйте, Долго "шли" с семьёй к покупке участка. Участок куплен (24х55) и пока занимаюсь всеми бумажными вопросами начал паралельно готовить свой план дома. Архикадом пользуюсь 2-й вечер в жизни - вчера и сегодня, поэтому просьба дать на это скидку на отображение контуров крыши на плане 2-го этажа, тоже сделайте скидку - не получилось убрать, что б сохранить в JPEG... Очень хотелось бы услышать аргументированную критику, пожелания и советы. Фасад дома выходит на север, гостинная на юг - соответсвенно в сад больше всего у меня самого вопрососв к лестнице...я её уже в нескольких вариациях ставил...но пока вижу данную оптимальной... Размер дома 11400*12800 Как указать размеры в Архикаде - ещё не разобрался (есть со всеми размерами в Ворде). Заранее спасибо. Змінено 11 жовтня 2011 користувачем Мечты сбываются Посилання на коментар Поділитися на інших сайтах More sharing options...
Елена А. Опубліковано: 11 жовтня 2011 Поділитись Опубліковано: 11 жовтня 2011 ну 1. спальня над гаражом? стремно 2. что-то с холлом на 2-ом этаже не того. а лестница из чего? а общая площадь? Посилання на коментар Поділитися на інших сайтах More sharing options...
Елена А. Опубліковано: 11 жовтня 2011 Поділитись Опубліковано: 11 жовтня 2011 у вас задачи похожи на мои , 5 спален, гараж (у меня вместо гаража баня) могу на электронку скинуть поэтажку. Если не лень ехать могу повезти показать. Посилання на коментар Поділитися на інших сайтах More sharing options...
Мечты сбываются Опубліковано: 11 жовтня 2011 Автор Поділитись Опубліковано: 11 жовтня 2011 у вас задачи похожи на мои , 5 спален, гараж (у меня вместо гаража баня) могу на электронку скинуть поэтажку. Если не лень ехать могу повезти показать. общая площадь по полу около 200 квадратов...планирую второй этаж мансардный на атиковой стене... А в чём стрёмность спальни над гаражом? На электронку сбрасывайте, если не сложно...iomelchuk@ukr.net так будет быстрее ммм...а куда ехать? (пошёл смотреть по ветке)... Посилання на коментар Поділитися на інших сайтах More sharing options...
Игореха Опубліковано: 11 жовтня 2011 Поділитись Опубліковано: 11 жовтня 2011 общая площадь по полу около 200 квадратов...планирую второй этаж мансардный на атиковой стене... А в чём стрёмность спальни над гаражом? На электронку сбрасывайте, если не сложно...iomelchuk@ukr.net так будет быстрее ммм...а куда ехать? (пошёл смотреть по ветке)... У вас очень просторный дом планируется. Это не в 8*7 пытаться уместить 3 комнаты Почему гостевой санузел такой скромный сделали? Топочная очень маленькая. По нормам не пройдет. Объем 15 кубов должен быть. Ну и окно тоже. И темне менее холл на втором очень большой в ущерб комнатам. И зачем такая сложная конфигурация комнаты слева, и такой узкий коридорчик в ней? Чем вызвано? Посилання на коментар Поділитися на інших сайтах More sharing options...
Artyomovets Опубліковано: 11 жовтня 2011 Поділитись Опубліковано: 11 жовтня 2011 лестница - в небеса... вы уверенны, что восточную сторону хотите закрыть гаражом? я бы подумал. восток - самый положительный по энергетике, как по мне, а вы эту энергетику давите. гостевая спальня на втором - нет... хотите - посмотрите мои наброски. там тоже на 5 спален и фасад на север. Посилання на коментар Поділитися на інших сайтах More sharing options...
Игореха Опубліковано: 11 жовтня 2011 Поділитись Опубліковано: 11 жовтня 2011 лестница - в небеса... вы уверенны, что восточную сторону хотите закрыть гаражом? я бы подумал. восток - самый положительный по энергетике, как по мне, а вы эту энергетику давите. гостевая спальня на втором - нет... хотите - посмотрите мои наброски. там тоже на 5 спален и фасад на север. Лестница в данном случаеь не принципиальна. При таком строительном объеме ее легко обыграть почти в любой конфигурации и размещении. С остальным - согласен У меня сложилось ощущение, что просто много простора сразу у автора появилось в один миг, и он не смог его рационально использовать на радостях;) В принципе, очень хороший объем и размеры, достаточные для вопрощения указанных хотелок. В этом проекте точно не будет борьбы за "нехватающие 10 см":D Но надо доработать указанные выше недостатки. Хоть размеры и не проставлены, но на вскидку, размер спален около 12 квадратов. Маловато, как для такого дома, да и вообще Рациональнее используйте имеющееся пространство, а то его вроде и много, а на выходе получаем совсем мало пользы от него ;) 2 Посилання на коментар Поділитися на інших сайтах More sharing options...
Мечты сбываются Опубліковано: 12 жовтня 2011 Автор Поділитись Опубліковано: 12 жовтня 2011 У вас очень просторный дом планируется. Это не в 8*7 пытаться уместить 3 комнаты Почему гостевой санузел такой скромный сделали? Топочная очень маленькая. По нормам не пройдет. Объем 15 кубов должен быть. Ну и окно тоже. И темне менее холл на втором очень большой в ущерб комнатам. И зачем такая сложная конфигурация комнаты слева, и такой узкий коридорчик в ней? Чем вызвано? Моё мнение, что санузел на первом этаже должен быть небольшим...все вечерние и утренние приготовления будут проходить рядом с спальнями, а на первом так, в туалет сбегать-душ принять ) ПО поводу топочной согласен...буду думать. Хол на втором большой из-за лестницы. Конфигурация комнаты слева, также обусловлена лестницей, которая достаточно длинная, что бы быть удобной для подъёма... Посилання на коментар Поділитися на інших сайтах More sharing options...
Мечты сбываются Опубліковано: 12 жовтня 2011 Автор Поділитись Опубліковано: 12 жовтня 2011 лестница - в небеса... вы уверенны, что восточную сторону хотите закрыть гаражом? я бы подумал. восток - самый положительный по энергетике, как по мне, а вы эту энергетику давите. гостевая спальня на втором - нет... хотите - посмотрите мои наброски. там тоже на 5 спален и фасад на север. Восточная сторона будет по мах приближена к соседскому забору, а окна в забор я не воспринимаю, соответственно гаражу там, наверное, самое место... Ну гости не так часто бывают и если бывают, то те, кто не приносит неудобств - если по этому поводу... Обязательно посмотрю Спасибо. Посилання на коментар Поділитися на інших сайтах More sharing options...
Мечты сбываются Опубліковано: 12 жовтня 2011 Автор Поділитись Опубліковано: 12 жовтня 2011 Лестница в данном случаеь не принципиальна. При таком строительном объеме ее легко обыграть почти в любой конфигурации и размещении. С остальным - согласен Спасибо...задумался. Порекомендуйте, как лестницу обыграть. Первый этаж особо изменять не хотел бы...со вторым готов играться, как угодно! Посилання на коментар Поділитися на інших сайтах More sharing options...
Игореха Опубліковано: 12 жовтня 2011 Поділитись Опубліковано: 12 жовтня 2011 Лестница в данном случаеь не принципиальна. При таком строительном объеме ее легко обыграть почти в любой конфигурации и размещении. С остальным - согласен Спасибо...задумался. Порекомендуйте, как лестницу обыграть. Первый этаж особо изменять не хотел бы...со вторым готов играться, как угодно! А не думали следать лесницу двумаршевой на 180 градусов? Причем марши можно сделать не симметричные. Первый марш чуть покороче чем существующий сейчас в проекте, площадна, которая будет чуть выше чем дверной проем в гараж. Второй марш короче чем первый с разворотом на 180. И выход с лестницы бцдет на втором этаже не в стену, а в центр холла, что есть очень хорошо. Выход с упором в стену делают только в крайнем случае, если уж совсем площадь не позволяет. Ну и холл можно будет сделать чуть меньше (уже слава/справа), и комнаты боковые расширить. Очень много бонусов получите с такой лестницей. 2 Посилання на коментар Поділитися на інших сайтах More sharing options...
Artyomovets Опубліковано: 12 жовтня 2011 Поділитись Опубліковано: 12 жовтня 2011 там можно подумать о лестнице на 90 градусов... Посилання на коментар Поділитися на інших сайтах More sharing options...
Игореха Опубліковано: 12 жовтня 2011 Поділитись Опубліковано: 12 жовтня 2011 там можно подумать о лестнице на 90 градусов... 90 - тоже будет с выходом "в стену". Не очень комфортная лестница. Вы визуализацию делали в Архикаде? Посмотрите на сколько вариант с рразворотом на 180 будет симпатичнее ;) Посилання на коментар Поділитися на інших сайтах More sharing options...
Мечты сбываются Опубліковано: 12 жовтня 2011 Автор Поділитись Опубліковано: 12 жовтня 2011 А не думали следать лесницу двумаршевой на 180 градусов? Думал, может я что-то неправильно закладываю в параметры лестницы: высота ступеньки 170, глубина 290...если заложить 1 м на поворотную площадку, то 3,5 м необходимо, что бы набрать высоту 2 метра Посилання на коментар Поділитися на інших сайтах More sharing options...
Игореха Опубліковано: 12 жовтня 2011 Поділитись Опубліковано: 12 жовтня 2011 А не думали следать лесницу двумаршевой на 180 градусов? Думал, может я что-то неправильно закладываю в параметры лестницы: высота ступеньки 170, глубина 290...если заложить 1 м на поворотную площадку, то 3,5 м необходимо, что бы набрать высоту 2 метра Это вы считаете полную глубину ступеней? Проекционная глубина ступени будет меньше. Или 290 это проекционная глубинга ступени? Ну это конечно не плохо, но дюже шикарно Ну пусть даже 3,5 метра на высоту 2метра.. Вы в каком каде работаете? Может скинете свой проект, чтобы покрутить его? 1 Посилання на коментар Поділитися на інших сайтах More sharing options...
Мечты сбываются Опубліковано: 12 жовтня 2011 Автор Поділитись Опубліковано: 12 жовтня 2011 Это вы считаете полную глубину ступеней? Проекционная глубина ступени будет меньше. Или 290 это проекционная глубинга ступени? Ну это конечно не плохо, но дюже шикарно Ну пусть даже 3,5 метра на высоту 2метра.. Вы в каком каде работаете? Может скинете свой проект, чтобы покрутить его? как-то я не подумал о том, что есть же ещё выступы, наверное, как минимум 3 см!? Нашёл в нете 12-й, который нормально скачался и установился. Могу сбросить, если это не в напряг...единственное, что: вечером с домашнего компа...на работе не устанавливал Посилання на коментар Поділитися на інших сайтах More sharing options...
Игореха Опубліковано: 12 жовтня 2011 Поділитись Опубліковано: 12 жовтня 2011 как-то я не подумал о том, что есть же ещё выступы, наверное, как минимум 3 см!? Нашёл в нете 12-й, который нормально скачался и установился. Могу сбросить, если это не в напряг...единственное, что: вечером с домашнего компа...на работе не устанавливал Сброшу в личку мыло. У меня 14, но 12 формат читает. Правда сохранить не полуцца, только картинки посмотреть Посилання на коментар Поділитися на інших сайтах More sharing options...
ionico Опубліковано: 12 жовтня 2011 Поділитись Опубліковано: 12 жовтня 2011 С конструкциями ещё совсем не то. В центре дома наверняка будут колонны либо надо добавить несущих стен. Лестница может быть винтовой - очень красиво, особенно для индивидуальных домов. Еще соглашусь с тем, что гараж на востоке - слишком не желательно для дома. Посилання на коментар Поділитися на інших сайтах More sharing options...
Мечты сбываются Опубліковано: 12 жовтня 2011 Автор Поділитись Опубліковано: 12 жовтня 2011 С конструкциями ещё совсем не то. В центре дома наверняка будут колонны либо надо добавить несущих стен. Лестница может быть винтовой - очень красиво, особенно для индивидуальных домов. Еще соглашусь с тем, что гараж на востоке - слишком не желательно для дома. Винтовая красиво, но не очень удобно... А почему гараж не желательно с востока? Посилання на коментар Поділитися на інших сайтах More sharing options...
MAG-I-YA Опубліковано: 13 жовтня 2011 Поділитись Опубліковано: 13 жовтня 2011 Igor83, у вас симпатичный и, думаю, очень удобный тамбур. Там, кстати, маленькое окошко пригодится. Но: приехала семья зимой из супермаркета, "выгрузилась" в гараже. И все дружно пошли относить пакеты на кухню... по пути зайдя в тамбур переобуться в тапочки и снять шубки . Или все разуются у двери в холле, а утром будут вспоминать, откуда заходили последний раз. ИМХО, выход из гаража нужно делать там, где будете переодеваться/переобуваться, чтобы лишнюю грязь по дому не тягать. Посилання на коментар Поділитися на інших сайтах More sharing options...
Мечты сбываются Опубліковано: 13 жовтня 2011 Автор Поділитись Опубліковано: 13 жовтня 2011 Igor83, у вас симпатичный и, думаю, очень удобный тамбур. Там, кстати, маленькое окошко пригодится. Спасибо, но такое чувство, что Вы впервые его видите...Гы )) Что-то долго Вы шли к данной записи Уже немного всё поменялось...думаю через недельку покажу тебе весЧь... Посилання на коментар Поділитися на інших сайтах More sharing options...
MAG-I-YA Опубліковано: 14 жовтня 2011 Поділитись Опубліковано: 14 жовтня 2011 Спасибо, но такое чувство, что Вы впервые его видите...Гы )) Что-то долго Вы шли к данной записи :D Да, я такая... Долго запрягаю, зато быстро еду ;)! Просто сейчас думаю над своим проектом: сляпать тамбурок или намалевать верандочку . Ты же тогда сказал, что твой проект окончательный. Вот и не лезла с советами, пока темку не увидела. Если хочешь, могу занести старенький каталог "магазин проектов 2007-2008". Почерпнуть идеи по планировке. Уже немного всё поменялось...думаю через недельку покажу тебе весЧь... Жду! И не сомневаюсь, что это действительно весЧь! Посилання на коментар Поділитися на інших сайтах More sharing options...
NYUTA Опубліковано: 14 жовтня 2011 Поділитись Опубліковано: 14 жовтня 2011 А мне кажется над планом 1-го этажа еще надо поработать - для кухни-столовой (и холла) очень много места - не может кухня-столовая быть такой же как гараж с кладовой. Кроме того, расставили Вы оборудование - с одной стороны кухонное, с другой - стол. А в центре что? Пустое пространство. По поводу лестницы - для того, чтобы она была удобной - она не обязана бвть длинной. На удобство лестницы влияет удачное соотношение ступени и подступенка (2:1). А то он в плане съедает огромный кусок пространства. Ну и со 2-ым этажом - присоединяюсь к сказанным замечаниям. 1 Посилання на коментар Поділитися на інших сайтах More sharing options...
Мечты сбываются Опубліковано: 14 жовтня 2011 Автор Поділитись Опубліковано: 14 жовтня 2011 А мне кажется над планом 1-го этажа еще надо поработать - для кухни-столовой (и холла) очень много места - не может кухня-столовая быть такой же как гараж с кладовой. Кроме того, расставили Вы оборудование - с одной стороны кухонное, с другой - стол. А в центре что? Пустое пространство. По поводу лестницы - для того, чтобы она была удобной - она не обязана бвть длинной. На удобство лестницы влияет удачное соотношение ступени и подступенка (2:1). А то он в плане съедает огромный кусок пространства. Ну и со 2-ым этажом - присоединяюсь к сказанным замечаниям. Спасибо. Сейчас работаем над всеми доработками и не только уже я Между столовой и кухней есть мысль разместить барную стойку с барными стульями...она будет немного зонировать пространство! Простенок принципиально не хочу увеличивать для зонирования...хочется больше пространства... Посилання на коментар Поділитися на інших сайтах More sharing options...
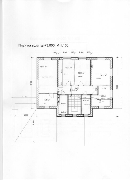
Мечты сбываются Опубліковано: 22 жовтня 2011 Автор Поділитись Опубліковано: 22 жовтня 2011 После долгих общений со знакомыми и друзьями, с Вами, учитывая советы и пожелания всех вокруг получился вот такой доработанный проект: От гаража в доме отказался в сторону навеса... От мансардного в сторону полноценного 2-го этажа и холодного чердака с перспективой и его когда-то задействовать (например в игровую комнату для детей)... Концепция внутреннего зонирования осталась практически прежней, только более продуманной по использованию каждого кусочка пространства... В общей сложности по периметру дом даже немного уменьшился. Что скажете? ;) 2 Посилання на коментар Поділитися на інших сайтах More sharing options...
Рекомендовані повідомлення
Створіть акаунт або увійдіть у нього для коментування
Ви маєте бути користувачем, щоб залишити коментар
Створити акаунт
Зареєструйтеся для отримання акаунта. Це просто!
Зареєструвати акаунтУвійти
Вже зареєстровані? Увійдіть тут.
Увійти зараз