Мечты сбываются Опубліковано: 5 грудня 2011 Автор Поділитись Опубліковано: 5 грудня 2011 Не стоит ставить кровать изголовьем к окнам. На картинках выглядит красиво, а на деле это очень неуютно. Самый приятный вариант, как это ни странно, когда перед глазами большое окно с видом на запад, сбоку тоже хорошо. Поэтому дверь лучше справа. вот, пару фоток для вдохновения хозяевам. )) Спасибо за сопереживания и участие в "причёсывании" проекта... Кровать будет посредине правой стены...Дверь будет справа, как и на проекте...напротив кровати будет конструкция, как написал выше!... За фотки спасибо...некоторые уже видел... есть классный сайт по интерьерам (ссылка устарела) 2 Посилання на коментар Поділитися на інших сайтах More sharing options...
ребята Опубліковано: 6 грудня 2011 Поділитись Опубліковано: 6 грудня 2011 спальня посредине - выходящая в сад и на ЮГ...размер спальни, как по мне - огромные...кровать будет посредине правой стены...а напротив конструкция на всю стену (полочно-шкафного типа с небольшой глубиной)...посредине будет телевизор...по бокам кровати тумбочки и вот и вся мебель!!! Хочу простора... Одна детская будет выходить на Юг и Восток, а вторая на Юг и Запад как я вас понимаю ... тоже хочу простора: 1. окна на юг скорее всего будут чаще зашторены, особого смысла в окнах на юг в спальне нету, имхо. солнце летом будет жарить, а утром зимой видно его не будет, вечером и подавно нам с мужем спальня комфортна на восток - нежный розовый свет зимним утром бодрит не хуже кофейка кто-то любит спальни на запад. просто днем мы спальню как правило не видим, надо ориентироваться на комфорт вечером и утром. а родители в спальне только спят, дети в детской еще и учатся, т.е. проводят больше времени. 2. по сторонам света у вас чудесно дом ориентирован, просто супер. 3. до телевизора расстояние будет больше 4 метров, многовато для комфортного просмотра перед сном. лично для меня размер спальни великоват. я бы поигралась с зонированием, но тут каждому свое 4. а как вы планируете расставить мебель в детских? офф. почему я так пристаю к вам по поводу расстановки мебели, потому как актуальный для меня вопрос. мы планируем каркасник, а там надо сразу четко знать какую полочку куда прибить. умозрительно картинку нарисовать можно любую. а вот на практике комфорт не всегда логичен, а функциональность не всегда комфортна. я отношусь к тем людям, которые любят передвигать мебель. после многочисленных перестановок мы с удивлением обнаружили, что: самым удобным для нас оказалось расположение кровати изголовьем к окну, а одно кресло нашло свое место возле телевизора/компьтера, полностью закрывая вход на балкон :pardon: зато нам, блин, удобно Если нашу спальную делать справа, то у детей тогда будут неодиаковые спальни )) подерутся! мир несправедлив. пусть привыкают ;) 1 Посилання на коментар Поділитися на інших сайтах More sharing options...
vopros'nik Опубліковано: 6 грудня 2011 Поділитись Опубліковано: 6 грудня 2011 у вас задачи похожи на мои , 5 спален, гараж (у меня вместо гаража баня) могу на электронку скинуть поэтажку. Если не лень ехать могу повезти показать. А у Вас как фасады выходят, как вы с окнами решили? У меня такая-же история, не хочется делать глухими окна на юг, восток, запад в некоторых комнатах, а без этого кровати не получается правильно поставить (моя ветка "Как найти золотую середину?) Посилання на коментар Поділитися на інших сайтах More sharing options...
AndyAntonov Опубліковано: 6 грудня 2011 Поділитись Опубліковано: 6 грудня 2011 Лестница может быть винтовой - очень красиво, особенно для индивидуальных домов. Но неудобно в пользовании. Юзать только при жесточайшем дефиците места. 1 Посилання на коментар Поділитися на інших сайтах More sharing options...
Мечты сбываются Опубліковано: 6 грудня 2011 Автор Поділитись Опубліковано: 6 грудня 2011 как я вас понимаю ... тоже хочу простора: 1. окна на юг скорее всего будут чаще зашторены, особого смысла в окнах на юг в спальне нету, имхо. солнце летом будет жарить, а утром зимой видно его не будет, вечером и подавно нам с мужем спальня комфортна на восток - нежный розовый свет зимним утром бодрит не хуже кофейка кто-то любит спальни на запад. просто днем мы спальню как правило не видим, надо ориентироваться на комфорт вечером и утром. а родители в спальне только спят, дети в детской еще и учатся, т.е. проводят больше времени. Я также изначально планировал на восток...предыдущие варианты проекта...но ведь всегда надо искать компромис )) да и на востоке соседский дом достаточно близко стоит...хотя постарался учесть и этот момент, разместив свой дом немногим ближе к дороги, тем самым открыв вид из окна не на соседскую стену, а на сосновую лесопосадку А в спальне будет кондиционер, поэтому жаркое солнышко - это даже + ... тем более, что наши окна будут выходить не совсем на 100% юг...а так немного с захватом востока 2. по сторонам света у вас чудесно дом ориентирован, просто супер. что есть, то есть...участок подбирал именно таким образом, что бы фасад и въезд максимально выходил на север 3. до телевизора расстояние будет больше 4 метров, многовато для комфортного просмотра перед сном. лично для меня размер спальни великоват. я бы поигралась с зонированием, но тут каждому свое дык это не проблемма при 40-50 дюймах 4. а как вы планируете расставить мебель в детских? думали с женой над этим вопросом...есть несколько вариантов...обязательно под одним из окон будет рабочая зона...возможно под одной и стен будет цельная рабочая поверхность (от стены и до стены)...и также минимум всякой остальной мебели (мне этих шкафиков и всего прочего в квартире хватает...уже вот сдесь !!! сидят офф. почему я так пристаю к вам по поводу расстановки мебели, потому как актуальный для меня вопрос. мы планируем каркасник, а там надо сразу четко знать какую полочку куда прибить. умозрительно картинку нарисовать можно любую. а вот на практике комфорт не всегда логичен, а функциональность не всегда комфортна. я отношусь к тем людям, которые любят передвигать мебель. после многочисленных перестановок мы с удивлением обнаружили, что: самым удобным для нас оказалось расположение кровати изголовьем к окну, а одно кресло нашло свое место возле телевизора/компьтера, полностью закрывая вход на балкон зато нам, блин, удобно мир несправедлив. пусть привыкают ;) ну как сказать...если они будут с маленкого возраста понимать, что несправедливость в мире начинается с родителей...то это как-то неправильно а я за равенство отношения в семье 1 Посилання на коментар Поділитися на інших сайтах More sharing options...
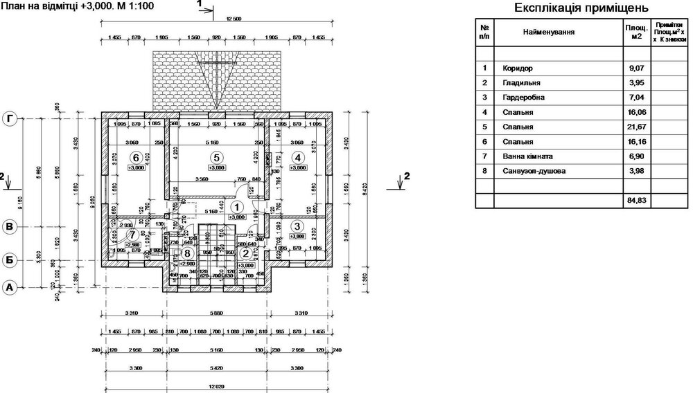
vopros'nik Опубліковано: 6 грудня 2011 Поділитись Опубліковано: 6 грудня 2011 Ребята, Немного переделал 2-й этаж...что скажете? Родительскую перенёс в центр, объеденив 2 детских, а детские теперь по бокам (площадь их по 16,5 квадратов). Расширил коридор-хол и сделал вход в увеличенный с/у с коридора. 2-й с/у будет местить унитаз, умывальник и стиралку. Также увеличил немного гардероб (3) Надеюсь ещё успею внести изменения...проект-то уже в архитектуре Надеюсь успеете, бог даст. Этот вариант на 100% лучше. Слежу за вашими эскизами с интересом, у нас такая же ситуация север-юг плюс 2 детей. Оф, увидела, что я опоздала с пожеланиями, но думаю пожеланий удачи лишними не бывают. Посилання на коментар Поділитися на інших сайтах More sharing options...
Мечты сбываются Опубліковано: 6 грудня 2011 Автор Поділитись Опубліковано: 6 грудня 2011 Надеюсь успеете, бог даст. Этот вариант на 100% лучше. Слежу за вашими эскизами с интересом, у нас такая же ситуация север-юг плюс 2 детей. Оф, увидела, что я опоздала с пожеланиями, но думаю пожеланий удачи лишними не бывают. Спасибо..."пошёл смотреть Ваш проект" )) Всё ок...в архитектуре успел )) Посилання на коментар Поділитися на інших сайтах More sharing options...
Мечты сбываются Опубліковано: 31 грудня 2011 Автор Поділитись Опубліковано: 31 грудня 2011 Ура...28 декабря я уже получил разрешение на строительство. Строительный паспорт получил немногим ранее Так что полный пакет документов уже собран.....ждёмс весны и начинаем!!! 1 Посилання на коментар Поділитися на інших сайтах More sharing options...
Alisa3 Опубліковано: 31 грудня 2011 Поділитись Опубліковано: 31 грудня 2011 Ура...28 декабря я уже получил разрешение на строительство. Строительный паспорт получил немногим ранее Так что полный пакет документов уже собран.....ждёмс весны и начинаем!!! Поздравляю! Нам ещё это только предстоит. Удачи Вам в вашем строительстве и пусть ваш дом станет вашем домом мечты! 1 Посилання на коментар Поділитися на інших сайтах More sharing options...
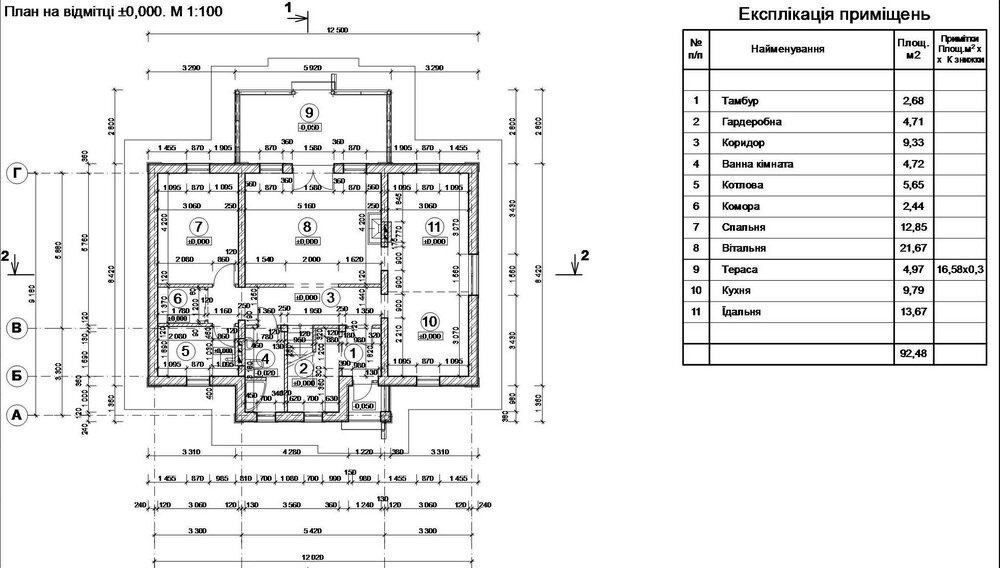
Мечты сбываются Опубліковано: 3 травня 2012 Автор Поділитись Опубліковано: 3 травня 2012 Давненько не писал )) Проект претерпел минимальные изменения и корректировки. В большей степени это касалось окон. Отдельное спасибо Марии Доброе_утро за радушный приём и проработку проекта по окнам, как итог небольшие корректировки по размерам (ну и для себя определился, какие окна будут)... Очень надеюсь на дальнейшее сотрудничество, когда придёт время ПыСы: Стройку начал месяц назад...всё движется медленными, но уверенными темпами...и, надеюсь, в скором времени переберусь в раздел: Как мы строимся... 1 Посилання на коментар Поділитися на інших сайтах More sharing options...
vopros'nik Опубліковано: 4 травня 2012 Поділитись Опубліковано: 4 травня 2012 Давненько не писал )) Проект претерпел минимальные изменения и корректировки. В большей степени это касалось окон. Отдельное спасибо Марии Доброе_утро за радушный приём и проработку проекта по окнам, как итог небольшие корректировки по размерам (ну и для себя определился, какие окна будут)... Очень надеюсь на дальнейшее сотрудничество, когда придёт время ПыСы: Стройку начал месяц назад...всё движется медленными, но уверенными темпами...и, надеюсь, в скором времени переберусь в раздел: Как мы строимся... Рада, что хоть медлено, но уверено движетесь. Удачи Вам, терпения и материальных возможностей на пути к своей мечте. Будем ждать ваших новостей с поля стройки. Посилання на коментар Поділитися на інших сайтах More sharing options...
Project group Опубліковано: 7 травня 2012 Поділитись Опубліковано: 7 травня 2012 ЮГ-ВС наиболее подходящий для размещения открытых террас, выхода на них больших окон с дверьми (витражного типа) из жилых помещений ...в общем для организации зоны отдыха, а гараж - это хоз. постройка и её целесообразно ориентировать в северном/ северо-западном секторе. Посилання на коментар Поділитися на інших сайтах More sharing options...
Татьяна111 Опубліковано: 7 травня 2012 Поділитись Опубліковано: 7 травня 2012 Очень интересный проект, все функционально и удобно, с адаптацией к участку. Я так поняла, что вам помогал архитектор. Это был полноценный проект или эскиз? Если можно, сбросьте в личку контакты и стоимость услуги. Посилання на коментар Поділитися на інших сайтах More sharing options...
Мечты сбываются Опубліковано: 7 травня 2012 Автор Поділитись Опубліковано: 7 травня 2012 Очень интересный проект, все функционально и удобно, с адаптацией к участку. Я так поняла, что вам помогал архитектор. Это был полноценный проект или эскиз? Если можно, сбросьте в личку контакты и стоимость услуги. Так получилось, что основное я рисовал сам...первый проект был нарисован мной простым карандашом на листе А4, он был мансардным...но со временем многое откорректировал исходя из полученной информации на форуме и благодаря определённым советам архитектора (но некоторые размещения и назначения помещений остались вообще без изменений). С тех пор уже практически полностью освоил Архикад )) и уже все последующие постройки (гараж, навес, баня) рисовал сам Контакты в Личке... 2 Посилання на коментар Поділитися на інших сайтах More sharing options...
Рекомендовані повідомлення
Створіть акаунт або увійдіть у нього для коментування
Ви маєте бути користувачем, щоб залишити коментар
Створити акаунт
Зареєструйтеся для отримання акаунта. Це просто!
Зареєструвати акаунтУвійти
Вже зареєстровані? Увійдіть тут.
Увійти зараз