AMG72 Опубліковано: 21 жовтня 2011 Поділитись Опубліковано: 21 жовтня 2011 Как по мне подходящий габарит 9,3 х 9,3. Планируется каркасник Есть ли какие-то замечания-предложения по планировке. Прошу высказаться. Может кто-то такой дом построил - познакомимся. 1. тамбур/прихожая 5,1 м2 2. коридор 2,6 м2 3. ванная+хозпомещение 5,5 м2 4. кухня 11,4 м2 5. гостиная 26,6 м2 6. спальня 10,8 м2 7. спальня 10,7 м2 8. террасa 5,9 м2 Всего 72,7 м2 Посилання на коментар Поділитися на інших сайтах More sharing options...
AndyAntonov Опубліковано: 21 жовтня 2011 Поділитись Опубліковано: 21 жовтня 2011 В данном виде — дачный домик. Отопление предусмотрено только камином. А делать котельную — перепиливать планировку. ЗЫ Посмотрите тему по одноэтажным планировкам. ЗЗЫ Хотя можно чуть поколдовать над ванной и прихожей и выкроить там место для котла. Посилання на коментар Поділитися на інших сайтах More sharing options...
Artyomovets Опубліковано: 21 жовтня 2011 Поділитись Опубліковано: 21 жовтня 2011 кроме того - ни одной кладовки или гардеробной. опять же - можно вход на кухню делать из гостиной, а левый закуток от входа - под гардероб. Посилання на коментар Поділитися на інших сайтах More sharing options...
AMG72 Опубліковано: 21 жовтня 2011 Автор Поділитись Опубліковано: 21 жовтня 2011 Таки да на первое время - дачный домик, в дальнейшем возможно дом для ПМЖ Отопление електроконвекторами. Может со временем теплый електропол. Камин как декоративное и аварийное отопление. Газа пока не предвидется. По поводу кладовок сам переживаю. Хочется, но раширяться некуда. Помогает одно: нынешнее наше место дачного проживания - бытовка 3х6 будет и кладовкой и моей мастерской. Посилання на коментар Поділитися на інших сайтах More sharing options...
ionico Опубліковано: 21 жовтня 2011 Поділитись Опубліковано: 21 жовтня 2011 Можно отнять немного площади у с/у и сделать гардеробную. При этом оставить вход в кухню из прихожей. А вообще, проект очень компактный. Если что-то добавлять, то думаю, что придётся увеличивать габариты здания. Посилання на коментар Поділитися на інших сайтах More sharing options...
N.Lux Опубліковано: 21 жовтня 2011 Поділитись Опубліковано: 21 жовтня 2011 Таки да на первое время - дачный домик, в дальнейшем возможно дом для ПМЖ Отопление електроконвекторами. Может со временем теплый електропол. Камин как декоративное и аварийное отопление. Газа пока не предвидется. По поводу кладовок сам переживаю. Хочется, но раширяться некуда. Помогает одно: нынешнее наше место дачного проживания - бытовка 3х6 будет и кладовкой и моей мастерской. Проверьте нормативные требования для вашего вида отопления. Посилання на коментар Поділитися на інших сайтах More sharing options...
Федорович Опубліковано: 22 жовтня 2011 Поділитись Опубліковано: 22 жовтня 2011 Посмотрите там же например "зеленый сад" Там при небольшой перестройке получаете очень функциональны дом при почти этих же размерах. 1 Посилання на коментар Поділитися на інших сайтах More sharing options...
AMG72 Опубліковано: 24 жовтня 2011 Автор Поділитись Опубліковано: 24 жовтня 2011 Проверьте нормативные требования для вашего вида отопления. Это как. Поподробней. Посилання на коментар Поділитися на інших сайтах More sharing options...
AMG72 Опубліковано: 24 жовтня 2011 Автор Поділитись Опубліковано: 24 жовтня 2011 Посмотрите там же например "зеленый сад" Там при небольшой перестройке получаете очень функциональны дом при почти этих же размерах. Но там только одна сторона аж на 4м больше. Даже в 10х10 есть больше места для кладовок, но мне влазит только подобный моему. Посилання на коментар Поділитися на інших сайтах More sharing options...
vasso Опубліковано: 24 жовтня 2011 Поділитись Опубліковано: 24 жовтня 2011 Так участок у Вас уже имеется, выложите его план и куда дом будете садить... А то я когда понравившиеся проекты начал садить на участок ....бррр...все выбросил и заново перечертил все. Посилання на коментар Поділитися на інших сайтах More sharing options...
Studio Z500 Опубліковано: 24 жовтня 2011 Поділитись Опубліковано: 24 жовтня 2011 Добрый день! посмотрите ещё вот такие планировки: z500.com.ua/ru/project/Z12 z500.com.ua/ru/project/Z72 z500.com.ua/ru/project/Z78 z500.com.ua/ru/project/Z87 z500.com.ua/ru/project/Z136 z500.com.ua/ru/project/Z252 Желаю удачного выбора! Посилання на коментар Поділитися на інших сайтах More sharing options...
AndyAntonov Опубліковано: 24 жовтня 2011 Поділитись Опубліковано: 24 жовтня 2011 У человека дом 10*10 на участок не садится, а Вы предлагаете больше. Все, что характерно. Посилання на коментар Поділитися на інших сайтах More sharing options...
Studio Z500 Опубліковано: 24 жовтня 2011 Поділитись Опубліковано: 24 жовтня 2011 Вы правы. Не досмотрели пост Посилання на коментар Поділитися на інших сайтах More sharing options...
N.Lux Опубліковано: 25 жовтня 2011 Поділитись Опубліковано: 25 жовтня 2011 Это как. Поподробней. Нужна ли котельная отдельная, и какие требования для помещения донного(вашего, всевозможные варианты доработок) типа отопления Посилання на коментар Поділитися на інших сайтах More sharing options...
AMG72 Опубліковано: 31 жовтня 2011 Автор Поділитись Опубліковано: 31 жовтня 2011 Добрый день! посмотрите ещё вот такие планировки: z500.com.ua/ru/project/Z12 z500.com.ua/ru/project/Z72 z500.com.ua/ru/project/Z78 z500.com.ua/ru/project/Z87 z500.com.ua/ru/project/Z136 z500.com.ua/ru/project/Z252 Желаю удачного выбора! Спасибо. Z500 рассматривал. Даже было время всерьез останавливался на Z12. Дальше классические польские вытянутые проекты. Не имею ничего против, но мне больше по душе и по месту квадрат. И еще не люблю холлы. Это типа комната для дверей - бесполезная площадь. Посилання на коментар Поділитися на інших сайтах More sharing options...
AMG72 Опубліковано: 31 жовтня 2011 Автор Поділитись Опубліковано: 31 жовтня 2011 Нужна ли котельная отдельная, и какие требования для помещения донного(вашего, всевозможные варианты доработок) типа отопления Я же указывал. Газа нет и не предвидиться. Зачем еще котельная... Посилання на коментар Поділитися на інших сайтах More sharing options...
AMG72 Опубліковано: 31 жовтня 2011 Автор Поділитись Опубліковано: 31 жовтня 2011 Так участок у Вас уже имеется, выложите его план и куда дом будете садить... А то я когда понравившиеся проекты начал садить на участок ....бррр...все выбросил и заново перечертил все. Фото 1;2. Вот она площадь Фото 4;5. Бытовка в дальнейшем остается. Она же будет и кладовкой и мастерской. Фото 3. И огород, который мне не подвинуть. Посилання на коментар Поділитися на інших сайтах More sharing options...
AMG72 Опубліковано: 31 жовтня 2011 Автор Поділитись Опубліковано: 31 жовтня 2011 И схема в СкетчАп. Посилання на коментар Поділитися на інших сайтах More sharing options...
Archist Опубліковано: 31 жовтня 2011 Поділитись Опубліковано: 31 жовтня 2011 Самое простое и логичное - увеличить прихожую, сделав эркер (выступ) по форме нынешнего крыльца. За счет добавления площади можно устроить шкаф в прихожей и кладовочку при входе. 1 Посилання на коментар Поділитися на інших сайтах More sharing options...
AMG72 Опубліковано: 31 жовтня 2011 Автор Поділитись Опубліковано: 31 жовтня 2011 Самое простое и логичное - увеличить прихожую, сделав эркер (выступ) по форме нынешнего крыльца. За счет добавления площади можно устроить шкаф в прихожей и кладовочку при входе. Придется крышу ломать? А как прорисовывается в вашем видении изменение "помещений входа"? Посилання на коментар Поділитися на інших сайтах More sharing options...
vasso Опубліковано: 31 жовтня 2011 Поділитись Опубліковано: 31 жовтня 2011 И схема в СкетчАп. Ориентация по сторонам света выдержана? и откуда заезд? Посилання на коментар Поділитися на інших сайтах More sharing options...
ionico Опубліковано: 31 жовтня 2011 Поділитись Опубліковано: 31 жовтня 2011 Если крышу не ломать то, как вариант - увеличить габарит дома, отодвинув право внутреннюю стену, которая справа от прихожей и гостиной. Посилання на коментар Поділитися на інших сайтах More sharing options...
Archist Опубліковано: 1 листопада 2011 Поділитись Опубліковано: 1 листопада 2011 Придется крышу ломать? А как прорисовывается в вашем видении изменение "помещений входа"? Ничего ломать не надо, все уже изломано В плане как-то так: 1 Посилання на коментар Поділитися на інших сайтах More sharing options...
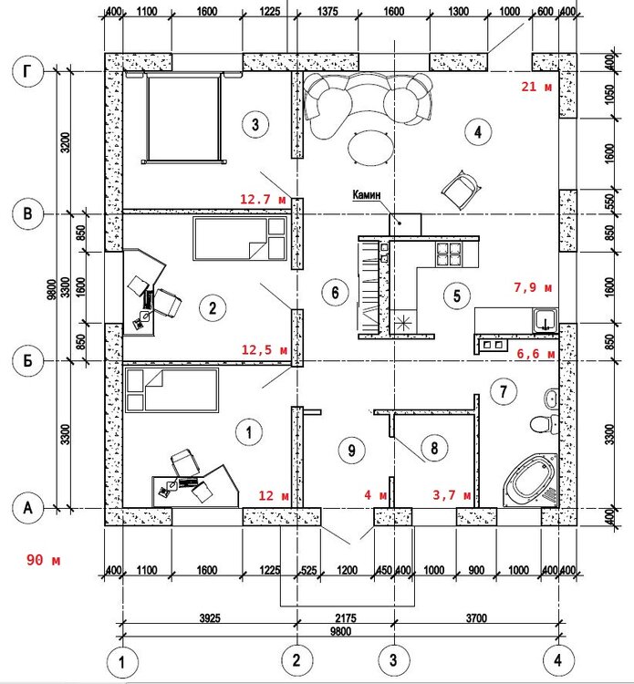
Федорович Опубліковано: 1 листопада 2011 Поділитись Опубліковано: 1 листопада 2011 А ну ка посмотрите этот известный проект. 9,8х9,8 один этаж..JPG (192.1 Кб) Посилання на коментар Поділитися на інших сайтах More sharing options...
Федорович Опубліковано: 1 листопада 2011 Поділитись Опубліковано: 1 листопада 2011 А вот еще один проект который вам по моему подойдет по размерам Dom.10.jpg (35.3 Кб) Посилання на коментар Поділитися на інших сайтах More sharing options...
Рекомендовані повідомлення
Створіть акаунт або увійдіть у нього для коментування
Ви маєте бути користувачем, щоб залишити коментар
Створити акаунт
Зареєструйтеся для отримання акаунта. Це просто!
Зареєструвати акаунтУвійти
Вже зареєстровані? Увійдіть тут.
Увійти зараз