Yaroslav N Опубліковано: 16 листопада 2011 Поділитись Опубліковано: 16 листопада 2011 Есть много упоминаний про термостаты, описано что они могут работать в системах отопления, охлаждения, вентиляции и т.д. В инструкции вроде все просто - подключить к котлу. Но у меня не совсем стандартная задача: автоматизация твердотопливного котла. А именно: когда котел топится тепло, потом жарко, потом холодно, даже теплоаккумулятор не помогает. Без автоматизации экономить и комфортно обслуживать не получится. Была идея использовать промышленный регулятор температуры и трехходовой клапан с сервоприводом 3-х точечным или аналоговым. Но в комплексе это дорого. Отсюда вопрос: могу ли я использовать термостат для управления питанием насоса и за счет этого температурой в доме? Я так понимаю, что термостат это просо реле вкл/выкл? Как его подключать - прошу обьяснить на пальцах. Термостаты я так понимаю меряют там где установлены? Датчик температуры в них? Подойдет ли мне этот: yourhome.honeywell.com/home/Products/Thermostats/7-Day-Programmable/RTH7500D.htm Буду благодарен за максимально подробный ответ. Посилання на коментар Поділитися на інших сайтах More sharing options...
Diver Опубліковано: 16 листопада 2011 Поділитись Опубліковано: 16 листопада 2011 и все же советую пару веток в этом разделе быстренько прочитать Посилання на коментар Поділитися на інших сайтах More sharing options...
Yaroslav N Опубліковано: 16 листопада 2011 Автор Поділитись Опубліковано: 16 листопада 2011 Пару веток читал, некоторые вещи понял, но однозночного ответа не нашел. Повсюду бегло упоминается и в совсем другом контексте. А поскольку раньше с этими приборами никогда не сталкивался - задаю такие глупые вопросы. Посилання на коментар Поділитися на інших сайтах More sharing options...
Diver Опубліковано: 16 листопада 2011 Поділитись Опубліковано: 16 листопада 2011 может вам стоит более подробно описать что у вас и сколкьо стоит и как это все смонтированно? может даже схему набросать. здесь есть спецы - подскажут что изменить. Посилання на коментар Поділитися на інших сайтах More sharing options...
VIESSMANN Опубліковано: 16 листопада 2011 Поділитись Опубліковано: 16 листопада 2011 Можно сделать так. Вроде бюджетно должно получиться.Отопление.pdf 1 Посилання на коментар Поділитися на інших сайтах More sharing options...
jack-zp Опубліковано: 16 листопада 2011 Поділитись Опубліковано: 16 листопада 2011 Отсюда вопрос: могу ли я использовать термостат для управления питанием насоса и за счет этого температурой в доме? Я так понимаю, что термостат это просо реле вкл/выкл? Как его подключать - прошу обьяснить на пальцах. Термостаты я так понимаю меряют там где установлены? Датчик температуры в них? В тех.характеристиках многих термостатов написано: " нагрузка омическая". Это значит что индуктивную нагрузку(двигатели насосов) подключать нельзя. Но если термостат на киловатт и более, то скорее всего проблем не будет, т.к. насос обычно не более 100 Ватт. Все зависит от ого какое реле на выходе термостата. При выключении индуктивной нагрузки возникают всплески напряжения, которые могут подпортить контакты реле или пробить выходной симистор. Датчик внутри термостата, хотя бывают и с выносными датчиками. 1 Посилання на коментар Поділитися на інших сайтах More sharing options...
ekoteplo Опубліковано: 16 листопада 2011 Поділитись Опубліковано: 16 листопада 2011 Можно сделать так. Вроде бюджетно должно получиться. Вам надо ставить вентиль на ветке с обратным клапаном, чтобы создать паразитное сопротивление, иначе Вы рискуете получить основной расход именно через эту ветку, независимо от положения двух-ходового вентиля, а в пределе - вообще полное отсутствие расхода через теплообменник котла. Мне кажется, первое, что нужно сделать ТС - это просто описать\нарисовать свою систему. Без этого все будет напоминать лечение больного по фотографии. Посилання на коментар Поділитися на інших сайтах More sharing options...
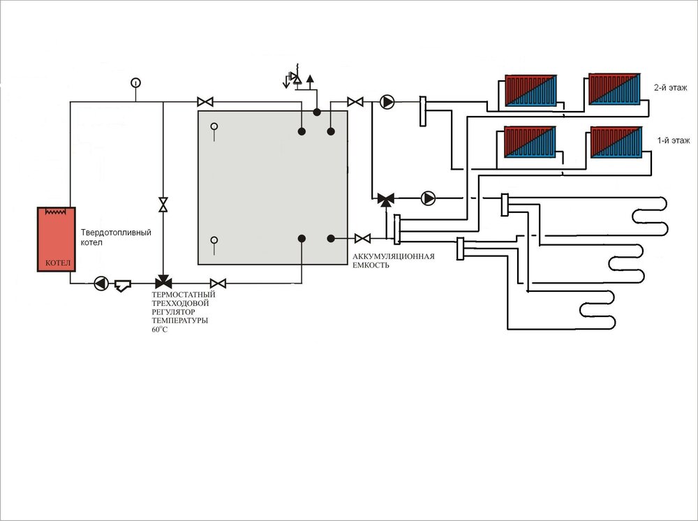
Yaroslav N Опубліковано: 17 листопада 2011 Автор Поділитись Опубліковано: 17 листопада 2011 Схему вот выложил. На первый и второй этаж мне хватит одного регулятора температуры, на теплый пол буду думать потом. По сути сейчас основной вопрос: как подключить термостат к насосу? П.С.Система закрытая, расширительный бак не показал. Посилання на коментар Поділитися на інших сайтах More sharing options...
Diver Опубліковано: 17 листопада 2011 Поділитись Опубліковано: 17 листопада 2011 Схему вот выложил. На первый и второй этаж мне хватит одного регулятора температуры, на теплый пол буду думать потом. По сути сейчас основной вопрос: как подключить термостат к насосу? может даже не 1 насос... а как котел жарит? все время 100% мощности? Посилання на коментар Поділитися на інших сайтах More sharing options...
Yaroslav N Опубліковано: 17 листопада 2011 Автор Поділитись Опубліковано: 17 листопада 2011 (змінено) Еще раз спасибо jack-zp за то, что ткнул носом куда надо смотреть. Нашел вот описание того, что меня интересует с указанием возможности подключить индуктивную нагрузку www.honeywell-ec.ru/item/442/ Сам же хочу заказать с Amazon.com вот такой (ссылка устарела) Они там дешевле. Надо только убедиться что именно к нему можно подключить насос и температуру выставить в градусах Цельсия, а не Фаренгейтах ))) Котел стараюсь включать на всю - тогда КПД больше и идет самоочистка (иначе много сажи тягучей даже при поддержании гарячей обратки). Горение поддерживаю не все время, периодически работает от ТА. А вообще систему только обкатываю ибо недавно с отцом ее только собрали. На градусы Цельсия можно переключить... ищу дальше. Змінено 17 листопада 2011 користувачем Yaroslav N Посилання на коментар Поділитися на інших сайтах More sharing options...
Diver Опубліковано: 17 листопада 2011 Поділитись Опубліковано: 17 листопада 2011 (змінено) Сам же хочу заказать с Amazon.com вот такой (ссылка устарела) так любой, даже механический справится с такой задачей Котел стараюсь включать на всю - тогда КПД больше и идет самоочистка (иначе много сажи тягучей даже при поддержании гарячей обратки). Горение поддерживаю не все время, периодически работает от ТА. А вообще систему только обкатываю ибо недавно с отцом ее только собрали. хм... так помоему здесь и загвоздка.. темпло нужно попусту сбрасывать куда то... газовый котел можно выключить а ваш котел именно жарит...... Змінено 17 листопада 2011 користувачем Diver Посилання на коментар Поділитися на інших сайтах More sharing options...
#chack# Опубліковано: 17 листопада 2011 Поділитись Опубліковано: 17 листопада 2011 Они там дешевле. На и-бее тож хватает их. Есть и недорогие. www.ebay.com/sch/i.html?_nkw=7-Day%20Programmable%20Thermostat&rt=nc&LH_PrefLoc=2&_fln=1&_trksid=p3286.c0.m283 На цельсий переключаются все. Насос тож потянут практически все. Вот, к примеру. Посилання на коментар Поділитися на інших сайтах More sharing options...
Теплотехник Опубліковано: 17 листопада 2011 Поділитись Опубліковано: 17 листопада 2011 Схему вот выложил. На первый и второй этаж мне хватит одного регулятора температуры, на теплый пол буду думать потом. По сути сейчас основной вопрос: как подключить термостат к насосу? П.С.Система закрытая, расширительный бак не показал. Может есть смысл поставить двухходовые клапаны поэтажно на радиаторы... Будет комфортней... А сколько ТП на этажах? Если много, то ТП будет держать какую то константу, а радиаторы догревать до заданной температуры по термостатам... Посилання на коментар Поділитися на інших сайтах More sharing options...
Yaroslav N Опубліковано: 17 листопада 2011 Автор Поділитись Опубліковано: 17 листопада 2011 Всем спасибо за советы. ТТ котлу лучше работать на максимуме, а избыточное тепло аккумулируется в теплоаккумуляторе. Когда ТА загружен (прогрет весь обьем воды) котел сам тухнет за счет регулятора тяги. Моя проблема в том, что независимо от того надо мне или нет самая горячая вода (из верха ТА) уходит в систему. Это приводит к перегреву дома и не оптимальному режиму загрузки ТА. При тех элементах системы, которые уже имеются, по моему, проще всего будет использовать термостат и отключать насос. Теплые полы я делал, чтобы полностью использовать тепло из теплоаккумулятора. Когда ТА остывает до 40 град. батареи уже эффективно греть не будут, но у меня остается запас в 550л воды, которую можно эффективно пустить в пол. Относительно ТП говорю пока теоретически ибо они пока не запущены. Жду пока полностью просохнут после заливки. Еще одной причиной появления ТП является отсутствие перегородок между первым и вторым этажом. С батарей первого этажа тепло все равно уходит на второй этаж. Всего у меня 3 контура ТП. Греть они будут зал из которого идет лестница на второй этаж и прихожую. В использовании термостатических клапанов на радиаторах есть смысл но, с учетом особенностей системы, может наступить момент, когда они все закроются. Тогда надо оставлять конечные батареи всегда открытыми для циркуляции воды в системе или закольцевать подачу собраткой. Еще один нюанс: батареи брались с запасом, поэтому во избежание перегрева отоплением лучше управлять по температуре воздуха, а не теплоносителя. Вообще у меня назревает идея организовать полностью весь процесс на плк микрол и добавить пару элементов.. Тогда я смогу управлять всеми процессами слаженно. Я не специалист в сфере отопления, поэтому если где ошибаюсь с выводами - поправьте. Посилання на коментар Поділитися на інших сайтах More sharing options...
Слободарий Опубліковано: 18 листопада 2011 Поділитись Опубліковано: 18 листопада 2011 Всем спасибо за советы. Когда ТА загружен (прогрет весь обьем воды) котел сам тухнет за счет регулятора тяги. Моя проблема в том, что независимо от того надо мне или нет самая горячая вода (из верха ТА) уходит в систему. Это приводит к перегреву дома и не оптимальному режиму загрузки ТА. При тех элементах системы, которые уже имеются, по моему, проще всего будет использовать термостат и отключать насос. Если Вы хотите регулировать температуру всей воды в системе, то между ТА и радиаторами ставится термостатический клапан, который будет подмешивать холодную воду к горячей из верха ТА. Посилання на коментар Поділитися на інших сайтах More sharing options...
Yaroslav N Опубліковано: 18 листопада 2011 Автор Поділитись Опубліковано: 18 листопада 2011 Спасибо. Устанока термостатического смесителя поможет выровнять температуру в системе, но не позволит регулировать температуру воздуха в доме. Я над этим уже думал. Для себя я определился, что мне нужен хронотермостат. В рабочие дни с 7:00 до 19:00 никого нет дома, можно понижать температуру и экономить. А с клапаном определюсь, когда изучу динамику системы. Посилання на коментар Поділитися на інших сайтах More sharing options...
Diver Опубліковано: 18 листопада 2011 Поділитись Опубліковано: 18 листопада 2011 а не может так быть, что ваш котел просто избыточем по мощности, и реально вам нужно было поставить его ну скажем в 2 раза меньшей мощности? Посилання на коментар Поділитися на інших сайтах More sharing options...
Yaroslav N Опубліковано: 18 листопада 2011 Автор Поділитись Опубліковано: 18 листопада 2011 Отапливаемая площадь дома 140 кв.м. плюс котельная в подвале 15 м2. Мощность котла 20 кВт. Потери выше среднего - дом не закончен. Но вся система сейчас управляется вручную краниками. Отсюда и все проблемы. Благодаря Вашим советам вижу пару вариантов доработки. Я их обдумаю и выложу на суд публики. Спасибо. Посилання на коментар Поділитися на інших сайтах More sharing options...
Diver Опубліковано: 21 листопада 2011 Поділитись Опубліковано: 21 листопада 2011 тогда вам может понадобится автомат - котрый заменит краники в системе есть такие модули: на входе датчики Т, а выходы делают вкл выкл в зависимости от настроек на датчиках.. Посилання на коментар Поділитися на інших сайтах More sharing options...
Yaroslav N Опубліковано: 1 грудня 2011 Автор Поділитись Опубліковано: 1 грудня 2011 2 комнатных недельных термостата ко мне уже едут. А я дальше ищу пути автоматизации котла. Задача: выключение насоса на обратке, когда котел потух (схема прилагается). Необходимо включать насос, когда температура больше 65С и выключать когда меньше. Нашел накладной термостат, но не пойму что означает "Дифференциал: <6+-2С". (ссылка устарела) Есть подозрение, что при 62С размыкается один контакт, а при 68 замыкается другой. Обьясните пожалуйста. Посилання на коментар Поділитися на інших сайтах More sharing options...
Diver Опубліковано: 1 грудня 2011 Поділитись Опубліковано: 1 грудня 2011 какие термостаты выбрали? хочу тут партию недельных заказать.... Посилання на коментар Поділитися на інших сайтах More sharing options...
Сергей_84 Опубліковано: 1 грудня 2011 Поділитись Опубліковано: 1 грудня 2011 2 комнатных недельных термостата ко мне уже едут. А я дальше ищу пути автоматизации котла. Задача: выключение насоса на обратке, когда котел потух (схема прилагается). Необходимо включать насос, когда температура больше 65С и выключать когда меньше. Нашел накладной термостат, но не пойму что означает "Дифференциал: <6+-2С". (ссылка устарела) Есть подозрение, что при 62С размыкается один контакт, а при 68 замыкается другой. Обьясните пожалуйста. советую вешать термостат не на трубу теплоносителя, а на трубу дымохода, но термостат нужно брать до 300 гр... и выставлять на нем температуру окло 100....Тоесть насосо включится только когда дымоход прогреется до 100 и выключится когда дымоход остынет... 1 Посилання на коментар Поділитися на інших сайтах More sharing options...
Кротик158 Опубліковано: 1 грудня 2011 Поділитись Опубліковано: 1 грудня 2011 Дифференциал 6 градусов это хорошо. Защита от тактования. Если насос включится например при 76 градусах то выключится при 70. И опять включится только при 76. 1 Посилання на коментар Поділитися на інших сайтах More sharing options...
Diver Опубліковано: 1 грудня 2011 Поділитись Опубліковано: 1 грудня 2011 Если кому нужно - можно делать электронные термостаты с реле, с указанными точками вкл выкл.. 70х76, 60х70, 50х65 и т.д... любые/ Точность 1С. точки зашиваются в датчик программатором. 1 Посилання на коментар Поділитися на інших сайтах More sharing options...
Yaroslav N Опубліковано: 1 грудня 2011 Автор Поділитись Опубліковано: 1 грудня 2011 Термостаты заказал такие: yourhome.honeywell.com/home/Products/Thermostats/7-Day-Programmable/TL8100.htm У них тут были и немного интереснее, но в этом в схеме подключения конкретно был указан вариант с насосом. Идея с термостатом на дымоход интересная. Таких не встречал. Можете дать ссылку на конкретное изделие? Хотя, думаю это можно реализовать на регуляторе температуры ОВЕН, но цену надо уточнять. 2Diver: можно подробнее, и какая будет цена? Посилання на коментар Поділитися на інших сайтах More sharing options...
Рекомендовані повідомлення
Створіть акаунт або увійдіть у нього для коментування
Ви маєте бути користувачем, щоб залишити коментар
Створити акаунт
Зареєструйтеся для отримання акаунта. Це просто!
Зареєструвати акаунтУвійти
Вже зареєстровані? Увійдіть тут.
Увійти зараз