VW2010 Опубліковано: 13 грудня 2011 Поділитись Опубліковано: 13 грудня 2011 Приветствую. Есть поэтажные планы будущего дома с местами заложения дымоходов и вентканалов. Пока не началась стройка, хотелось бы спланировать естественную вентиляцию в будущем доме. Я так понимаю, что вентканалы будут ипользоваться как вытяжки, не только для кухни и санузлов, но и для спальных комнат и гардеробной. У меня вопрос. Нужно ли закладывать отверстия в стенах для всех помещений для притока воздуха с помощью приточных устройств или стеновых проветривателей? Если нужно, то в каких помещениях и где именно их распологать. Может другие варианты. Посилання на коментар Поділитися на інших сайтах More sharing options...
Владимир Влох Опубліковано: 13 грудня 2011 Поділитись Опубліковано: 13 грудня 2011 Короткий ответ - под всеми окнами по одному отверстию рядом с радиатором диаметром 100 - более чем достаточно. 1 Посилання на коментар Поділитися на інших сайтах More sharing options...
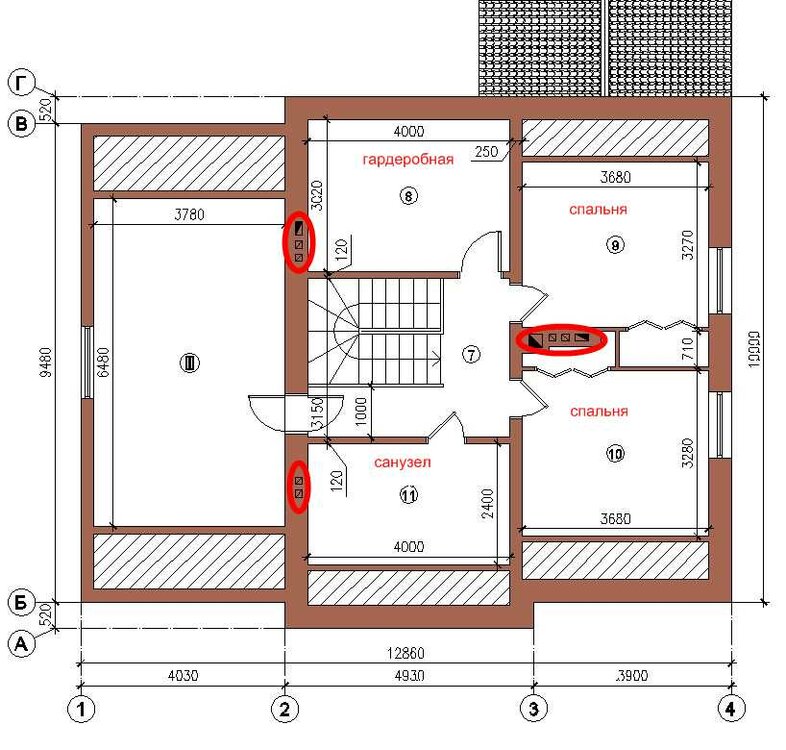
VW2010 Опубліковано: 14 грудня 2011 Автор Поділитись Опубліковано: 14 грудня 2011 Второй этаж мансарда. Можно сделать отверстия для притока воздуха не в фронтоне, а в стенке между комнатами и пространсвом под скатами крыши (на вложении отмечены кругами) или нет? Это пространство тоже будит вентелироваться с помощью аэраторов или других девайсов. Надеюсь понятно объяснил. Посилання на коментар Поділитися на інших сайтах More sharing options...
GreaterGTR Опубліковано: 14 грудня 2011 Поділитись Опубліковано: 14 грудня 2011 Второй этаж мансарда. Можно сделать отверстия для притока воздуха Короткий ответ - под всеми окнами по одному отверстию рядом с радиатором диаметром 100 - более чем достаточно. Ну вы нормальный человек,вам советуют поделать дыры во всём доме под окнами и под радиаторами и можно зимой в комнатах залить ледовый каток и заниматся фигурным катанием, то на первом этаже то на втором для разнообразия. И вы ему за это спасибо сказали Посилання на коментар Поділитися на інших сайтах More sharing options...
allremont Опубліковано: 15 грудня 2011 Поділитись Опубліковано: 15 грудня 2011 Ну вы нормальный человек,вам советуют поделать дыры во всём доме под окнами и под радиаторами и можно зимой в комнатах залить ледовый каток и заниматся фигурным катанием, то на первом этаже то на втором для разнообразия. И вы ему за это спасибо сказали По доктору Комаровскому оптимальная температура в доме должна быть 19-20 градусов. А например на зиму окна(деревянные) не заклеваю- со стенами все нормально, а тот кто дома зализывает и зашпаклевывает все на стенах появляется грибок темно-серого цвета 1 Посилання на коментар Поділитися на інших сайтах More sharing options...
SON Опубліковано: 15 грудня 2011 Поділитись Опубліковано: 15 грудня 2011 Нужно ли закладывать отверстия в стенах для всех помещений для притока воздуха с помощью приточных устройств или стеновых проветривателей? Если нужно, то в каких помещениях и где именно их распологать. Может другие варианты. Нужно, подобные вопросы терли уже не раз, причем совсем недавно, пройдитесь по разделу. Приток в "чистые", вытяжка из "грязных". Гуглите КИВ, Аэреко, выбираете, что больше по душе и карману. Если будет камин, подумайте про отдельный приток для него. В стене возле камина зачем 2 дымохода? 1 Посилання на коментар Поділитися на інших сайтах More sharing options...
VW2010 Опубліковано: 15 грудня 2011 Автор Поділитись Опубліковано: 15 грудня 2011 Нужно, подобные вопросы терли уже не раз, причем совсем недавно, пройдитесь по разделу. Приток в "чистые", вытяжка из "грязных". Гуглите КИВ, Аэреко, выбираете, что больше по душе и карману. Если будет камин, подумайте про отдельный приток для него. В стене возле камина зачем 2 дымохода? Второй дымоход, наверное, для газового котла, который планировалось розместить на кухни. Потом было решино газовый котёл поставить в котельной рядом с ТТ котлрм. И так он осталяс на плане. По поводу притока для камина читал, что его можно розместить рядом с дымоходом камина, но ниже чем сам дымоход. Может что напутал. Посилання на коментар Поділитися на інших сайтах More sharing options...
SON Опубліковано: 15 грудня 2011 Поділитись Опубліковано: 15 грудня 2011 По поводу притока для камина читал, что его можно розместить рядом с дымоходом камина, но ниже чем сам дымоход. Может что напутал. Приточный воздух для камина берется с улицы, и подводится непосредственно к самому камину (обычно под полом). На этом воздуховоде как правило ставится какая-либо задвижка (шибер), чтоб можно было перекрывать на время бездействия камина, дабы не выхолаживать помещение. 1 Посилання на коментар Поділитися на інших сайтах More sharing options...
madfatcat Опубліковано: 22 грудня 2011 Поділитись Опубліковано: 22 грудня 2011 Короткий ответ - под всеми окнами по одному отверстию рядом с радиатором диаметром 100 - более чем достаточно. Сквозные отверстия под каждым окном диаметром с канализационную трубу? Возможно, Вы где-то увидели снаружи под окнами такие блямбы круглые и подумали, что это дыры для приточной вентиляции? Так это выводы для газовых конвекторов, они туда чадят. ) Может я не совсем понял совет, тогда извините. Посилання на коментар Поділитися на інших сайтах More sharing options...
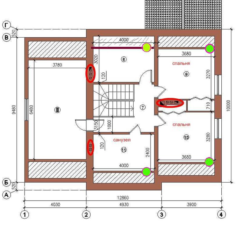
VW2010 Опубліковано: 23 грудня 2011 Автор Поділитись Опубліковано: 23 грудня 2011 Сквозные отверстия под каждым окном диаметром с канализационную трубу? Возможно, Вы где-то увидели снаружи под окнами такие блямбы круглые и подумали, что это дыры для приточной вентиляции? Так это выводы для газовых конвекторов, они туда чадят. ) Может я не совсем понял совет, тогда извините. Я так понял, что речь шла о Клапане инфильтрации воздуха (КИВ-125) или рекуператоре "Прана" или ещё похожему девайсу. Но они ставятся не под окном, а в верхней трети, в стороне от окна. С улицы вывглядят примерно так 1 Посилання на коментар Поділитися на інших сайтах More sharing options...
Егорыч1 Опубліковано: 24 січня 2012 Поділитись Опубліковано: 24 січня 2012 если актуально могу предложить интересный вариант "Стеновой приточный клапан ДОМВЕНТ". Ставится под окном, при этом воздух входяший с улицы нагревается сразу от работающей батарее отопления. Вот ссылка:ael-group.prom.ua/product_list/group_960144 Посилання на коментар Поділитися на інших сайтах More sharing options...
Mentor Опубліковано: 24 січня 2012 Поділитись Опубліковано: 24 січня 2012 650 грн!!!! За что!!! Посилання на коментар Поділитися на інших сайтах More sharing options...
Егорыч1 Опубліковано: 25 січня 2012 Поділитись Опубліковано: 25 січня 2012 650 грн!!!! За что!!! Вероятно вы имели ввиду что Домвент не выглядит на такую сумму? Возможно и так. Но он является одним из эффективных решений проблемы. И 650 гривен это оплата именно за то самое решение проблемы, за комфорт и удобство. Посилання на коментар Поділитися на інших сайтах More sharing options...
БетС Опубліковано: 3 лютого 2012 Поділитись Опубліковано: 3 лютого 2012 Спасибо почитал посмотрел а где можно отзывы еще почитать? Как то просто все выглядит. Посилання на коментар Поділитися на інших сайтах More sharing options...
Егорыч1 Опубліковано: 6 лютого 2012 Поділитись Опубліковано: 6 лютого 2012 Спасибо почитал посмотрел а где можно отзывы еще почитать? Как то просто все выглядит. С отзывами можно ознакомиться на сайте производителя: domvent.com А по по поводу простого внешнего вида: не всегда для достижения нужного результата необходимо что то громоздкое с проводками датчиками и т.д. Ведь в наших условиях(имеется ввиду наши дома советской постройки) эти проблемы решали просто неплотности в окнах(а они тоже как то просто выглядели), хотя этого конечно было навалом и бесплатно Посилання на коментар Поділитися на інших сайтах More sharing options...
Zurbagan Опубліковано: 6 лютого 2012 Поділитись Опубліковано: 6 лютого 2012 если актуально могу предложить интересный вариант "Стеновой приточный клапан ДОМВЕНТ". Ставится под окном, при этом воздух входяший с улицы нагревается сразу от работающей батарее отопления. Вот ссылка:ael-group.prom.ua/product_list/group_960144 Гениально!!! Уже хочу себе такую штуку. Вот только за 650грн не нашел - только по 521,55 Чем они отличаются? Посилання на коментар Поділитися на інших сайтах More sharing options...
Рекомендовані повідомлення
Створіть акаунт або увійдіть у нього для коментування
Ви маєте бути користувачем, щоб залишити коментар
Створити акаунт
Зареєструйтеся для отримання акаунта. Це просто!
Зареєструвати акаунтУвійти
Вже зареєстровані? Увійдіть тут.
Увійти зараз