Перейти до публікації
Пошук в
  • Додатково...
Шукати результати, які містять...
Шукати результати в...

Отопление, водоснабжение, канализация, котельные. Расчёт и монтаж от Korni

Korni

Была ли Вам полезна информация в этой теме?  

449 користувачів проголосувало

У вас немає прав на голосування в цьому опитуванні, або на перегляд результатів опитування. Будь ласка, войдите или зареєструйтеся для голосування в опитуванні.

Рекомендовані повідомлення

Напор в большинстве частных домов не нужен высокий. Объем перекачиваемой - низкий.

Соответственно, эти параметры -вторичны.

 

Я бы рекомендовал смотреть на надежность производителя и дополнительные комплектации для комфорта и экономичности работы.

 

А зачем? Не будете летом использовать горчую воду?

летом жарко, очень жарко и не хочется чтобы было еще жарче чем очень. Щаз скажуть ставь кондей и будет тебе счастье.:) а зачем сначала тратитсья на нагрев а потом с ним бороться.

 

А какая нужна производительность насоса?

Посилання на коментар
Поділитися на інших сайтах

]

........ Щаз скажуть ставь кондей и будет тебе счастье.:) а зачем сначала тратитсья на нагрев а потом с ним бороться...

 

Чтобы не было жарко, ПС оборудуются термовентилями. А предназначение рециркуляции - вовсе не отопление. Эту дополнительную линию вообще можно сделать без ПС.... просто через соединение (тройниковое) с основной подачей ГВС в дальней точке.

.А какая нужна производительность насоса?

gr_115.gif

  • Лайк 1
Посилання на коментар
Поділитися на інших сайтах

]

 

Чтобы не было жарко, ПС оборудуются термовентилями. А предназначение рециркуляции - вовсе не отопление. Эту дополнительную линию вообще можно сделать без ПС.... просто через соединение (тройниковое) с основной подачей ГВС в дальней точке.

 

А не проще ли дать перемычку перед отсекающими вентилями на ПС?

Посилання на коментар
Поділитися на інших сайтах

А не проще ли дать перемычку перед отсекающими вентилями на ПС?

:) Именно с помощью тройникового соединения, о котором говорил выше, это и делается.

 

Я перемычки не делаю, обычно. Трудно предусмотреть затекание в ПС, надо диметр заужать как минимум.

"Проще" выставить на термовентиле минимальный проток на лето.

Посилання на коментар
Поділитися на інших сайтах

:) Именно с помощью тройникового соединения, о котором говорил выше, это и делается.

 

Я перемычки не делаю, обычно. Трудно предусмотреть затекание в ПС, надо диметр заужать как минимум.

"Проще" выставить на термовентиле минимальный проток на лето.

 

Korni, спасибо. Соглашусь, перемычка не выход. Если вся линия 0,5" то перемычка должна быть меньше. А при закрытых вентилях изменится давление в большую сторону а поток в меньшую. К примеру давление 7 кПа-0,14 л/с, а при 9 кПа-0,05 л/с

Я правильно понял что тройники ставятся идин на нагнетающую линию а второй на возвратку?

Посилання на коментар
Поділитися на інших сайтах

...Я правильно понял что тройники ставятся идин на нагнетающую линию а второй на возвратку?

Да. Правильно.

baypass_01.thumb.jpg.50c9a0ea754a41cb340b50cea2d80f7f.jpg

  • Лайк 1
Посилання на коментар
Поділитися на інших сайтах

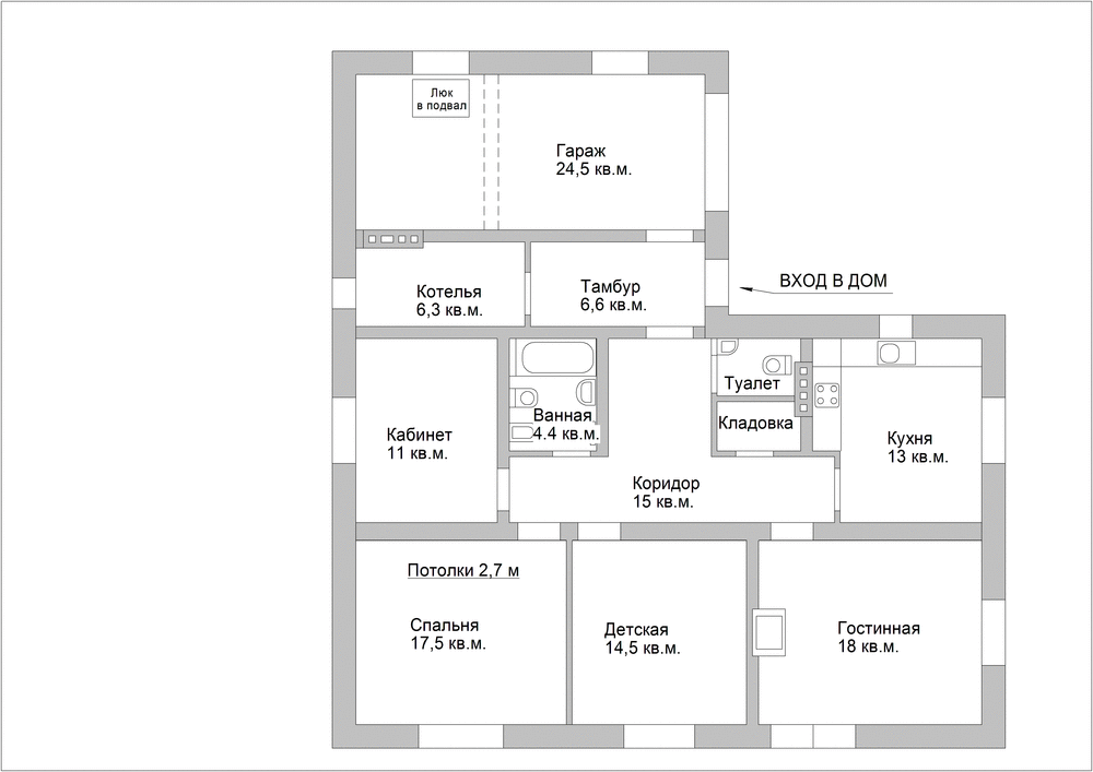
Александр подскажите.

Ввод в дом труба 20( . такой вход с магистрали.

Как правильно поставить расширительный бак что бы создать нужное давление в системе?

Со временем думаю сделать скважину.

Какие закладные поставить в котельной?

Посилання на коментар
Поділитися на інших сайтах

Здравствуйте.

Я в отпуске, буду писаТь и отвечать на форуме после 4-го числа.

 

Александр.

Посилання на коментар
Поділитися на інших сайтах

Тогда если позволите стану в очередь :).

 

Интересует схема СО частного дома.

 

Хочу сделать ГСО + насос (на всякий случай) для радиаторов отопления. В комнатах где паркет будут радиаторы.

Там где плитка - ТП (прихожая, туалет ванная, кухня).

 

Проблема в том, что по горизонтали длина трассы 30-31м.п. Если разделить на два контура получится две ветки по 20-22 м.п.-перерасход трубы. Вот на счет диаметров труб для меня вообще темный лес. Схема со встречным движением теплонасителя, если с попутным то обратка получается под 40 м.п.

 

По ТП получается 3 контура, труба МП. От котла труба 20мм или 26мм в коридор и там из распред. ящика расходится 3 контура 16мм.

 

Котел хотелось бы со встроенным бойлером на 60-120 литров, при этом применить программатор, но при моих запросах мне кажется такое невозможно (программатор + ГСО)???

Что посоветуете по схеме и котлу?

174315894_1(1).thumb.gif.09aefd3eb59474d7c7038ad960e207c3.gif

131394289_1(2).thumb.gif.30f83d15235351e21a51f75742232bbc.gif

565617063_.jpg.ba1b32bc54aaad74686cc6572e52c2f0.jpg

Посилання на коментар
Поділитися на інших сайтах

Как правильно поставить расширительный бак что бы создать нужное давление в системе?

Давление создаёт не бак. А насос.

Бак поддерживает давление в определённом диапазоне и уменьшает количество ВКЛ/ВЫКЛ насоса. Что положительно сказывается на его сроке службы.

 

При вводе "с магистрали", т.е. центральное водоснабжение, смысла ставить расширительный бак-акуммулятор не вижу вообще.

Со временем думаю сделать скважину.

Какие закладные поставить в котельной?

Не очень понимаю, под что закладные. Вода? Электричество для насоса? Канализация? Наружное освещение и сигнализация? Какой будет угол и где место ввода воды (стена, пол, фундамент)?

 

Я, закладывая в фундаменте, ставлю гильзу из канализационной трубы 110мм, в которую потом можно пропихнуть пару водопроводных труб DN25-32 и электротрубу. Соединительные угловые отводы очень плавно должны быть устроены при этом.

  • Лайк 1
Посилання на коментар
Поділитися на інших сайтах

....Интересует схема СО частного дома.

 

Хочу сделать ГСО + насос (на всякий случай) для радиаторов отопления. .....

Что посоветуете по схеме и котлу?

 

Посоветовал бы забиыть о ГСО. Надёжно, но в сегодняшних реалиях важнее термин "экономично". ГСО таковой не является, по моему мнению.

 

А ТП без насосов вообще работать не будет. Хотя можно попробовать организовать по принципу гипокауста или корейской ондоли (навсякийслучайэтошутка)

 

Хотя.... ниже фото ГСО для отапливаемой площади в 240 м.кв.

Попутка, естественно, наиболее инженерно логична.

 

P3259116.JPG P4051473.JPG

P3259104.JPG P3259090.JPG

 

 

 

Фотоальбом Медь - СО с ЕЦ (гравитационка)

Давление создаёт не бак. А насос.

Бак поддерживает давление в определённом диапазоне и уменьшает количество ВКЛ/ВЫКЛ насоса. Что положительно сказывается на его сроке службы.

При вводе "с магистрали", т.е. центральное водоснабжение, смысла ставить расширительный бак-акуммулятор не вижу вообще.

Значит труба 20 заходит в котельную и там ставить насос до котла или после?

и всю последующую разводку уже делать тем размером который нужен.

 

Не очень понимаю, под что закладные. Вода? Электричество для насоса? Канализация? Наружное освещение и сигнализация? Какой будет угол и где место ввода воды (стена, пол, фундамент)?

 

Я, закладывая в фундаменте, ставлю гильзу из канализационной трубы 110мм, в которую потом можно пропихнуть пару водопроводных труб DN25-32 и электротрубу. Соединительные угловые отводы очень плавно должны быть устроены при этом.

Закладная для прохода трубы холодной воды со скваженны.

Да и вообще лучше подьехать к вам кофе попить.:drinks:

Посилання на коментар
Поділитися на інших сайтах

Ну а такой вариант, все на насосах- радиаторы и ТП.

1. Коллектор в ванной.

2. Не знаю какое сечение медных труб для радиаторов?

3. В ванной делать один коллектор или разные для радиаторов и ТП?

4. Какой котел посоветуете со встроенным бойлером 60-120л? или отдельно, но это будет значительно дороже???

5. Разбивка ТП на 3 контура правильная?

6. В будущем хочу обустроить мансарду, для этого сразу возле котла сделать разделение на 1-й и 2-й этажи?

6. Может еще что-то посоветуете :)

287446997_2(1).thumb.gif.0ef7749885f475b7e0f8100a5004854d.gif

1272304294_2(2).thumb.gif.af4502c4e994543d201f34e55ef6ded7.gif

Посилання на коментар
Поділитися на інших сайтах

Значит труба 20 заходит в котельную и там ставить насос до котла или после?

Какой насос при центральном водоснабжении?

Да и вообще лучше подьехать к вам кофе попить.

Ну-у, телефон в подписи.

Посилання на коментар
Поділитися на інших сайтах

Ну а такой вариант, все на насосах- радиаторы и ТП.

Понимаете, как-то гадательно о непоследовательно....

А вариант на насосах - самый популярный и экономичный.

1. Коллектор в ванной.

Возможно вполне

2. Не знаю какое сечение медных труб для радиаторов?

Расчётное. Не поверите, но для подводки к радиатору (от магистрали или коллектора) хватит диаметра в 10мм в большинстве случаев.

Но заказчик не верит ;)

3. В ванной делать один коллектор или разные для радиаторов и ТП?

Разные. Радиаторы и ТП имеют разную температуру теплоносителя.

4. Какой котел посоветуете со встроенным бойлером 60-120л? или отдельно, но это будет значительно дороже???

"Отдельно". Предпочитаю рекомендовать немцев - Вайллант или Будерус. Хотя многое зависит от сервиса в Вашем регионе.

5. Разбивка ТП на 3 контура правильная?

Да, получается три контура. Но разбивка на рисунке неправильная.

6. В будущем хочу обустроить мансарду, для этого сразу возле котла сделать разделение на 1-й и 2-й этажи?

А "второй этаж" и "мансарда" - это одно и то же в Вашей трактовке? Или разное?

6. Может еще что-то посоветуете

Найти того человека, который будет нести ответственность за проектирование и монтаж.

Посилання на коментар
Поділитися на інших сайтах

2. А диаметр трубы от котла до коллектора и от коллектора магистральная труба на 2 радиатора

 

5. А как правильно/что не правильно в контурах ТП?

 

6. Мансарда и 2-й этаж- я имел ввиду одно и то же :).

 

7.Конкретную модель котла посоветуйте (есть загильзованный дымоход 130 мм, высотой 7 м), со встроенным/отдельным бойлером.

Посилання на коментар
Поділитися на інших сайтах

Какой насос при центральном водоснабжении?

 

Ну-у, телефон в подписи.

 

Лучше подъехать!

наберу ближе к пятнице.

Посилання на коментар
Поділитися на інших сайтах

.....2. А диаметр трубы от котла до коллектора и от коллектора магистральная труба на 2 радиатора......

Ответ по-быстрому: DN12 или DN15.

 

Под спойлером - по-правильному

[spoiler=Определяется необходимым тепловым потоком (теплоотдача радиатора) и скоростью движения теплоносителя >> пару примеров ниже под спойлером]%25D0%2597%25D0%25BD%25D0%25B0%25D1%2587%25D0%25B5%25D0%25BD%25D0%25B8%25D1%258F%2520%25D1%2582%25D0%25B5%25D0%25BF%25D0%25BB%25D0%25BE%25D0%25B2%25D0%25BE%25D0%25B9%2520%25D0%25BD%25D0%25B0%25D0%25B3%25D1%2580%25D1%2583%25D0%25B7%25D0%25BA%25D0%25B8%2520%25D0%25B4%25D0%25BB%25D1%258F%2520%25D1%2580%25D0%25B0%25D0%25B7%25D0%25BB%25D0%25B8%25D1%2587%25D0%25BD%25D1%258B%25D1%2585%2520%25D0%25B4%25D0%25B8%25D0%25B0%25D0%25BC%25D0%25B5%25D1%2582%25D1%2580%25D0%25BE%25D0%25B2%2520%25D1%2582%25D1%2580%25D1%2583%25D0%25B1%2520PEX.jpg

 

Определение внутреннего диаметра трубопроводов системы отопления

 

%25D0%259E%25D0%25BF%25D1%2580%25D0%25B5%25D0%25B4%25D0%25B5%25D0%25BB%25D0%25B5%25D0%25BD%25D0%25B8%25D0%25B5%2520%25D0%25B2%25D0%25BD%25D1%2583%25D1%2582%25D1%2580%25D0%25B5%25D0%25BD%25D0%25BD%25D0%25B5%25D0%25B3%25D0%25BE%2520%25D0%25B4%25D0%25B8%25D0%25B0%25D0%25BC%25D0%25B5%25D1%2582%25D1%2580%25D0%25B0%2520%25D1%2582%25D1%2580%25D1%2583%25D0%25B1%25D0%25BE%25D0%25BF%25D1%2580%25D0%25BE%25D0%25B2%25D0%25BE%25D0%25B4%25D0%25BE%25D0%25B2%2520%25D1%2581%25D0%25B8%25D1%2581%25D1%2582%25D0%25B5%25D0%25BC%25D1%258B%2520%25D0%25BE%25D1%2582%25D0%25BE%25D0%25BF%25D0%25BB%25D0%25B5%25D0%25BD%25D0%25B8%25D1%258F.jpg

 

Расчётная таблица для медных труб:

 

%25D0%259D%25D0%25BE%25D0%25BC%25D0%25BE%25D0%25B3%25D1%2580%25D0%25B0%25D0%25BC%25D0%25BC%25D0%25B0_%25D0%25B4%25D0%25BB%25D1%258F_%25D0%25B3%25D0%25B8%25D0%25B4%25D1%2580%25D0%25B0%25D0%25B2%25D0%25BB%25D0%25B8%25D1%2587%25D0%25B5%25D1%2581%25D0%25BA%25D0%25BE%25D0%25B3%25D0%25BE_%25D1%2580%25D0%25B0%25D1%2581%25D1%2587%25D0%25B5%25D1%2582%25D0%25B0_%25D1%2582%25D1%2580%25D1%2583%25D0%25B1%25D0%25BE%25D0%25BF%25D1%2580%25D0%25BE%25D0%25B2%25D0%25BE%25D0%25B4%25D0%25BE%25D0%25B2_%25D0%25B8%25D0%25B7_%25D0%25BC%25D0%25B5%25D0%25B4%25D0%25BD%25D1%258B%25D1%2585_%25D1%2582%25D1%2580%25D1%2583%25D0%25B1.jpg

....5. А как правильно/что не правильно в контурах ТП?.....

Неправильна сама раскладка. Надо минимизировать количество витков труб, проходящих через деформационные швы (дверные проёмы в том числе). Их должно быть не больше двух.

....6. Мансарда и 2-й этаж- я имел ввиду одно и то же :)....

Да, лучше предусмотреть отдельную магистарль.

.....7.Конкретную модель котла посоветуйте (есть загильзованный дымоход 130 мм, высотой 7 м), со встроенным/отдельным бойлером.

Не посоветую :)

Darum-шо п.2.

 

2. А диаметр трубы.....

5. А как правильно/что не правильно.....

6. .....

7......посоветуйте ......

Лирическое оступление.

silver8848, вот Вы "опытный форумчанин".... Более-менее имеете представление об интернет-общении.

Но, осмелюсь, дать ещё одну рекомендацию, не техническую.

Не стесняйтесь
!!

 

наберу ближе к пятнице.

ОК

  • Лайк 1
Посилання на коментар
Поділитися на інших сайтах

Подготовил онлайн-форму (ссылка устарела).

 

Хотел бы услышать критические замечания.

  • Лайк 5
Посилання на коментар
Поділитися на інших сайтах

Подготовил онлайн-форму (ссылка устарела).

Хотел бы услышать критические замечания.

 

По горячим следам:

1. Идея прекрасная. :good: Не стесняясь, надавил авансом. :)

2. По сути: надо вникать, что потребует времени.

3. По форме: основной недостаток - привязка к "on line"-режиму. Необходимо предусмотреть возможность сохранения и/или распечатки формы со всеми возможными вариантами ответов и всеми пояснениями. (В своё время распечатал все Ваши предыдущие формы-анкеты и пояснения в качестве подспорья при разработке систем частного дома - многие через копирование и вставку в Word, что не есть хорошо).

  • Лайк 1
Посилання на коментар
Поділитися на інших сайтах

...2. По сути: надо вникать, что потребует времени.....

Собственно, это для меня лично - в "плюс".... Даже нежелание перспективного Заказчика вникать является для меня положительным фильтром ;)

...3. По форме: основной недостаток - привязка к "on line"-режиму. Необходимо предусмотреть возможность сохранения и/или распечатки формы со всеми возможными вариантами ответов и всеми пояснениями......

Эта возможность есть на сайте www.jotformeu.com

Я пока редактирую.

Будут присылаться копии ответов по указанному в опроснике адресу e-mail.

  • Лайк 1
Посилання на коментар
Поділитися на інших сайтах

Отличная форма все понятно:drinks:

Да еще бы возможность распечатать было бы чудесно. Но тогда могут скомудниздить любой другой монтажник.

Посилання на коментар
Поділитися на інших сайтах

Да еще бы возможность распечатать было бы чудесно.....

Есть такая возможность... как раз редактирую if-else.

....Но тогда могут скомудниздить любой другой монтажник...

Лишь бы помогло ;)

  • Лайк 1
Посилання на коментар
Поділитися на інших сайтах

Лишь бы помогло

Саня, с твоей барской руки хочу скомуниздить, если разрешишь! мне поможет!!! все хочу такое же по вентиляции и кондиционированию сделать.

Посилання на коментар
Поділитися на інших сайтах

.... все хочу такое же по вентиляции и кондиционированию сделать.

Я тебе дам доступ к шаблону формы.... подожди пока коммуниздить.

 

В принципе, некоторая формализация взаимоотношений пойдёт на пользу всем участникам - и Заказчикам, и Подрядчикам.

  • Лайк 1
Посилання на коментар
Поділитися на інших сайтах

Створіть акаунт або увійдіть у нього для коментування

Ви маєте бути користувачем, щоб залишити коментар

Створити акаунт

Зареєструйтеся для отримання акаунта. Це просто!

Зареєструвати акаунт

Увійти

Вже зареєстровані? Увійдіть тут.

Увійти зараз
×
×
  • Створити...