litvinden Опубліковано: 21 серпня 2012 Поділитись Опубліковано: 21 серпня 2012 в техпаспорте есть площадь всех построек? (Ограда, плитка, крыльцо и т.п.) возможно это нужно указывать? Посилання на коментар Поділитися на інших сайтах More sharing options...
emeralida Опубліковано: 13 вересня 2012 Поділитись Опубліковано: 13 вересня 2012 Доброго вечора. В декларації є пункт - Площа вбудованих або добудованих приміщень (кв.м). Що туди вписувати? Загальна площа будівлі (кв.м) - 179,2. Площа господарських (присадибних) будівель і споруд, прибудов (кв.м) Вы разобрались что туда входит? Я тоже над этим пунктом ломаю голову. Я пока вписываю таким образом: 8,5 м2 -санвузол (літ."А" 1-9),3,7 м2 - комора (літ."А" 1-8), 1,5 м2 - балкон/ганок (літ. "a3") , 9,9 м2 - коридор (літ."А" 1-7) в т.ч.: 3,9 м2 -збудована, 6,0 м2 - переобладнана з жилої(літ."А" 1-7) Т.е. то, что достроено и переоборудовано самовольно, но относится непосредственно к дому. Но я тоже не знаю как должно быть.. Может вместе подумаем? Где-то у ребят в декларациях видела именно перечисление с указанием букв и номеров помещений, а не просто все всместе одной сумой. Ну правда в другой графе.. Посилання на коментар Поділитися на інших сайтах More sharing options...
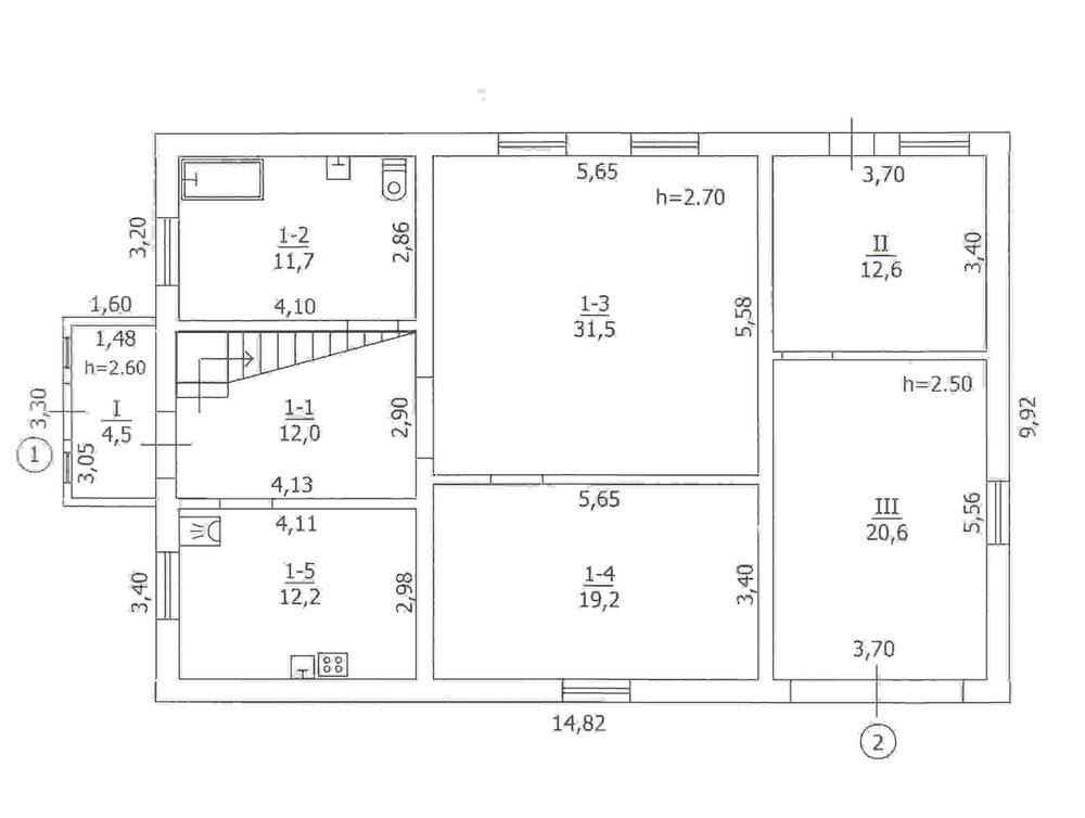
bs_kiev Опубліковано: 18 вересня 2012 Поділитись Опубліковано: 18 вересня 2012 Написав як в графах журналу техпаспорта: Площа вбудованих І – коридор – 4,5 або добудованих приміщень ІІ – майстерня – 12,6 (кв.м) ІІІ – гараж – 20,6 Санвузол, коридори, кухню написав в наступному пункті: 4. ХАРАКТЕРИСТИКА НЕЖИТЛОВИХ ПРИМІЩЕНЬ коридор допоміжне санвузолдопоміжне кухнядопоміжне коридордопоміжне майстернявиконання робіт для господарських потреб гаражпостійне зберігання автомобіля Віддав четвертий раз. Чекаю. (ссылка на изображение устарела)deklaracya.doc Посилання на коментар Поділитися на інших сайтах More sharing options...
Дощ Опубліковано: 18 вересня 2012 Автор Поділитись Опубліковано: 18 вересня 2012 У вас двоквартирний будинок? Посилання на коментар Поділитися на інших сайтах More sharing options...
Crazy Опубліковано: 18 вересня 2012 Поділитись Опубліковано: 18 вересня 2012 Подавал декларацию по 461 Постановлению - вернули. Есть неточности даты/номера приказов по назначению авторского, гипа, технадзора. Все это есть в ГАСКе с заявлением о выдаче разрешения на строительство. Дома искали - нашли разные варианты приказов, поэтому вопрос - каким образом можно ознакомиться со своим заявлением/документами, которые подавалась для получения разрешения на строительство? Посилання на коментар Поділитися на інших сайтах More sharing options...
v0v Опубліковано: 20 вересня 2012 Поділитись Опубліковано: 20 вересня 2012 Зареєстрував декларацію з першого разу. Допомогла дана тема - дякую всім хто викладає зразки зареєстрованих декларацій сюди. Тому послуговуючись прикладом форумчан викладаю і свою.Декларація про готовність об’єкта до експлуатації_Зразок_inet.doc 3 Посилання на коментар Поділитися на інших сайтах More sharing options...
consultant Опубліковано: 20 вересня 2012 Поділитись Опубліковано: 20 вересня 2012 ...дякую всім хто викладає зразки зареєстрованих декларацій сюди... А я дякую Вам за саму свіжу декларацію, яку я використав на форумі archiforum.org.ua/viewtopic.php?pid=3251#p3251 Посилання на коментар Поділитися на інших сайтах More sharing options...
Crazy Опубліковано: 20 вересня 2012 Поділитись Опубліковано: 20 вересня 2012 Зареєстрував декларацію з першого разу. Допомогла дана тема - дякую всім хто викладає зразки зареєстрованих декларацій сюди. Тому послуговуючись прикладом форумчан викладаю і свою. Києві цю декларацію би повернули - є помилки Посилання на коментар Поділитися на інших сайтах More sharing options...
Sandy_Sandy Опубліковано: 21 вересня 2012 Поділитись Опубліковано: 21 вересня 2012 Києві цю декларацію би повернули - є помилки Если знаете - поправьте, поможете многим. 1 Посилання на коментар Поділитися на інших сайтах More sharing options...
SRG Опубліковано: 21 вересня 2012 Поділитись Опубліковано: 21 вересня 2012 в Києві і коло Києва нікого в ДАБІ помилки не цікавлять - давайте лише гроші - і питань немає. (7-10 дол за квадрат) . І вся принциповість ДАБІ. Там відкатана схема - про що прасномовно свідчить і досвід всіх биття головою об стіну і біг-борди по всьому місту "Рєшаєм вопроси ввода в експлуатацию". Зверху спускають пару номерів на тиждень - для показухи, що є безплатно , а решта - лише рєшалово за гроші. Посилання на коментар Поділитися на інших сайтах More sharing options...
Григорийгриша Опубліковано: 21 вересня 2012 Поділитись Опубліковано: 21 вересня 2012 Допоможить будь ласка! Подав декларацію про готовність та отримав відмовлення із-за того, що у п.14 не в повному обсязі зазначені основні показники об'єкта. У моєму примірнику було зазначено: (основні показники об'єкта) віконні блоки (одиниця виміру)- шт., (загальний) -20, (у тому числі пускового комплексу або черги)-20, (основні показники об'єкта) загальна площа (одиниця виміру)- м2., (загальний) -2000, (у тому числі пускового комплексу або черги)-2000, (основні показники об'єкта) площа забудови (одиниця виміру)- м2., (загальний) -1500, (у тому числі пускового комплексу або черги)-1500, (основні показники об'єкта) поверховість (одиниця виміру)- пов., (загальний) -2, (у тому числі пускового комплексу або черги)-2. Примітка: у душках зазначено назва стовбців 14 пункту. Що треба ще вказати в пункті 14. Роботи проводились по заміні віконних блоків на металопластикові в ЗОШ у кількості-20 шт. Дякую! Добавлено через 3 минуты ппппппппппппппппппппппппппппппппппппппппппппппппппппппппппппппппппппппппппппппппппппп Добавлено через 2 минуты Допоможить будь ласка! Подав декларацію про готовність та отримав відмовлення із-за того, що у п.14 не в повному обсязі зазначені основні показники об'єкта. У моєму примірнику було зазначено: (основні показники об'єкта) віконні блоки (одиниця виміру)- шт., (загальний) -20, (у тому числі пускового комплексу або черги)-20, (основні показники об'єкта) загальна площа (одиниця виміру)- м2., (загальний) -2000, (у тому числі пускового комплексу або черги)-2000, (основні показники об'єкта) площа забудови (одиниця виміру)- м2., (загальний) -1500, (у тому числі пускового комплексу або черги)-1500, (основні показники об'єкта) поверховість (одиниця виміру)- пов., (загальний) -2, (у тому числі пускового комплексу або черги)-2. Примітка: у душках зазначено назва стовбців 14 пункту. Що треба ще вказати в пункті 14. Роботи проводились по заміні віконних блоків на металопластикові в ЗОШ у кількості-20 шт. Дякую! Посилання на коментар Поділитися на інших сайтах More sharing options...
Crazy Опубліковано: 21 вересня 2012 Поділитись Опубліковано: 21 вересня 2012 Если знаете - поправьте, поможете многим. На початку пропущено слово Будівництво п.6 - з таблиці виличено - колонку Серія та номер кв сертифіката - відповідно до постанови КМ від 15.08.2012 №757 п.14 не заповнений Загалом - перед подачею треба перевіряти, чи не були зміни, доповнення На форумі 100% декларацій або з помилками, або застаріли п.14 - зовсім незрозумілий, він перейшов ще зі старих форм, я в себе вказав (результат чекаю) Загальну площу за ПРОЕКТОМ - відрізняється від фактичної в Києві і коло Києва нікого в ДАБІ помилки не цікавлять - давайте лише гроші - і питань немає. (7-10 дол за квадрат) . І вся принциповість ДАБІ. Там відкатана схема - про що прасномовно свідчить і досвід всіх биття головою об стіну і біг-борди по всьому місту "Рєшаєм вопроси ввода в експлуатацию". Зверху спускають пару номерів на тиждень - для показухи, що є безплатно , а решта - лише рєшалово за гроші. Погоджуюсь, але якщо є фактичні помилки - то писати, дзвонити прокуратуру, КМ, АП - немає підстав . Сам був в одних майстрів недобрих справ - нічого не знають, дайте гроші - завтра буде декларація - треба годувати сім"ю 2 Посилання на коментар Поділитися на інших сайтах More sharing options...
Crazy Опубліковано: 21 вересня 2012 Поділитись Опубліковано: 21 вересня 2012 ... що у п.14 не в повному обсязі зазначені основні показники об'єкта. ...! Рекомендую подивитись попередній порядок, в якому було зрозуміліше написано п. 6 додатку 3 (тут таблиці поїхали): 6. Основні показники об'єкта (крім житлових будинків) - потужність, продуктивність, виробнича площа, протяжність, місткість, обсяг, пропускна, провізна спроможність, кількість робочих місць (заповнюється в одиницях виміру відповідно до цільової продукції або основних видів послуг): ------------------------------------------------------------------ | Основний | Одиниця | За проектом | За архітектурно- | | показник | виміру | |технічним паспортом | | | |--------------------+--------------------| | | |загальний| у тому |загальний| у тому | | | | | числі | | числі | | | | |пускового | |пускового | | | | |комплексу | |комплексу | | | | |або черги | |або черги | ------------------------------------------------------------------ Випуск продукції (надання послуг), яка передбачена проектом в обсязі, що відповідає нормам освоєння проектних потужностей, у початковий період ________________________________________________ (початок випуску продукції із зазначенням обсягу) __________________________________________________________________ Житловий будинок характеризується такими показниками: ------------------------------------------------------------------ | Показник |Одиниця виміру|За проектом| За архітектурно- | | | | | технічним | | | | | паспортом | ------------------------------------------------------------------ Загальна площа квартир Кількість поверхів Загальний будівельний об'єм у тому числі підземних частин Площа вбудованих, вбудовано- прибудованих та прибудованих приміщень ------------------------------------------------------------------ | Тип квартири | За проектом | За | | | | архітектурно-технічним | | | | паспортом | | |------------------------+------------------------| | | кіль- | площа квартир, | кіль- | площа квартир, | | | кість | кв. метрів | кість | кв. метрів | | |квартир|----------------|квартир|----------------| | | |загальна|житлова| |загальна|житлова| ------------------------------------------------------------------ Однокімнатна Двокімнатна Трикімнатна Чотирикімнатна і більше _______________ Усього квартир Посилання на коментар Поділитися на інших сайтах More sharing options...
Григорийгриша Опубліковано: 2 жовтня 2012 Поділитись Опубліковано: 2 жовтня 2012 Рекомендую подивитись попередній порядок, в якому було зрозуміліше написано п. 6 додатку 3 (тут таблиці поїхали): Їздив в інспекцію і мені сказали, що не вистачає в п.14 Будівельного об'єму , я подав знову, далі я надрукую відповідь. Посилання на коментар Поділитися на інших сайтах More sharing options...
Дощ Опубліковано: 2 жовтня 2012 Автор Поділитись Опубліковано: 2 жовтня 2012 Роботи проводились по заміні віконних блоків на металопластикові в ЗОШ у кількості-20 шт. Якщо лиш ці роботи то я б не подавав Декларації оскільки заміна вікон не є реконструкцією або видом будівельних робіт які потребують її подачі Посилання на коментар Поділитися на інших сайтах More sharing options...
костя777 Опубліковано: 2 жовтня 2012 Поділитись Опубліковано: 2 жовтня 2012 Ув. форумчане, подскажите пожалуйста каков порядок ввода дома в эксплуатацию, уведомление отправил, в базе ГАСКа увидел, какая последовательность действий дальше? Посилання на коментар Поділитися на інших сайтах More sharing options...
Дощ Опубліковано: 2 жовтня 2012 Автор Поділитись Опубліковано: 2 жовтня 2012 На сьогодні все - далі будуйте у відповідності з арх-буд паспортом. Коли збудуєте відпишіться, підкажемо що робити далі на той момент. А, якщо вводите то тепер замовляйте тех паспорт в БТІ і потім маючи його подавайте в ДАБІ Декларацію про введення в експлуатацію. Якщо є можливість спробуйте впоратись якомога швидше бо ті зарази мають звичку щороку правила міняти 1 Посилання на коментар Поділитися на інших сайтах More sharing options...
Наtалья Опубліковано: 8 жовтня 2012 Поділитись Опубліковано: 8 жовтня 2012 Їздив в інспекцію і мені сказали, що не вистачає в п.14 Будівельного об'єму Поделитесь, пожалуйста, как п.14 заполнять. Мне тоже сегодня вернули Декларацию по п.14. Он у меня вообще не был заполнен. Причем в предыдущих двух отказах о нем никто не вспоминал.... Посилання на коментар Поділитися на інших сайтах More sharing options...
Crazy Опубліковано: 9 жовтня 2012 Поділитись Опубліковано: 9 жовтня 2012 Поделитесь, пожалуйста, как п.14 заполнять. А прочитать на пару сообщений (№113) выше Площа земельної ділянки Площа забудови Загальна площа Кількість поверхів Загальний будівельний об’єм у тому числі підземних частин Максимальна позначка будівлі Открывайте ваш проект/будпаспорт и переписывайте. Добавлено через 1 минуту Причем в предыдущих двух отказах о нем никто не вспоминал.. Если посмотрите примеры заполнения декларации здесь на сайте, то в 100% п.14 заполнен неправильно. Посилання на коментар Поділитися на інших сайтах More sharing options...
N.O. Опубліковано: 9 жовтня 2012 Поділитись Опубліковано: 9 жовтня 2012 Поделитесь, пожалуйста, как п.14 заполнять. Мне тоже сегодня вернули Декларацию по п.14. Он у меня вообще не был заполнен. Причем в предыдущих двух отказах о нем никто не вспоминал.... розводняк. Його його не потрібно заповнювати, в наступній відмові вам напишуть, що п.14 заповнений не правильно Посилання на коментар Поділитися на інших сайтах More sharing options...
Наtалья Опубліковано: 9 жовтня 2012 Поділитись Опубліковано: 9 жовтня 2012 Если посмотрите примеры заполнения декларации здесь на сайте, то в 100% п.14 заполнен неправильно. Так я и смотрела примеры здесь...Но судя по всему раз на раз не приходится..Это просто "футбол".... його не потрібно заповнювати, в наступній відмові вам напишуть, що п.14 заповнений не правильно Значит нужно будет найти, где написано, что этот п.14 не нужно заполнять. Может Вы знаете, N.O.? 14. Об'єкт має такі основні показники: потужність, продуктивність, виробнича площа, протяжність, місткість, обсяг, пропускна спроможність, кількість робочих місць тощо (заповнюється щодо всіх об'єктів в одиницях виміру з урахуванням цільової продукції або основних видів послуг): Основні показники об'єкта Одиниця виміру За проектом загальний у тому числі пускового комплексу або черги --------- ----------- ------- --------- Посилання на коментар Поділитися на інших сайтах More sharing options...
N.O. Опубліковано: 9 жовтня 2012 Поділитись Опубліковано: 9 жовтня 2012 я так розумію це стосується виробничих приміщень, а не будинків садибного типу Добавлено через 1 минуту в дужках ж написано заповнюється щодо всіх об'єктів в одиницях виміру з урахуванням цільової продукції або основних видів послуг Посилання на коментар Поділитися на інших сайтах More sharing options...
Crazy Опубліковано: 9 жовтня 2012 Поділитись Опубліковано: 9 жовтня 2012 я так розумію це стосується виробничих приміщень, а не будинків садибного типу Стосується всіх. Читайте стару декларацію - там все зрозуміло. Добавлено через 2 минуты .Но судя по всему раз на раз не приходится..Это просто "футбол". Не футбол, а низкая квалификация сотрудников ГАСКа, особенно региональных. Хотя, не хотите - не заполняйте. Посилання на коментар Поділитися на інших сайтах More sharing options...
bhbyf Опубліковано: 9 жовтня 2012 Поділитись Опубліковано: 9 жовтня 2012 Стосується всіх. Читайте стару декларацію - там все зрозуміло. Добавлено через 2 минуты Не футбол, а низкая квалификация сотрудников ГАСКа, особенно региональных. Хотя, не хотите - не заполняйте. Так что там писать, какая производительность моего участка или как:D Посилання на коментар Поділитися на інших сайтах More sharing options...
Crazy Опубліковано: 9 жовтня 2012 Поділитись Опубліковано: 9 жовтня 2012 Так что там писать, какая производительность моего участка или как:D Скоко картошки будет с огорода Выше я расписал все, даже для людей с особыми способностями Посилання на коментар Поділитися на інших сайтах More sharing options...
Рекомендовані повідомлення
Створіть акаунт або увійдіть у нього для коментування
Ви маєте бути користувачем, щоб залишити коментар
Створити акаунт
Зареєструйтеся для отримання акаунта. Це просто!
Зареєструвати акаунтУвійти
Вже зареєстровані? Увійдіть тут.
Увійти зараз