Andr_k5 Опубліковано: 2 лютого 2012 Поділитись Опубліковано: 2 лютого 2012 Пирог стены на рис ниже... Стены из ракушки, боюсь конечно... но выхода особо нет.. если -бы строил сейчас то все сделал по другому... Как бы делали сейчас? Вот тоже думаю строить из ракушки, вроде экологично, а даже в камень - нужно утеплять, вот и думаю над пирогом стены. Посилання на коментар Поділитися на інших сайтах More sharing options...
B.S.V. Опубліковано: 2 лютого 2012 Поділитись Опубліковано: 2 лютого 2012 А как их крепить к ракушке? может у Вас есть опыт ? Так Вы внутри вроде тоже собираетесь сделать пирог: вата, гипсокартон. Значит в местах крепления радиаторов, должен быть вертикальный металлический профиль с деревянной закладной внутри. 1 Посилання на коментар Поділитися на інших сайтах More sharing options...
Plotnikovvv Опубліковано: 3 лютого 2012 Автор Поділитись Опубліковано: 3 лютого 2012 Как бы делали сейчас? Вот тоже думаю строить из ракушки, вроде экологично, а даже в камень - нужно утеплять, вот и думаю над пирогом стены. Я делал внешние стены в пол кирпича... А если строил сейчас то делал-бы в целый кирпич... снаружи 100мм пенопласта или воздушка 50мм или утеплитель+ пол кирпича лицевого... Посилання на коментар Поділитися на інших сайтах More sharing options...
Plotnikovvv Опубліковано: 3 лютого 2012 Автор Поділитись Опубліковано: 3 лютого 2012 Так Вы внутри вроде тоже собираетесь сделать пирог: вата, гипсокартон. Значит в местах крепления радиаторов, должен быть вертикальный металлический профиль с деревянной закладной внутри. а как сделать деревянную закладную? Может у вас есть фото такой конструкции? Посилання на коментар Поділитися на інших сайтах More sharing options...
B.S.V. Опубліковано: 3 лютого 2012 Поділитись Опубліковано: 3 лютого 2012 а как сделать деревянную закладную? Может у вас есть фото такой конструкции? Фото нет. Во внутреннюю часть, вертикально стоящего профиля, вырезаете брусок и прикрепляете его саморезами. Крепеж вкрученный в такую конструкцию будет держаться лучше, чем просто в профиле, а тем более чем просто в гипсокартоне. 1 Посилання на коментар Поділитися на інших сайтах More sharing options...
Сергей_84 Опубліковано: 3 лютого 2012 Поділитись Опубліковано: 3 лютого 2012 Если закладные вдруг не сделаете или ошибетесь,то ничего страшного, можно прикрепить радиатор на дюбеля моля...Оторвать его можно будет только вместе со стенкой Посилання на коментар Поділитися на інших сайтах More sharing options...
sah79 Опубліковано: 4 лютого 2012 Поділитись Опубліковано: 4 лютого 2012 Если закладные вдруг не сделаете или ошибетесь,то ничего страшного, можно прикрепить радиатор на дюбеля моля...Оторвать его можно будет только вместе со стенкой Про моли таки да.В своё время вешали на них плазмы до 50 дюймов (наверно потяжелей радиатора будет) ну окромя чугунного Посилання на коментар Поділитися на інших сайтах More sharing options...
naupv Опубліковано: 4 лютого 2012 Поділитись Опубліковано: 4 лютого 2012 Только молли нужны правильные и инструмент для установки соответственно. Посилання на коментар Поділитися на інших сайтах More sharing options...
Plotnikovvv Опубліковано: 5 лютого 2012 Автор Поділитись Опубліковано: 5 лютого 2012 Пирог стены на рис ниже... Стены из ракушки, боюсь конечно... но выхода особо нет.. если -бы строил сейчас то все сделал по другому... Пересмотрел я свои стены... Если делать как я думал будет тепло... Но стены будут влажные... рис1, но есть пара других вариантов... что посоветуете... Посилання на коментар Поділитися на інших сайтах More sharing options...
Сергей_84 Опубліковано: 5 лютого 2012 Поділитись Опубліковано: 5 лютого 2012 Пересмотрел я свои стены... Если делать как я думал будет тепло... Но стены будут влажные... рис1, но есть пара других вариантов... что посоветуете... Единственным правильным варинтом будет утепление наружной части стены и полный прогрев внутренней...И стены теплые и в доме тепло Если наружный утеплитель-вата, то должен быть вентиляционный зазор.... 1 Посилання на коментар Поділитися на інших сайтах More sharing options...
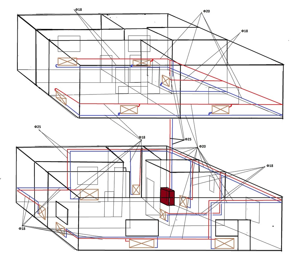
Plotnikovvv Опубліковано: 15 лютого 2012 Автор Поділитись Опубліковано: 15 лютого 2012 Нарисовал систему, склоняюсь к покупке Кана пропиленового штаби.... аргумент в пользу его это Недорогое оборудование (паяльник), Возникло несколько вопросов..., кому не трудно прошу помочь... 1 Правильно ли вообще нарисовано? 2 Что в первую очередь проводить, трубы на воду или все таки отопление...они будут перекрещиваться....какой диаметр лучше использовать для воды...(горячей и холодной)??? Посилання на коментар Поділитися на інших сайтах More sharing options...
Plotnikovvv Опубліковано: 16 лютого 2012 Автор Поділитись Опубліковано: 16 лютого 2012 Неужели никто не сталкивался с этими вопросами...Я уже весь форум перерыл...((( Посилання на коментар Поділитися на інших сайтах More sharing options...
B.S.V. Опубліковано: 16 лютого 2012 Поділитись Опубліковано: 16 лютого 2012 2 Что в первую очередь проводить, трубы на воду или все таки отопление...они будут перекрещиваться....какой диаметр лучше использовать для воды...(горячей и холодной)??? Не буду врать, мы иногда всей толпой стоим и придумываем, как организовать схему, чтобы было наименьшее количество пересечений. А Вы предлагаете по чертежам посоветовать. Увы, но Вы должны сами эту схему продумать. К сожалению, это можно сделать только глядя на сам объект. Одинакового не бывает никогда. 1 Посилання на коментар Поділитися на інших сайтах More sharing options...
Сергей_84 Опубліковано: 16 лютого 2012 Поділитись Опубліковано: 16 лютого 2012 Не буду врать, мы иногда всей толпой стоим и придумываем, как организовать схему, чтобы было наименьшее количество пересечений. А Вы предлагаете по чертежам посоветовать. Увы, но Вы должны сами эту схему продумать. К сожалению, это можно сделать только глядя на сам объект. Одинакового не бывает никогда. Эт ты прав бывает по 4 часа продумываем места прокладки трубопроводов....по месту...по плану этого сделать нереально 1 Посилання на коментар Поділитися на інших сайтах More sharing options...
Plotnikovvv Опубліковано: 17 лютого 2012 Автор Поділитись Опубліковано: 17 лютого 2012 А все таки... 1 какие диаметры трубы для прокладки воды лучше использовать...? 2 Правильно ли я пометил диаметры труб на рисунке? Посилання на коментар Поділитися на інших сайтах More sharing options...
Теплотехник Опубліковано: 17 лютого 2012 Поділитись Опубліковано: 17 лютого 2012 А все таки... 1 какие диаметры трубы для прокладки воды лучше использовать...? 2 Правильно ли я пометил диаметры труб на рисунке? 2. Это ещё зависит и от мощности радиаторов. Ориентировочно, наверное, лучше стояки 32-й, а первые радиаторы от стояков 25-й... 1.от входа 25, потом отвод на ХВС и на ГВС, а дальше и 20-16 будет достаточно... 1 Посилання на коментар Поділитися на інших сайтах More sharing options...
reestraror826792452 Опубліковано: 19 березня 2012 Поділитись Опубліковано: 19 березня 2012 Доброго времени суток ! Прошу посмотреть схему и висказать свое мнение , или по возможности дать дельные совети . Приводу данные : -стены здания (наружные ) 40см. кладка +5 мс. штукатурка ( 45 см.) планирую утеплить 5мс. пенопластом. - стены здания ( внутрение ) - 12см. ( кирпичная кладка ). - по бокам здания ( справа и слева) находятся жилые здания. - окна металопластиковые : профиль 5 кам. стекло енерго. размеры - 1800*1700 столовая ( 10 ) - 1500*1700 кухня ( 10 ) - 1500*1700 гостевая комната ( 3) - 700*1700 коридор (2) - 1800*1700 спальня ( 9) - 1800*1700 дет. спальня ( 6) - 1000*1700 веранда. Висота здания : будет 3м. подвесной потолок из гипсокартона ( реальная 3,5 м. ) Монтаж планирую делать из штабировоной полипропиленовой трубы. ( на чертеже указан -металопласт). Теплый пол - металопласт. Котел навесной турбированый. ( 24 квт.говорят что на 120 кв.м. расчитан отопления ) потери и сопротивления не расчитывал бо не знаю как считать).Может нада мощнее не знаю.Doc1.doc Посилання на коментар Поділитися на інших сайтах More sharing options...
reestraror826792452 Опубліковано: 25 березня 2012 Поділитись Опубліковано: 25 березня 2012 Что все так хорошо или все так плохо что никто не хочет ответить Посилання на коментар Поділитися на інших сайтах More sharing options...
B.S.V. Опубліковано: 25 березня 2012 Поділитись Опубліковано: 25 березня 2012 Все уже давно "ушли на фронт", то.есть на объекты. Время сложных консультаций уже прошло. Вам скорее всего придется обратиться в тему "ищу подрядчиков", и попросить за деньги посчитать там. 1 Посилання на коментар Поділитися на інших сайтах More sharing options...
reestraror826792452 Опубліковано: 26 березня 2012 Поділитись Опубліковано: 26 березня 2012 А де ця тема знаходиться ? Посилання на коментар Поділитися на інших сайтах More sharing options...
Plotnikovvv Опубліковано: 26 березня 2012 Автор Поділитись Опубліковано: 26 березня 2012 А де ця тема знаходиться ? Следуйте сюда... тыц Посилання на коментар Поділитися на інших сайтах More sharing options...
Рекомендовані повідомлення
Створіть акаунт або увійдіть у нього для коментування
Ви маєте бути користувачем, щоб залишити коментар
Створити акаунт
Зареєструйтеся для отримання акаунта. Це просто!
Зареєструвати акаунтУвійти
Вже зареєстровані? Увійдіть тут.
Увійти зараз