Vasiliev Опубліковано: 24 квітня 2012 Поділитись Опубліковано: 24 квітня 2012 И тепловые насосы я не продаю. Добавлено через 14 минут В Европе много есть проектов с тепловыми насосами и они их ставят не от того что кто-то их им парит, а для того чтобы экономить в обслуживании. Ну в Европе многое по-другому. В частности то же государство возмещает от 25 до 50% кап.затрат на установку тепловых насосов пользователям (Польша, Германия). Да и цены на газ сами знаете какие. Про это вы молчите. А у нас же 1 кВт грубенько = 1 кЕвро, если не брать совсем уж Кетай. А срок окупаемости равен сроку службы. Я-то двумя руками "за", но когда делал себе расчет отопления, осознал что это пока не для наших условий, де життя покращується уже сьогодні (с). Тем более если уже предлагать тепловой насос, то как основное решение, а не дополнительное. А вы не думали о использовании водоема в качестве дополнительного источника энергии для обогрева вашего домика. А то вы и то и то хотите. Предлагаете только проект? Да еще бесплатно? Без продажи оборудования? Что там Станиславский по этому поводу говорил? Посилання на коментар Поділитися на інших сайтах More sharing options...
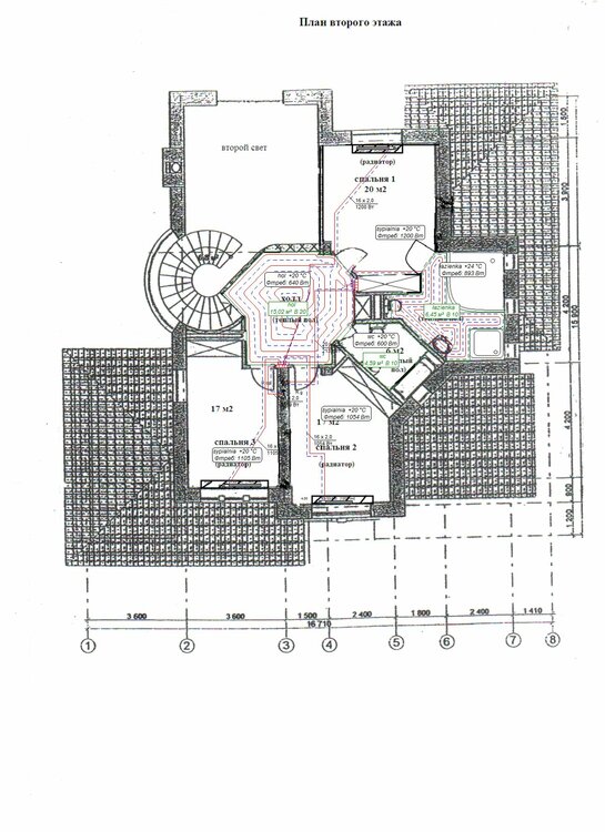
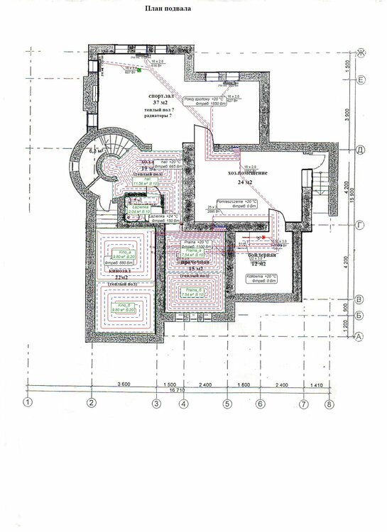
tanya77 Опубліковано: 24 квітня 2012 Поділитись Опубліковано: 24 квітня 2012 Хочу выслать вид проекта который могу помочь сделать. Был сосканированный вариан, в результате заказчик получает спецификацию в екселе с подробнлостями и поэтажные планы в таком виде::: 1 Посилання на коментар Поділитися на інших сайтах More sharing options...
Vasiliev Опубліковано: 24 квітня 2012 Поділитись Опубліковано: 24 квітня 2012 Ykochubey, срочно соглашайтесь, бесплатно проекты мало сейчас кто дает. Наверное вы лично симпатичны Будет вам оборудование для "pokoj sportowy 20C." Посилання на коментар Поділитися на інших сайтах More sharing options...
tanya77 Опубліковано: 24 квітня 2012 Поділитись Опубліковано: 24 квітня 2012 Я представитель в Украине по продаже Европейских металопластиковых труб. Проект действительно НАША компания делает бесплатно, он выполняется проектировщиками на заводе в ПОЛЬШЕ. А дальше я предложу Наше предложение по трубам, и распишу приймущество перед другими производителями. Но цена моего оборудования (труб) очень мала в общей смете системы отопления. Посилання на коментар Поділитися на інших сайтах More sharing options...
Vasiliev Опубліковано: 24 квітня 2012 Поділитись Опубліковано: 24 квітня 2012 Я представитель в Украине по продаже Европейских металопластиковых труб.... Ну вот, наконец-то истина выплыла... Я то думал это любовь с первого взгляда к большой сигаре Кочубея. Что ж - с канадской (простите, польской) оптовой не поспоришь... Впрочем, вы полигамна, многим свои услуги предлагаете. К тому же бесплатно Посилання на коментар Поділитися на інших сайтах More sharing options...
tanya77 Опубліковано: 24 квітня 2012 Поділитись Опубліковано: 24 квітня 2012 Ну вот, наконец-то истина выплыла... Я то думал это любовь с первого взгляда к большой сигаре Кочубея. Что ж - с канадской (простите, польской) оптовой не поспоришь... Впрочем, вы моногамна, многим свои услуги предлагаете. К тому же бесплатно Я "лично" никакие услуги не предлагаю. А чем ВАМ не "сподобався" безплатный проект, компания дилер за него у ВАС еще и денег возмет, а ВЫ заплатите. Ведь у НАС за все платить нужно. Посилання на коментар Поділитися на інших сайтах More sharing options...
Музей Опубліковано: 24 квітня 2012 Поділитись Опубліковано: 24 квітня 2012 ТС, Вам тут скучать не позволят.:D Вот, вторая волна. Таки пусть модераторы ветку не чистят, интересно получаеЦЦа.:D Вы еще напишите, что не уверены в выборе между камином и топкой. Тогда эта ветка за сутки вырастет страниц на 20-30...;) 3 Посилання на коментар Поділитися на інших сайтах More sharing options...
Игореха Опубліковано: 24 квітня 2012 Поділитись Опубліковано: 24 квітня 2012 ТС, Вам тут скучать не позволят.:D Вот, вторая волна. Таки пусть модераторы ветку не чистят, интересно получаеЦЦа.:D Вы еще напишите, что не уверены в выборе между камином и топкой. Тогда эта ветка за сутки вырастет страниц на 20-30...;) Ну пока что все ву рамках интеллигентного общения, без перехода на личности :D А автору - только польза Если в его ветке будут обсуждать все преимущества и недостатки интересуемых технологий, то ему можно жить в этой ветке и не ходить в профильные разделы, и даже поиском не пользоваться - вся инфа будет тут :D 1 Посилання на коментар Поділитися на інших сайтах More sharing options...
Stroim DOM Опубліковано: 24 квітня 2012 Поділитись Опубліковано: 24 квітня 2012 Я то думал это любовь с первого взгляда к большой сигаре Кочубея. Все хотят заработать на сигаре Ykochubey. Или покурить её; кто-то может дым нюхнёт. Но задорно лицезреть борухания за алтын, ой потешно )) Посилання на коментар Поділитися на інших сайтах More sharing options...
tanya77 Опубліковано: 25 квітня 2012 Поділитись Опубліковано: 25 квітня 2012 Все хотят заработать на сигаре Ykochubey. Или покурить её; кто-то может дым нюхнёт. Но задорно лицезреть борухания за алтын, ой потешно )) А где вы видите здесь заработок!!!! Это личные симпатии...... Посилання на коментар Поділитися на інших сайтах More sharing options...
Ykochubey Опубліковано: 25 квітня 2012 Автор Поділитись Опубліковано: 25 квітня 2012 Ну пока что все ву рамках интеллигентного общения, без перехода на личности А автору - только польза Так за этим и пришёл сюда Добавлено через 3 минуты Вы еще напишите, что не уверены в выборе между камином и топкой. пока думаю над этим... и немогу определиться.... опыт с топками имеется, а с открытыми каминами нет. Хотя тут будет 3 камина, и можно и то и то вместить... Добавлено через 5 минут ТС, Вы смотрели замки Роны и Луары? Ваш стиль - это натуральный сланец для кровли и белые стены с каменным цоколем эта идея меня заинтересовала, может, попрошу архитектора поэкспериментировать чтоб посмотреть как это будет выглядеть Посилання на коментар Поділитися на інших сайтах More sharing options...
Stroim DOM Опубліковано: 25 квітня 2012 Поділитись Опубліковано: 25 квітня 2012 А где вы видите здесь заработок!!!! Это личные симпатии...... Я ж не против Посилання на коментар Поділитися на інших сайтах More sharing options...
Ykochubey Опубліковано: 25 квітня 2012 Автор Поділитись Опубліковано: 25 квітня 2012 Если хотите могу сделать бесплатно проект системы отопления . Пишите в личку. Спасибо, будем иметь в виду.. как дело сдвинется то свяжусь и с вами. Посилання на коментар Поділитися на інших сайтах More sharing options...
tanya77 Опубліковано: 25 квітня 2012 Поділитись Опубліковано: 25 квітня 2012 Я ж не против Спасибо!!!!!:D А то я думала что меня "ЗАПЛЮЮТ" за бесплатное предложение........ Посилання на коментар Поділитися на інших сайтах More sharing options...
Музей Опубліковано: 25 квітня 2012 Поділитись Опубліковано: 25 квітня 2012 Спасибо!!!!!:D А то я думала что меня "ЗАПЛЮЮТ" за бесплатное предложение........ Похоже, это весенняя аллергия на деньги... Посилання на коментар Поділитися на інших сайтах More sharing options...
Игореха Опубліковано: 25 квітня 2012 Поділитись Опубліковано: 25 квітня 2012 Похоже, это весенняя аллергия на деньги... Манифобия?:D Посилання на коментар Поділитися на інших сайтах More sharing options...
Музей Опубліковано: 25 квітня 2012 Поділитись Опубліковано: 25 квітня 2012 Манифобия?:D Новое слово в медицине;) Посилання на коментар Поділитися на інших сайтах More sharing options...
Stroim DOM Опубліковано: 25 квітня 2012 Поділитись Опубліковано: 25 квітня 2012 Манифобия?:D Альтруизм, доброе самаритянство.. 1 Посилання на коментар Поділитися на інших сайтах More sharing options...
Музей Опубліковано: 25 квітня 2012 Поділитись Опубліковано: 25 квітня 2012 Альтруизм, доброе самаритянство.. АльтруизЬм - высшая степень эгоизЬма.:D В данном случае всё вполне логично. Сделав проект, люди надеются получить заказ на его воплощение от этого Заказчика. На превый взглад - хорошо. Но, я бы предпочла делать проект у независимого проектанта. Потому что, такой проект будет направлен на обеспечение моего дома правильной системой теплоснабжения. А любой продавец оборудования будет делать проект, исходя из того оборудования и материалов, которые он продаёт. Могут ли векторы не совпасть?;) Посилання на коментар Поділитися на інших сайтах More sharing options...
tanya77 Опубліковано: 25 квітня 2012 Поділитись Опубліковано: 25 квітня 2012 АльтруизЬм - высшая степень эгоизЬма.:D В данном случае всё вполне логично. Сделав проект, люди надеются получить заказ на его воплощение от этого Заказчика. На превый взглад - хорошо. Но, я бы предпочла делать проект у независимого проектанта. Потому что, такой проект будет направлен на обеспечение моего дома правильной системой теплоснабжения. А любой продавец оборудования будет делать проект, исходя из того оборудования и материалов, которые он продаёт. Могут ли векторы не совпасть?;) А ВЫ не задумывались что все "НЕЗАВИСИМЫЕ" проектанты тоже сотрудничают с компаниями производителями и у них есть свои любимые марки которые они продвигают или бывает даже дают ВАШИ проекты на просчет этим компаниям. Потому что специалисты работающие в компаниях-производителях постоянно проходят обучения и повышение своей квалификации. А самое главное кто бы этот проект не делал он будет делать его по тех нормам и условиям, так как он несет за это ответственность. И если Вы будете в чем то сомневаться у ВАС есть право дать проект на проверку независимому Эксперту-проектировщику. 2 Посилання на коментар Поділитися на інших сайтах More sharing options...
Игореха Опубліковано: 25 квітня 2012 Поділитись Опубліковано: 25 квітня 2012 А ВЫ не задумывались что все "НЕЗАВИСИМЫЕ" проектанты тоже сотрудничают с компаниями производителями и у них есть свои любимые марки которые они продвигают или бывает даже дают ВАШИ проекты на просчет этим компаниям. Потому что специалисты работающие в компаниях-производителях постоянно проходят обучения и повышение своей квалификации. А самое главное кто бы этот проект не делал он будет делать его по тех нормам и условиям, так как он несет за это ответственность. И если Вы будете в чем то сомневаться у ВАС есть право дать проект на проверку независимому Эксперту-проектировщику. Да все вы верно говорите Вы только скажите, если автор закажет у вас проект, а воплощать его в жизнь решит с другими людьми, вы не сильно на него обидитесь? Вот и весь вопрос Посилання на коментар Поділитися на інших сайтах More sharing options...
Зигзаг Удачи Опубліковано: 25 квітня 2012 Поділитись Опубліковано: 25 квітня 2012 Да все вы верно говорите Вы только скажите, если автор закажет у вас проект, а воплощать его в жизнь решит с другими людьми, вы не сильно на него обидитесь? Вот и весь вопрос Какой бестактный вопрос! :D Посилання на коментар Поділитися на інших сайтах More sharing options...
tanya77 Опубліковано: 25 квітня 2012 Поділитись Опубліковано: 25 квітня 2012 Да все вы верно говорите Вы только скажите, если автор закажет у вас проект, а воплощать его в жизнь решит с другими людьми, вы не сильно на него обидитесь? Вот и весь вопрос Я буду пытаться его переубедить что моя система труб хороша ( все остальное радиаторы, насосы, колы - это его личный выбор и предпочтение). Но если он не согласиться - не сильно обижусь. 1 Посилання на коментар Поділитися на інших сайтах More sharing options...
Игореха Опубліковано: 25 квітня 2012 Поділитись Опубліковано: 25 квітня 2012 Какой бестактный вопрос! :D Люблю прямоту Посилання на коментар Поділитися на інших сайтах More sharing options...
MSK-Roofer Опубліковано: 28 квітня 2012 Поділитись Опубліковано: 28 квітня 2012 Хочу высказать Свое мнение как кровельщик ... и Может эта информация будет полезна ... В отношении Самого проекта ... Очень хороший дом ... и есть Много вариантов сделать его Уникальным ...и любимым впервую очередь для Хозяина ... Во первых ...Нет тут замков Луары (Французский замковый стиль),Фахверка (Германский стиль) и прочей напускной значимости в Архитектуре Этого дома ... а есть простая классика Американского Викторианского стиля и таких домов в США и Канаде достаточно ... Несколько фото Исходя из чертежей, Могу рекомендовать исправить Большую башню, которая явно "тяжела" визуально ... Можно попробовать увеличить высоту .... Фасад: Или классический красный кирпич "Под Англию" или штукатурка ... К примеру Вот дом который я сделал (Подмосковье) ...Ну и разве фасад не красота ...))) На фото: Крыша из сланца с использованием плитки в "Немецком стиле" .... Видео Кровельный материал Ответ однозначен ... Сланец и еще раз сланец ... Поверьте .. Этот дом заслуживает Такого материала ... Да дорого, Но это будет Совсем другой дом ... Сланец и медь ... Классика Консультации, могу оказать Но лучше почитайте Эту ветку форума ..... (Я с 12 страницы подключился) Очень "Жарко" )) Надеюсь Мои маленькие советы Будут Вам полезны .... ДешЁвый вариант кровли: Мягкая битумная черепица (Темно-серая) и пластиковая водосточка (Белая) ... Но только "плоская кровля" иначе крыша будет "не камильфо" Могу сделать Вашу кровлю и помочь архитектору в том числе и с КР (узлы) ... 1 Посилання на коментар Поділитися на інших сайтах More sharing options...
Рекомендовані повідомлення
Створіть акаунт або увійдіть у нього для коментування
Ви маєте бути користувачем, щоб залишити коментар
Створити акаунт
Зареєструйтеся для отримання акаунта. Це просто!
Зареєструвати акаунтУвійти
Вже зареєстровані? Увійдіть тут.
Увійти зараз