Елена Анатольевна Опубліковано: 10 лютого 2012 Поділитись Опубліковано: 10 лютого 2012 Здравствуйте, у меня дилемма, мою террасу в Кончей-Заспе площадью 50 кв.м, имеющей трапециевидную форму, рекомендуют крыть ПВХ мембраной. Задумываюсь и побаиваюсь, что негерметично будут сделаны примыкания и углы. Терраса предназначается под проведение торжественных мероприятий с плясками, распиванием шампанского и т.д. Посилання на коментар Поділитися на інших сайтах More sharing options...
shamugiya Опубліковано: 10 лютого 2012 Поділитись Опубліковано: 10 лютого 2012 Здравствуйте, у меня дилемма, мою террасу в Кончей-Заспе площадью 50 кв.м, имеющей трапециевидную форму, рекомендуют крыть ПВХ мембраной. Задумываюсь и побаиваюсь, что негерметично будут сделаны примыкания и углы. Терраса предназначается под проведение торжественных мероприятий с плясками, распиванием шампанского и т.д. Конкретней, что за мембрана ? Посилання на коментар Поділитися на інших сайтах More sharing options...
Виктор26 Опубліковано: 10 лютого 2012 Поділитись Опубліковано: 10 лютого 2012 В яких місцях повинні бути примикання, яким чином фіксуються, яким способом влаштований водовідвід? Можна фото тераси? Посилання на коментар Поділитися на інших сайтах More sharing options...
Елена Анатольевна Опубліковано: 10 лютого 2012 Автор Поділитись Опубліковано: 10 лютого 2012 По-умному это звучит так: полимерная мембрана изготовлена из термопластичного поливинилхлорида (ПВХ). ПВХ мембраны могут использоваться как для устройства любого типа плоских кровель как новых зданий, промышленного и жилого назначения, так и для проведения ремонтно-восстановительных работ, снижая трудоемкость подготовительных работ. :)8) Посилання на коментар Поділитися на інших сайтах More sharing options...
TERMIT Опубліковано: 10 лютого 2012 Поділитись Опубліковано: 10 лютого 2012 Здравствуйте, у меня дилемма, мою террасу в Кончей-Заспе площадью 50 кв.м, имеющей трапециевидную форму, рекомендуют крыть ПВХ мембраной. Задумываюсь и побаиваюсь, что негерметично будут сделаны примыкания и углы. Терраса предназначается под проведение торжественных мероприятий с плясками, распиванием шампанского и т.д. На выставке в Германии видел классный материал Resitrix для плоских кровель, в инсталляции намного проще ПВХ и, как я понял, прощает больше ошибок кровельщиков. Он стоит примерно вдвое дороже пвх, но на 50 м2 разница будет не столь ощутимой. Посмотрите, может его кто-то в Украине продает тоже. Посилання на коментар Поділитися на інших сайтах More sharing options...
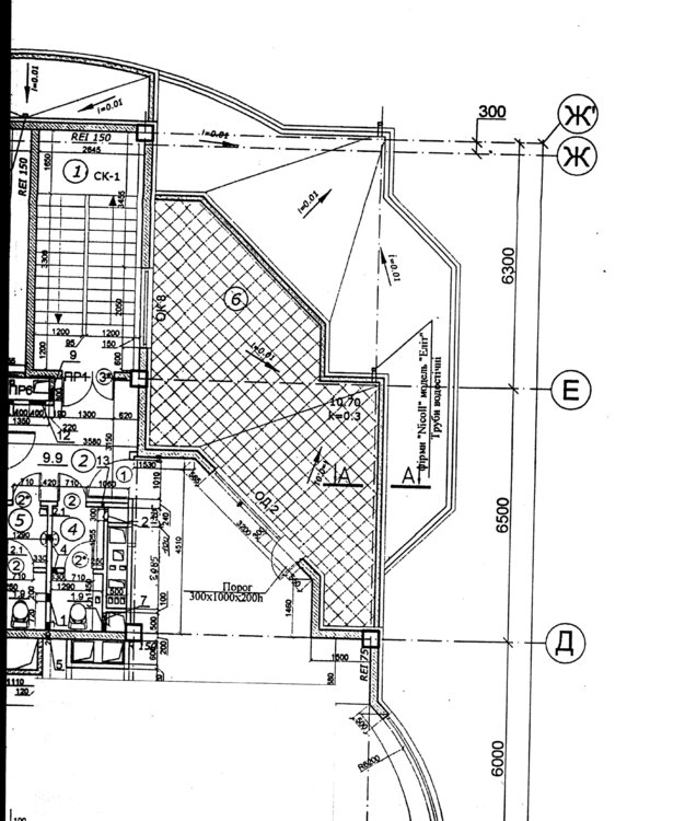
Елена Анатольевна Опубліковано: 10 лютого 2012 Автор Поділитись Опубліковано: 10 лютого 2012 В яких місцях повинні бути примикання, яким чином фіксуються, яким способом влаштований водовідвід? Можна фото тераси? Не пойму чертёж прикрепился, или…)) Посилання на коментар Поділитися на інших сайтах More sharing options...
VillaDeLux (ex Акро) Опубліковано: 10 лютого 2012 Поділитись Опубліковано: 10 лютого 2012 Задумываюсь и побаиваюсь, что негерметично будут сделаны примыкания и углы Если вы таким замысловатым образом хотите найти себе подрядчика то вам тогда в раздел Тендеры. Ищу подрядчиков А насчёт герметичности ПВХ или любого другого материала то тут панацеи нет. Кривыми руками испортить можно любую кровлю. Ваши боязни основаны на страхе напороться на халтурщиков. Так что уделите именно этому аспекту максимум внимания. А кровлю из ПВХ не будет течь если её выполнить правильно, даже в сложных узлах. Посилання на коментар Поділитися на інших сайтах More sharing options...
Елена Анатольевна Опубліковано: 13 лютого 2012 Автор Поділитись Опубліковано: 13 лютого 2012 Нет, подрядчик, тендеры – с этим всё в порядке. Мне важно разобраться какая гидроизоляция надёжнее. У меня бетонное покрытие на него можно сделать обмазочную или мембранную изоляцию. Всякие утеплители меня не интересуют, просто гидроизоляцию на неё стяжку с уклоном и на неё красивую плитку, вот и вся задача. Конкретно вопрос: можно ли сразу на бетон укладывать ПВХ мембрану? Посилання на коментар Поділитися на інших сайтах More sharing options...
VillaDeLux (ex Акро) Опубліковано: 13 лютого 2012 Поділитись Опубліковано: 13 лютого 2012 Мне важно разобраться какая гидроизоляция надёжнее. Между производителями мембранных и наливных кровель нешуточная конкуренция и аргументы будут убедительные с каждой из сторон. Если не экономить ни на том ни на другом, то я думаю что наливная имеет больше преимуществ хотя бы исходя из того что объём у вас маленький. В каждом из вариантов есть модели\марки ка эконом класса так и премиум. Конкретно вопрос: можно ли сразу на бетон укладывать ПВХ мембрану? Конкретный вопрос: можно ли лечится травами? Вопрос не конкретный ибо: 1. какой из себя бетон (качество покрытия)? 2. какую именно модель мембраны хотите стелить 3. каков расчётный срок эксплуатации кровли вы хотите получить? Посилання на коментар Поділитися на інших сайтах More sharing options...
Виктор26 Опубліковано: 13 лютого 2012 Поділитись Опубліковано: 13 лютого 2012 Нет, подрядчик, тендеры – с этим всё в порядке. Мне важно разобраться какая гидроизоляция надёжнее. У меня бетонное покрытие на него можно сделать обмазочную или мембранную изоляцию. Всякие утеплители меня не интересуют, просто гидроизоляцию на неё стяжку с уклоном и на неё красивую плитку, вот и вся задача. Конкретно вопрос: можно ли сразу на бетон укладывать ПВХ мембрану? Є ПВХ мембрани які застосовується для влаштування покрівель по баластнїй системі, експлуатованих покрівель, гідроізоляції ванних кімнат і т.д. Така мембрана Вам підійде. Шви зварюються гарячим повітрям (плавленням мембрани), що забезпечує монолітність всієї поверхні ( шов на розрив = полотну ПВХ ) і дає можливість надійно з"єднати ПВХ в складних місцях. Така гідроїзоляція надійна на 100%! Друге питання, що все залежить від педантичності майстра, на скільки уважно поставиться до зварки складних елементів ( прямі шви запороти тяжко))) Посилання на коментар Поділитися на інших сайтах More sharing options...
Niklson Опубліковано: 14 лютого 2012 Поділитись Опубліковано: 14 лютого 2012 Конкретно вопрос: можно ли сразу на бетон укладывать ПВХ мембрану? Сразу на бетон нельзя. 3.1 Геотекстильное полотно плотностью 400-500г/м2 используется в качестве разделяющего слоя между гидроизоляционной мембраной и поверхностью бетона железобетонных конструкций, обеспечивает защиту мембраны от возможных повреждений, является разделительным слоем, выполняет роль дренажа. 3.2 Полиэтиленовая плёнка, толщиной 200мкм. используется в качестве разделяющего слоя между геотекстилем и бетоном защитного слоя или бетоном заливки пазух тоннеля. Предотвращает пропитывание геотекстиля продуктами гидратации цемента. 4.1 Поверхность бетона должна быть сухой, без плёночной влаги, ровной. Бетон должен иметь прочность не ниже 50% марочной прочности. 4.2 Поверхность не должна иметь раковин, наплывов бетона, неровностей с острыми кромками, масляных пятен. 1 Посилання на коментар Поділитися на інших сайтах More sharing options...
bora-b Опубліковано: 14 лютого 2012 Поділитись Опубліковано: 14 лютого 2012 Конкретно вопрос: можно ли сразу на бетон укладывать ПВХ мембрану? Посмотрите технологические карты, в них есть ответы на многие вопросы. К примеру (ссылка устарела) 1 Посилання на коментар Поділитися на інших сайтах More sharing options...
Expert Опубліковано: 16 лютого 2012 Поділитись Опубліковано: 16 лютого 2012 По-умному это звучит так: полимерная мембрана изготовлена из термопластичного поливинилхлорида (ПВХ). ПВХ мембраны могут использоваться как для устройства любого типа плоских кровель как новых зданий, промышленного и жилого назначения, так и для проведения ремонтно-восстановительных работ, снижая трудоемкость подготовительных работ. :)8) А в чем, собственно, проблема. Чего Вы сомневаетесь? ПВХ-мембрана - хороший материал. Если это ренофол или ренолит то это супер, если фатра, лоджик руф, протан или сика, то это гуд... Остальные бренды - нужно смотреть... Посилання на коментар Поділитися на інших сайтах More sharing options...
Expert Опубліковано: 16 лютого 2012 Поділитись Опубліковано: 16 лютого 2012 Нет, подрядчик, тендеры – с этим всё в порядке. Мне важно разобраться какая гидроизоляция надёжнее. У меня бетонное покрытие на него можно сделать обмазочную или мембранную изоляцию. Всякие утеплители меня не интересуют, просто гидроизоляцию на неё стяжку с уклоном и на неё красивую плитку, вот и вся задача. Конкретно вопрос: можно ли сразу на бетон укладывать ПВХ мембрану? Утеплите эппс-ом. Потом слой термофиксированного геотекстиля. потом пвх-мембрана (у разных поразному называется) без уф-стабилизации, как раз ваккурат под вашу красивую плитку.... А вообще, это отдельный вопрос, т.к. не понятно, в чем, собственно, проблема. Но, если что спрашиваете. Я немного знаком с этими материалами. Начинал еще, когда первые шаги делал укк с фаерстоуном и ависта с алькором... Посилання на коментар Поділитися на інших сайтах More sharing options...
Dimont Опубліковано: 20 лютого 2012 Поділитись Опубліковано: 20 лютого 2012 (змінено) Как вариант можно сделать гидроизоляцию битумным рулонным материалом бизнесс или премиум класса, например Техноэласт ЭПП, будет не менее надежно, чем ПВХ-мембраной. На небольшой площади - это наверняка проще и дешевле, без потери свойств конструкции. Змінено 20 лютого 2012 користувачем Dimont Посилання на коментар Поділитися на інших сайтах More sharing options...
Рекомендовані повідомлення
Створіть акаунт або увійдіть у нього для коментування
Ви маєте бути користувачем, щоб залишити коментар
Створити акаунт
Зареєструйтеся для отримання акаунта. Це просто!
Зареєструвати акаунтУвійти
Вже зареєстровані? Увійдіть тут.
Увійти зараз