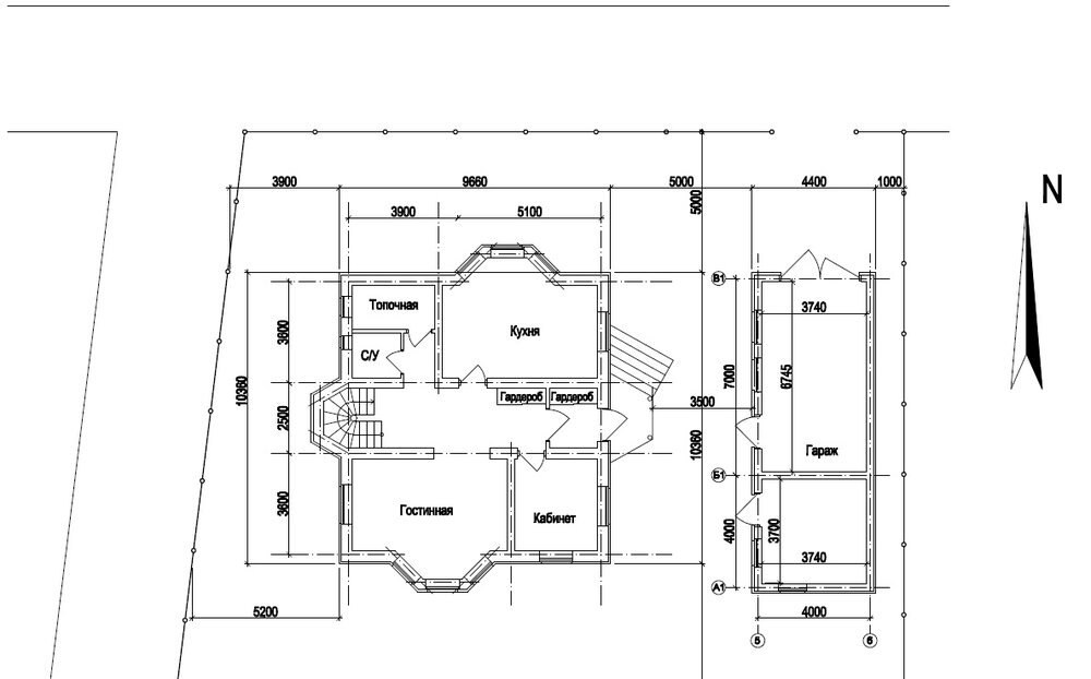
Jazzter Опубліковано: 23 лютого 2012 Поділитись Опубліковано: 23 лютого 2012 Доброго времени суток Уважаемые форумчане, прошу вас посмотреть мой проект, а именно план первого этажа, гаража и их взаиморасположение на участке Посилання на коментар Поділитися на інших сайтах More sharing options...
Fly Wind Опубліковано: 23 лютого 2012 Поділитись Опубліковано: 23 лютого 2012 мне нравится Посилання на коментар Поділитися на інших сайтах More sharing options...
Jazzter Опубліковано: 23 лютого 2012 Автор Поділитись Опубліковано: 23 лютого 2012 мне нравится а что критики не будет? 8) Посилання на коментар Поділитися на інших сайтах More sharing options...
Fly Wind Опубліковано: 23 лютого 2012 Поділитись Опубліковано: 23 лютого 2012 а что критики не будет? 8) кухня на юг, но вариантов других не вижу. Посилання на коментар Поділитися на інших сайтах More sharing options...
Alisa3 Опубліковано: 23 лютого 2012 Поділитись Опубліковано: 23 лютого 2012 Критика будет. Подождите немного и архитекторы вас раскритикуют. С моей точки зрения обывателя у вас засилье эркеров. Но это на любителя. Нет комор и кладовок при достаточно большой площади застройки. В вашем случае ничто не мешает сделать кухню на север отзеркалив проект. Тут много сторонников того, что с кухни обязательно должен быть вид на дорогу - кто заходит/выходит. И ещё: где план второго этажа? Посилання на коментар Поділитися на інших сайтах More sharing options...
Jazzter Опубліковано: 23 лютого 2012 Автор Поділитись Опубліковано: 23 лютого 2012 Критика будет. Подождите немного и архитекторы вас раскритикуют. С моей точки зрения обывателя у вас засилье эркеров. Но это на любителя. Нет комор и кладовок при достаточно большой площади застройки. В вашем случае ничто не мешает сделать кухню на север отзеркалив проект. Тут много сторонников того, что с кухни обязательно должен быть вид на дорогу - кто заходит/выходит. И ещё: где план второго этажа? На север через дорогу сосновый лес, потому и гостинная с эркером на север. Коморки и кладовки будут в подвале, но это еще под вопросом, будет ли подвал или нет. Посилання на коментар Поділитися на інших сайтах More sharing options...
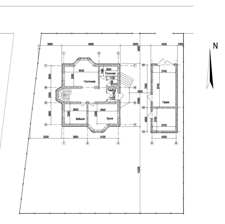
Jazzter Опубліковано: 23 лютого 2012 Автор Поділитись Опубліковано: 23 лютого 2012 Вот предварительный второй этаж Посилання на коментар Поділитися на інших сайтах More sharing options...
Fly Wind Опубліковано: 23 лютого 2012 Поділитись Опубліковано: 23 лютого 2012 На север через дорогу сосновый лес, потому и гостинная с эркером на север. Коморки и кладовки будут в подвале, но это еще под вопросом, будет ли подвал или нет. максимум времени проводится на кухне. плюс когда она на север - не нужен кондиционер. хотя я больше за восток. вот топочная и тп на север - то что надо. +1 к где кладовки и гардеробы? Посилання на коментар Поділитися на інших сайтах More sharing options...
Jazzter Опубліковано: 23 лютого 2012 Автор Поділитись Опубліковано: 23 лютого 2012 максимум времени проводится на кухне. плюс когда она на север - не нужен кондиционер. хотя я больше за восток. вот топочная и тп на север - то что надо. +1 к где кладовки и гардеробы? вот такой вот вариантик с гардеробом Посилання на коментар Поділитися на інших сайтах More sharing options...
Archist Опубліковано: 23 лютого 2012 Поділитись Опубліковано: 23 лютого 2012 С ориентацией нужно что-то делать. Попробуйте повернуть дом на 90 град. Смысл в том, что нежелательная ориентация окон для кухни - юг, юго-запад, для жилых комнат - север, а для спален - запад. Сосновый бор вы с первого этажа вряд ли увидите (если забор не прозрачный). Ну и как вам уже указали - недостаток подсобных помещений при неслабой общей площади дома. Холл, кстати, можно приспособить для тихих семейных игр в городки или "вышибалу"... Посилання на коментар Поділитися на інших сайтах More sharing options...
Alisa3 Опубліковано: 23 лютого 2012 Поділитись Опубліковано: 23 лютого 2012 Холл, кстати, можно приспособить для тихих семейных игр в городки или "вышибалу"... А как же Ваш любимый боулинг? 1 Посилання на коментар Поділитися на інших сайтах More sharing options...
Jazzter Опубліковано: 23 лютого 2012 Автор Поділитись Опубліковано: 23 лютого 2012 С ориентацией нужно что-то делать. Попробуйте повернуть дом на 90 град. Смысл в том, что нежелательная ориентация окон для кухни - юг, юго-запад, для жилых комнат - север, а для спален - запад. Сосновый бор вы с первого этажа вряд ли увидите (если забор не прозрачный). Ну и как вам уже указали - недостаток подсобных помещений при неслабой общей площади дома. Холл, кстати, можно приспособить для тихих семейных игр в городки или "вышибалу"... Вот, повернул и отзеркалил :D Посилання на коментар Поділитися на інших сайтах More sharing options...
Fly Wind Опубліковано: 23 лютого 2012 Поділитись Опубліковано: 23 лютого 2012 другое дело Посилання на коментар Поділитися на інших сайтах More sharing options...
Alisa3 Опубліковано: 23 лютого 2012 Поділитись Опубліковано: 23 лютого 2012 Вот, повернул и отзеркалил :D А теперь можно кабинет с санузлом и топочной ещё местами поменять, если хотите красивый вид из кабинета наблюдать. Гардеробная в вашем случае звучит немного гордо Посилання на коментар Поділитися на інших сайтах More sharing options...
Jazzter Опубліковано: 23 лютого 2012 Автор Поділитись Опубліковано: 23 лютого 2012 А теперь можно кабинет с санузлом и топочной ещё местами поменять, если хотите красивый вид из кабинета наблюдать. Гардеробная в вашем случае звучит немного гордо Энто не совсем кабинет, это просто кабинет-спальня :D:D:D И опять же таки как уже говорили что с первого этажа ничего то и не увидиш Посилання на коментар Поділитися на інших сайтах More sharing options...
Archist Опубліковано: 23 лютого 2012 Поділитись Опубліковано: 23 лютого 2012 А как же Ваш любимый боулинг? Не-е, начинаем месячник борьбы с космополитизмом: никаких боулингов, тока вышибала и городки. А, и лапта ещё! Посилання на коментар Поділитися на інших сайтах More sharing options...
Alisa3 Опубліковано: 23 лютого 2012 Поділитись Опубліковано: 23 лютого 2012 Энто не совсем кабинет, это просто кабинет-спальня :grin: И опять же таки как уже говорили что с первого этажа ничего то и не увидиш За то в кабинете-спальне не будет жарко. А может и видно будет верхушки сосен Не-е, начинаем месячник борьбы с космополитизмом: никаких боулингов, тока вышибала и городки. А, и лапта ещё! Месячник??? Посилання на коментар Поділитися на інших сайтах More sharing options...
Archist Опубліковано: 23 лютого 2012 Поділитись Опубліковано: 23 лютого 2012 Месячник??? Ага! poiskslov.com/word/%D0%BC%D0%B5%D1%81%D1%8F%D1%87%D0%BD%D0%B8%D0%BA/ Вы спрашивайте, если чё! ;) Посилання на коментар Поділитися на інших сайтах More sharing options...
voglya Опубліковано: 23 лютого 2012 Поділитись Опубліковано: 23 лютого 2012 А мне не нравится крыльцо - ступени, но это мелочи... Посилання на коментар Поділитися на інших сайтах More sharing options...
Alisa3 Опубліковано: 24 лютого 2012 Поділитись Опубліковано: 24 лютого 2012 Ага! poiskslov.com/word/%D0%BC%D0%B5%D1%81%D1%8F%D1%87%D0%BD%D0%B8%D0%BA/ Вы спрашивайте, если чё! ;) Крепостной крестьянин, получавший месячину? :D Лестницу можно и поменять. Мне нравится такого типа: Правда нарисовала не в пропорциях Посилання на коментар Поділитися на інших сайтах More sharing options...
SashHen Опубліковано: 24 лютого 2012 Поділитись Опубліковано: 24 лютого 2012 Я бы еще сделал вход с кухни в топочную, сделал пару полочек и получилась бы топочная/кладовая. Себе я так сделал 1 Посилання на коментар Поділитися на інших сайтах More sharing options...
Anat0M Опубліковано: 25 лютого 2012 Поділитись Опубліковано: 25 лютого 2012 Мне понравилось все толково. Особенно с лестницей интересно получилось, сколько смотрел проектов, везде лестница занимает большую часть 1-го этажа и простраство распределяется нерационально. Интересует для чего были сделаны выступы в кухне и гостинной?? Для того чтобы было больше света? Хотелось бы посмотреть 2-й этаж с размерами и фасады. Посилання на коментар Поділитися на інших сайтах More sharing options...
Jazzter Опубліковано: 25 лютого 2012 Автор Поділитись Опубліковано: 25 лютого 2012 Мне понравилось все толково. Особенно с лестницей интересно получилось, сколько смотрел проектов, везде лестница занимает большую часть 1-го этажа и простраство распределяется нерационально. Интересует для чего были сделаны выступы в кухне и гостинной?? Для того чтобы было больше света? Хотелось бы посмотреть 2-й этаж с размерами и фасады. Эркеры сделал что бы разнообразить архитектуру фасадав, квадратный в плане домик скучно смотрится. С фасадами еще не определился, точнее не определился с формой крышы, а уж после решения криши и буду думать над фасадами. Может ктото чтото посоветует по поводу криши Посилання на коментар Поділитися на інших сайтах More sharing options...
Archist Опубліковано: 25 лютого 2012 Поділитись Опубліковано: 25 лютого 2012 Эркеры сделал что бы разнообразить архитектуру фасадав, квадратный в плане домик скучно смотрится. С фасадами еще не определился, точнее не определился с формой крышы, а уж после решения криши и буду думать над фасадами. Может ктото чтото посоветует по поводу криши Эркеры конечно разнообразят архитектуру фасада, но и крышу приподняли в цене процентов на 30! Одно могу сказать, что металочерепица здесь уже не пойдет (слишком много отходов). Думайте по поводу натуральной или битумной черепицы. Посилання на коментар Поділитися на інших сайтах More sharing options...
TopSecret Опубліковано: 28 лютого 2012 Поділитись Опубліковано: 28 лютого 2012 Критика будет. Подождите немного и архитекторы вас раскритикуют. С моей точки зрения обывателя у вас засилье эркеров. Но это на любителя. Нет комор и кладовок при достаточно большой площади застройки. В вашем случае ничто не мешает сделать кухню на север отзеркалив проект. Тут много сторонников того, что с кухни обязательно должен быть вид на дорогу - кто заходит/выходит. И ещё: где план второго этажа? А какая разница, что кухня на юг? Ну будет там потеплее, но сауны все ровно не будет... На мой взгляд это не принципиально. ;) Посилання на коментар Поділитися на інших сайтах More sharing options...
Рекомендовані повідомлення
Створіть акаунт або увійдіть у нього для коментування
Ви маєте бути користувачем, щоб залишити коментар
Створити акаунт
Зареєструйтеся для отримання акаунта. Це просто!
Зареєструвати акаунтУвійти
Вже зареєстровані? Увійдіть тут.
Увійти зараз