Head Опубліковано: 6 березня 2012 Поділитись Опубліковано: 6 березня 2012 Глядя на эскиз "Оптимального дома" архитектора Ермакова К.В. architek.spb.ru/ready_projects/projects/optimalnyjj-1/, работаю над проектом дома для своей семьи. Отсюда и название темы. В южной части на первом этаже спальня и большая общая комната (гостиная, столовая). Над ними две детские. В северной части дома тамбур, лестничный холл, санузлы и кухня-ниша. Все окна жилых комнат южные. Защищены свесом, затеняющим их летом. В северной части дома буферная зона между жилыми комнатами и внешней средой. Санузлы и кухня сблокированы, водопровод и канализация внутри дома минимальной длины. Дом каркасный, но перегородки каменные, несущие. Пол первого этажа по грунту. На первом этаже на пересечении перегородок предусмотрена ниша для воздущного дровяного котла. Сами перегородки полые (ТИСЭ). Предполагается использование перегородки между жилыми комнатами как отопительного щитка в паре с воздушным котлом. Кроме того, эта массивная стена расположена так, что она оптимально аккумулирует энергию солнечного света, падающего не неё через южные окна. Кровля из волнистых асбестоцементных листов. Без отходов. Только целые листы или распиленные пополам. Сам не архитектор, не конструктор, не строитель. Имею печальный опыт работы с профессионалами. Решил всё делать сам. Надеюсь на вашу помощь и поддержку в работе над проектом. 1 Посилання на коментар Поділитися на інших сайтах More sharing options...
Artyomovets Опубліковано: 6 березня 2012 Поділитись Опубліковано: 6 березня 2012 к профессионалам все-таки надо сходить. поскольку стена 2-го этажа, которая в аккурат по середине гостиной получается, как-то мне кажется подозрительной... 1 Посилання на коментар Поділитися на інших сайтах More sharing options...
zapbl4 Опубліковано: 6 березня 2012 Поділитись Опубліковано: 6 березня 2012 С виду все компактно и гармонично, но!!! соглашусь с Artyomovets, несущая стена в воздухе это не есть хорошо, тут профи должны поработать чтоб решить данную задачу. И, если логично подумать что будут дети, значит есть жена, из этого следует вопрос: а не маловата ли 3*4 спальня для двух? я себе сделал 4*4, и то иногда кажется что маловато пространства, хотя посмотрю когда мебель станет. посему предложение: модет стоит поднять вашу спальню на второй этаж, тогда и проблема с висячей стеной пропадет, и на первом этаже можно будет сделать котельню, там же разместить стиралку, например, и даже место для гардероба будет небольшое З.Ы. гдето вычитал что лестничный пролет должен быть 110 см в ширину, это чтоб носилки прошли без проблем, в жизни всякое бывает 1 Посилання на коментар Поділитися на інших сайтах More sharing options...
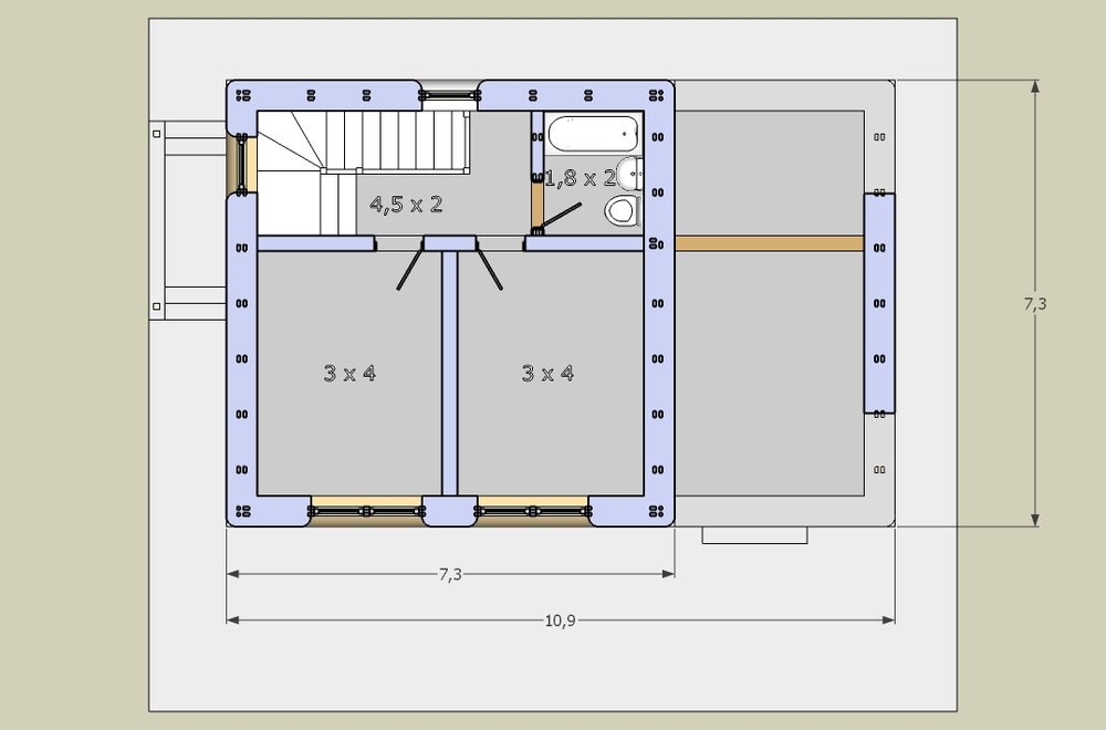
Head Опубліковано: 6 березня 2012 Автор Поділитись Опубліковано: 6 березня 2012 (змінено) Спасибо за правильные вопросы! Проверить на прочность в прямом и переносном смысле конструктив и архитектурно-планировочные решения - это как раз то, за чем я к вам пришел. Теперь по порядку. На несущую стену в воздухе я смотрю как на плоскую ферму с деревянными параллельными поясами, деревянными стойками и стальными раскосами. Честно признаюсь, пока не считал ее на прочность и устойчивость, но, учитывая что ферма нагружена только относительно легкой крышей и чердачным перекрытием, думаю, всё будет в порядке. Задавая размеры спальни и лестницы, учитывал мнение жены и требования ДБН В.2.2-15-2005 (ЖИЛЫЕ ЗДАНИЯ. ОСНОВНЫЕ ПОЛОЖЕНИЯ) 2.12 В одноквартирных, двухквартирных и сблокированных жилых зданиях высотой до трех этажей ширина марша внутренней лестницы должна быть не менее 0,9 м. Думаю, с лестницей всё нормально. Ширина - метр. 2.24 Минимальная площадь спальни на одного человека - 10 м2, на двоих -14 м2. 12 м2 - ни нашим, ни вашим. Для детей нормально, а спальня маловата. Надо подумать. По началу спальня и будет на втором этаже. Дочери 4 года, будет спать с братом. Мы с женой рядом. Комната на первом этаже нужна для работы на дому. Позже, когда дети подрастут, каждому нужна будет своя комната. Наша спальня уйдёт вниз. Не уверен, что дети всегда будут жить с нами. Возможно, кто-то из бабушек-дедушек будет жить в нашем доме. Тогда мы с женой снова переберёмся наверх. Котельная не нужна. Закладываюсь не на отопление, а на утепление. Дровяная печь по плану встроена в межкомнатную перегородку. К участку подведено три фазы 15 кВт с ночным тарифом. Запасной парашют - газ (если что, котёл на кухню). Гардеробная - да, больное место. Змінено 6 березня 2012 користувачем Head Заменил мутную картинку с лестницей Посилання на коментар Поділитися на інших сайтах More sharing options...
zapbl4 Опубліковано: 7 березня 2012 Поділитись Опубліковано: 7 березня 2012 2.12 В одноквартирных, двухквартирных и сблокированных жилых зданиях высотой до трех этажей ширина марша внутренней лестницы должна быть не менее 0,9 м. Думаю, с лестницей всё нормально. Ширина - метр. [ATTACH]170268[/ATTACH] 2.24 Минимальная площадь спальни на одного человека - 10 м2, на двоих -14 м2. 12 м2 - ни нашим, ни вашим. Для детей нормально, а спальня маловата. Надо подумать. ... Котельная не нужна. Закладываюсь не на отопление, а на утепление. по лестнице норма именно такая как вы сказал, но я как то смотрел передачу по капитальному ремонту особняка, так там как раз было уделено много внимания на расширение лестнице по причине что я озвучил.. передача хоть и забугорная, но у нас все больше и больше появляется забугорных спец машин, естественно с забугорным оборудованием и их стандартами.. что касается спален - детям в самый раз, а вот взрослым двоим мало, очень мало.. вы поставьте в нее полноценную двуспальную кровать и у вас останется уже по пол метра вокруг нее... котельня скорей не как громадный комплекс по отоплению, а отдельное помещение с оборудованием не более.. свою котельню я сделал в гараже, ибо вешать котел, хоть он и красивый не стал в жилых помещениях... З.Ы. по поводу стены, к сожалению, ничего сказать не могу ибо не специалист в этом, а советовать в такой сфере, не разбираясь, опасно ... 1 Посилання на коментар Поділитися на інших сайтах More sharing options...
Alisa3 Опубліковано: 7 березня 2012 Поділитись Опубліковано: 7 березня 2012 А мне планировка вообще не нравится. Вы уж простите. Узкий коридор при входе: ни тебе гардеробной, ни кладовки. До кухни топать через коридор и гостинную метров 8, не меньше. Про несущую стену на втором я молчу, ибо тоже не шарю . Ну какой-то этот дом как по мне совсем не оптимальный. Но это только моё мнение. Посилання на коментар Поділитися на інших сайтах More sharing options...
Head Опубліковано: 7 березня 2012 Автор Поділитись Опубліковано: 7 березня 2012 Всё верно, планировка не идеальна. Как хозяйка Вы правы. К сожалению, финансы поют романсы. Поэтому сразу после списка "что надо" последовал вопрос: "Без чего можно обойтись?" Цитата из описания проекта-прототипа: "Проект этого дома разработан в рамках антикризисной программы. Он предельно компактен и экономичен. Для его строительства подойдет даже маленький кусочек земли." Если бы не третья спальня, оставил бы всё как в оригинале. Посилання на коментар Поділитися на інших сайтах More sharing options...
Alisa3 Опубліковано: 7 березня 2012 Поділитись Опубліковано: 7 березня 2012 Вы знаете, размеры домика достаточно приличные, чтобы подыскать более удачную планировку. или хотя бы поменять кухню с комнатой местами что ли... Посилання на коментар Поділитися на інших сайтах More sharing options...
Head Опубліковано: 7 березня 2012 Автор Поділитись Опубліковано: 7 березня 2012 Самое время поговорить о критериях оптимальности при выборе планировки. Оптимальный состав с моей точки зрения: 1. Общая для всех членов семьи комната. Она же гостиная, она же столовая. Следовательно, близость кухни - необходимое условие. Желателен выход на террасу. Опять же поближе к кухне. 2. Кухня. Поскольку функции столовой с неё сняты, размеры минимальны. Объединив широким проёмом с местом приёма пищи в общей комнате, добавим визуального пространства обеим зонам и комфорта в общении с хозяйкой. В то же время кухня остаётся кухней, а не местом для приготовления пищи в общей комнате. Я за кухню-нишу. 3. Спальня. Не очень хорошо понимаю, что такое приватная зона, когда справа через перегородку один ребёнок, а слева другой. Возможно, тот, кто строит свой дом для гостей, сможет мне объяснить смысл вертикального деления дома на приватную и публичную зону. Пока что не вижу проблемы, которую это зонирование решает. Спальня рядом с общей комнатой. 4. Детские. Вот тут встаёт вопрос что лучше: бег по лестнице или бег по периметру. Площадь, занимаемую лестницей, в расчет не беру, т.к. она либо включается в обязательный холл, либо располагается поверх санузла, кладовки или тамбура. "Украшением гостиной" её не считаю. А вот площадь детских либо отражается на площади крыши и пятна застройки, на размерах фундамента, либо нет. Стены в расчёт не беру, в моём случае их цена минимальна. Детские на втором этаже. Он весь как бы их. 5. Санузлы. Даже если строил бы в один этаж, делал бы два. Не люблю очередей. Еще не люблю смотреть как в канализацию утекает холодная вода, пока жду горячую. Расстояние от бойлера до кранов в санузлах и кухне должно быть минимальным. Уже молчу о том, что бывает, когда забивается канализация в лабиринтах под домом. 6. Гардеробная, кладовая, прачечная, котельная, а так же бильярдная, кинозал, сауна, бассейн. Не могу сказать, что они не нужны. Но действительно ли необходимы? Именно в доме? Больше на участке ничего не будет? Вспоминается анекдот. Закончилась посадка на суперлайнер ИЛ-2086. В салон выходит стюардесса: Дамы и господа, для того, чтобы помочь вам скоротать время полета, на борту нашего лайнера имеются библиотека, кинозал, три бара, ресторан, бассейн и два теннисных корта. А теперь я попрошу вас пристегнуть ремни безопасности, потому что сейчас вместе со всей этой х...ней мы попытаемся взлететь! Что касается оптимальности объемно-планировочного решения - сплошной компромисс. Архитектура конфликтует с конструктивом, эргономика с фен-шуем, Пассивный солнечный дизайн со строительными нормами и правилами. Посилання на коментар Поділитися на інших сайтах More sharing options...
Head Опубліковано: 21 червня 2012 Автор Поділитись Опубліковано: 21 червня 2012 Едем дальше. Отчёт о проделанной работе: Огонь-батарея уступила место чугунной топке в общей комнате. Тёплая стена за камином приобрела окончательную структуру, согласованную с печниками. Создана модель несущих конструкций дома. Поэлементно заданы размеры, сечение, материал. Описаны грунты основания, нагрузки и их сочетания. Проведен расчёт прочности конструкции в целом. И всё бы ничего, но не даёт покоя сомнительная устойчивость каменных перегородок, вплетённых в деревянный каркас... Посилання на коментар Поділитися на інших сайтах More sharing options...
Head Опубліковано: 21 червня 2012 Автор Поділитись Опубліковано: 21 червня 2012 Несколько слов о каркасе и его заполнении. Железобетонная часть каркаса обрамляет каменные перегородки из пиленного нуммулитового известняка и пескобетонные блоки ТИСЭ-3 ("печка"). Деревянные стойки пронизывают стены из прессованных соломенных блоков. Подробнее покажу деревянный каркас. Соломенные блоки с размерами 450х350х900 будут уложены между парными стойками каркаса (50х100) ... и допрессованы с фиксацией брусом (50х100) на ребро. Как-то так: Перекладины будут связаны со стойками стальными нагелями (гвозди 150): Ну и остальные узлы до кучи. Перекрытие первого этажа: Чердачное перекрытие: Раскосы из стальной монтажной ленты, стянутой в узлах шпильками: Железобетонный и деревянный каркасы связаны стальными анкерами. Перекрытия деревянные, на уровне перекрытий по всему периметру дома деревянные пояса составного профиля. Посилання на коментар Поділитися на інших сайтах More sharing options...
Mentor Опубліковано: 22 червня 2012 Поділитись Опубліковано: 22 червня 2012 Вот читаю и недоумеваю по поводу "оптимальности": каркас железобетонный, каркас деревянный, стальные связки, запрессовка соломенных блоков, каменные перегородки вплетенные в деревянный каркас.....Это просто какой-то технологический ужос, граничащий с мазохизмом. Я восхищаюсь вашим детальным, педантичным подходом к делу - расчет, визуализация, спорные архитектурно-планировочные решения, НО...нахиба оно вам нужно???? Не ищете легких путей? Повторюсь: с одной стороны восхищаюсь этой дотошностью, с другой просто не приемлю таких технологических усложнений...За темкой послежу, не тривиально.... Посилання на коментар Поділитися на інших сайтах More sharing options...
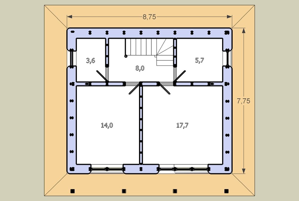
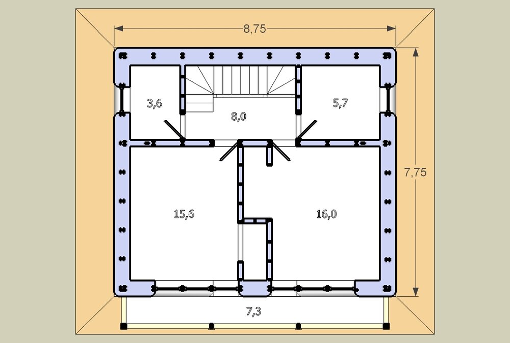
Head Опубліковано: 30 червня 2012 Автор Поділитись Опубліковано: 30 червня 2012 Учитывая многочисленные замечания и собственные сомнения, доработал проект напильником. "Рухнули" каменные стены, а за одно и висящая стена над гостиной. Козырёк, затеняющий окна первого этажа, стал более функциональным, превратился в балкон. Крыша развернулась одним скатом к южному солнцу, затеняя окна второго этажа. Размеры подобраны так, что окна полностью затенены с конца апреля по конец августа, и залиты прямыми лучами солнца с октября по февраль. Южный фасад в полдень 21 января: Южный фасад в полдень 21 августа: У каждой опоры балкона будет посажен куст винограда, а между опорами натянутся шпалеры. Со временем весь южный фасад с июля по октябрь будет закрыт виноградными листьями. Бонус - уборка урожая. Большая часть остекления по-прежнему ориентирована на Юг. В северной части только фрамуги в санузлах и окно над лестницей. Южный скат кровли увеличился в размерах и стал воздушным солнечным коллектором. Пока это только стальной профнастил. В идеале не помешала бы сверху такая черепица: vasiliy-pdk.livejournal.com/18377.html. В качестве аккумулятора тепла хочу использовать грунт под глиняным полом первого этажа, а в качестве теплообменника применить два слоя шифера б/у, уложенных перпендикулярно друг на друга. Продувая канал между листами воздухом из подкровельного пространства, буду греть сразу и пол первого этажа над верхним слоем, и грунт под нижним слоем шифера. В южных углах дома - обратные воздушные каналы под кровлю. Ответ на вопрос "почему так?": dront.ru/old/obereg/litera/passiv-sun-disign.doc dom.delaysam.ru/ekootoplen/ekootoplen8.html Дом стал компактнее в плане, но площадь комнат при этом увеличилась. Ушла кухня-ниша, но появилась кладовая-гардеробная на втором этаже. Перегородка между детскими стала двумя встроенными шкафами. Это связано в том числе со сменой концепции системы отопления. "Тёплая перегородка" по центру уступила место "тёплому плинтусу" по периметру дома. План первого этажа: План второго этажа: Немного переработан и каркас. Перекрытия зацепились за все стены по периметру и превратились в полноценные диски жесткости. Увеличившийся пролёт наслонных стропил (под южным скатом кровли) укреплён двумя фермами и промежуточным прогоном. Дом стал на сейсмоизолирующий фундамент. Так лучше? Посилання на коментар Поділитися на інших сайтах More sharing options...
Hover Опубліковано: 30 червня 2012 Поділитись Опубліковано: 30 червня 2012 нет уважаемый так дело не пойдет, или вы пытаетесь привлечь клиентов или действительности начитались книг по строительству. Хотя второе более ближе. Если строить каркасник так и планируйте и разрабатывайте а не смешивайте различные технологии строительства вместе. Многие люди действительно верят что все в их руках и разберутся во всем, да доля правды в этом есть, но обратная сторона медали уж очень неприятна. У меня есть знакомый который решил сам оштукатурить стенку казалось бы пустяковое дело но я знал что мастерок он будет держать в первый раз в своей жизни, на что он мне сказал почитаю посмотрю и не спеша сам все сделаю, тут я ему возразил, сказав тут очень большую роль играет опыт а от того что прочтешь увидишь толку ноль, приступил он как и говорил не спеша, вначале все сделал правильно но когда пришло время накидывать раствор и было испорчено два мешка сухой штукатурки, был приглашен штукатур. Так что еще раз все хорошо взвесьте. Посилання на коментар Поділитися на інших сайтах More sharing options...
tort Опубліковано: 1 липня 2012 Поділитись Опубліковано: 1 липня 2012 нет уважаемый так дело не пойдет, или вы пытаетесь привлечь клиентов или действительности начитались книг по строительству. ... К чему это? Посилання на коментар Поділитися на інших сайтах More sharing options...
Деревянщик Опубліковано: 1 липня 2012 Поділитись Опубліковано: 1 липня 2012 На несущую стену в воздухе я смотрю как на плоскую ферму с деревянными параллельными поясами, деревянными стойками и стальными раскосами. Честно признаюсь, пока не считал ее на прочность и устойчивость, но, учитывая что ферма нагружена только относительно легкой крышей и чердачным перекрытием, думаю, всё будет в порядке. Основная нагрузка на кровлю это не только и столько вес самой конструкции. А про снег Вы забыли, а ветровая нагрузка? А передача нагрузки на фундамент? Фактически ваш ленточный фундамент предназначенный для РАВНОМЕРНОЙ передачи нагрузок, получит в двух местах точечную нагрузку от вашей "фермы". Кстати в основе любой фермы лежит треугольник, как наиболее статичная геометрическая фигура. Ваша же "ферма" пока абсолютно не ферма, а композиция метал-дерево и хороша она для изготовления бочек. В строительстве домов такой дуэт - плохо, из-за возникновения конденсата между деревом и металом и соответсвенно это приводит к быстрому гниению дерева. Вобщем,. обратить к специалистам, потому что нельзя стать доктором прочитав только лишь "Медецинскую энциклопедию" Посилання на коментар Поділитися на інших сайтах More sharing options...
Head Опубліковано: 1 липня 2012 Автор Поділитись Опубліковано: 1 липня 2012 У меня складывается впечатление, что тринадцатое сообщение некоторые форумчане принципиально не читают. Ладно, пишу ещё раз: в проекте нет больше каменных и висящих стен. Посилання на коментар Поділитися на інших сайтах More sharing options...
Head Опубліковано: 2 липня 2012 Автор Поділитись Опубліковано: 2 липня 2012 Дошел до чердачного перекрытия. Именно оно должно замкнуть все стены дома в жесткую коробчатую структуру. Учитывая особенности теплоизоляции - соломенных тюков, уложенных на ребро, - настил получился, мягко говоря, необычным. Думаю, что проложить между двумя слоями дюймовки. С точки зрения огнестойкости конструкции в целом рулит тонкий стекломагнезит. А так и мембраны пароизоляционной достаточно. Тюки только перед укладкой придётся окунать нижним торцом в жидкую глину. Посилання на коментар Поділитися на інших сайтах More sharing options...
Head Опубліковано: 2 липня 2012 Автор Поділитись Опубліковано: 2 липня 2012 В качестве научного бреда рассматриваю такой вариант основы для саманного пола на втором этаже: Каждый лист шифера равномерно опирается на обрешетку в 28 точках. Шаг решетки 320мм. С учётом высоты волны, толщина глинобетона - 40-80мм. Варианты финишной обработки саманного пола обсуждались здесь. Фото буржуйского учебного курса по укладке саманного пола в мансарде: Посилання на коментар Поділитися на інших сайтах More sharing options...
Sinus7777 Опубліковано: 3 липня 2012 Поділитись Опубліковано: 3 липня 2012 Мне кажется не стоит делать саманный пол на деревянном перекрытии. Сочетание "гибкое основание - жёсткое покрытие" не лучший вариант. Рано или поздно появятся трещины. Если это необходимо для звукоизоляции, то лучше сделать отсыпку песком по простеленному пергамину. Песок, заодно несколько увеличит теплоёмкость внутри дома. 1 Посилання на коментар Поділитися на інших сайтах More sharing options...
Head Опубліковано: 3 липня 2012 Автор Поділитись Опубліковано: 3 липня 2012 Всё верно, звукоизоляция. Песок эффективнее в этом смысле. С чернового пола по черепным брускам и 5 см песка и начинал. Чистовой пол из шпунтовки, лаги без жесткой связи с балками перекрытия, на пробковых прокладках (плавающий пол), снизили бы и ударные-структурные шумы. Но сам настил чистового пола при этом - дорогой барабан. Конструктивным элементом не является. Жесткость горизонтального диска в плоскости перекрытия и прочность поперёк балок при этом надо еще постараться обеспечить раскосами. А в моём случае не известно, что важнее: надёжный диск жесткости или хорошая звукоизоляция. Сейсмика - 8 баллов. Поэтому и зашел с другого конца - с обеспечения жесткости конструкции. В старых книгах диагональный разреженный настил под чистовым полом - стандартный элемент каркаса. На чердачном перекрытии мне не нужен чистовой пол. Перевернул ортогонально второй слой косого настила и получил отличный, на мой взгляд, результат. А вот на втором этаже засомневался. Между балками 700-850мм, не мало. Пол не должен быть зыбким между балками, а двойной косой настил доской 25х100 (уже куплена для чернового пола) достаточно гибок. Лист шифера (б/у конечно), лежащий поперёк балок на достаточно частой решетке - уже что-то. Да плюс глинобетон распределит немного точечную нагрузку... Есть второй вариант менее жесткий на изгиб, за то диск жесткости - ого-го! Речь идёт о листовой прокладке (фибролит, ЦСП) между двумя слоями косого настила, прошитой насквозь двумя гвоздями на пересечениях досок верхнего и нижнего настила. Причём лист за счёт совместной работы с настилом может быть достаточно тонким. Поверх листа - глинобетон. Смущает, что такой лист толщиной 18 мм уже и сам может нести бетонную плиту 50-70мм: Посилання на коментар Поділитися на інших сайтах More sharing options...
Head Опубліковано: 3 липня 2012 Автор Поділитись Опубліковано: 3 липня 2012 Кажется, нашел интересный вариант пола второго этажа. Снизу вверх: - косой настил поверх балок перекрытия; - лист фибролита (GB); - поперечный косой настил; - песок 5 см; - лаги 25х100, утопленные в песок между досками косого настила; - тонкая шпунтованная доска, стянутая на лагах. Т.е. чистовой пол плавает в песке на черновом полу. Знаю, что делают что-то подобное, стягивая по кромкам на утопленных в песок брусках цементно-стружечные плиты. Из проблем вижу отсутствие вентиляции между фибролитом и настилом чистового пола. Возможно, бухтеть и пылить будет. Посилання на коментар Поділитися на інших сайтах More sharing options...
Head Опубліковано: 4 липня 2012 Автор Поділитись Опубліковано: 4 липня 2012 Укладка паркетной доски (лаги на песке): Статья с описанием процесса: rembud.ru/4/2_48.html Альтернативные варианты: www.oltagrup.ru/s/53.htm Посилання на коментар Поділитися на інших сайтах More sharing options...
Head Опубліковано: 4 липня 2012 Автор Поділитись Опубліковано: 4 липня 2012 Раскосы в стенах: Предполагается сначала запрессовка соломенных блоков в вертикальные колонны с раскосами, а потом уже во все остальные ячейки. Так будет легче крепить раскосы к стойкам. Тюки под раскосы (100х50) думаю предварительно прорезать бензопилой (протыкать по диагонали). Если не пойдёт, вместо дерева будет железо. Монтажную ленту буду крепить к заострённому концу стального уголка и прошивать три тюка сразу по диагонали. Крепление ленты к стойкам - глухарями. Средние вертикальные фермы в стенах, возможно, лишние. Ветер стены держат с большим запасом и без них. Посилання на коментар Поділитися на інших сайтах More sharing options...
Sinus7777 Опубліковано: 4 липня 2012 Поділитись Опубліковано: 4 липня 2012 Мне кажется утапливание лаг в песок, чётко по одному уровню, будет то ещё занятие. И нет гарантии, что что они потом не дадут неравномерную осадку из-за того что разные участки полу эксплуатируются по разному. Может лучше вместо лаг 25х100 использовать бруски 50х50 положив их, ещё до засыпки песка, на диагональные доски (пусть через те-же пробковые прокладки). Таким образом 1/2 толщины бруска находится в песке и опирается на него, но есть и фиксированные точки опоры. К тому-же получаем вентзазор в 2,5 см. Без него действительно доски пола при ходьбе будут прогибаясь работать мембранами гоняя пыль через щели. 1 Посилання на коментар Поділитися на інших сайтах More sharing options...
Рекомендовані повідомлення
Створіть акаунт або увійдіть у нього для коментування
Ви маєте бути користувачем, щоб залишити коментар
Створити акаунт
Зареєструйтеся для отримання акаунта. Це просто!
Зареєструвати акаунтУвійти
Вже зареєстровані? Увійдіть тут.
Увійти зараз