ts3 Опубліковано: 15 березня 2012 Поділитись Опубліковано: 15 березня 2012 Про заложку даже намека не было,да надо установить правильно подобраный!!! Ну и не "отапливать же воздух на улице", а лучше утеплить стены перекрытие, чем ставить потом еще больший радиатор Ну вот и RAMMAN говорил о том, что размер радиатора зависит ТОЛЬКО от теплопотерь. А вот теплопотери зависят от площади окна, стен, их структуры. Под одно и тоже окно нужно ставить: если окно двухкамерное, с инертным газом - "маленький" радиатор если окно однокамерное, до конца не закрывается - бОльшой радиатор. Согласны? Посилання на коментар Поділитися на інших сайтах More sharing options...
#Vladimer# Опубліковано: 15 березня 2012 Поділитись Опубліковано: 15 березня 2012 Ну вот и RAMMAN говорил о том, что размер радиатора зависит ТОЛЬКО от теплопотерь. А вот теплопотери зависят от площади окна, стен, их структуры. Первый раз я же вроде написал что, если по простому без формур и т.д. То берем такие то коэффициенты, но они отталкивались, от количества окон и площади комнаты. Согласны со мною? А если взять к примеру комнату, что на плане 7,7м2, то при Коеф. что я написал 1,2 кВт надо мощность 924 Вт. Если посчитать по формуле, учитывая примерн. площадь окна, наружных стен, обьем комнаты, то получается примерно 830 Вт И выбирая Радиатор, для 924 размер 500*900 тип 22, для 830 Вт 500*800, при темп.70/50/22, что по цене окажется не на много больше, и котел будет работать не на полную, и всегда есть запас мощности. Как то так. Под одно и тоже окно нужно ставить: если окно двухкамерное, с инертным газом - "маленький" радиатор если окно однокамерное, до конца не закрывается - бОльшой радиатор. Согласны? Здесь согласен! На первый случай можно меньший радиатор На второй конечно больше, так как холодного потока от окна будет больше. Посилання на коментар Поділитися на інших сайтах More sharing options...
Igor_M Опубліковано: 15 березня 2012 Поділитись Опубліковано: 15 березня 2012 Радиаторы для Вашей системы лучше ставить стальные. Как раз сейчас тоже подбираю радиаторы. Стальные предоставляют много вариантов для "маневра". Скажем, можно выбрать из типов - 11, 21, 22, 33. И при этом соблюсти рекомендации по "покрытию" 80% оконного проема. Например, есть окно шириной 1,2м. Радиатор "оптимальный" 1000х600. Если теплопотери помещения составляют: 1) до 1300Вт, то можно ставить 11 тип - у него мощность 1350Вт; 2) до 1700Вт, то можно ставить 21 тип - у него мощность 1750Вт; 3) до 2200Вт, то можно ставить 22 тип - у него мощность 2224Вт; 4) до 3000Вт, то можно ставить 33 тип - у него мощность 3100Вт. Мощности для примера взяты для радиаторов Корадо при параметрах 90/70/20 (температура подачи / обратки / помещения). Но крайне желательно выбирать температурный режим поменьше - например 70/55/20. Там уже другие мощности... Например, тип 22 при таком режиме сможет "отдать" только 1500Вт... Самое ВАЖНОЕ - рассчитать теплопотери ПОМЕЩЕНИЯ. 2 Посилання на коментар Поділитися на інших сайтах More sharing options...
ts3 Опубліковано: 15 березня 2012 Поділитись Опубліковано: 15 березня 2012 Самое ВАЖНОЕ - рассчитать теплопотери ПОМЕЩЕНИЯ. И не загадать экзотических размеров, срок поставки которых - 2.5 месяца 2 Посилання на коментар Поділитися на інших сайтах More sharing options...
Igor_M Опубліковано: 16 березня 2012 Поділитись Опубліковано: 16 березня 2012 И не загадать экзотических размеров, срок поставки которых - 2.5 месяца "Время ПОКА терпит" - До начала отопительного сезона еще вагон и маленькая тележка...;) Так что самое время подумать о дизайне и поставить такие радиаторы, которые гармонично впишутся, а не такие, которые "остались" на складах. У меня сосед делал отопление под самую зиму. В итоге у него часть радиаторов Kermi, часть - Е.С.А. (сказали, что типа "испания", но на самом деле - турция), а еще чать - Ромсталовские (типа "наши", но очень похоже на китайские)... Вот такой вот винегрет. Так что "готовь сани летом!":beer: Посилання на коментар Поділитися на інших сайтах More sharing options...
sergeystav Опубліковано: 17 березня 2012 Автор Поділитись Опубліковано: 17 березня 2012 (змінено) Как раз сейчас тоже подбираю радиаторы. Стальные предоставляют много вариантов для "маневра". Скажем, можно выбрать из типов - 11, 21, 22, 33. И при этом соблюсти рекомендации по "покрытию" 80% оконного проема. Например, есть окно шириной 1,2м. Радиатор "оптимальный" 1000х600. Если теплопотери помещения составляют: 1) до 1300Вт, то можно ставить 11 тип - у него мощность 1350Вт; 2) до 1700Вт, то можно ставить 21 тип - у него мощность 1750Вт; 3) до 2200Вт, то можно ставить 22 тип - у него мощность 2224Вт; 4) до 3000Вт, то можно ставить 33 тип - у него мощность 3100Вт. Мощности для примера взяты для радиаторов Корадо при параметрах 90/70/20 (температура подачи / обратки / помещения). Но крайне желательно выбирать температурный режим поменьше - например 70/55/20. Там уже другие мощности... Например, тип 22 при таком режиме сможет "отдать" только 1500Вт... Самое ВАЖНОЕ - рассчитать теплопотери ПОМЕЩЕНИЯ. окно шириной 90см их в зале два, и в комнате две наружные стены,как расчитать теплопотери комнаты и какие взять под комнату радиаторы площадь комнаты 21кв.м Котел будет Пантера 25KOV,радиаторы стальные, присмотрел фирмы HENRAD и PRADO,что посоветуете? Змінено 17 березня 2012 користувачем sergeystav Посилання на коментар Поділитися на інших сайтах More sharing options...
sergeystav Опубліковано: 21 березня 2012 Автор Поділитись Опубліковано: 21 березня 2012 посоветуйтее Посилання на коментар Поділитися на інших сайтах More sharing options...
Interso Опубліковано: 21 березня 2012 Поділитись Опубліковано: 21 березня 2012 посоветуйтее Высота потолков и высота до подоконника какая. Посилання на коментар Поділитися на інших сайтах More sharing options...
sergeystav Опубліковано: 21 березня 2012 Автор Поділитись Опубліковано: 21 березня 2012 Высота потолков и высота до подоконника какая. Высота потолков 2,7м, высота до подоконника 75см Посилання на коментар Поділитися на інших сайтах More sharing options...
Igor_M Опубліковано: 21 березня 2012 Поділитись Опубліковано: 21 березня 2012 окно шириной 90см их в зале два, и в комнате две наружные стены,как расчитать теплопотери комнаты и какие взять под комнату радиаторы площадь комнаты 21кв.м Котел будет Пантера 25KOV,радиаторы стальные, присмотрел фирмы HENRAD и PRADO,что посоветуете? В смысле данных маловато... Давайте начнем с самого начала: 1. Размеры комнаты (ширина - длина) 2. Высота потолков 3. Какие стены наружные (длина) 4. Что за внутренними стенами за помещения? 5. Что под полом? 6. Что за потолком? 7. Материал наружных стен - полный "пирог" 8. Материал внутренних стен - полный "пирог" 9. Что за пол - полный "пирог" 10. Что за потолок - полный "пирог" 11. Какие у вас окна: ширина - высота? 12. "Формула" окна: какой профиль и стеклопакет? 13. Сторона света, куда выходят наружные стены? 14. Преимущественная роза ветров? 15. Назначение помещения? 16. Желаемая температура в помещении? 17. Как организована вентиляция? 18. Из какого материала двери межкомнатные? ............................. Тогда можно будет ПРИМЕРНО подсчитать теплопотери... А можно как все. 100 Вт/м2... итого при 21м2 получаем 2100Вт. Запас на всякий случай - 20% (вентиляция, инфильтрация, пиковые заморозки - ниже 22 градусов и т.п...) Получается 2520 Вт. Ширину радиатора возьмем 800мм, высоту 500. Допустим вы хотите иметь 22 градуса (для гостиной нормально будет?) Если взять высокотемпературный режим 90/70/22 Тогда подходят скажем Пурмо 22-й тип. Каждый отдаст 1366Вт. Суммарно будет 2732 Вт... НО ЭТО НЕПРАВИЛЬНО!!! Для стальных радиаторов 90/70 ПЛОХО. Возьмем оптимальный для них режим - 70/55/22. Тогда подходят скажем Пурмо 33-й тип. Каждый отдаст 1209Вт. Суммарно будет 2418 Вт... чуток не хватает. Увеличим ширину до 900мм (высоту уже некуда). Тогда 33-й с такими размерами 900х500 отдаст 1360 Вт. Суммарно будет 2720 Вт... ТО ШО НАДА? А теперь подумайте - оно вам надо? 33-й тип имеет толщину 16см. Вы уверены, что это впишется в дизайн??? Может, все-таки подсчитать теплопотери нормально и тогда выяснится, что и 22-й тип подходит... и спать спокойно будете. В-общем, берите нужные цифры (см. пп 1-18), подставляйте в формулы и получите ответ... 2 Посилання на коментар Поділитися на інших сайтах More sharing options...
Interso Опубліковано: 21 березня 2012 Поділитись Опубліковано: 21 березня 2012 Высота потолков 2,7м, высота до подоконника 75см Два радиатора 22 тип 900х500 а лучше 1000х500 но немного будет выходить за проём окна. 1 Посилання на коментар Поділитися на інших сайтах More sharing options...
sergeystav Опубліковано: 21 березня 2012 Автор Поділитись Опубліковано: 21 березня 2012 Два радиатора 22 тип 900х500 а лучше 1000х500 но немного будет выходить за проём окна. интересно как будут смотреться,что выходят за проём окна Посилання на коментар Поділитися на інших сайтах More sharing options...
Interso Опубліковано: 21 березня 2012 Поділитись Опубліковано: 21 березня 2012 интересно как будут смотреться,что выходят за проём окна О, понятие о красоте.Вот и розкажите нам какие должны быть пропорции радиатора к окну чтоб всем нравилось.:D А там уж пусть топик сам решает или 33 ставить или проём окна розширять или высоту подоконников подымать.Или радоватся тому что есть. П.С. За шторами их и видно небудет,а через пол года топик и сам забудет что радиатор на 10см больше чем проём и то это бабка надвое сказала,так как есть ещё откосы. Посилання на коментар Поділитися на інших сайтах More sharing options...
naupv Опубліковано: 21 березня 2012 Поділитись Опубліковано: 21 березня 2012 О-па, а если там ниши под окнами? Посилання на коментар Поділитися на інших сайтах More sharing options...
Igor_M Опубліковано: 21 березня 2012 Поділитись Опубліковано: 21 березня 2012 О-па, а если там ниши под окнами? Тогда нужно брать радиаторы еще на 10% мощнее... ... а если декоративными щитами хотят закрыть, то еще 10% накинуть надо. Придется искать где-то 44-й или 55-й тип...;) Посилання на коментар Поділитися на інших сайтах More sharing options...
sergeystav Опубліковано: 21 березня 2012 Автор Поділитись Опубліковано: 21 березня 2012 какая схема отопления будет надёжней и правельней Посилання на коментар Поділитися на інших сайтах More sharing options...
Interso Опубліковано: 21 березня 2012 Поділитись Опубліковано: 21 березня 2012 А если, это догадки,так можно сказать а если там толщина стен 20см, а если в потолке окна. Если бы там были ниши то топик об этом уже бы сказал или по крайней мере раньше сказал,акцент на это был сказан мною что радиатор будет немного больше проёма. Посилання на коментар Поділитися на інших сайтах More sharing options...
sergeystav Опубліковано: 22 березня 2012 Автор Поділитись Опубліковано: 22 березня 2012 какая схема отопления будет надёжней и правельней так какая?? Посилання на коментар Поділитися на інших сайтах More sharing options...
naupv Опубліковано: 23 березня 2012 Поділитись Опубліковано: 23 березня 2012 так какая?? Вторая схема лучше, а если еще и закольцуете все, вообще будет песня, если не захотите, то сделайте так, например 3 Посилання на коментар Поділитися на інших сайтах More sharing options...
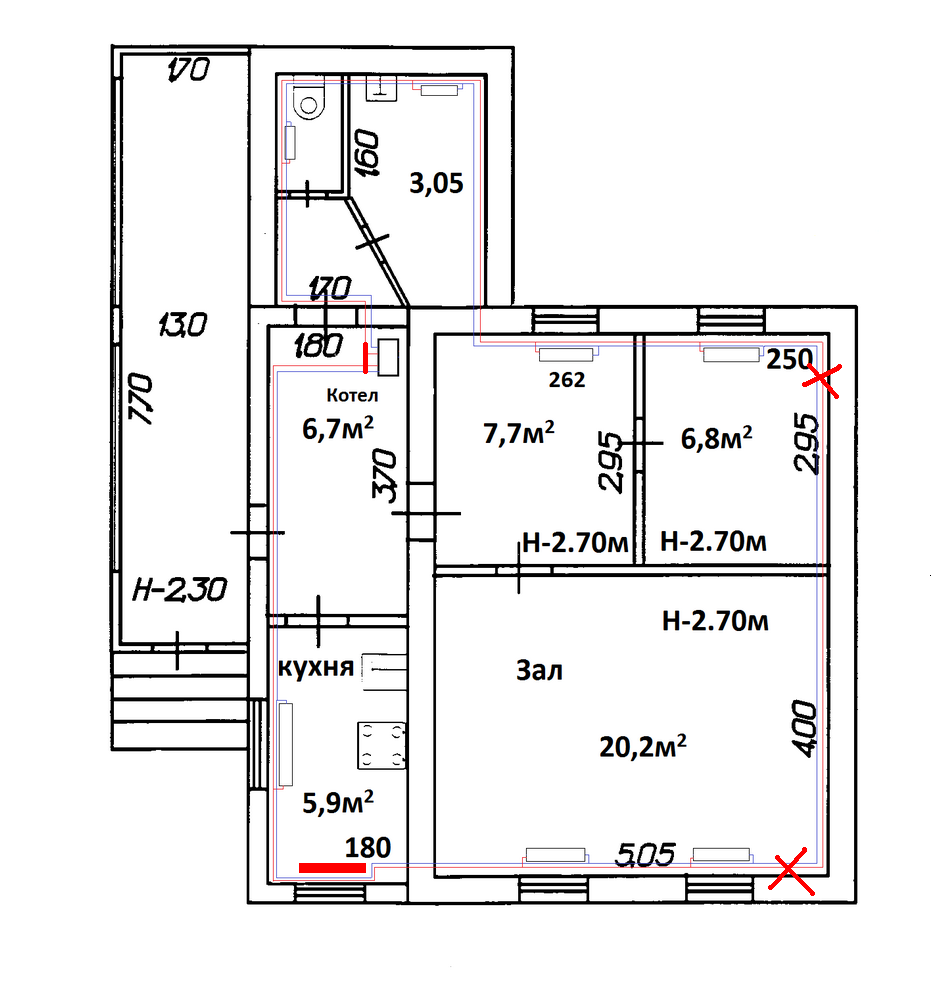
sergeystav Опубліковано: 23 березня 2012 Автор Поділитись Опубліковано: 23 березня 2012 именно закольцевать? вот так Посилання на коментар Поділитися на інших сайтах More sharing options...
naupv Опубліковано: 23 березня 2012 Поділитись Опубліковано: 23 березня 2012 Закольцевать, это значит пустить трубы и обратку и подачу по периметру квартиры, без всяких красных крестиков. У Вас что гребенка намечается у котла? 1 Посилання на коментар Поділитися на інших сайтах More sharing options...
sergeystav Опубліковано: 23 березня 2012 Автор Поділитись Опубліковано: 23 березня 2012 (змінено) Вторая схема лучше, а если еще и закольцуете все, вообще будет песня, если не захотите, то сделайте так, например Вторая схема закольцована и так. или я не прав? Добавлено через 35 секунд Закольцевать, это значит пустить трубы и обратку и подачу по периметру квартиры, без всяких красных крестиков. У Вас что гребенка намечается у котла? Думал поставить коллектор,но понял, он там ненужен!!! исправил СО Змінено 23 березня 2012 користувачем sergeystav Посилання на коментар Поділитися на інших сайтах More sharing options...
Interso Опубліковано: 23 березня 2012 Поділитись Опубліковано: 23 березня 2012 Вторая схема закольцована и так. или я не прав? Добавлено через 35 секунд Думал поставить коллектор,но понял, он там ненужен!!! исправил СО А вот это херня,закольцуйте от котла с кухней. Посилання на коментар Поділитися на інших сайтах More sharing options...
sergeystav Опубліковано: 23 березня 2012 Автор Поділитись Опубліковано: 23 березня 2012 А вот это херня,закольцуйте от котла с кухней. как? дорисуй как надо Посилання на коментар Поділитися на інших сайтах More sharing options...
Interso Опубліковано: 23 березня 2012 Поділитись Опубліковано: 23 березня 2012 как? дорисуй как надо Пост 45, только без хрестиков. Дорисовал Посилання на коментар Поділитися на інших сайтах More sharing options...
Рекомендовані повідомлення
Створіть акаунт або увійдіть у нього для коментування
Ви маєте бути користувачем, щоб залишити коментар
Створити акаунт
Зареєструйтеся для отримання акаунта. Це просто!
Зареєструвати акаунтУвійти
Вже зареєстровані? Увійдіть тут.
Увійти зараз