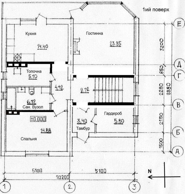
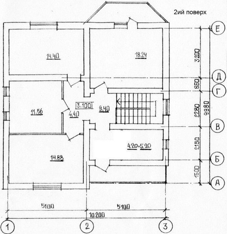
vuhasty Опубліковано: 27 березня 2012 Поділитись Опубліковано: 27 березня 2012 Доброго дня, Буду вдячний, якщо хтось висловить конструктивну критику про проект невеличкого будинку. Варіантів було кілька, та все таки зупинився наразі на такому Спроектовано для перекриття залізобетонними плитами. Перший поверх (цікавить найбільше) Другий поверх (думаю балкони зайві) Ділянка Дякую. Посилання на коментар Поділитися на інших сайтах More sharing options...
Artyomovets Опубліковано: 27 березня 2012 Поділитись Опубліковано: 27 березня 2012 все более-мене логично. на первом этаже я бы поменял местами спальню и тамбур с гардеробной. и немного смущает расположение камина. в него упираешься при входе в гостиную. при этом, если у камина поставить кресло и столик, проход совсем уж затруднительным получается... балконы - на любителя. но у вас немного выкрутас с эркером первого этажа выходит. перекрывать плитами собираетесь? думаю, что стену между кухней и топочной можно делать не такую широкую. достаточно центральной несущей. сколько народу проживать будет? как на участок посадить дом собираетесь? ЗЫ: ща любители фень-шуя вам расскажут про вход с запада 1 Посилання на коментар Поділитися на інших сайтах More sharing options...
irina1969 Опубліковано: 27 березня 2012 Поділитись Опубліковано: 27 березня 2012 как по мне маловата топочная, имхо 1 Посилання на коментар Поділитися на інших сайтах More sharing options...
vuhasty Опубліковано: 27 березня 2012 Автор Поділитись Опубліковано: 27 березня 2012 все более-мене логично.Спасибона первом этаже я бы поменял местами спальню и тамбур с гардеробной.тогда и лестницу переносить надо, соответственно места маловато на тамбур и гардероб остается и немного смущает расположение камина. в него упираешься при входе в гостиную. при этом, если у камина поставить кресло и столик, проход совсем уж затруднительным получается...Учтем :Dбалконы - на любителя. но у вас немного выкрутас с эркером первого этажа выходит.вместо балконов можна просто крышу прилепить, глянем по фасадам.перекрывать плитами собираетесь? Да. Я писал в первом сообщениидумаю, что стену между кухней и топочной можно делать не такую широкую. достаточно центральной несущей. Да, скорее всего.сколько народу проживать будет? как на участок посадить дом собираетесь?народу 2 взрослых + 2 детей вход на участок только с запада, тоесть с 18 метровой стороны, дом планируется метров 5 от западной ограды. ЗЫ: ща любители фень-шуя вам расскажут про вход с запада прикрыли углом от северно западного ветра, как вышло ... как по мне маловата топочная, имхо Ок, прикинем оборудование. Посилання на коментар Поділитися на інших сайтах More sharing options...
Музей Опубліковано: 27 березня 2012 Поділитись Опубліковано: 27 березня 2012 как по мне маловата топочная, имхо Почему маловата? Мне тоже интересно. Посилання на коментар Поділитися на інших сайтах More sharing options...
Artyomovets Опубліковано: 27 березня 2012 Поділитись Опубліковано: 27 березня 2012 тогда и лестницу переносить надо, соответственно места маловато на тамбур и гардероб остается нет, я думал что просто фигурность дома поменять. лестницу как есть оставить, он нее по сторонам спальня и гостиная. а вы, оказывается, северо-западный поток закрыли. Посилання на коментар Поділитися на інших сайтах More sharing options...
irina1969 Опубліковано: 27 березня 2012 Поділитись Опубліковано: 27 березня 2012 Почему маловата? Мне тоже интересно. все зависит от оборудования, которое планируется..у меня например будет там 2 котла, бойлер, дровишки (пеллеты)..на 5 кв было бы Посилання на коментар Поділитися на інших сайтах More sharing options...
Музей Опубліковано: 27 березня 2012 Поділитись Опубліковано: 27 березня 2012 все зависит от оборудования, которое планируется..у меня например будет там 2 котла, бойлер, дровишки (пеллеты)..на 5 кв было бы А скоКИ надо? поделитесь опытом. Посилання на коментар Поділитися на інших сайтах More sharing options...
irina1969 Опубліковано: 27 березня 2012 Поділитись Опубліковано: 27 березня 2012 только по-секрету:D у меня в плане 10,о4..кстати на форуме, многие уже писали, что если есть возможность, на топочной не экономить и я прислушалась 1 Посилання на коментар Поділитися на інших сайтах More sharing options...
seyvalter Опубліковано: 27 березня 2012 Поділитись Опубліковано: 27 березня 2012 А мені подобається. Віддати в рукі спеціалісту - і буде просто супер. Єдине - по інтер"єру камін не на своєму місці (хоча чисто консруктивно - там йому і місце - щоб його комин пішов в блок з венканалами кухні). І ще - приберіть балкон над еркером - в плані конструктива і експлуатації намучитесь ви з ним. Зверніть увагу на на стіну по осі Є на другому поверсі (над камінним залом)- НА ЧОМУ ВОНА СТОЇТь, там 5 метрів погонних? Ви уявляєте яку балку туди треба буде бухнути щоб цю стіну так поставити? робіть на другому так само як на першому (в плані еркера) - і це питання відпаде. 2 Посилання на коментар Поділитися на інших сайтах More sharing options...
andriybog Опубліковано: 27 березня 2012 Поділитись Опубліковано: 27 березня 2012 как на участок посадить дом собираетесь? ЗЫ: ща любители фень-шуя вам расскажут про вход с запада феншуистов в опу, гораздо важнее где Юг, как дом будет ориентирован по сторонам света вход в дом естественно со стороны улицы, чтобы далеко не ходить между кухней и топочной скорей всего вентканалы в стене перестенком не обойдешься Посилання на коментар Поділитися на інших сайтах More sharing options...
immigrant Опубліковано: 27 березня 2012 Поділитись Опубліковано: 27 березня 2012 Доброго дня, Буду вдячний, якщо хтось висловить конструктивну критику про проект невеличкого будинку. Варіантів було кілька, та все таки зупинився наразі на такому Спроектовано для перекриття залізобетонними плитами. Дякую. Мне все нравится: на такой площади все органично! Но есть одно "но". Судя по комнатам, будет жить много народу. Мало одного, так еще и совмещенного санузла. Посилання на коментар Поділитися на інших сайтах More sharing options...
irina1969 Опубліковано: 27 березня 2012 Поділитись Опубліковано: 27 березня 2012 все зависит от оборудования, которое планируется..у меня например будет там 2 котла, бойлер, дровишки (пеллеты)..на 5 кв было бы вот для наглядности www.stroimdom.com.ua/forum/showpost.php?p=1502185&postcount=6 с ванной комнатой на 2-м этаже согласна, а что будет там где 11, 56 ( с 2-я окнами) ? Посилання на коментар Поділитися на інших сайтах More sharing options...
Julla Опубліковано: 27 березня 2012 Поділитись Опубліковано: 27 березня 2012 (змінено) А если сдвинуть ванную на первом этаже немного "вниз", захватив с полметра комнаты слева внизу? На эти пол-метра по всей длине увеличится топочная, а комната всё-равно останется достаточно комфортной. ИМХО не очень рационально размещена сантехника в ванной. Дверь непонятно, почемуТАК открывается. ИМХО - неудобно Помещение наверху 11.56 м можно разделить стенкой аналогично низу и сделать СУ и гардеробную .. ЗЫ "Начинка" топочной впечатляет! Змінено 27 березня 2012 користувачем Julla Посилання на коментар Поділитися на інших сайтах More sharing options...
vuhasty Опубліковано: 27 березня 2012 Автор Поділитись Опубліковано: 27 березня 2012 Мало одного, так еще и совмещенного санузла. На втором этаже еще планируется(на том же месте), конечно приятного мало по этажам шастать, но пока так. с ванной комнатой на 2-м этаже согласна, а что будет там где 11, 56 ( с 2-я окнами) ? есть идея поделить по аналогии с первым этажом и сделать кладовку\гардероб. А если сдвинуть ванную на первом этаже немного "вниз", захватив с полметра комнаты слева внизу? На эти пол-метра по всей длине увеличится топочная, а комната всё-равно останется достаточно комфортной. Думаю эта комната будет наиболее часто использоваться, не хотелось бы ее уменьшать ... почитаю еще про устройство топочной. Посилання на коментар Поділитися на інших сайтах More sharing options...
apxitektop.s Опубліковано: 28 березня 2012 Поділитись Опубліковано: 28 березня 2012 Доброго дня, Буду вдячний, якщо хтось висловить конструктивну критику про проект невеличкого будинку. Варіантів було кілька, та все таки зупинився наразі на такому Спроектовано для перекриття залізобетонними плитами. Зонувально - планування раціональне Конструктивно - ірраціональне Варіанти вирішення : Уникнути лишніх несучих стін - як в мене на відкоригованому фото, стіни, котрі не є важливими, а то ваші фундаменти вам будуть - золотими в вашому варіанті планування. Для опирання несучих конструкцій сходнів - ті несучі стіни не є обов'язковими. Те ж стосовно й стіни в районі кухні-топочної - така стіна там не є потрібною. Топочну я б переніс - замість гардеробної, що коло тамбуру В санвузлі - відсутні вентканали, а вони ж потрібні )) додайте як на фото Посилання на коментар Поділитися на інших сайтах More sharing options...
ionico Опубліковано: 28 березня 2012 Поділитись Опубліковано: 28 березня 2012 Каналы можно коробом в одну шахту, чтобы не 2, а одна шахта торчали с крыши Посилання на коментар Поділитися на інших сайтах More sharing options...
vuhasty Опубліковано: 29 березня 2012 Автор Поділитись Опубліковано: 29 березня 2012 Для опирання несучих конструкцій сходнів - ті несучі стіни не є обов'язковими. дякую, за пораду. спробуємо вирішити, чи ці стіни потрібні. Те ж стосовно й стіни в районі кухні-топочної - така стіна там не є потрібною. Там справа саме у вент каналах В санвузлі - відсутні вентканали, а вони ж потрібні )) додайте як на фото добре, глянемо. Топочну я б переніс - замість гардеробної, що коло тамбуру Хотілося би зібрати труби (водяні, каналізацію) в одному місці, та й гардеробна поруч з тамбуром, логічно ІМХО. І ще - приберіть балкон над еркером - в плані конструктива і експлуатації намучитесь ви з ним. Порадилися - 1. нема потреби в такій великій кімнаті на 2-му поверсі, 2. не хочеться ліпити багато вікон в еркері 3. знову ж треба "ліпити" якось дах над еркером. Посилання на коментар Поділитися на інших сайтах More sharing options...
apxitektop.s Опубліковано: 29 березня 2012 Поділитись Опубліковано: 29 березня 2012 Там справа саме у вент каналах продивіться малюнок, що я доклав вище, там я показав стіну з вентканалами, але заради вентканалів- не є потрібним проектувати таку довгу стіну, достатньо зробити як в мене на малюнку, всі ті стіни на товщину 380мм. І всі канали зібрати в одну стіну з таким плануванням - не вийде, тому у вас і буде 2 розосередженних місця - як я й намалював 1 Посилання на коментар Поділитися на інших сайтах More sharing options...
Рекомендовані повідомлення
Створіть акаунт або увійдіть у нього для коментування
Ви маєте бути користувачем, щоб залишити коментар
Створити акаунт
Зареєструйтеся для отримання акаунта. Це просто!
Зареєструвати акаунтУвійти
Вже зареєстровані? Увійдіть тут.
Увійти зараз