terneo Опубліковано: 7 квітня 2012 Поділитись Опубліковано: 7 квітня 2012 День добрый. Планирую строить из полнотелого кирпича на УШП. Прошу критики от специалистов по конструктиву, от тех кто имеет опыт проживания в частном доме - по планировке. Исходные данные. Дом для постоянного проживания семье 3-5 чел (родители и дети). Участок ровный (25 сот.), с малозаметным уклоном к улице. Думаю над целесообразностью геологии. Планирую скважину под воду для питья. На участке колодец, глубина до воды 5-8 м (на глаз). Грунт вероятнее всего: чернозем 20-50 см, глина 5-15 м, сланец. Кровля - керамическая черепица. Не эксплуатируемый чердак, утепление перекрытия минеральные плиты 30 см, вход хочу с улицы. Перекрытие - пустотелые жб плиты. Отопление ТП (газовый котел), резерв - каминная топка. Под утеплителем плиты щебеночная подсыпка с перфорированной трубой для отвода воды. Утепление отмостки на 1 метр по периметру, толщиной 5 см. Септик из 2-х колодцев из жб колец и дренажный колодец из бу кирпича. Посилання на коментар Поділитися на інших сайтах More sharing options...
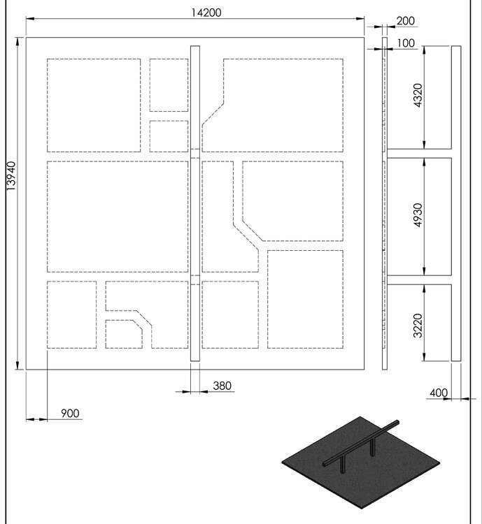
Artyomovets Опубліковано: 7 квітня 2012 Поділитись Опубліковано: 7 квітня 2012 1. не совсем понятно, как вы плиты перекрытия положите. очень большой проем в гостиной. 2. кладовок и гардеробных категорически не хватает. 3. водо-канализационные стояки разнесены по всему дому. 4. вентканалов не вижу. так же и места под них 5. это камин в гостиной, в стене с санузлом? тогда еще там дымохода не хватает. Посилання на коментар Поділитися на інших сайтах More sharing options...
terneo Опубліковано: 7 квітня 2012 Автор Поділитись Опубліковано: 7 квітня 2012 1. с опорой на жб балку по центру 2. решается встроенными шкафами 3. стояков не будет все коммуникации в плите 4. по вентканалам еще думаю 5. дымоход от камина хотелось бы опереть на жб балку по центру Посилання на коментар Поділитися на інших сайтах More sharing options...
Alisa3 Опубліковано: 7 квітня 2012 Поділитись Опубліковано: 7 квітня 2012 Мне не нравится гостиная-проходной двор и мужик какой-то чужой в шкафу... ;) 1 Посилання на коментар Поділитися на інших сайтах More sharing options...
Artyomovets Опубліковано: 7 квітня 2012 Поділитись Опубліковано: 7 квітня 2012 Мне не нравится гостиная-проходной двор и мужик какой-то чужой в шкафу... ;) не, мужик не в шкафу, а на горшке сидит с санузле возде кабинета. а в спальне 15 метров какой-то гроб с покойником... terneo, у вас получается вся ваша плита фундамента пронизана канализационными трубами. не совсем это правильно. я бы минимизировал такую зависимость. а шкафы - это дело на любителя. мое мнение - их должно быть меньше. Посилання на коментар Поділитися на інших сайтах More sharing options...
terneo Опубліковано: 7 квітня 2012 Автор Поділитись Опубліковано: 7 квітня 2012 ... у вас получается вся ваша плита фундамента пронизана канализационными трубами. не совсем это правильно. я бы минимизировал такую зависимость. Канализационные трубы будут под плитой. Посилання на коментар Поділитися на інших сайтах More sharing options...
ShyV Опубліковано: 7 квітня 2012 Поділитись Опубліковано: 7 квітня 2012 По планировке пока не скажу ,но хотелось бы увидеть вашу УШП.Дом то очень "тяжелый" будет для класической УШП от Dorocell 1 Посилання на коментар Поділитися на інших сайтах More sharing options...
terneo Опубліковано: 7 квітня 2012 Автор Поділитись Опубліковано: 7 квітня 2012 По планировке пока не скажу ,но хотелось бы увидеть вашу УШП.Дом то очень "тяжелый" будет для класической УШП от Dorocell В данный момент я и сам бы хотел увидеть , а пока ищу опытного конструктора. Добавлено через 5 минут Мне не нравится гостиная-проходной двор и мужик какой-то чужой в шкафу... ;) Проходная гостиная меня тоже немного смущает, как решить пора не знаю. Делать коридоры не хочется. Буду благодарен за идеи. Посилання на коментар Поділитися на інших сайтах More sharing options...
Alisa3 Опубліковано: 7 квітня 2012 Поділитись Опубліковано: 7 квітня 2012 Проходная гостиная меня тоже немного смущает, как решить пора не знаю. Делать коридоры не хочется. Буду благодарен за идеи. Ну не знаю. Лучше немного коридоров, чем проходной двор в гостиной, тем более, что у вас там куча непонятных мужиков везде живёт :D Вроде есть проекты с непроходной гостиной и тремя комнатами. В соседней теме были ссылки неплохие. Мне эта планировка нравится: proekty.muratordom.com.ua/odnoetazhnyie/projekt_pri-lunnom-svietie,1096,1,20.htm?nr=11 А в этой, если гараж убрать, даже коридора нету и гостинная практически не проходная: proekty.muratordom.com.ua/odnoetazhnyie/projekt_lilii-i-piony-variant-ii,1858,1,20.htm?nr=22 Посилання на коментар Поділитися на інших сайтах More sharing options...
Федорович Опубліковано: 8 квітня 2012 Поділитись Опубліковано: 8 квітня 2012 если Вы готовы рассмотреть другой проект то поищите здесь www.stroimdom.com.ua/forum/showthread.php?t=56803 тут ребята очень много проектов выставляли,может вам что то и подойдет.Удачи. Посилання на коментар Поділитися на інших сайтах More sharing options...
Vavilеn Опубліковано: 8 квітня 2012 Поділитись Опубліковано: 8 квітня 2012 Вот тут www.stroimdom.com.ua/forum/showthread.php?t=90735 я себе под подобное расположение по сторонам света изваял проект (правда у меня 13 на 15, чуть больше), посмотрите, может на какие-то мысли натолкнёт ... Если в моём малюнке холл совместить с гостинной - получится ваш вариант "всё проходное". Посилання на коментар Поділитися на інших сайтах More sharing options...
OlegArh Опубліковано: 10 квітня 2012 Поділитись Опубліковано: 10 квітня 2012 Кирпичный дом на УШП - это, простите, перебОр...Или стОить будет как весь дом. "Классическая" УШП расчитана на легкие дома, а Вашу плиту просто сломает. Если хотите утеплиться "от земли", то рассмотрите "пол по грунту" - это МЗФЛ, а внутри периметра пенопласт (утрированно, конечно). Посилання на коментар Поділитися на інших сайтах More sharing options...
terneo Опубліковано: 10 квітня 2012 Автор Поділитись Опубліковано: 10 квітня 2012 Кирпичный дом на УШП - это, простите, перебОр...Или стОить будет как весь дом. На мой взгляд слишком категоричное и не обоснованное утверждение. Так можно говорить имея сравнительный расчет двух вариантов. Из керамоблоков на УШП строят, хотя они конечно легче. "Классическая" УШП расчитана на легкие дома, а Вашу плиту просто сломает. Например, двух этажный каркасник может быть сопоставим по весу с одноэтажным кирпичным домом. Хотя я могу ошибаться, расчеты не сравнивал. Если хотите утеплиться "от земли", то рассмотрите "пол по грунту" - это МЗФЛ, а внутри периметра пенопласт (утрированно, конечно). Если отвязать пол от ребер исчезнут преимущества монолитности УШП. Посилання на коментар Поділитися на інших сайтах More sharing options...
OlegArh Опубліковано: 10 квітня 2012 Поділитись Опубліковано: 10 квітня 2012 На мой взгляд слишком категоричное и не обоснованное утверждение. Так можно говорить имея сравнительный расчет двух вариантов. Из керамоблоков на УШП строят, хотя они конечно легче.Смешно... Но, у Вас, как у богатого - свои причуды...;) Например, двух этажный каркасник может быть сопоставим по весу с одноэтажным кирпичным домом. Хотя я могу ошибаться, расчеты не сравнивал. Вопрос о каркаснике не стоит, иначе я бы это отметил. Если отвязать пол от ребер исчезнут преимущества монолитности УШП.А Вы вообще поняли о чем я писал??? Посилання на коментар Поділитися на інших сайтах More sharing options...
Федорович Опубліковано: 11 квітня 2012 Поділитись Опубліковано: 11 квітня 2012 Смешно... Но, у Вас, как у богатого - свои причуды...;) Вопрос о каркаснике не стоит, иначе я бы это отметил. А Вы вообще поняли о чем я писал??? Не смешно,одноэтажники из керамоблоков на УШП действительно строят,и довольно успешно. Посилання на коментар Поділитися на інших сайтах More sharing options...
OlegArh Опубліковано: 11 квітня 2012 Поділитись Опубліковано: 11 квітня 2012 Не смешно,одноэтажники из керамоблоков на УШП действительно строят,и довольно успешно.Ничего не имею против... просто сравните стоимость такого изыска для кирпичного дома в сравнении с каркасным. Только не говорите, что стоимость будет одинакова... P.S. Да и смысла особого для наших широт в нем не вижу - не болотА, поди.;) Посилання на коментар Поділитися на інших сайтах More sharing options...
Федорович Опубліковано: 12 квітня 2012 Поділитись Опубліковано: 12 квітня 2012 Ничего не имею против... просто сравните стоимость такого изыска для кирпичного дома в сравнении с каркасным. Только не говорите, что стоимость будет одинакова... P.S. Да и смысла особого для наших широт в нем не вижу - не болотА, поди.;) Конечно же нет.теоретически каркасник дешевле.Но у нас почему то иногда цены совпадают.если не брать в учет СИП панели. Посилання на коментар Поділитися на інших сайтах More sharing options...
Рекомендовані повідомлення
Створіть акаунт або увійдіть у нього для коментування
Ви маєте бути користувачем, щоб залишити коментар
Створити акаунт
Зареєструйтеся для отримання акаунта. Це просто!
Зареєструвати акаунтУвійти
Вже зареєстровані? Увійдіть тут.
Увійти зараз