@Кирилл@ Опубліковано: 19 квітня 2012 Поділитись Опубліковано: 19 квітня 2012 Решение строиться было принято в прошлом году. Изначально рассматривали одноэтажный домик без мансарды. Подходящего готового проекта не нашли, потому проект делали самостоятельно. Ну а проектант доработал и поставил печать. Наружные стены будут из газоблока ЮДК, а вся внутрянка - кирпич. С приходом тепла начали заниматься стройкой, 31 марта был дан старт. Сделали разбивку дома и понеслась. 1 Посилання на коментар Поділитися на інших сайтах More sharing options...
Бонд Опубліковано: 20 квітня 2012 Поділитись Опубліковано: 20 квітня 2012 Решение строиться было принято в прошлом году. Изначально рассматривали одноэтажный домик без мансарды. Подходящего готового проекта не нашли, потому проект делали самостоятельно. Ну а проектант доработал и поставил печать. Наружные стены будут из газоблока ЮДК, а вся внутрянка - кирпич. С приходом тепла начали заниматься стройкой, 31 марта был дан старт. Сделали разбивку дома и понеслась. Удачи тебе Кирилл в постройке дома.Вижу мы с тобой строимся на одном "рыбчанско-браилчанском" поле.У меня построен то-же 1-эт.дом без мансарды на 85 м2 из кирпича. Посилання на коментар Поділитися на інших сайтах More sharing options...
avtoLila Опубліковано: 28 квітня 2012 Поділитись Опубліковано: 28 квітня 2012 Кирилл, а проект покажи свой пожалуйста. Посилання на коментар Поділитися на інших сайтах More sharing options...
@Кирилл@ Опубліковано: 28 квітня 2012 Автор Поділитись Опубліковано: 28 квітня 2012 Удачи тебе Кирилл в постройке дома.Вижу мы с тобой строимся на одном "рыбчанско-браилчанском" поле.У меня построен то-же 1-эт.дом без мансарды на 85 м2 из кирпича. Спасибо. Не думал, что по этим скудненьким фото можно определить местораположение стройки. Совершенно верно, поле именно то. Будем соседями. А в каком краю у тебя дом? Добавлено через 1 минуту Кирилл, а проект покажи свой пожалуйста. Не знаю как, электронной версии нет. Разве что фото могу сделать. Посилання на коментар Поділитися на інших сайтах More sharing options...
@Кирилл@ Опубліковано: 28 квітня 2012 Автор Поділитись Опубліковано: 28 квітня 2012 Моя рабочая лошадка. Прикупил прицеп еще до начала стройки, надеюсь отобъется. На участке появился первый законченный объект МАП Ну и на сегодня уже стоит внутренняя часть цоколя. Высота 7 кирпичей, примерно 52 см. Прикинул сколько грунта/глины нужно, кубов 80. Кстати вопрос, где кто доставал землю для этих целей, может по сройкам покататься. Может кто не знает куда его деть ), я бы забрал. Уважаемые, как по отдельности коментировать каждую фото? Не разобрался. Посилання на коментар Поділитися на інших сайтах More sharing options...
алик1 Опубліковано: 29 квітня 2012 Поділитись Опубліковано: 29 квітня 2012 [quote=@Кирилл@;1563993Прикинул сколько грунта/глины нужно, кубов 80. Кстати вопрос, где кто доставал землю для этих целей, может по сройкам покататься. Может кто не знает куда его деть ), я бы забрал. . Много людей не знают куда его (грунт лишний) деть . Надо спрашивать у соседей и не стесняться .Ещё , как вариант можно спросить у тех , кто со склада песок-щебень привозит , у них могут люди искать и они же и перевезут . Удачи в стройке !!! Посилання на коментар Поділитися на інших сайтах More sharing options...
avtoLila Опубліковано: 1 травня 2012 Поділитись Опубліковано: 1 травня 2012 Спасибо. Не думал, что по этим скудненьким фото можно определить местораположение стройки. Совершенно верно, поле именно то. Будем соседями. А в каком краю у тебя дом? Добавлено через 1 минуту Не знаю как, электронной версии нет. Разве что фото могу сделать. А отсканируйте. Посилання на коментар Поділитися на інших сайтах More sharing options...
Zak Опубліковано: 1 травня 2012 Поділитись Опубліковано: 1 травня 2012 Уважаемые, как по отдельности коментировать каждую фото? Не разобрался. Поздравляю с началом! Сперва добавляете фотки как обычно. Далее в том месте где необходимо фотку отобразить вставляется конструкция: [ATTACH]ID[/ATTACH]. ID можно узнать в предварительном просмотре, наведя на миниатюру мышкой. Получится примерно так. 1 Посилання на коментар Поділитися на інших сайтах More sharing options...
@Кирилл@ Опубліковано: 8 травня 2012 Автор Поділитись Опубліковано: 8 травня 2012 Дело по-малому двигается. В майские праздник привел в порядок свой вагончик. Стал смотреться посимпатичнее. На сегодня осталось выложить из бута одну сторону и рассшить. Ну и числа с 12-го, наверное, будем начинать гнать стены. Жду не дождусь сего момента. Вчера завез грунт на обратную засыпку. Около 100 кубов. Засыпать буду в два слоя, каждый уплотняя. Первая часть грунта уже на месте. 2 Посилання на коментар Поділитися на інших сайтах More sharing options...
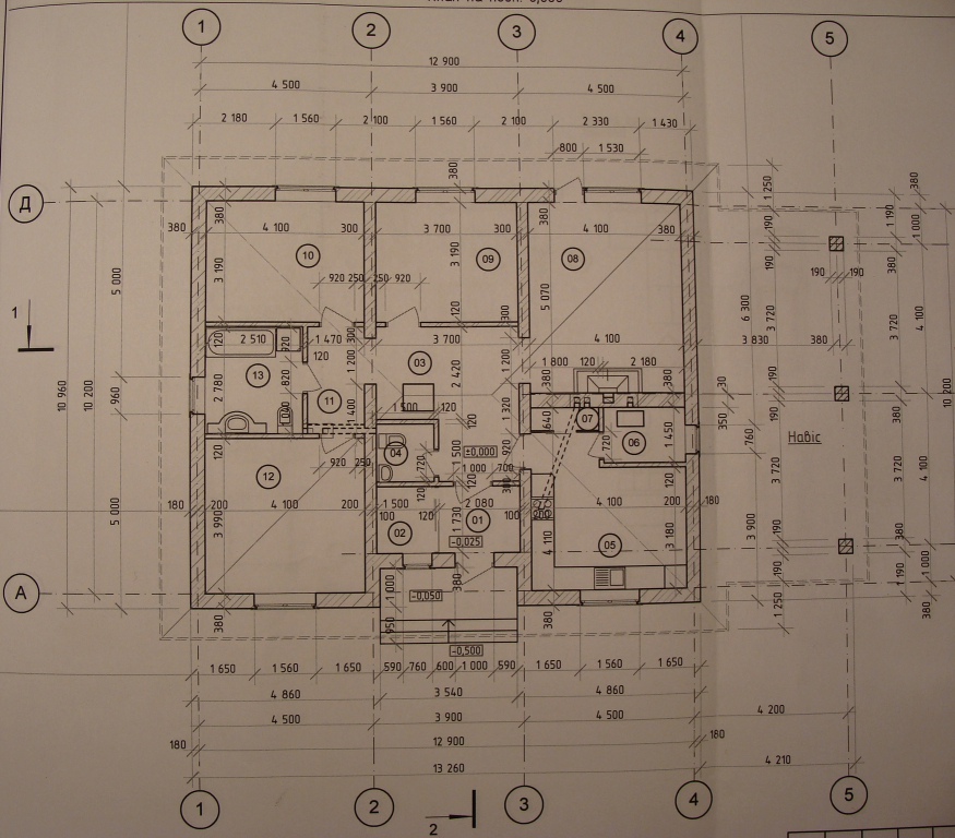
@Кирилл@ Опубліковано: 30 травня 2012 Автор Поділитись Опубліковано: 30 травня 2012 За две недели что был в отпуске сделал полностью обратную засыпку. Вернее все это я сделал за первую неделю, а вторую неделю отходил от пневмоноги, чтоб её .. Всего затрамбовал 115 м2 в два слоя, т.е было утрамбовано 230 м2 Второй раз за такую операцию не взялся бы. Далее был завезен газобетон 22 паллеты ЮДК (375*200*600) И 16 мая приступили к укладке первого ряда. На сегодня уже выложено 4 ряда по периметру, подошли в плотную к окнам и у меня возникли некоторые сомнения по поводу размера окон. Архитектор в кухне и трех спальнях ширину проёма забил как 1,56 м (высота - 1,6м) Не маловата ли ширина окна будет? На лицевой части фасада в кухне и спальне может увеличить проем хотябы до 1,7м При моих площадях комнат может что подскажите. 4 Посилання на коментар Поділитися на інших сайтах More sharing options...
@Кирилл@ Опубліковано: 30 травня 2012 Автор Поділитись Опубліковано: 30 травня 2012 А отсканируйте. Все же сделал фото. Посилання на коментар Поділитися на інших сайтах More sharing options...
Наталья66 Опубліковано: 31 травня 2012 Поділитись Опубліковано: 31 травня 2012 Молодцы! Все на совесть и с душой Для спален поменьше ширина окна достаточная, а вот для большой, было бы неплохо и расширить окно. Посмотрите как на фасаде это отобразится и вперед. Посилання на коментар Поділитися на інших сайтах More sharing options...
Komandor Опубліковано: 31 травня 2012 Поділитись Опубліковано: 31 травня 2012 У меня комнаты по размерам схожи с Вашими, окна шириной 154 см. Меньшими окна, даже в спальне, делать не стоит, а если Вам хочется больше - кончно делайте дабы потом не жалеть. Посилання на коментар Поділитися на інших сайтах More sharing options...
@Кирилл@ Опубліковано: 31 травня 2012 Автор Поділитись Опубліковано: 31 травня 2012 Решение принято Кухня (05) - 1,7м Спальня (10,12) - 1,7м Спальня (09) - 1,6м Гостинная (08) - без изменений (там проем балконного типа, так что света будет достаточно) Высота всех проемов - 1,5м. Посилання на коментар Поділитися на інших сайтах More sharing options...
Levshuk Опубліковано: 31 травня 2012 Поділитись Опубліковано: 31 травня 2012 Поздравляю с началом. У нас точно такой проект Подписываюсь. Посилання на коментар Поділитися на інших сайтах More sharing options...
@Кирилл@ Опубліковано: 31 травня 2012 Автор Поділитись Опубліковано: 31 травня 2012 Поздравляю с началом. У нас точно такой проект Подписываюсь. Спасибо. Посмотрел Ваш проект. Ну не точно такой, но похож очень Я свой рисовал самостоятельно под себя, ну и жена конечно участвовала, кухню раза три перемещала ))) Строиться уже начали? Посилання на коментар Поділитися на інших сайтах More sharing options...
Levshuk Опубліковано: 31 травня 2012 Поділитись Опубліковано: 31 травня 2012 Да, стоимся потихоньку. Вчера крышу начали крыть. Посилання на коментар Поділитися на інших сайтах More sharing options...
alexg73 Опубліковано: 31 травня 2012 Поділитись Опубліковано: 31 травня 2012 А бюджет прикидывали? По материалам на данный момент сколько вышло: ГБ+Кирпич+Цоколь? Посилання на коментар Поділитися на інших сайтах More sharing options...
@Кирилл@ Опубліковано: 1 червня 2012 Автор Поділитись Опубліковано: 1 червня 2012 А бюджет прикидывали? По материалам на данный момент сколько вышло: ГБ+Кирпич+Цоколь? По материалам + работа обошлись около 100 т.грн Это и земляные работы, ФБС, бетон, цемент, бут, кирпич, газоблок, арматура, доставка, разгрузка, кладка. Ну в общем коробка без крыши окон и дверей около 100 т. потянет. Посилання на коментар Поділитися на інших сайтах More sharing options...
Levshuk Опубліковано: 1 червня 2012 Поділитись Опубліковано: 1 червня 2012 ИМХО, маловато прикинули денег, я думаю раза в два больше Ой, не заметил "без крыши..." Посилання на коментар Поділитися на інших сайтах More sharing options...
@Кирилл@ Опубліковано: 1 червня 2012 Автор Поділитись Опубліковано: 1 червня 2012 ИМХО, маловато прикинули денег, я думаю раза в два больше А че тут прикидывать если уже стены гонятся и материал весь закуплен Пирог пола, правда, сюда не считал. Посилання на коментар Поділитися на інших сайтах More sharing options...
Lapata Опубліковано: 31 липня 2012 Поділитись Опубліковано: 31 липня 2012 А как же продолжение? Перекрытие, крыша? Посилання на коментар Поділитися на інших сайтах More sharing options...
@Кирилл@ Опубліковано: 1 серпня 2012 Автор Поділитись Опубліковано: 1 серпня 2012 Все будет. Времени не хватает. Посилання на коментар Поділитися на інших сайтах More sharing options...
@Кирилл@ Опубліковано: 9 серпня 2012 Автор Поділитись Опубліковано: 9 серпня 2012 Итак продолжим. На сегодня уже стоят стены и частично крыша перекрыта. С оконными и дверными проемами решил не заморачиваться и уложил перемычки 14.07.12 завез лес, всего порядка 12 м3 С армопоясом тоже все просто, три ряда кирпича с армированием сеткой. Крышники потихоньку сделали стропилку, сегодня практически закончили стелить черепицу на втором скате. Моторные парни. Посилання на коментар Поділитися на інших сайтах More sharing options...
sribnuu Опубліковано: 10 серпня 2012 Поділитись Опубліковано: 10 серпня 2012 Не боитесь, что фундамент слабый? С армированием слабовато! Может я ошибаюсь! Посилання на коментар Поділитися на інших сайтах More sharing options...
Рекомендовані повідомлення
Створіть акаунт або увійдіть у нього для коментування
Ви маєте бути користувачем, щоб залишити коментар
Створити акаунт
Зареєструйтеся для отримання акаунта. Це просто!
Зареєструвати акаунтУвійти
Вже зареєстровані? Увійдіть тут.
Увійти зараз