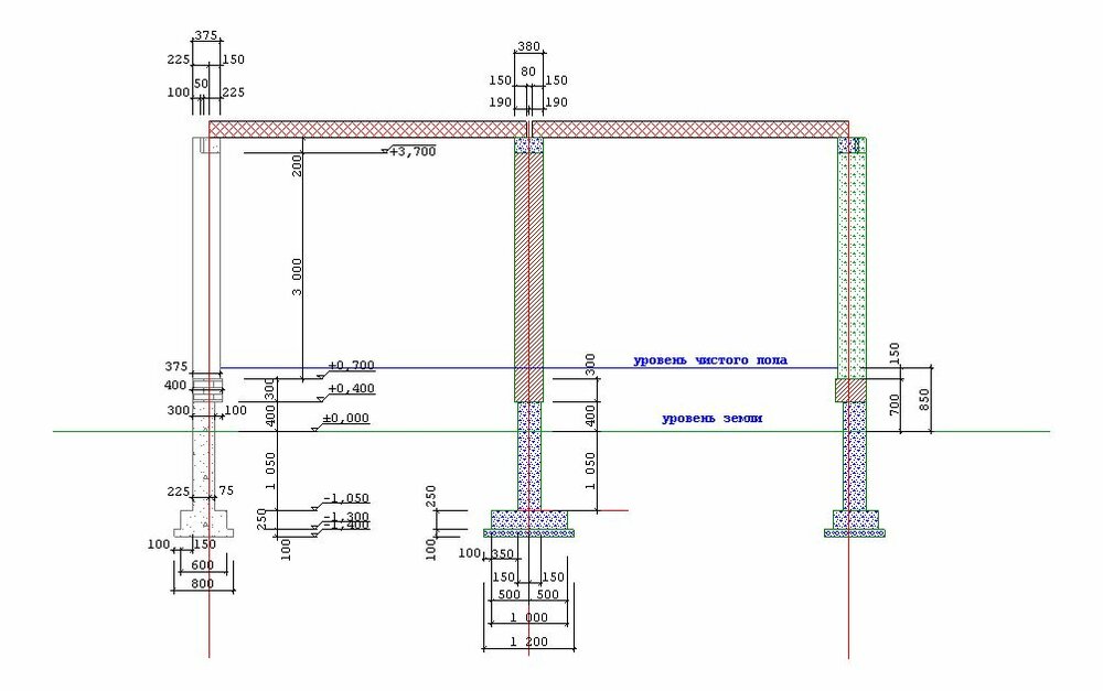
dklimock Опубліковано: 10 червня 2012 Поділитись Опубліковано: 10 червня 2012 покритикуйте чертеж фундамента геологию делал супесь пылеватая пластичная, далее песок мелкий, плотный. несущая способность расчитнная по снипам 16 т/м2 Вода -2.0 м уровень промерзания грунта - 1.1 м сбор нагрузок показал 10, 6 и 4 тонны на м.п. ширина подушки расчитана по формуле N/(R-20d) расчётные | принял 0,30 | 0,40 0,45 | 0,60 0,75 | 1,00 интересует узел перехода от фундамента 30 см на цоколь 40 см и стену из газобетона 38 см. Посилання на коментар Поділитися на інших сайтах More sharing options...
tansss Опубліковано: 11 червня 2012 Поділитись Опубліковано: 11 червня 2012 Сместите оси ленты наружных стен внутрь у сразу укладывайте ГБ с навесанием 8см, потом на ленту 50мм ЭППС + декор. Идея переходного пояса 40см не ясна, разве что разноуровневость. Посилання на коментар Поділитися на інших сайтах More sharing options...
dklimock Опубліковано: 11 червня 2012 Автор Поділитись Опубліковано: 11 червня 2012 Сместите оси ленты наружных стен внутрь у сразу укладывайте ГБ с навесанием 8см, потом на ленту 50мм ЭППС + декор. Идея переходного пояса 40см не ясна, разве что разноуровневость. декора не будет. только газоблок 375 или 400. Идея переходного пояса - недопустить свеса, т.к. для ГБ свес не желателен. Посилання на коментар Поділитися на інших сайтах More sharing options...
Igor_M Опубліковано: 11 червня 2012 Поділитись Опубліковано: 11 червня 2012 декора не будет. только газоблок 375 или 400. Идея переходного пояса - недопустить свеса, т.к. для ГБ свес не желателен. А почему свес нежелателен? Посилання на коментар Поділитися на інших сайтах More sharing options...
dklimock Опубліковано: 11 червня 2012 Автор Поділитись Опубліковано: 11 червня 2012 А почему свес нежелателен? прямого запрета в аероковских мануалах нет, но есть мнения, что из-за низких прочностных характеристик ГБ свес не желателен. Мнение разделяю. ИМХО. Посилання на коментар Поділитися на інших сайтах More sharing options...
tansss Опубліковано: 11 червня 2012 Поділитись Опубліковано: 11 червня 2012 прямого запрета в аероковских мануалах нет, но есть мнения, что из-за низких прочностных характеристик ГБ свес не желателен. Мнение разделяю. ИМХО. Не , ну хазяин-барин.Ну цоколь сёрано утеплить-бы, хотя тоже есть варианты по конструкции пола. По поводу опасений - представим что у Вас ГБ шириной 300 Д400 - его несущей способности по Вашей конструкции хватит???(хотя это такое не техническое сравнение, не будем вдаваться в детали СОПРОМАТА) Если хватает - считайте остальные 100 - утеплителем. Посилання на коментар Поділитися на інших сайтах More sharing options...
RusLi Опубліковано: 24 червня 2012 Поділитись Опубліковано: 24 червня 2012 прямого запрета в аероковских мануалах нет, но есть мнения, что из-за низких прочностных характеристик ГБ свес не желателен. Мнение разделяю. ИМХО. www.stroimdom.com.ua/forum/showpost.php?p=1291166&postcount=2 смотрим 3 ряд картинок. Рекомендация АЕРОКа Посилання на коментар Поділитися на інших сайтах More sharing options...
Мирт Опубліковано: 26 червня 2012 Поділитись Опубліковано: 26 червня 2012 0,75 | 1,00 интересует узел перехода от фундамента 30 см на цоколь 40 см и стену из газобетона 38 см. В монолитных фундаментах рекомендуется делать отступы от граней стены по 5см. Ваш фундамент должен быть шириной 50 см , потому-что есть погрешности в вертикальности опалубки и ещё могут оси сбиться. В крайнем случае меньше 40см не делать. Ваш случай при 30см требует вообще ювелирной точности в производстве работ. Посилання на коментар Поділитися на інших сайтах More sharing options...
Ukrbuild Опубліковано: 26 червня 2012 Поділитись Опубліковано: 26 червня 2012 Рекомендую делать выступ по ограждающим стенам не внутрь а наружу, это усложнит попаданию воды между фундаментом и отмоской, и как следствие защитит Ваш фундамент. 1 Посилання на коментар Поділитися на інших сайтах More sharing options...
dklimock Опубліковано: 26 червня 2012 Автор Поділитись Опубліковано: 26 червня 2012 www.stroimdom.com.ua/forum/showpost.php?p=1291166&postcount=2 смотрим 3 ряд картинок. Рекомендация АЕРОКа таки да. производитель против свесов не возражает. но есть мнение конструкторов, что не стоит. так как это мнение в сторону увеличения надеждности могу его принять, если нравится. Добавлено через 5 минут В монолитных фундаментах рекомендуется делать отступы от граней стены по 5см. Ваш фундамент должен быть шириной 50 см , потому-что есть погрешности в вертикальности опалубки и ещё могут оси сбиться. В крайнем случае меньше 40см не делать. Ваш случай при 30см требует вообще ювелирной точности в производстве работ. давайте сверимся, в чём мы с вами согласны. фундамента шириной 30 см с точки зрения прочности хватит. Подушка расчитывается, примем 100 см. верхняя часть должна иметь раширение до ... 40см- моя версия, 50 - см ваша версия. в моем случае свесы раширения над стеной фундамента по 5-см, в вашем - по 10 -см. Какую шекомендуете высоту той части, которая будет 50 см? Посилання на коментар Поділитися на інших сайтах More sharing options...
Ukrbuild Опубліковано: 27 червня 2012 Поділитись Опубліковано: 27 червня 2012 Я б на Вашем месте сделал фундамент под среднюю стену не 300, а 500 мм для минимизации моментов возникающих в подушке, да и проще 380 мм кирпича класть на 500 мм монолита нежели на 300. И по чертежу не очень понятно, Вы пускаете кирпич под газоблоком? или это монолит у Вас? Если кирпич, то зачем? Посилання на коментар Поділитися на інших сайтах More sharing options...
dklimock Опубліковано: 27 червня 2012 Автор Поділитись Опубліковано: 27 червня 2012 Я б на Вашем месте сделал фундамент под среднюю стену не 300, а 500 мм для минимизации моментов возникающих в подушке, да и проще 380 мм кирпича класть на 500 мм монолита нежели на 300. финансовая сторона вообще значения не имеет? Посилання на коментар Поділитися на інших сайтах More sharing options...
Мирт Опубліковано: 28 червня 2012 Поділитись Опубліковано: 28 червня 2012 давайте сверимся, в чём мы с вами согласны. фундамента шириной 30 см с точки зрения прочности хватит. Подушка расчитывается, примем 100 см. верхняя часть должна иметь раширение до ... 40см- моя версия, 50 - см ваша версия. в моем случае свесы раширения над стеной фундамента по 5-см, в вашем - по 10 -см. Какую шекомендуете высоту той части, которая будет 50 см? Если хотите по-мучиться с опалубкой делайте высоту 20см. Я вас хотел просто предупредить о том что фундамент по факту может сместиться относительно осей. И ваш свес из 10 см может превратиться в 15см и больше. 2 Посилання на коментар Поділитися на інших сайтах More sharing options...
vale3 Опубліковано: 29 червня 2012 Поділитись Опубліковано: 29 червня 2012 Может получиться даже так что придется газоблок вообще на воздух ложить или класть если попадутся криворукие исполнители ЗЫЗЫ: у меня 7 см свес, особо не страдаю "хотя опасаюсь" Делал бы себе не более 5 см как рекомендует производитель 1 Посилання на коментар Поділитися на інших сайтах More sharing options...
Raha Опубліковано: 1 липня 2012 Поділитись Опубліковано: 1 липня 2012 таки да. производитель против свесов не возражает. Нет, не так. Производитель не просто "не возражает", а прямо рекомендует. Разницу чувствуете? Вот что по этому поводу написано в "Альбоме технических решений Aeroc": Товщина стіни першого поверху не повинна перевищувати товщину стіни підвалу чи товщини фундаменту більш, ніж на 200 мм. Ділянка стіни першого поверху, що розміщена безпосередньо над обрізом фундаменту повинна бути армована. Якщо стіна підвалу менше товщини стіни, що розміщена безпосередньо над стіною підвалу, при розрахунку стіни підвалу, або фундаменту необхідно враховувати випадковий ексцентриситет e = 4,0см, який додається до величини ексцентриситету рівнодійної поздовжніх сил. Зовнішні одношарові стіни з газобетонних блоків AEROC, з метою захисту від зволоження в зоні спирання на цоколь, рекомендується влаштовувати з напуском по відношенню до цоколю не менше ніж на 40÷50 мм, але не більше ніж на ⅓ товщини кладки. Делал бы себе не более 5 см как рекомендует производитель Посторюсь - производитель рекомендует делать свес не менее 5 см, а если говорить про "не более", то не более 1/3 ширины блока и не более 200 мм. 2 Посилання на коментар Поділитися на інших сайтах More sharing options...
Ukrbuild Опубліковано: 2 липня 2012 Поділитись Опубліковано: 2 липня 2012 финансовая сторона вообще значения не имеет? Хороший вопрос, а она будет иметь значение если фундамент под средней стеной просядет?? Посилання на коментар Поділитися на інших сайтах More sharing options...
dklimock Опубліковано: 3 липня 2012 Автор Поділитись Опубліковано: 3 липня 2012 Хороший вопрос, а она будет иметь значение если фундамент под средней стеной просядет?? просядет, это к ширине подушки. она расчитана в первом посте " сбор нагрузок показал 10, 6 и 4 тонны на м.п. ширина подушки расчитана по формуле N/(R-20d) расчётные | принял 0,30 | 0,40 0,45 | 0,60 0,75 | 1,00 " ваше предложение стену фундамента делать 50 см вместо конструктивно достаточной 30 см. аргументы "не попасть в оси", "моменты в стене" приняты во внимание. за это спасибо. или есть верояность проседания средней стены при стене фундамента 30 см и нет при стене 50 см (в обоих случаях подушка 100)? если есть, то расскажите вследствие чего. Посилання на коментар Поділитися на інших сайтах More sharing options...
dklimock Опубліковано: 30 липня 2012 Автор Поділитись Опубліковано: 30 липня 2012 вырыл траншеи, сделал подбетонку. собираю опалубку подушки. ширина подушки под центральной стеной - 100 см. под несущими 60 см, под самонесущими - 50 см. по низу подушки пойдет арматура ф12. там где 100 см- 6 прутов, 60 см - 4 прута, 50 см - 3 прута. поперечные - каждые 20 см. по стене фундамента есть вопрос. высота стены фундамента 125 под землей + 70 над землей. какой шаг вертикальной и горизонтальной арматуры принять. грунт - влажная супесь пылеватая пластичная. В типовых решениях - 20*20 см. это бункер получается. подвала у меня нет. может 40*40 хватит? Посилання на коментар Поділитися на інших сайтах More sharing options...
tansss Опубліковано: 30 липня 2012 Поділитись Опубліковано: 30 липня 2012 Извините за прямоту - тут в какой-то теме коллллега с Президенским ником Проффессор подметил - Это Вам расплата за самострой - раз не обратились к спецам - сделайте так чтоб Вам спалось спокойно в Вашем доме Романсы сомнений - долой, Всё - по максимуму 1 Посилання на коментар Поділитися на інших сайтах More sharing options...
dklimock Опубліковано: 31 липня 2012 Автор Поділитись Опубліковано: 31 липня 2012 Извините за прямоту - тут в какой-то теме коллллега с Президенским ником Проффессор подметил - Это Вам расплата за самострой - раз не обратились к спецам - сделайте так чтоб Вам спалось спокойно в Вашем доме Романсы сомнений - долой, Всё - по максимуму со спецами интересная ситуация получается, третий год на форуме читаю отчёты о стройках, типичная ситуации у застройщиков связаннная с конструкторами выглядит так: конструктор взял армирование из типового решения из пятиэтажки, форумчание закидали шапками или сам застройщик забил и сделал фундамент как самому не страшно, или как конструктор сказал - "шоббулонемало". 1 Посилання на коментар Поділитися на інших сайтах More sharing options...
tansss Опубліковано: 31 липня 2012 Поділитись Опубліковано: 31 липня 2012 со спецами интересная ситуация получается, третий год на форуме читаю отчёты о стройках, типичная ситуации у застройщиков связаннная с конструкторами выглядит так: конструктор взял армирование из типового решения из пятиэтажки, форумчание закидали шапками или сам застройщик забил и сделал фундамент как самому не страшно, или как конструктор сказал - "шоббулонемало". Есть такая правдаНо я вкладывал в термин СПЕЦ - реально знающий(не начитанный, прошу не путать). Сдесь дилема - мера ответственности!!! Да и ожидаемый Вами ответ на вопрос темы нужен больше для самоуспокоения. Ктож Вам посоветует то или другое зная что отвечать придется:D Посилання на коментар Поділитися на інших сайтах More sharing options...
Мирт Опубліковано: 1 серпня 2012 Поділитись Опубліковано: 1 серпня 2012 высота стены фундамента 125 под землей + 70 над землей. какой шаг вертикальной и горизонтальной арматуры принять. грунт - влажная супесь пылеватая пластичная. В типовых решениях - 20*20 см. это бункер получается. подвала у меня нет. может 40*40 хватит? Вообще стены вашего фундамента и без арматуры можно сделать, прочности бетона достаточно. Но конструктивно заармировать не плохо. Вертикальную арматуру d=10....12мм с шагом 400, горизонтальную d=8 c шагом 300, развязать шпильками в форме ,,с,,. Защитный слой вертикальной арматуры я бы брал не меньше 35 мм. Кстати я конструктор. 2 Посилання на коментар Поділитися на інших сайтах More sharing options...
dklimock Опубліковано: 1 серпня 2012 Автор Поділитись Опубліковано: 1 серпня 2012 Вообще стены вашего фундамента и без арматуры можно сделать, прочности бетона достаточно. Но конструктивно заармировать не плохо. Вертикальную арматуру d=10....12мм с шагом 400, горизонтальную d=8 c шагом 300, развязать шпильками в форме ,,с,,. Защитный слой вертикальной арматуры я бы брал не меньше 35 мм. Кстати я конструктор. продолжая эту мысль предположу, что горзонтальную ф8 с шагом 300 можно заменить на ф12 с шагом 400. Посилання на коментар Поділитися на інших сайтах More sharing options...
dklimock Опубліковано: 18 вересня 2012 Автор Поділитись Опубліковано: 18 вересня 2012 ма это мама учусь Посилання на коментар Поділитися на інших сайтах More sharing options...
Рекомендовані повідомлення
Створіть акаунт або увійдіть у нього для коментування
Ви маєте бути користувачем, щоб залишити коментар
Створити акаунт
Зареєструйтеся для отримання акаунта. Це просто!
Зареєструвати акаунтУвійти
Вже зареєстровані? Увійдіть тут.
Увійти зараз