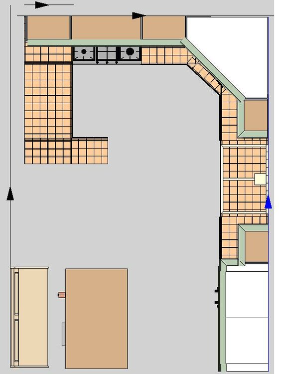
alexBas Опубліковано: 4 липня 2012 Поділитись Опубліковано: 4 липня 2012 Ну вот и мы созрели выставить на всеобщее обсуждение проект нашей будущей кухни. По дизайнерской задумке она будет состоять из 3-х частей. 1 - кухня-прихожая, где будет находится краник с фильтрованной водой, кофе-машина, чайник, морозилка. 2 - собственно сама кухня с плитой, духовкой и холодильником. 3 - остров с мойкой и посудомойкой. Так же задумка состоит в том, чтоб все эти 3 части были разные в цветовой гамме, но близки по стилистике. Хотим услышать грамотную критику, т.к. возможно что-то мы упустили, чего-то не знаем. А также нам интересно мнение мастеров, которые могут воплотить нарисованное в жизнь - какие материалы рекомендуете и собственно сколько это будет стоить. Всем спасибо за ответ.1 эт мебель.pdf1 эт кухна-прихожая.pdf1 эт кухня1.pdf1 эт кухня2.pdf1 эт кухня3.pdf Посилання на коментар Поділитися на інших сайтах More sharing options...
миссис Коломбо Опубліковано: 4 липня 2012 Поділитись Опубліковано: 4 липня 2012 Принцип понятен. Не понятно назначение кухни-прихожей. Что там делать - готовить кофе? И куда потом носить? В основное помещение? Так почему бы прямо в основной части и не готовить? Тем более, что и рабочего места и свободного для размещения дополнительных мест хранения там вполне хватает. В каком стиле кухня по таким эскизам сказать очень трудно, но в принципе - очень мило. Только я бы сместила полуостров к окну. Так удобнее перемещаться в пределах помещения, и мойка ближе к холодильнику. Да и за барной стойкой у окна сидеть интереснее, чем у стены. Посилання на коментар Поділитися на інших сайтах More sharing options...
sonawer Опубліковано: 8 липня 2012 Поділитись Опубліковано: 8 липня 2012 Была цель сделать всё в одном стиле, мне кажется встроенный холодильник будет вариантом получше 1 Посилання на коментар Поділитися на інших сайтах More sharing options...
alkmena Опубліковано: 24 липня 2012 Поділитись Опубліковано: 24 липня 2012 Да, дизайнер конечно у вас сильный ))) Такой бред как кухня-прихожая, я еще не встречала (4 года работаю с мебелью). У вас большая кухня, и все прекрасно поместится и так, а в прихожую поставте большой шкаф для верхней одежды! Сидеть возле мойка завтракать не очень хорошая идея! Мойку лучше всего поставить под окно (нескучно посуду мыть. Габариты кухни позволяют поставить диванчик, поверьте, это очень удобно. Вам сделали очень скучный и не интересный вариант кухни прованс. У этого стиля есть очень разнообразные, интересные и функциональные элементы. Посилання на коментар Поділитися на інших сайтах More sharing options...
миссис Коломбо Опубліковано: 30 липня 2012 Поділитись Опубліковано: 30 липня 2012 Правду сказать, мне "хозяйский" вариан оформления нравится гораздо больше. Он проще, легче, менее перегружен декоративными элементами (особенно в верхней части), и потому при меньшей громозкости более функционален и приятен для глаза. Особенно с учётом того, что это не просто кухня, а кухня-столовая. А диванчик, действительно, не помешал бы. Посилання на коментар Поділитися на інших сайтах More sharing options...
MayaDeren Опубліковано: 30 липня 2012 Поділитись Опубліковано: 30 липня 2012 а мне нравится проект. все очень функционально и разумно. пока на кухне кипит работа по приготовлению гранд обеда, отдыхающим в гостиной очень удобно сделать 3 шага и приготовить себе кофе в кухне-прихожей никто никому не мешает. не знаю как там по феншую , хорошо ли плохо перекусить рядом с мойкой на острове, но то что посуду очень удобно убрать, в том числе и с обеденного стола - явный плюс! мой ИМХО - на этой кухне все очень удобно, красиво и разумно спроектировано. и я бы не делала разницы в цвете по зонам. стиль прованс сам по себе декоративен. можно разными цветами перегрузить интерьер. зачем на кухне диванчик вообще не поняла. гостиная же рядом. удачи вам в воплощении проекта в реальность! Посилання на коментар Поділитися на інших сайтах More sharing options...
миссис Коломбо Опубліковано: 30 липня 2012 Поділитись Опубліковано: 30 липня 2012 А диванчик для того, чтобы моя тётушка, или свёкр, или ещё кто-нибудь, зашедший ко мне в гости или по делу, не скучали в гостиной, не маялись на стуле, пока я готовлю чай или разогреваю обед, а удобно (если хотите - вальяжно) устроились на мягком диване и продолжали общение. Чтобы было где разместиться внучке со своими куклами, если ей не хочется оставаться одной. Чтобы мне было где присесть, если захотелось или устала... Посилання на коментар Поділитися на інших сайтах More sharing options...
MayaDeren Опубліковано: 30 липня 2012 Поділитись Опубліковано: 30 липня 2012 одно скажу, ув. миссис Коломбо пока родные отдыхают в гостиной, общение не прерывается во время приготовления чая или кофе в кухне-прихожей, т.к. она расположена практически в гостиной т.е. в проекте разумно использованы плюсы кухни-студио, но и ее минусы практически удалены отделением основной рабочей зоны вообщем, я ваш, alexBas, проект себе в копилочку захомячила. мне нравится. Посилання на коментар Поділитися на інших сайтах More sharing options...
alkmena Опубліковано: 30 липня 2012 Поділитись Опубліковано: 30 липня 2012 пока на кухне кипит работа по приготовлению гранд обеда, отдыхающим в гостиной очень удобно сделать 3 шага и приготовить себе кофе в кухне-прихожей никто никому не мешает. Если так рассуждать, то и холодильник можно поставить в гостиной, зачем так далеко на кухню ходить :D зачем на кухне диванчик вообще не поняла. гостиная же рядом. действительно, в прихожей же стул стоит, зачем диван покупать :D и с прихожей принести можно прованс есть прованс, не надо путать с сдержанной классикой!!!! (это по-поводу перегруза деталей!) Посилання на коментар Поділитися на інших сайтах More sharing options...
ella_lydoedka Опубліковано: 3 серпня 2012 Поділитись Опубліковано: 3 серпня 2012 Могу вставить одну ремарку- у знакомых был дизайн гостиной с островом-мойкой+ барная стойка.. Барная стойка - это нечто..очень удобно подойти налить напитки на свой вкус - вверху стойка с бокалами под любой напиток, тут маленький барный холодильник..хозяка сперва на новоселье поставила маленький буфетик-стойку из лозы, где были предложены всякие закусоны: чипсы, орешки, печенько, тут же одноразовая посуда..но после праздника передумала, т.к. печенье превратилось в пыль хлебную: кто-то рьяно набирал печенье, крошки от чипсов засыпали всю стойку + запах отмывали несколько недель.. Еще интересная придумка с "газировкой"+ сок для детей в той же барной стойке.. все заливалось в контейнеры на весь вечер..и не нужно детей и мамочек обслуживать..каждый подходил и наливал по вкусу.. а вот мойка за несколько часов пребывания гостей была забита непонятно чем..дети умудрялись кидать бумажки от конфет..окурки и прочее (ну кто как привык у себя на кухне себя вести).. поймите - остров - это акцент..и если "по углам" можно что-то не заметить..то любой промах на "острове" всегда будет выделяться.. резюме: хозяева снесли на острове мойку, и буфетик убрали..оставили только барную стойку Решать вам Посилання на коментар Поділитися на інших сайтах More sharing options...
AlSkil Опубліковано: 3 серпня 2012 Поділитись Опубліковано: 3 серпня 2012 Ну так это, как его, Элла, ... пусти свинью за стол - она и ноги на стол, так кажется гласит народная мудрость. В общем , учитывая что владельцы кухонь с островом имеют кухни больших площадей и следовательно их кухни располагают ПММ вероятно ш. 60см, то собственно мойку лучше на острове не располагать (как редко используемую хозяевами), а расположить на острове варочную панель, зону для разделки / подготовки продуктов, присоеденив к острову барную стойку (высокую) и столик на двоих для быстрого закусона/распития чая/кофе. 1 Посилання на коментар Поділитися на інших сайтах More sharing options...
MayaDeren Опубліковано: 3 серпня 2012 Поділитись Опубліковано: 3 серпня 2012 Ну так это, как его, Элла, ... пусти свинью за стол - она и ноги на стол, так кажется гласит народная мудрость. В общем , учитывая что владельцы кухонь с островом имеют кухни больших площадей и следовательно их кухни располагают ПММ вероятно ш. 60см, то собственно мойку лучше на острове не располагать (как редко используемую хозяевами), а расположить на острове варочную панель, зону для разделки / подготовки продуктов, присоеденив к острову барную стойку (высокую) и столик на двоих для быстрого закусона/распития чая/кофе. ну, да... правильно сидеть и попивать утренний кофеек рядом с зоной для разделки "туш" и готовящимся на варочной панели и обедом , намного удобнее, чем рядом с редко используемой мойкой шо вы такое говорите? реально, когда есть ПММ любых размеров, мойка используется для сполоснуть чашку или перемыть мясо-овощи-фрукты, которые тут же перекочевывают в зону готовки... может, фрукты и останутся...но уже в красивой вазе :D Посилання на коментар Поділитися на інших сайтах More sharing options...
max_13 Опубліковано: 4 серпня 2012 Поділитись Опубліковано: 4 серпня 2012 Пока идет бурное обсуждение проекта скромно предложу божественные итальянские фасады модель Flaminia известной фабрики iLcam Италия Совершенно новая модель 2012 года! массив ясеня белый и серебристой патиной Дорого, но гости будут уходить с глубоким осадком зависти ))) 2 Посилання на коментар Поділитися на інших сайтах More sharing options...
AlSkil Опубліковано: 6 серпня 2012 Поділитись Опубліковано: 6 серпня 2012 ну, да... правильно сидеть и попивать утренний кофеек рядом с зоной для разделки "туш" и готовящимся на варочной панели и обедом , намного удобнее, чем рядом с редко используемой мойкой шо вы такое говорите? реально, когда есть ПММ любых размеров, мойка используется для сполоснуть чашку или перемыть мясо-овощи-фрукты, которые тут же перекочевывают в зону готовки... может, фрукты и останутся...но уже в красивой вазе :D Просто одна из целей создания острова - это чтобы готовящий не был изолирован от обстановки/окружения стоя спиной к пространству помещения. Собственно зон подготовки может быть несколько, а размер острова может быть таков, что операции по готовке не будут проходить под носом у гостей, расположившихся возле острова. Или вообще гости/дети/домочадцы могут сидеть за обеденной группой, а готовящий работать за сотровом. В общем, Вы утрируете. ПОчему именно туш, а не салат, соки, напитки? Посилання на коментар Поділитися на інших сайтах More sharing options...
MayaDeren Опубліковано: 6 серпня 2012 Поділитись Опубліковано: 6 серпня 2012 конечно, я утрирую но салат, соки и напитки можно готовить и рядом с раковиной а вот кипящая кастрюлька на острове мне не нравится Посилання на коментар Поділитися на інших сайтах More sharing options...
миссис Коломбо Опубліковано: 6 серпня 2012 Поділитись Опубліковано: 6 серпня 2012 А мне не нравится на "острове" ни мойка, ни варочная поверхность. Гораздо удобнее использовать его, как рабочую поверхность + обеденный уголок (барный). Не так много времени нужно, чтобы засыпать продукты в кастрюлю, что-то помешать или подсолить. И сполоснуть овощи тоже много времени не займёт. А вот нарезка, раскладывание, оформление блюд требует много времени и места. И с тестом (если кто любит) на свободном "острове" тоже есть где развернуться. И (что и требовалось) хозяйка не отрывается от коллектива, и помощникам есть где пристроится. 2 Посилання на коментар Поділитися на інших сайтах More sharing options...
lina_ua Опубліковано: 10 серпня 2012 Поділитись Опубліковано: 10 серпня 2012 (змінено) Мне очень близка идея такого зонирования кухни, и прованс - мой идеал! В нашем доме на входе в кухню по левую сторон сразу будет стоять тумба, на ней кофемашина, чайник, на полках вверху и внизу кофе, чай в банках. На той же стороне буфетик - Как без него в провансе. Справа рабочая стенка с холодильником, духовым шкафом, варочной поверхностью, посудомоечной машиной и раковиной. У эркернных окон обеденный стол, в центре- остров, какого размера буду решать по месту. Юлия Высоцкая как-то высказывалась, что не любит столы-острова с встроенными мойками или печками, все разбрызгивается, неудобно. К ее мнению прислушиваюсь, и ее кухня мне очень нравится! А Вам?;) Змінено 10 серпня 2012 користувачем lina_ua Посилання на коментар Поділитися на інших сайтах More sharing options...
pr@ktik Опубліковано: 11 серпня 2012 Поділитись Опубліковано: 11 серпня 2012 Ну вот и мы созрели выставить на всеобщее обсуждение проект нашей будущей кухни. По дизайнерской задумке она будет состоять из 3-х частей. 1 - кухня-прихожая, где будет находится краник с фильтрованной водой, кофе-машина, чайник, морозилка. 2 - собственно сама кухня с плитой, духовкой и холодильником. 3 - остров с мойкой и посудомойкой. Так же задумка состоит в том, чтоб все эти 3 части были разные в цветовой гамме, но близки по стилистике. Хотим услышать грамотную критику, т.к. возможно что-то мы упустили, чего-то не знаем. А также нам интересно мнение мастеров, которые могут воплотить нарисованное в жизнь - какие материалы рекомендуете и собственно сколько это будет стоить. Всем спасибо за ответ. Всё оч красиво, но относительно цены Вам нужно в раздел тендер, о сотое сообщение - и я стал форумчанином Посилання на коментар Поділитися на інших сайтах More sharing options...
armis Опубліковано: 2 жовтня 2012 Поділитись Опубліковано: 2 жовтня 2012 планировка дома просто ужасна, подумайте прежде, чем реализовывать 1 Посилання на коментар Поділитися на інших сайтах More sharing options...
Viks Опубліковано: 2 жовтня 2012 Поділитись Опубліковано: 2 жовтня 2012 Пока идет бурное обсуждение проекта скромно предложу божественные итальянские фасады модель Flaminia известной фабрики iLcam Италия Совершенно новая модель 2012 года! массив ясеня белый и серебристой патиной Дорого, но гости будут уходить с глубоким осадком зависти ))) Спасибо Максим за фасады Фламиния! Я бы не сказал что так уж дорого по сравнению с нашим МДФ+пластик напр. Но эфектно смотрятся - это правда. 2 Посилання на коментар Поділитися на інших сайтах More sharing options...
max_13 Опубліковано: 2 жовтня 2012 Поділитись Опубліковано: 2 жовтня 2012 Спасибо Максим за фасады Фламиния! Я бы не сказал что так уж дорого по сравнению с нашим МДФ+пластик напр. Но эфектно смотрятся - это правда. Не за что! Вы были первый покупатель и Вам досталась скидка, остальным будет дороже ;) Посилання на коментар Поділитися на інших сайтах More sharing options...
M_Sergey Опубліковано: 17 квітня 2014 Поділитись Опубліковано: 17 квітня 2014 Вот задумал себе кухню типа в стиле прованс. конструктив: шкафы и тумбы из влагостойкой фанеры, столешница из плитки, фасады из дерева. Кухня1.PDF Вопрос - кто может взяться за изготовление шкафов и ящиков? Еще - готов выслушать конструктивную критику и буду за нее благодарен. Ориентируюсь, что будет выглядеть как-то так Посилання на коментар Поділитися на інших сайтах More sharing options...
max_13 Опубліковано: 17 квітня 2014 Поділитись Опубліковано: 17 квітня 2014 верхняя секция между окнами не в тему на мой взгляд... модет какие то полки туда, картинки? Посилання на коментар Поділитися на інших сайтах More sharing options...
M_Sergey Опубліковано: 17 квітня 2014 Поділитись Опубліковано: 17 квітня 2014 верхняя секция между окнами не в тему на мой взгляд... модет какие то полки туда, картинки? Может и так, но это сушка для посуды, она над раковиной. Мокрую посуду переносить через пол-кухни не очень удобно. Маємо те що маємо. Посилання на коментар Поділитися на інших сайтах More sharing options...
max_13 Опубліковано: 17 квітня 2014 Поділитись Опубліковано: 17 квітня 2014 я понимаю, но можно сушку сделать в нижней секции слева или права - у меня так дома - очень удобно кстати или например сделайте сушку - но открытую , прованс он в деталях ... полки кастрюльки и тп 3 Посилання на коментар Поділитися на інших сайтах More sharing options...
Рекомендовані повідомлення
Створіть акаунт або увійдіть у нього для коментування
Ви маєте бути користувачем, щоб залишити коментар
Створити акаунт
Зареєструйтеся для отримання акаунта. Це просто!
Зареєструвати акаунтУвійти
Вже зареєстровані? Увійдіть тут.
Увійти зараз