Ayusik Опубліковано: 9 серпня 2012 Поділитись Опубліковано: 9 серпня 2012 Уважаємі форумчани, прошу покритикувати, підказати, порадити щодо проекту нашого майбутнього будинку. Ідея зріє довго, та ось нарешті вирішено закласти фундамент цього року. Плани нарисували ( з дружиною ) )), приклавши колишні навики креслення, поради знайомих та знаючих людей. Це бединок з мансардним етажем, стіна мансарди піднята на 1,20-1,50м. Матеріал стін - поки не визначено. Перекриття - залізобетонні плити. Проживати плануємо Ми з дружиною + 2-3є діток. тобто до 5 чол. Хочу почути ваші думки. Чи має право на життя такий будинок, і + і - . Посилання на коментар Поділитися на інших сайтах More sharing options...
Ayusik Опубліковано: 9 серпня 2012 Автор Поділитись Опубліковано: 9 серпня 2012 Посилання на коментар Поділитися на інших сайтах More sharing options...
seyvalter Опубліковано: 9 серпня 2012 Поділитись Опубліковано: 9 серпня 2012 Не полінуйтесь зайти на мою почту - кину подивитись щось покраще. seyvalter@yandex.ru Посилання на коментар Поділитися на інших сайтах More sharing options...
Ayusik Опубліковано: 9 серпня 2012 Автор Поділитись Опубліковано: 9 серпня 2012 план першого поверху влаштовує нас цілком, Чим це погане? Посилання на коментар Поділитися на інших сайтах More sharing options...
loader Опубліковано: 9 серпня 2012 Поділитись Опубліковано: 9 серпня 2012 писав вам "в лічку" кілька запитань по бумагам, як буде час напишіть мої останні плани тут new.stroimdom.com.ua/forum/showthread.php?t=89721&page=2 Посилання на коментар Поділитися на інших сайтах More sharing options...
Ayusik Опубліковано: 10 серпня 2012 Автор Поділитись Опубліковано: 10 серпня 2012 Вирішив поміняти місцями спальню і ванну 1 поверху. При цьому потрібно зменшити місце під сходи на другий поверх, звідси питання: 1. Чи достатньо буде пройому Lниз = 2,1м Lверх=2,7м B=2,252м Ширина проходу сходів= 1 м. Чи буде комфортно по ній ходити??? Посилання на коментар Поділитися на інших сайтах More sharing options...
loader Опубліковано: 10 серпня 2012 Поділитись Опубліковано: 10 серпня 2012 При цьому потрібно зменшити місце під сходи на другий поверх, звідси питання: 1. Чи достатньо буде пройому Lниз = 2,1м Lверх=2,7м B=2,252м Ширина проходу сходів= 1 м. Чи буде комфортно по ній ходити??? [ATTACH]206880[/ATTACH] Висота першого поверху + перекриття яка планується? Посилання на коментар Поділитися на інших сайтах More sharing options...
Ayusik Опубліковано: 10 серпня 2012 Автор Поділитись Опубліковано: 10 серпня 2012 Висота першого поверху + перекриття яка планується? 2,7м + ж.б плита (0,08 якщо не помиляюсь) ітого 2,78 . Посилання на коментар Поділитися на інших сайтах More sharing options...
Artyomovets Опубліковано: 10 серпня 2012 Поділитись Опубліковано: 10 серпня 2012 2,7м + ж.б плита (0,08 якщо не помиляюсь) ітого 2,78 . плита будет без отделки? пол учли? и плиты по 220 мм в толщину, если мне не изменяет память Посилання на коментар Поділитися на інших сайтах More sharing options...
loader Опубліковано: 10 серпня 2012 Поділитись Опубліковано: 10 серпня 2012 2,7м + ж.б плита (0,08 якщо не помиляюсь) ітого 2,78 . 13 сходів маловато - підйом 21см "Практикой установлено, что удобной и безопасной лестница будет, если удвоенная высота подступенка, сложенная с шириной ступени (проступью), равняется среднему шагу человека. Длина шага человека на плоскости составляет примерно 62 – 64 см, а удобный подъем ноги 30 – 32 см. Исходя из этого, проступь и подъем определяют следующим образом: 2а + b =64 см или а + b =47 см, где а – высота ступени, b – ширина проступи. Идеальное отношение высоты подъема к ширине проступи 17/29" 1 Посилання на коментар Поділитися на інших сайтах More sharing options...
Ayusik Опубліковано: 10 серпня 2012 Автор Поділитись Опубліковано: 10 серпня 2012 плита будет без отделки? пол учли? и плиты по 220 мм в толщину, если мне не изменяет память Да, з плитою я промахнувся ) Звичайно ж плита з отделкою, ок., закладаю 300 на плиту з полом і отделкою 2,7+0,3=3м Але мені здається що 20 см вверх чи вниз на загальній довжині не сильно зіграє роль, чи це не так? Просто хочу знати який пройом залишати, щоб туди стала лестница по якій буде комфортно ходити ? Посилання на коментар Поділитися на інших сайтах More sharing options...
Artyomovets Опубліковано: 10 серпня 2012 Поділитись Опубліковано: 10 серпня 2012 Да, з плитою я промахнувся ) Звичайно ж плита з отделкою, ок., закладаю 300 на плиту з полом і отделкою 2,7+0,3=3м Але мені здається що 20 см вверх чи вниз на загальній довжині не сильно зіграє роль, чи це не так? Просто хочу знати який пройом залишати, щоб туди стала лестница по якій буде комфортно ходити ? 23 см высота ступени - крайне плохо... ступенек 5 добавить надо 300/18 = 16.67 Посилання на коментар Поділитися на інших сайтах More sharing options...
Ayusik Опубліковано: 10 серпня 2012 Автор Поділитись Опубліковано: 10 серпня 2012 Та чесно я ще не заморачувався над кількістю ступеньок і проступю (чи як воно зветься, висота між ступенями), як в СтарКоні було по умолчанію так і намалював. Зараз перероблю . Посилання на коментар Поділитися на інших сайтах More sharing options...
Artyomovets Опубліковано: 10 серпня 2012 Поділитись Опубліковано: 10 серпня 2012 Та чесно я ще не заморачувався над кількістю ступеньок і проступю (чи як воно зветься, висота між ступенями), як в СтарКоні було по умолчанію так і намалював. Зараз перероблю . ширину ступенек тоже не игнорируйте. хотя бы 27-28 см. лучше 30 1 Посилання на коментар Поділитися на інших сайтах More sharing options...
Ayusik Опубліковано: 10 серпня 2012 Автор Поділитись Опубліковано: 10 серпня 2012 Вроді як переробив. Ввисоту брав 3м. 270+22+10=302см Ось так получилось, думаю для попереднього розрахунку - те що потрібно. Як вважаєте?? Посилання на коментар Поділитися на інших сайтах More sharing options...
Ayusik Опубліковано: 10 серпня 2012 Автор Поділитись Опубліковано: 10 серпня 2012 Доречі, висота першого поверху 270 - нормально?? Посилання на коментар Поділитися на інших сайтах More sharing options...
Artyomovets Опубліковано: 10 серпня 2012 Поділитись Опубліковано: 10 серпня 2012 Доречі, висота першого поверху 270 - нормально?? для квартиры - да. для дома - маловато. имхо. хотя у вас гостиная 20 метров всего, поэтому давить особо не должно. но я бы 3 метра хотел Посилання на коментар Поділитися на інших сайтах More sharing options...
Ayusik Опубліковано: 10 серпня 2012 Автор Поділитись Опубліковано: 10 серпня 2012 для квартиры - да. для дома - маловато. имхо. хотя у вас гостиная 20 метров всего, поэтому давить особо не должно. но я бы 3 метра хотел у тёщи в доме 3,3 м у меня в квартире 2,55-2,6, вот я и накинул 10 см )) к тёще как приезжаю - всеравно как в музее какомто, неуютно ) гостевая 20м, - согласен маловато, планировали 25, но стены сёли , ну и жена утвердила кухню не маньше 15м, вот так и получается. Планируется между гостевой и кухней какаято (ище не решино какая) перегородка, и возможно аквариум в стене, что надеюсь, увеличет гостинную, хотя бы визуально. А по лестнице в таком варианте то как ??? Посилання на коментар Поділитися на інших сайтах More sharing options...
Artyomovets Опубліковано: 10 серпня 2012 Поділитись Опубліковано: 10 серпня 2012 А по лестнице в таком варианте то как ??? ну, выглядит приемлемо. на практике - смоделировать бы ее а потолок - я и говорю. на 20 метрах давить на голову точно не будет. Посилання на коментар Поділитися на інших сайтах More sharing options...
Ayusik Опубліковано: 10 серпня 2012 Автор Поділитись Опубліковано: 10 серпня 2012 на практике - смоделировать бы ее Ну пока дойдет до практики - так ещё поиграюсь с ней, главное теперь знаю каких размеров она будет, тепер планировку буду немножко менять. Посилання на коментар Поділитися на інших сайтах More sharing options...
seyvalter Опубліковано: 10 серпня 2012 Поділитись Опубліковано: 10 серпня 2012 Нормальна висота - 2,8 м. Вважайте що це висота до голої панелі - а там ще кілька сантиметрів опорядження з"їсть. 1 Посилання на коментар Поділитися на інших сайтах More sharing options...
loader Опубліковано: 10 серпня 2012 Поділитись Опубліковано: 10 серпня 2012 Вроді як переробив. Ввисоту брав 3м. 270+22+10=302см Ось так получилось, думаю для попереднього розрахунку - те що потрібно. Як вважаєте?? [ATTACH]206945[/ATTACH] нормально. Посилання на коментар Поділитися на інших сайтах More sharing options...
Aleks_inc Опубліковано: 12 серпня 2012 Поділитись Опубліковано: 12 серпня 2012 На рахунок сходів, ширини 1000 жостатньо для повсягденного життя, але краще 1200, вам же, ще меблі на 2 поверх (габаритні) підіймати, а ще ванна... На рахунок висоти поверха, то краще беріть 3м і буде самий раз (а може ще в майбуньому підвісну чи натяжну стелю побажаєте) По плануванню, одразу в око кидається другий поверх, коридор, де будуть на всіх стінах двері))) З сторони економії гарна ідея, з боку естетики і практичного використання -спірно. Посилання на коментар Поділитися на інших сайтах More sharing options...
Ayusik Опубліковано: 12 серпня 2012 Автор Поділитись Опубліковано: 12 серпня 2012 На рахунок сходів, ширини 1000 жостатньо для повсягденного життя, але краще 1200, вам же, ще меблі на 2 поверх (габаритні) підіймати, а ще ванна... На рахунок висоти поверха, то краще беріть 3м і буде самий раз (а може ще в майбуньому підвісну чи натяжну стелю побажаєте) По плануванню, одразу в око кидається другий поверх, коридор, де будуть на всіх стінах двері))) З сторони економії гарна ідея, з боку естетики і практичного використання -спірно. 1200 - звичайно краще, проте треба пожертвувати ще 40 см площі. Не полінувався заміряти сходи в підїзді мого будинку - 1050 - від стіни до поручня, і ними піднято до квартир набагато більше всього (і мною в тому числі) що потрібно буде підняти мені на мансардний поверх свого будинку. А ванну, лише 1 раз (я надіюсь ))) ) Отож вважаю що 1м буде достатньо. Посилання на коментар Поділитися на інших сайтах More sharing options...
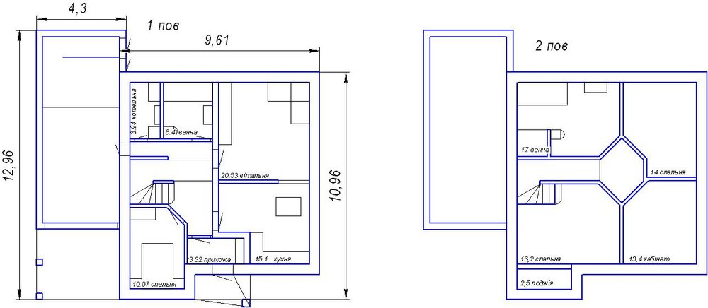
Ayusik Опубліковано: 15 серпня 2012 Автор Поділитись Опубліковано: 15 серпня 2012 Переробив, перемалював, погрався і ось що вийшло. Вирішив котельну обєднати з прихожою., Якщо потрібно буде то розділю гіпсовою перегородкою, і планування 2-го поверху змінили. Зараз хвилює чи достатньо буде висоти мансардного поверху для підняття по сходах і висоти в ванні 2-го поверху??? Господа Архітектори, проектанти, прошу шквал критики, зауважень та, можливо порад ??? Посилання на коментар Поділитися на інших сайтах More sharing options...
Рекомендовані повідомлення
Створіть акаунт або увійдіть у нього для коментування
Ви маєте бути користувачем, щоб залишити коментар
Створити акаунт
Зареєструйтеся для отримання акаунта. Це просто!
Зареєструвати акаунтУвійти
Вже зареєстровані? Увійдіть тут.
Увійти зараз