roma-kim Опубліковано: 9 серпня 2012 Поділитись Опубліковано: 9 серпня 2012 есть такая квартирочка, 78 м и есть такие варианты перепланировки: что да как - советуйте и критикуйте. Посилання на коментар Поділитися на інших сайтах More sharing options...
AR Опубліковано: 9 серпня 2012 Поділитись Опубліковано: 9 серпня 2012 есть такая квартирочка, 78 м и есть такие варианты перепланировки: что да как - советуйте и критикуйте. Ниче не видно... Слишком мелкие картинки. Посилання на коментар Поділитися на інших сайтах More sharing options...
Nmod Опубліковано: 9 серпня 2012 Поділитись Опубліковано: 9 серпня 2012 (змінено) roma-kim, критиковать можно долго и даже нудно)))), поливать грязью, как говорится не строить))) (аналог шутки по поводу эволюции сантехников) а у вас какие требования? что вы хотите получить в итоге? какое помещения у вас в приоритете? Сколько будет жить человек? есть ли в планах расширении семьи? какой график работы- в какое время пик активности в квартире и в каких помещениях планируется?, как используете кухня для посиделок, семейных "сборов", или это просто формальность (место где стоит холодильник), есть ли животные? "кавказец" или маленький хомьячок и пару рыбок, а может вообще аллергия на животных и нужен гипоаллергенный подход? без ТЗ - технического задания критиковать можно долго но толку не будет,- что тыкать пальцем в небо. У вас разная подача плана- рискну предположить что делали разные люди, - наверняка шли комментарии к планам, - (к сожалению ручная подача не дает гарантии масштабности предметов) да и ваше мнение и предпочтения тоже не помешали бы, ведь вы для себя делаете и никто кроме вас самого за вас не решит что вам ближе что вам дальше. Рассмотреть более менее смог только 3-й вариант - как вариант сойдет но показался немного пустоватым -(но надо знать что добавлять) остальные планировки - можно сломать глаза))) (не рассмотрел) Змінено 9 серпня 2012 користувачем Nmod Посилання на коментар Поділитися на інших сайтах More sharing options...
roma-kim Опубліковано: 10 серпня 2012 Автор Поділитись Опубліковано: 10 серпня 2012 вот изначальная планировка Посилання на коментар Поділитися на інших сайтах More sharing options...
roma-kim Опубліковано: 10 серпня 2012 Автор Поділитись Опубліковано: 10 серпня 2012 постараюсь обьяснить "требования" и пожелания. значит нас трое, включая сина школьного возраста, впринципе возможно увеличение чисельности, но потом. собак и рыбок нет и небудет. пик активности до работы и после. из основных пожеланий увеличение ванной комнаты (желательно чтоб получилась душевая кабинка кроме самой ванны), и увеличение кухни (в основном из-за того что некуда втыкнуть холодильник) и ньюанс - на кухню студию мы не решились, хотя оно бы значительно упростило задачи. Посилання на коментар Поділитися на інших сайтах More sharing options...
roma-kim Опубліковано: 10 серпня 2012 Автор Поділитись Опубліковано: 10 серпня 2012 поробую перезалить Посилання на коментар Поділитися на інших сайтах More sharing options...
AR Опубліковано: 10 серпня 2012 Поділитись Опубліковано: 10 серпня 2012 Студия, скорее всего, Вам не поможет... Слишком маленькие помещения. Хотя, определенную "свободу" в планировке получили бы. Скорее всего, принципиальо, ничего из этой планировки "не вытащить". Кухня остается на своем месте, гостиная напротив... Весь "улучшайзинг" лежит в области нюансов. Сорри, но, на мой взгляд, Ваши варианты тольлько усугубляют проблемы планировки. Посилання на коментар Поділитися на інших сайтах More sharing options...
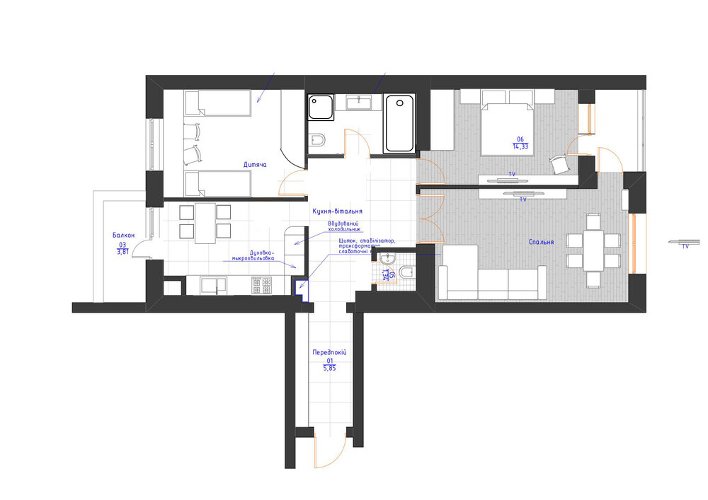
roma-kim Опубліковано: 10 серпня 2012 Автор Поділитись Опубліковано: 10 серпня 2012 а такой компромис ? Посилання на коментар Поділитися на інших сайтах More sharing options...
roma-kim Опубліковано: 12 серпня 2012 Автор Поділитись Опубліковано: 12 серпня 2012 а такой бред? Посилання на коментар Поділитися на інших сайтах More sharing options...
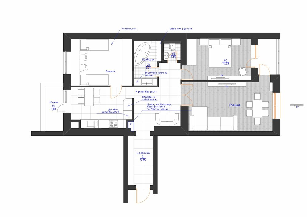
angor Опубліковано: 12 серпня 2012 Поділитись Опубліковано: 12 серпня 2012 не издевайтесь Вот вам вариант. Только в комнате за кухней лучше не детскую, а спальню. По-моему все влазит - и холодильник, и душ... Еще с дверьми разобраться, как лучше открывать, и проход сделать нормальный. Но визуально ничего вроде, должно получиться. Но это все, конечно, при условии, что все эти стены двигать можно. Посилання на коментар Поділитися на інших сайтах More sharing options...
roma-kim Опубліковано: 12 серпня 2012 Автор Поділитись Опубліковано: 12 серпня 2012 да, хороший вариант. а как насчет идеологии - "вход в спальню через кухню" ? Посилання на коментар Поділитися на інших сайтах More sharing options...
angor Опубліковано: 13 серпня 2012 Поділитись Опубліковано: 13 серпня 2012 А че? Я тут проблемы не вижу. По-моему удобно: ночью водички попить, заодно котлетку задвинул, и назад. Если покурить, тоже ничего, балкон на кухне, отгорожен от спальни кухней, так что запахов не будет. А то что не будет отдельного входа в спальню, так она и так почти целый день закрыта, а ночью какая разница. Любая другая комната будет постоянно посещаема, через кухню беготня будет. И потом, чем-то ж нужно жертвовать. Зато какая ванная! Посилання на коментар Поділитися на інших сайтах More sharing options...
Яло Опубліковано: 13 серпня 2012 Поділитись Опубліковано: 13 серпня 2012 поробую перезалить Мне первый вариант больше нравится. Единственное, что бы я изменила- это вместо детской - гостиная, а большую комнату для ребетенка. "Мухи отдельно- котлеты отдельно". И в принципе не обязательно совмещать эти два помещения (раз Вы так не хотите кухню-студио). А не хотите совместить балкон с кухней? Посилання на коментар Поділитися на інших сайтах More sharing options...
roma-kim Опубліковано: 13 серпня 2012 Автор Поділитись Опубліковано: 13 серпня 2012 да не, стены очь толстые, прозод маленький будет, балкон угловой, сильно его не утеплишь... да и зачем? Посилання на коментар Поділитися на інших сайтах More sharing options...
Яло Опубліковано: 13 серпня 2012 Поділитись Опубліковано: 13 серпня 2012 да и зачем? Это я к тому, что бы холодильник вынести на балкон. Но это, конечно, если балкон утеплен и убрать балконный блок.... Посилання на коментар Поділитися на інших сайтах More sharing options...
vasi_lisa Опубліковано: 13 серпня 2012 Поділитись Опубліковано: 13 серпня 2012 я бы так сделала Посилання на коментар Поділитися на інших сайтах More sharing options...
AR Опубліковано: 14 серпня 2012 Поділитись Опубліковано: 14 серпня 2012 я бы так сделала Поддерживаю Посилання на коментар Поділитися на інших сайтах More sharing options...
voglya Опубліковано: 14 серпня 2012 Поділитись Опубліковано: 14 серпня 2012 не издевайтесь Вот вам вариант. Только в комнате за кухней лучше не детскую, а спальню. По-моему все влазит - и холодильник, и душ... Еще с дверьми разобраться, как лучше открывать, и проход сделать нормальный. Но визуально ничего вроде, должно получиться. Но это все, конечно, при условии, что все эти стены двигать можно. Или я чего-то не поняла? ЕСТЬ существующая планировка, нужно ее изменить, да? Но есть же нормы.... Над жилыми помещениями нельзя делать кухни, т.е. помещения с газовым оборудованием. Посилання на коментар Поділитися на інших сайтах More sharing options...
angor Опубліковано: 14 серпня 2012 Поділитись Опубліковано: 14 серпня 2012 Но есть же нормы.... Ну вот, а так хорошо все начиналось, туалет уже чуть не в лифтовую выбежал, а тут вдруг нормы... Добавлено через 35 минут я бы так сделала Все бы ничего, только как "продукт" будет попадать в существующий стояк, до которого будет метров 6? Там труба 110, плюс уклон, плинтусом не прикроешь Посилання на коментар Поділитися на інших сайтах More sharing options...
roma-kim Опубліковано: 14 серпня 2012 Автор Поділитись Опубліковано: 14 серпня 2012 Все бы ничего, только как "продукт" будет попадать в существующий стояк, до которого будет метров 6? Там труба 110, плюс уклон, плинтусом не прикроешь вот именно! етот вариант был в голове... но слив нереально организовать Посилання на коментар Поділитися на інших сайтах More sharing options...
vasi_lisa Опубліковано: 14 серпня 2012 Поділитись Опубліковано: 14 серпня 2012 а если так? Посилання на коментар Поділитися на інших сайтах More sharing options...
viksi_f Опубліковано: 29 серпня 2012 Поділитись Опубліковано: 29 серпня 2012 ИМХО, я бы оставила изначальную планировку с небольшими изменениями. Гостиную оставить рядом с кухней, но все таки, снести между ними стену. При этом не делать студию, а на месте этой стены сделать остров-портал (не знаю, как правильно называется), наподобие, как на фото по ссылкам: www.houzz.com/photos/240634/Classic-City-Kitchen-traditional-kitchen-boston, www.houzz.com/photos/331475/Before-Havenhurst-Drive-Kitchen-traditional-kitchen-san-diego. Там можно подобрать более подходящий по стилю вариант. В кухне свободно разместится холодильник возле входа, мойку сместить на другую стену, плиту подвинуть дальше вправо. За счет такой перепланировки можно увеличить с/у, я бы поставила там дополнительный унитаз (на 3 чел. не будет лишним, проверено). Маленький с/у исп. как гостевой или дополнительный. Большую комнату отдать ребенку - там хватит места и для сна, и для занятий, и еще простор для игр/приема гостей будет (дополнительно диванчик поставить). В перспективе, не придется делать чейндж, когда пополнение появится. А для родителей комната поменьше с балконом, исключительно как спальня, а все прочее - в гостиной. Как-то так. Посилання на коментар Поділитися на інших сайтах More sharing options...
Яло Опубліковано: 30 серпня 2012 Поділитись Опубліковано: 30 серпня 2012 ИМХО, я бы оставила изначальную планировку с небольшими изменениями. Гостиную оставить рядом с кухней, но все таки, снести между ними стену. При этом не делать студию, а на месте этой стены сделать остров-портал +1. Поддерживаю! 1 Посилання на коментар Поділитися на інших сайтах More sharing options...
Рекомендовані повідомлення
Створіть акаунт або увійдіть у нього для коментування
Ви маєте бути користувачем, щоб залишити коментар
Створити акаунт
Зареєструйтеся для отримання акаунта. Це просто!
Зареєструвати акаунтУвійти
Вже зареєстровані? Увійдіть тут.
Увійти зараз