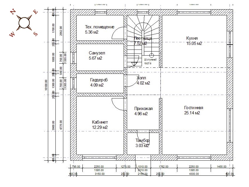
alexob Опубліковано: 29 жовтня 2012 Поділитись Опубліковано: 29 жовтня 2012 Всем привет. Вкратце о задумках. Изначально стоит задача спроектировать дом около 170 м2 (+-). Правильно расположить по сторонам света и иметь определенный набор помещений на каждом этаже. Семья из 4-х человек. Прикладываю первый этаж. На нем нам нужно: гостинная + кухня совмещенные, кабинет, санузел, котельная, гардероб (кладовая). Разместить хотели все лаконично, максимально используя полезное пространство и получить максимально большие площади комнат. Крутили-вертели, и получили то что есть. Смутило только, что вход в котельную находится в низкой зоне под лестницей. Но рассчитываю на то, что она будет не часто посещаемой. Планировали к северу расположить все нежилые комнаты. По левую северо-западную сторону дома будет навес для авто. Выход с кухни на террасу. Уважаемые форумчане, буду очень благодарен за советы и критику по моей планировке. Участок по сторонам света: Планировка 1-го этажа: Посилання на коментар Поділитися на інших сайтах More sharing options...
Drosselbeere Опубліковано: 29 жовтня 2012 Поділитись Опубліковано: 29 жовтня 2012 хотелось бы увидеть 2 этаж. лестница немного корявая, да и в тех помещение будете не входить, а заползать, или же ступеньки и пол ниже делать. для лесенки можно сделать эркер, что бы открыть доступ к помещениям Посилання на коментар Поділитися на інших сайтах More sharing options...
Andrei constructor Опубліковано: 29 жовтня 2012 Поділитись Опубліковано: 29 жовтня 2012 Вариант незачетный. Просто нарезали помещений без фантазии. Делайте еще варианты. Посилання на коментар Поділитися на інших сайтах More sharing options...
wipe Опубліковано: 30 жовтня 2012 Поділитись Опубліковано: 30 жовтня 2012 Скучно, окно в гагдеробной ? Фасады вы себе представили уже ? Поменять местами: гардероб опустить к тамбуру, потом тех помещение, далее сан узел, и в самом конце дома кабинет, это хать как то вяжется (если вы все таки решите оставить эту планировку) И повторюсь еще раз, в типовых проектах уже все красиво придуманно, смотрите их, там всего то возможно надо что то поменять, прижумать дом с нуля очень сложно, данная планировка ужасная, согласен только с кухня+гостиная. Посилання на коментар Поділитися на інших сайтах More sharing options...
alexob Опубліковано: 30 жовтня 2012 Автор Поділитись Опубліковано: 30 жовтня 2012 Скучно, окно в гагдеробной ? Окно в гардеробной, пережиток предыдущих вариантов, забыл удалить. Фасады вы себе представили уже ? пока что только есть варианты фасадов из интернета. Поменять местами: гардероб опустить к тамбуру, потом тех помещение, далее сан узел, и в самом конце дома кабинет, это хать как то вяжется (если вы все таки решите оставить эту планировку) И повторюсь еще раз, в типовых проектах уже все красиво придуманно, смотрите их, там всего то возможно надо что то поменять, прижумать дом с нуля очень сложно, Если поменять местами как вы говорите, то кабинет окажется строго на север, чего не хотелось бы. Также разнос коммуникаций с кухней увеличивается. Можно кухню конечно поменять с гостиной, но тогда условие выхода на террасу из кухни/столовой и вид на пейзаж из террасы, пропадает типовые планировки это конечно хорошо, но они не всегда могут удовлетворить на 100% пожелания, в идеале должно совпасть несколько условий: стороны света и посадка на участок, количество и размеры комнат, квадратура, бюджет и т.д. В действительности мы находили несколько вариантов, которые нравятся по планировке, но к примеру размер комнат немного был не такой, начал изменять - все плывет. данная планировка ужасная, не сильно понимаю почему ужасная, но соглашусь что скучноватая - обычные разделения. Можно конечно дом развеять эркерами и выступами, крыльцом и т.п., внешний вид поменяется. Поэтому и создал тему - получить конструктивную критику согласен только с кухня+гостиная. кухню планируем островкового типа - очень нравится, и общая зона для этого в самый раз. Добавлено через 4 минуты хотелось бы увидеть 2 этаж. выложу немного позже, сейчас есть только мысли - на "бумаге" пока отсутствует лестница немного корявая, да и в тех помещение будете не входить, а заползать, или же ступеньки и пол ниже делать. для лесенки можно сделать эркер, что бы открыть доступ к помещениям да, видимо при такой планировке придется заползать, думал что из-за редкого посещения это будет не в напряг , возможно эркер и хорошая идея, спасибо. А почему лестница корявая, неправильно рассчитана или что? Посилання на коментар Поділитися на інших сайтах More sharing options...
Drosselbeere Опубліковано: 30 жовтня 2012 Поділитись Опубліковано: 30 жовтня 2012 А почему лестница корявая, неправильно рассчитана или что? при такой конструкции много места занимает, да и высоту ступенек видимо считали 150? Посилання на коментар Поділитися на інших сайтах More sharing options...
wipe Опубліковано: 30 жовтня 2012 Поділитись Опубліковано: 30 жовтня 2012 не сильно понимаю почему ужасная, но соглашусь что скучноватая - обычные разделения. Можно конечно дом развеять эркерами и выступами, крыльцом и т.п., внешний вид поменяется. Поэтому и создал тему - получить конструктивную критику Вооот, и я вам про это, надо ваши хотелки по внутрянке, соеденить с внешним видом дома и желательно сделать это все в какой то программе, что бы видеть, что же в итоге получилось. Если поменять местами как вы говорите, то кабинет окажется строго на север, чего не хотелось бы. У меня две комнаты увы на север, но эта не такая уж большая жертва, вы опасаетесь промерзания или недостаточности освещения ? Также разнос коммуникаций с кухней увеличивается. в сумме увеличите слив и пронос труб на 500 гривен, это не такие большие деньги. Посилання на коментар Поділитися на інших сайтах More sharing options...
loader Опубліковано: 30 жовтня 2012 Поділитись Опубліковано: 30 жовтня 2012 да, видимо при такой планировке придется заползать, думал что из-за редкого посещения это будет не в напряг , возможно эркер и хорошая идея, спасибо. А назначение какое этого техпомещения? Видел и жил в доме где топочная+туалет на первом этаже совмещены, отопление газ+электро. Если у вас аналогично - не вижу смысла делить... Если твердотопливник - тогда да, но и вход с улицы нужен будет, либо ближе к входу. Посилання на коментар Поділитися на інших сайтах More sharing options...
Andrei constructor Опубліковано: 30 жовтня 2012 Поділитись Опубліковано: 30 жовтня 2012 Если поменять местами как вы говорите, то кабинет окажется строго на север, чего не хотелось бы. Не самый плохой вариант для кабинета, когда окно на север, а вот в вашем случае огромное окно кабинета на юго-запад. Как там летом работать, читать книги? Посилання на коментар Поділитися на інших сайтах More sharing options...
alexob Опубліковано: 30 жовтня 2012 Автор Поділитись Опубліковано: 30 жовтня 2012 А назначение какое этого техпомещения? Видел и жил в доме где топочная+туалет на первом этаже совмещены, отопление газ+электро. Если у вас аналогично - не вижу смысла делить... Если твердотопливник - тогда да, но и вход с улицы нужен будет, либо ближе к входу. Под тех.помещением я имел ввиду топочтую, где будет расположен котел. По поводу котла ТТ сейчас в мыслях, возможно и нужен будет, взвешиваем пока все за и все против Если решим, то тогда уж и дверь нужно будет - тут верно. Посилання на коментар Поділитися на інших сайтах More sharing options...
Andrei constructor Опубліковано: 30 жовтня 2012 Поділитись Опубліковано: 30 жовтня 2012 Можно конечно дом развеять эркерами и выступами, крыльцом и т.п., внешний вид поменяется. Можно удобную и интересную планировку сделать в объеме без всяких выступов. Если хотите, пример скину вам на электронку. Посилання на коментар Поділитися на інших сайтах More sharing options...
alexob Опубліковано: 30 жовтня 2012 Автор Поділитись Опубліковано: 30 жовтня 2012 У меня две комнаты увы на север, но эта не такая уж большая жертва, вы опасаетесь промерзания или недостаточности освещения ? ну не то чтобы промерзания - нагреть то мы нагреем но хотелось бы поэкономнее быть с энергоресурсами и соответственно уменьшить денежные расходы на оплату Добавлено через 2 минуты Можно удобную и интересную планировку сделать в объеме без всяких выступов. Если хотите, пример скину вам на электронку. Пожалуйста, если можно, буду очень благодарен Посилання на коментар Поділитися на інших сайтах More sharing options...
Skra Опубліковано: 30 жовтня 2012 Поділитись Опубліковано: 30 жовтня 2012 красивые картинки, в чем рисуете? По теме может совет избитый, но посмотрите готовые варианты планировок благо их полно, например вот z500.com/project/zx24 Посилання на коментар Поділитися на інших сайтах More sharing options...
alexob Опубліковано: 30 жовтня 2012 Автор Поділитись Опубліковано: 30 жовтня 2012 при такой конструкции много места занимает, да и высоту ступенек видимо считали 150? верно, 150 мм. я получил 22 ступени 150 мм высотой и с шагом 276 мм Посилання на коментар Поділитися на інших сайтах More sharing options...
Drosselbeere Опубліковано: 30 жовтня 2012 Поділитись Опубліковано: 30 жовтня 2012 150 мм высотой и с шагом 276 мм это будет не очень удобная лестница для ходьбы. нормальный шаг 600-640, то есть 2хподступеньки + проступь, на пример 167*2+ 267 = 604 (при высоте этажа 3 м - 18 подьемов) есть книга Косо Йожеф - Лестницы. Дизайн и технология... в ней очень хорошо и доступно описаны лестницы, а так же конструкции Посилання на коментар Поділитися на інших сайтах More sharing options...
alexob Опубліковано: 30 жовтня 2012 Автор Поділитись Опубліковано: 30 жовтня 2012 это будет не очень удобная лестница для ходьбы. нормальный шаг 600-620, то есть 2хподступеньки + проступь, на пример 167*2+ 267 = 604 (при высоте этажа 3 м - 18 подьемов) есть книга Косо Йожеф - Лестницы. Дизайн и технология... в ней очень хорошо и доступно описаны лестницы, а так же конструкции понял. значит можно увеличить высоту ступеньки. В принципе она влезет все равно в текущую площадь (или объем) За книжку спасибо, возьму на вооружение Посилання на коментар Поділитися на інших сайтах More sharing options...
Andrei constructor Опубліковано: 30 жовтня 2012 Поділитись Опубліковано: 30 жовтня 2012 Сделайте лестницу без забежных ступеней. Потом спасибо себе скажите. Добавлено через 49 минут есть книга Косо Йожеф - Лестницы. Дизайн и технология... Спасибо, очень полезная книга. Посилання на коментар Поділитися на інших сайтах More sharing options...
alexob Опубліковано: 30 жовтня 2012 Автор Поділитись Опубліковано: 30 жовтня 2012 красивые картинки, в чем рисуете? По теме может совет избитый, но посмотрите готовые варианты планировок благо их полно, например вот z500.com/project/zx24 картинки рисовал в Paint и в Arcon. Спасибо за ссылку. Понравилось, что можно прикинуть объем помещений по фотографиям - красивые интерьеры Посилання на коментар Поділитися на інших сайтах More sharing options...
alexob Опубліковано: 1 листопада 2012 Автор Поділитись Опубліковано: 1 листопада 2012 Изменили планировку, вот что получилось: Этаж 1 Этаж 2 Недостатком вижу то, что в прихожей отсутствует место, чтобы снимать верхнюю одежду. Думаю как бы его так сделать удобно, чтобы раздевалку впихнуть и "обувницу". Кто что скажет? Какие недостатки и преимущества? Можно ли "подружить" такую планировку с понравившимся фасадом (здесь) (только отзеркалить). Посилання на коментар Поділитися на інших сайтах More sharing options...
Andrei constructor Опубліковано: 2 листопада 2012 Поділитись Опубліковано: 2 листопада 2012 Недостатком вижу то, что в прихожей отсутствует место, чтобы снимать верхнюю одежду. Думаю как бы его так сделать удобно, чтобы раздевалку впихнуть и "обувницу". Правильно видите. Добавлено через 2 минуты 1. Гардероб на 1-м этаже нужен? 2. В санузле 2-го этажа два умывальника. Для чего? 3. Плохо смотрится, когда перегородка перебивает окно. 4. Зрительно видно, у вас что входные двери, что межкомнатные одинаковой ширины. 5. Мебель и двери расставлены небрежно. Планировка складывается из маленьких нюансов, а вы ими пренебрегаете. В целом, уже есть что обсуждать. Промежуточный вариант. Посилання на коментар Поділитися на інших сайтах More sharing options...
alexob Опубліковано: 2 листопада 2012 Автор Поділитись Опубліковано: 2 листопада 2012 1. Гардероб на 1-м этаже нужен? Да, на первом этаже (тем более в первое время, пока не сделаем подвала в отдельном домике) будут хранится даже банки и к примеру туристическое оборудование , в общем по первОй будет как кладовка совместно с гардеробом 2. В санузле 2-го этажа два умывальника. Для чего? Посоветовали. У нас двое детей будут, и одновременное посещение ванной комнаты очень вероятное. Даже сейчас с одним ребенком сами по утрам и вечерам ожидаем друг друга 3. Плохо смотрится, когда перегородка перебивает окно. В принципе тут окна можно разнести чуть дальше друг от друга, или вообще в гардеробной его убрать - останется одно в санузле 4. Зрительно видно, у вас что входные двери, что межкомнатные одинаковой ширины. Ну это я так понял сейчас не критично - входные поставим шире , мы сейчас упор на планировку делаем. 5. Мебель и двери расставлены небрежно. Планировка складывается из маленьких нюансов, а вы ими пренебрегаете. По мебели также не стоит обращать внимание, мебель установлена чтобы прикинуть размер комнаты - так и осталась. А вот на счет дверей, что именно небрежно? Вижу только один небрежный момент - это двери в гостиную возле лестницы. В целом, уже есть что обсуждать. Промежуточный вариант. Спасибо за помощь Да, и забыл сказать, мы сразу не обратили внимания, но эта планировка немного превышает по метражу наше желание. Здесь 190 м2, а мы хотим 170. Теперь сидим думаем что бы такого уменьшить, чтобы поместиться Посилання на коментар Поділитися на інших сайтах More sharing options...
Andrei constructor Опубліковано: 2 листопада 2012 Поділитись Опубліковано: 2 листопада 2012 Да, на первом этаже (тем более в первое время, пока не сделаем подвала в отдельном домике) будут хранится даже банки и к примеру туристическое оборудование , в общем по первОй будет как кладовка совместно с гардеробом Еще можно сделать кладовку под 2-м маршем лестницы. Добавлено через 1 минуту Посоветовали. У нас двое детей будут, и одновременное посещение ванной комнаты очень вероятное. Даже сейчас с одним ребенком сами по утрам и вечерам ожидаем друг друга У вас 3 санузла в доме на 4-х человек. Лишний прибор это дополнительное место и деньги Добавлено через 2 минуты Ну это я так понял сейчас не критично - входные поставим шире , мы сейчас упор на планировку делаем. Если вы делаете планировку, то учитывайте реальные размеры дверей, мебели и оборудования. Иначе это не план, а эскиз (пусть даже на компьютере). Добавлено через 1 минуту По мебели также не стоит обращать внимание, мебель установлена чтобы прикинуть размер комнаты - так и осталась. А вот на счет дверей, что именно небрежно? Вижу только один небрежный момент - это двери в гостиную возле лестницы. Мебель нужно расставить всю (составьте список по каждой комнате что нужно). Когда начнете ее расставлять, поймете почему двери у вас поставлены небрежно. Посилання на коментар Поділитися на інших сайтах More sharing options...
alexob Опубліковано: 2 листопада 2012 Автор Поділитись Опубліковано: 2 листопада 2012 Еще можно сделать кладовку под 2-м маршем лестницы. да, как вариант, учтем. У вас 3 санузла в доме на 4-х человек. Лишний прибор это дополнительное место и деньги на первом этаже необходимо в нескольких случаях, это туалет для гостей, душ гостевой, руки помыть после ужина детям да и самому (чтобы не бежать по ступенькам наверх), покопался летом в земле, с техникой повозился - зашел помылся по душем (че на второй этаж бежать). Если вы делаете планировку, то учитывайте реальные размеры дверей, мебели и оборудования. Иначе это не план, а эскиз (пусть даже на компьютере). та мы еще в размер свой не влезли, тут не до дверей, тут еще проблема глобальнее стоит - какую комнату выбросить или уменьшить Точно можем сказать только о кухне, т.к. знаем что будет островковая. Кабинет на первом этаже тоже знаем - дверь не сильно играет роль. В основном проблема расположения вспомогательных нежилых помещений. Бесспорно что двери тоже важно, и мы их учтем. Мебель нужно расставить всю (составьте список по каждой комнате что нужно). Когда начнете ее расставлять, поймете почему двери у вас поставлены небрежно. я скажу больше, я Вам под любую планировку мебель спроектирую и выставлю ;) независимо от того где двери. Посилання на коментар Поділитися на інших сайтах More sharing options...
wipe Опубліковано: 2 листопада 2012 Поділитись Опубліковано: 2 листопада 2012 Кто что скажет? Какие недостатки и преимущества? Хорошая планировка, если вы присмотритесь, то она ооочень похожа на планировку проекта Обитель ангелов, смотрите фото ниже. Посилання на коментар Поділитися на інших сайтах More sharing options...
alexob Опубліковано: 4 листопада 2012 Автор Поділитись Опубліковано: 4 листопада 2012 А как вообще вариант, если лестница будет начинаться и частично находиться в гостинной и уходить вверх за какую-нибудь стену. Хороший ли это вариант, и удобно ли будет? Это может сэкономить место для других помещений. Попробую набросать в арконе и покажу Посилання на коментар Поділитися на інших сайтах More sharing options...
Рекомендовані повідомлення
Створіть акаунт або увійдіть у нього для коментування
Ви маєте бути користувачем, щоб залишити коментар
Створити акаунт
Зареєструйтеся для отримання акаунта. Це просто!
Зареєструвати акаунтУвійти
Вже зареєстровані? Увійдіть тут.
Увійти зараз