Tarras Опубліковано: 10 грудня 2012 Автор Поділитись Опубліковано: 10 грудня 2012 Тарас, очень хорошая идея с видеоответами. Иногда проще показать, чем написать. Какой прогой писали с монитора? И я хочу попробовать. По поводу скатной составляющей, то там большую часть распора воспринимают повышенные затяжки, а если еще есть податливость стропильных ног на маурлате, то распор на стене очень мал. Програма називається Camtasia Studio 6 . В мене на відеоблозі є запис де я даю відповідь на запитання "що робити коли мауерлат від розпору починає прокручуватись..." це не дослівно.. Я там в програмі збібрав розрахункову схему із затяжками і розпір всерівно суттєвий, звичайно без них буде ще більшим.. 1 Посилання на коментар Поділитися на інших сайтах More sharing options...
Andrei constructor Опубліковано: 10 грудня 2012 Поділитись Опубліковано: 10 грудня 2012 Спасибо, попробую. Я там в програмі збібрав розрахункову схему із затяжками і розпір всерівно суттєвий, звичайно без них буде ще більшим.. Какие условия закрепления стропильной ноги на мауэрлате вы принимали? Посилання на коментар Поділитися на інших сайтах More sharing options...
Tarras Опубліковано: 10 грудня 2012 Автор Поділитись Опубліковано: 10 грудня 2012 Спасибо, попробую. Какие условия закрепления стропильной ноги на мауэрлате вы принимали? шарнір звичайно Посилання на коментар Поділитися на інших сайтах More sharing options...
Andrei constructor Опубліковано: 11 грудня 2012 Поділитись Опубліковано: 11 грудня 2012 шарнір звичайно Подвижный по горизонтальной оси? Посилання на коментар Поділитися на інших сайтах More sharing options...
Tarras Опубліковано: 11 грудня 2012 Автор Поділитись Опубліковано: 11 грудня 2012 Подвижный по горизонтальной оси? Не рухомий... Про що взагалі мова? Для чого переливати з пустого в порожнє? Кроквяна система це не настільки складна конструкція, щоб про неї багато говорити. Посилання на коментар Поділитися на інших сайтах More sharing options...
di0ks Опубліковано: 11 грудня 2012 Поділитись Опубліковано: 11 грудня 2012 доброго дня! подивіться будь ласка ось цю тему: www.stroimdom.com.ua/forum/showthread.php?t=115380 і скажіть що ви думаєте. і чи можливо зробити будинок комфортним для проживання 2-х осіб не добудовуючи нічого??? планується зробити мансарду. Посилання на коментар Поділитися на інших сайтах More sharing options...
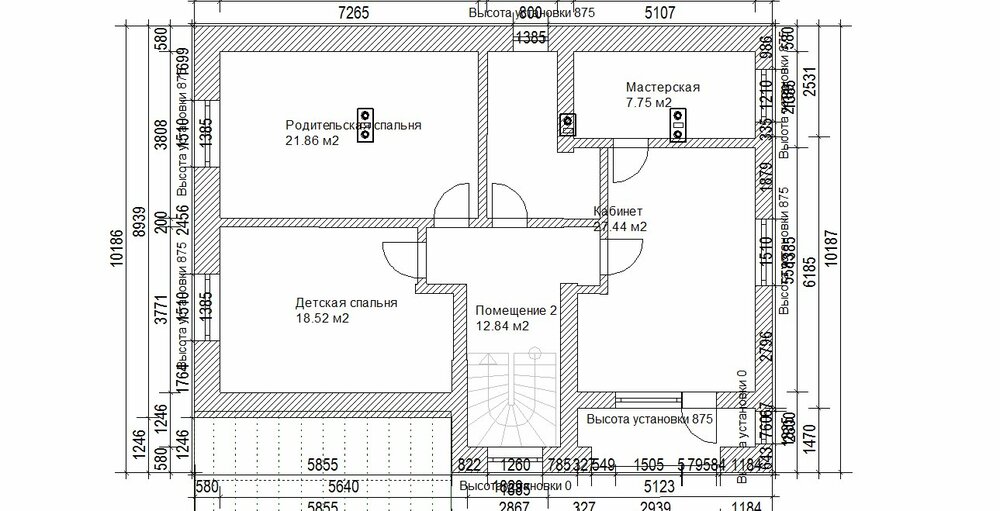
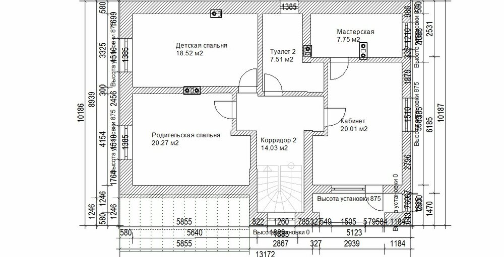
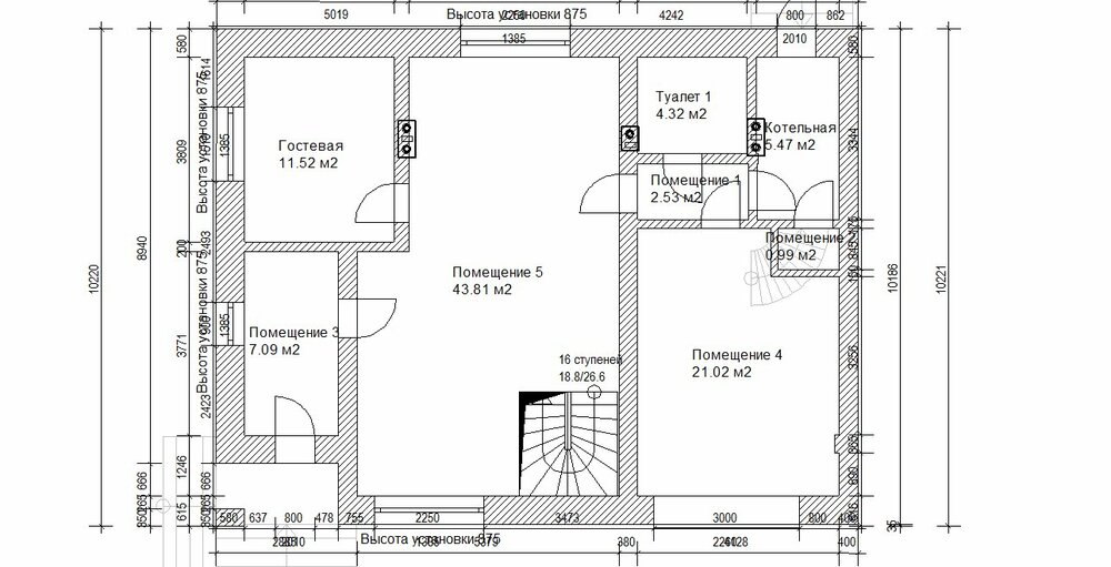
kvsvovik Опубліковано: 11 грудня 2012 Поділитись Опубліковано: 11 грудня 2012 Посоветуйте пожалуйста на ваше мнение план дома. Хочу построить до 200 м2 - главное условие. Собираюсь строить из ракушняка в 1.5 камня с утеплением мин. ватой и керамокирпич на облицовку. Крыша -керамической натуральной черепицей. Есть идея положить ракушняк в камень, а для убирания мостиков холода обложить в пол кирпича керамокирпич на клею и соответственно утиплитель + керамокирпичная облицовка. Понимаю, что коробка выйдет на 15% больше по стоимости, чем только в камень ракушняка. Хочу построить просто качественный дом без излишеств. Дом только на 3 человека. На втором этаже пошивочная мастерская для жены (8 м2). Хотел сделать дом поменьше, но жена против. План переделан с дома, который видели в построенном виде с небольшой перепланировкой ( если надо вышлю первоначальную). Никогда в частных домах не жил- опыта вообще нет, особенно как правильно сделать вентиляцию. Заранее благодарен. Посилання на коментар Поділитися на інших сайтах More sharing options...
kvsvovik Опубліковано: 11 грудня 2012 Поділитись Опубліковано: 11 грудня 2012 Да, извините не написал, что дом фасадом выходит на юг, участок 32 на 31 метр. Спальни делал на запад- любим поспать и не хочется чтоб сонце с утра долбило в окно, хотя многие пишут что будет летом жарко. Но мы вроде до 6 вечера не собираемся спать, тем более что планирую поставить встроенные ролеты и их на день можно закрывать. Дом делал в ArCon 2010+ , но не знаю как сюда скинуть, знаю что можно сделать ссылку через депозитфайл, но никогда этим не занимался- но если очень нужно постараюсь Посилання на коментар Поділитися на інших сайтах More sharing options...
Игорь84 Опубліковано: 12 грудня 2012 Поділитись Опубліковано: 12 грудня 2012 Подскажите пожалуйста по стропильной системе небольшого домика... Красными линиями отмечены внутренние несущие стены. Север-вверху рисунка. Куда расположить скаты крыши и какая её форма-особо не важно, главное сделать надёжную конструкцию... Посилання на коментар Поділитися на інших сайтах More sharing options...
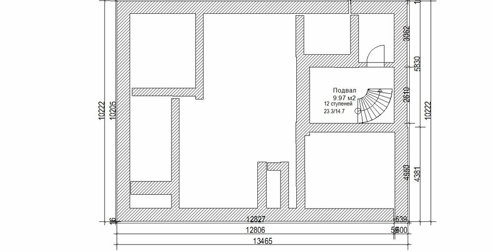
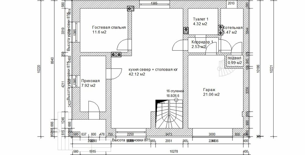
kvsvovik Опубліковано: 12 грудня 2012 Поділитись Опубліковано: 12 грудня 2012 Добрый день! Еще один вопрос по креплению крыши на фасадной стороне. Достаточно ли опор будет, так как часть несущей стены на втором этаже находится не на несущей стене (кухня- гостинная и гараж). По моим подсчетам крыша из натур керамочерепицы будет весить под 8.5 тонн + стропильная системаю Сама кухня будет выходить на северную сторону. Планируется сделать обычную русскую печь на стене между гостевой и корридором (на экстренный случай). Планирую сделать газовый котел с естественной циркуляцией, только не знаю как просчитать это и бойлер. Может будет поставлен еще и двуконтурный котел, но еще не решил. Выкладываю немного переделанный проект, так как на предыдущем труба с русской печи идет посреди спальни на втором этаже + добавил стену возле лесницы на первом для опоры, хотя не хотелось сужать место - Нужна ли она? Заранее вам благодарен за любую помощь. Посилання на коментар Поділитися на інших сайтах More sharing options...
Tarras Опубліковано: 12 грудня 2012 Автор Поділитись Опубліковано: 12 грудня 2012 доброго дня! подивіться будь ласка ось цю тему: www.stroimdom.com.ua/forum/showthread.php?t=115380 і скажіть що ви думаєте. і чи можливо зробити будинок комфортним для проживання 2-х осіб не добудовуючи нічого??? планується зробити мансарду. Все можливо, питання із розміщенням сходів на мансардний поверх, вони можуть бути зовні, що не дуже зручно, можуть бути гвинтовими що займе простір в одній з кімнат і можуть бути в прибудованому приміщенні, що потігне за собою більші грошові затрати. Також потрібно знати які приміщення Вам обовязкові і багато іншого... Зприводу як оформити - не зовсім мій профіль, я конструктор, в мене просто є партнери які займаються погодженням і вводом у експлуатацію.. Хоч у Вас дуже проста будівля, але щоб конкретно Вам відповісти, потрібно посидіти над плануванням і виглядом фасаду.. 1 Посилання на коментар Поділитися на інших сайтах More sharing options...
Tarras Опубліковано: 13 грудня 2012 Автор Поділитись Опубліковано: 13 грудня 2012 Подскажите пожалуйста по стропильной системе небольшого домика... Красными линиями отмечены внутренние несущие стены. Север-вверху рисунка. Куда расположить скаты крыши и какая её форма-особо не важно, главное сделать надёжную конструкцию... Вот приблизний можливий варіант Вашої покрівлі. Крок крокв беріть не більше 1000мм. Варіантів може бути маса, не обовязково задіювати внутрішні несучі стіни.. Якщо робити покрівлю двухскатну із фронтонами, то потрібно обовязково дати діегональні звязки по кроквах, щоб вони не склались як доміно, або зробити несучим коньквий брус, який буде обпиратись на фронтони, а потім вже на нього з двох сторін крокви. Цей варіант що на фото розрахований на діагональні звязки або що у Вас не буде фронтонів а покрівля буде 4-х скатна, два скати замість фронтонів надають жорсткість конструкції. Роль конька в цьому випадку грає обрешітка, вона в коньку дається частіше і таким чином сприймає тільки повздовжні зусилля. 1 Посилання на коментар Поділитися на інших сайтах More sharing options...
Игорь84 Опубліковано: 13 грудня 2012 Поділитись Опубліковано: 13 грудня 2012 (змінено) Вот приблизний можливий варіант Вашої покрівлі. Крок крокв беріть не більше 1000мм. Варіантів може бути маса, не обовязково задіювати внутрішні несучі стіни.. Якщо робити покрівлю двухскатну із фронтонами, то потрібно обовязково дати діегональні звязки по кроквах, щоб вони не склались як доміно, або зробити несучим коньквий брус, який буде обпиратись на фронтони, а потім вже на нього з двох сторін крокви. Цей варіант що на фото розрахований на діагональні звязки або що у Вас не буде фронтонів а покрівля буде 4-х скатна, два скати замість фронтонів надають жорсткість конструкції. Роль конька в цьому випадку грає обрешітка, вона в коньку дається частіше і таким чином сприймає тільки повздовжні зусилля. Спасибо. Диагональные связи между стропилами каким сечением брать и сколько стропил они должны связывать? Если делать наслонные стропила, то коньковый прогон можно опирать на балки перекрытия (предварительно уложить на них лежень) И ещё вопрос: балки перекрытия можно укладывать прямо на мауэрлат, между стропилами? Чердак планирую холодный не эксплуатируемый. Змінено 13 грудня 2012 користувачем Игорь84 Посилання на коментар Поділитися на інших сайтах More sharing options...
Tarras Опубліковано: 13 грудня 2012 Автор Поділитись Опубліковано: 13 грудня 2012 Спасибо. Диагональные связи между стропилами каким сечением брать и сколько стропил они должны связывать? Если делать наслонные стропила, то коньковый прогон можно опирать на балки перекрытия (предварительно уложить на них лежень) И ещё вопрос: балки перекрытия можно укладывать прямо на мауэрлат, между стропилами? Чердак планирую холодный не эксплуатируемый. Балки можна класти і на мауерла, але потрібно все правильно ітеплити. Балки перекриття потрібно прорахувати на навантаження, яке буде передаватись від прогину самої кроквяноїсистеми через стійку. Діагоналі рекомендую поставити хочаб на 4-х кроквах з двох сторін будівлі по на двох скатах покрівлі. Добавлено через 4 минуты Посоветуйте пожалуйста на ваше мнение план дома. Хочу построить до 200 м2 - главное условие. Собираюсь строить из ракушняка в 1.5 камня с утеплением мин. ватой и керамокирпич на облицовку. Крыша -керамической натуральной черепицей. Есть идея положить ракушняк в камень, а для убирания мостиков холода обложить в пол кирпича керамокирпич на клею и соответственно утиплитель + керамокирпичная облицовка. Понимаю, что коробка выйдет на 15% больше по стоимости, чем только в камень ракушняка. Хочу построить просто качественный дом без излишеств. Дом только на 3 человека. На втором этаже пошивочная мастерская для жены (8 м2). Хотел сделать дом поменьше, но жена против. План переделан с дома, который видели в построенном виде с небольшой перепланировкой ( если надо вышлю первоначальную). Никогда в частных домах не жил- опыта вообще нет, особенно как правильно сделать вентиляцию. Заранее благодарен. Добрий вечір. У Вашій ситуації потрібно виконувати проект, хочаб стадію "ЕП" з усіма Вашими побажаннями і нюансами. Мой відео-коментар не допоможе Вам. Є багато нюансів по конструкції стін, перекриття, сходів і покрівлі.. Також по зручності експлуатації.. 1 Посилання на коментар Поділитися на інших сайтах More sharing options...
Tarras Опубліковано: 18 грудня 2012 Автор Поділитись Опубліковано: 18 грудня 2012 Думки в голос... Вже не першу зиму після 2006-го року вага снігового покриву перевищує передбачені значення в ДБН В.1.2-2:2006 "Навантаження і впливи" що являється причиною руйнації конструкцій покрівель і будівель загалом. В цьому році (2012) зима по календарі тільки почалась, а вага снігового покриву місцями становить до 400кг/м.кв. Причиною являється не просто велика кількість снігу, який неочікувано випадає, а також перепади темпиратури, що призводить до тимчасового відтаювання і при зменшенні темпиратури до замерзання зволоженої снігової маси. Таким чином на покрівлі утворюються шари замерзлого вологого сніту а місцями і льоду, після того падає новий сніг і все повторюється... На мою думку цей момент в ДБН потрібно переглянути, а конструкторам враховувати при розрахунку даний фактор! ("ИМХО") 1 Посилання на коментар Поділитися на інших сайтах More sharing options...
x_y_z_ Опубліковано: 20 грудня 2012 Поділитись Опубліковано: 20 грудня 2012 Доброго Вам ранку! Якщо маєте трішки часу й натхенння, чи могли б Ви глянути сюди www.stroimdom.com.ua/forum/showthread.php?t=97651&page=11 і дати свій конструкторський коментар? ) Наперед вдячні! Посилання на коментар Поділитися на інших сайтах More sharing options...
mashuta2000 Опубліковано: 27 грудня 2012 Поділитись Опубліковано: 27 грудня 2012 Добрый день. Суть вопроса: финансов на строительство дома пока нет; я решила заняться проектом. Немного знакома с автокадом + порылась в нормах, но моих знаний естественно не хватает для проекта Как Вы понимаете, на специалиста, у нас денег тоже нет. Не могли бы Вы меня консультировать по вопросам проектирования нашего "Дома мечты"? Отблагодарить могу пирожками, блинами, тортиками Посилання на коментар Поділитися на інших сайтах More sharing options...
Tarras Опубліковано: 2 січня 2013 Автор Поділитись Опубліковано: 2 січня 2013 Всім доброго дня!!! І З Новим Роком!!! Вот і закінчився мій відпочинок і пора знову взятись за роботу) Тай і чесно-кажучи за stroimdom-ом скучив Отблагодарить могу пирожками, блинами, тортиками ))))розсмішили Ви мене)) пс звичайно, звертайтесь)) Посилання на коментар Поділитися на інших сайтах More sharing options...
Leon Опубліковано: 3 січня 2013 Поділитись Опубліковано: 3 січня 2013 Отблагодарить могу пирожками, блинами, тортиками звичайно, звертайтесь)) А, що, так можна було??? :D:D Посилання на коментар Поділитися на інших сайтах More sharing options...
Игорь84 Опубліковано: 3 січня 2013 Поділитись Опубліковано: 3 січня 2013 Подскажите, если не сложно: наружные стены планирую из газоблока, поскольку есть бесплатный б/у красный кирпич, можно внутренние несущие стены сделать из него толщиной в один кирпич (перекрытие по деревянным балкам)? Посилання на коментар Поділитися на інших сайтах More sharing options...
MLNK Опубліковано: 3 січня 2013 Поділитись Опубліковано: 3 січня 2013 А, що, так можна було??? А Вы умеете печь пирожки ? :D Посилання на коментар Поділитися на інших сайтах More sharing options...
Tarras Опубліковано: 3 січня 2013 Автор Поділитись Опубліковано: 3 січня 2013 Подскажите, если не сложно: наружные стены планирую из газоблока, поскольку есть бесплатный б/у красный кирпич, можно внутренние несущие стены сделать из него толщиной в один кирпич (перекрытие по деревянным балкам)? Можна, тільки перевязку зробіть кладочною сіткою через один ряд блоків, можна і в кожен ряд перевязати. Для перегородків 250мм забагато, достатньо в пів цегли 120мм. А якщо Ви маєте на увазі несучу стіну 250мм, то потрібно зробити розрахунок на стійкість. перегородки 120мм достатньо буде перевязати П-подібними стержнями діаметром 8мм в кожному ряді газоблоку. Посилання на коментар Поділитися на інших сайтах More sharing options...
Drosselbeere Опубліковано: 3 січня 2013 Поділитись Опубліковано: 3 січня 2013 можно внутренние несущие стены сделать из него толщиной в один кирпич а какие пролеты? и какие будут простенки? Посилання на коментар Поділитися на інших сайтах More sharing options...
Tarras Опубліковано: 3 січня 2013 Автор Поділитись Опубліковано: 3 січня 2013 А, що, так можна було??? :D:D Якщо пиріжки смачні, то можна :D:D: Добавлено через 2 минуты а какие пролеты? и какие будут простенки? Абсолютно правильне запитання! Для більш детальної відповіді потрібен хочаб план поверхів 1 Посилання на коментар Поділитися на інших сайтах More sharing options...
Игорь84 Опубліковано: 4 січня 2013 Поділитись Опубліковано: 4 січня 2013 www.stroimdom.com.ua/forum/attachment.php?attachmentid=234156&d=1354824803 Вот план дома Посилання на коментар Поділитися на інших сайтах More sharing options...
Рекомендовані повідомлення
Створіть акаунт або увійдіть у нього для коментування
Ви маєте бути користувачем, щоб залишити коментар
Створити акаунт
Зареєструйтеся для отримання акаунта. Це просто!
Зареєструвати акаунтУвійти
Вже зареєстровані? Увійдіть тут.
Увійти зараз