MaryAr Опубліковано: 19 грудня 2014 Поділитись Опубліковано: 19 грудня 2014 також є питання по оформленню фасаду, черепицю купив цементно-пісчану, колір темно-коричневий глянець. ЦІкавить колір рами вікон, ламінація +10К на будинок. Відчуваю курс гривні до доллара не залишить вибору - крім білого профіля. Если оставляете стилистику фасада в соответствии с решением проекта Zx12, то можете смело подбирать цвет, аналогичный предложенному в проекте, - смотреться будет достойно. Для отделки цоколя можно найти клинкерную плитку, похожую по оттенку на цвет крыши. В проекте Zx12 цвет рам окон повторяется для материала дверей, гаражных ворот, фасадного декора, поэтому (ВНИМАНИЕ!) обязательно нужно "запомнить" номер цвета для рам по RAL, чтобы не было проблем с поисками нужного цвета для остальных деталей дома. По поводу разницы в 8-10К гривен между цветными и обычными белыми рамами: по сравнению со стоимостью внутренней и внешней отделки разница очень незначительная. НО, если сейчас 8-10К это проблема, и Вам срочно нужно «закрыть» дом, то белые рамы тоже могут быть (нужно будет немного подкорректировать фасадное решение). Стандартный цвет для системы наружных водостоков – коричневый и белый (для цветных рам выбираете коричневый, для белых – можно и коричневый, и белый). Если захотите получить чертёж решения фасада с белыми рамами, обращайтесь в мой сервис –что-нибудь придумаем . Во вложении - исходный проект Zx12 (цветовое решение вопросов не вызывает, но я бы убрала пилястры в углах здания, имхо - лишние). 1 Посилання на коментар Поділитися на інших сайтах More sharing options...
красилсончик Опубліковано: 20 грудня 2014 Поділитись Опубліковано: 20 грудня 2014 Красилсончик, если хотите получить внятный совет, то вместо малоинформативной схемы приложите, пожалуйста, план из техпаспорта квартиры (имеют значение размеры "мокрых зон", привязка входного проёма и т.д.). очень хочу в понедельник сброшу все параметры. тех. паспорта ещё нет, но я померяю все размеры по периметру - их не так много в нашем прямоугольнике - перегородки санузла нет, есть только ввод воды и труба канализации . Посилання на коментар Поділитися на інших сайтах More sharing options...
RomBud Опубліковано: 21 грудня 2014 Поділитись Опубліковано: 21 грудня 2014 (змінено) Квартира - 50м2, а місця для двоспального ліжка не знайшлося Велика гардеробна - це мрія кожного. Але коли немає ліжка, гардеробна вже не так радує... А спробуйте ліжко в гардеробній розмістити (який у Вас зріст?) В санвузлі теж не все гаразд: здається, місця для умивальника недостатньо. Ви впевнені, що Вам потрібна душова кабіна, а не ванна? А скільки людей буде жити у цій квартирі? Плани міняються.... в квартирі буде проживати двоє дорослих і дитина, потрібно все ж ставити двоспальне ліжко і диван, але щось ніяк я не можу це все перепланувати....буду вдячний за поради. Самі великі проблеми - де розмістити шафи для одягу, диван, стіл на кухні ??? Змінено 21 грудня 2014 користувачем RomBud Посилання на коментар Поділитися на інших сайтах More sharing options...
We$t Опубліковано: 22 грудня 2014 Поділитись Опубліковано: 22 грудня 2014 Марія доброго дня, знайшов все таки вікна по хорошій ціні з зовнішньою ламінацією "горіх" Veka Softline 4i-10AR-4-10AR-4i. До обіду маю дати передоплату. підкажіть будь-ласка чи замовляти додаткові вікна в дві дитячих на 2 поверсі з південної сторони, з склом Solar 4S-8AR-4-12AR-4ESolar. дякую, Посилання на коментар Поділитися на інших сайтах More sharing options...
MaryAr Опубліковано: 22 грудня 2014 Поділитись Опубліковано: 22 грудня 2014 підкажіть будь-ласка чи замовляти додаткові вікна в дві дитячих на 2 поверсі з південної сторони Посмотрела на Ваш генплан: ориентация существующих окон детских – юго-запад и северо-восток; дополнительных окон - юго-восток. Наверняка, Вы изначально не запроектировали окна на юге-востоке по какой-то, известной только Вам причине. Например: - Из этих окон открывается «ужасный вид»; - Рядом строится сосед, и любоваться на стену его дома Вам не хочеться; - Считаете, что 2 окна в одной комнате – непозволительная роскошь, и можно сэкономить. - ...какие-то неизвестные причины? На самом деле, более комфортным является юго-восточное, а не юго-западное солнце. Имхо, солнцезащиту нужно проектировать для окон с ориентацией на юг и юго-запад. В любом случае, есть уже продуманное и построенное (!) решение. Если сейчас, когда пасмурно и холодно, южное солнце Вас радует, и Вы «передумали», то Вам нужно: - определиться с месторасположением и размерами новых окон, т.к. наличие дополнительных окон накладывает на планировку помещений некоторые ограничения (нужно переделать план расположения мебели 2го этажа); - подумать над возможностью «исправить» фасад, заложив другие окна (для Детской 1 - не одно большое на юго-западе, а два половинных – одно на юго-западе, другое на юго-востоке; для Детской 2 – одно большое на северо-востоке, одно половинное на юго-востоке), ( нужно переделывать фасадное решение, дополнительные расходы). - разобрать существующую кладку и заложить перемычки (дополнительные расходы); Взвесьте все «за» и «против» и примите правильное решение (я не могу принять его за Вас, т.к. не знаю всех исходных условий). P.S. Если не секрет, что там у Вас за перемычки такие "хитрые"? 1 Посилання на коментар Поділитися на інших сайтах More sharing options...
We$t Опубліковано: 22 грудня 2014 Поділитись Опубліковано: 22 грудня 2014 Думав буде спека влітку. Тепер є можливість поставити вікна з склом солар. Зробити проєм під вікно не проблема. Можливо два вікна 1500*900 в такому вигляді Посилання на коментар Поділитися на інших сайтах More sharing options...
MaryAr Опубліковано: 22 грудня 2014 Поділитись Опубліковано: 22 грудня 2014 Плани міняються.... в квартирі буде проживати двоє дорослих і дитина На перепланировку в квартирах с газовым оборудованием (особенно, котлом) действуют строгие ограничения. Поэтому вариантов не так много. Чем смогу - помогу, но позже. Посилання на коментар Поділитися на інших сайтах More sharing options...
We$t Опубліковано: 22 грудня 2014 Поділитись Опубліковано: 22 грудня 2014 P.S. Если не секрет, что там у Вас за перемычки такие "хитрые"? вирізали по довжині перемички L- образні блоки, клеїли їх по місцю на опалубці. вставляли каркас, фасадну вату 50мм і заливали бетоном М20 Посилання на коментар Поділитися на інших сайтах More sharing options...
Serge4fun Опубліковано: 23 грудня 2014 Поділитись Опубліковано: 23 грудня 2014 Добрый день, прошу совета профессионалов для зонирования помещения в цокольном (подвальном) помещении. Изначально планируется целевое назначение - обучающий центр, салон красоты. Т.е. помещение будет использоваться под услуги салона красоты (депиляция, маникюр, педикюр, стрижки, массаж). Так же помещение будет использоваться под обучение мастеров той же депиляции, маникюру и пр. Как создать систему кабинетов, зон ожидания и обучения чтоб было все гармонично и удобно как персоналу так и посетителям. нужны 2 кабинета под депиляцию к.2 и к.3 кабинет косметолога кабинет под парикмахерскую к.1 кабинет под массаж или спа-процедуры к.6 кабинет маникюр/педикюр) к.4 зона для ожидания клиентов (диван, ТВ) ресепшн помещения для персонала (чай-кофе, переодеться) склад(для хранения баночек косметики и пр.) Зона обучения (теоретическая часть, практика - в кабинете) Заранее огромное спасибо Сергей Посилання на коментар Поділитися на інших сайтах More sharing options...
MaryAr Опубліковано: 23 грудня 2014 Поділитись Опубліковано: 23 грудня 2014 прошу совета профессионалов для зонирования помещения в цокольном (подвальном) помещении. Вам нужен не бесплатный совет, а полноценный проект, учитывающий факторы, о которых Вы, наверное, и не подозреваете. Для проектирования архитектору кроме Вашего «технологического задания» понадобиться следующая информация: 1. Для выполнения норм пожарной безопасности по обеспечению необходимым количеством эвакуационных выходов из подвального (цокольного) этажа: - Вход в салон ведёт из какого помещения (из вестибюля, лестничной клетки, коридора…)? Эта информация нужна для определения возможности считать вход в Ваш салон одновременно эвакуационным выходом. - Отметка пола этажа относительно поверхности земли, а также отметка пола приямка «V» (+ возможность использовать приямок, как эвакуационный выход). Эта информация нужна для расчёта лестницы второго эвакуационного выхода. 2. Для выполнения общих норм для общественных зданий: - Высота этажа (в подвальных и цокольных этажах допускается не менее 2,7м); - На вышерасположенном этаже какие помещения – жилые или общественные? (исключить размещение санузлов под жилыми помещениями). 3. Для решения инженерных вопросов: - Местоположение стояков инженерных коммуникаций; - Местоположение точки возможного подключения к водоснабжению, канализации и вентиляции; - информация о возможных вводах в здание наружных инженерных сетей. 4. И т.д., и т.п… Посилання на коментар Поділитися на інших сайтах More sharing options...
Sumchanka Опубліковано: 24 грудня 2014 Поділитись Опубліковано: 24 грудня 2014 Добрый день! Нужен совет: какой программой можно воспользоваться для раскладки плитки, а еще в какой можно "поиграться" с размещением предметов ванной комнаты, а еще если получить 3D визуализацию - вообще было бы шикарно... Можно это освоить самостоятельно? если посоветуйте в чем? Спасибо! Посилання на коментар Поділитися на інших сайтах More sharing options...
Vasper Опубліковано: 24 грудня 2014 Поділитись Опубліковано: 24 грудня 2014 Добрый день! Нужен совет: какой программой можно воспользоваться для раскладки плитки, а еще в какой можно "поиграться" с размещением предметов ванной комнаты, а еще если получить 3D визуализацию - вообще было бы шикарно... Можно это освоить самостоятельно? если посоветуйте в чем? Спасибо! Попробуйте Архикад. Скачать можно на рутрекере. Но "с наскока" осилить программу вряд ли получится. На Ютубе много видеоуроков по Архикаду. Также можете попробовать Google SketchUp она бесплатная 1 Посилання на коментар Поділитися на інших сайтах More sharing options...
RomBud Опубліковано: 24 грудня 2014 Поділитись Опубліковано: 24 грудня 2014 Плани міняються.... в квартирі буде проживати двоє дорослих і дитина На перепланировку в квартирах с газовым оборудованием (особенно, котлом) действуют строгие ограничения. Поэтому вариантов не так много. Чем смогу - помогу, но позже. Дякую MaryAr Посилання на коментар Поділитися на інших сайтах More sharing options...
Papetti Опубліковано: 26 грудня 2014 Поділитись Опубліковано: 26 грудня 2014 Вот не зря просила... Ознакомьтесь с замечаниями: Только дверь в гардеробную открывать в другую сторону. Для вентиляции гардеробной достаточно вентрешётки в двери и вверху ограждающей стены. Сорі, я не глянув і скинув Вам попередній варіант, там багато чого нашвидкоруч накидано було. -після гардеробної залишаться 3,6м. 1,6 - ліжко і по 1 метру зі сторін - вроді хватає місця. І хочу таки залишити вхід збоку (як в моєму варіанті), а в перегородці гардеробної відразу організувати книжку стінку до стелі. -в санвузлі розташування інше, вроді все влізло і місця достатньо) -пралку переносити не буду, так як і з нею ванна доволі простора. А от комора не помішає -перегородку також залишу як є. Не хочеться збільшувати і без того немалий коридор та ще й за рахунок вітальні. Посилання на коментар Поділитися на інших сайтах More sharing options...
MaryAr Опубліковано: 27 грудня 2014 Поділитись Опубліковано: 27 грудня 2014 Сорі, я не глянув і скинув Вам попередній варіант, там багато чого нашвидкоруч накидано було. Да-а, с кем не бывает... Вы, главное, прорабу своему нужный вариант отдайте, а то сюрприз получится -в санвузлі розташування інше, вроді все влізло і місця достатньо) Слово "вроде" настораживает, особенно без картинки... -пралку переносити не буду, так як і з нею ванна доволі простора. А от комора не помішає Не спорю. Но у Вас кладовка - узкая и длинная, без "заплечиков". Стиралка, химия, корзина для белья, гладильная доска и пылесос станут нормально, а вот для консервации, инструментов и одежды - не очень удобно. -перегородку також залишу як є. Не хочеться збільшувати і без того немалий коридор та ще й за рахунок вітальні. Не хотите, как хотите... но мне кажется, что в большом коридоре разместятся большие шкафы, а кривая перегородка Вашу гостиную не украсит и сильно усложнит подбор мебели. Посилання на коментар Поділитися на інших сайтах More sharing options...
advokat12 Опубліковано: 27 грудня 2014 Поділитись Опубліковано: 27 грудня 2014 Добрый день! Нужен совет: какой программой можно воспользоваться для раскладки плитки, а еще в какой можно "поиграться" с размещением предметов ванной комнаты, а еще если получить 3D визуализацию - вообще было бы шикарно... Можно это освоить самостоятельно? если посоветуйте в чем? Спасибо! Да нормальым плиточником "воспользуйтесь". Он и раскладку плитки Вам покажет, и размещение предметов ванной комнаты согласно разводки труб... Посилання на коментар Поділитися на інших сайтах More sharing options...
Papetti Опубліковано: 27 грудня 2014 Поділитись Опубліковано: 27 грудня 2014 Да-а, с кем не бывает... Вы, главное, прорабу своему нужный вариант отдайте, а то сюрприз получится та який там прораб сам і прораб, і дизайнер, і на побігушках на пів-ставки Слово "вроде" настораживает, особенно без картинки... c2n.me/39zwgPU квадрати - пралка і сушилка (в перспективі) Сильно не критикуйте, бо плитка вже покладена :D Не хотите, как хотите... но мне кажется, что в большом коридоре разместятся большие шкафы, а кривая перегородка Вашу гостиную не украсит и сильно усложнит подбор мебели. Планую не сильно заставлятись шафами. Гардеробна, книжні полиці з іншої сторони перегородки гардеробної, шафа в прихожій, шось в вітальній під ТБ - думаю цього має вистачити. Про трудощі підбору через перегородку я згідний. Але чимось треба жертвувати Подяка за коментарі :roll: Посилання на коментар Поділитися на інших сайтах More sharing options...
Sumchanka Опубліковано: 28 грудня 2014 Поділитись Опубліковано: 28 грудня 2014 Да нормальым плиточником "воспользуйтесь". Он и раскладку плитки Вам покажет, и размещение предметов ванной комнаты согласно разводки труб... "Нормальным "плиточникам, простите,фиолетово где фриз,а где с цветочком - в доме буду я жить с семьей, а у них работа -только положить - у нас я не встречала творческих плиточников... Сделать качественно по готовому проекту -это да, но не более... Поэтому все "пропускаю "через себя... Посилання на коментар Поділитися на інших сайтах More sharing options...
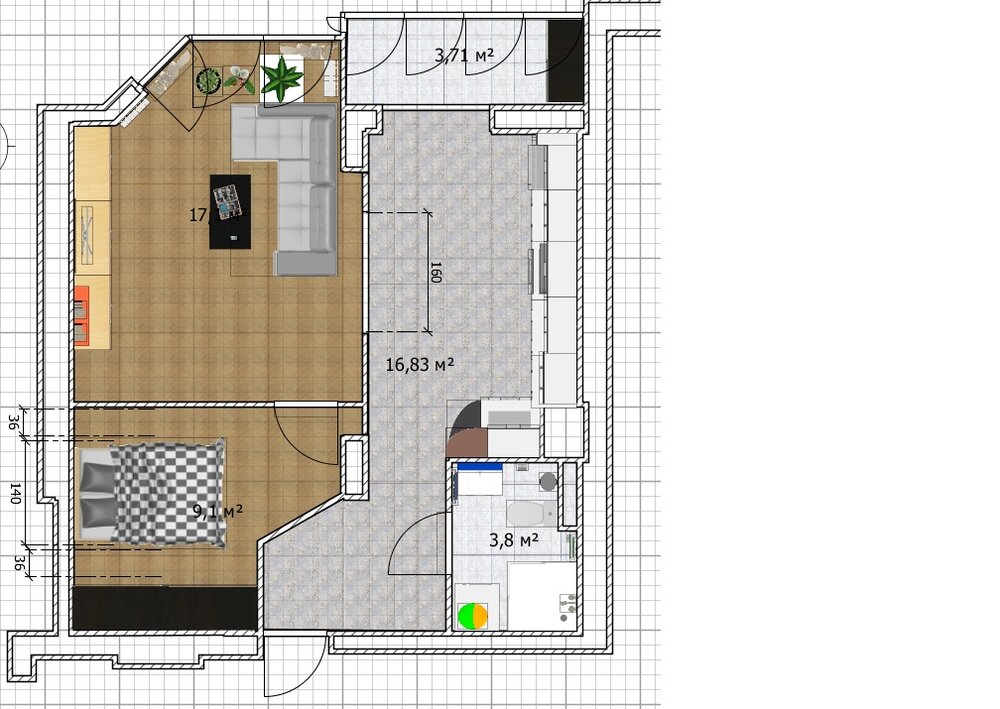
talanova Опубліковано: 5 січня 2015 Поділитись Опубліковано: 5 січня 2015 Добрый день. Очень надеюсь, что изначальная идея поста еще жива. Помогите, пожалуйста, советом, как обставить кухню в такой квартире (картинка прилагается). В квартире будет жить пара без детей. Хотелось на кухне как-то ввернуть компактную барную стойку (не хочется полноценный стол) и поставить маааленький диванчик/кресло, который потенциально можно разобрать в гостевое спальное место. Главная сложность - как вместить посудомойку, духовку, варочную поверхность... чайник, тостер, мультиварку.... на совсем короткую рабочую поверхность. Перепланировку делать не будем, т.к. нужно сделать бюджетный ремонт и въехать как можно скорее. Спасибо за идеи/советы Посилання на коментар Поділитися на інших сайтах More sharing options...
MaryAr Опубліковано: 5 січня 2015 Поділитись Опубліковано: 5 січня 2015 Плани міняються.... в квартирі буде проживати двоє дорослих і дитина, потрібно все ж ставити двоспальне ліжко і диван, але щось ніяк я не можу це все перепланувати....буду вдячний за поради. Самі великі проблеми - де розмістити шафи для одягу, диван, стіл на кухні ??? Совет для RomBud: Если в однокомнатной квартире будут проживать двое взрослых и ребёнок, то помещения нужно не объединять, а разделять. И просто необходимо увеличить зону хранения. Во вложенном варианте: - предложение по зонированию (спальная и гостевая зона); - отдельная кухня-столовая с большим столом; - устройство хозкладовой (стиралка, бельё, пылесос, гладильная доска..); - достаточное количество больших шкафов для одежды; - санузел с полноценной ванной (актуально для купания ребёнка). В своих дальнейших попытках усовершенствовать квартиру, имейте в виду, что действующие нормы обязывают при устройстве входа из газифицированной кухни в комнату, устраивать второй выход из этой комнаты в негазифицированное помещение (например, коридор). 1 Посилання на коментар Поділитися на інших сайтах More sharing options...
MaryAr Опубліковано: 6 січня 2015 Поділитись Опубліковано: 6 січня 2015 Совет для talanova: Главная сложность - как вместить посудомойку, духовку, варочную поверхность... чайник, тостер, мультиварку.... на совсем короткую рабочую поверхность. В Вашем случае главная сложность – это не организация рабочей поверхности (длина достаточна - 1,10+1,40+2,77+1,24!!!), а желание «ввернуть» барную стойку и раскладной диванчик. Барная стойка – узкая и длинная поверхность, чаще всего стационарно закреплённая (из-за геометрической неустойчивости). Поэтому соседство с раскладным диваном на малой площади – дело почти невыполнимое (куда раскладывать, если барную стойку не сдвинешь? ) Вижу 2 варианта решения: 1. Устраиваем барную поверхность на подоконнике (повышаем уровень подоконника до 95-120см; глубина барной поверхности = толщина стены + 50см). В этом случае диванчик разместится без проблем вдоль стены 2,5 м. Сложность варианта – нужно менять оконный блок. Демонтаж оконного блока и объединение с лоджией не предлагаю, т.к. действующими нормами это запрещено. 2. Отказаться от барной стойки в пользу стола. В этом случае диван используется, как лавка около стола. Можно «впихнуть» и угловой вариант (в инете полно примеров). При необходимости стол складывается, а диван раскладывается. 1 Посилання на коментар Поділитися на інших сайтах More sharing options...
talanova Опубліковано: 6 січня 2015 Поділитись Опубліковано: 6 січня 2015 Совет для talanova: Вижу 2 варианта решения: Большое спасибо! Будем думать оба варианта. Сейчас далеко от объекта, будем выяснять, что там с окном. или отказываться от этого гостевого спального места. Посилання на коментар Поділитися на інших сайтах More sharing options...
Komar1 Опубліковано: 10 січня 2015 Поділитись Опубліковано: 10 січня 2015 (змінено) Добрый день. Имеется участок с домиком (50 м2) - банька... в перспективе постройка дома на этом участке... сейчас в этой "баньке", пока (как минимум в весенне-летний период, 2-3и сезона) будем жить (семья 3 человека)... схемка прилагается и внешний вид домика. В домике следующие помещения: 1. кухня-прихожая (14,7 м2); 2. детская спаленка (7,4 м2); 3. бойлерная (тех.помещение) (2,6 м2); 4. комната отдыха (на ближайший период, пока не построимся будет служить спальней для родителей) - 13,9 м2); 5. сан.узел -6,5 м2 6. собственно сама парилка на дровах - 4,9 м2 Прошу подсказку дизайнера, по интерьерному решению и мебели для кухни-прихожей (1). Как грамотно расположить мебель кухонную, зонировать это помещение, какие цвета/материалы подобрать... (мне нравиться стиль "кантри", и кажется, сюда он подойдет... П.с. по всем полам заложены теплые полы. Александр. Змінено 10 січня 2015 користувачем Komar1 не дописал... Посилання на коментар Поділитися на інших сайтах More sharing options...
atemd Опубліковано: 12 січня 2015 Поділитись Опубліковано: 12 січня 2015 Планирую кухню в персидском стиле... Но, не бывает у нас плитки на фартух и пол с иранскими узорами. А в Иран слетать не получилось. Как вариант заменителя нашел в Агромате "Альгамбру" от Испанского Майнзу: s57.radikal.ru/i155/1501/cc/9f6867cae3db.jpg с иссиня-черно-белым орнаментом, с которым согласен бы мириться, но вот что положить в таком случае на пол вдоль рабочей зоны кухни, может кто подскажет? Ну и еще неск вопросов к профдизайнерам: 2. Рисунок доски паркетной ВСЕГДА размещаем по направлению к окну или можно, как уверяла моя дизайнер и поперек? 3. Есть ли смысл во всей однушке (кухня, гостинная, коридор) делать одинаковый пол из светлой "белый дуб" паркетной доски или все же в гостинной, которая будет в тонах "кофе с молоком" взять потемнее? 4. Всегда ли есть смысл в квадратной формы санузле в углах (левом и правом дальних от входа), где не помещается целая плитка делать ее фрагменты в том и другом симметричными? А то моя дизайнер сделала половинку в правом и потом еще треть в левом дальнем, что как по мне - не очень. Посилання на коментар Поділитися на інших сайтах More sharing options...
MaryAr Опубліковано: 12 січня 2015 Поділитись Опубліковано: 12 січня 2015 1. Нашел в Агромате "Альгамбру" с иссиня-черно-белым орнаментом, с которым согласен бы мириться, но вот что положить в таком случае на пол вдоль рабочей зоны кухни, может кто подскажет? Вариант: бесфактурная однотонная керамическая плитка (чёрная или синяя точно в цвет орнамента). 3.Есть ли смысл во всей однушке (кухня, гостинная, коридор) делать одинаковый пол из светлой "белый дуб" паркетной доски или все же в гостинной, которая будет в тонах "кофе с молоком" взять потемнее? Смысл есть. Можно сказать, обязательное требование. Если все помещения в маленькой квартире решены в одной гамме и пол везде одинаковый, получается эффект "перетекающего пространства", и квартира кажется больше (имхо, конечно). 2. Рисунок доски паркетной ВСЕГДА размещаем по направлению к окну или можно, как уверяла моя дизайнер и поперек? Только Ваш дизайнер "владеет общей картиной" и вправе принимать нестандартные решения. В этом и состоит отличие дизайнера от продавца или укладчика паркетной доски. Если речь идёт о стандартной прямоугольной комнате с окном в торце, то паркетная доска (ламинат) укладывается ВСЕГДА перпендикулярно окну. НО! если помещение сложной нестандартной формы, если имеются два окна в смежных стенах и т.д., то возможны варианты... 4. Всегда ли есть смысл в квадратной формы санузле в углах (левом и правом дальних от входа), где не помещается целая плитка делать ее фрагменты в том и другом симметричными? А то моя дизайнер сделала половинку в правом и потом еще треть в левом дальнем, что как по мне - не очень. Существуют определённые правила раскладки плитки. Например, если длина стены не кратна размеру плитки, то плитка раскладывается от центральной оси стены симметрично таким образом, чтобы по бокам оказались равные фрагменты не менее 2/3 длины плитки. Но! Это правило касается только отдельно взятой стены. Опять же, Ваш дизайнер владеет общей картиной и учитывает факторы, о которых Вы можете и не догадываться... Например, края плитки привязаны к оборудованию (край плитки совпадает с краем ванной).., или маленький некрасивый кусочек плитки в углу будет закрыт пеналом от пола до потолка..., или нужно выдержать центральную ось помещения так, чтобы плиточный шов совпадал с этой осью..., и т.д. Доверяйте своему дизайнеру, и будет Вам счастье Посилання на коментар Поділитися на інших сайтах More sharing options...
Рекомендовані повідомлення
Створіть акаунт або увійдіть у нього для коментування
Ви маєте бути користувачем, щоб залишити коментар
Створити акаунт
Зареєструйтеся для отримання акаунта. Це просто!
Зареєструвати акаунтУвійти
Вже зареєстровані? Увійдіть тут.
Увійти зараз