karya Опубліковано: 5 серпня 2015 Поділитись Опубліковано: 5 серпня 2015 Добрый день форумчане! Скажите пожалуйста, присутствуют ли на форуме дизайнеры которые могут помочь с дизайном квартиры? Если предварительные идеи понравятся, готова с Вами поработать и заказать дизайн за плату. Здравствуйте. Посмотрите мой сайт (ссылка снизу), если мои работы вам понравятся, обращайтесь Посилання на коментар Поділитися на інших сайтах More sharing options...
TetianaF Опубліковано: 5 серпня 2015 Поділитись Опубліковано: 5 серпня 2015 Спасибо за ответ. Вижу, что Вы находитесь в Днепропетровске - мне это не совсем подходит. Я живу в Киеве. Все равно спасибо. Посилання на коментар Поділитися на інших сайтах More sharing options...
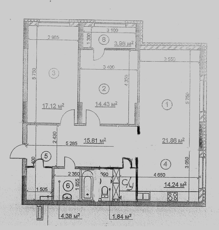
ALKO Опубліковано: 7 серпня 2015 Поділитись Опубліковано: 7 серпня 2015 До сдачи дома оставались считанные месяцы:D Но вопрос перепланировки уже можно поднимать. План новостроя (как он нам передается) прилагаю. Суть вопроса: можно ли не затрагивая вентиляционную шахту, "откусив" кусочек (примерно 1м по ширине) у кухни сделать "туалетное помещение"? При этом ненамного увеличивается пространство для ванной комнаты, так как сразу при входе справа хотим сделать гардеробную (чтобы можно было в нее побольше "впихнуть":)) Кухня-студио получается конечно как небольшое "футбольное поле", но что сделать если вся квартира квадратно-прямоугольная? Предполагается отделить ее от коридора раздвижными или просто открывающимися дверьми, наконец просто облагороженным проемом без дверей. Можно ли так делать перепланировку? А то где-то вычитали, что нельзя делать с/узел над кухней... Интересует Ваше мнение - архитекторы, дизайнеры и просто хорошие форумчане Посилання на коментар Поділитися на інших сайтах More sharing options...
Evroklidon Опубліковано: 7 серпня 2015 Поділитись Опубліковано: 7 серпня 2015 Доброго времени суток. Есть вопрос относительно дизайна, но наружного. А именно сочетания фасада с декоративным камнем, или другим материалом. Пока планирую места, где выглядывает газоблок обложить песчаником, как на нижнем фото. Но может есть варианты, которые будут лучше гармонировать? Ещё думал про тёмно коричневый планкен, или клинкерную плитку Посилання на коментар Поділитися на інших сайтах More sharing options...
Лилия51 Опубліковано: 7 серпня 2015 Поділитись Опубліковано: 7 серпня 2015 Доброго времени суток. Нужна помощь в выборе цвета и материала фартука и вентиляционной шахты в кухне. Фотку прилагаю. Заранее спасибо. Посилання на коментар Поділитися на інших сайтах More sharing options...
karya Опубліковано: 12 серпня 2015 Поділитись Опубліковано: 12 серпня 2015 Доброго времени суток. Нужна помощь в выборе цвета и материала фартука и вентиляционной шахты в кухне. Фотку прилагаю. Заранее спасибо. Фартук- попробуйте скинали с каким-то интересным рисунком в таких же тонах,что и кухня, либо просто крашеное стекло. Еще можно мозаику применить. Короб - цвет дерева(обшить деревянными панелями), графитовый цвет - можно сделать из него стену для записей и рисунков, как на школьной доске пишут, тоже интересно будет. Посилання на коментар Поділитися на інших сайтах More sharing options...
Тюня Опубліковано: 12 серпня 2015 Поділитись Опубліковано: 12 серпня 2015 Ах да. Думаю вложиться в материалы+работы с ванной без кухни в 90-100 тыс. Не кидайтесь камнями...надежды у меня такие.. __________________ Бюджет совершенно нереальный. Хотя, конечно, неясны подробности, объем работ. Недавно сделала ремонт 45 м2. Я бы сказала, что последовательность может быть такая. Купить сантехнику всю и сразу. Выбрать и купить плитку. То же с полом, хотя бы выбрать. Не заказывать дизайн (при таком бюджете). Вам для начала ремонта нужны только планировки, при вашей площади кол-во вариантов небольшое, времени на разработку планировки нужен минимум. Нужна будет помощь с планировкой - могу помочь, денег не беру - так, хобби. Что касается дизайна - выбора цвета и т.п. - найдите в интернете картинки, скиньте в папку, пересмотрите, и разберитесь, что вам нравится. После можно просто слямзить оттуда цвета и у вас получится интерьер, который вам приятен. Да простят меня дизайнеры за такие советы… По поводу бригад - у Вас есть свои реальные условия, от них и отталкивайтесь. Можете сделать какой-то этап - делайте. Пусть делают так, как вам нужно. Например, сделали электрику, штукатурку, сантехнику, потом, когда получится - займетесь чистовой отделкой. И ничего, даже если это будет другая бригада. Или один человек - объемы у Вас небольшие. 1 Посилання на коментар Поділитися на інших сайтах More sharing options...
Тюня Опубліковано: 13 серпня 2015 Поділитись Опубліковано: 13 серпня 2015 Питаннечко? Посмотрела одним глазом Предлагаю следующее направление идея с унитазом вместо кухни не нравится… по следующим причинам… первая - технически пролезть через воздуховод скорее всего не удасться. Если он там действительно есть ( с нашими строителями любые приколы возможны), то тогда туда лучше не лезть. Во-вторых, у вас вход в туалет окажется напротив гостинной - не феншуйненько ?) Есть еще 3 и 4 причины… Квартира оч хорошая, рациональная, есть резервы. Как я понимаю, хочется получить больше от технических помещений, с комнатами все просто шикарно. Что бы предложила я. Взамен идеи с кладовкой, которая тормозит все развитие сюжета, забрать это помещение во влажную зону и сделать 2 помещения - туалет + стиралка, второе - полноценный с/у. Покрутив сюжет на компе, можно поискать удобную планировку этого. И в первом таком помещении частично хранить то, что подходит (часть содержимого вашей воображаемой гардеробной). Есть куча хозяйственного барахла, которое хочется хранить не в ванной и не на кухне, те же ведра, швабры, запасы бытовухи, пылесос наконец. Гардеробу (одежде и обуви) поищем другое место Добавлено через 31 минуту Доброго времени суток. Нужна помощь в выборе цвета и материала фартука и вентиляционной шахты в кухне. Фотку прилагаю. Заранее спасибо. А мне бросается в глаза этот короб Доброго времени суток. Нужна помощь в выборе цвета и материала фартука и вентиляционной шахты в кухне. Фотку прилагаю. Заранее спасибо. Миниатюры Картинка выглядит немного грусняво, хочется цвета, но не массивом, а оч деликатно. Жаль не видно, что в остальных помещениях. Шахту нужно найти способ визуально спрятать. Как самый первый вариант - нижнюю полосу сделать частью фартука, а в районе шкафчиков и выше - в тот же цвет, что и стена вверху. И если фартук будет подобран удачно, то шахта перестанет так бросаться в глаза. По цвету фартука, хочется разбить этот коричнево-бежевый. Может попробовать красивый белый или просто светлее по тону, чем шкафы и стена. 1 Посилання на коментар Поділитися на інших сайтах More sharing options...
myrslava Опубліковано: 16 серпня 2015 Поділитись Опубліковано: 16 серпня 2015 (змінено) Здравствуйте! Помогите избавится от мук и нерешительности. В однокомнатной квартире 53 м.кв. выделили место для спальни, но уж очень она маленькая:3.45х2.50 м., боюсь чтобы не была конуркой. Можно ли ее с такими размерами полностью изолировать в отдельную комнату с установкой двери со входом с прихожей скорее всего, или просто зонировать. Перегородка с кухней-столовой-гостиной планируется со стеклом, для освещения спальни. Квартиру в связи с множеством несущих елементов стен называю тетрисом . Буду благодарна за помощь. Змінено 16 серпня 2015 користувачем myrslava редактирование Посилання на коментар Поділитися на інших сайтах More sharing options...
Тюня Опубліковано: 16 серпня 2015 Поділитись Опубліковано: 16 серпня 2015 Нет, так низзя, совсем низзя. Надо искать другое решение, покажите первоначальный план Посилання на коментар Поділитися на інших сайтах More sharing options...
myrslava Опубліковано: 16 серпня 2015 Поділитись Опубліковано: 16 серпня 2015 (змінено) Нет, так низзя, совсем низзя. Надо искать другое решение, покажите первоначальный план Спасибо что откликнулись. План застройщика дома не нашла. Посмотрю в компе на работе. Но могу сказать что убрали только стену разделяющую кухню и комнату с балконом. Комнату объединили с балконом заменив склопакет. Прихожая была 10.5 м.кв. и вход в комнату размером 1.20м был там где изображена тонкая линия в несущей стене между зоной спальни и прихожей, где планируем ( см.на плане) сделать гардеробную. На кухне так и было. Перенесли только воду, чтобы уже вся кухня была только там где она нарисована жирным. Вот такие у нас архитекторы. Для меня это больной вопрос, потому что выбрал муж и не признает что дал маху. Вот и играем в тетрис, как функционально использовать м2 и сделать что-то наподобие спальни. Р.s. Ну уж если такой трактат уже мной написано, то решила добавить по мебели. Диван планируем поставить под панорамным окном, напротив на гипсокартонной перегородке со стеклом-телевизор. На кухне ближе входу из прихожей зона столовой: стол со стульями. Цвет мебели, в том числе и кухонной, белый с патиной-легкая классика. Змінено 16 серпня 2015 користувачем myrslava Посилання на коментар Поділитися на інших сайтах More sharing options...
Illusionss Опубліковано: 17 серпня 2015 Поділитись Опубліковано: 17 серпня 2015 Тюня, спасибо за отзыв. Дом все еще не сдали. Жду пока документов и смотрю что будет с моим бюджетом на ремонт. Посилання на коментар Поділитися на інших сайтах More sharing options...
Тюня Опубліковано: 17 серпня 2015 Поділитись Опубліковано: 17 серпня 2015 Тюня, спасибо за отзыв. Дом все еще не сдали. Жду пока документов и смотрю что будет с моим бюджетом на ремонт.может я повторюсь, но думаю, что ждать не надо. По крайней мере была в похожих условиях год назад, когда начинала ремонт студии дочке. Покупала то, в чем была уверена. Купила сантехнику, это очень помогает на начальном этапе, сантехник уже точно знает, под что делать разводку. Купила сантехнику, нарисовала план, просчитала все под конкретную плитку. И ее тоже купила, хотя и пришлось ее сложить в своей не такой уже большой квартире. Но в итоге, изначальная привязка к размеру плитки помогла сделать все тютя в тютю и получить хороший результат и в смысле точности размещения всех приборов и попадания в швы, и в смысле красивой картинки. Вместе с плиткой сразу выбрали ламинат, так, чтобы он сочетался с плиткой. Добавлено через 6 минут Вот такие у нас архитекторы.Архитекторы или дизайнеры? Перенос кухни на балкон - это тоже изменение, как я понимаю? По плану видно, что вы "ломали" эту квартиру, или может так было изначально, все таки хочется видеть первоначальный план. Когда я посмотрела Ваш план и читаю ваше описание, то первый порыв - поменять все. Я как то увидела все по другому - на маленьком балконе обеденный стол - кухня - там где надпись кондиционер, телик на стене напротив, но уж точно не напротив окна. И прихожую и ванную тоже захотелось немного пересмотреть. Правда, непонятно, на каком этапе ремонта вы сейчас и нужен ли вам другой вариант. Менять хочется, потому что конурка-спальня совсем не гуд, если и оставлять ее в том месте, то все равно как то по=другому, к примеру вход со стороны гостинной и большая раздвижка там, соотв телек уже переноситься на другую стену и т.д. Посилання на коментар Поділитися на інших сайтах More sharing options...
myrslava Опубліковано: 17 серпня 2015 Поділитись Опубліковано: 17 серпня 2015 Менять хочется, потому что конурка-спальня совсем не гуд, если и оставлять ее в том месте, то все равно как то по=другому Поэтому я и расстроилась. План первоначальный не могу найти где сохранила. Вечером возьму план может у соседки сверху или сканирую техпаспорт. Соседка (коллега) стену между кухней и комнатой сохранила, сделав вход в комнату там где на плане вход в спальню. Гардеробную в прихожей тоже сделала, но меньше. Балкончика на кухне изначально не было, там на одной из стен котел. Как раз коллега и перенесла туда кухонную мебель, смотрится неплохо. Но мы же хотим спальное место полноценное!!! и приличную гостиную. Ваш совет разместить на стене где кондиционер телевизор рассматривался. Но увидев резные перегородки из МДФ, и заверения мужа что такое ему под силу, захотелось именно то что Вы увидели на плане. Но сомнения терзают, вот вам и вынос мозгов. Извините что втянула, буду рада за совет. Ремонт только начался, провели сантехнические работы. Вот перед приходом электриков и нужно определится. Посилання на коментар Поділитися на інших сайтах More sharing options...
Тюня Опубліковано: 17 серпня 2015 Поділитись Опубліковано: 17 серпня 2015 Извините что втянула, буду рада за совет. Не, ну я же добровольно втянулась никто ж не заставлял телек я писала - напротив кондиционера, может мы друг друга не совсем поняли Хотите - нарисуем вам что нибудь альтернативное вашему плану Посилання на коментар Поділитися на інших сайтах More sharing options...
myrslava Опубліковано: 17 серпня 2015 Поділитись Опубліковано: 17 серпня 2015 Да, мы думали разместить телевизор на стене где кондиционер, хотя уже было столько вариантов , и отказывались от кровати. Но есть проблемы со спиной, и поэтому опять возвращались к теме спальни. И наконец настал тот час когда надо принять решение. Хотя рабочие посмеиваются и говорят:" давайте сделаем, не? -развалим". Ну что мне делать О-ХО-ХО. Может заделать вход в спальню, где двери и убрать стену со стороны кухни за колоной (после входа в кухю)? Парни её все равно сломали до колоны и надо снова кусок достраивать, или делать перегородку(если следовать плану). По поводу раздвижной перегородки мысль была одной из первых, даже фото визуализации скачала с инета (пример ниже), муж забраковал: это ему чуждо! Хотя и телевизор напротив окна его расстраивает. но между двох зол... Посилання на коментар Поділитися на інших сайтах More sharing options...
Ykochubey Опубліковано: 17 серпня 2015 Поділитись Опубліковано: 17 серпня 2015 добрый вечер хотел бы услышать мнение дизайнеров и взгяд со стороны. На данном этапе ложим бут. Вопрос - где остановиться Пока рисую так: Вариант №1 (ссылка на изображение устарела) Или вариант №2 (ссылка на изображение устарела) Так выглядит сейчас: (ссылка на изображение устарела) ещё один рисунок и фото: (ссылка на изображение устарела) (ссылка на изображение устарела) Вопрос в том, что большая *башня* просит бут под балкон, но хочется и другую тоже обложить камнём под крышу. не будет ли слишком много камня? и ещё один вопрос. какое сюда можно придумать крыльцо- чтоб увеличить ступеньки и не капало на голову. и сморелось гармонично... то место что изначально было отведенно для крыльца- я использывал для гардероба... теперь мучаюсь с крыльцом: (ссылка на изображение устарела) (ссылка на изображение устарела) Заранее спасибо за любую критику Сорри, если не правильно ставлю вопросы:D Рисовалось в SketchUp Посилання на коментар Поділитися на інших сайтах More sharing options...
Тюня Опубліковано: 17 серпня 2015 Поділитись Опубліковано: 17 серпня 2015 Да, мы думали разместить телевизор на стене где кондиционер, хотя уже было столько вариантов , и отказывались от кровати. Но есть проблемы со спиной, и поэтому опять возвращались к теме спальни. И наконец настал тот час когда надо принять решение. Хотя рабочие посмеиваются и говорят:" давайте сделаем, не? -развалим". Ну что мне делать О-ХО-ХО. Может заделать вход в спальню, где двери и убрать стену со стороны кухни за колоной (после входа в кухю)? Парни её все равно сломали до колоны и надо снова кусок достраивать, или делать перегородку(если следовать плану). По поводу раздвижной перегородки мысль была одной из первых, даже фото визуализации скачала с инета (пример ниже), муж забраковал: это ему чуждо! Хотя и телевизор напротив окна его расстраивает. но между двох зол... Просто у вас будет другая ориентация кровати относительно перегородки. Тяжело объяснить на пальцах. Если вам это удобно , можем созвониться , я объясню все идеи, которые навеял ваш план 1 Посилання на коментар Поділитися на інших сайтах More sharing options...
karya Опубліковано: 18 серпня 2015 Поділитись Опубліковано: 18 серпня 2015 На данном этапе ложим бут. Вопрос - где остановиться на втором варианте - он хоть как-то логически увязан))))) только я бы рекомендовала бут,который на второй башне (та, что без балкона), сделать в одном уровне с тем бутом, что на гараже (я правильно понимаю, это гараж у вас справа?) или еще как вариант все сделать в одном уровне с бутом на гараже Добавлено через 1 минуту не будет ли слишком много камня? будет много и не красиво))) Добавлено через 6 минут и ещё один вопрос. какое сюда можно придумать крыльцо- чтоб увеличить ступеньки и не капало на голову. сделайте навес по типу такого . Там картинка снизу во втором ряду, четвертая справа или вот еще такое 1 Посилання на коментар Поділитися на інших сайтах More sharing options...
Ykochubey Опубліковано: 18 серпня 2015 Поділитись Опубліковано: 18 серпня 2015 только я бы рекомендовала бут,который на второй башне (та, что без балкона), сделать в одном уровне с тем бутом, что на гараже (я правильно понимаю, это гараж у вас справа?) или еще как вариант все сделать в одном уровне с бутом на гараже Спасибо за совет. Я рисовал этот вариант исхожя из правила что использую в фотографии. правило 1/3 или 2/3, тут в варианте №2 бут лежит на 2/3 от высоты окна. Мне кажется что должна присутствовать какая то асиметрия? есть такие правила у дизайнеров? сделайте навес по типу такого . Там картинка снизу во втором ряду, четвертая справа или вот еще такое по крыльцу расматриваю такие варианты как вы предложили, но есть ещё вариант выдвинуть балкон чтоб выступал как козырёк (ссылка на изображение устарела) Думаем Посилання на коментар Поділитися на інших сайтах More sharing options...
karya Опубліковано: 18 серпня 2015 Поділитись Опубліковано: 18 серпня 2015 Мне кажется что должна присутствовать какая то асиметрия? есть такие правила у дизайнеров? в вашем случае ассиметрия не уместна, рискуете все испортить)))))) 1 Посилання на коментар Поділитися на інших сайтах More sharing options...
Ykochubey Опубліковано: 18 серпня 2015 Поділитись Опубліковано: 18 серпня 2015 в вашем случае ассиметрия не уместна, рискуете все испортить)))))) Думаем ))) я её *башню* оставил на самый конец, потом будем смотреть на ходу)) Посилання на коментар Поділитися на інших сайтах More sharing options...
Sumchanka Опубліковано: 23 серпня 2015 Поділитись Опубліковано: 23 серпня 2015 Доброй ночи! Сейчас очень актуальны в интерьере различные модульные картины elegart.com.ua/catalog/modulnyie-kartinyi/ а также постеры elegart.com.ua/catalog/posteryi/ можно накатать любое изображение по вашему желанию)) и как подарок на новоселье очень подойдет. Так с рекламой в другой раздел... 1 Посилання на коментар Поділитися на інших сайтах More sharing options...
Sumchanka Опубліковано: 23 серпня 2015 Поділитись Опубліковано: 23 серпня 2015 Присмотрела на кухню на фартук плитку и декор. Плитка Opochno Авангард белая 30*60, хотя не совсем белая - присутствуют тоненькие полосочки, да и по структуре она не совсем ровная. Декор - стеклокерамика 30*60 Высота фартука -60 Разбивать полосу фартука планировала по полосам :15*30*15 В центральной полосе разместить декоры. По ходу рисования вариантов возникла мысль - а если разрезать декор в месте соприкосновения двух картинок и потом разложить декоры, а между ними основная плитка тоже не в полный размер. Тогда швы плиток будут почти в хаотично порядке Может кто-то с подобным сталкивался. Посилання на коментар Поділитися на інших сайтах More sharing options...
Тюня Опубліковано: 23 серпня 2015 Поділитись Опубліковано: 23 серпня 2015 Будет либо плохо, либо очень плохо. В любом случае не заводской рез по краю плиток будет виден и, учитывая то, что смотреть на это будешь вблизи (фартук), это будет очень видно. Даже, если бы все швы совпадали, эти швы выбивались бы из общей картины. Берите так как есть, или выбирайте другую плитку 2 Посилання на коментар Поділитися на інших сайтах More sharing options...
Рекомендовані повідомлення
Створіть акаунт або увійдіть у нього для коментування
Ви маєте бути користувачем, щоб залишити коментар
Створити акаунт
Зареєструйтеся для отримання акаунта. Це просто!
Зареєструвати акаунтУвійти
Вже зареєстровані? Увійдіть тут.
Увійти зараз